Скачать Типовой проект 801-2-101.12.87 Альбом I. Пояснительная записка. Технология производства. Архитектурно-строительные решения. Конструкции железобетонные. Внутренние водопровод и канализация. Отопление и вентиляция. Электроосвещение и силовое электрооборудование. Связь и сигнализацияДата актуализации: 01.01.2021
|
| Обозначение: | Типовой проект 801-2-101.12.87 |
| Обозначение англ: | 801-2-101.12.87 |
| Статус: | не определен законодательством |
| Название рус.: | Альбом I. Пояснительная записка. Технология производства. Архитектурно-строительные решения. Конструкции железобетонные. Внутренние водопровод и канализация. Отопление и вентиляция. Электроосвещение и силовое электрооборудование. Связь и сигнализация |
| Дата добавления в базу: | 01.09.2013 |
| Дата актуализации: | 01.01.2021 |
| Дата введения: | 06.11.1987 |
| Дата окончания срока действия: | 30.06.2003 |
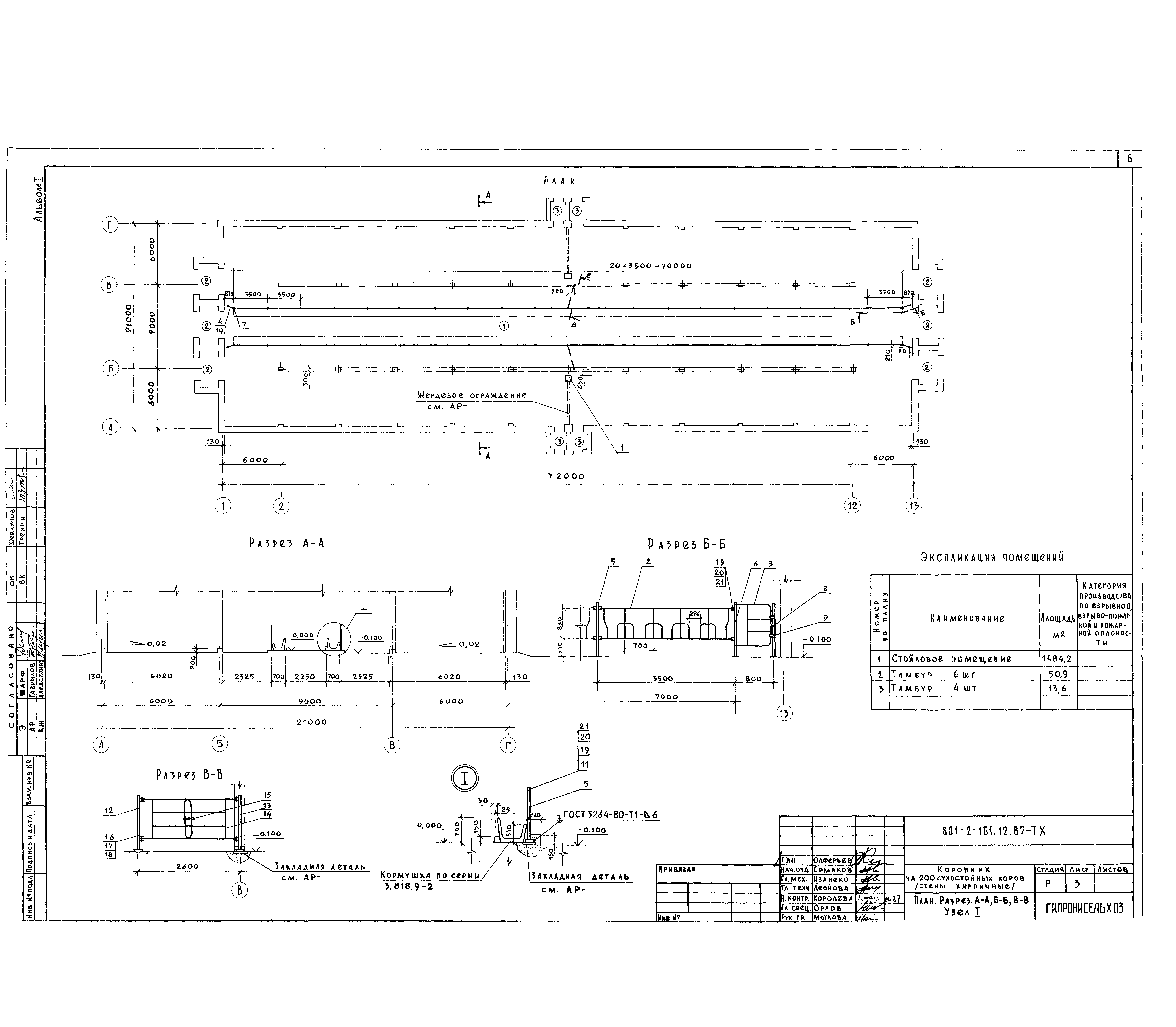
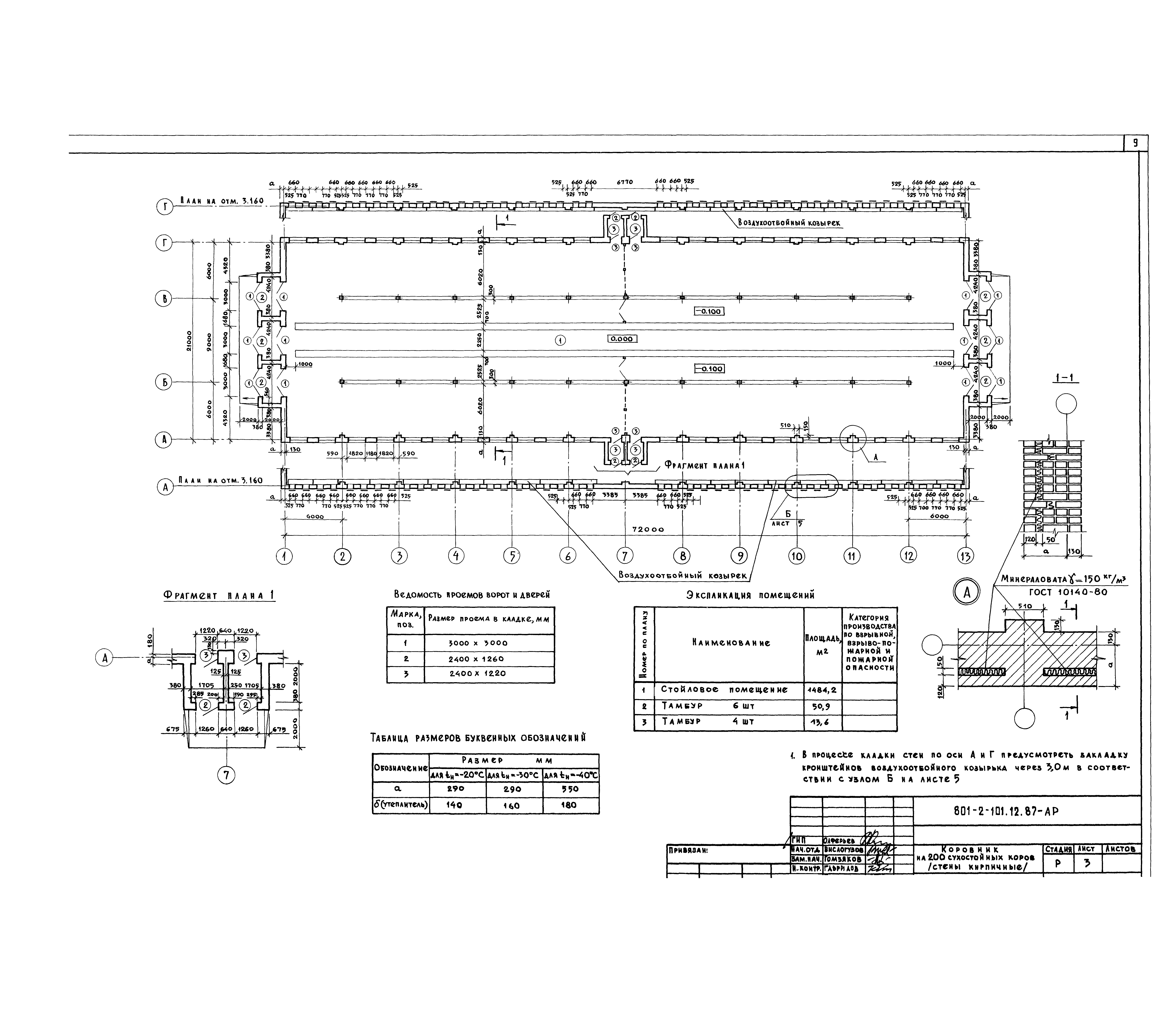
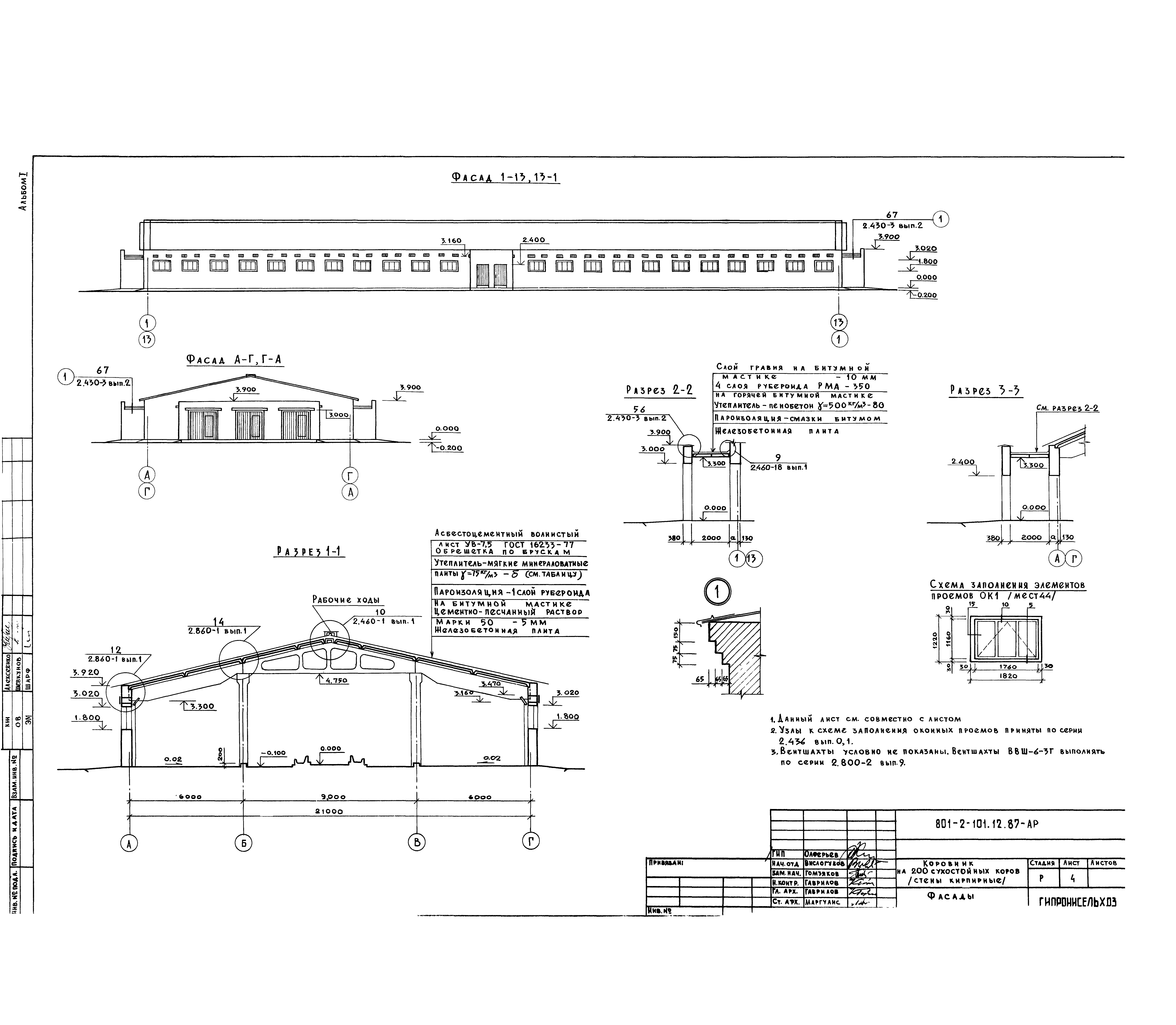
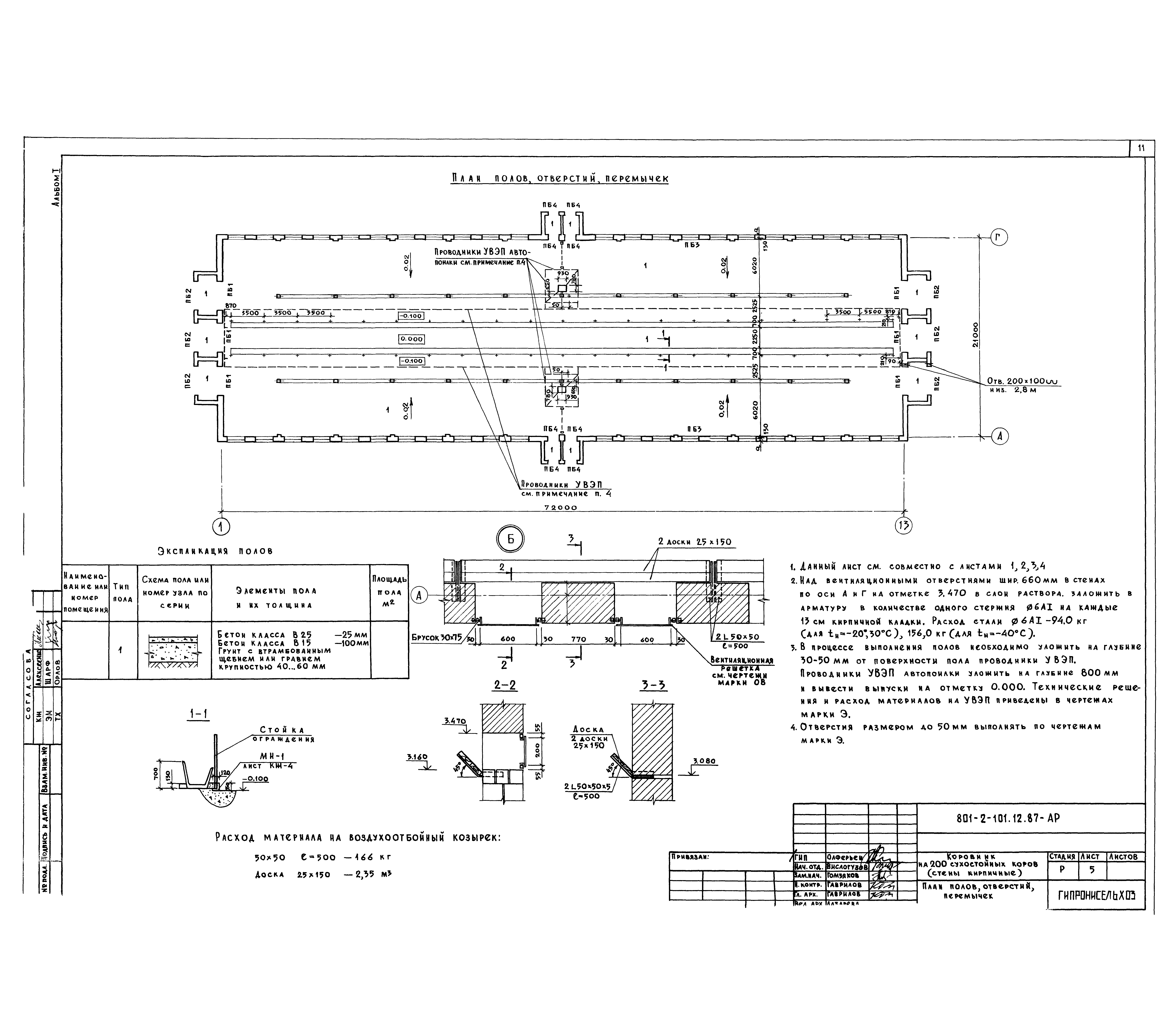
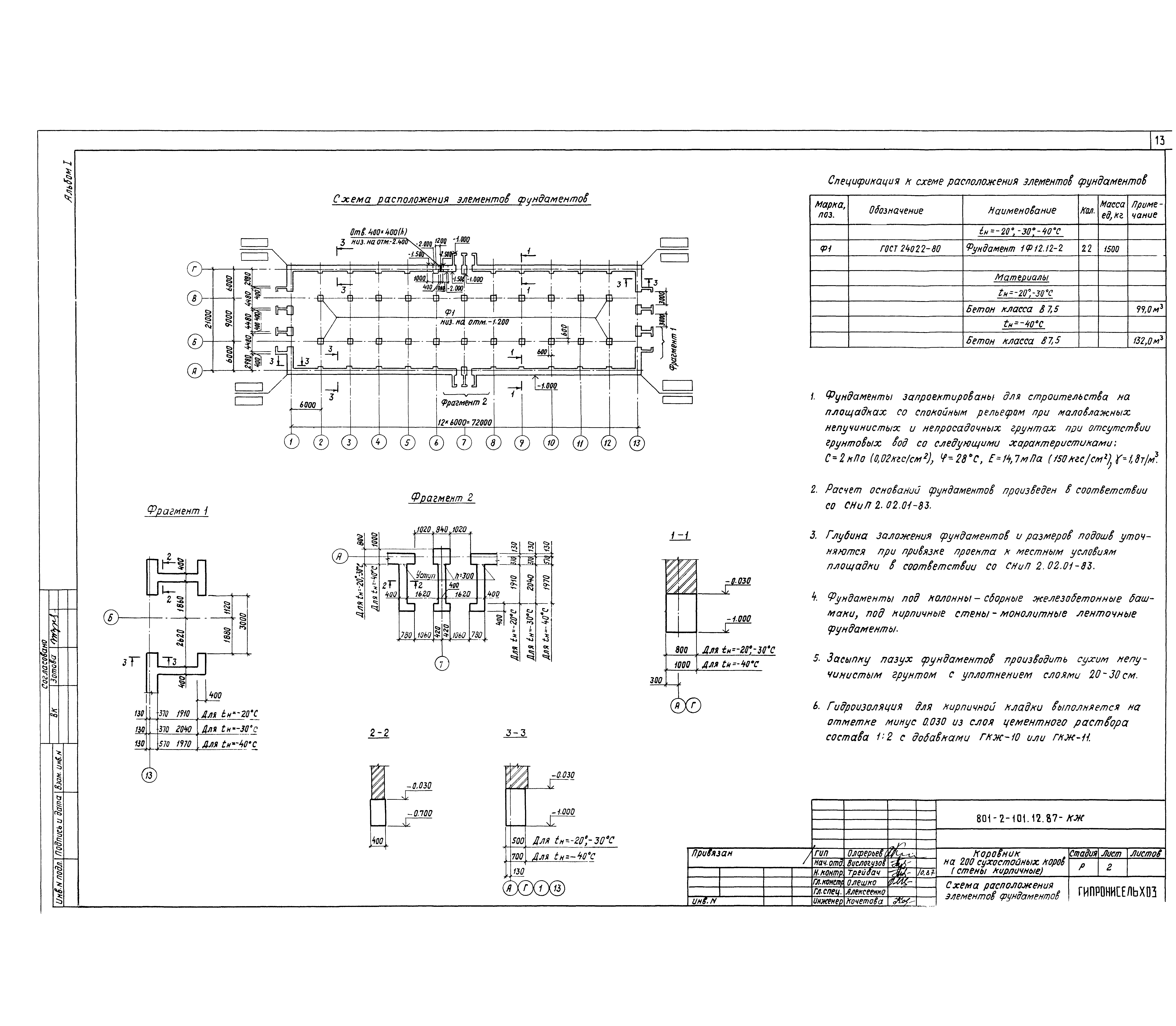
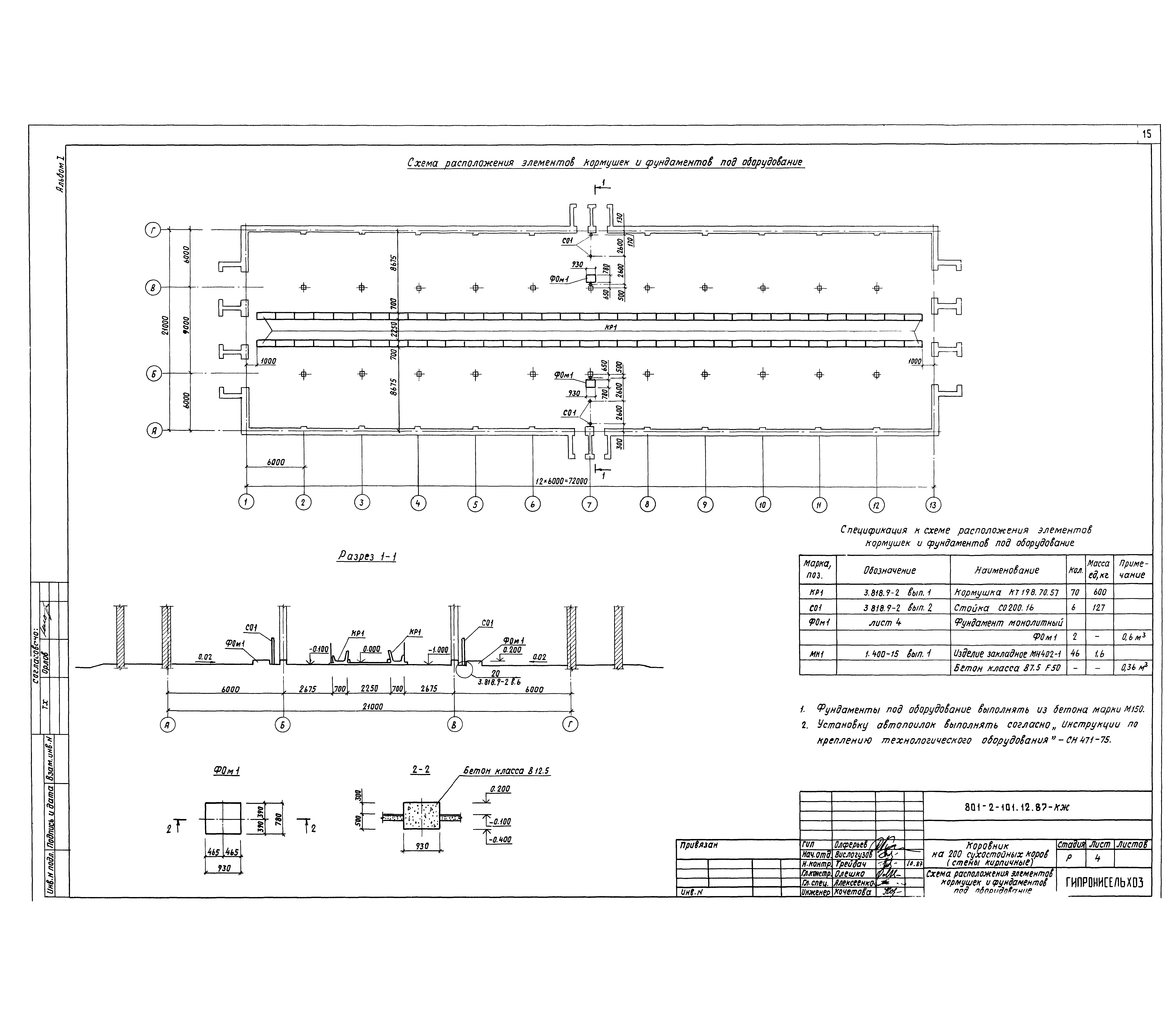
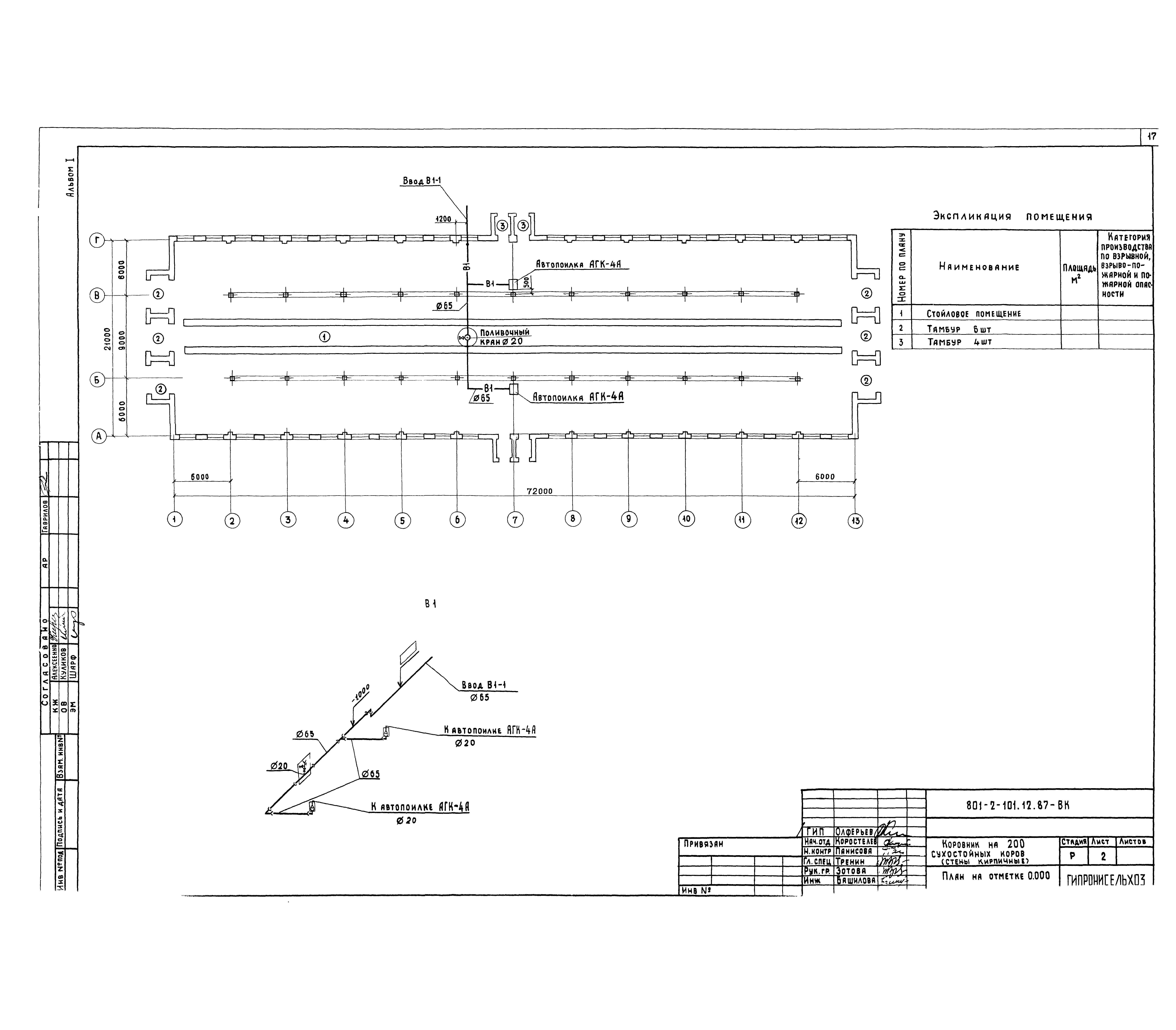
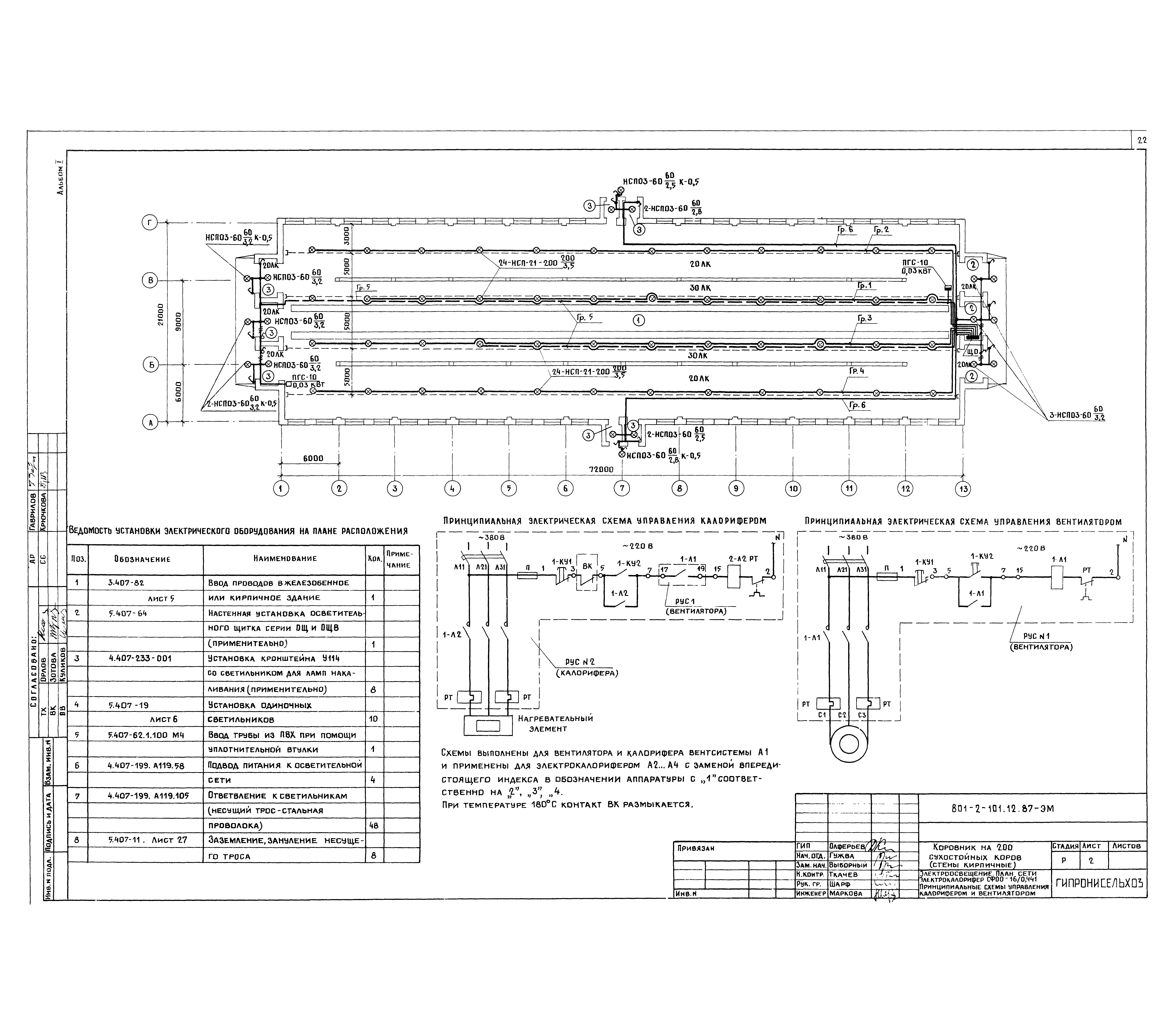
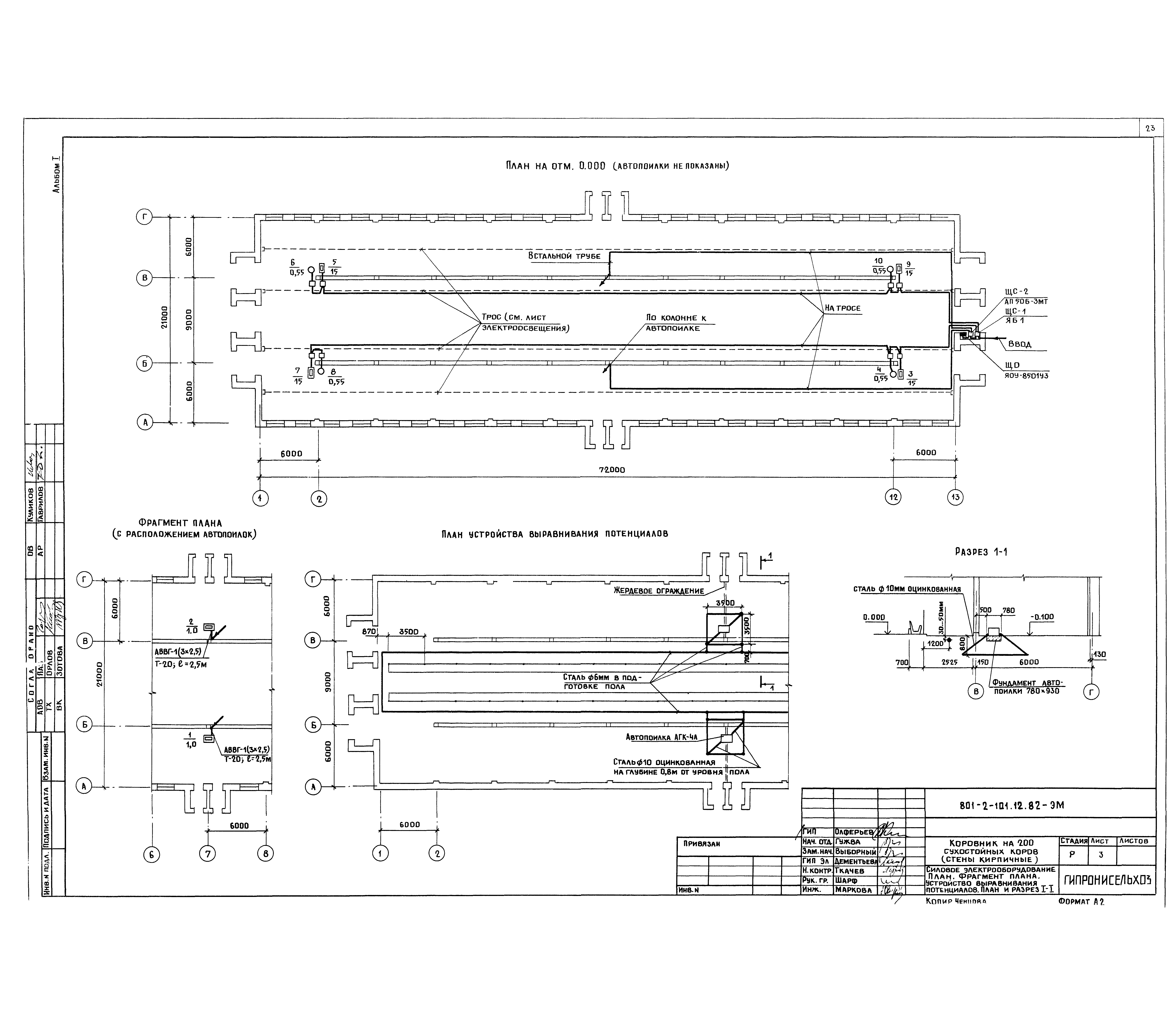
| Оглавление: | Содержание Пояснительная записка Основной комплект рабочих чертежей марки ТХ Общие данные (начало) Общие данные (окончание) План. Разрезы А-А, Б-Б, В-В. Узел 1 Основной комплект рабочих чертежей марки АР Общие данные (начало) Общие данные (окончание) План на отм. 0.000 Фасады Разрезы План полов, отверстий, перемычек Основной комплект рабочих чертежей марки КЖ Общие данные Схема расположения элементов фундаментов Схемы расположения элементов каркаса и покрытия Схема расположения элементов кормушек и фундаментов под оборудование Основной комплект рабочих чертежей марки ВК Общие данные План на отм. 0.000. Схема системы В1 Основной комплект рабочих чертежей марки ОВ Общие данные (начало) Общие данные (окончание) План на отм. 0.000. Разрез 1-1 Основной комплект рабочих чертежей марки ЭМ Общие данные Электроосвещение. План сети. Электрокалорифер СФОО-16/0,4 и 1. Принципиальные схемы управления калорифером и вентилятором Силовое электрооборудование. План. Фрагмент плана. Устройство выравнивания потенциалов. План и разрез 1-1 Расчетная схема электросети 380,220В Основной комплект рабочих чертежей марки СС Общие данные План расположения сетей связи и сигнализации |
| Разработан: | Институт Гипронисельхоз |
| Утверждён: | 27.10.1987 Госагропром СССР (USSR Gosagroprom 805-42//35) |

























