Скачать РМ-2919-01 Рабочие чертежиДата актуализации: 01.01.2021
|
| Обозначение: | РМ-2919-01 |
| Обозначение англ: | РМ-2919-01 |
| Статус: | не определен законодательством |
| Название рус.: | Рабочие чертежи |
| Дата добавления в базу: | 01.09.2013 |
| Дата актуализации: | 01.01.2021 |
| Дата введения: | 23.12.2003 |
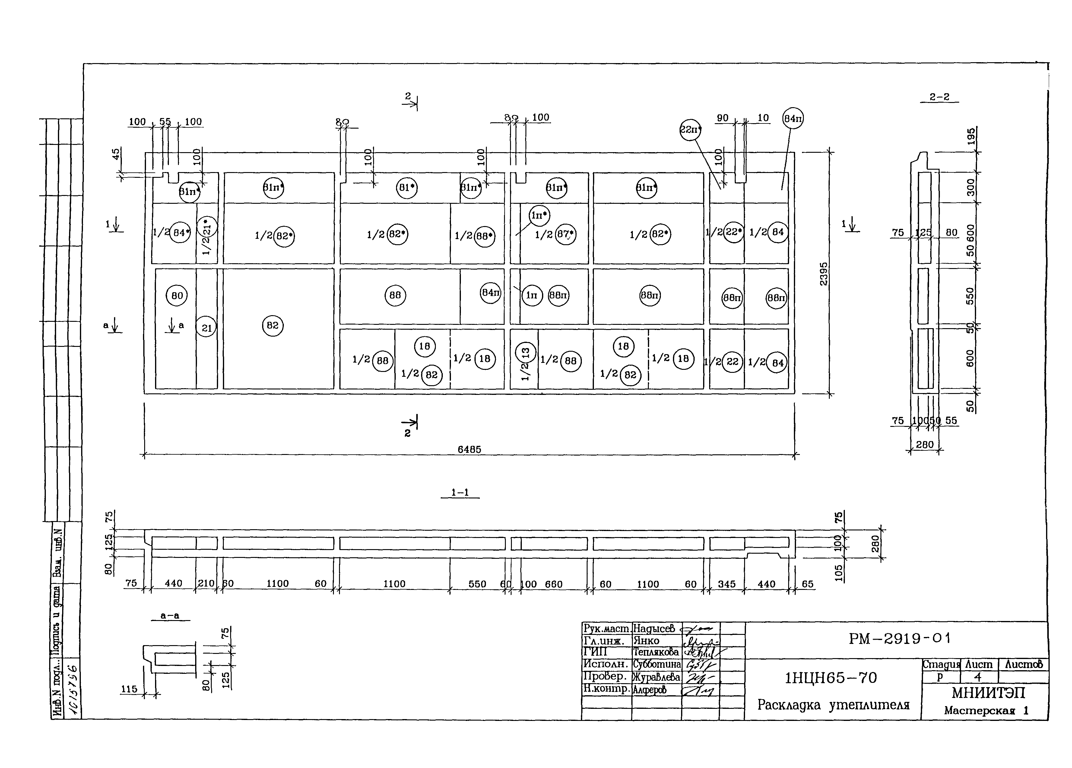
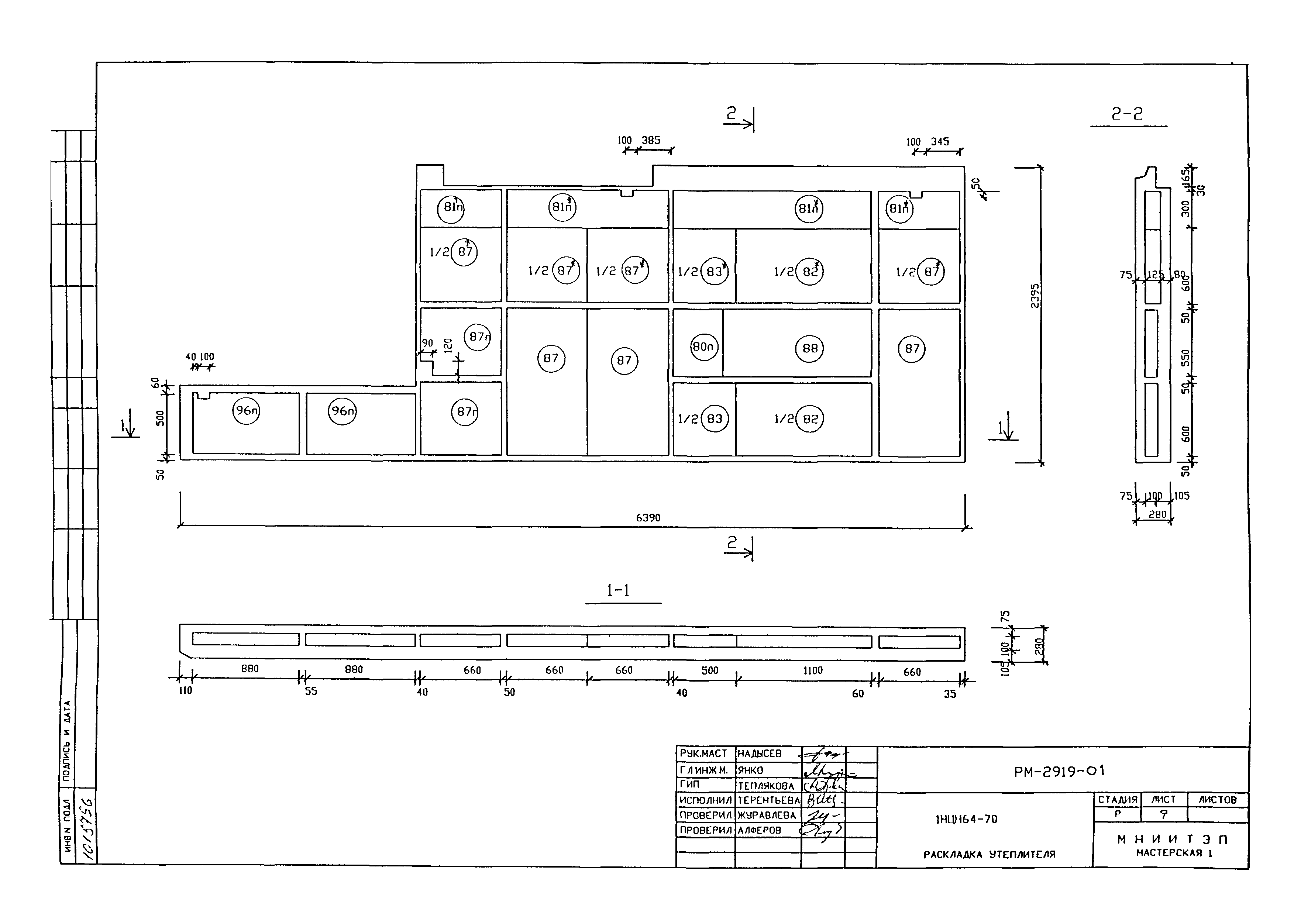
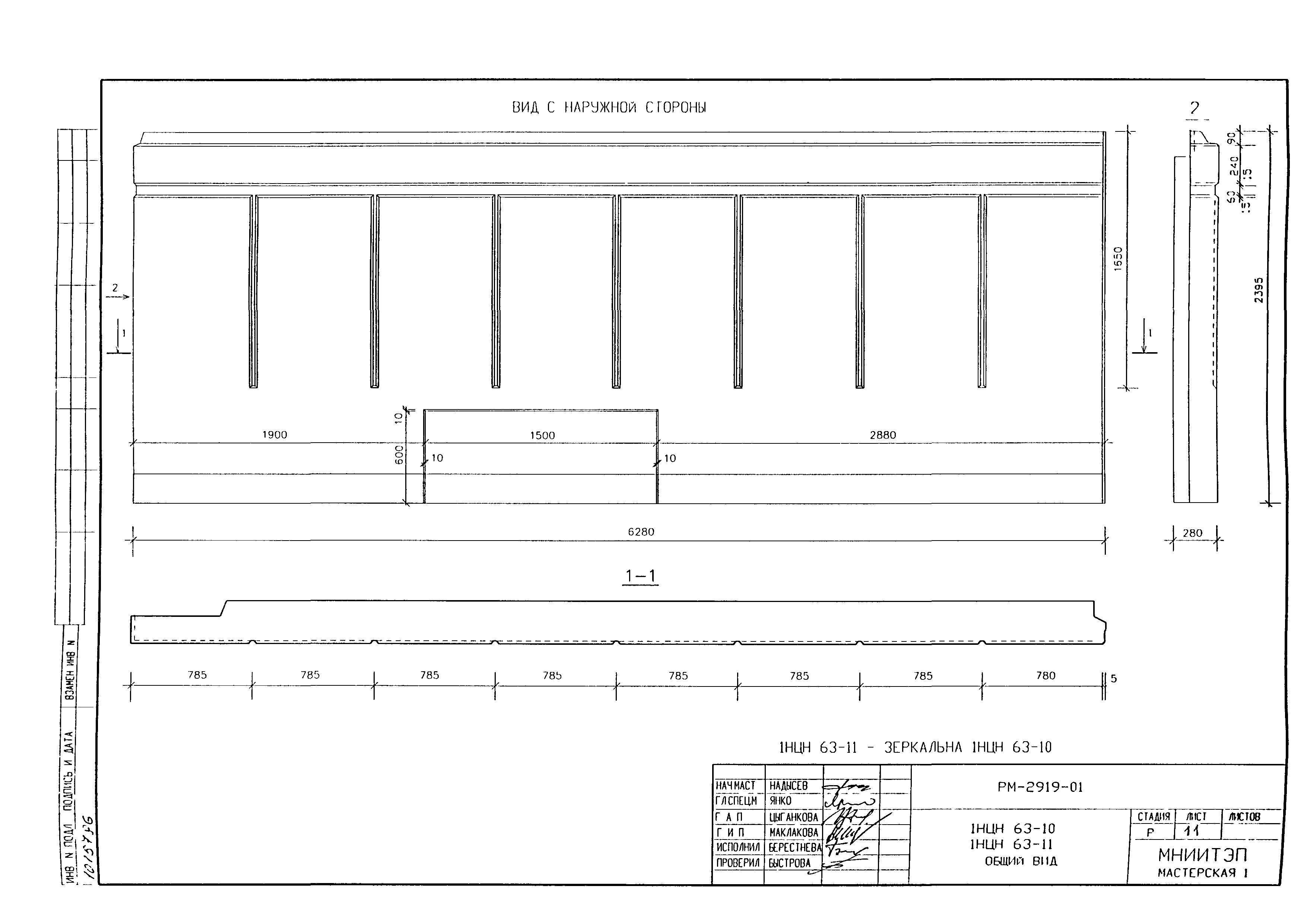
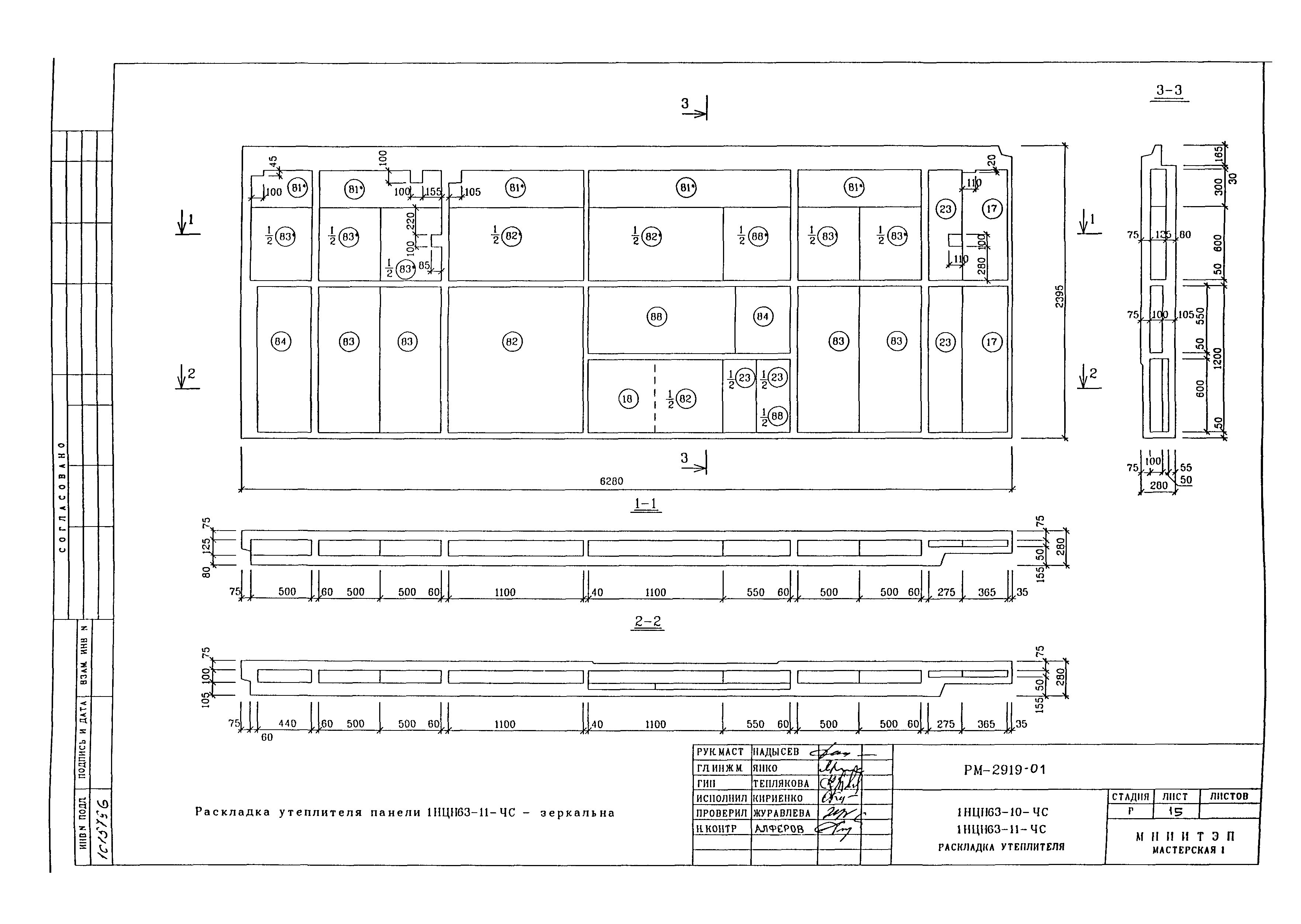
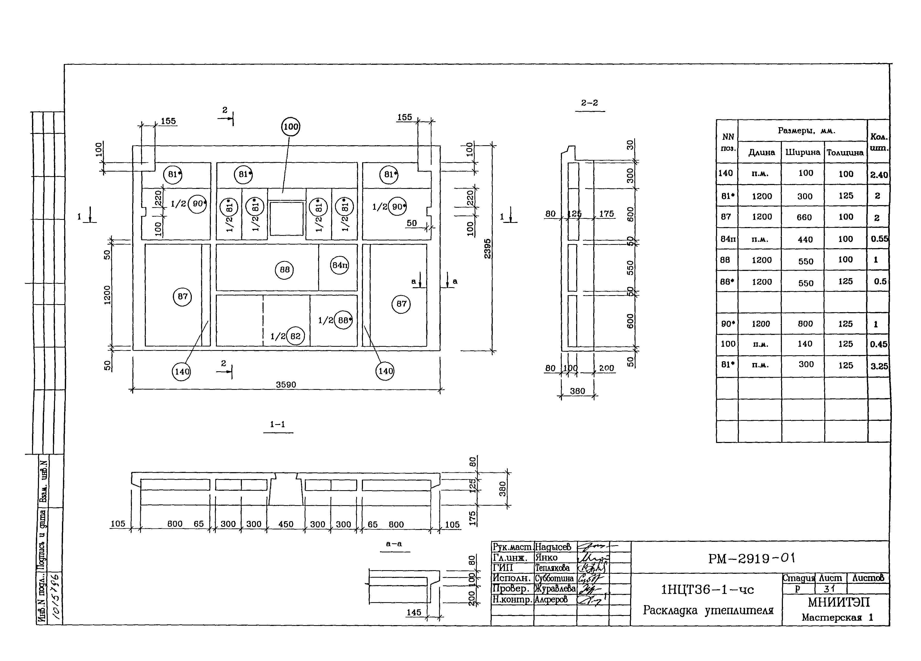
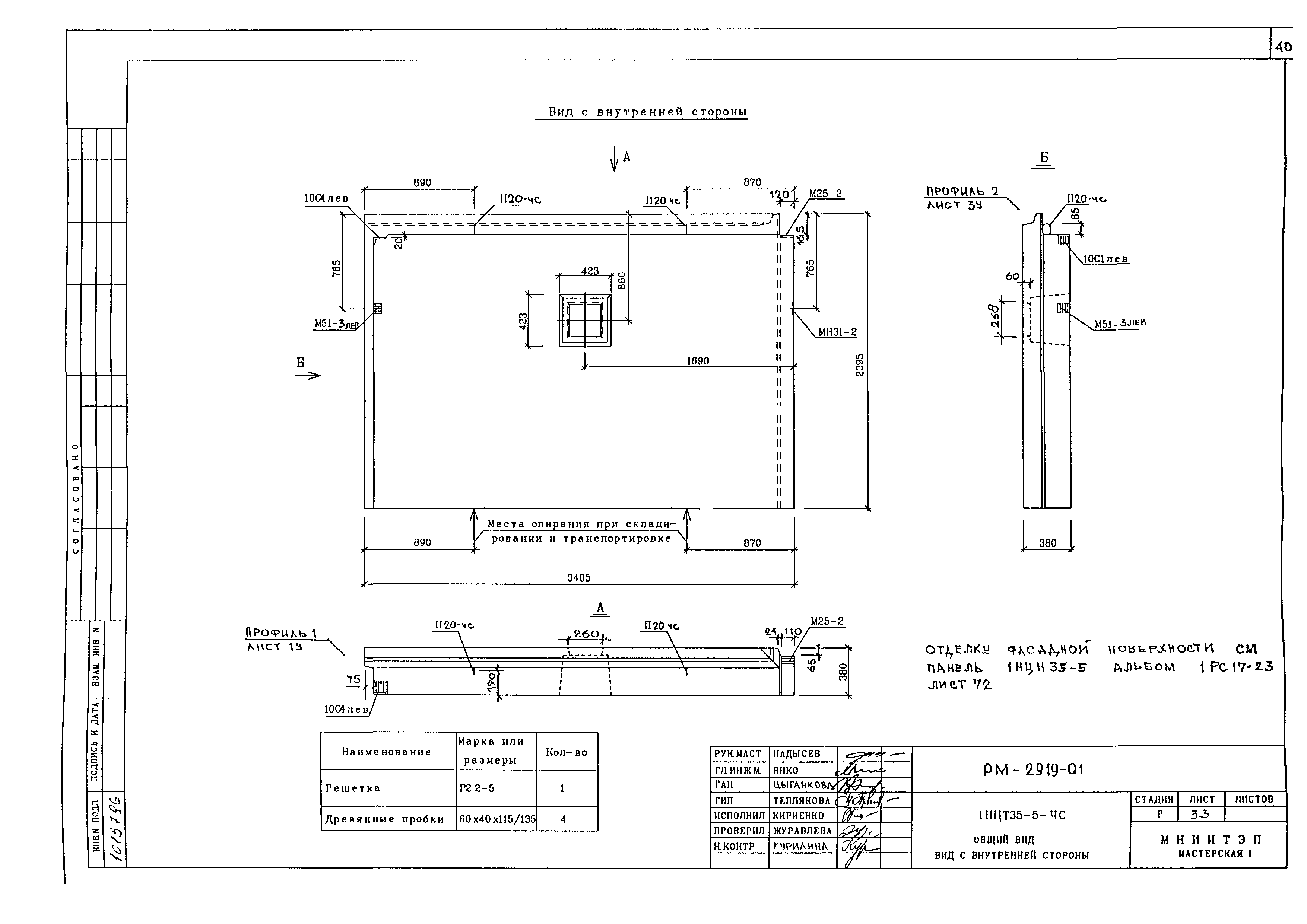
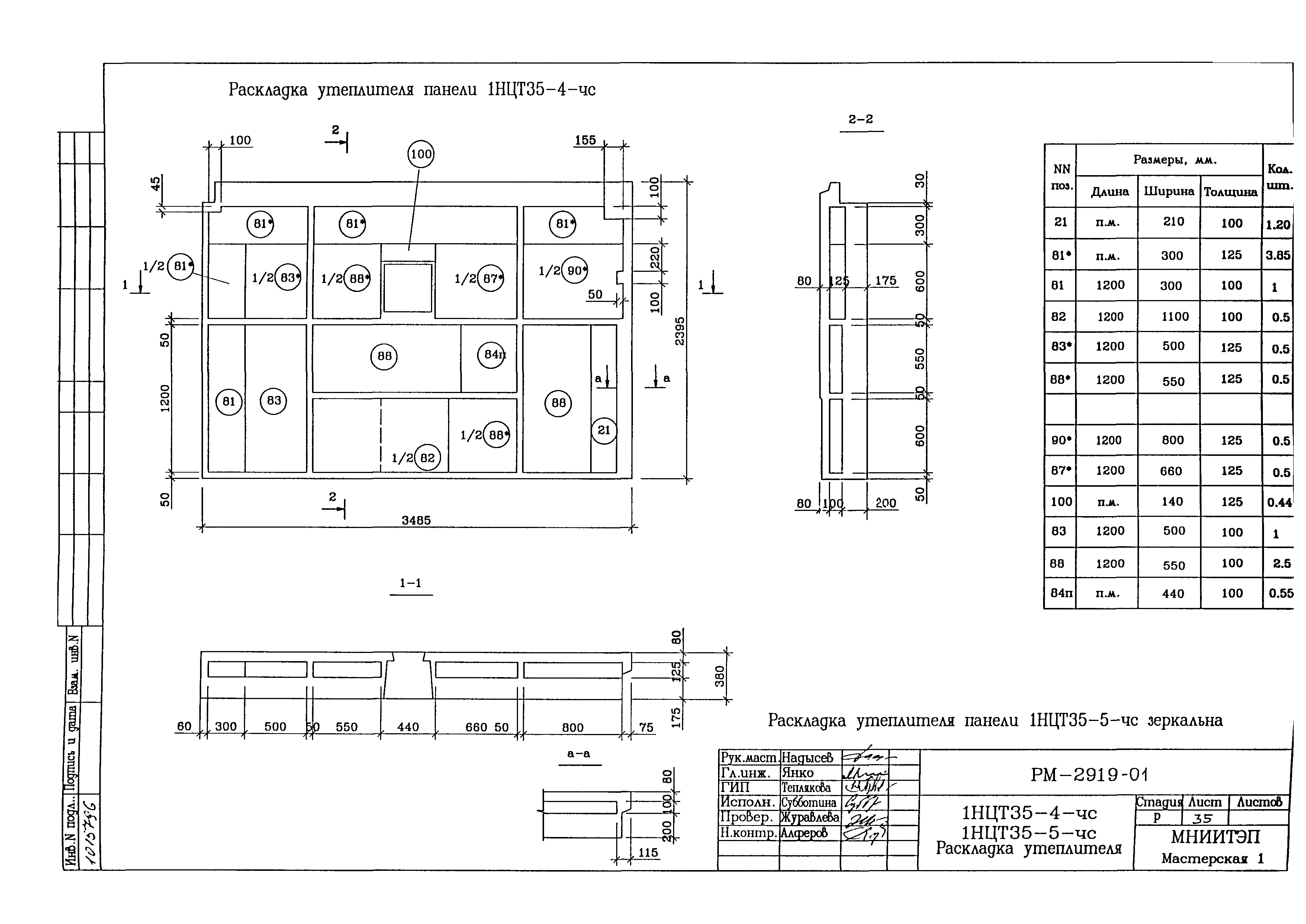
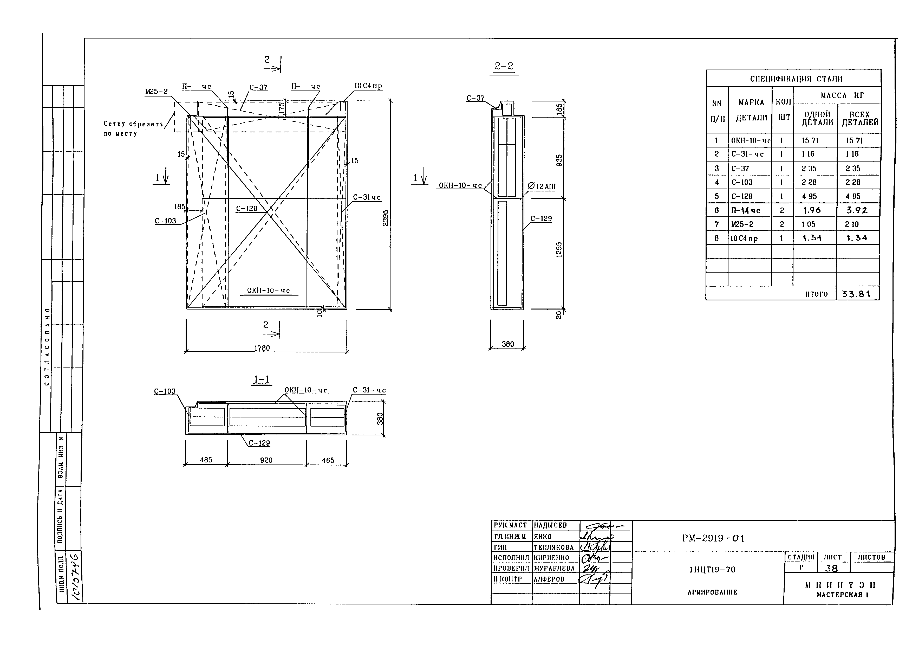
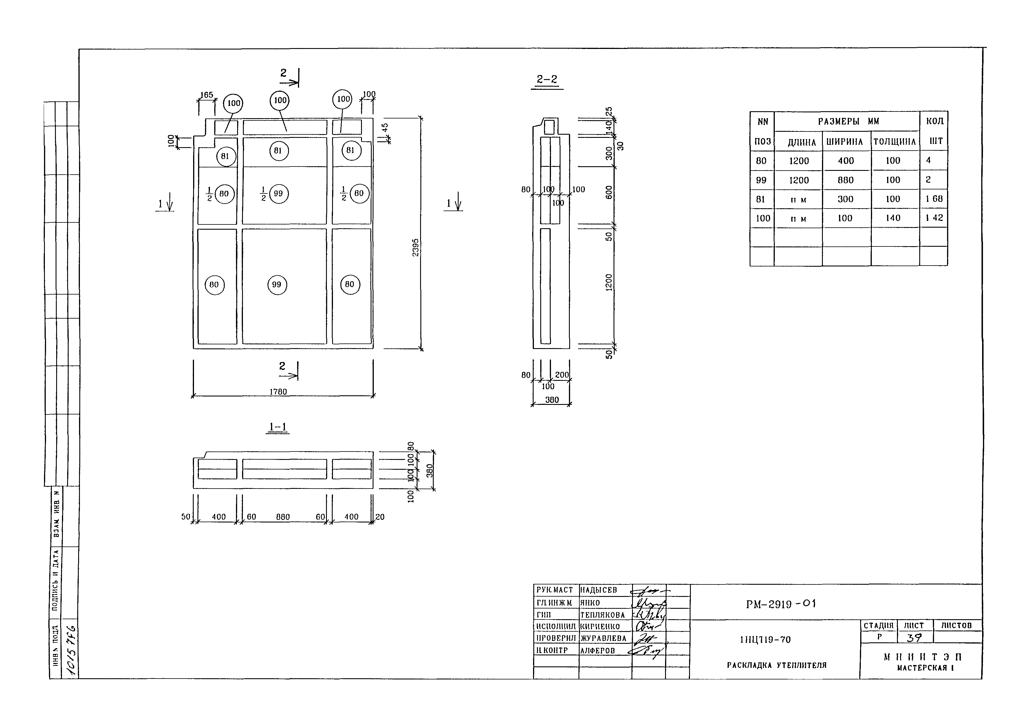
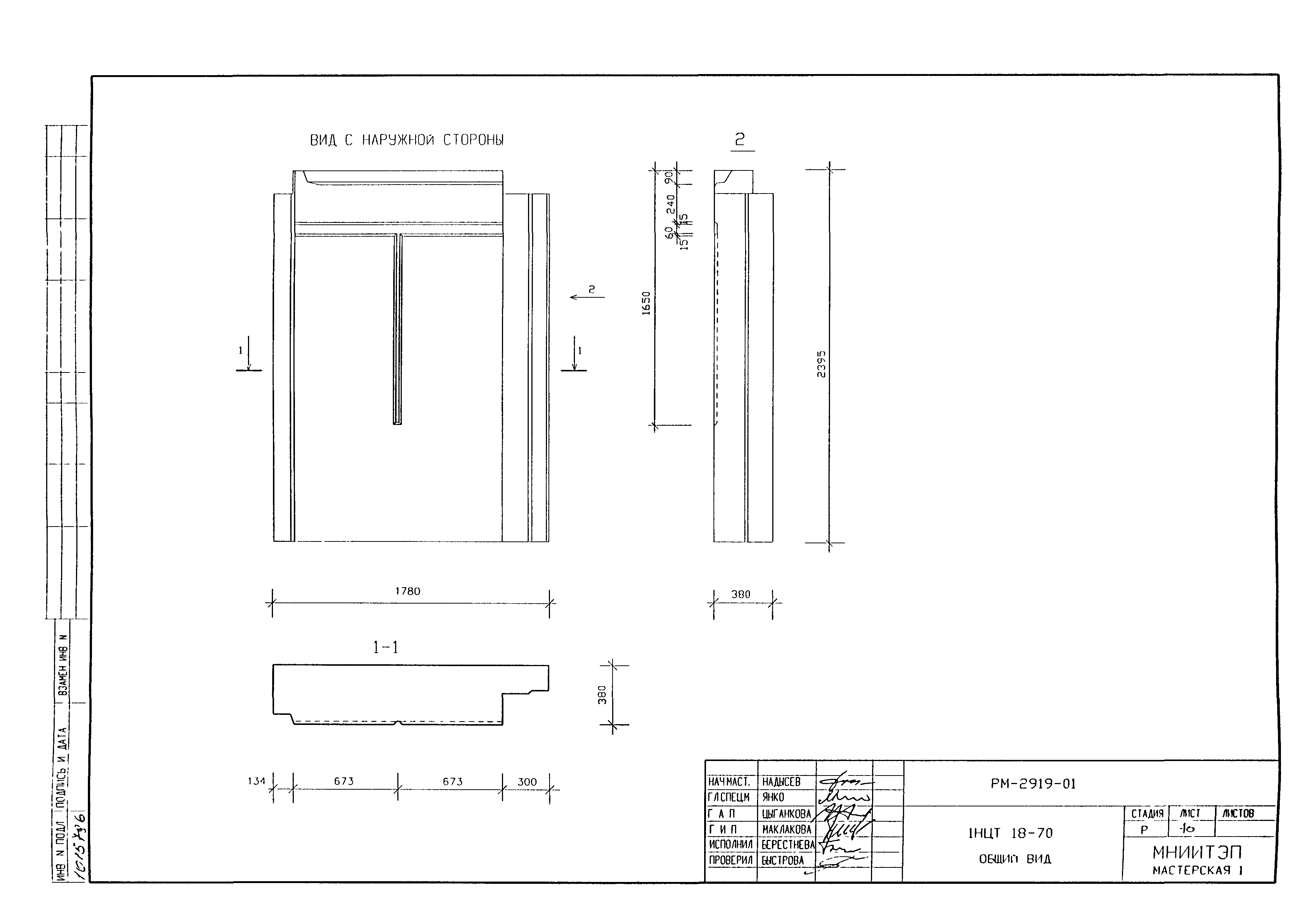
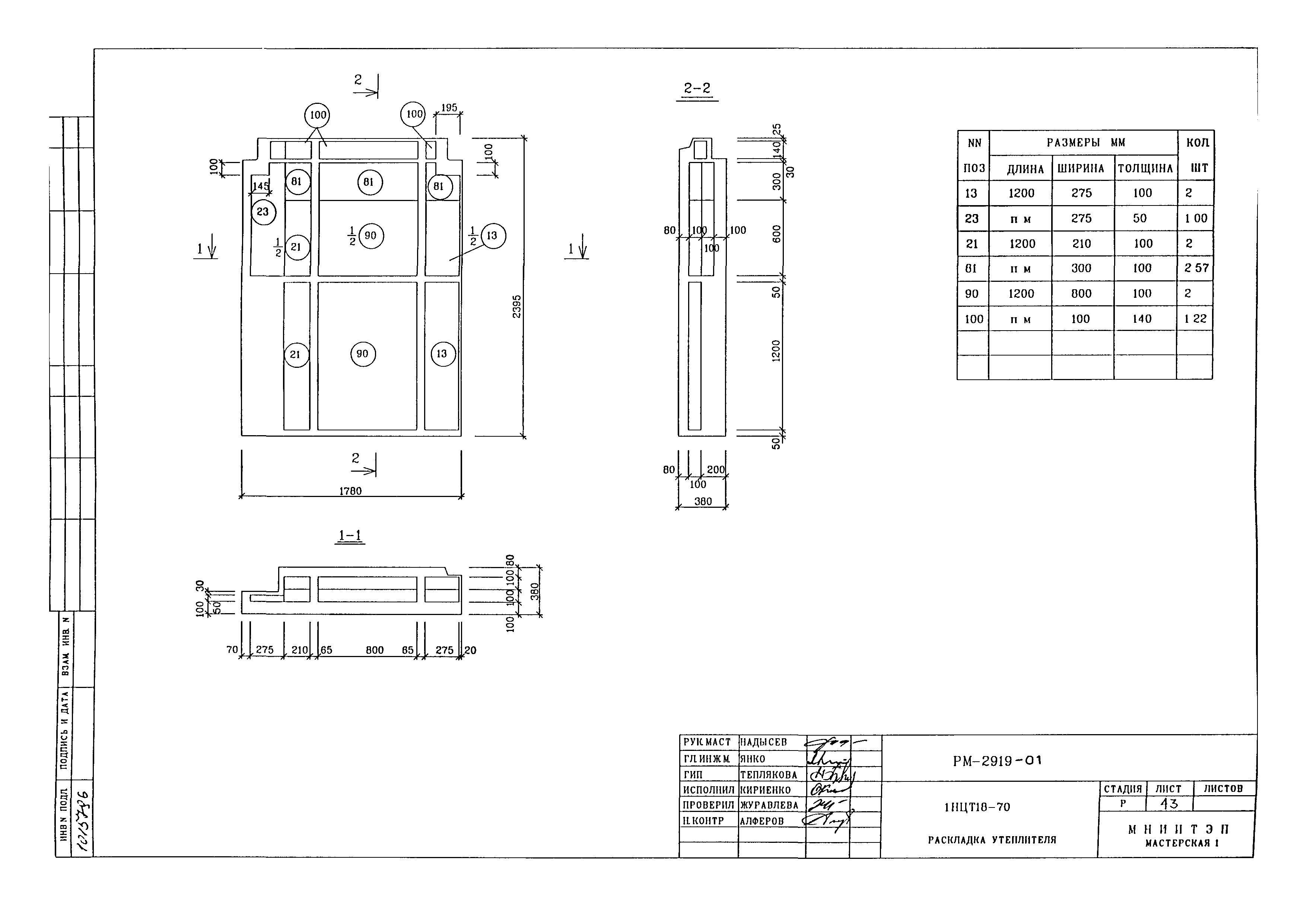
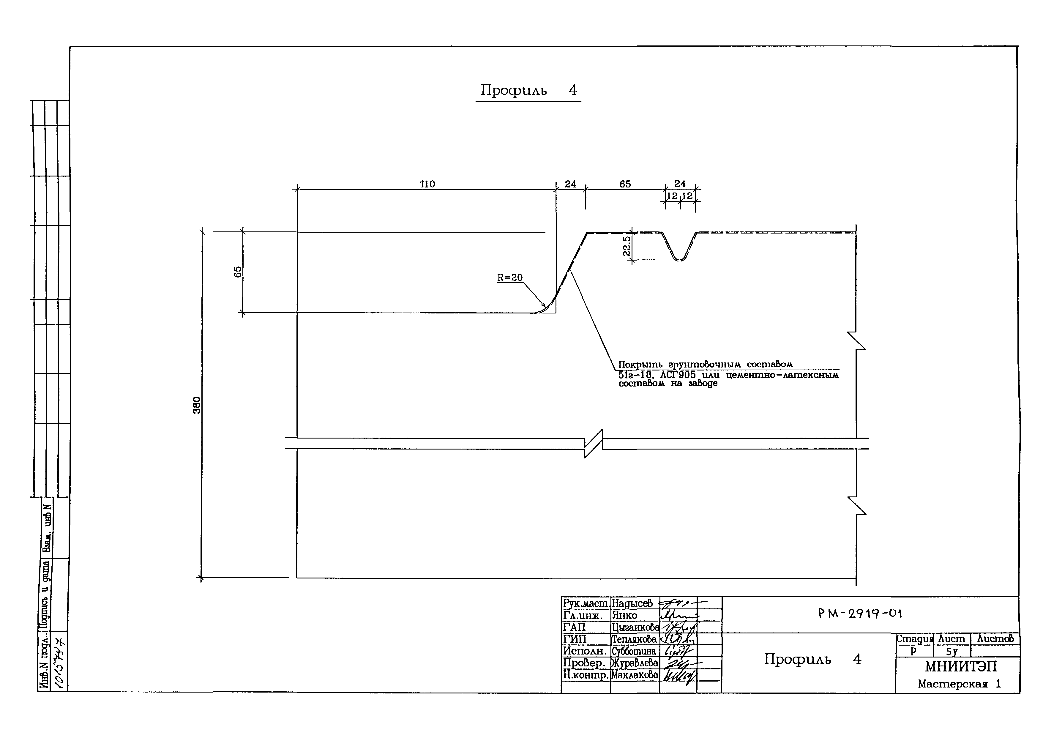
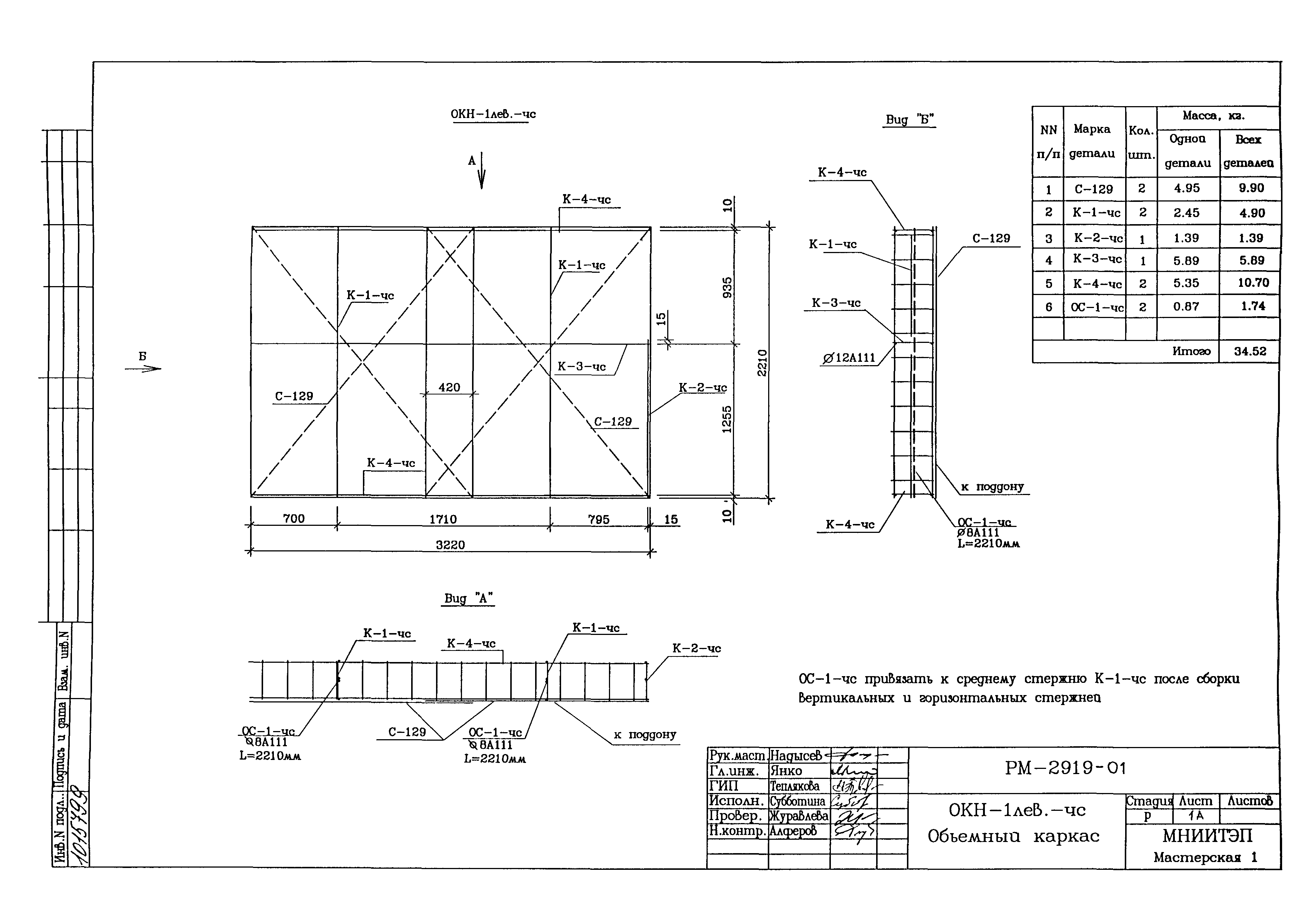
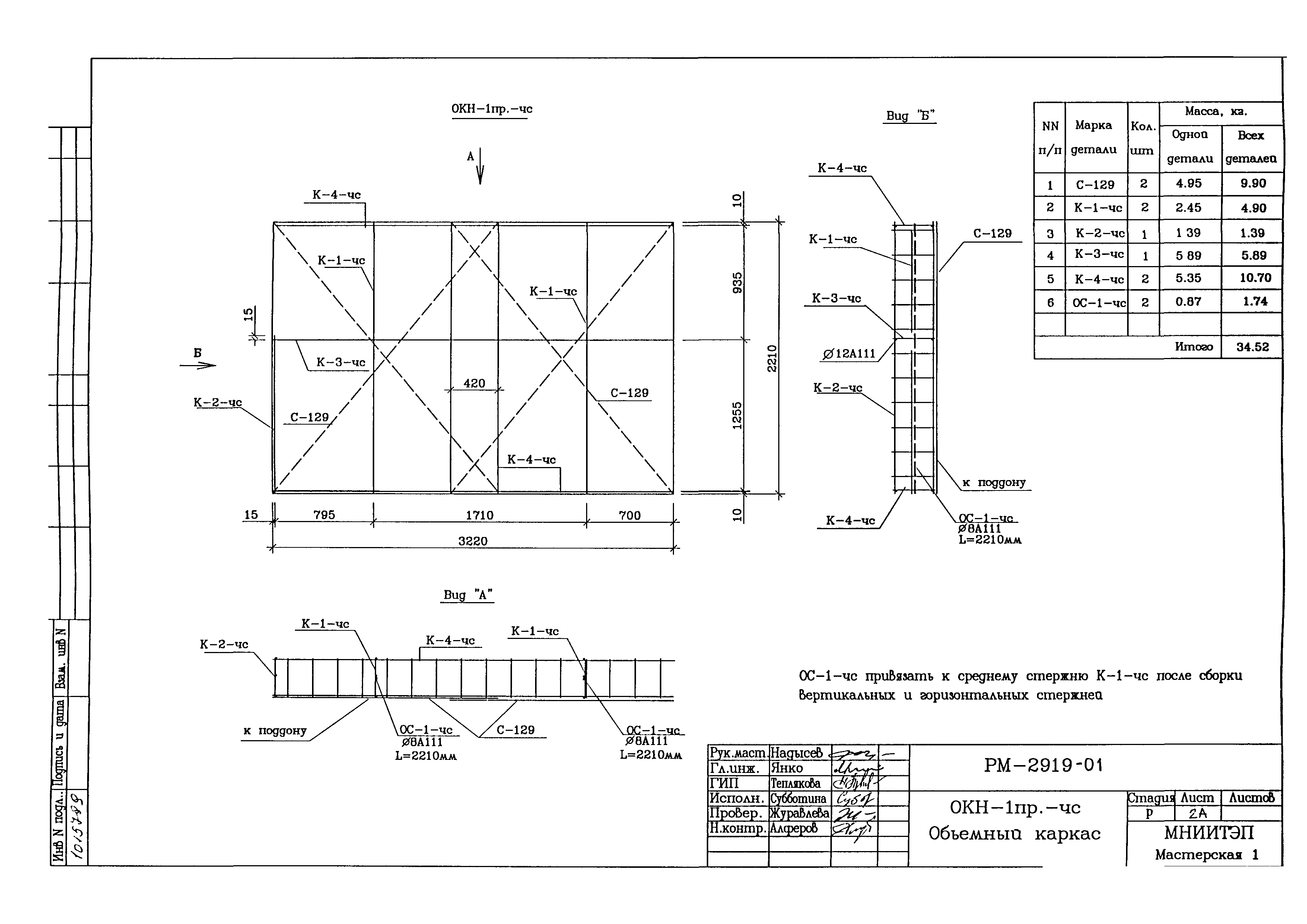
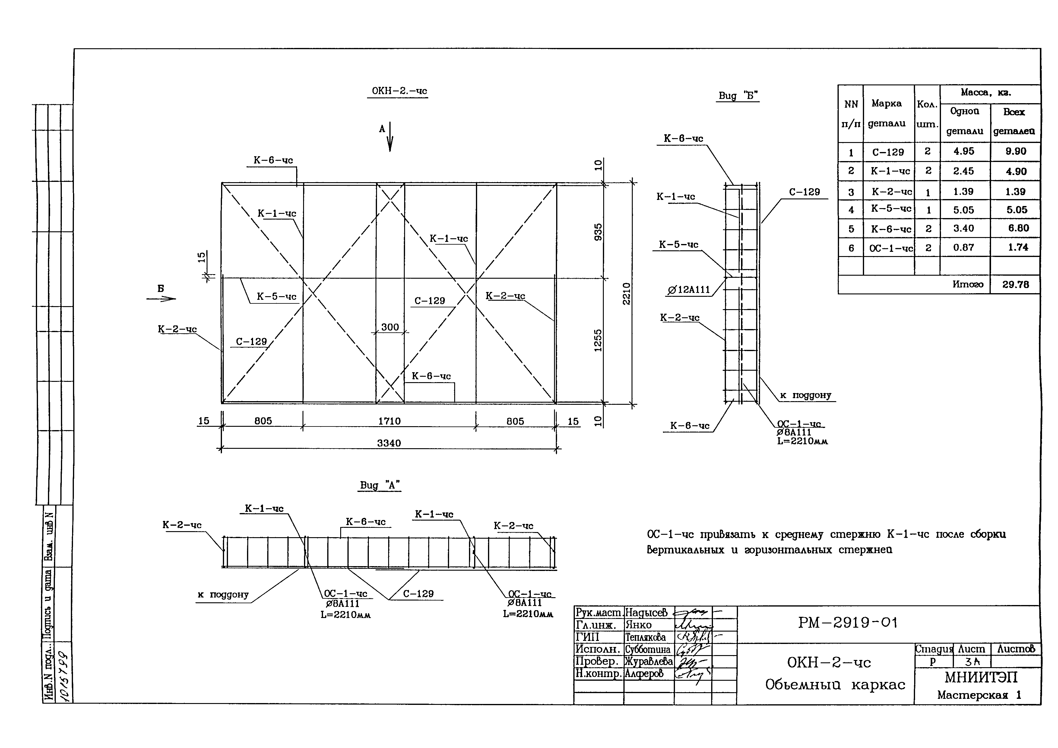
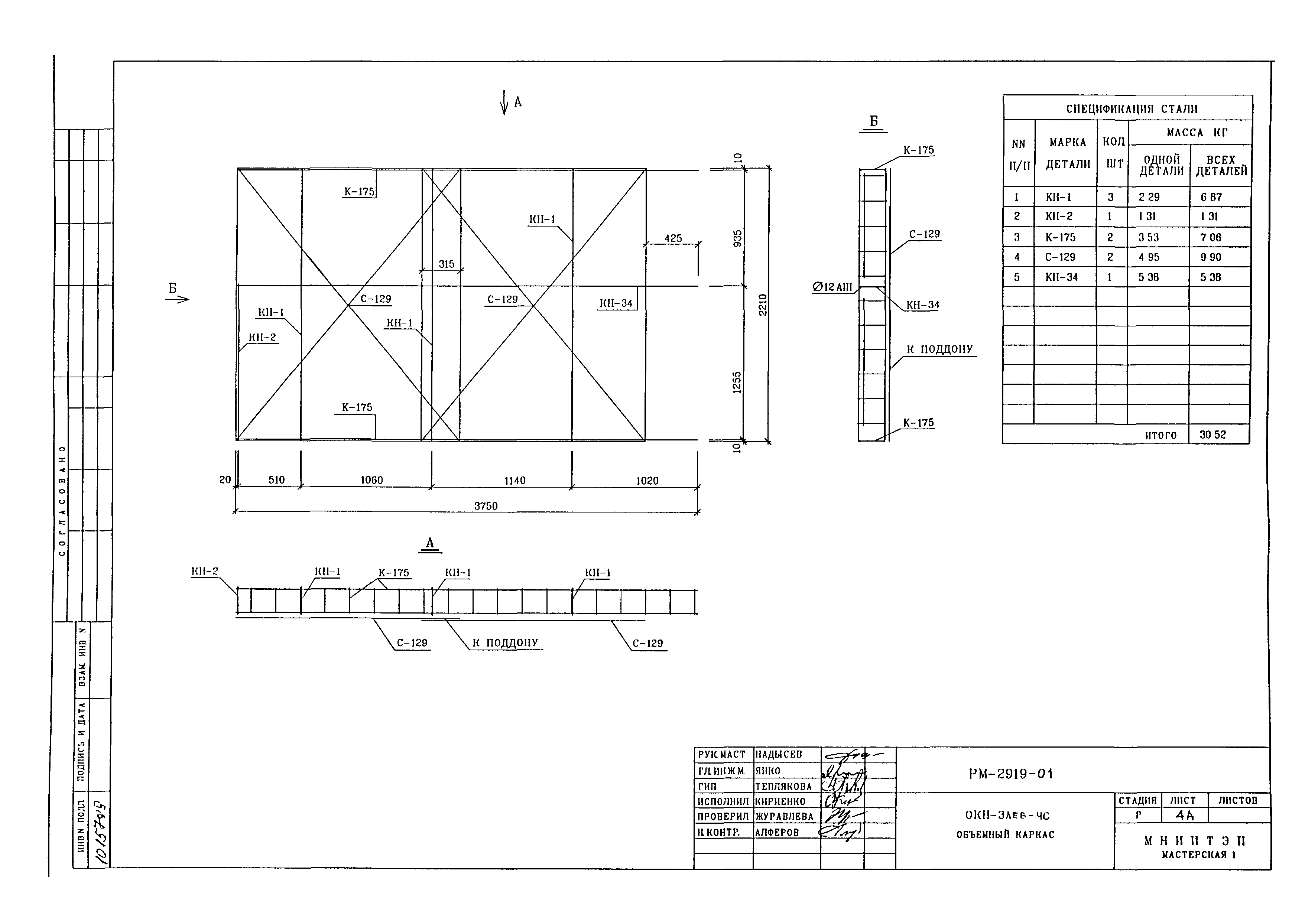
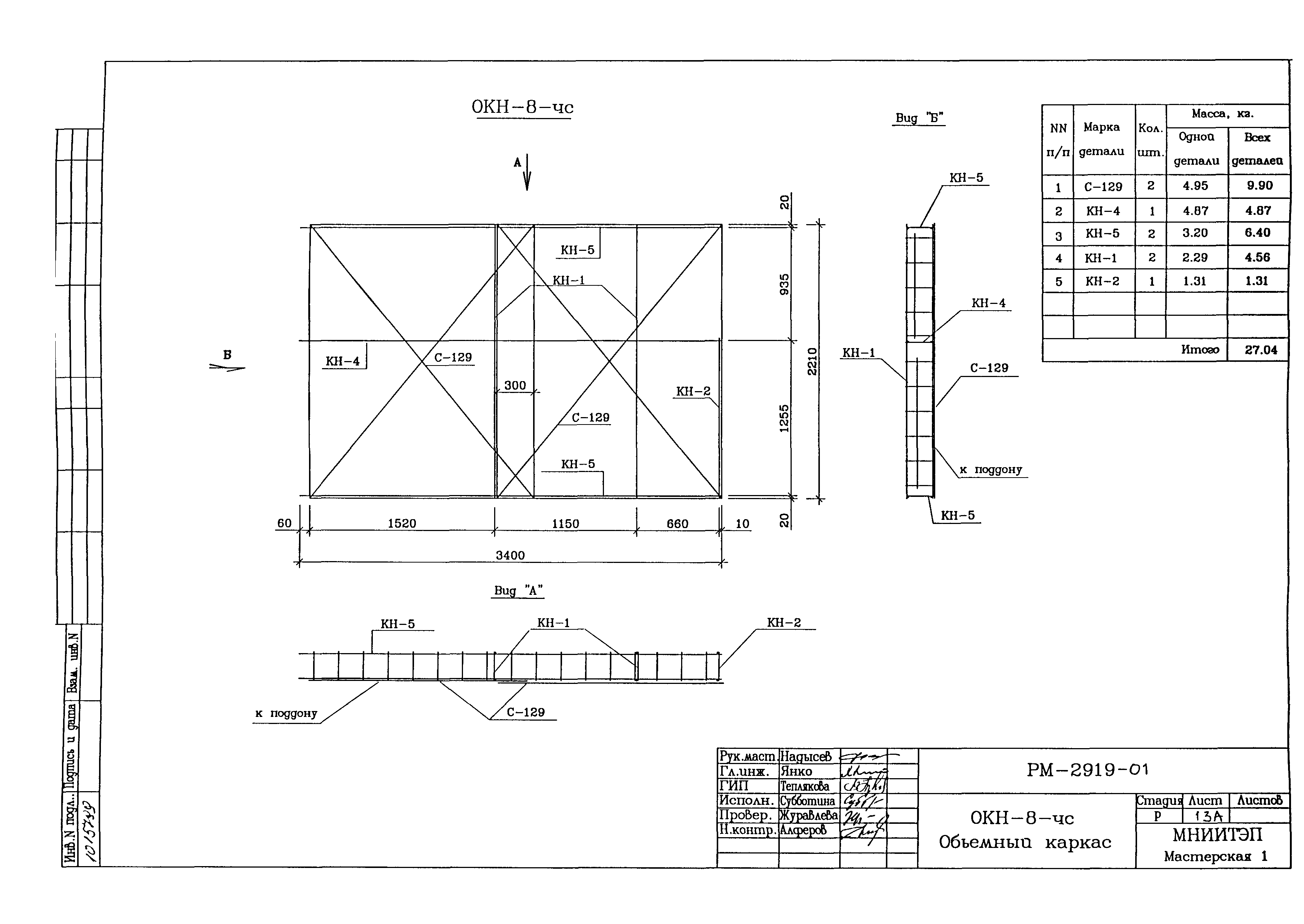
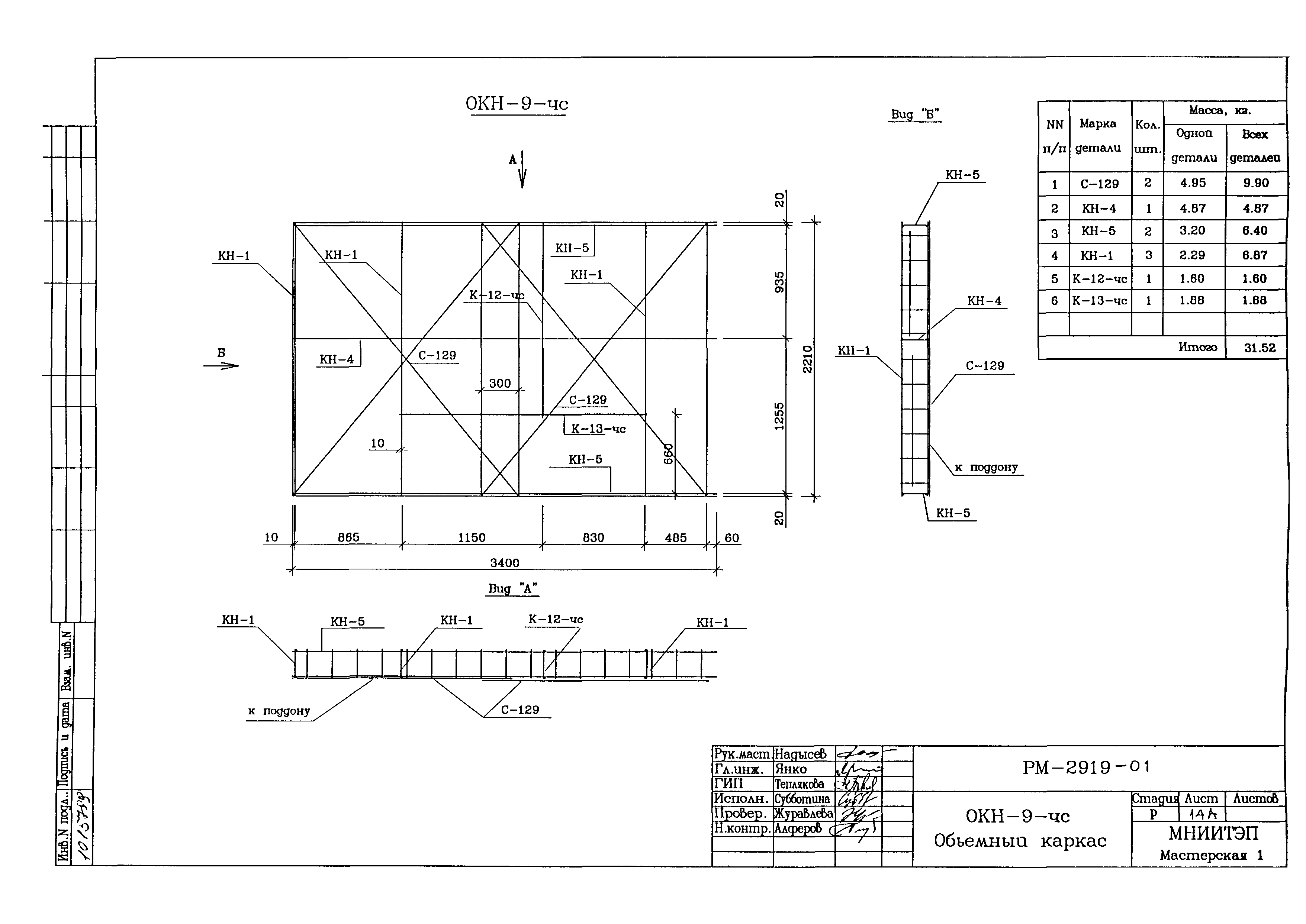
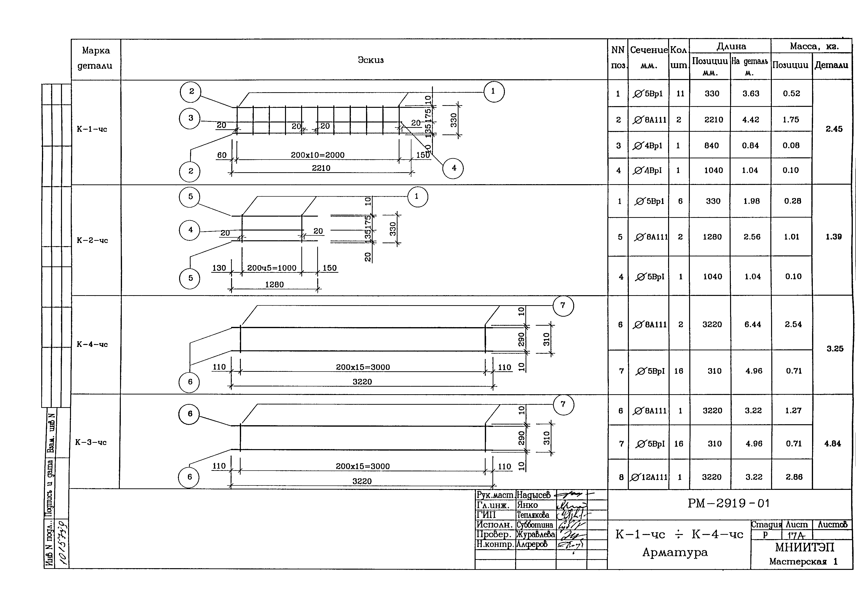
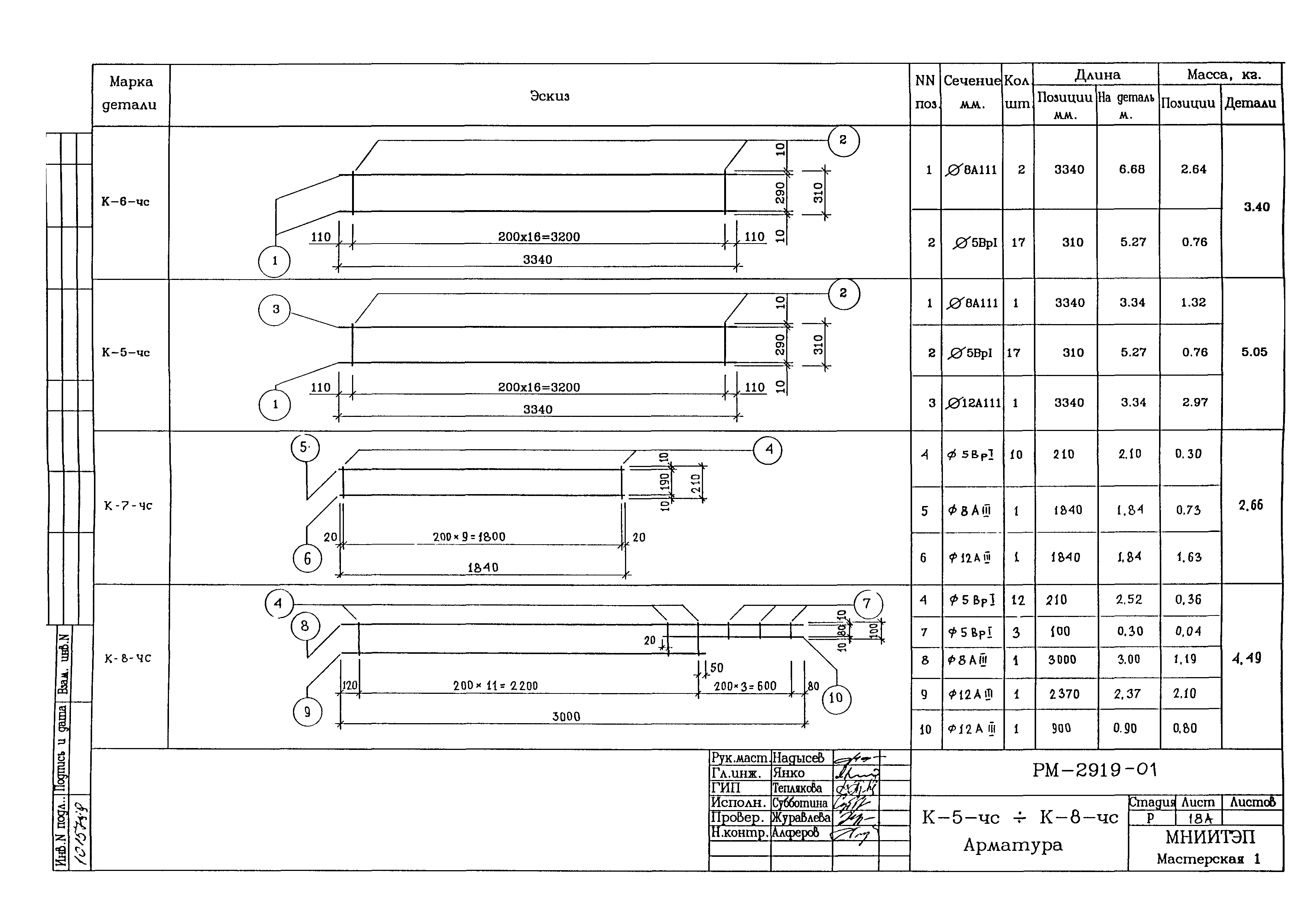
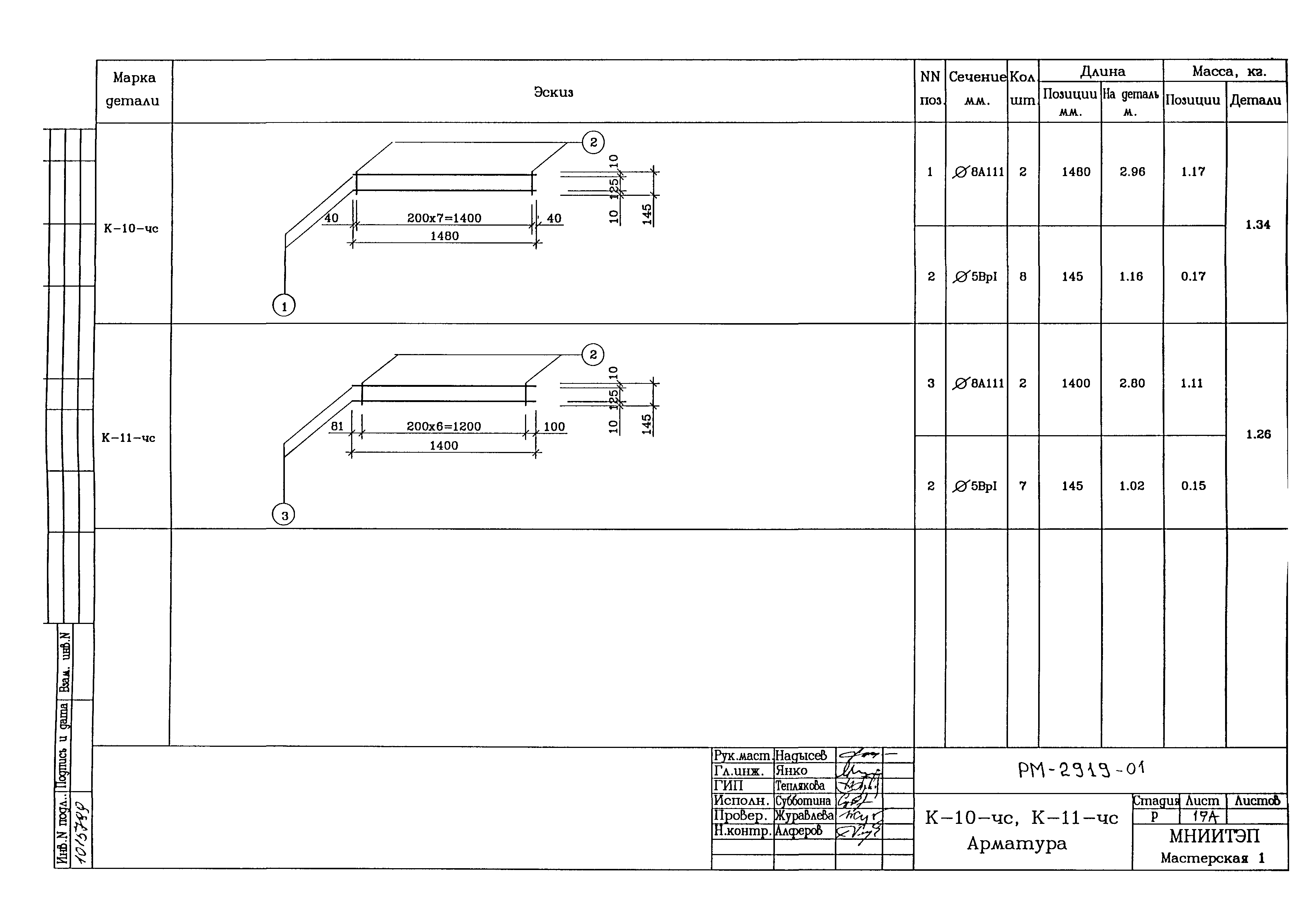
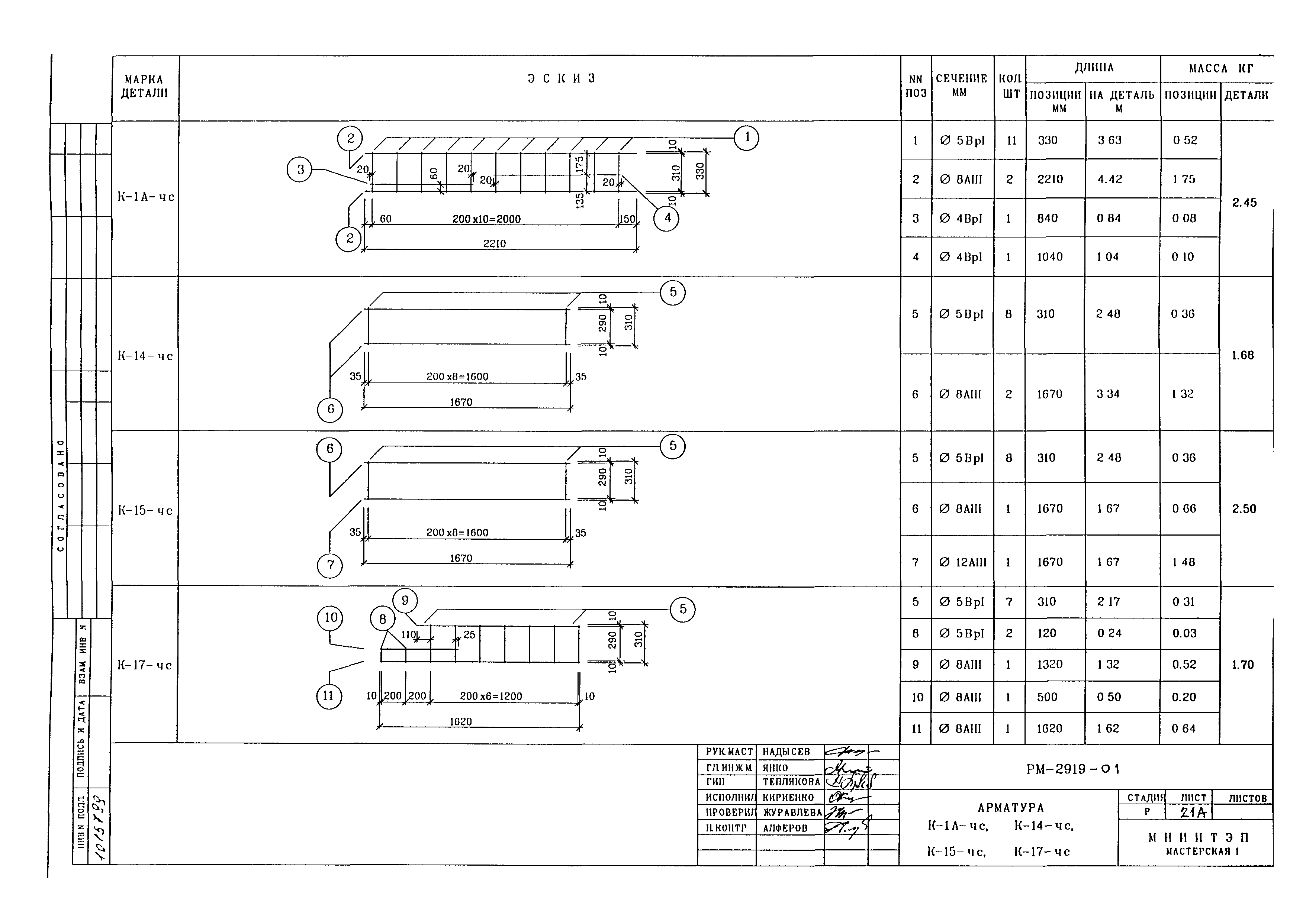
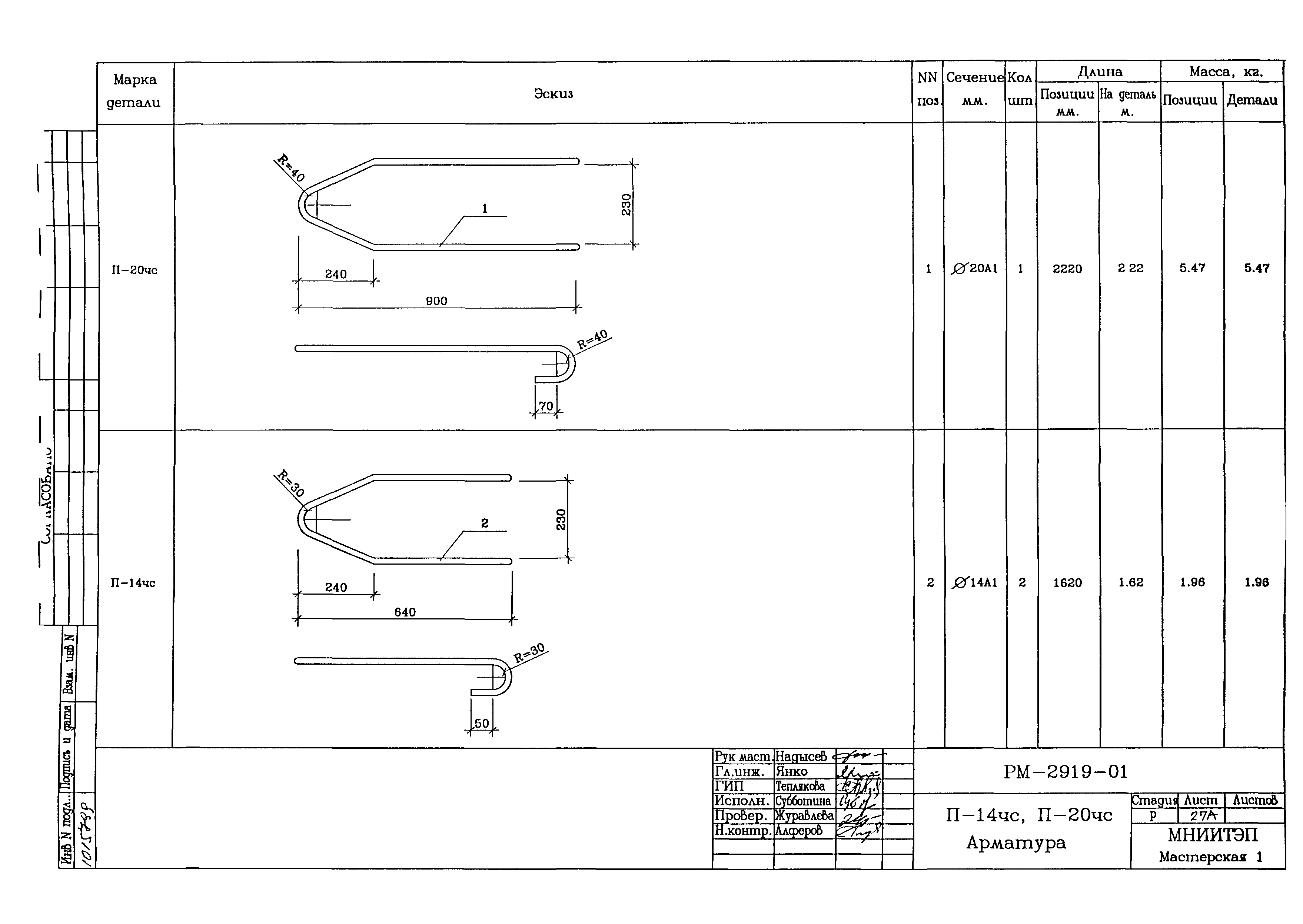
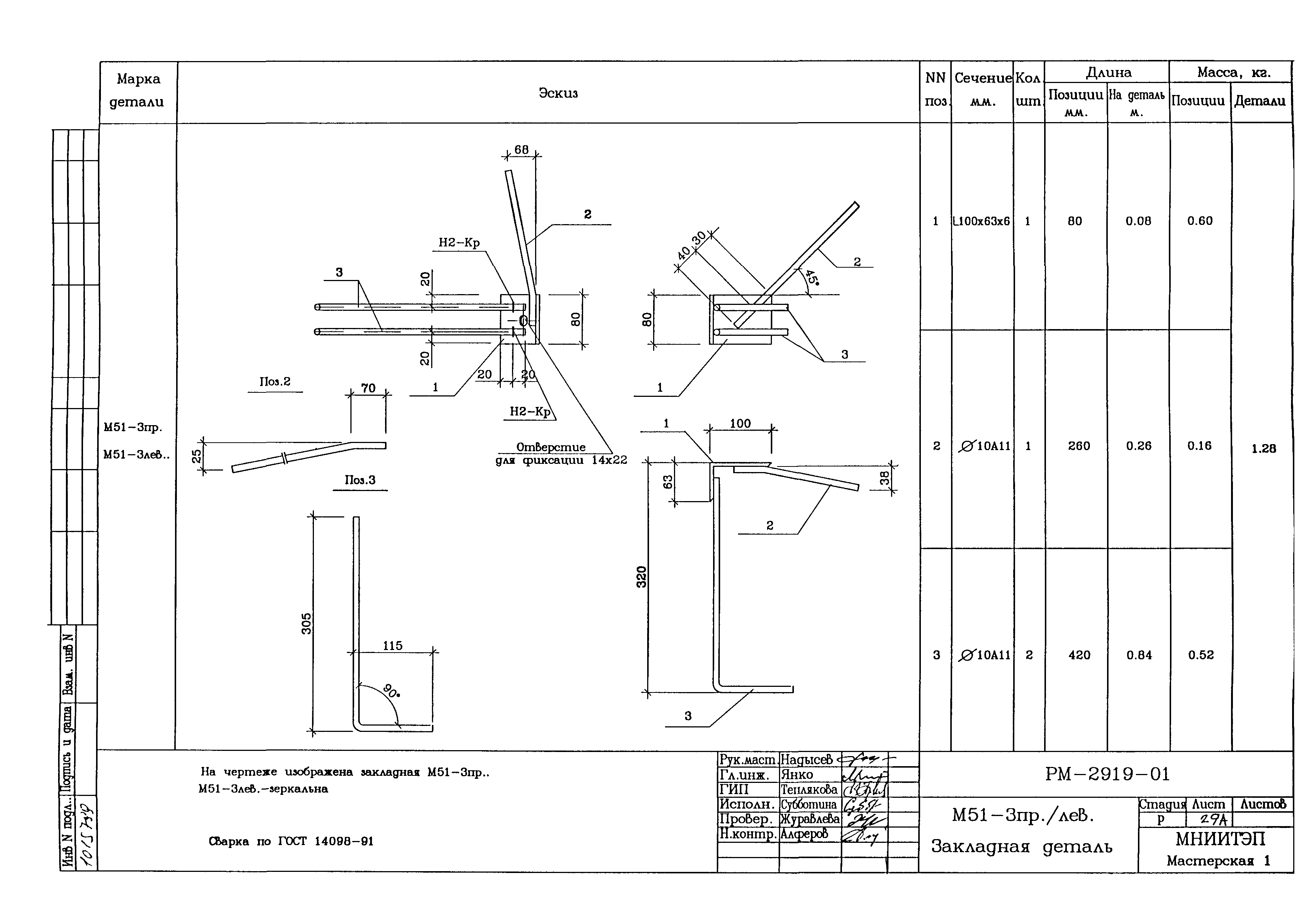
| Оглавление: | 1. Содержание 2. Пояснительная записка 3. Номенклатура изделий 4. Облицовка, общие виды, армирование, раскладка утеплителя 5. Узлы архитектурные 6. Профили 7. Узлы арматурные 8. Арматура 9. Информационная карта |
| Разработан: | МНИИТЭП |
| Утверждён: | 23.12.2003 МНИИТЭП (MNIITEP 22-ТО) |




























































































