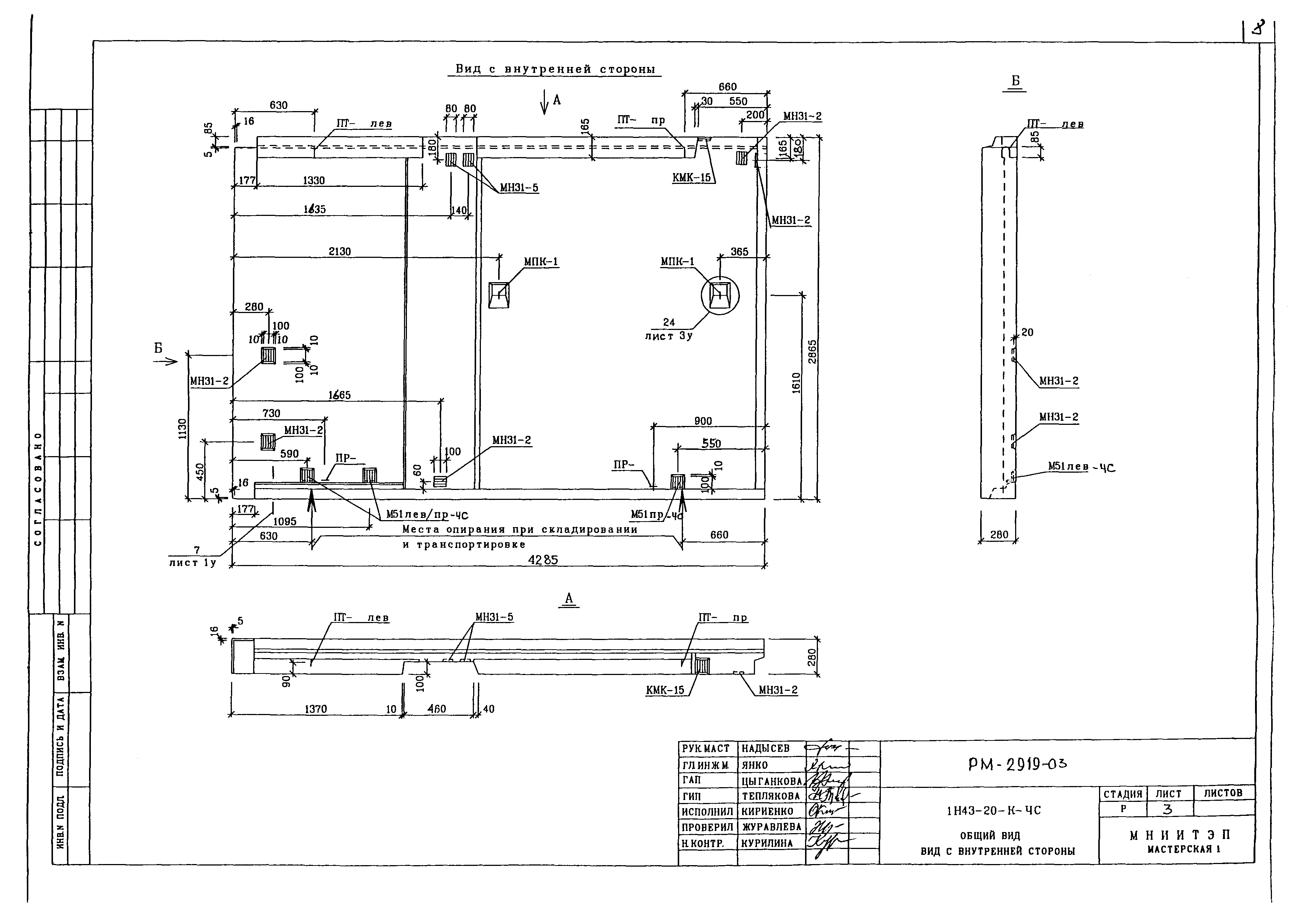
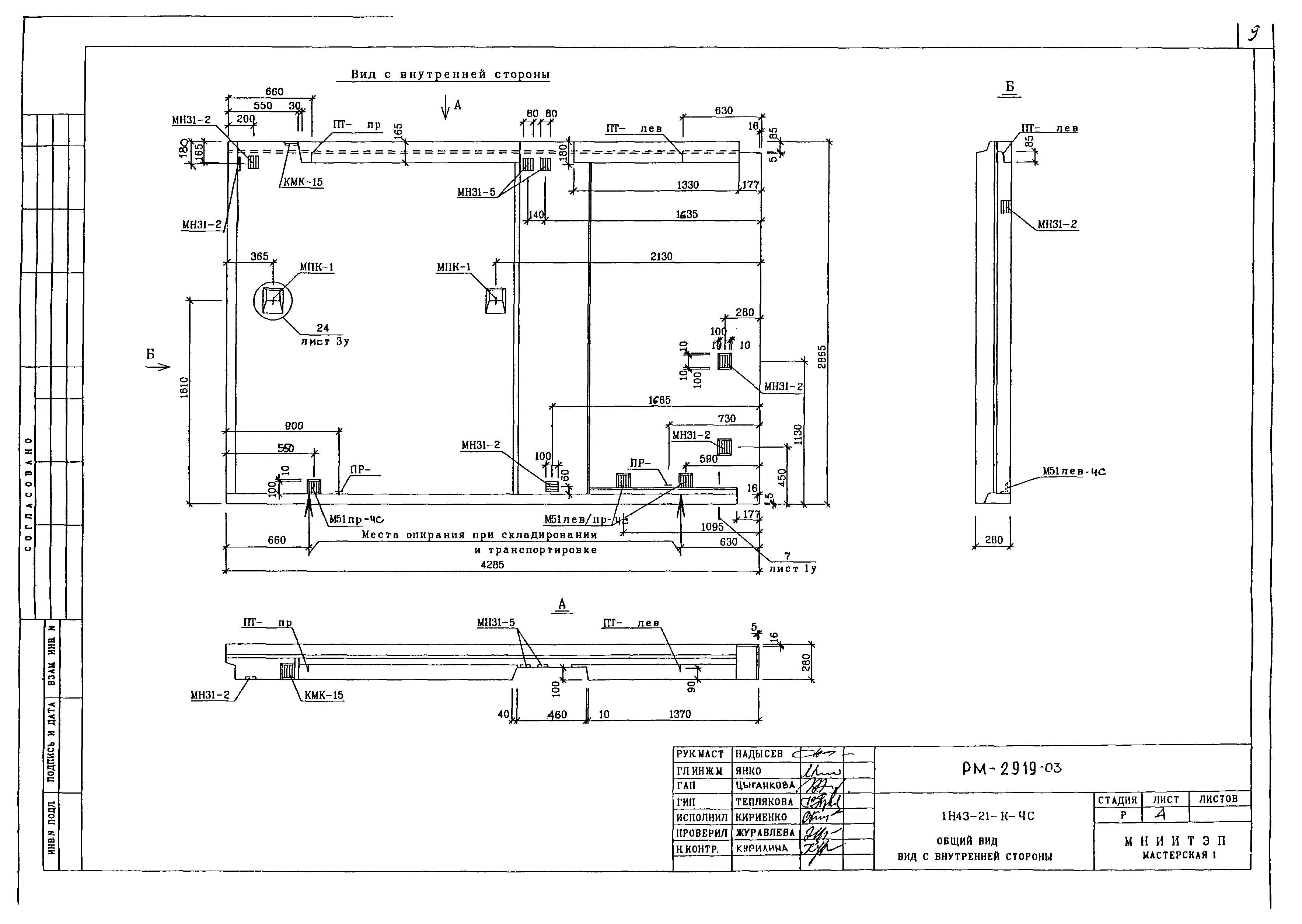
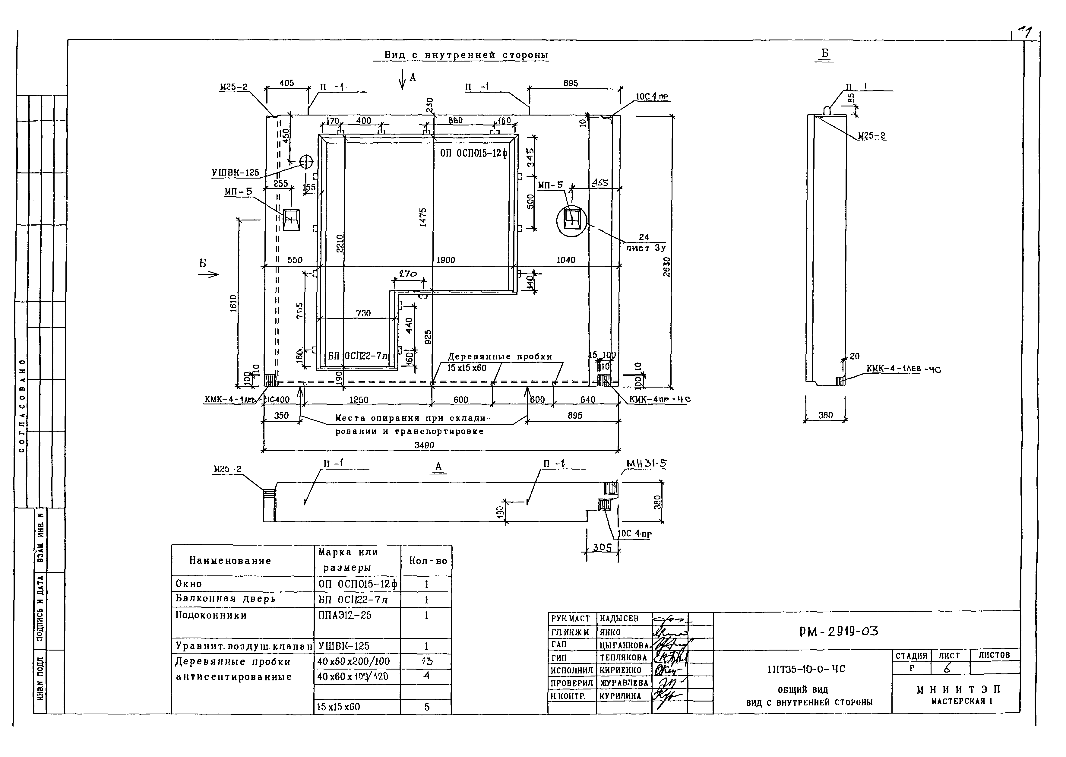
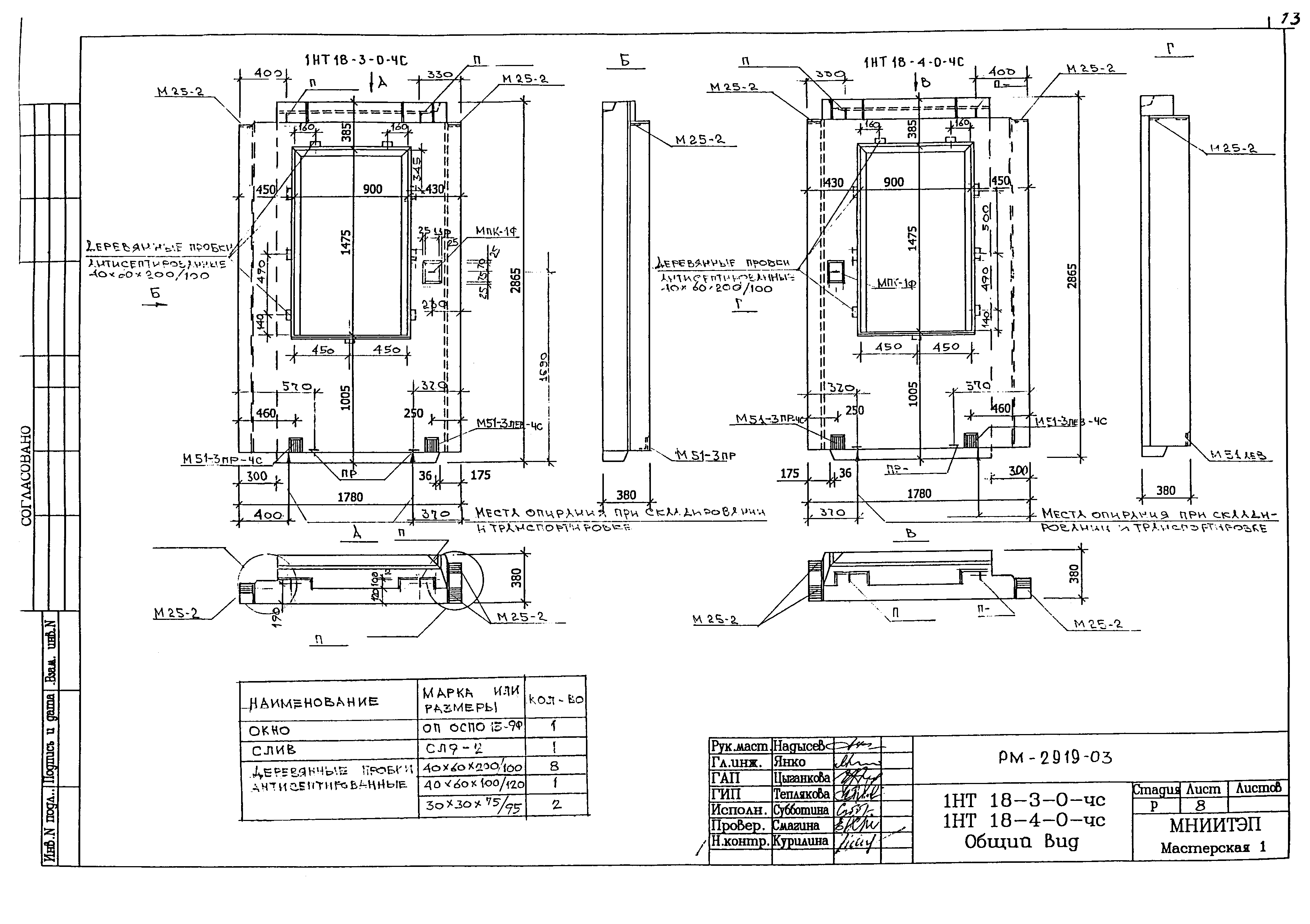
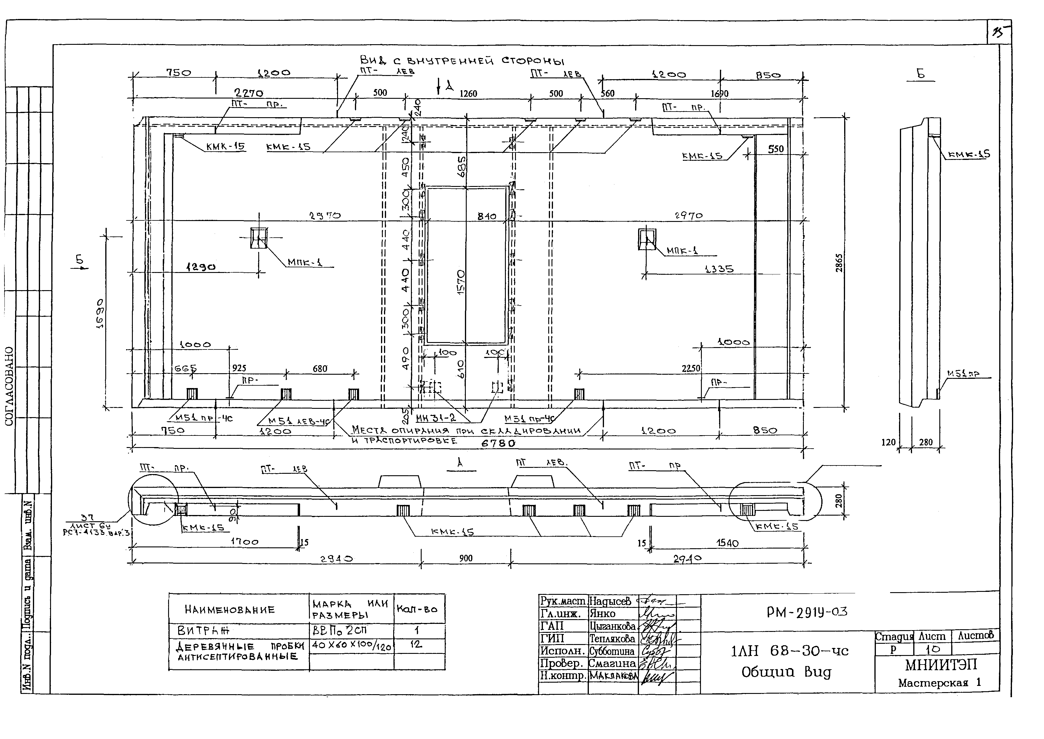
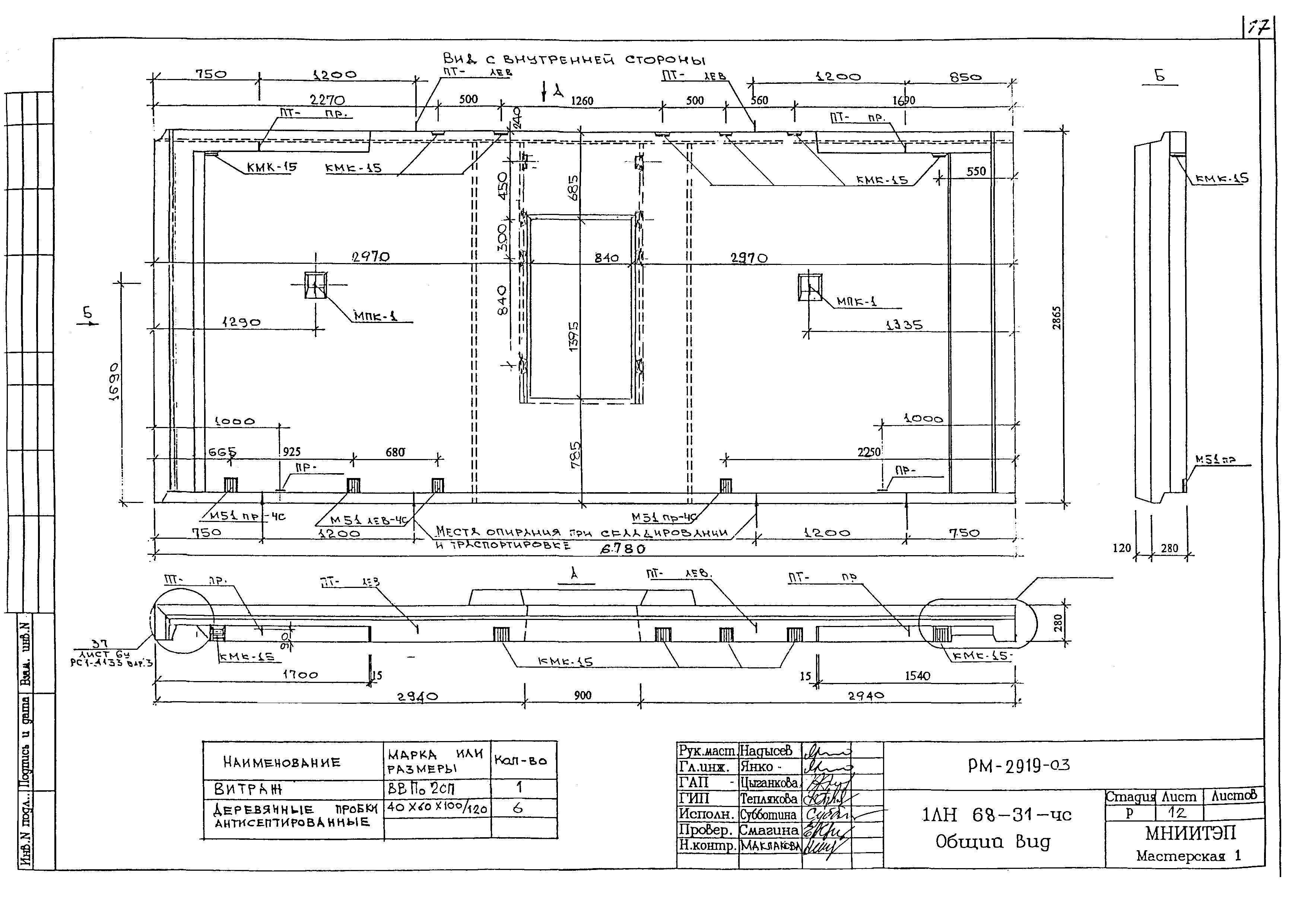
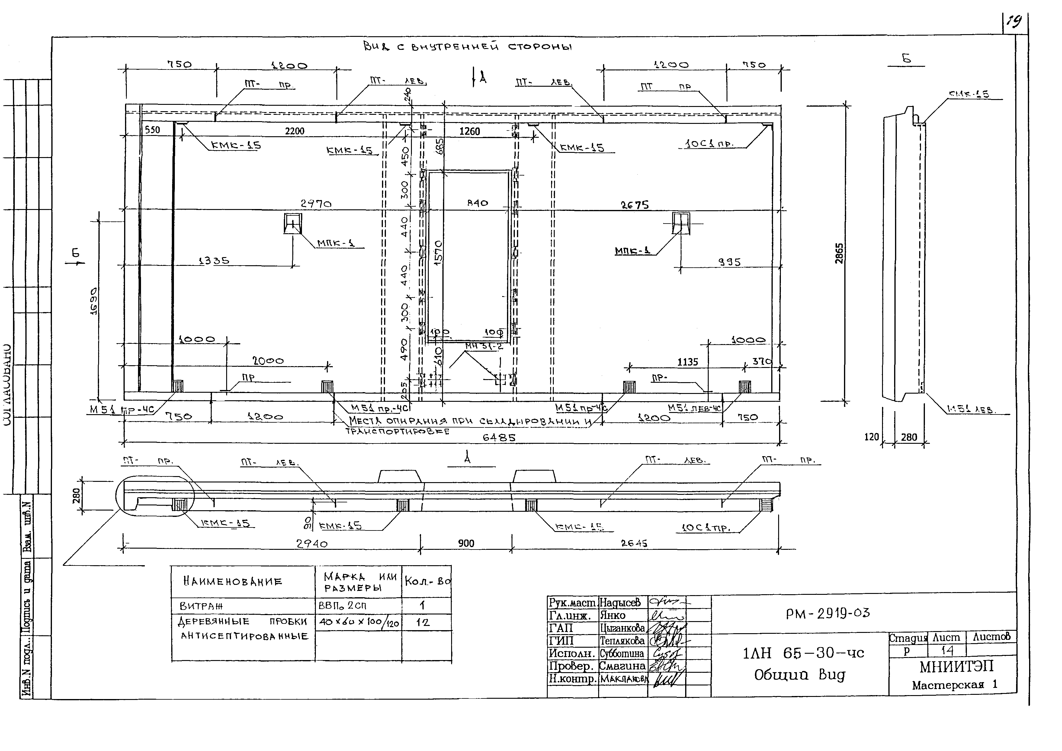
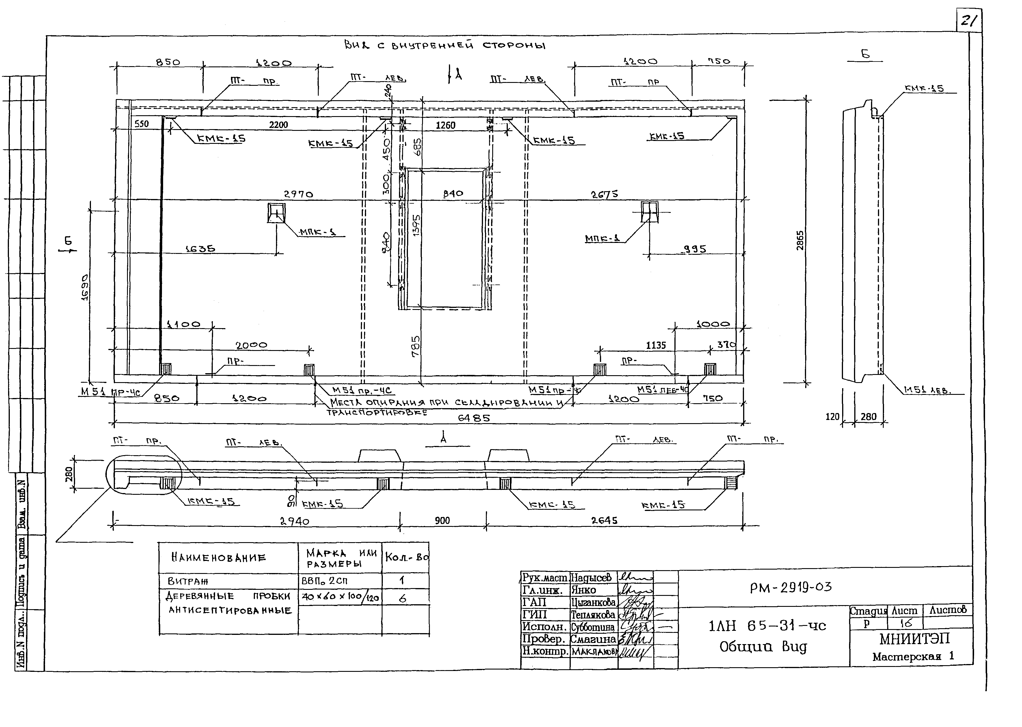
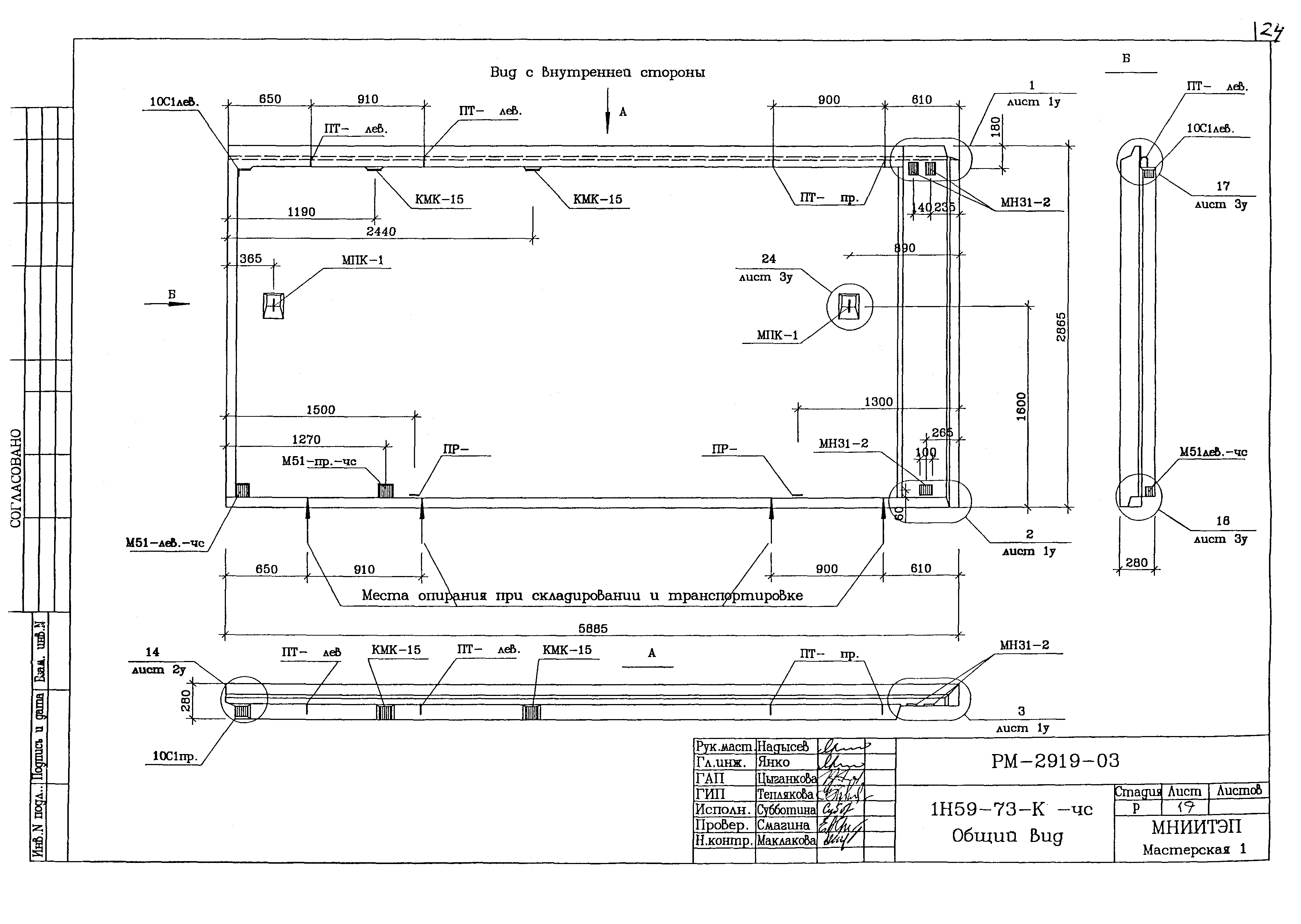
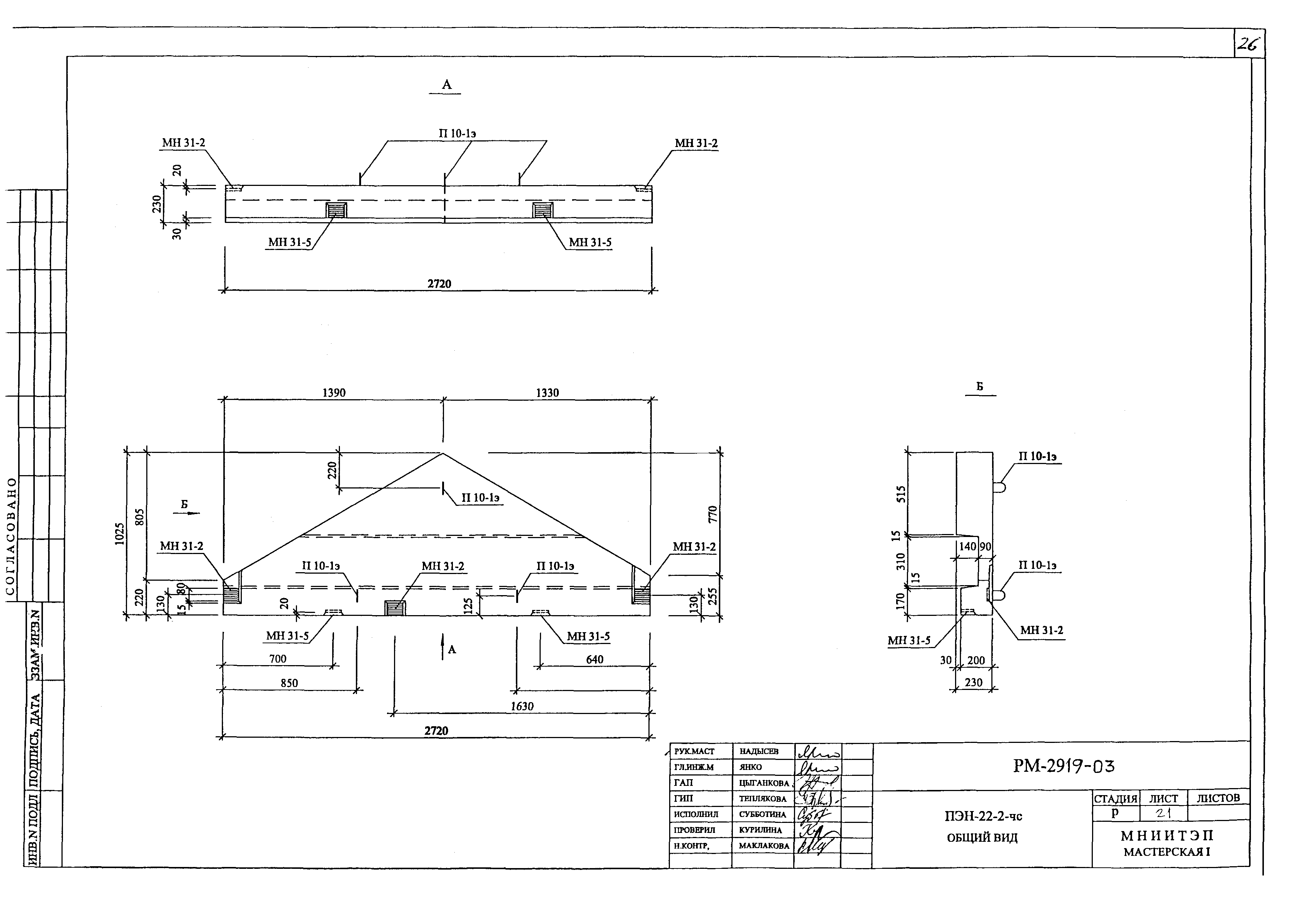
Скачать РМ-2919-03 Панели наружных стен трехслойные типового этажа. Для жилых блок-секций П44Т (производства Краснопресненского завода ЖБК). Опалубочные чертежиДата актуализации: 01.01.2021 РМ-2919-03
Панели наружных стен трехслойные типового этажа. Для жилых блок-секций П44Т (производства Краснопресненского завода ЖБК). Опалубочные чертежи| Обозначение: | РМ-2919-03 | | Обозначение англ: | РМ-2919-03 | | Статус: | не определен законодательством | | Название рус.: | Панели наружных стен трехслойные типового этажа. Для жилых блок-секций П44Т (производства Краснопресненского завода ЖБК). Опалубочные чертежи | | Дата добавления в базу: | 01.09.2013 | | Дата актуализации: | 01.01.2021 | | Дата введения: | 10.06.2004 | | Разработан: | МНИИТЭП
| | Утверждён: | 10.06.2004 МНИИТЭП (MNIITEP 25-ТО)
|
                        
|