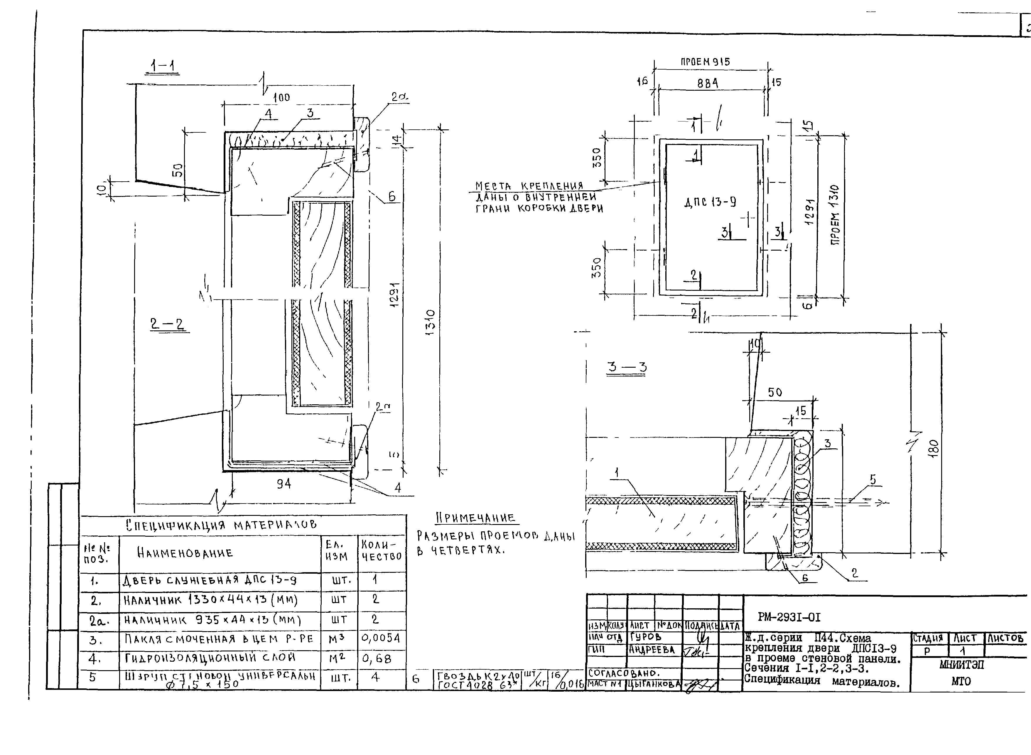
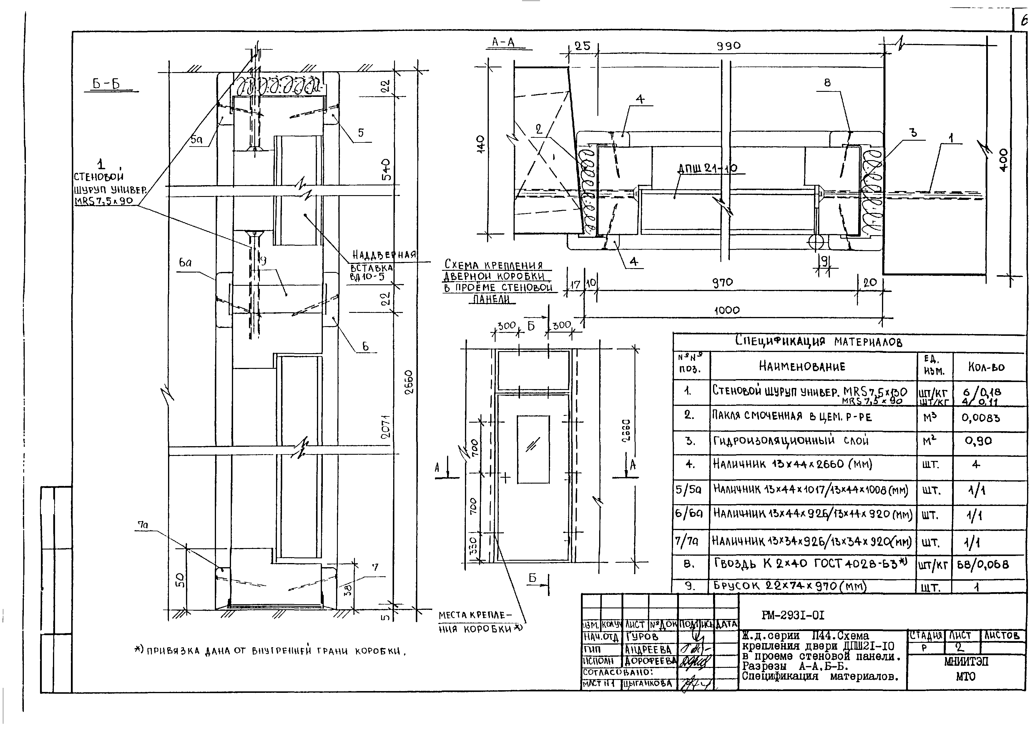
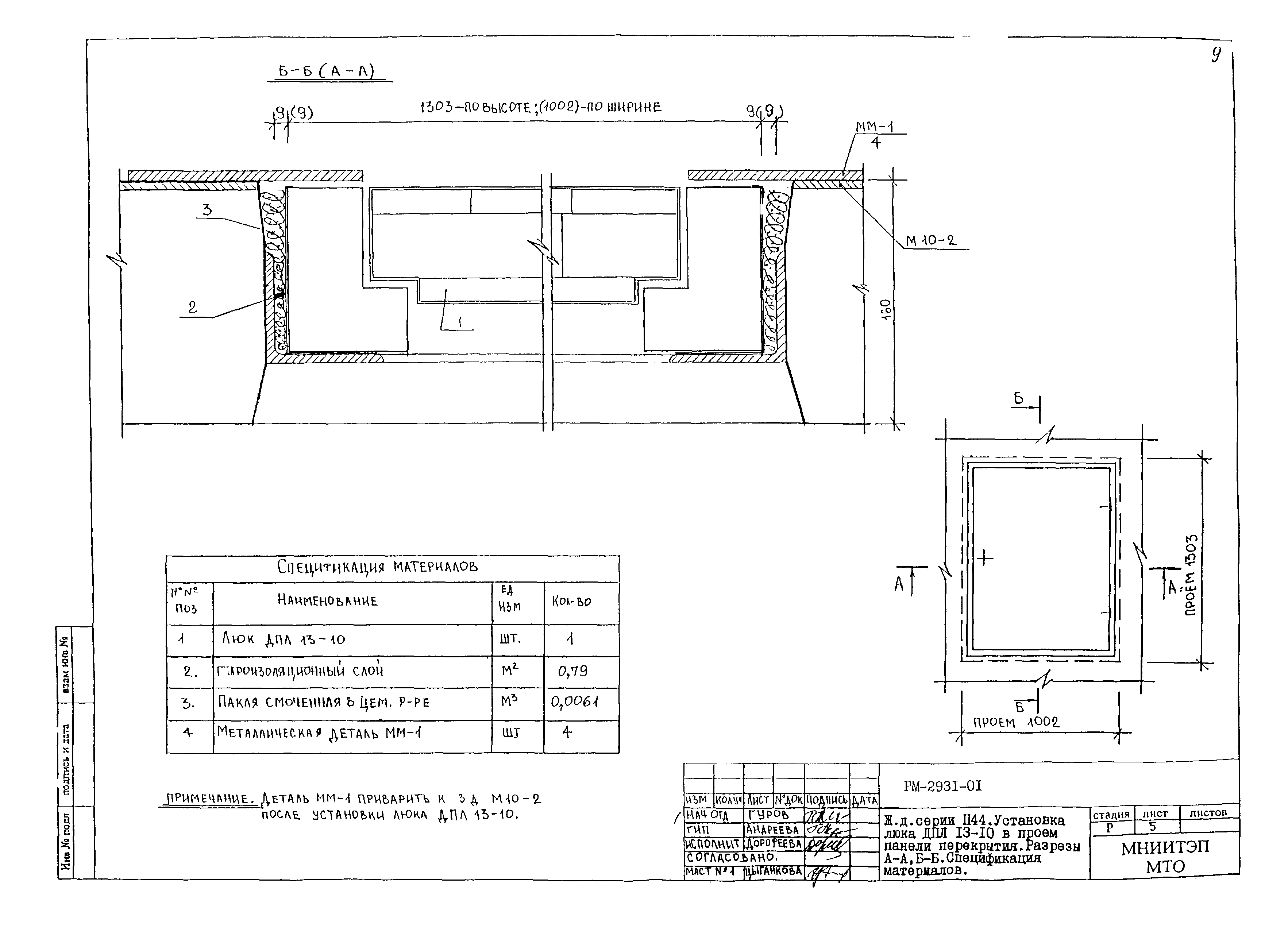
Скачать РМ-2931-01 Узлы установки служебных дверей в панели жилых домов серии П44 и их модификацийДата актуализации: 01.01.2021 РМ-2931-01
Узлы установки служебных дверей в панели жилых домов серии П44 и их модификаций| Обозначение: | РМ-2931-01 | | Обозначение англ: | РМ-2931-01 | | Статус: | не определен законодательством | | Название рус.: | Узлы установки служебных дверей в панели жилых домов серии П44 и их модификаций | | Дата добавления в базу: | 01.09.2013 | | Дата актуализации: | 01.01.2021 | | Дата введения: | 01.01.2004 | | Разработан: | МНИИТЭП
| | Утверждён: | 01.01.2004 МНИИТЭП (MNIITEP )
|
       
|