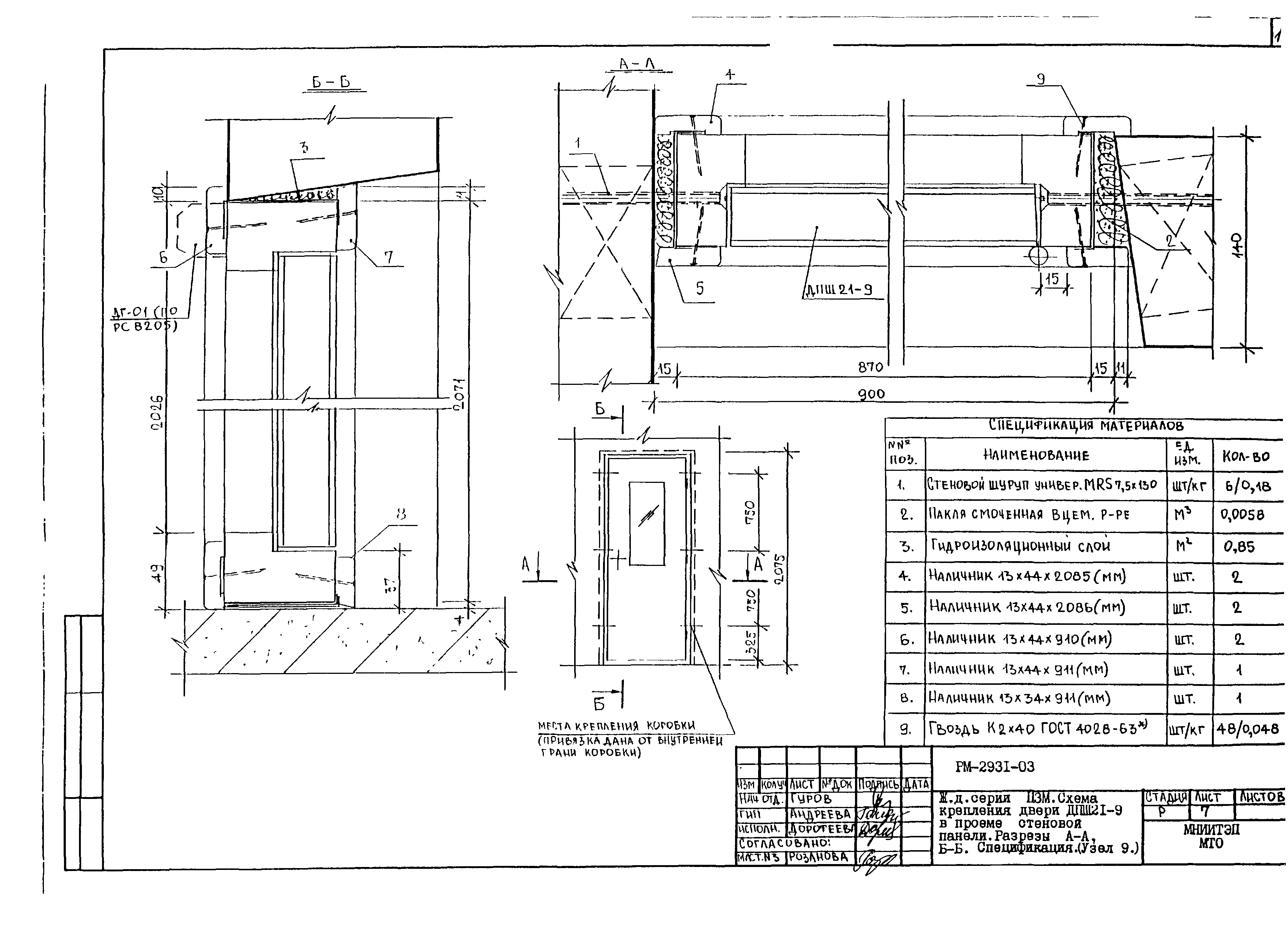
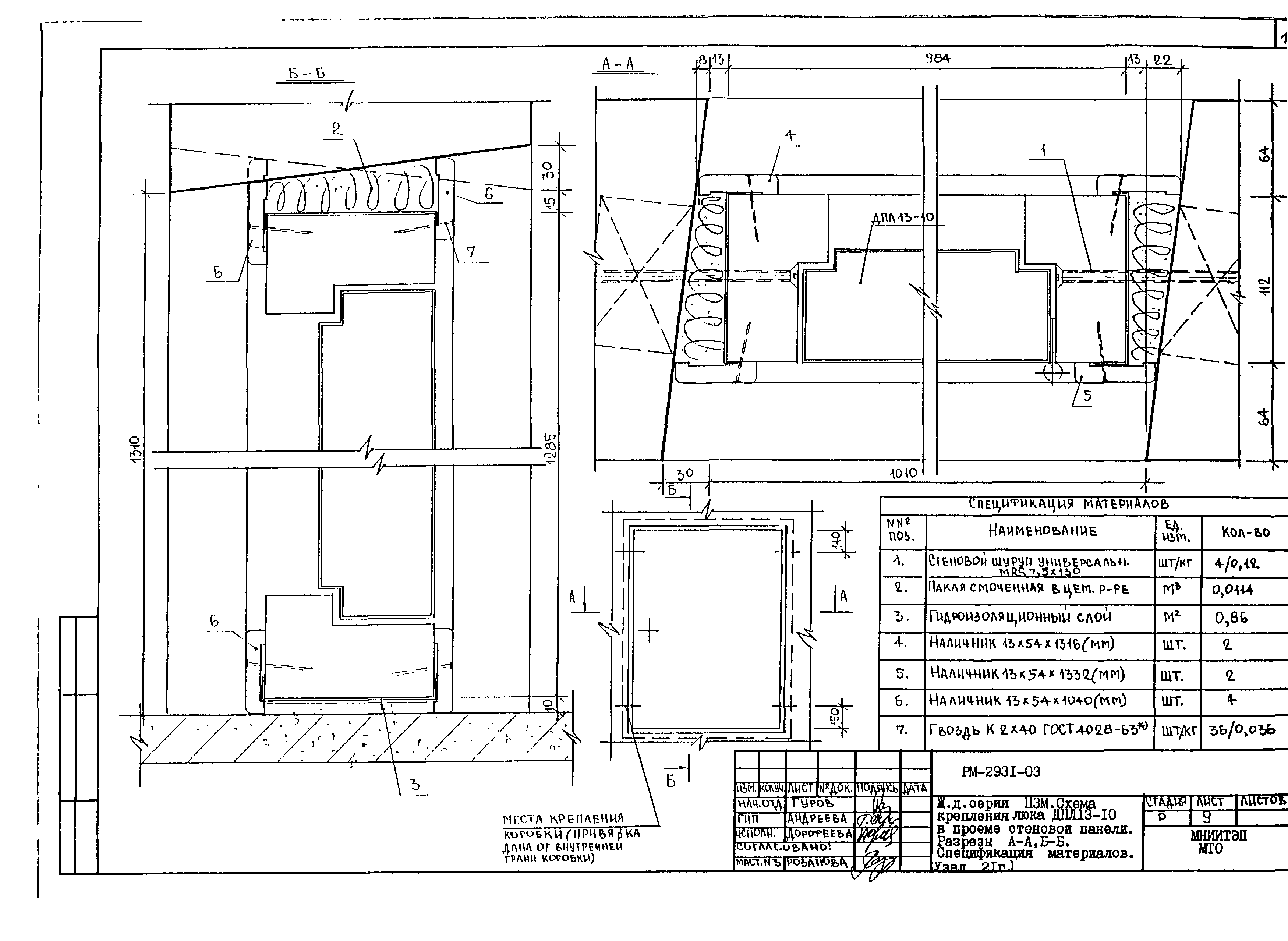
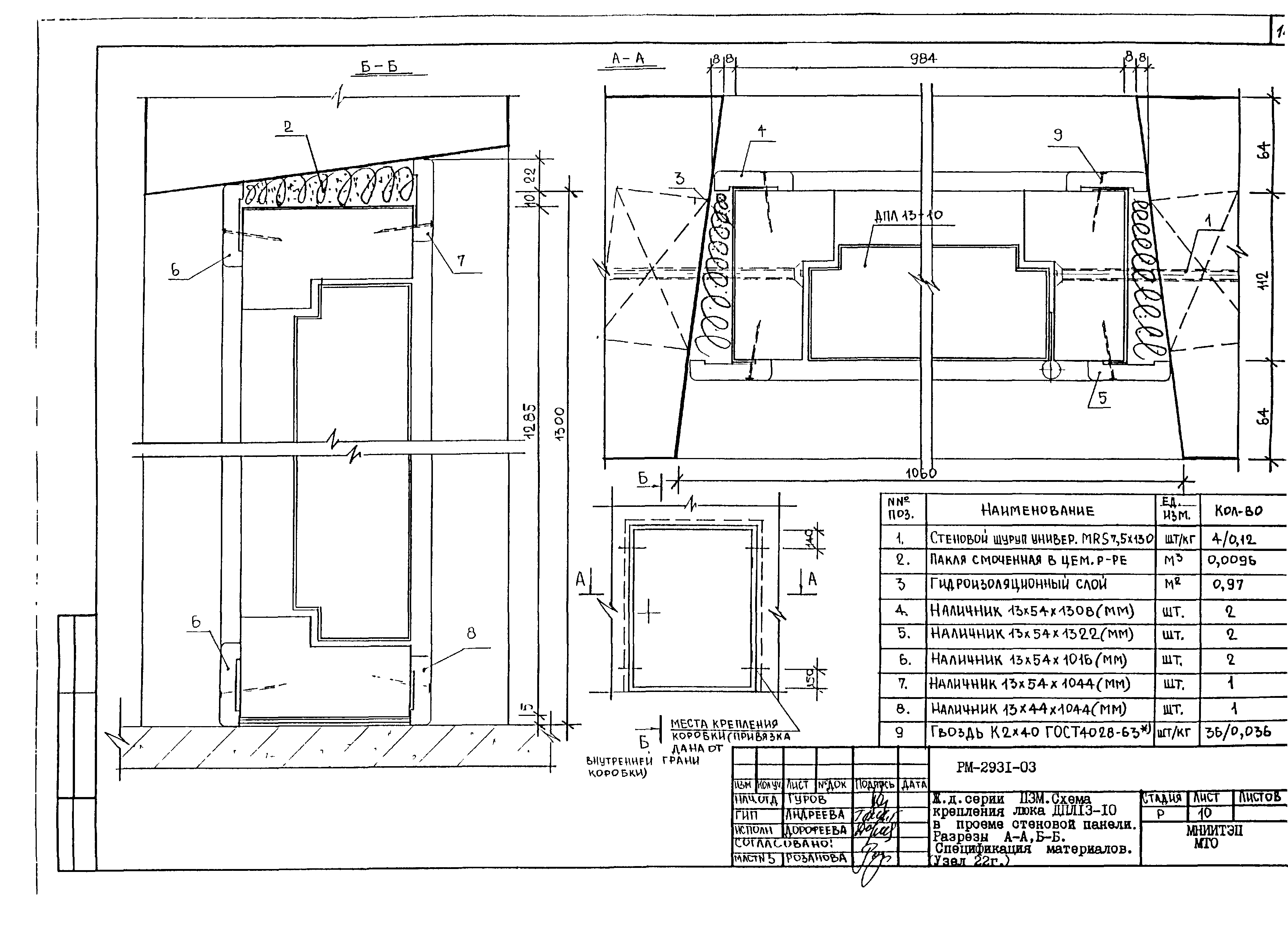
Скачать РМ-2931-03 Узлы установки служебных дверей в панели жилых домов серии П3МДата актуализации: 01.01.2021
|
| Обозначение: | РМ-2931-03 |
| Обозначение англ: | РМ-2931-03 |
| Статус: | не определен законодательством |
| Название рус.: | Узлы установки служебных дверей в панели жилых домов серии П3М |
| Дата добавления в базу: | 01.09.2013 |
| Дата актуализации: | 01.01.2021 |
| Дата введения: | 01.01.2004 |
| Разработан: | МНИИТЭП |
| Утверждён: | 01.01.2004 МНИИТЭП (MNIITEP ) |















