Скачать РС1-3122 Рамы железобетонные несущие. Рабочие чертежиДата актуализации: 01.01.2021
|
| Обозначение: | РС1-3122 |
| Обозначение англ: | РС1-3122 |
| Статус: | не определен законодательством |
| Название рус.: | Рамы железобетонные несущие. Рабочие чертежи |
| Дата добавления в базу: | 01.09.2013 |
| Дата актуализации: | 01.01.2021 |
| Дата введения: | 01.01.2004 |
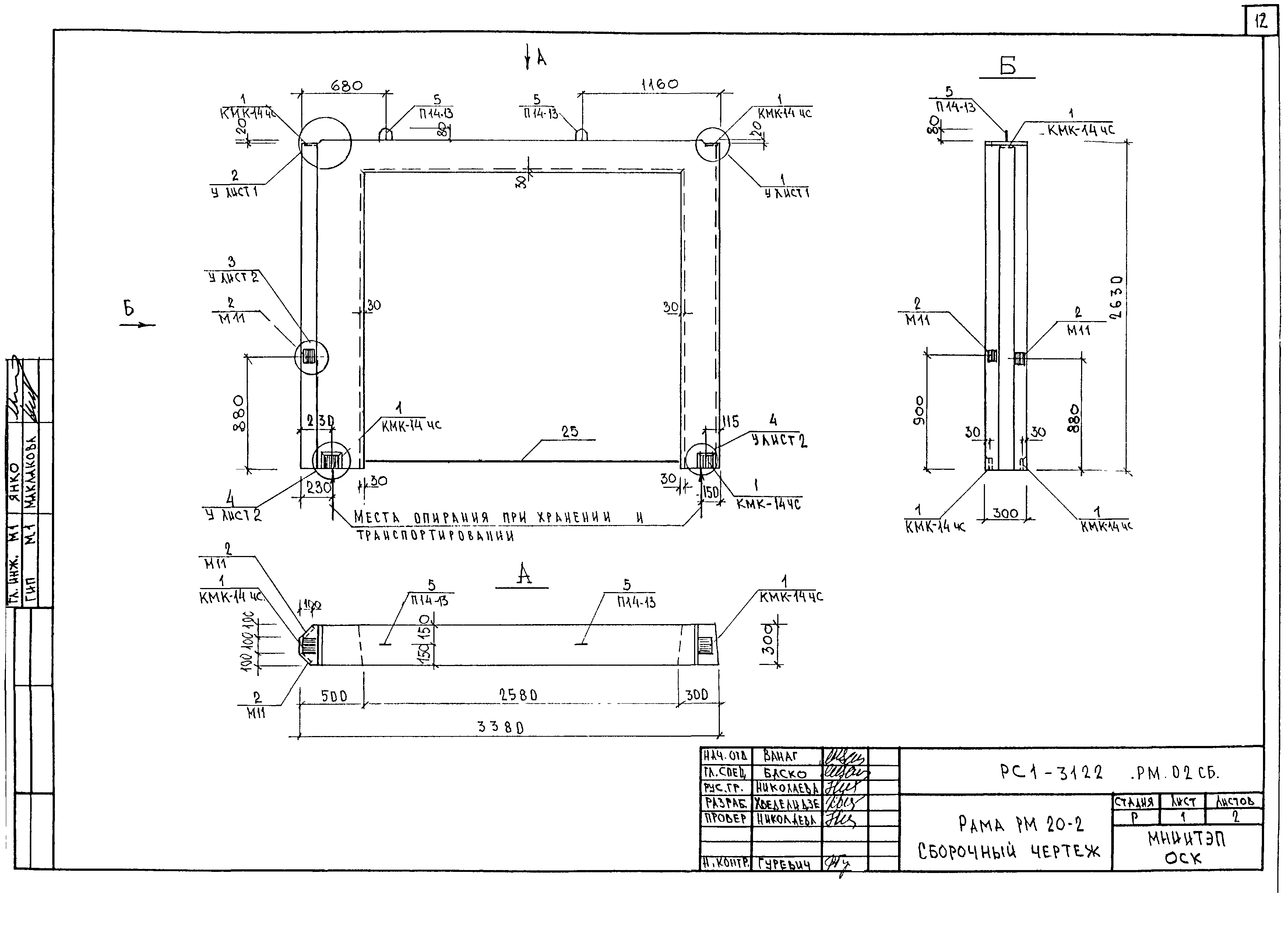
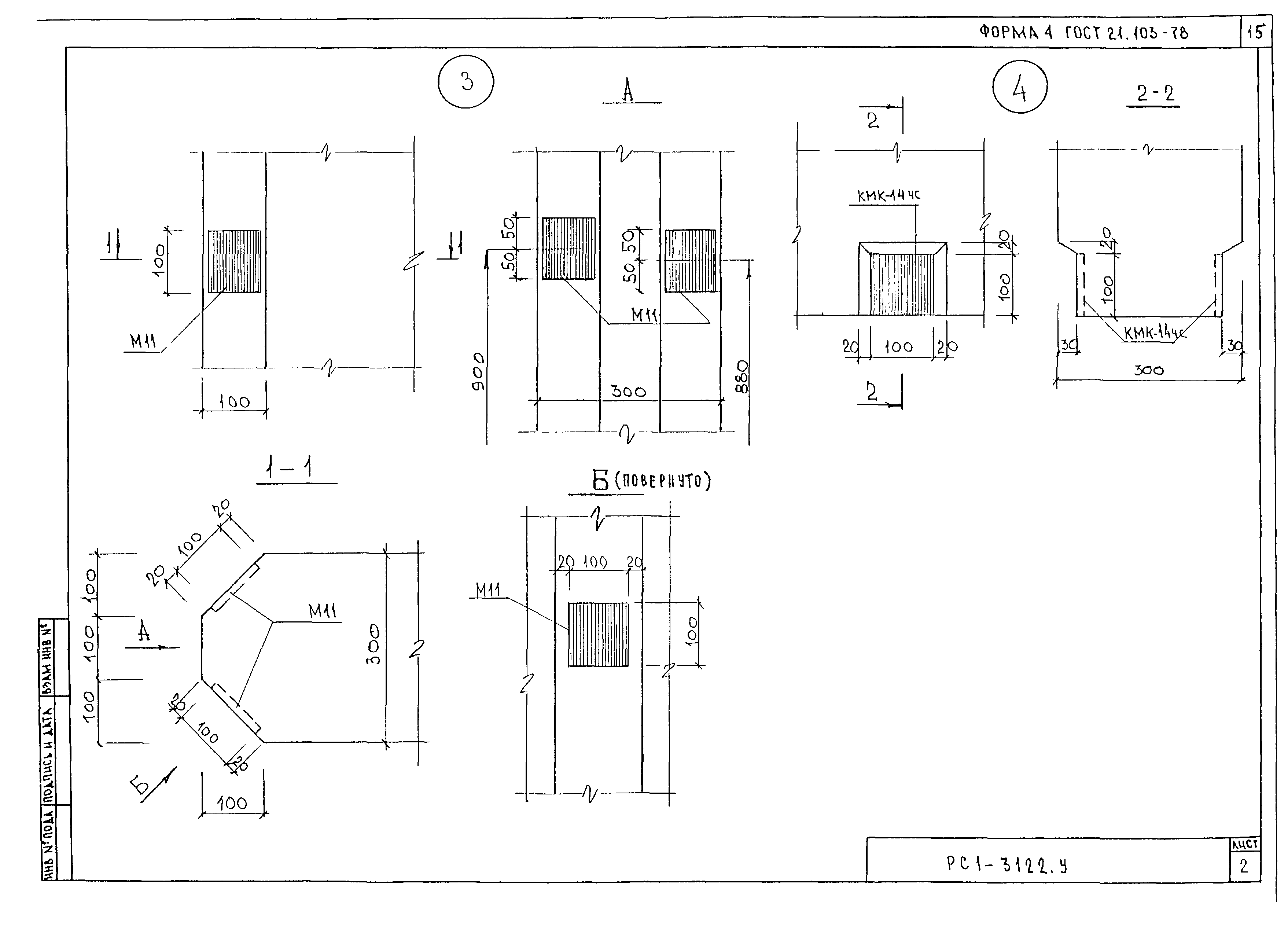
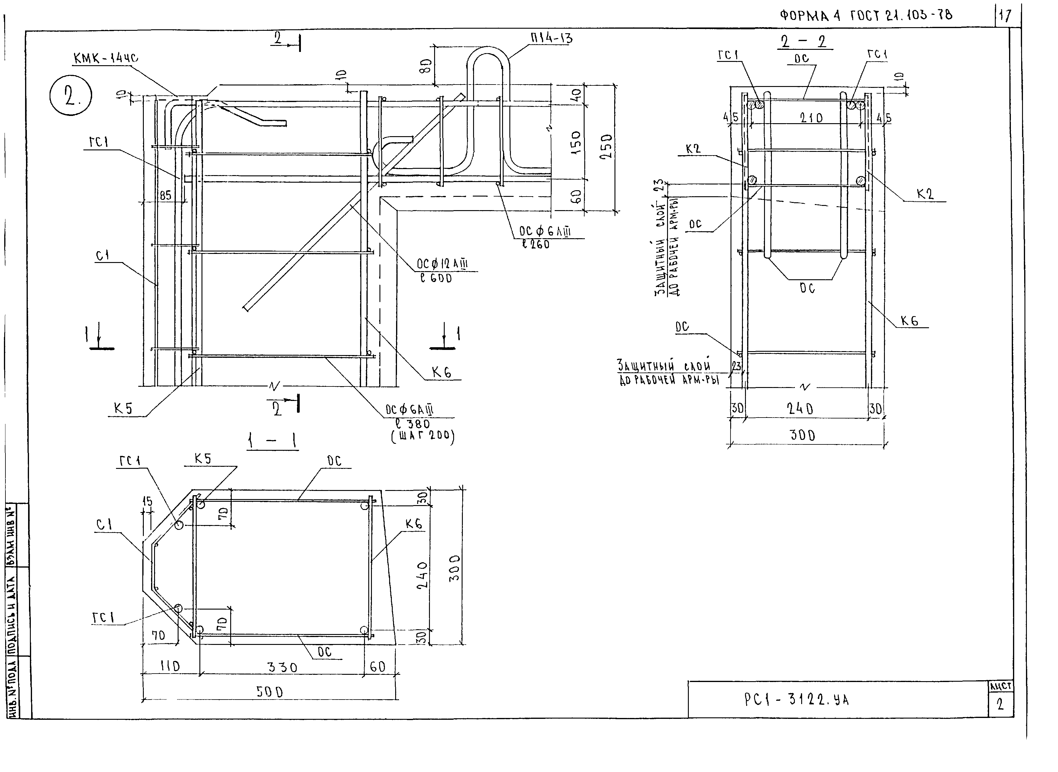
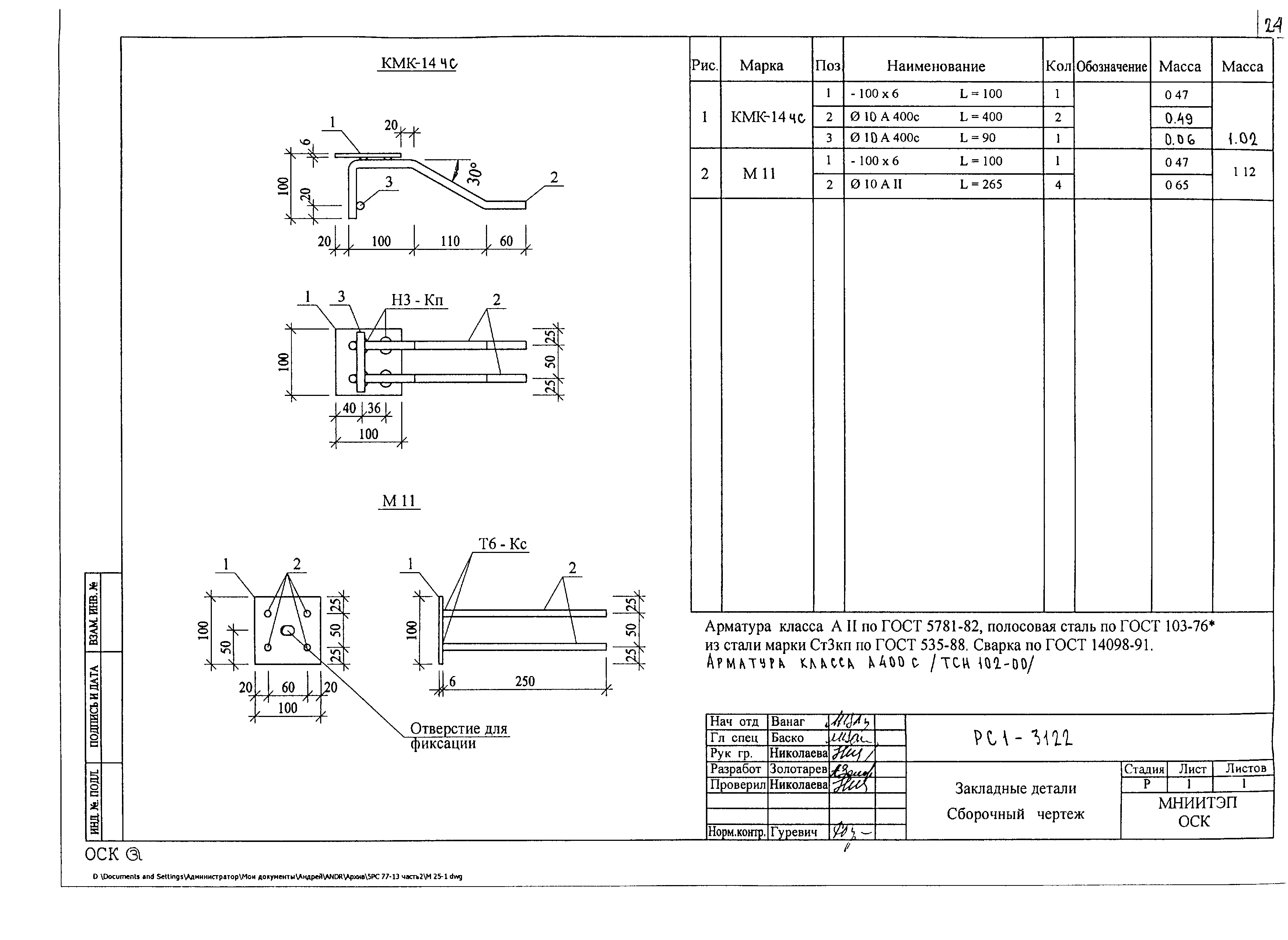
| Оглавление: | РС1-3122.ПЗ Пояснительная записка РС1-3122.НИ Номенклатура изделий РС1-3122.РС Ведомость расхода РС1-3122.РМ.01СБ Рама РМ-20.1. Сборочный чертеж РС1-3122.РМ.02СБ Рама РМ-20.2. Сборочный чертеж РС1-3122.У Узлы габаритные РС1-3122.УА Узлы арматурные РС1-3122 Каркасы. Сборочный чертеж РС1-3122 Сетка. Сборочный чертеж РС1-3122 Гнутый стержень РС1-3122 Петля РС1-3122 Закладные детали. Сборочный чертеж РС1-3122.К Информационная карта |
| Разработан: | МНИИТЭП |
| Утверждён: | 01.01.2004 МНИИТЭП (MNIITEP ) |
























