Скачать РС-0375-01 Кабина санитарно-техническая УК 1.2. Архитектурно-строительная часть. Рабочие чертежиДата актуализации: 01.01.2021
|
| Обозначение: | РС-0375-01 |
| Обозначение англ: | РС-0375-01 |
| Статус: | не определен законодательством |
| Название рус.: | Кабина санитарно-техническая УК 1.2. Архитектурно-строительная часть. Рабочие чертежи |
| Дата добавления в базу: | 01.09.2013 |
| Дата актуализации: | 01.01.2021 |
| Дата введения: | 24.06.2004 |
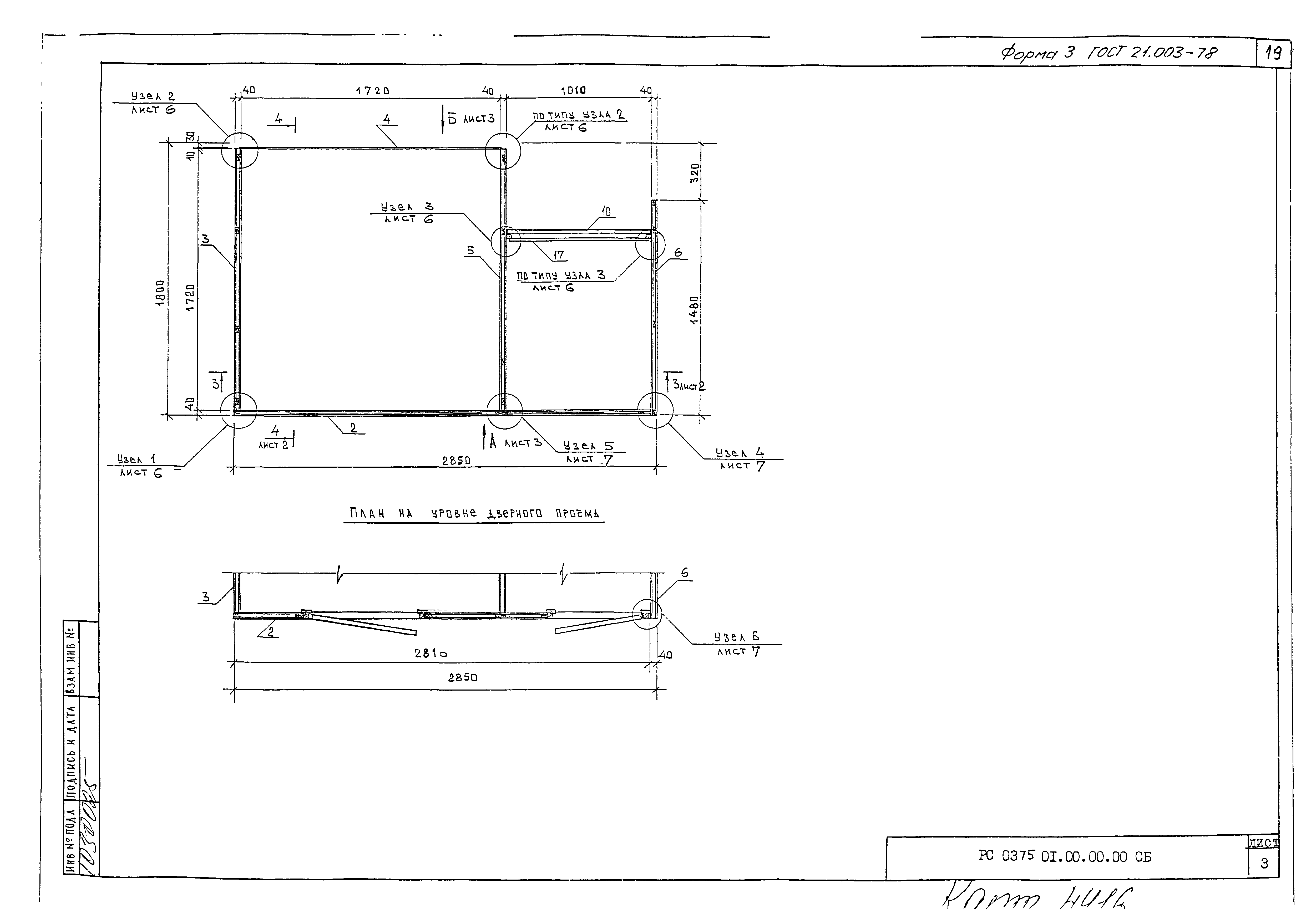
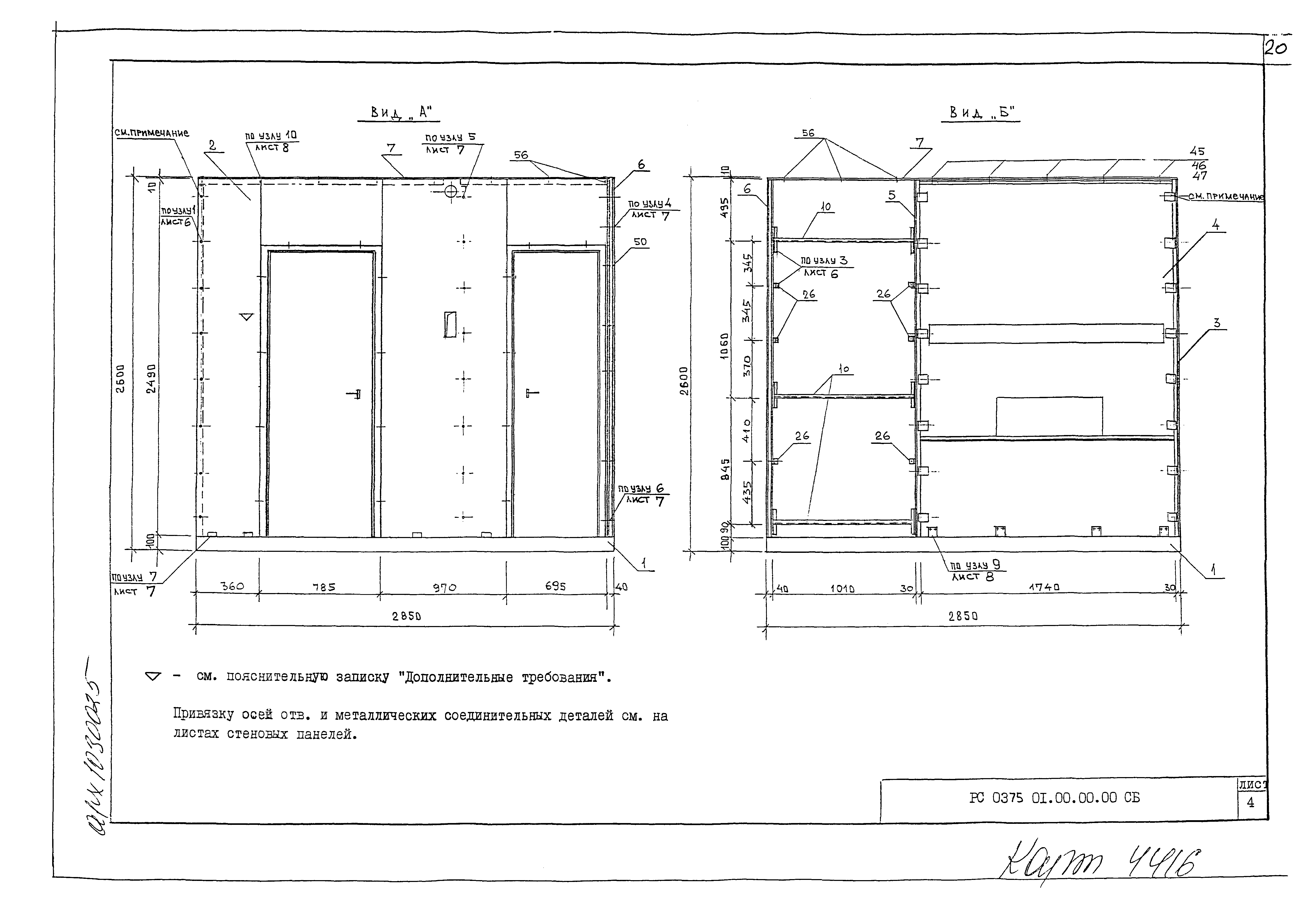
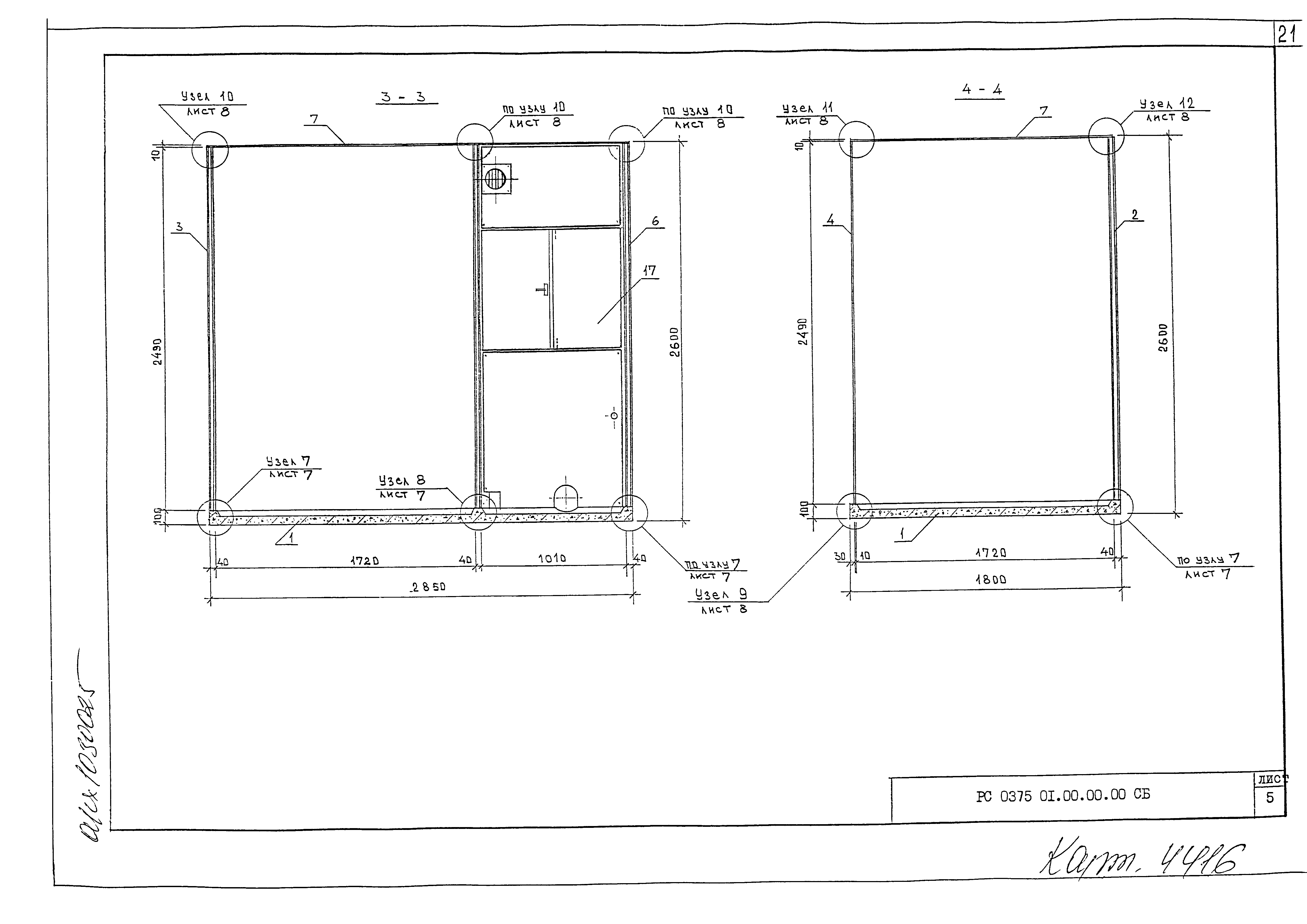
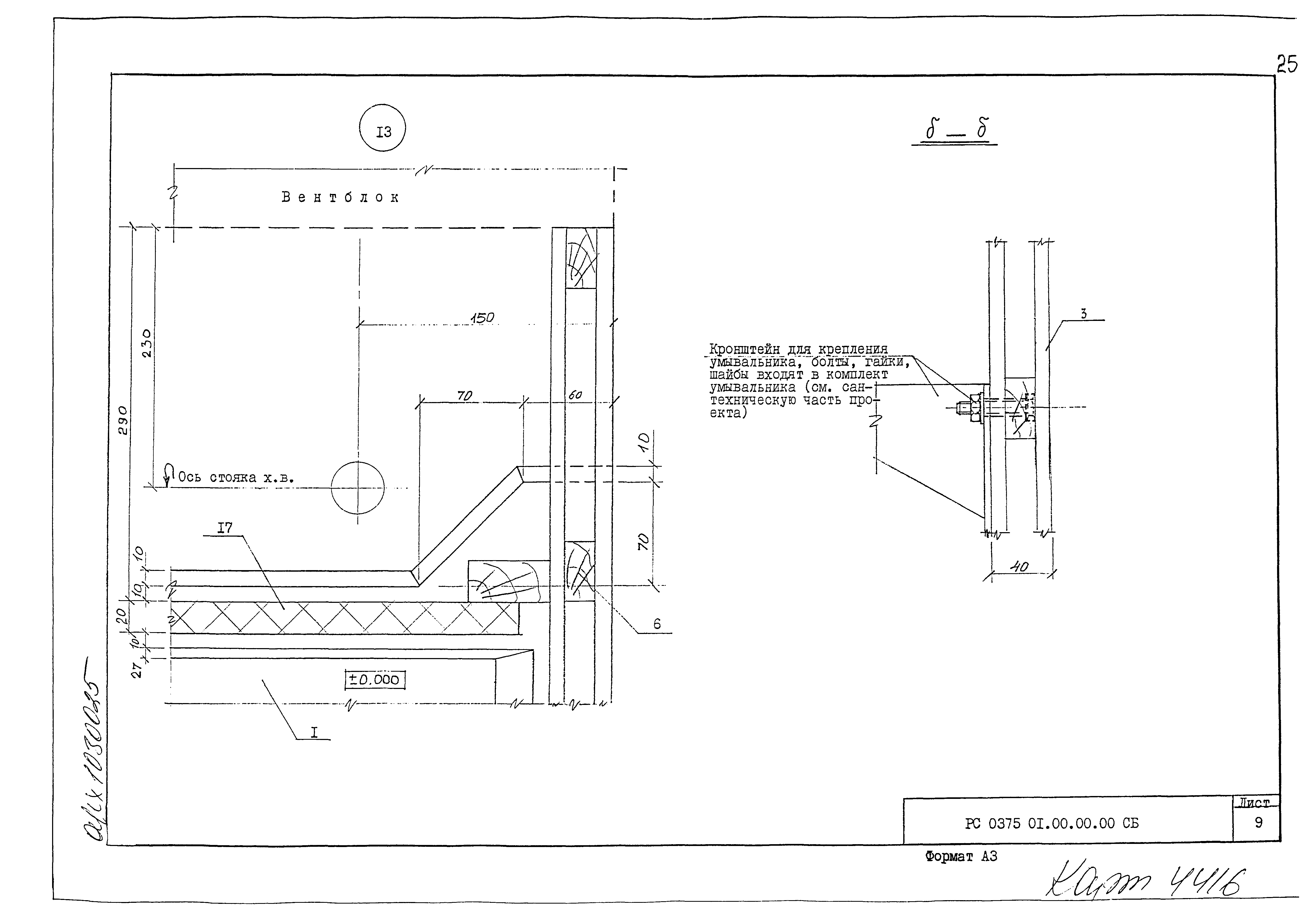
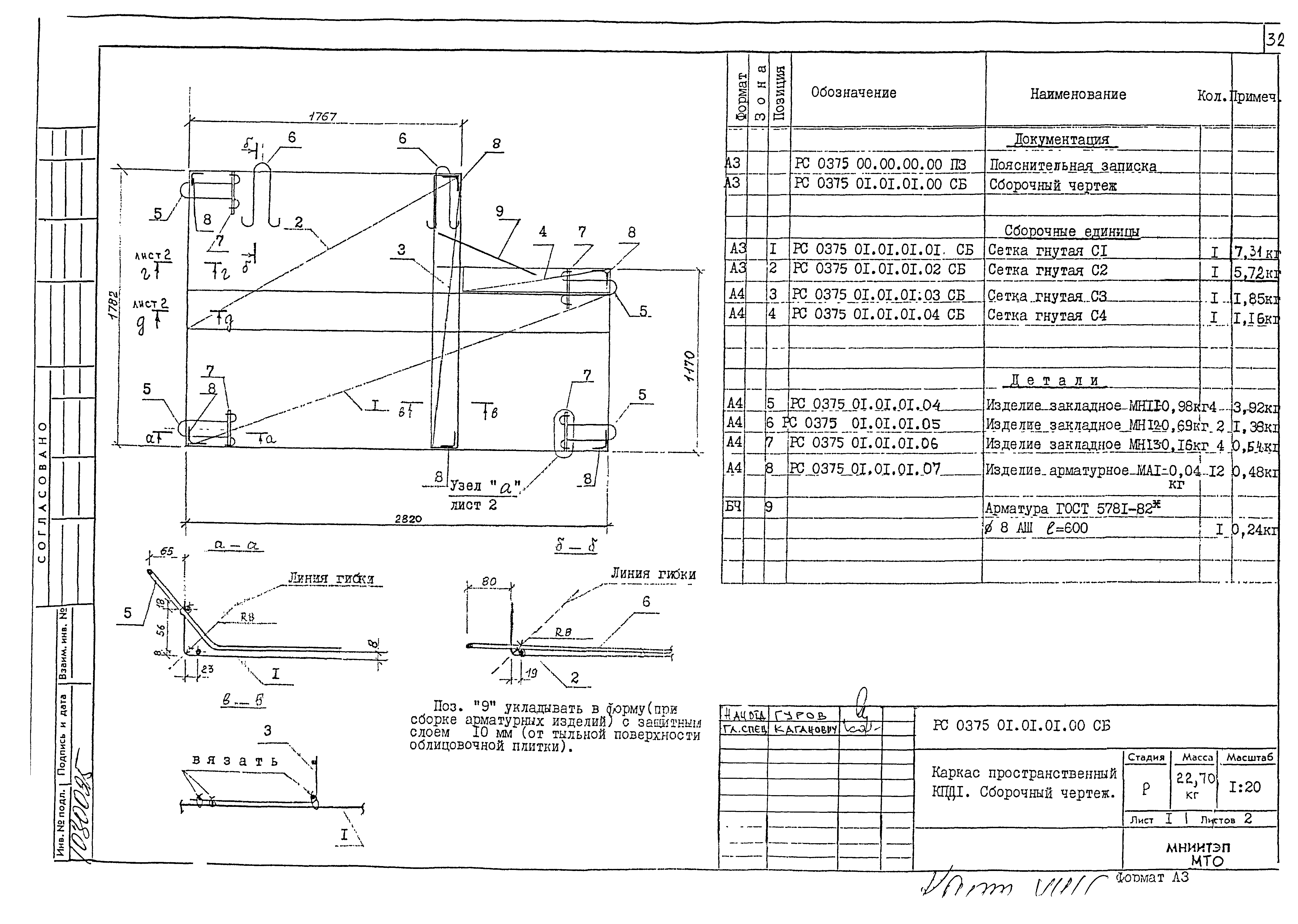
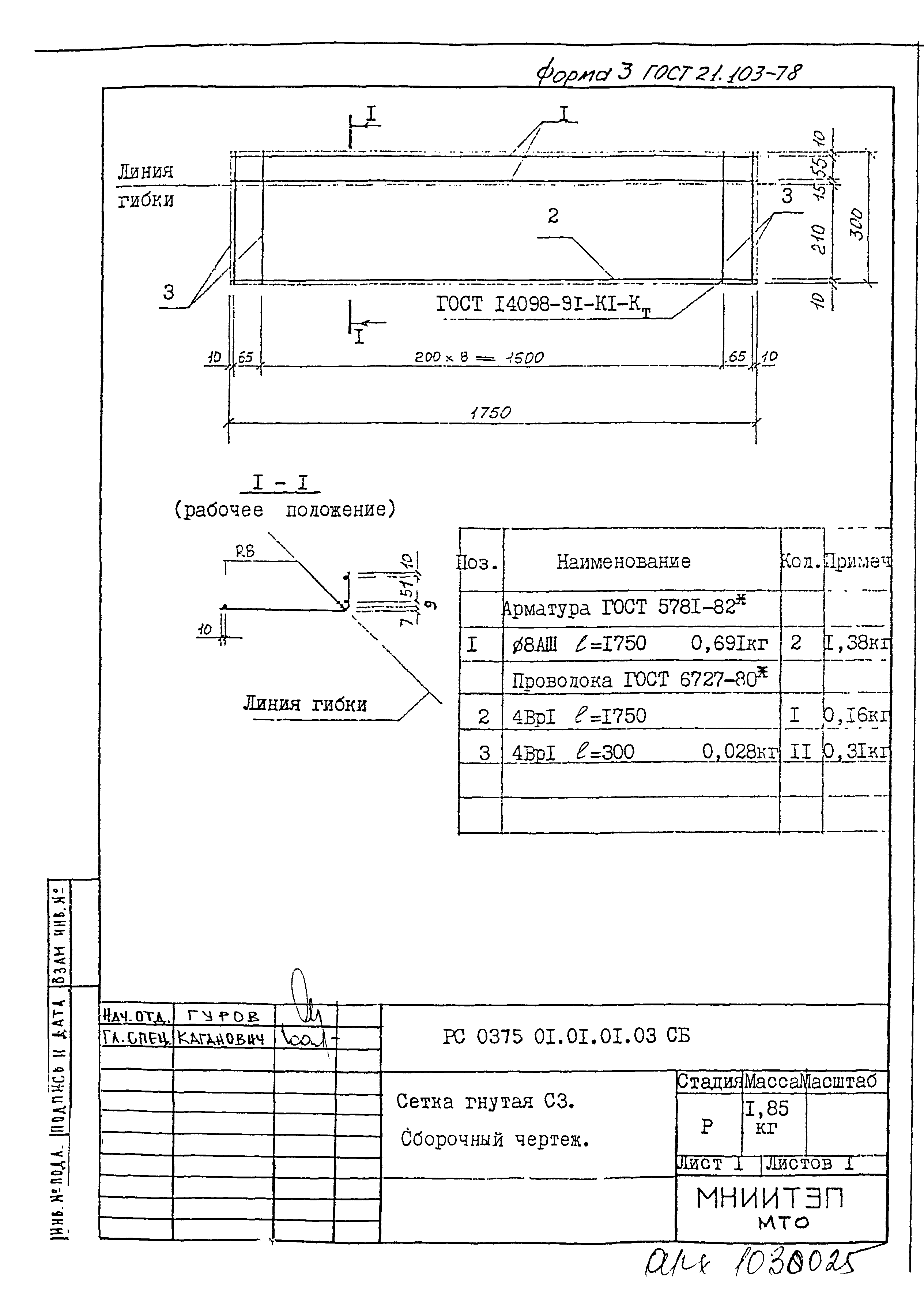
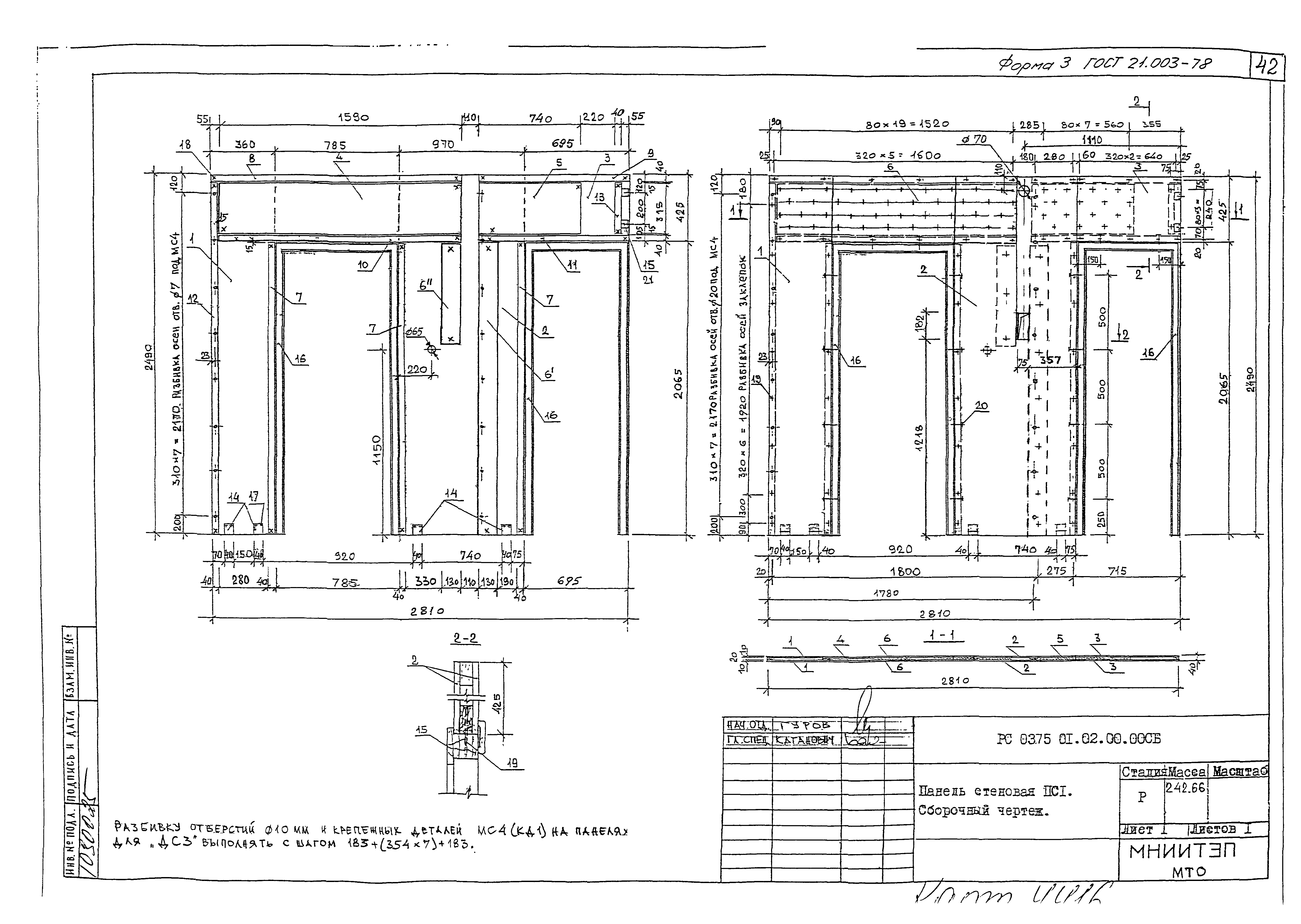
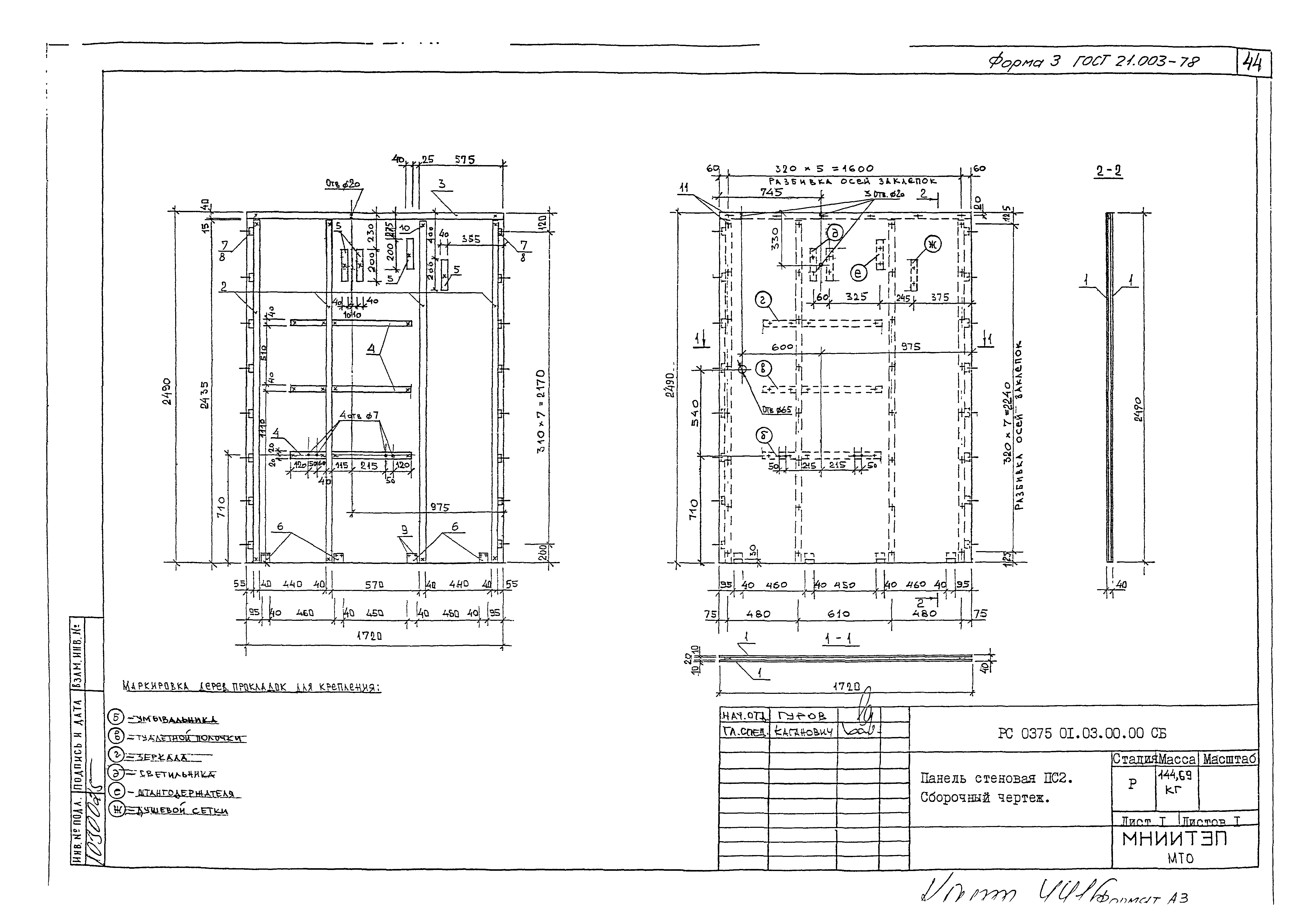
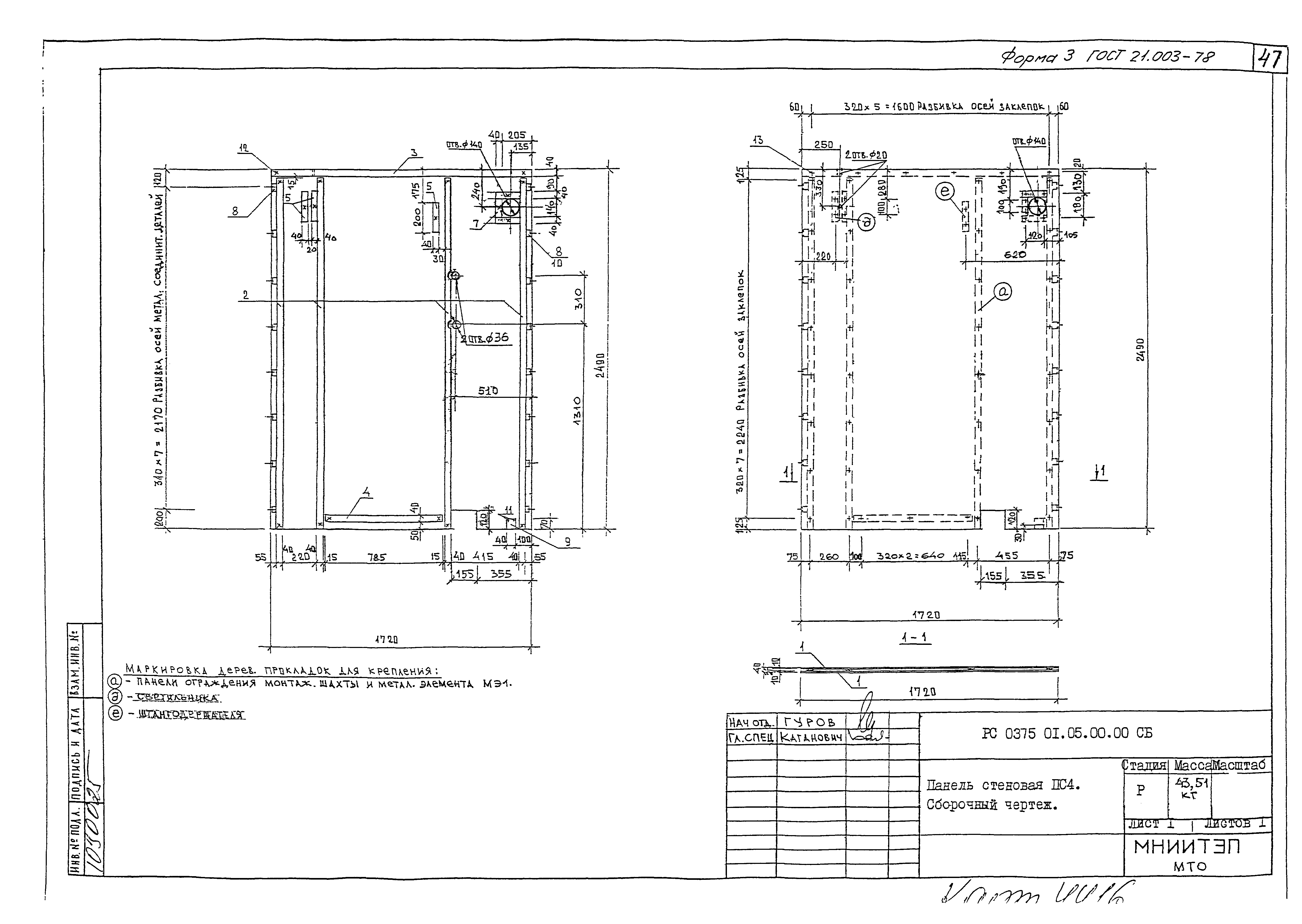
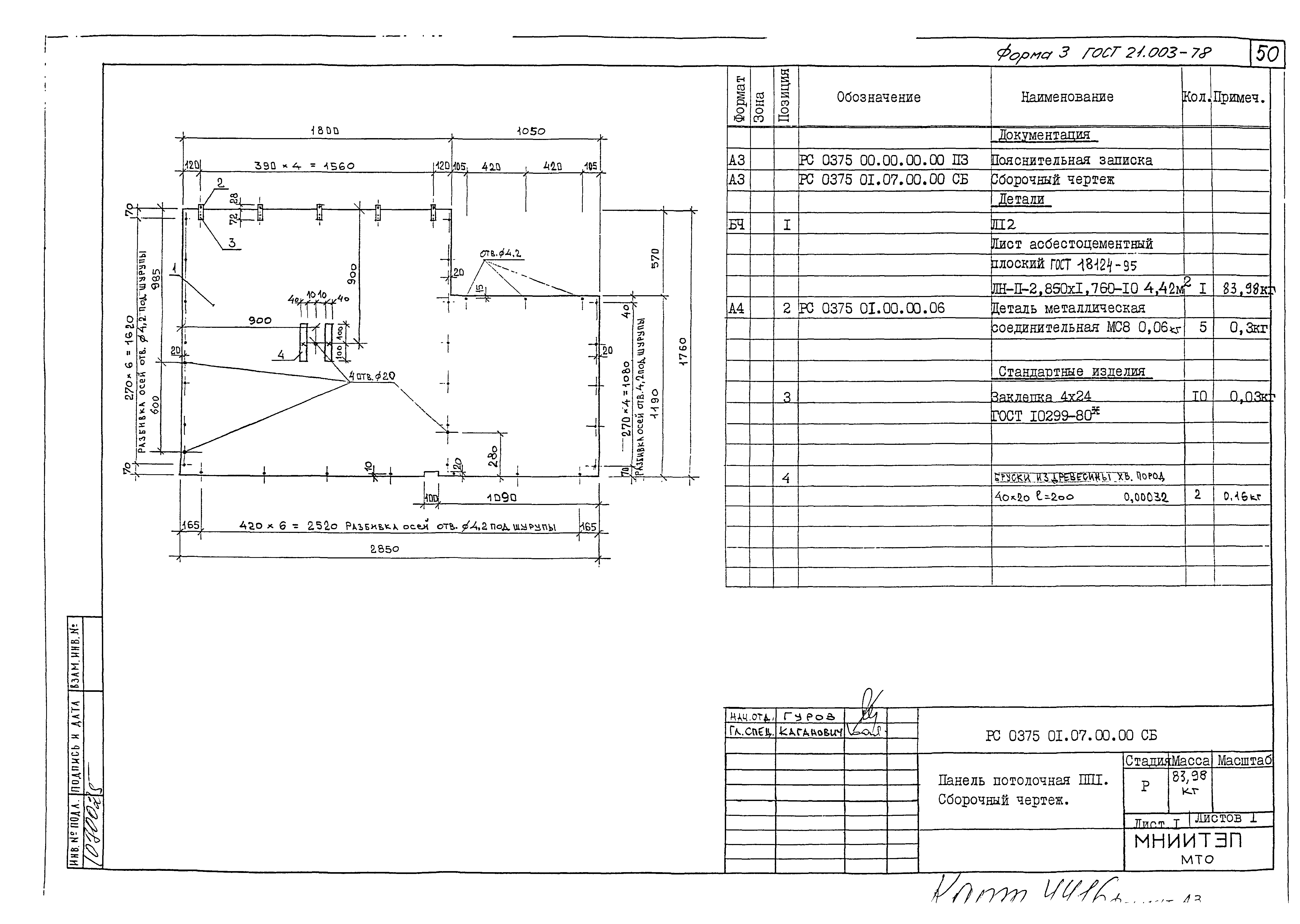
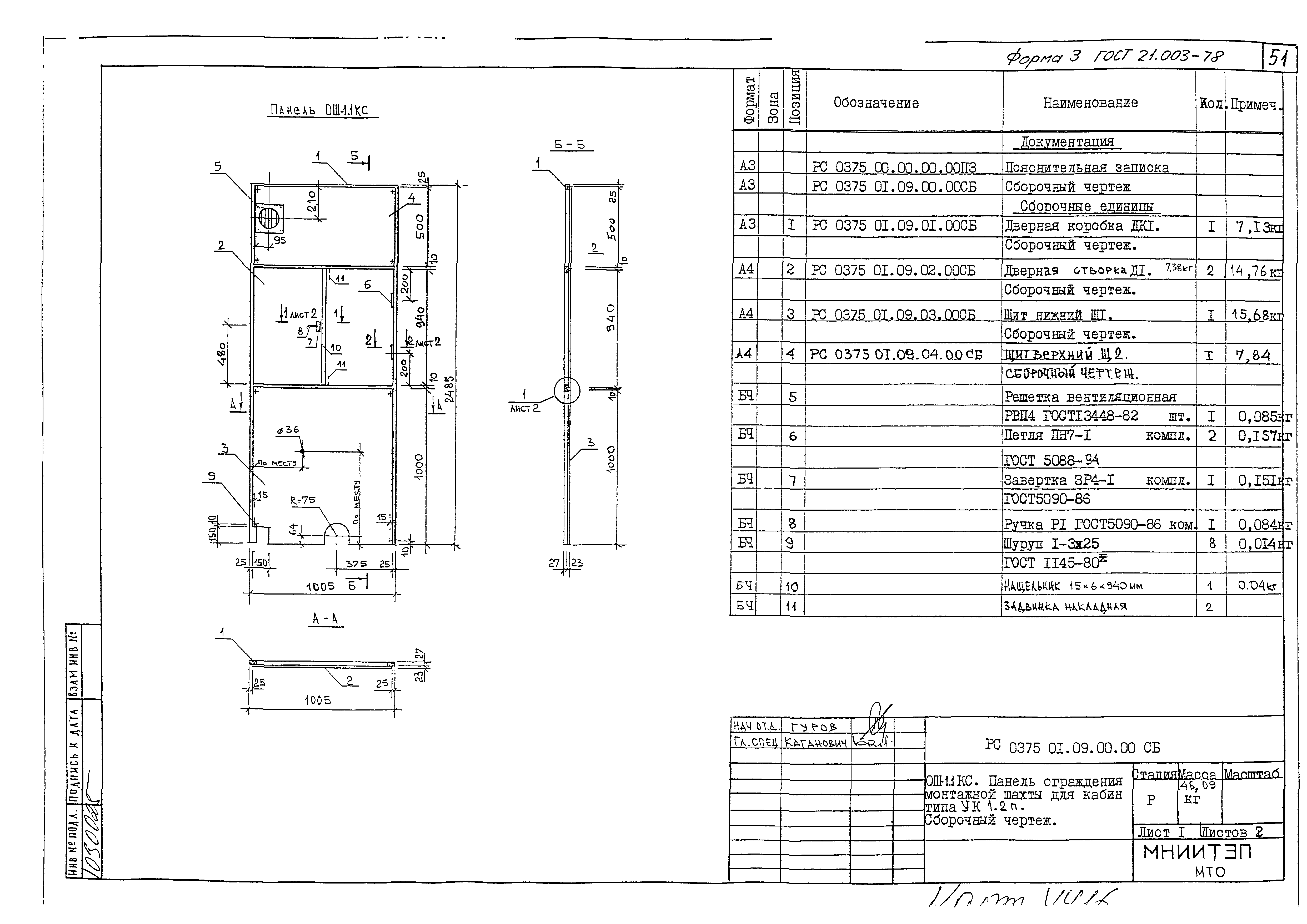
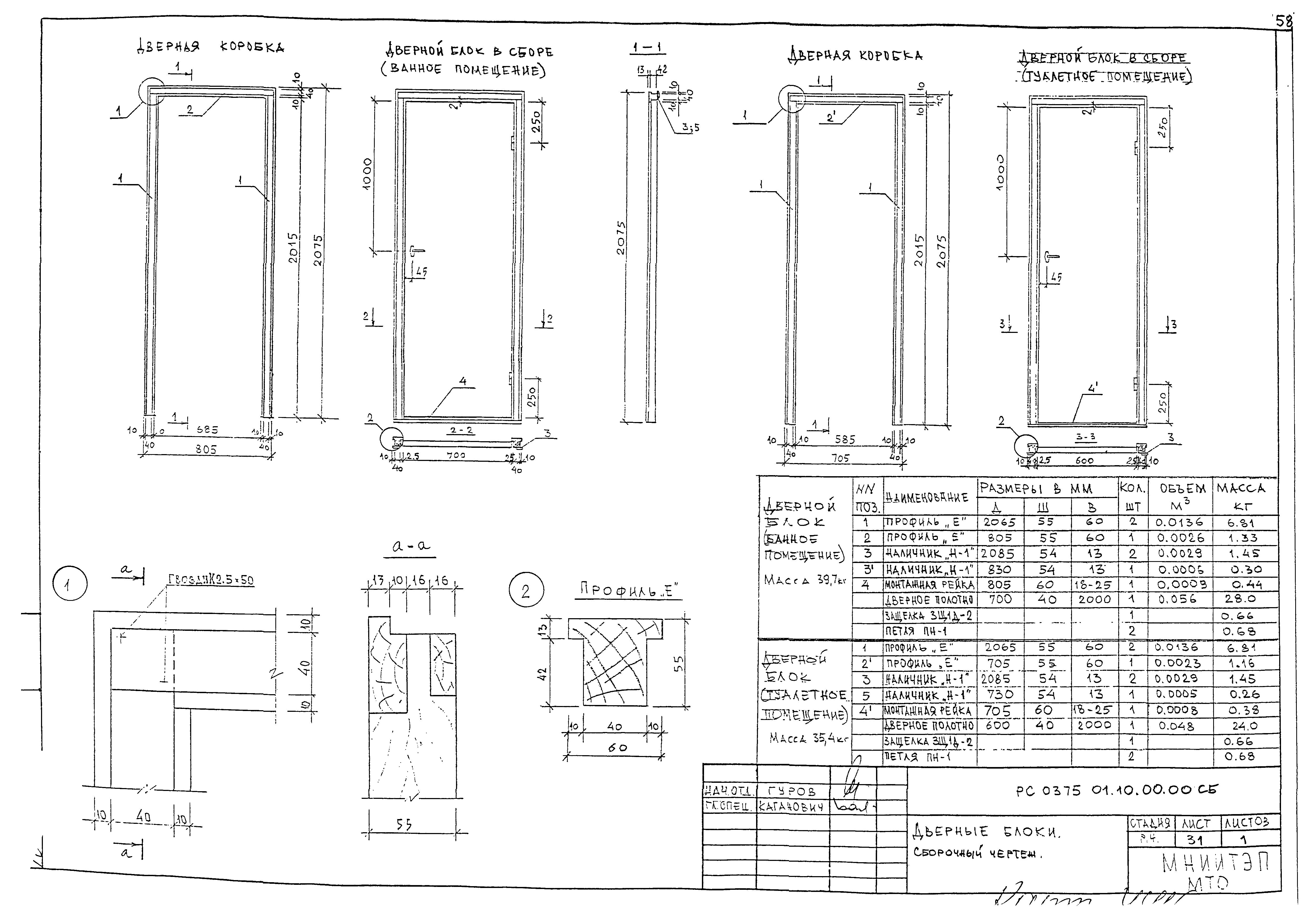
| Оглавление: | РС 0375.00.00.00.00 Содержание РС 0375.00.00.00.00 ПЗ Пояснительная записка РС 0375.00.00.00.00 НИ Номенклатура. Основные показатели РС 0375.00.00.00.00 РС Ведомость расхода стали РС 0375.00.00.00.00 РМ Ведомость расхода материалов. Ведомость столярных изделий РС 0375.01.00.00.00 НИА Номенклатура заготовок асбестоцементных панелей РС 0375.01.00.00.00 Кабина санитарно - техническая типа УК 1.2. Спецификация РС 0375.01.00.00.00 СБ Кабина санитарно - техническая типа УК 1.2. Сборочный чертеж. РС 0375.01.00.00.01 Деталь металлическая соединительная МС3 РС 0375.01.00.00.02 СБ Деталь металлическая соединительная МС4. Сборочный чертеж РС 0375.01.00.00.03 Деталь металлическая соединительная МС5 РС 0375.01.00.00.04 Деталь металлическая соединительная МС6 РС 0375.01.00.00.05 Деталь металлическая соединительная МС7 РС 0375.01.00.00.06 Деталь металлическая соединительная МС8 РС 0375.01.01.00.00 Днище ДI. Спецификация РС 0375.01.01.00.00 СБ Днище ДI. Сборочный чертеж РС 0375.01.01.01.00 СБ Каркас пространственный КП ДI. Сборочный чертеж РС 0375.01.01.01.01 СБ Сетка гнутая С1. Сборочный чертеж РС 0375.01.01.01.02 СБ Сетка гнутая С2. Сборочный чертеж РС 0375.01.01.01.03 СБ Сетка гнутая С3. Сборочный чертеж РС 0375.01.01.01.04 СБ Сетка гнутая С4. Сборочный чертеж РС 0375.01.01.01.01 Изделие закладное МН8 РС 0375.01.01.01.02 Изделие закладное МН9 РС 0375.01.01.01.03 Изделие закладное МН10 РС 0375.01.01.01.04 Изделие закладное МН11 РС 0375.01.01.01.05 Изделие закладное МН12 РС 0375.01.01.01.06 Изделие закладное МН13 РС 0375.01.01.01.07 Изделие арматурное МА1 РС 0375.01.02.00.00 Панель стеновая ПС1. Спецификация РС 0375.01.02.00.00 СБ Панель стеновая ПС1. Сборочный чертеж РС 0375.01.03.00.00 Панель стеновая ПС2. Спецификация РС 0375.01.03.00.00 СБ Панель стеновая ПС2. Сборочный чертеж РС 0375.01.04.00.00 СБ Панель стеновая ПС3. Сборочный чертеж РС 0375.01.05.00.00 Панель стеновая ПС4. Спецификация РС 0375.01.05.00.00 СБ Панель стеновая ПС4. Сборочный чертеж РС 0375.01.06.00.00 Панель стеновая ПС5. Спецификация РС 0375.01.06.00.00 СБ Панель стеновая ПС5. Сборочный чертеж РС 0375.01.07.00.00 СБ Панель потолочная ППI. Сборочный чертеж РС 0375.01.07.00.00 СБ ОШ-У К 1Шанель ограждения монтажной шахты для кабин типа УК1.2. Сборочный чертеж РС 0375.01.09.00.00 СБ Дверная коробка ДК1. Сборочный чертеж РС 0375.01.09.01.00 СБ Деталь деревянная ДД1 РС 0375.01.09.01.01 Деталь деревянная ДД2 РС 0375.01.09.01.02 Дверная. створка. Д1. Сборочный чертеж РС 0375.01.09.02.00 СБ Щит нижний Щ1. Сборочный чертеж Щит верхний Щ2. Сборочный чертеж РС 0375.01.09.03.00 СБ Дверные блоки. Сборочный чертеж РС 0375.01.09.04.00 СБ П -1.1.КС. Подстолье под рукомойник РС 0375.01.10.00.00 СБ Металлический элемент МЭ 1.1.п. Сборочный чертеж. РС 0375.11.02.00.00 Короб вентиляционной. Общий вид. РС 0375.01.12.00.00 СБ Лист опалубочный РС 0375.01.13.00.00 Карта информационная |
| Разработан: | МНИИТЭП |
| Утверждён: | 24.06.2004 МНИИТЭП (MNIITEP 27-ТО) |
| Принят: | Даниловский завод Калибровский завод |













































































