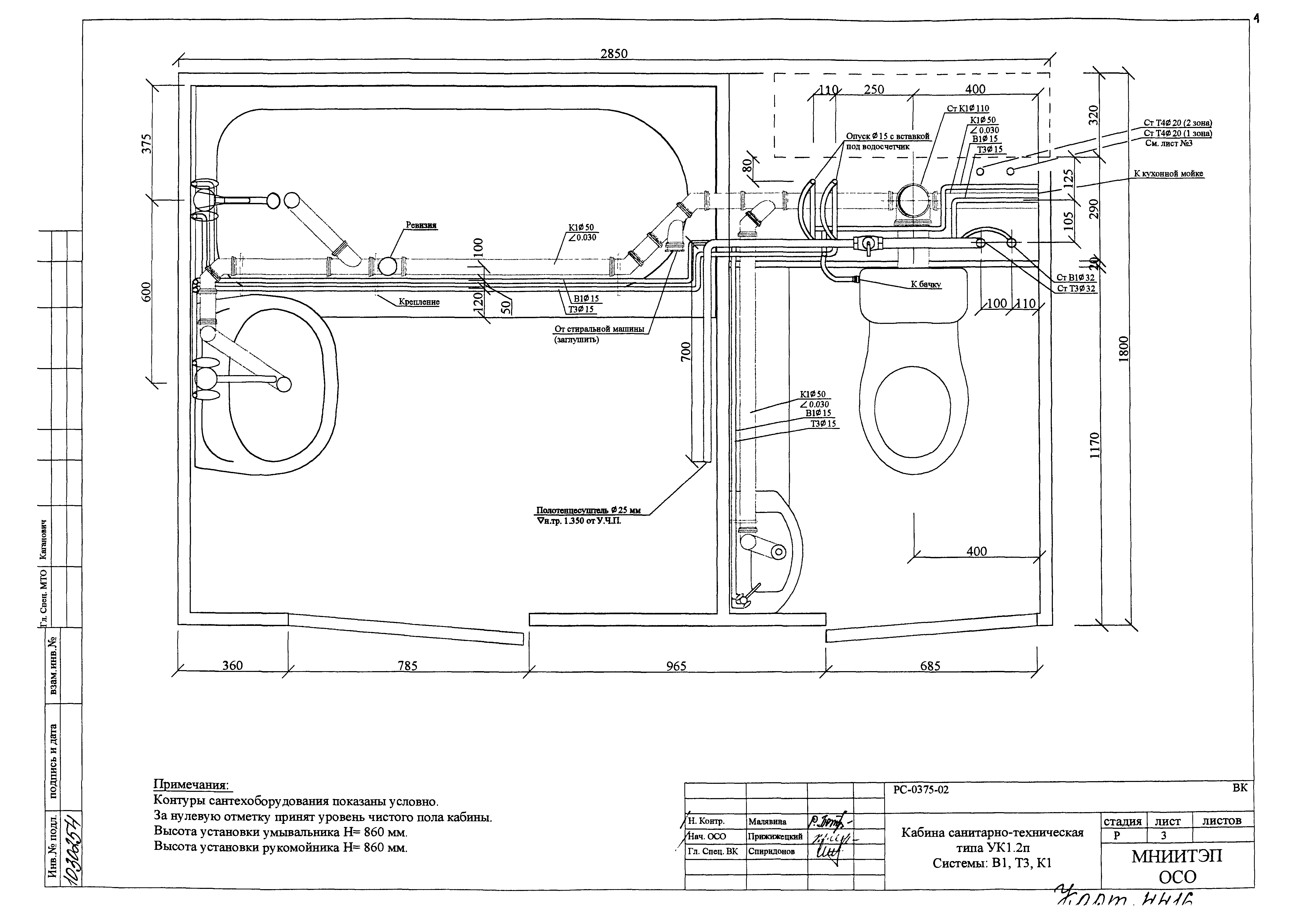
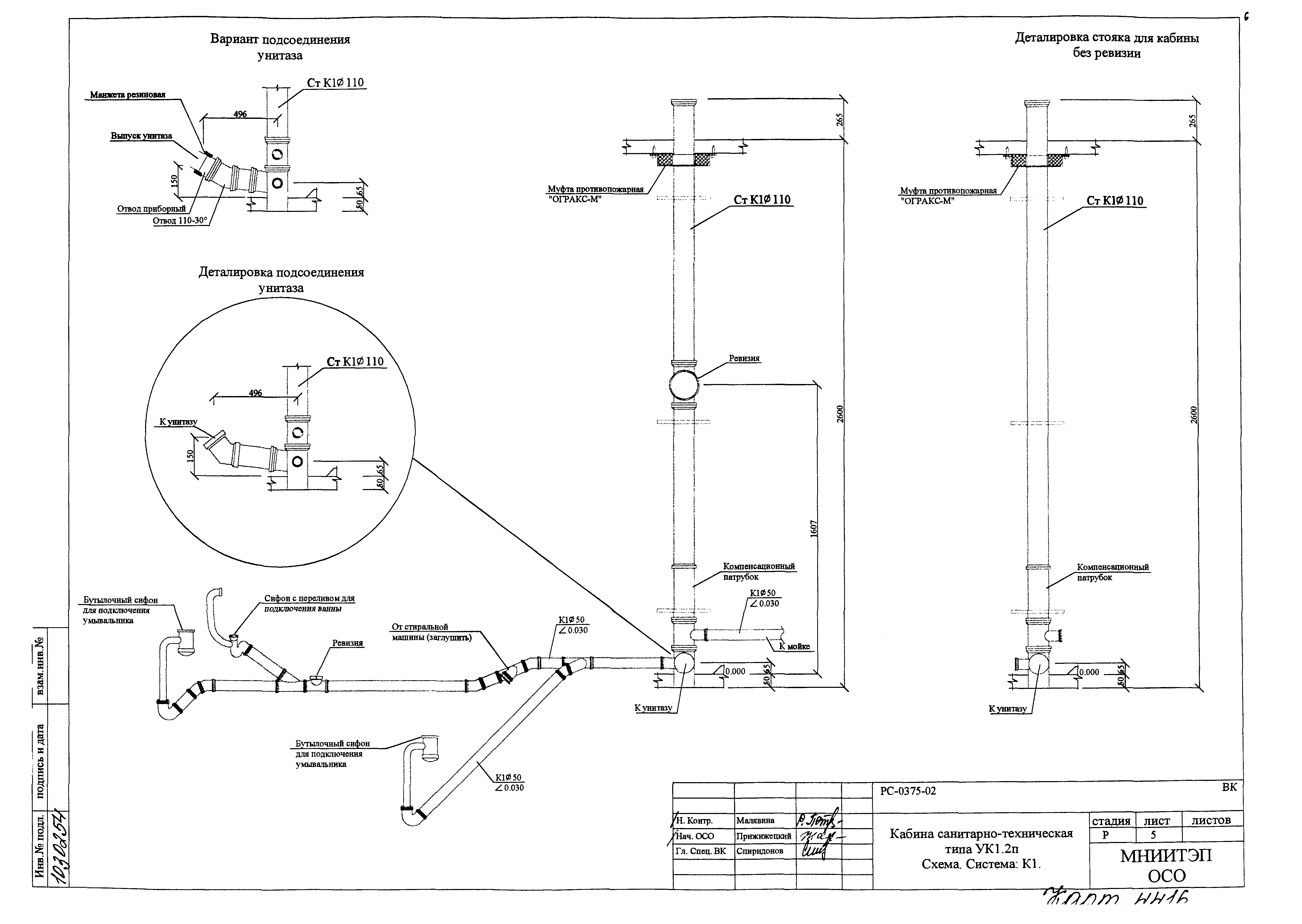
Скачать РС-0375-02 Кабина санитарно-техническая УК 1.2. Санитарно-техническое оборудование. Рабочие чертежиДата актуализации: 01.01.2021 РС-0375-02
Кабина санитарно-техническая УК 1.2. Санитарно-техническое оборудование. Рабочие чертежи| Обозначение: | РС-0375-02 | | Обозначение англ: | РС-0375-02 | | Статус: | не определен законодательством | | Название рус.: | Кабина санитарно-техническая УК 1.2. Санитарно-техническое оборудование. Рабочие чертежи | | Дата добавления в базу: | 01.09.2013 | | Дата актуализации: | 01.01.2021 | | Дата введения: | 24.06.2004 | | Утверждён: | 24.06.2004 МНИИТЭП (MNIITEP 27-ТО)
| | Принят: | Даниловский завод Калибровский завод
|
            
|