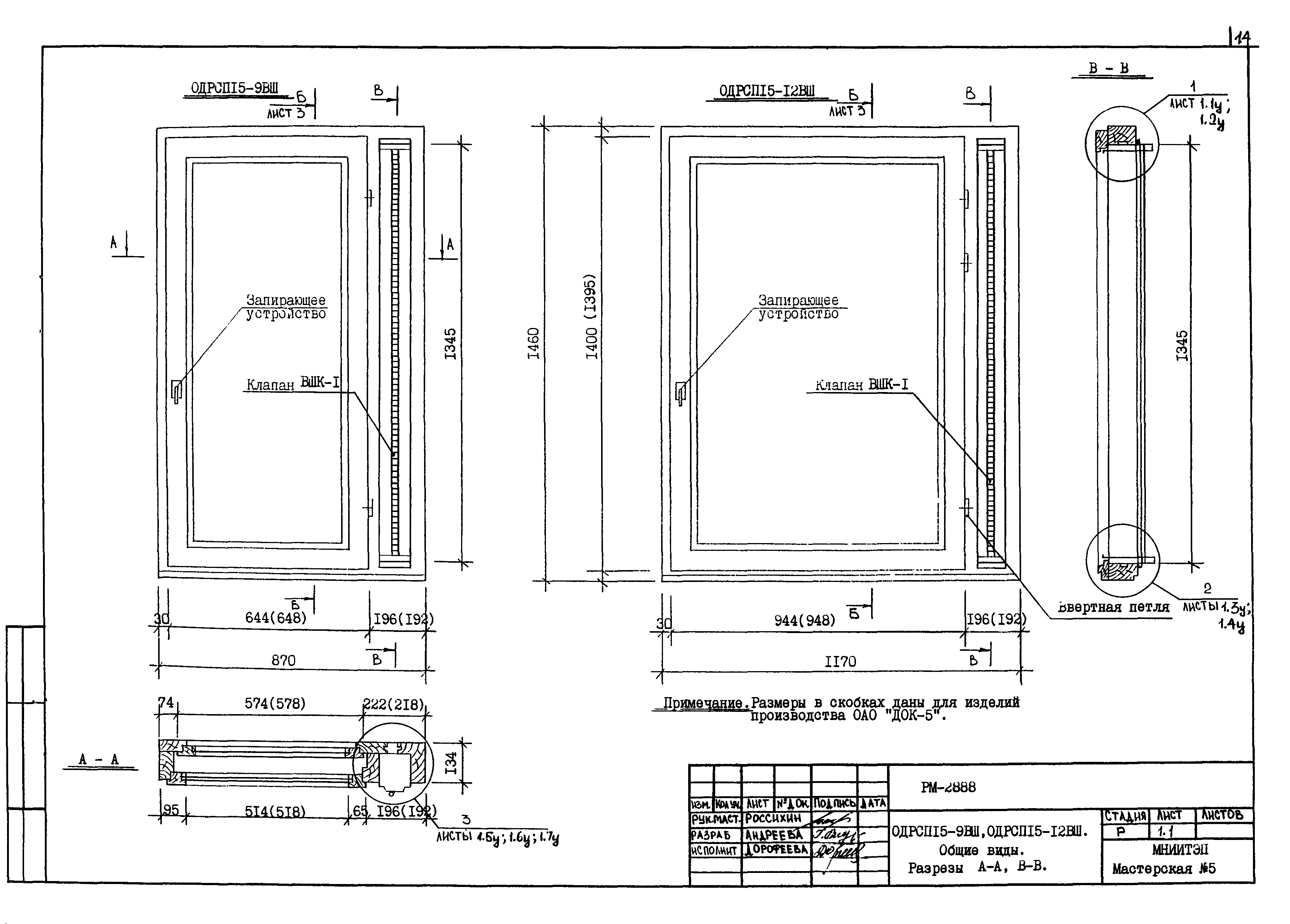
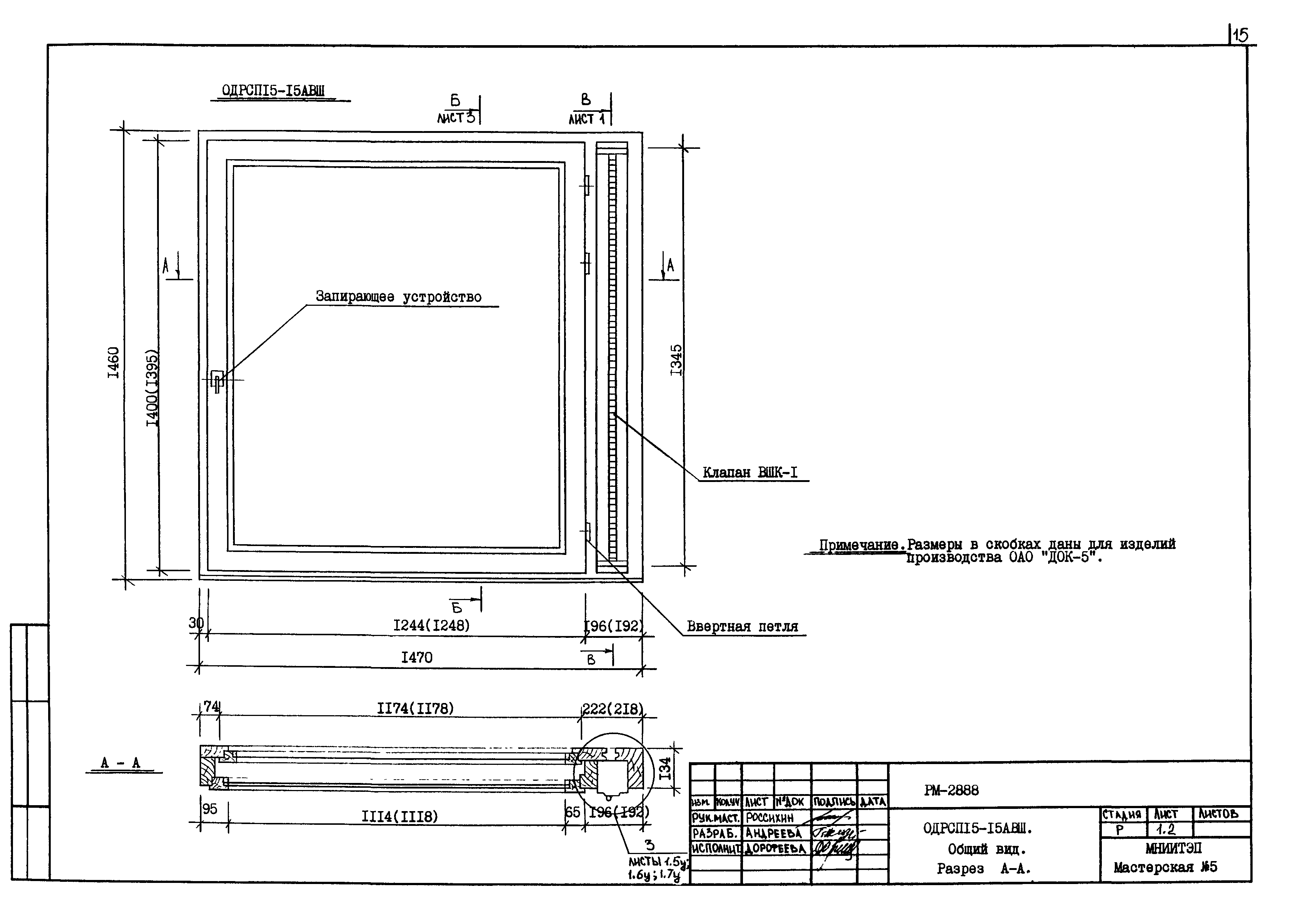
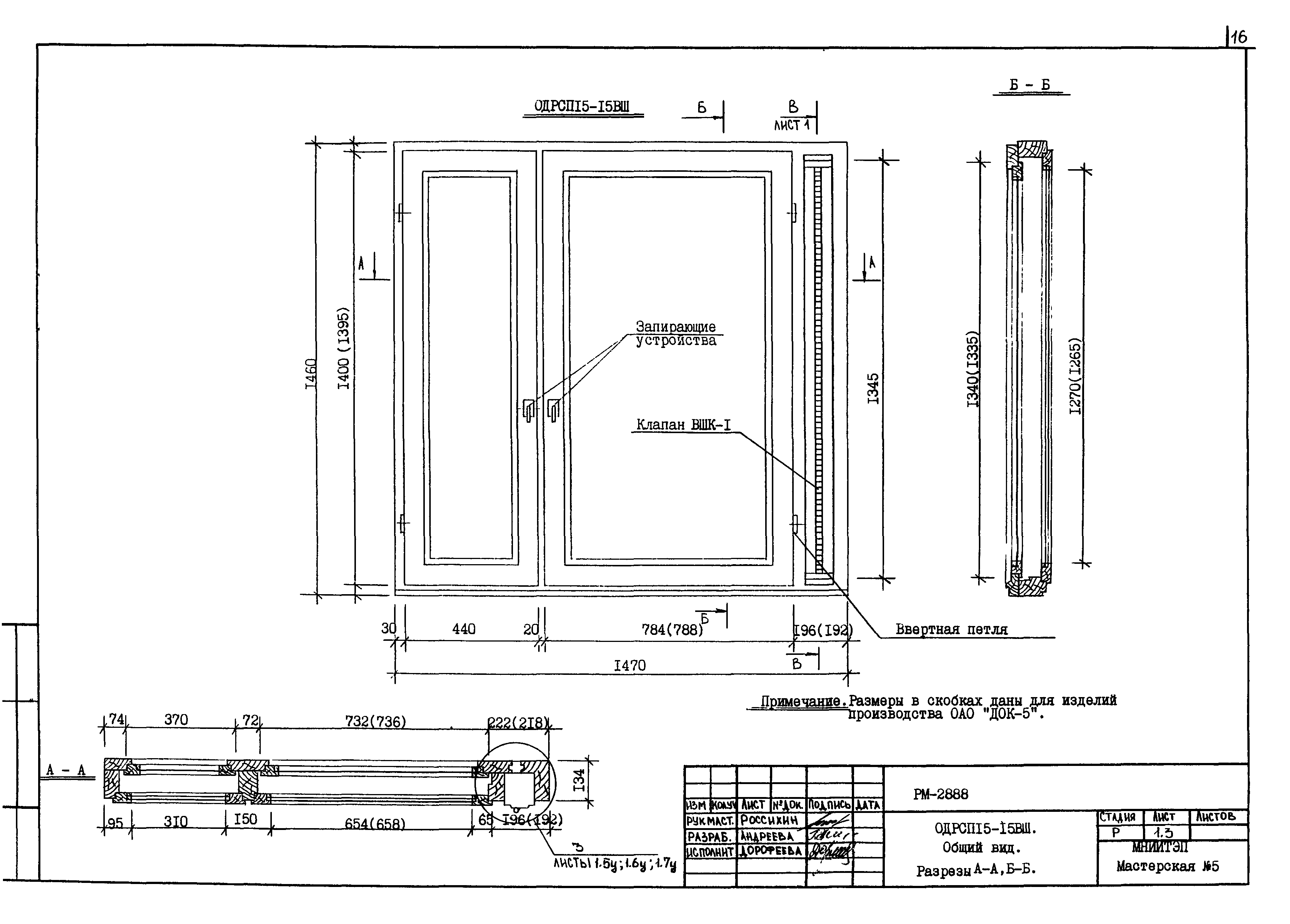
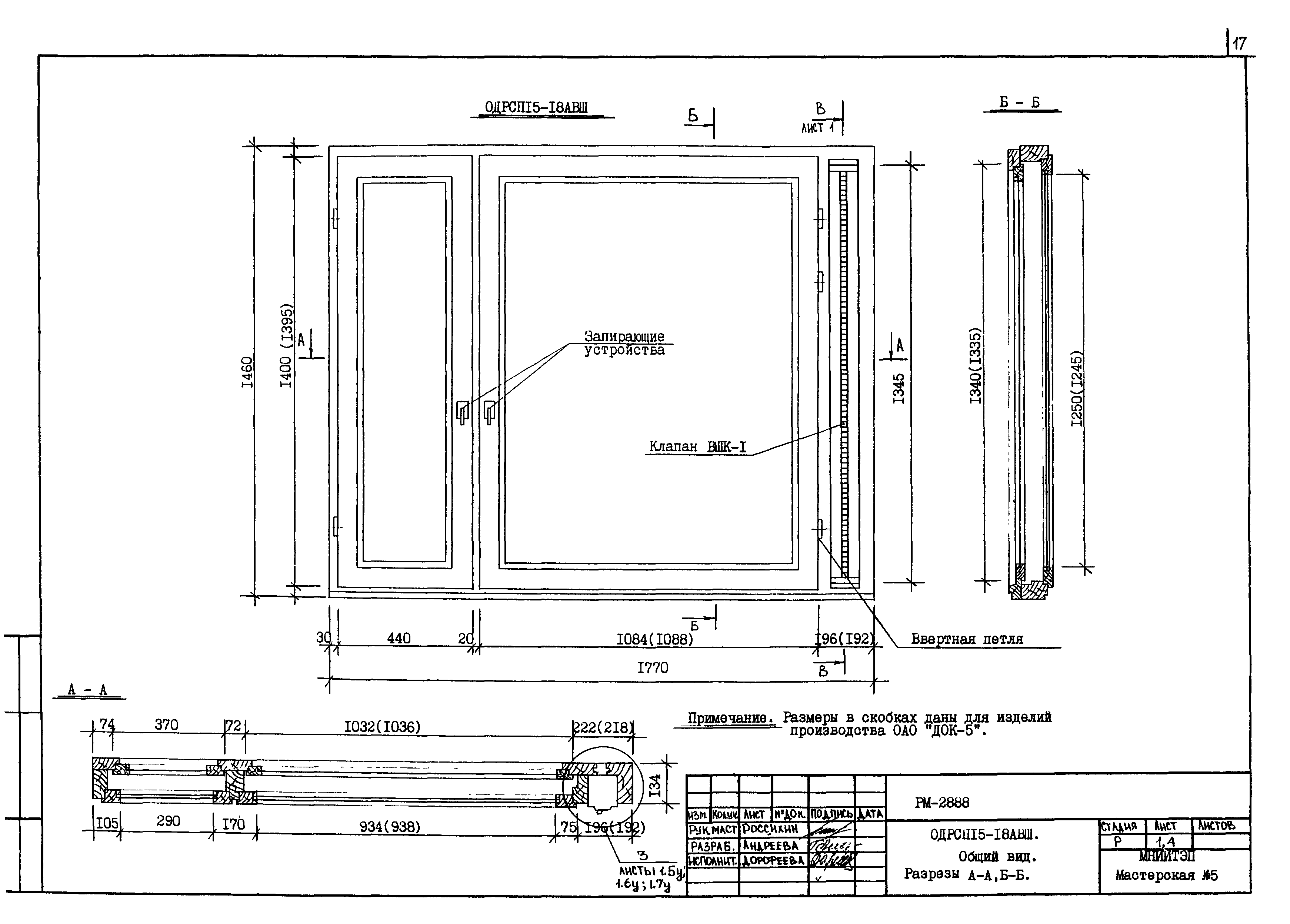
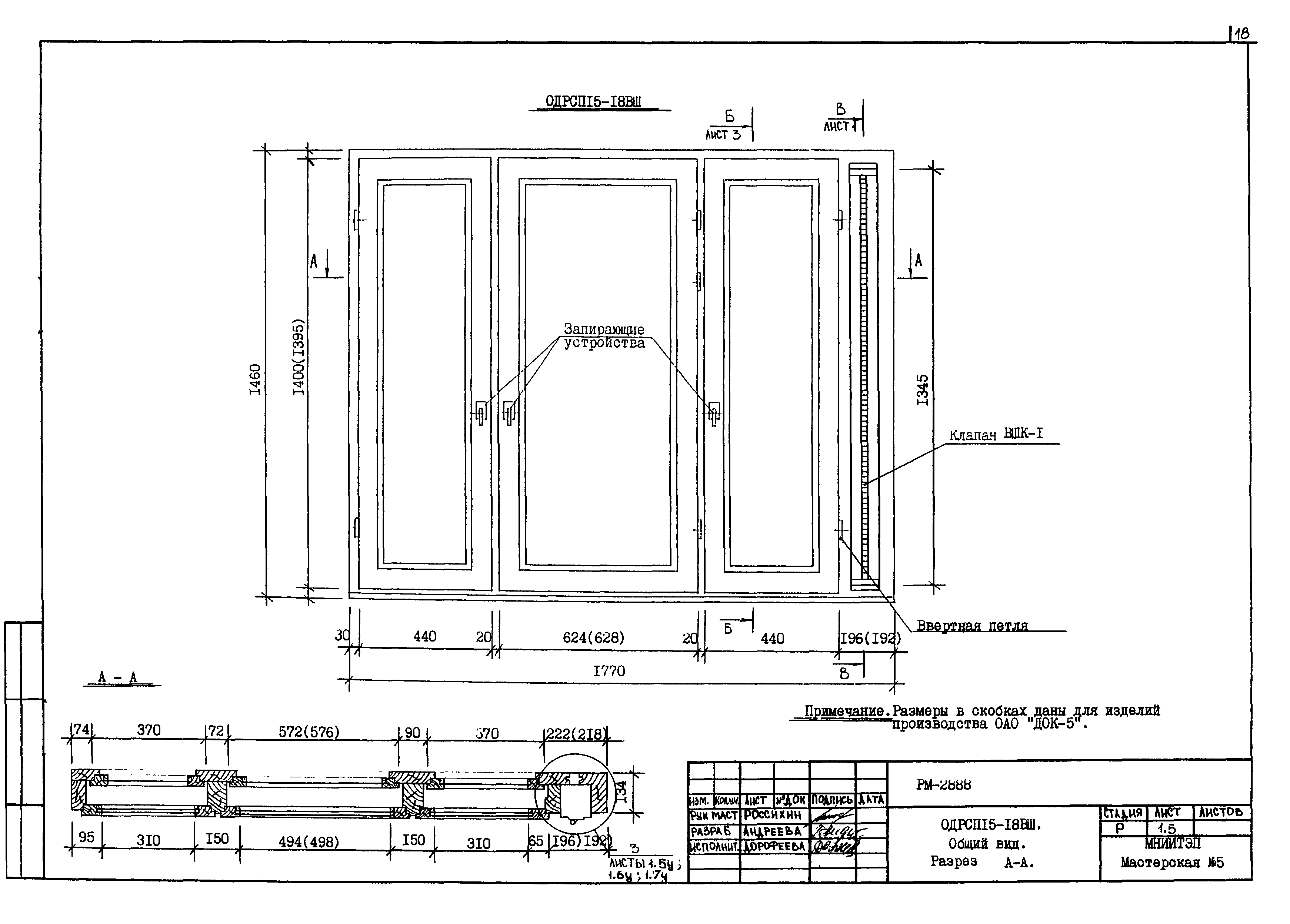
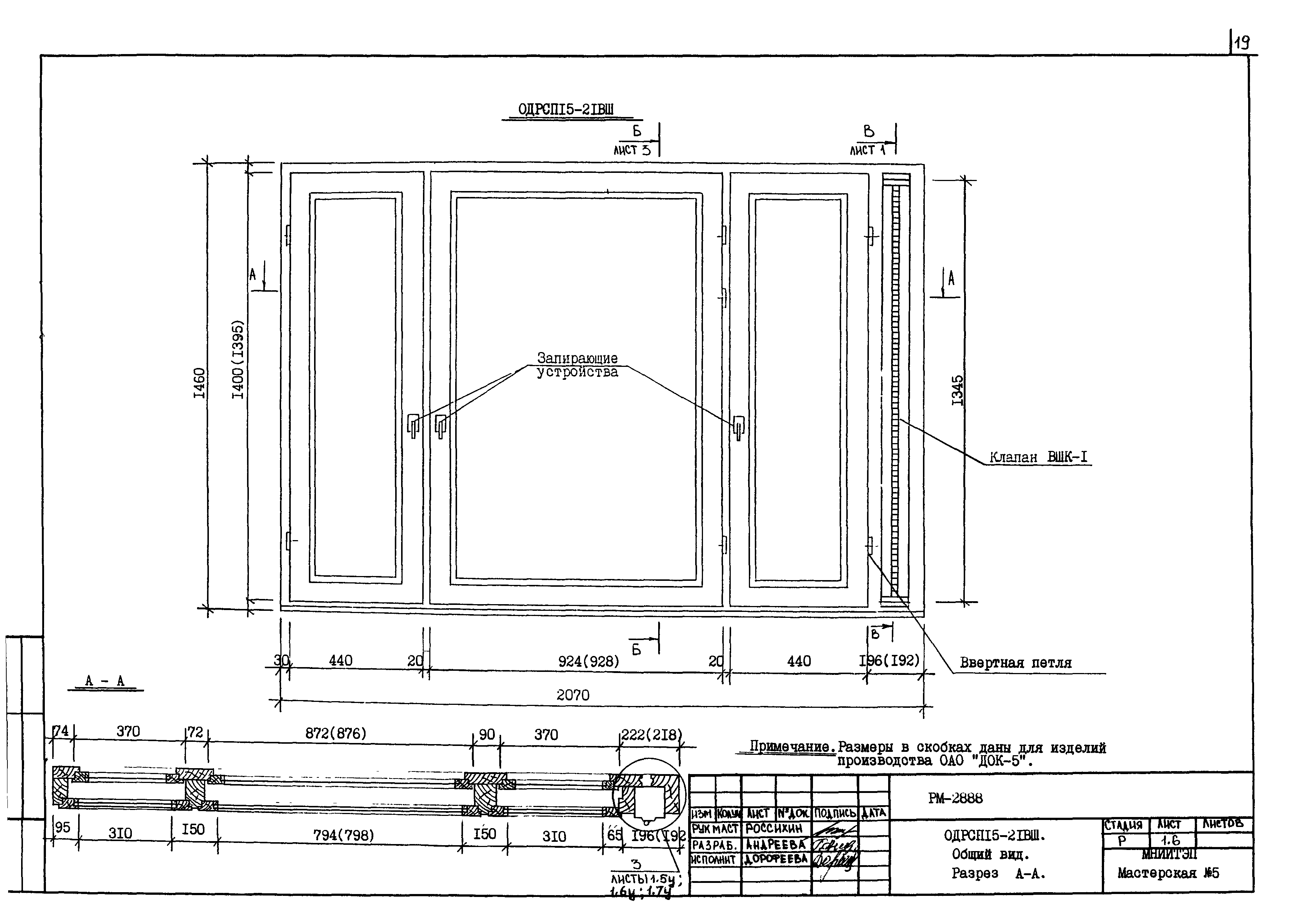
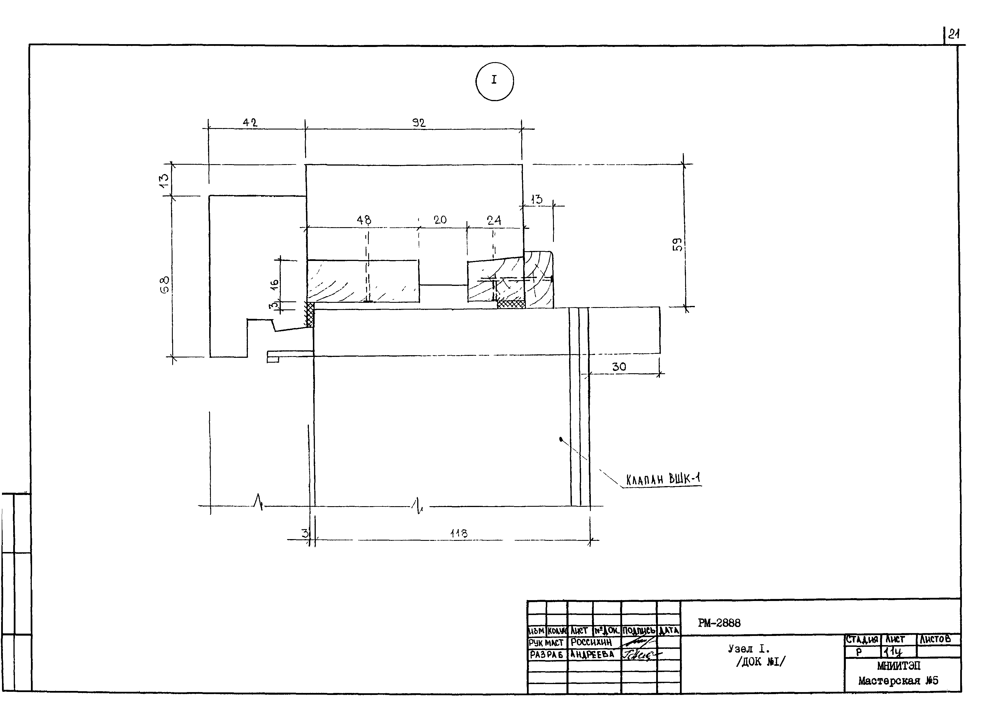
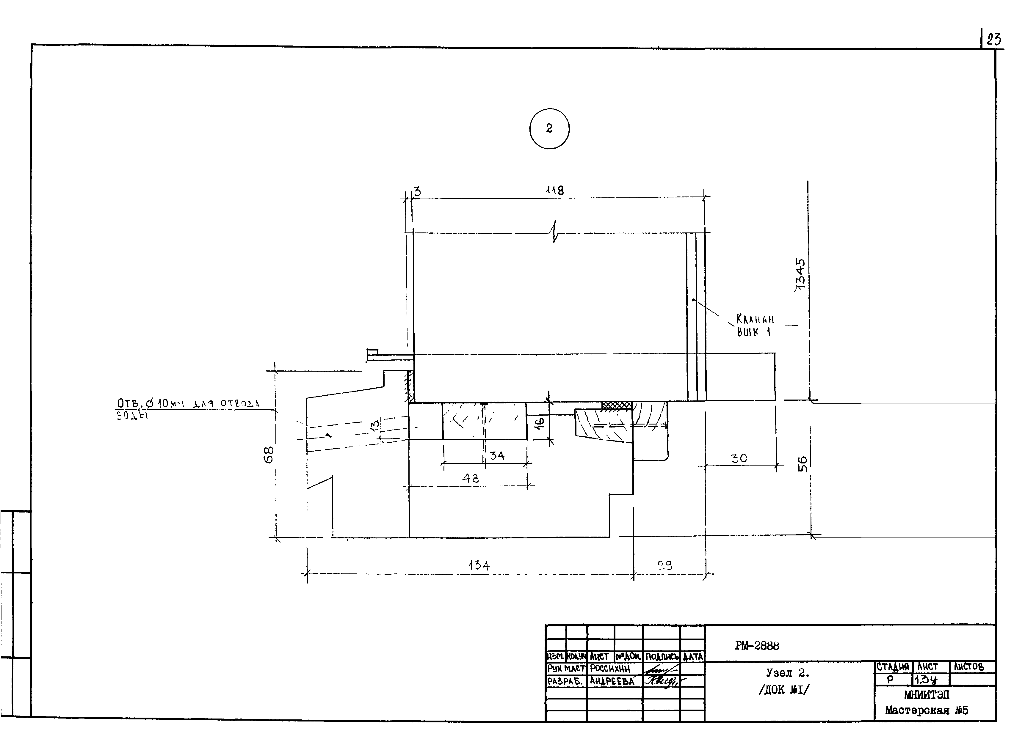
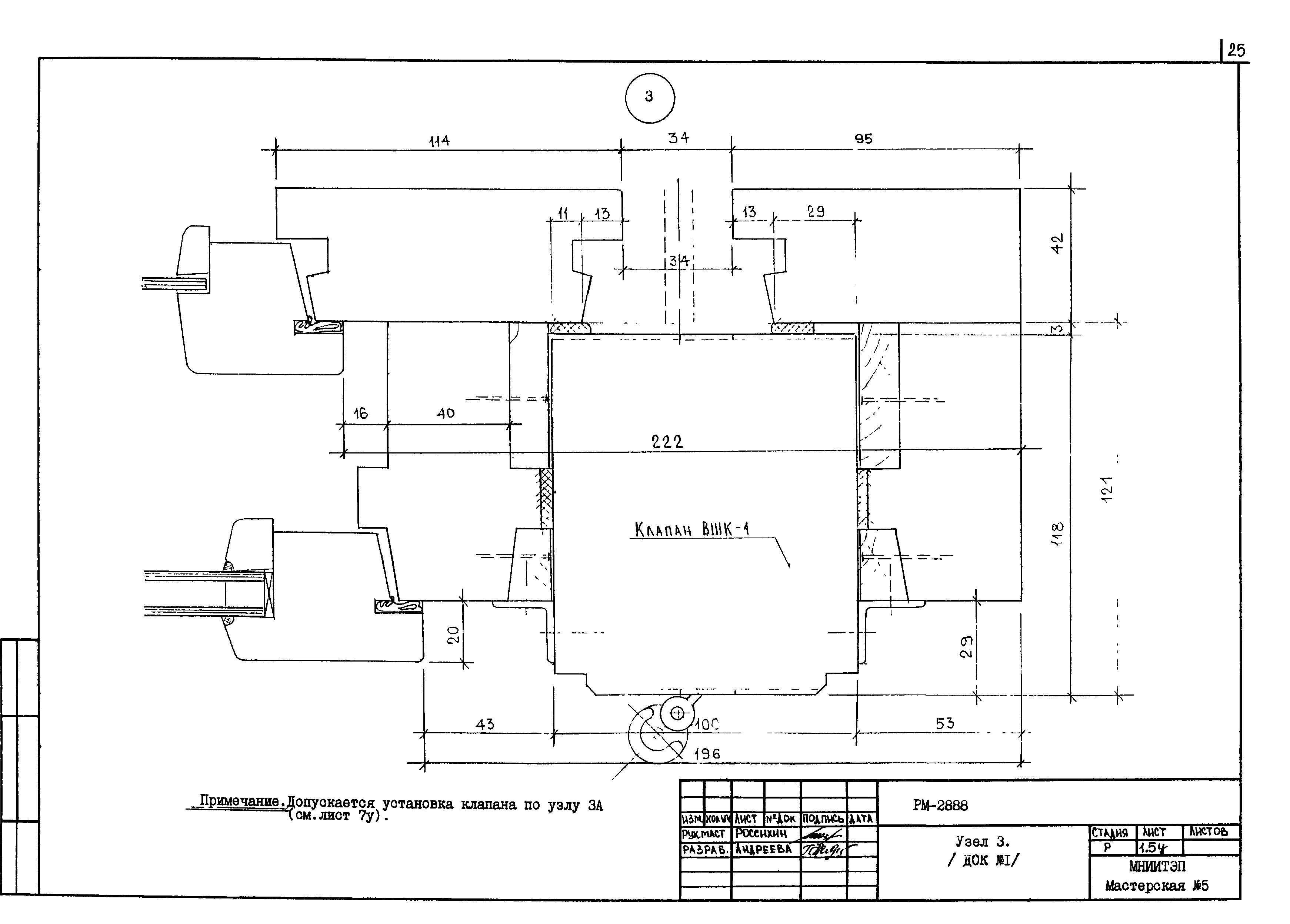
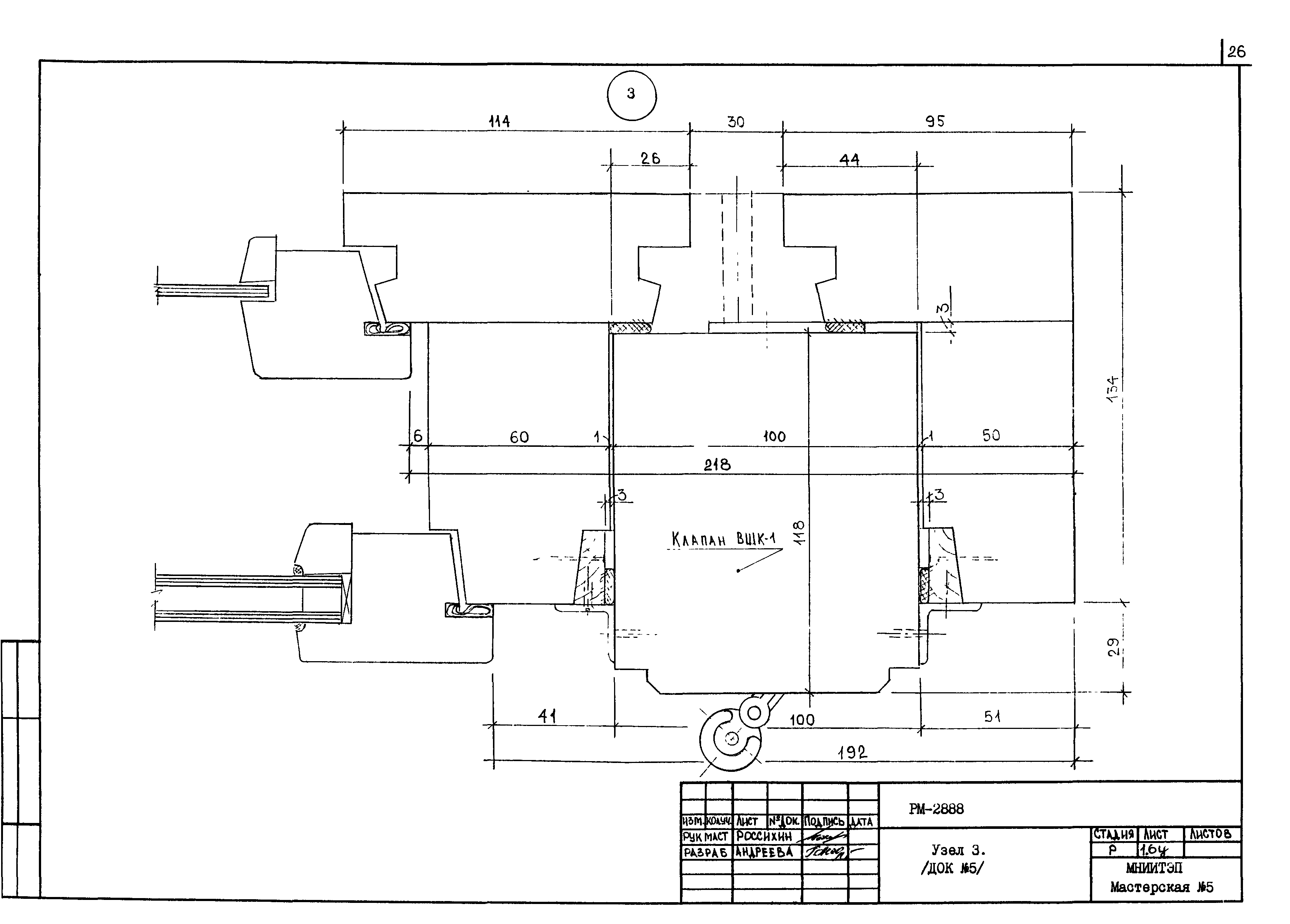
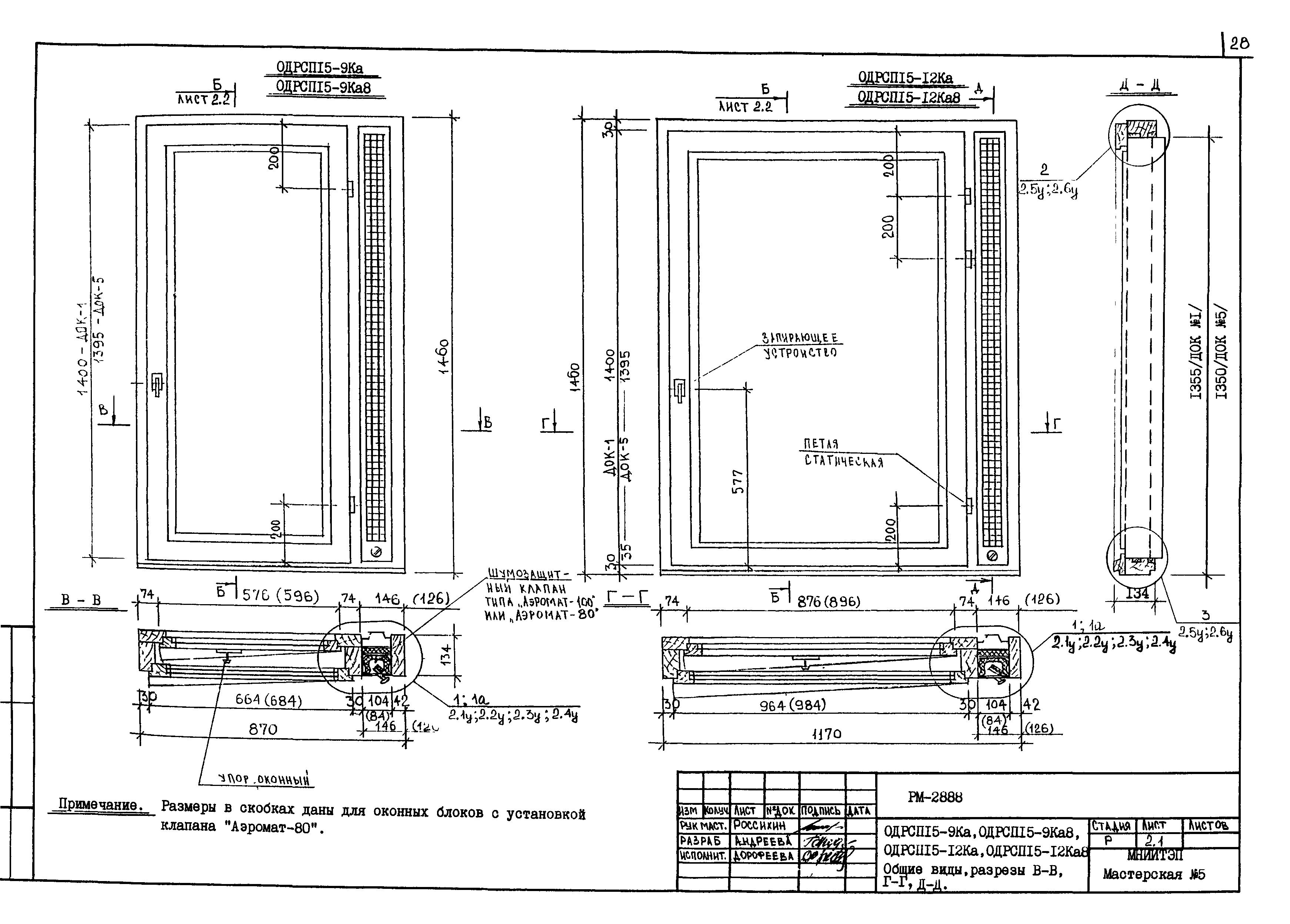
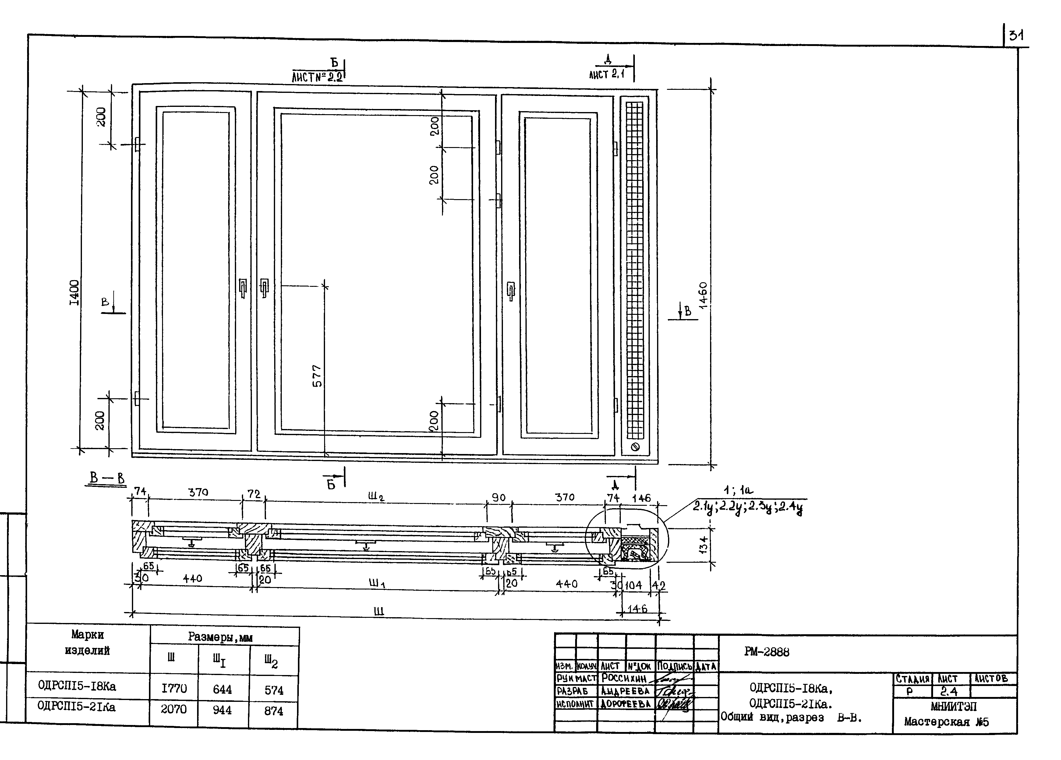
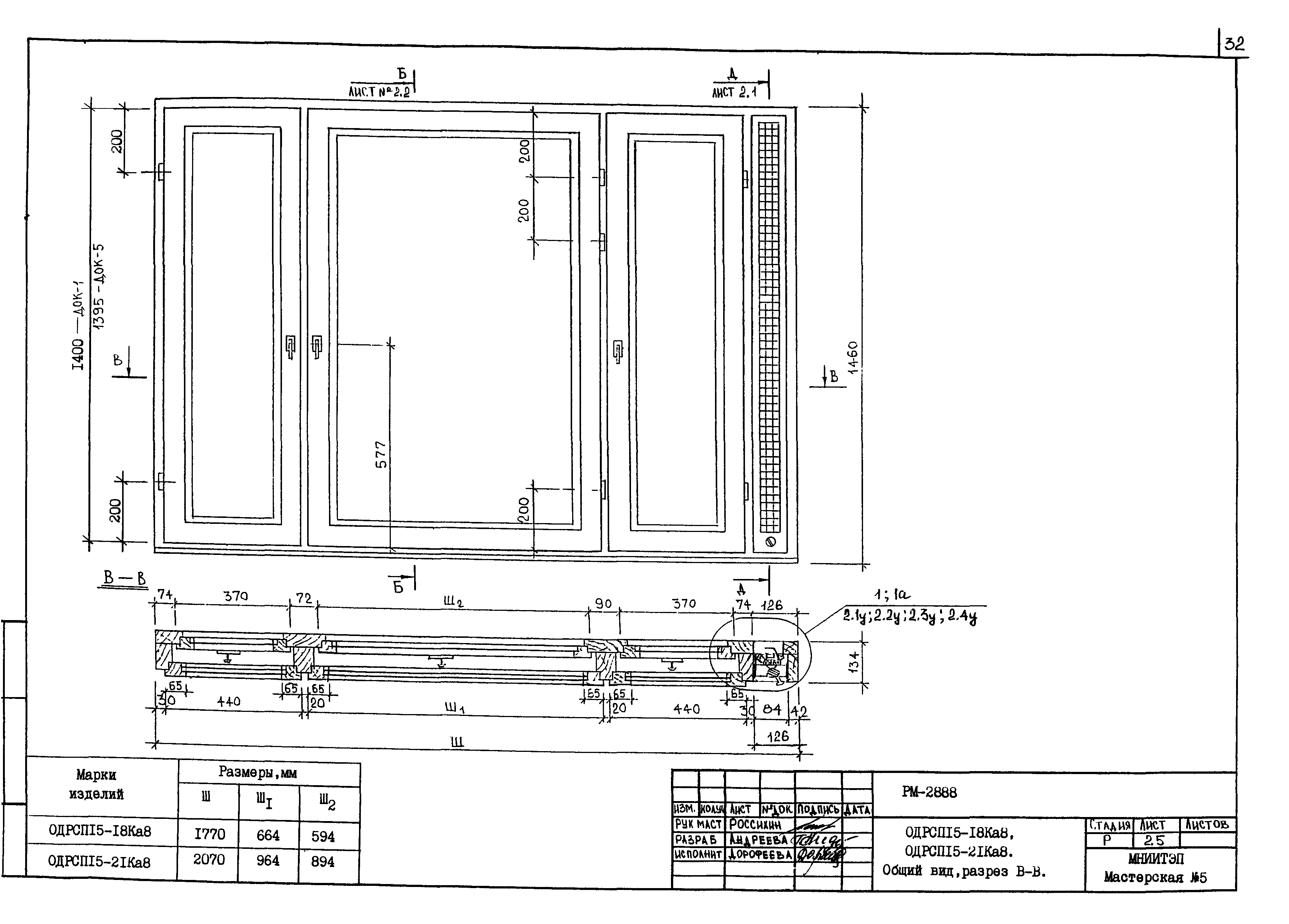
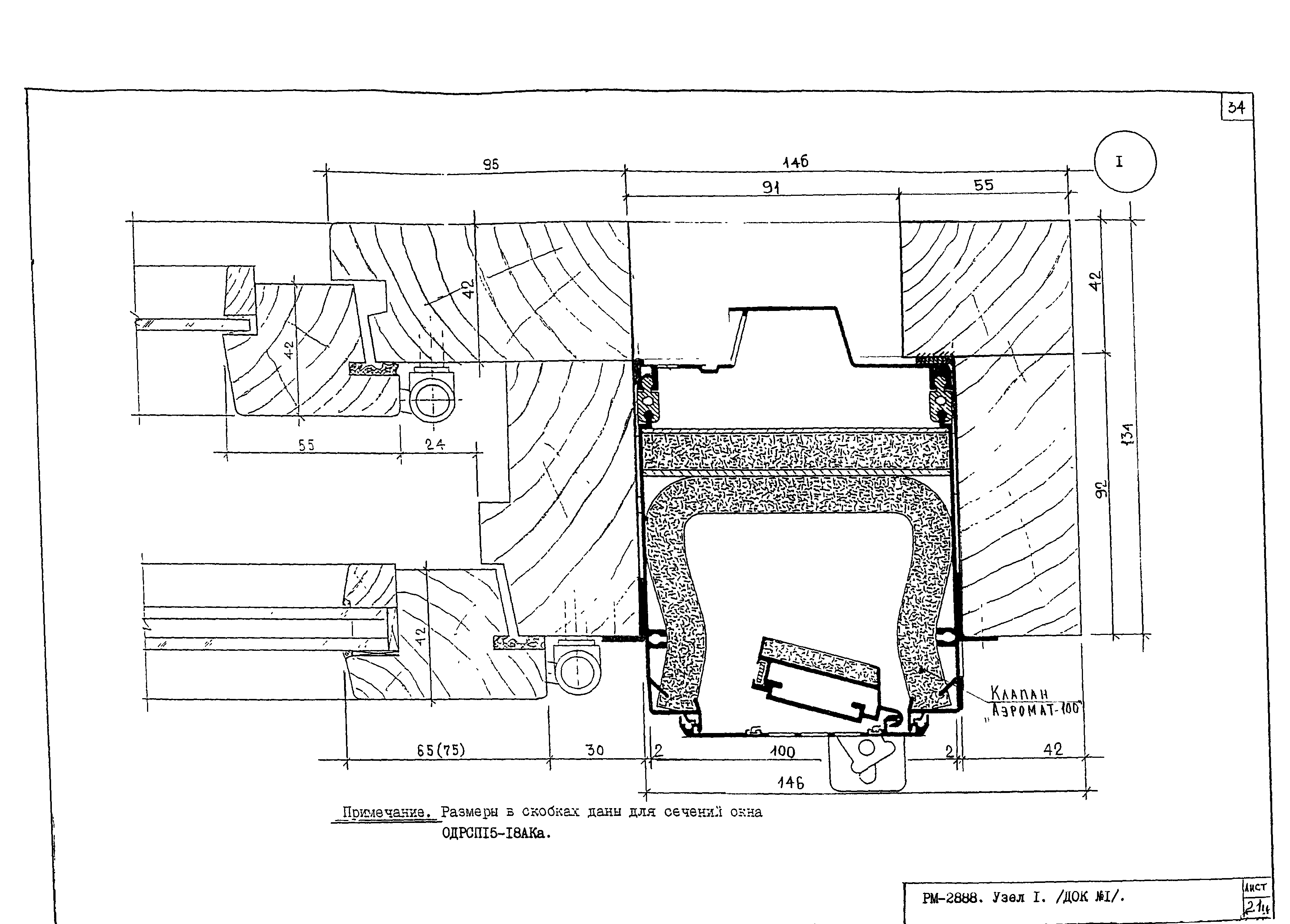
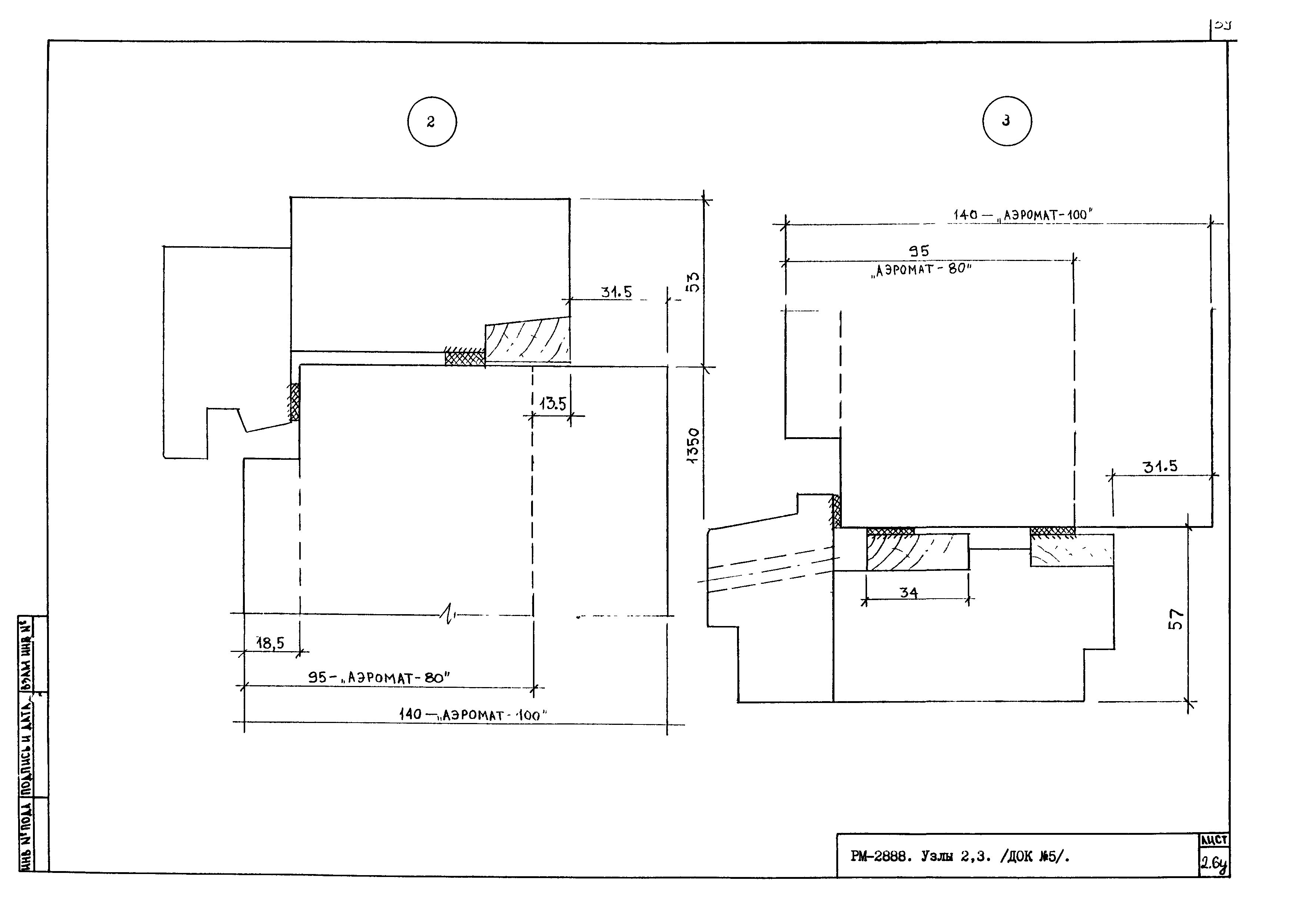
Скачать РМ-2888 Установка шумозащитных клапанов /взамен деревянных/ в окна раздельной конструкции производства ОАО ДОК-1 и ОАО ДОК-5. Технические решенияДата актуализации: 01.01.2021
|
| Обозначение: | РМ-2888 |
| Обозначение англ: | РМ-2888 |
| Статус: | не определен законодательством |
| Название рус.: | Установка шумозащитных клапанов /взамен деревянных/ в окна раздельной конструкции производства ОАО "ДОК-1" и ОАО "ДОК-5". Технические решения |
| Дата добавления в базу: | 01.09.2013 |
| Дата актуализации: | 01.01.2021 |
| Дата введения: | 01.01.2002 |
| Дата окончания срока действия: | 30.06.2003 |
| Разработан: | МНИИТЭП |
| Утверждён: | 01.01.2002 МНИИТЭП (MNIITEP ) |







































