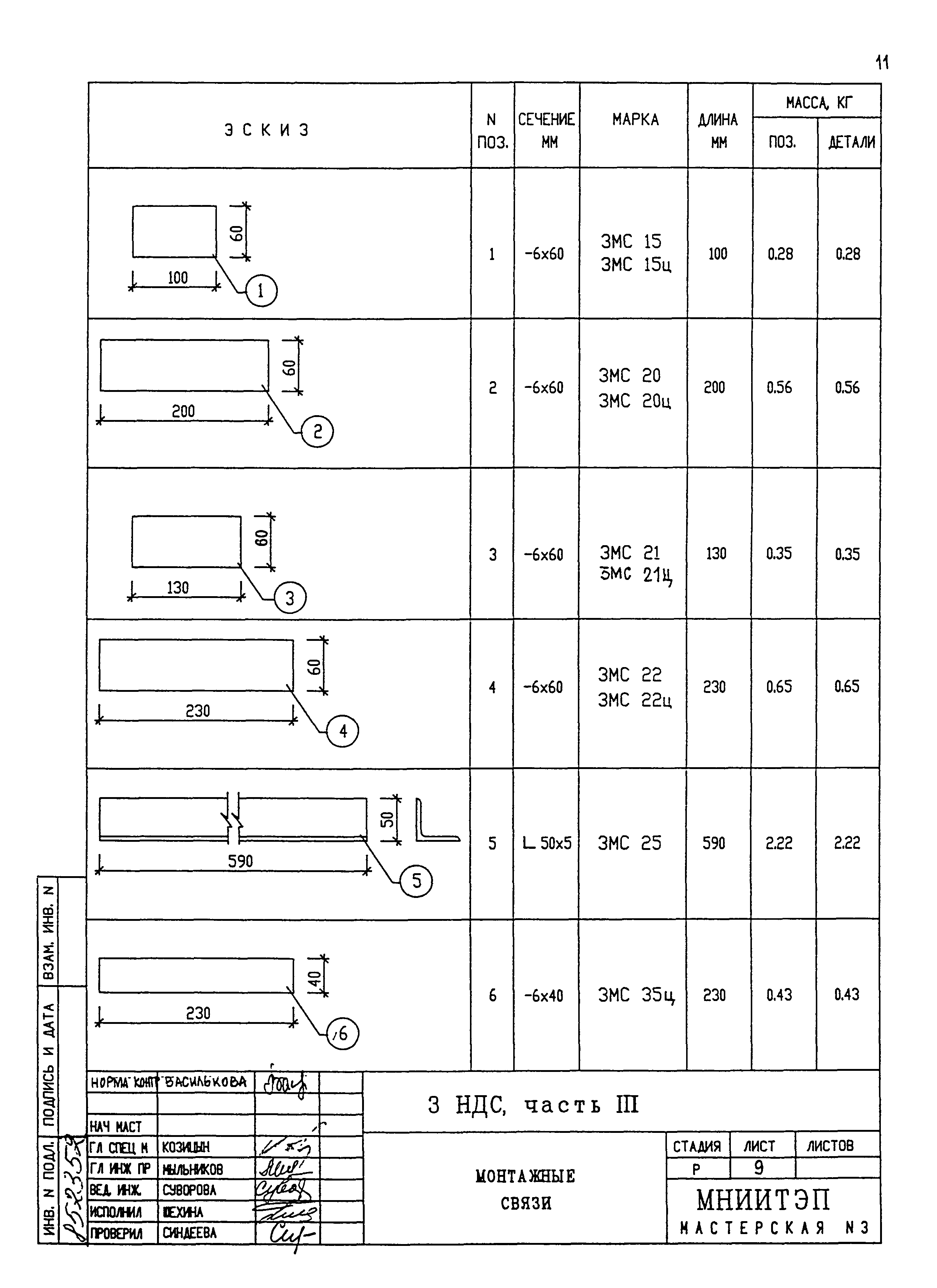
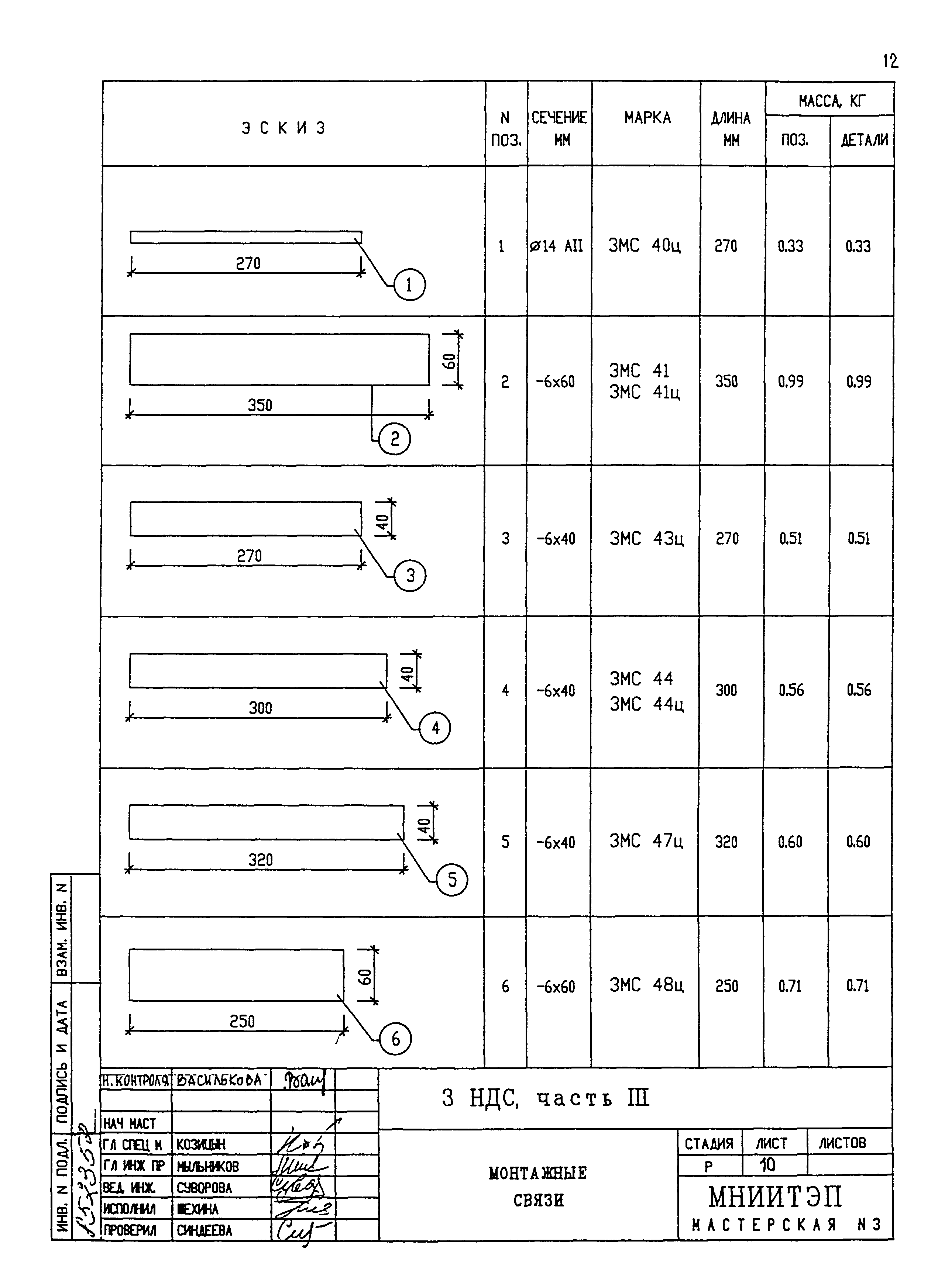
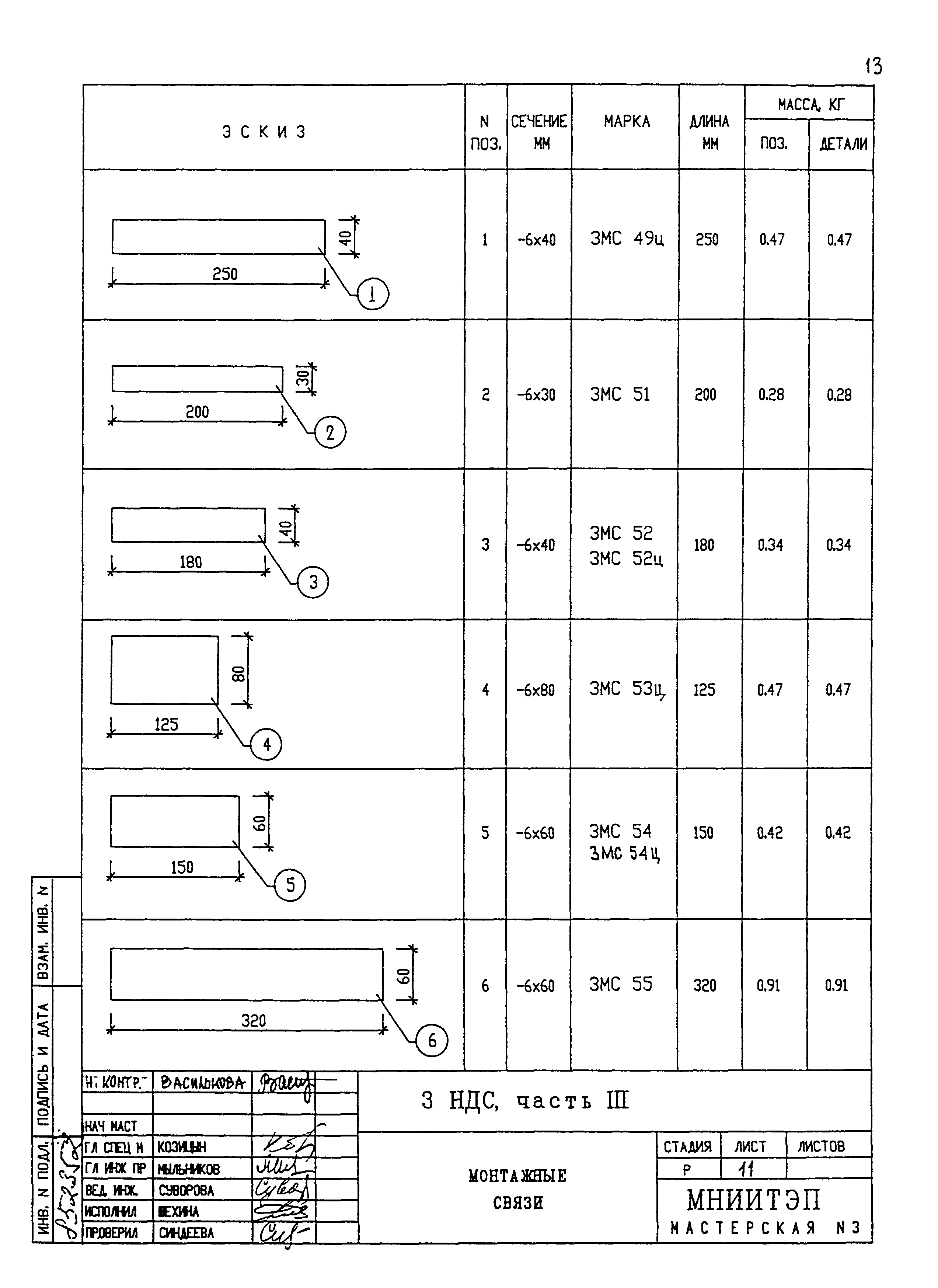
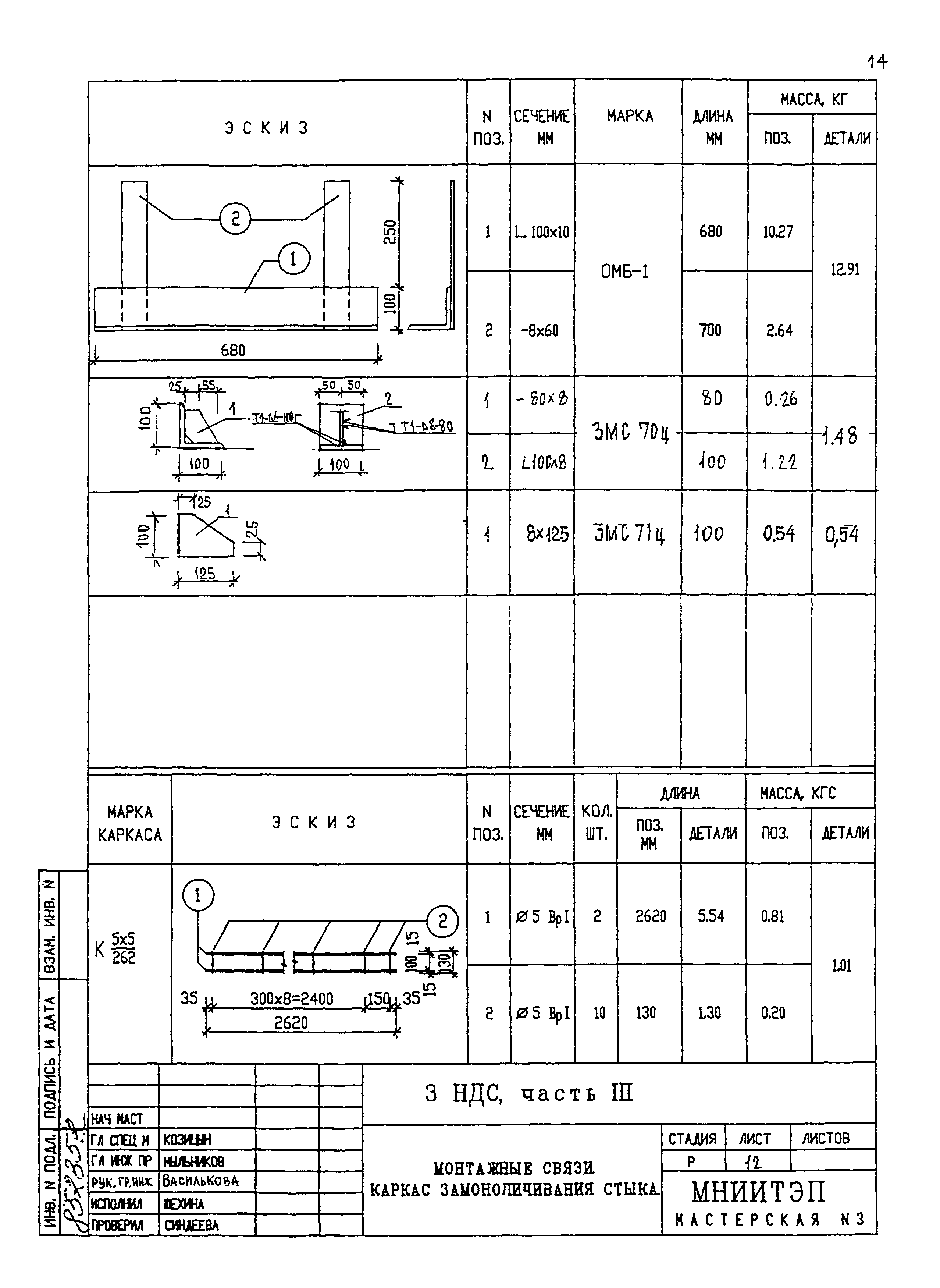
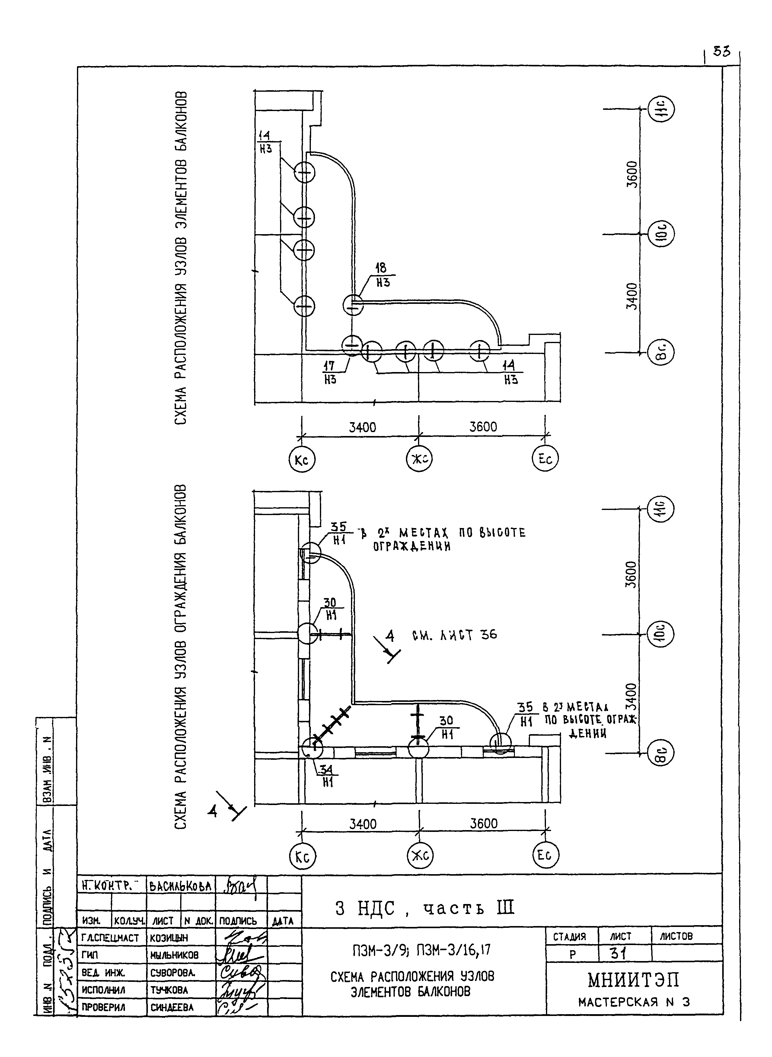
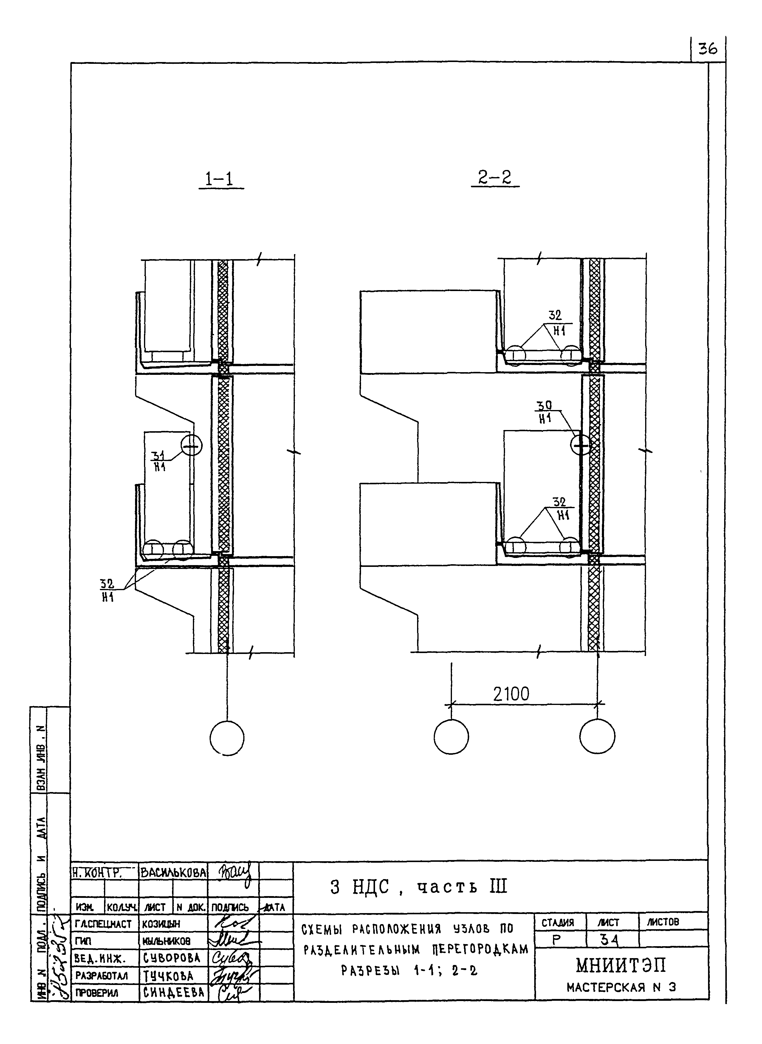
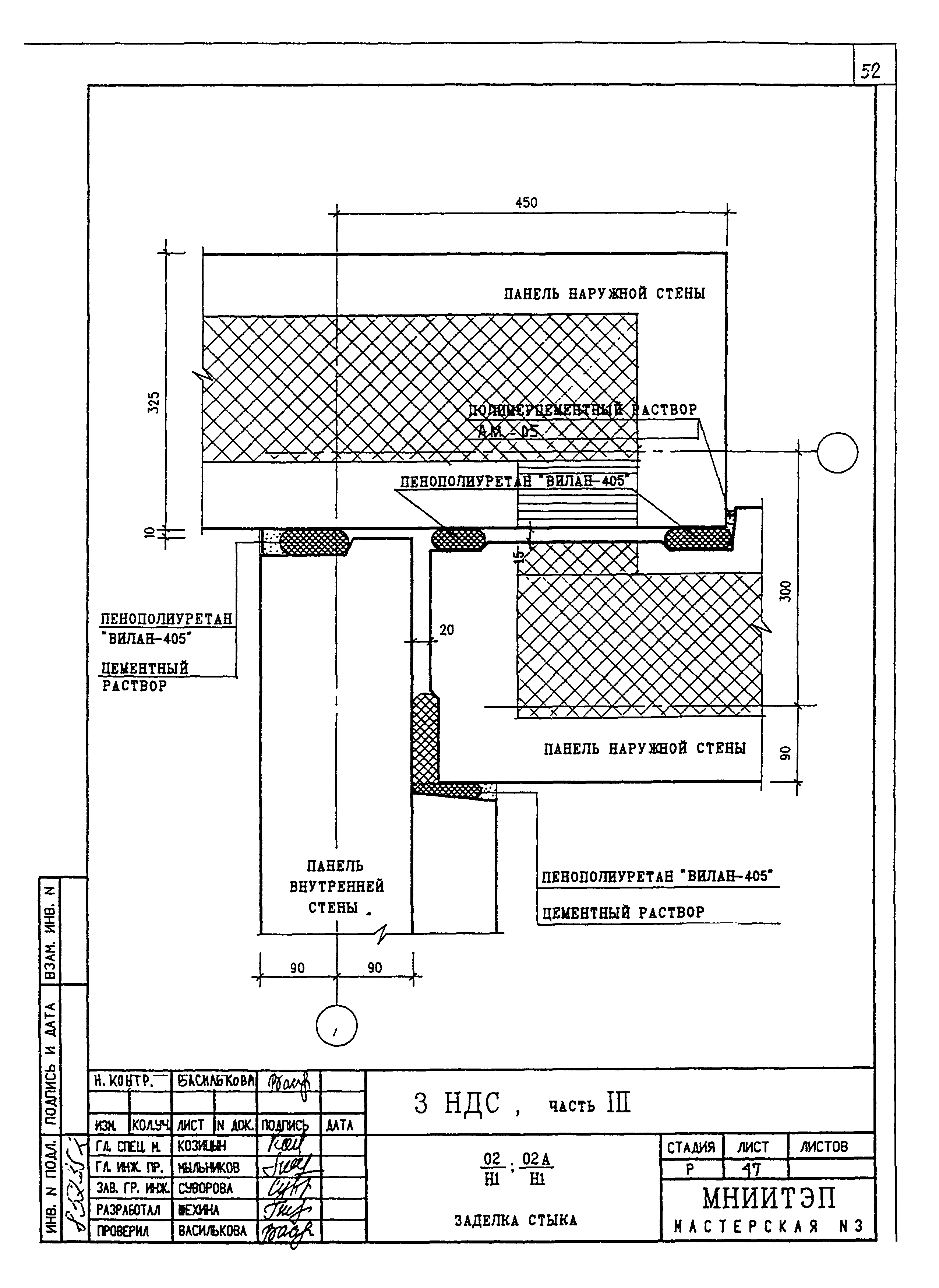
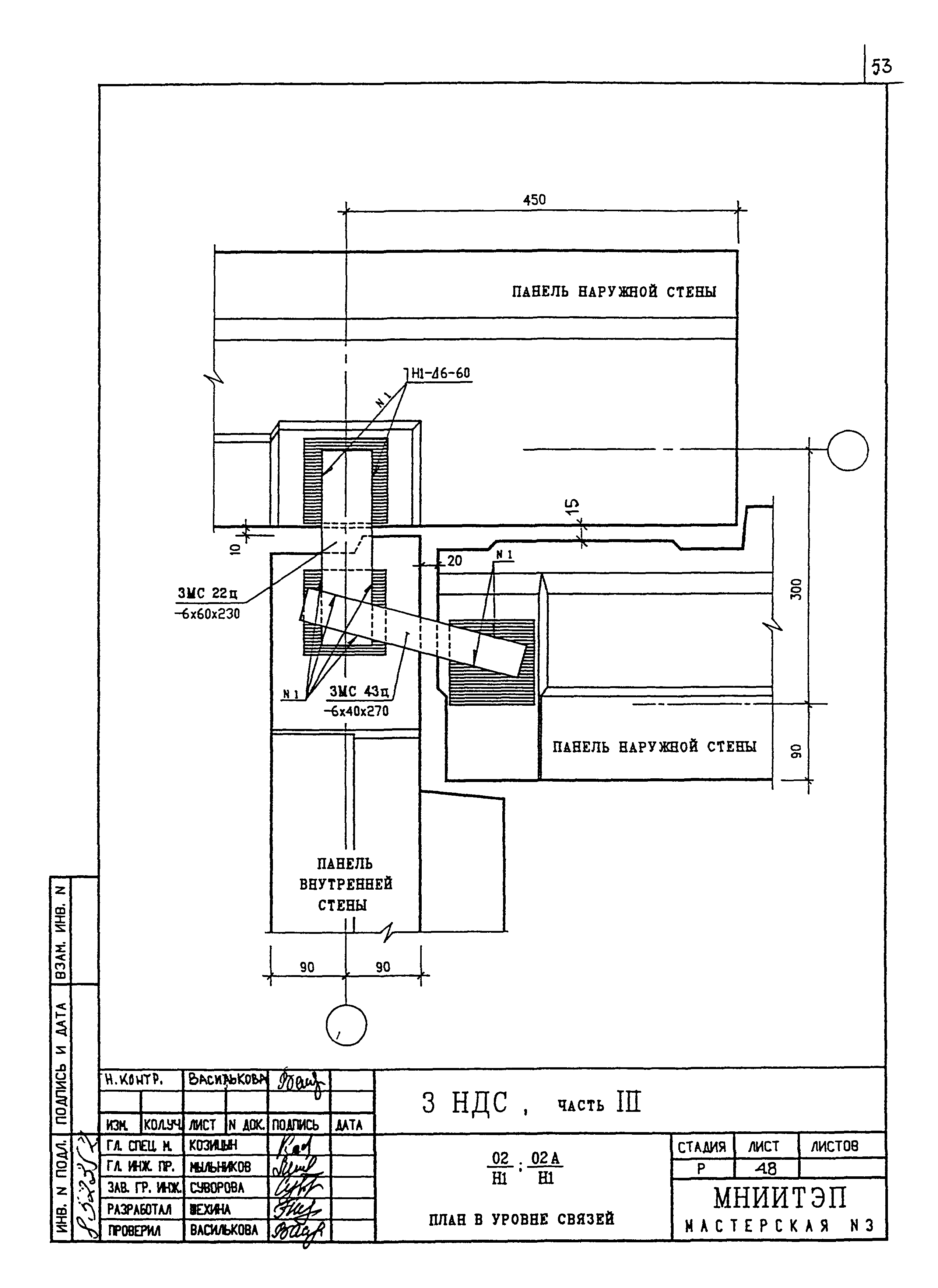
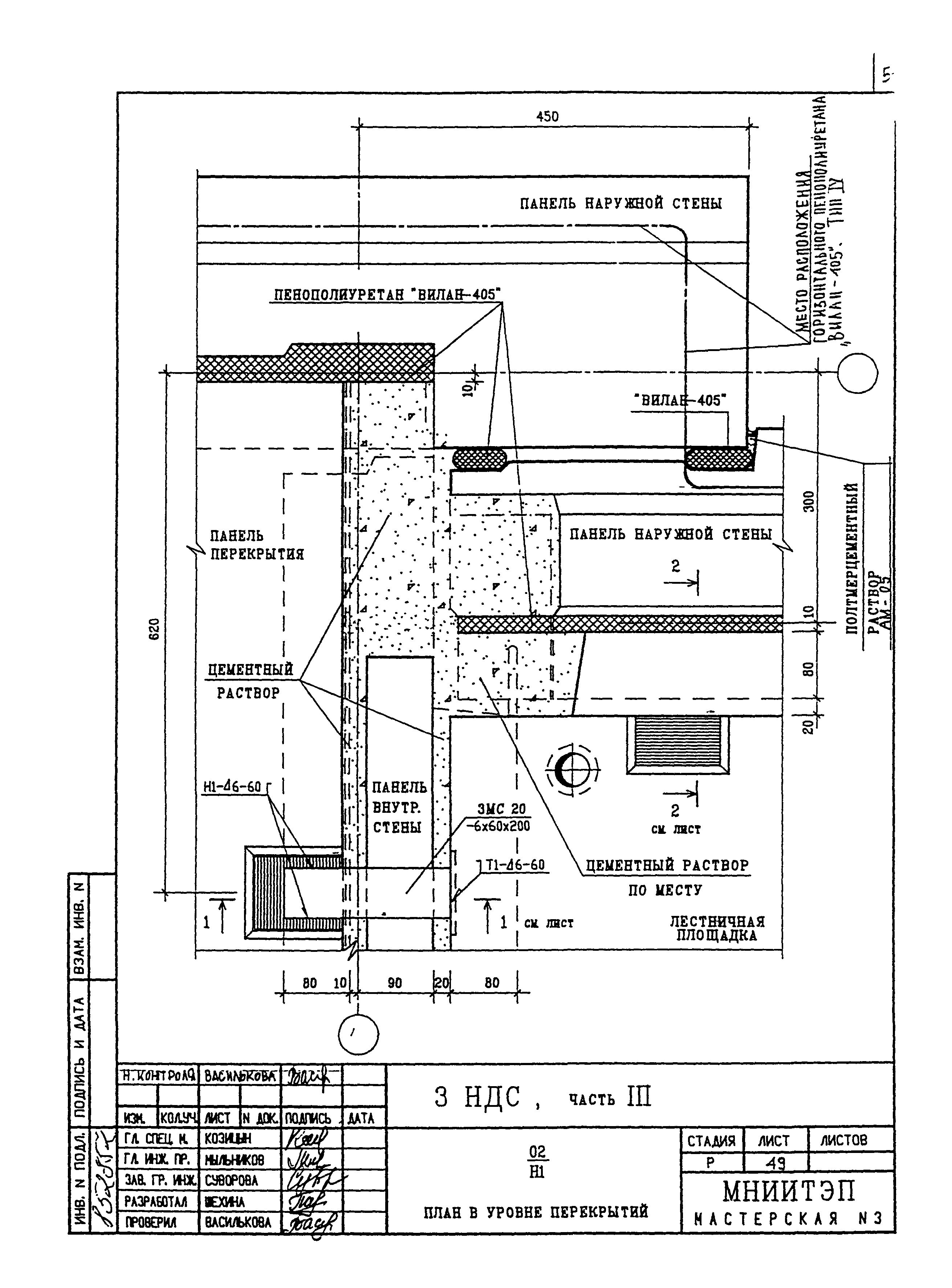
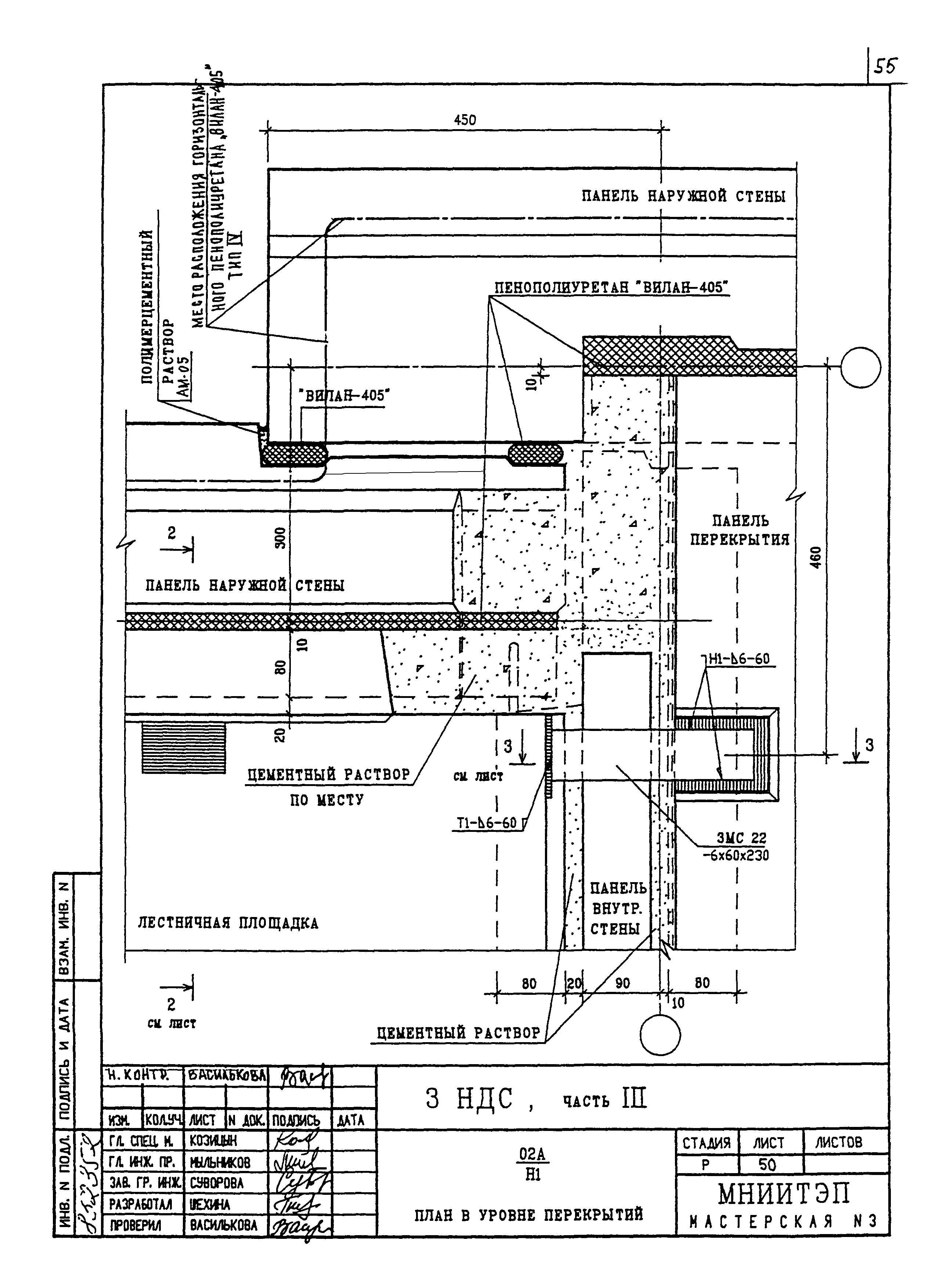
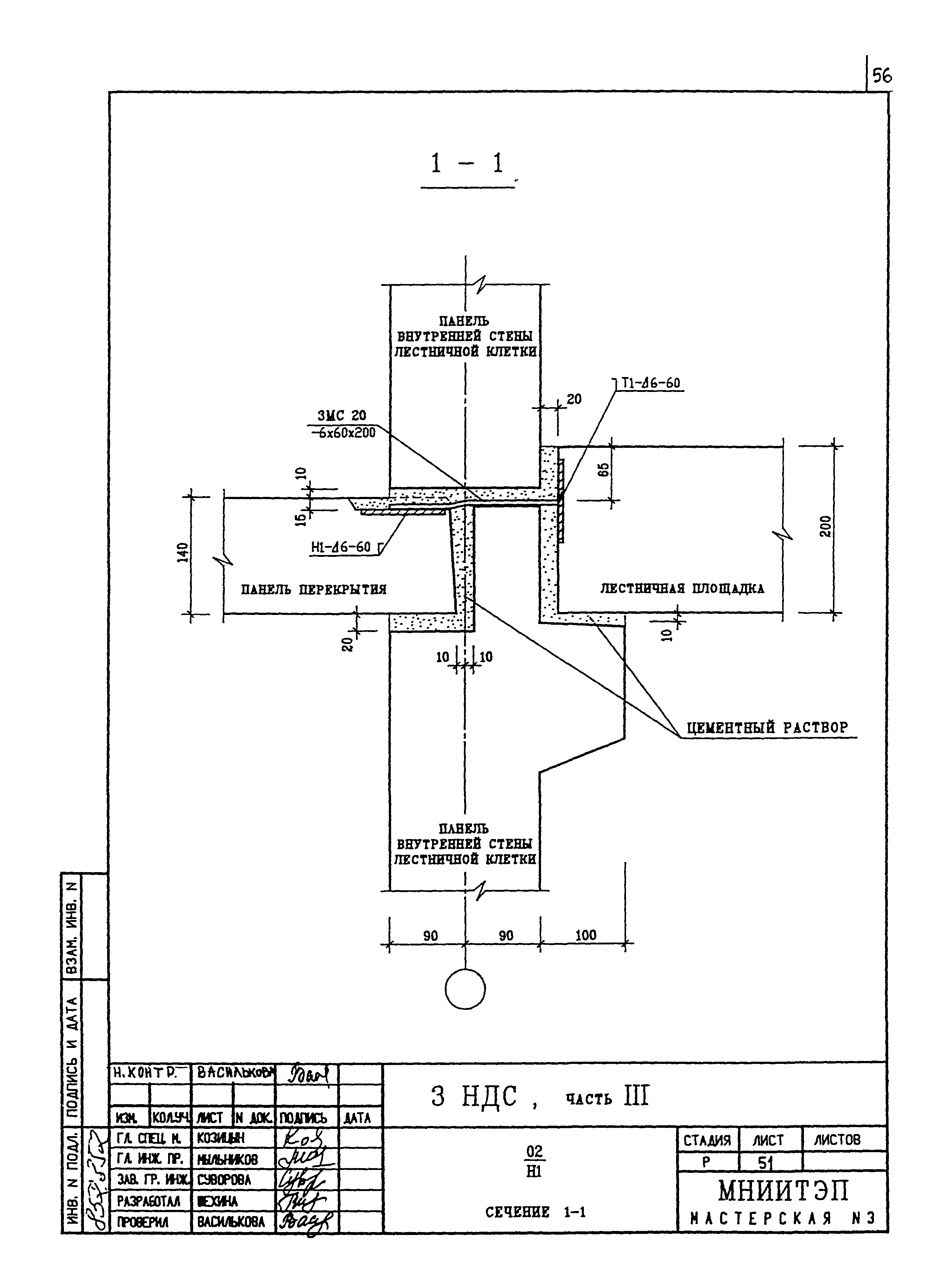
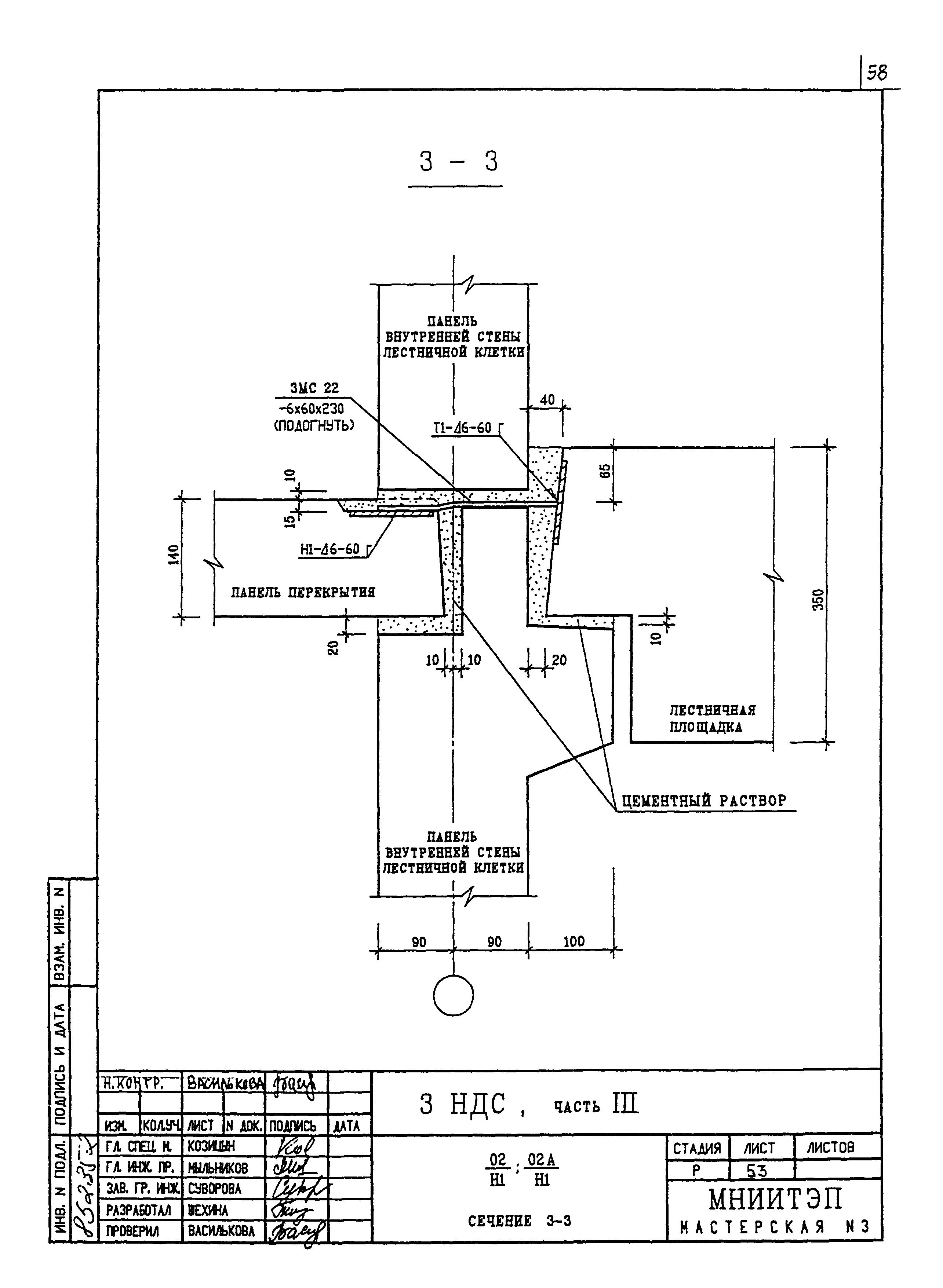
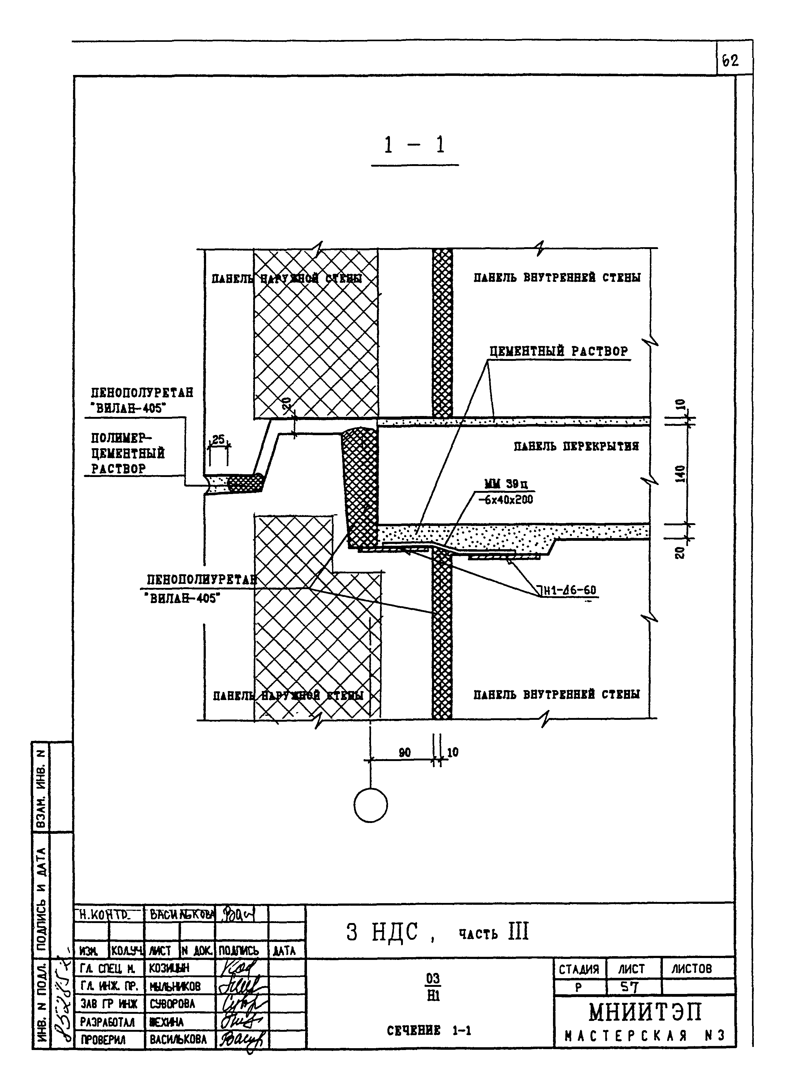
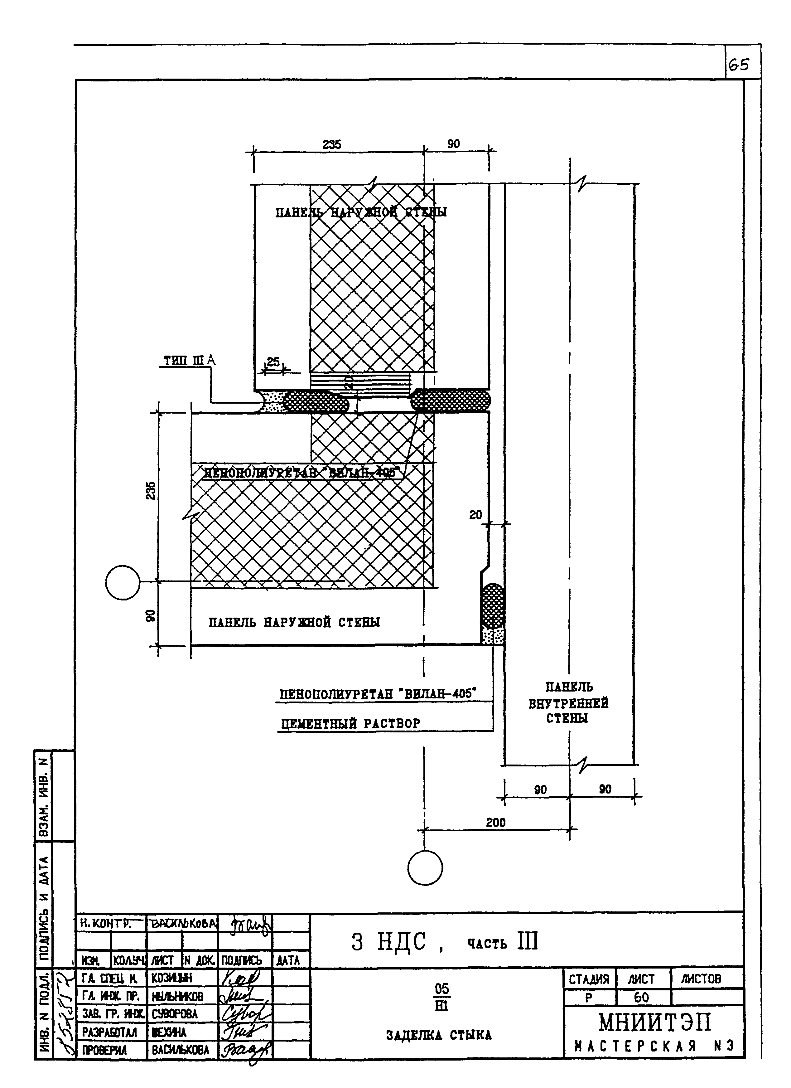
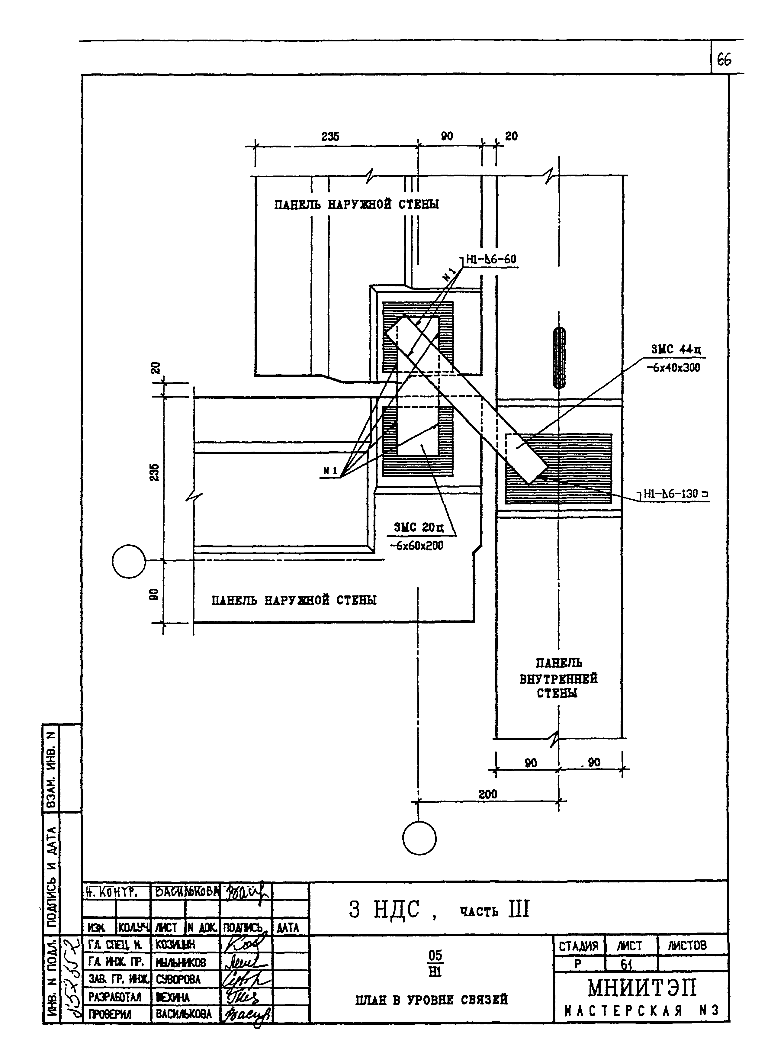
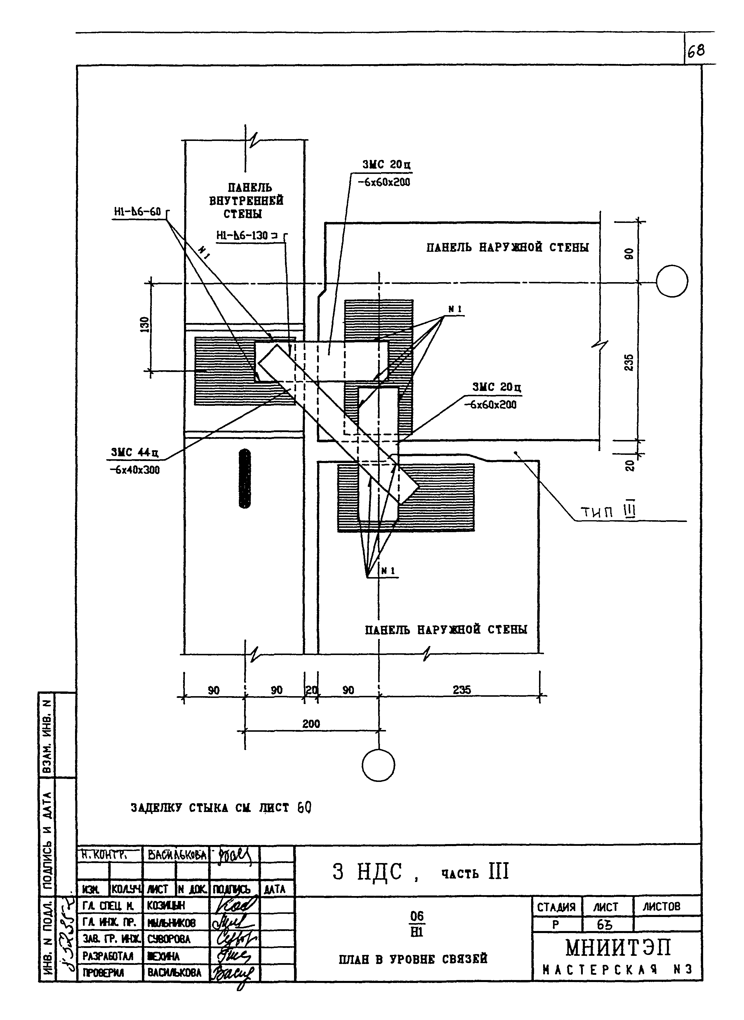
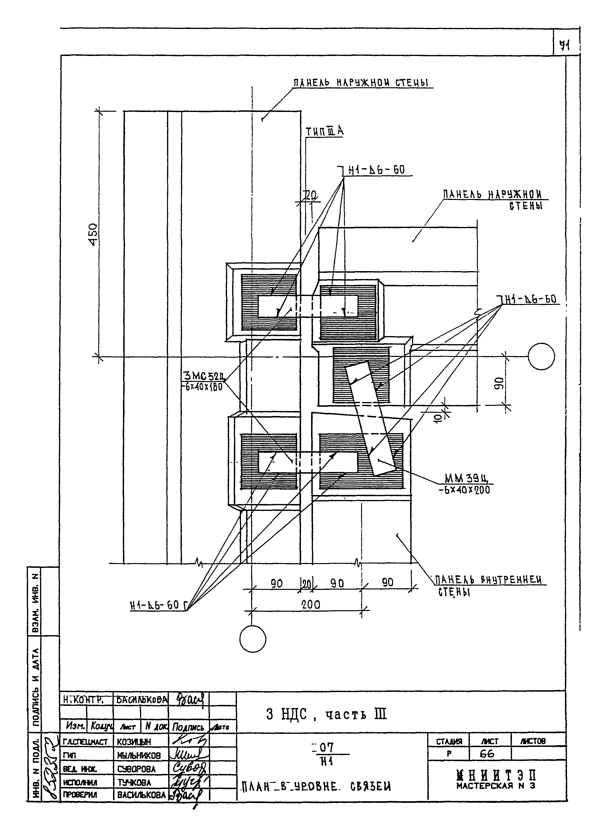
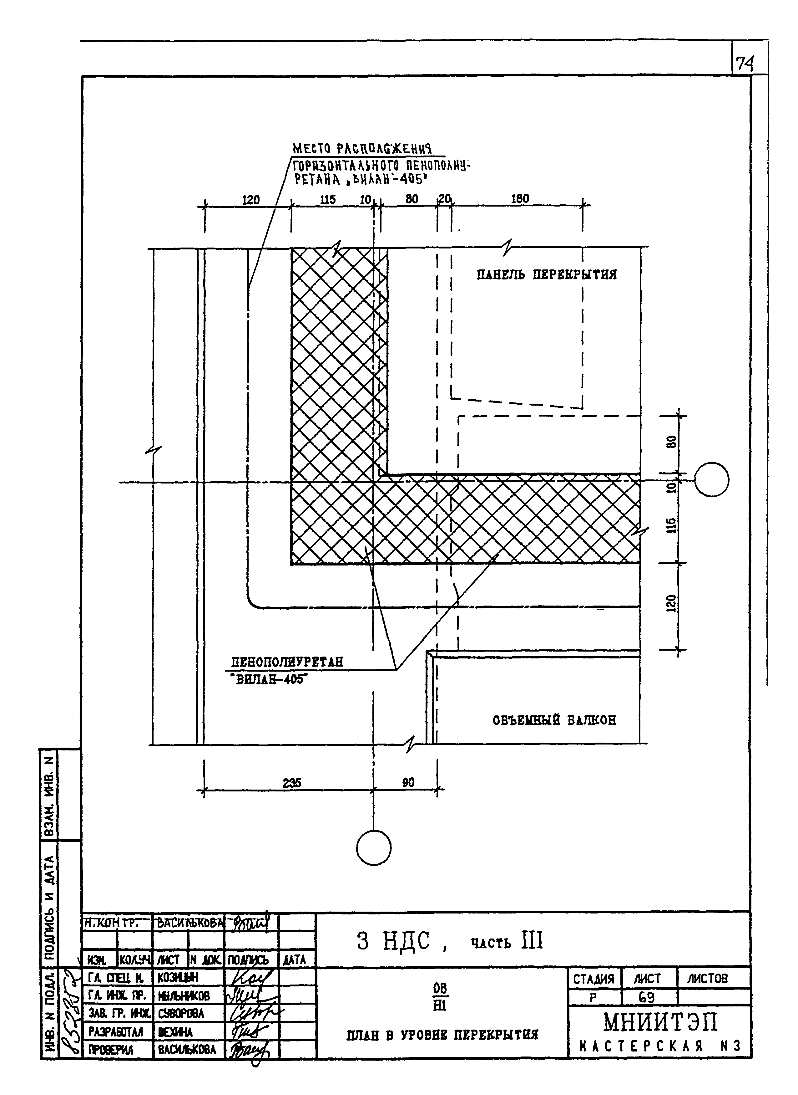
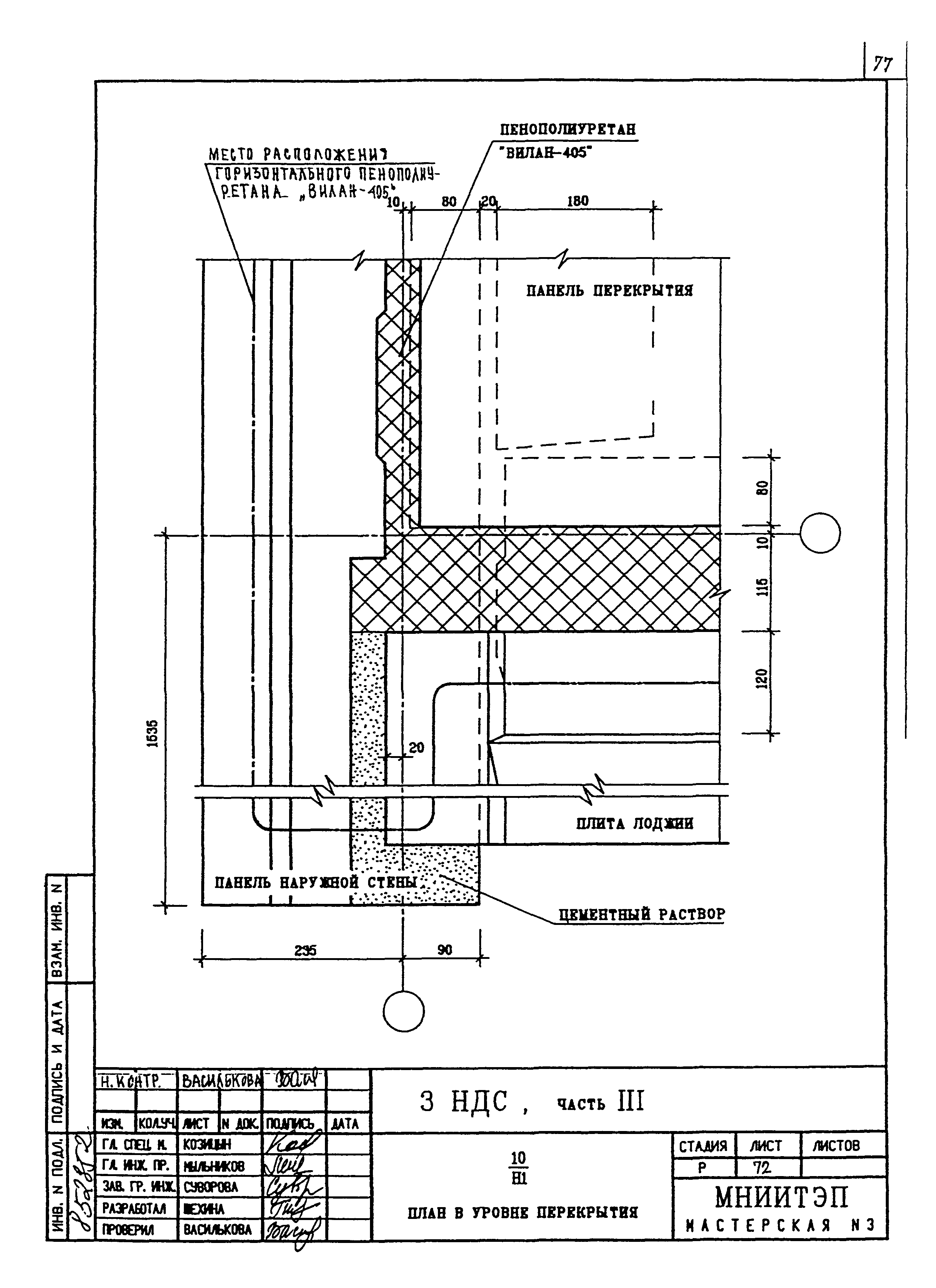
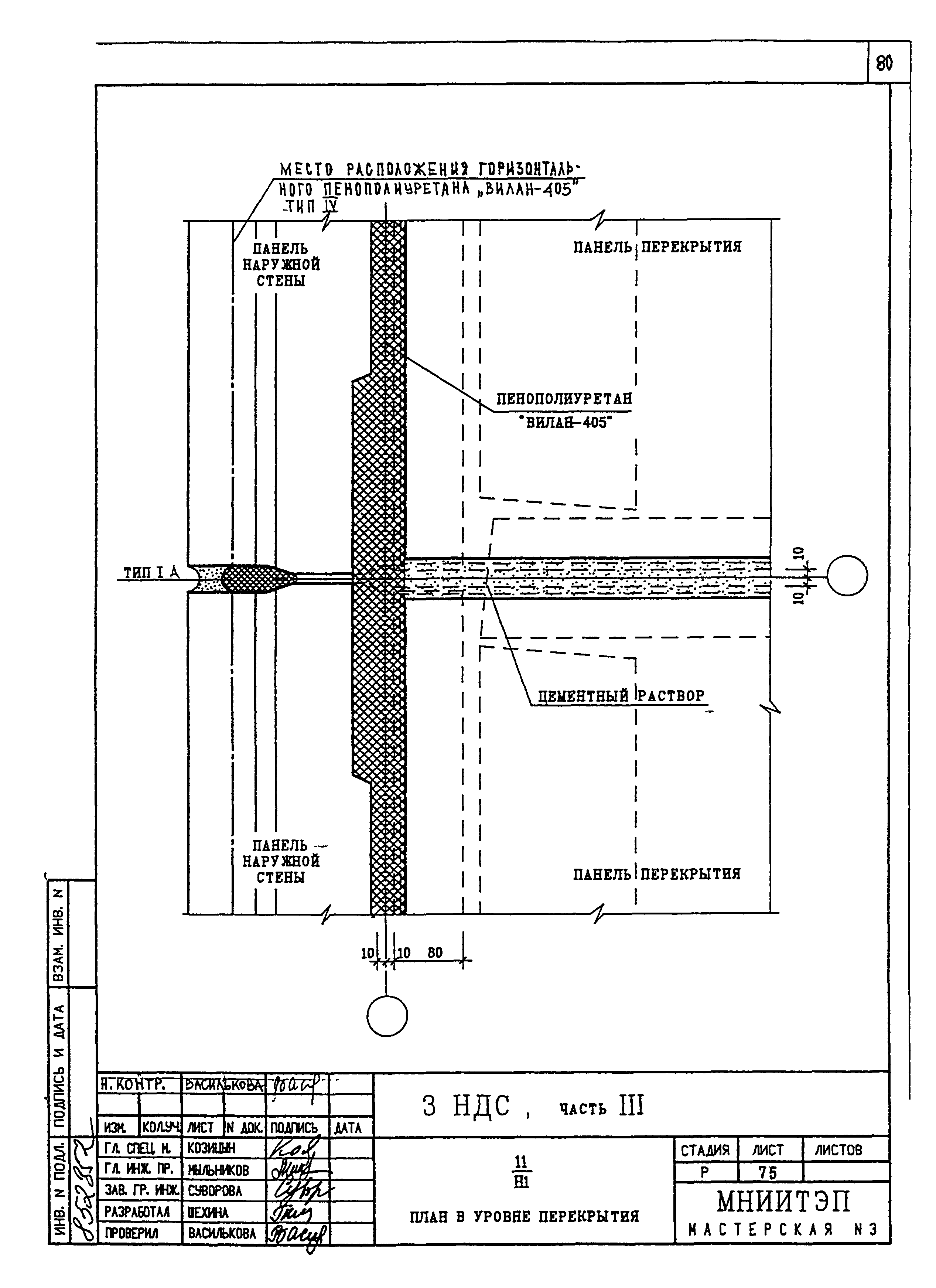
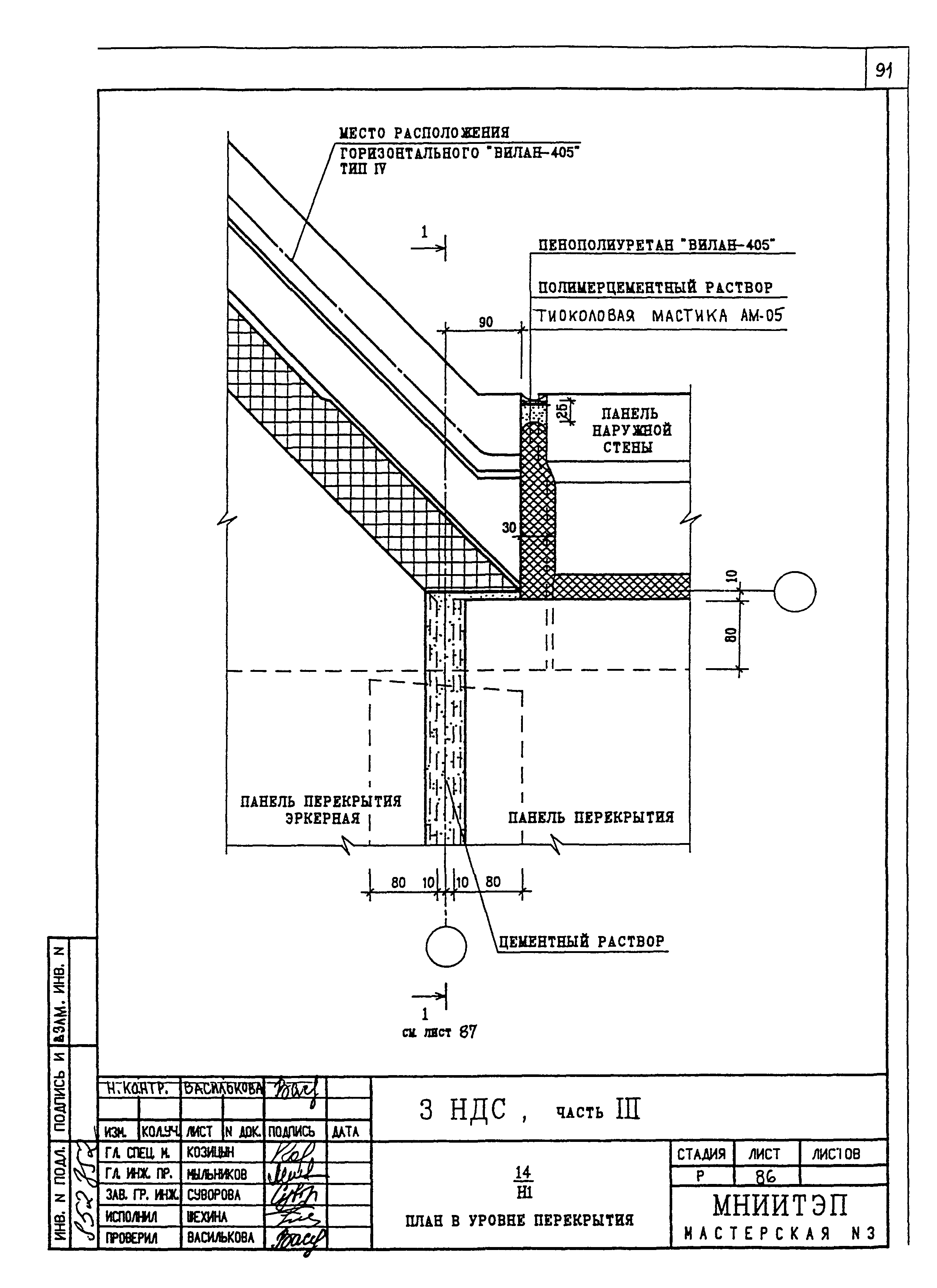
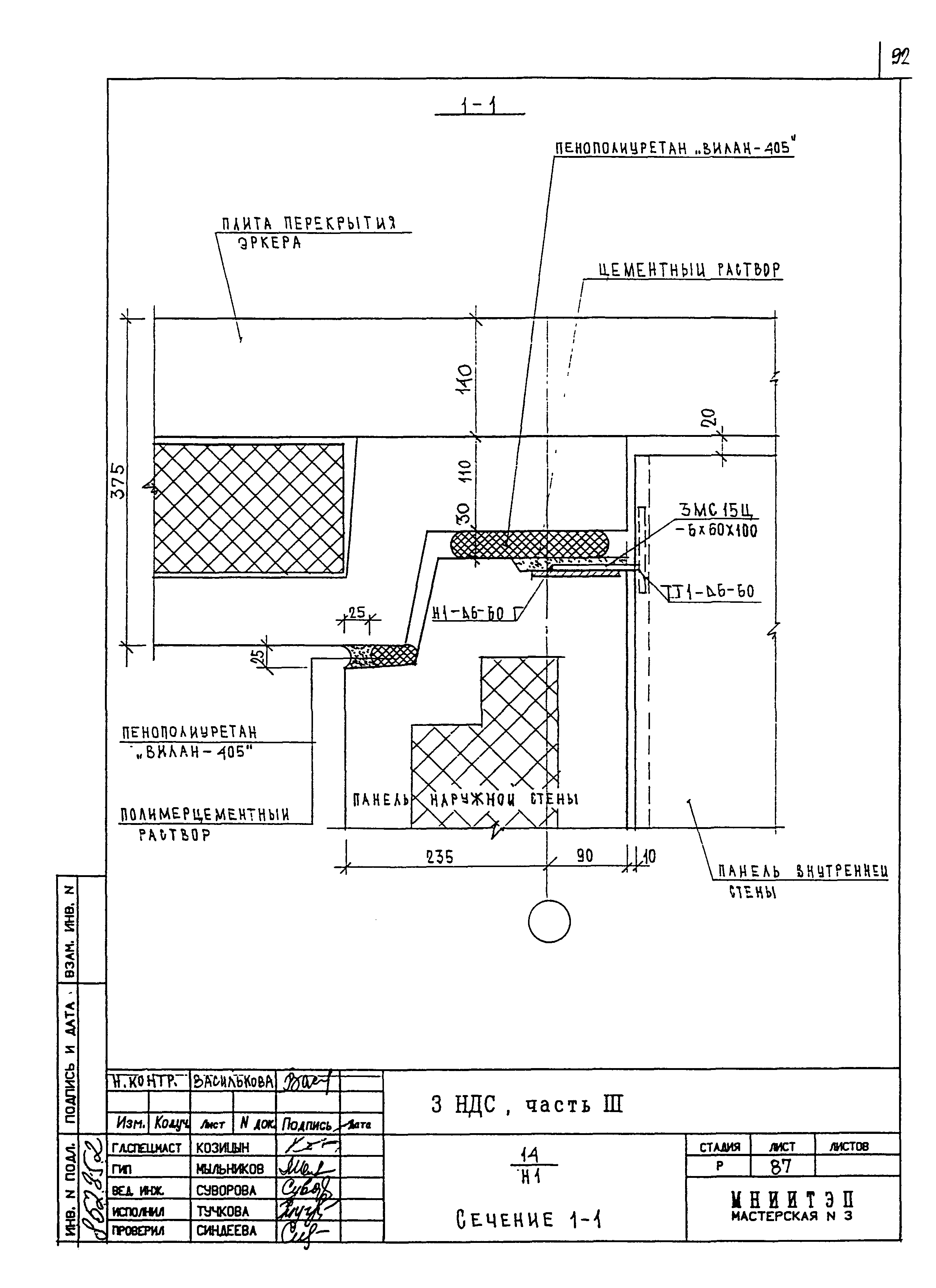
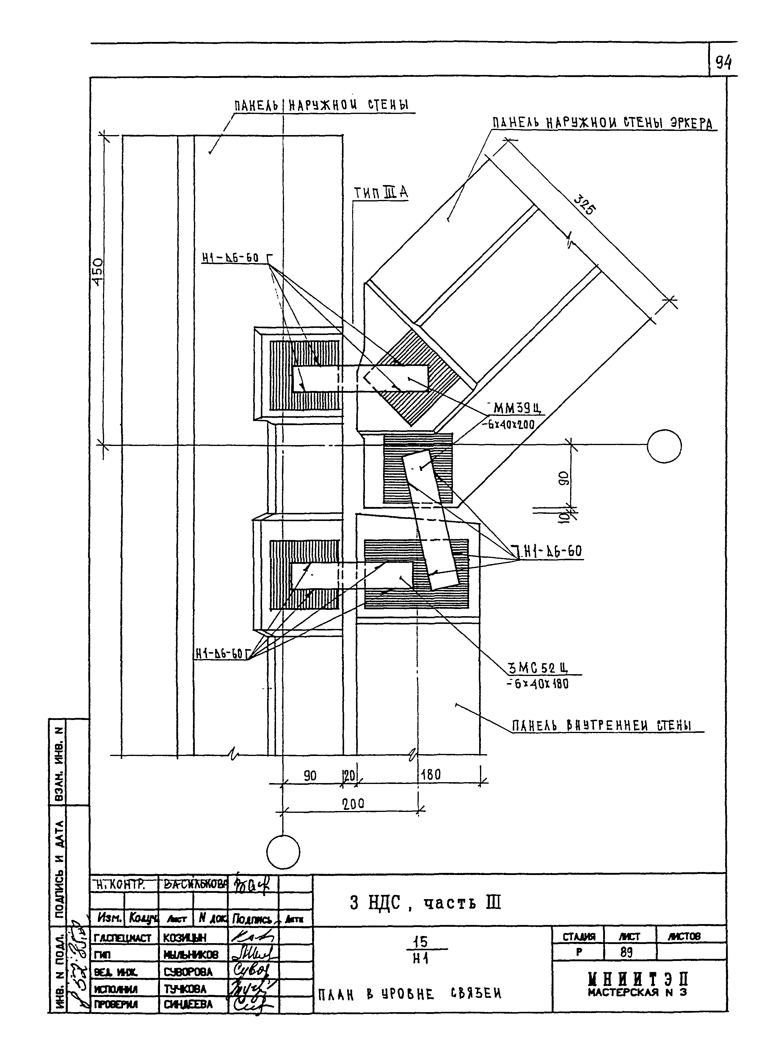
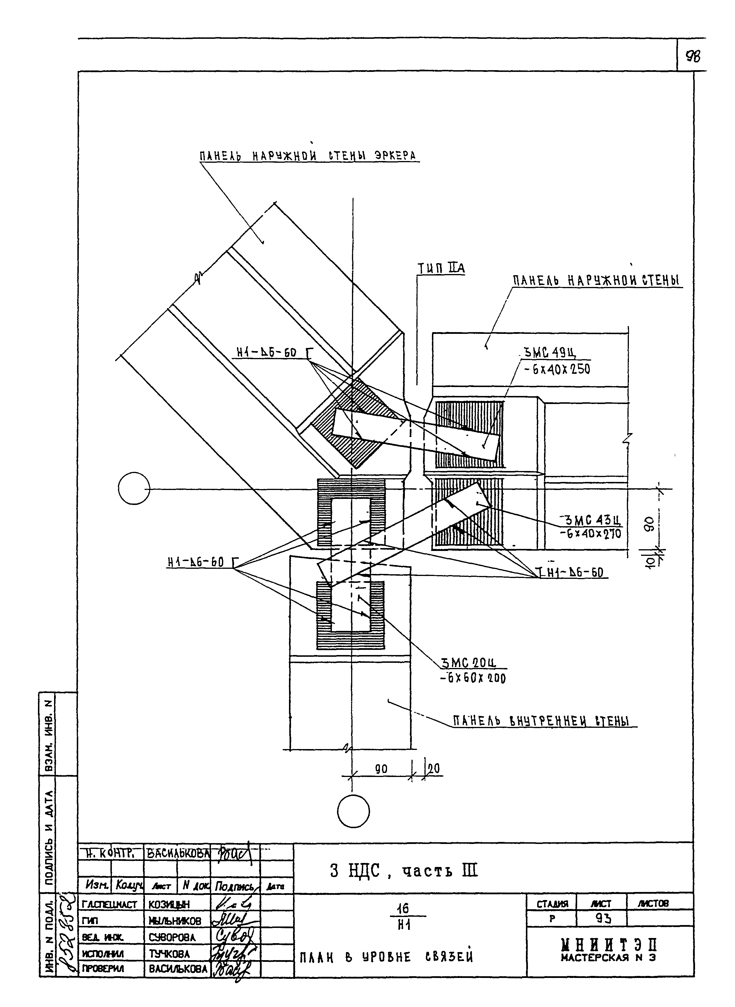
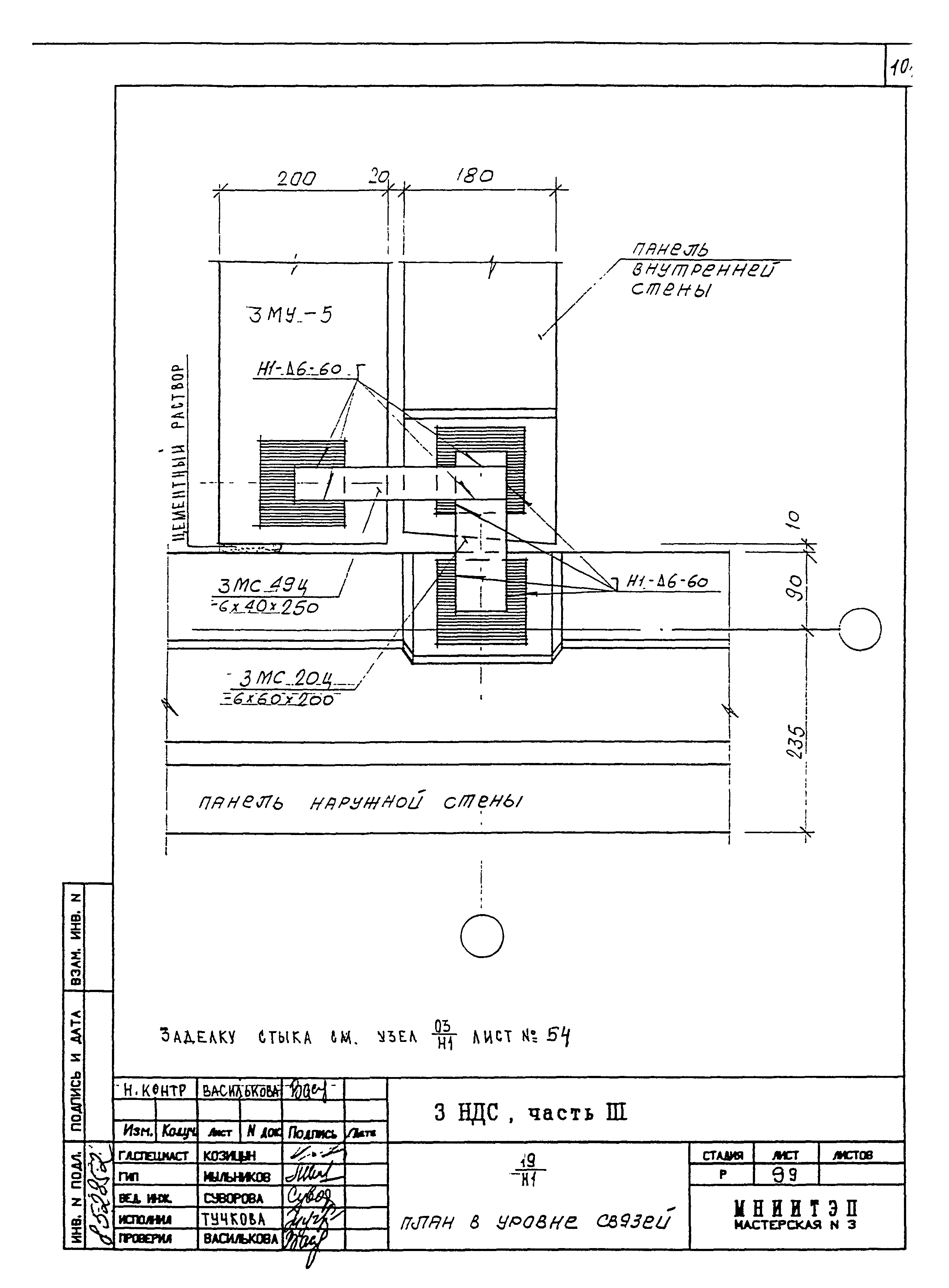
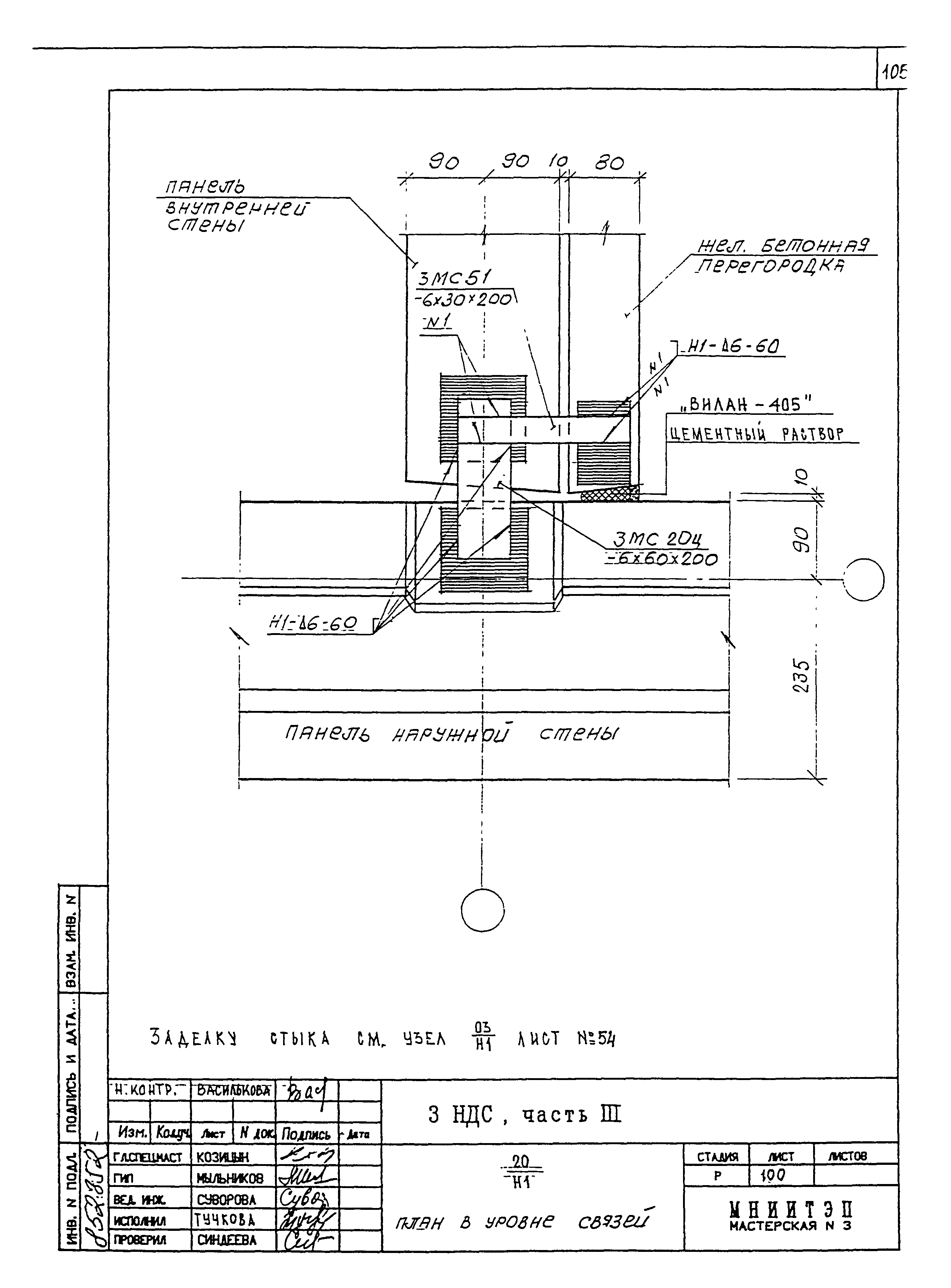
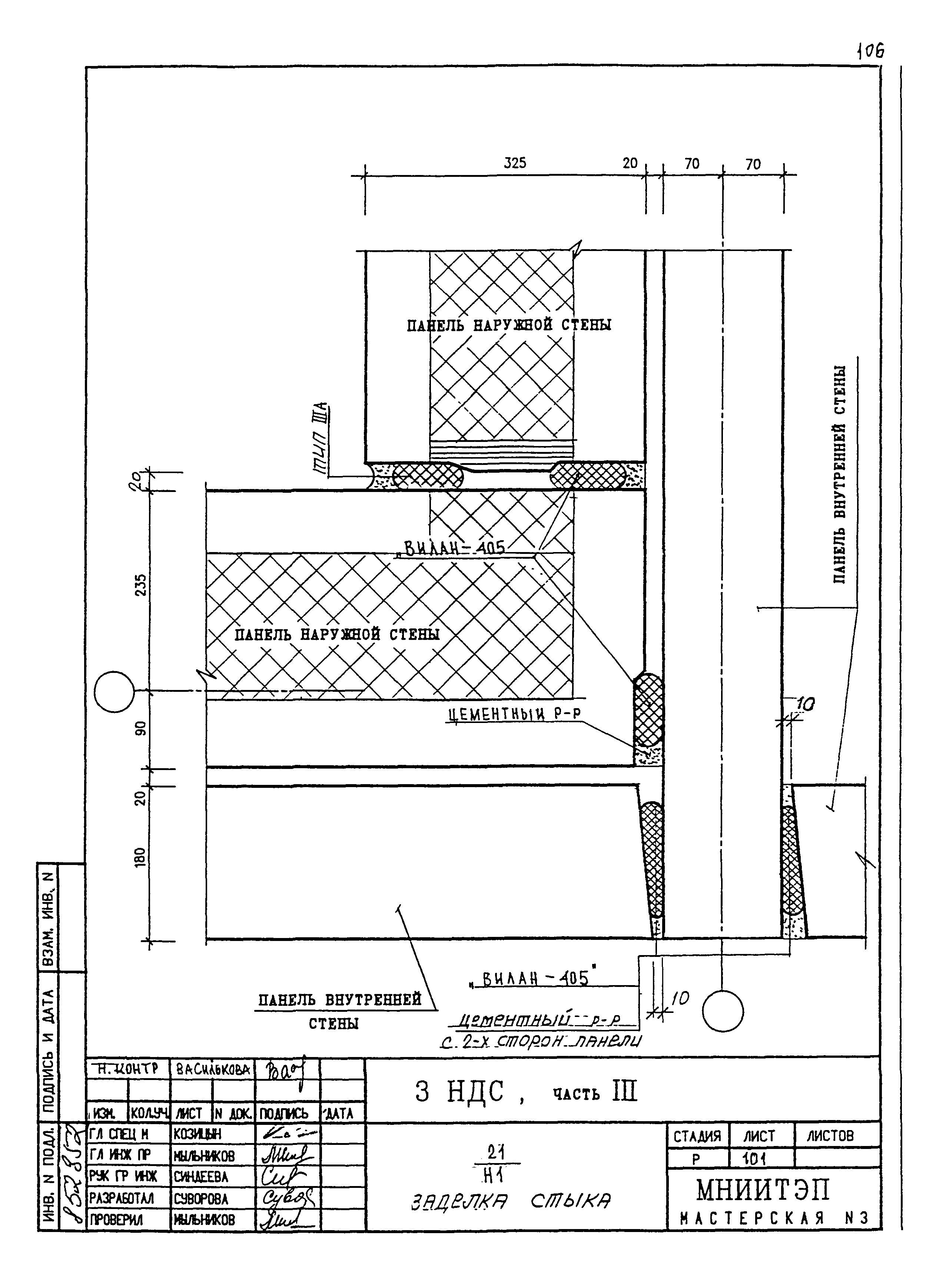
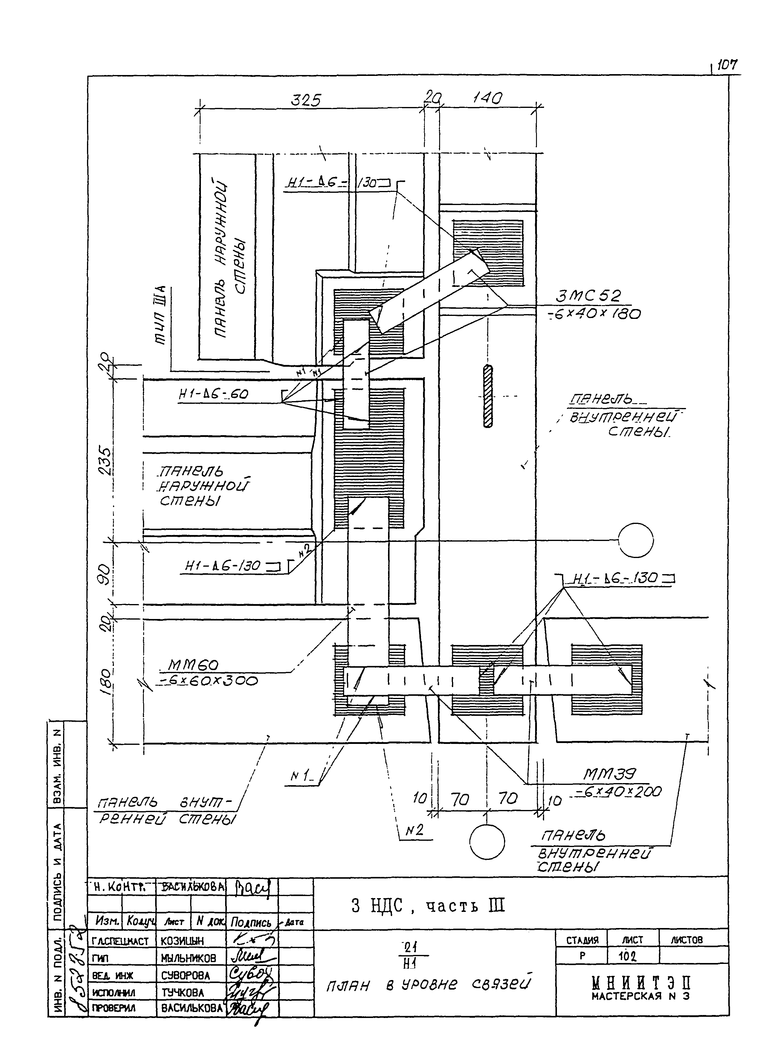
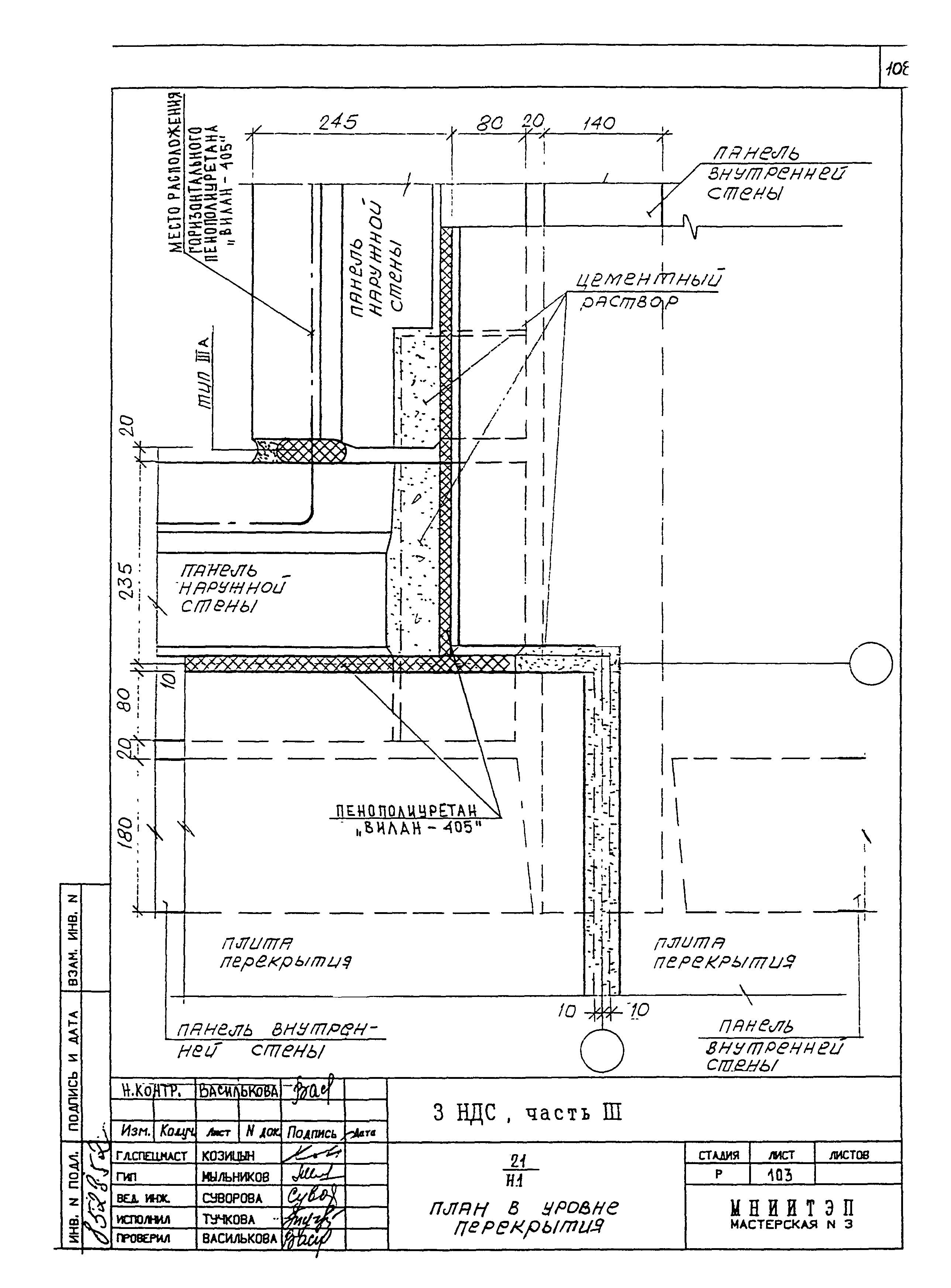
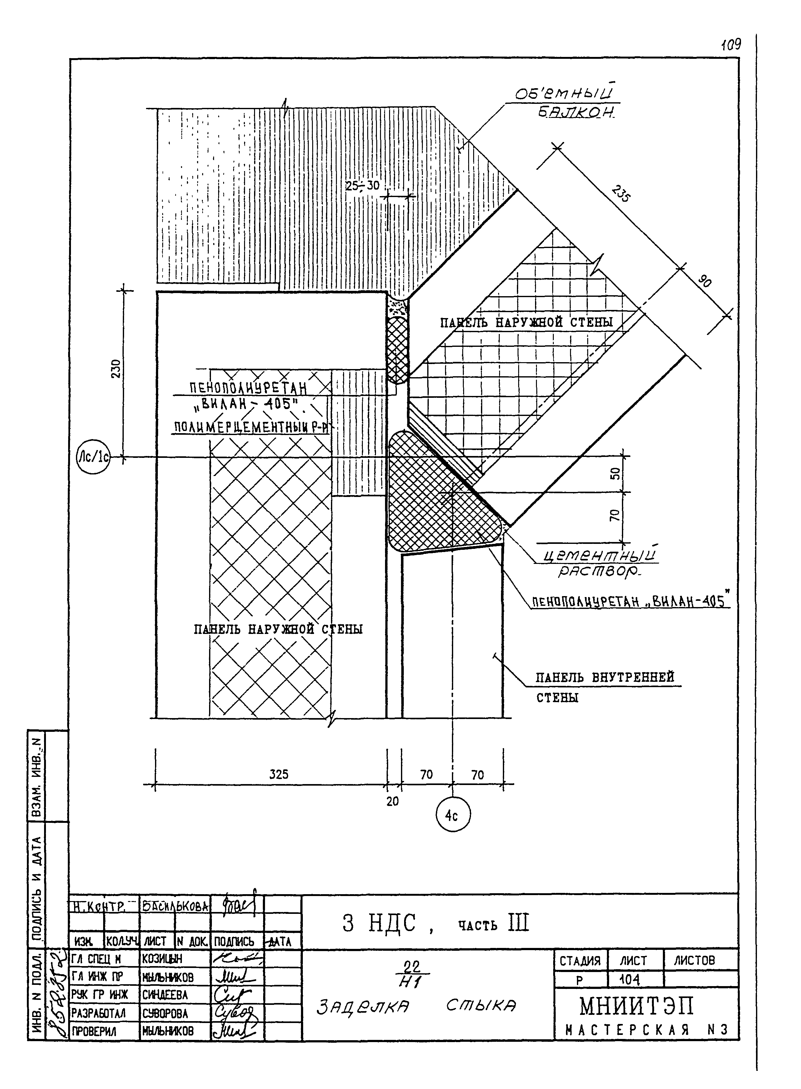
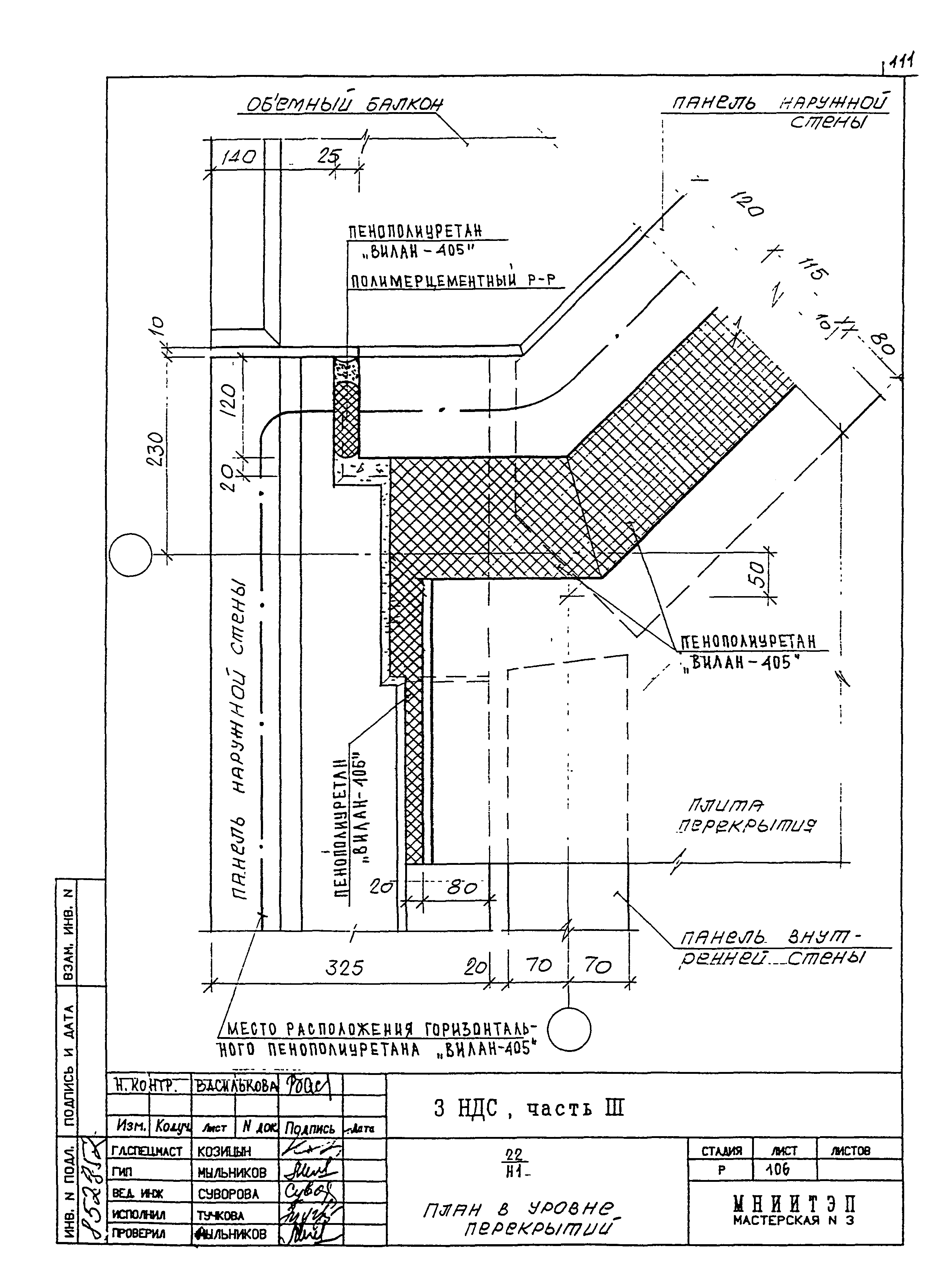
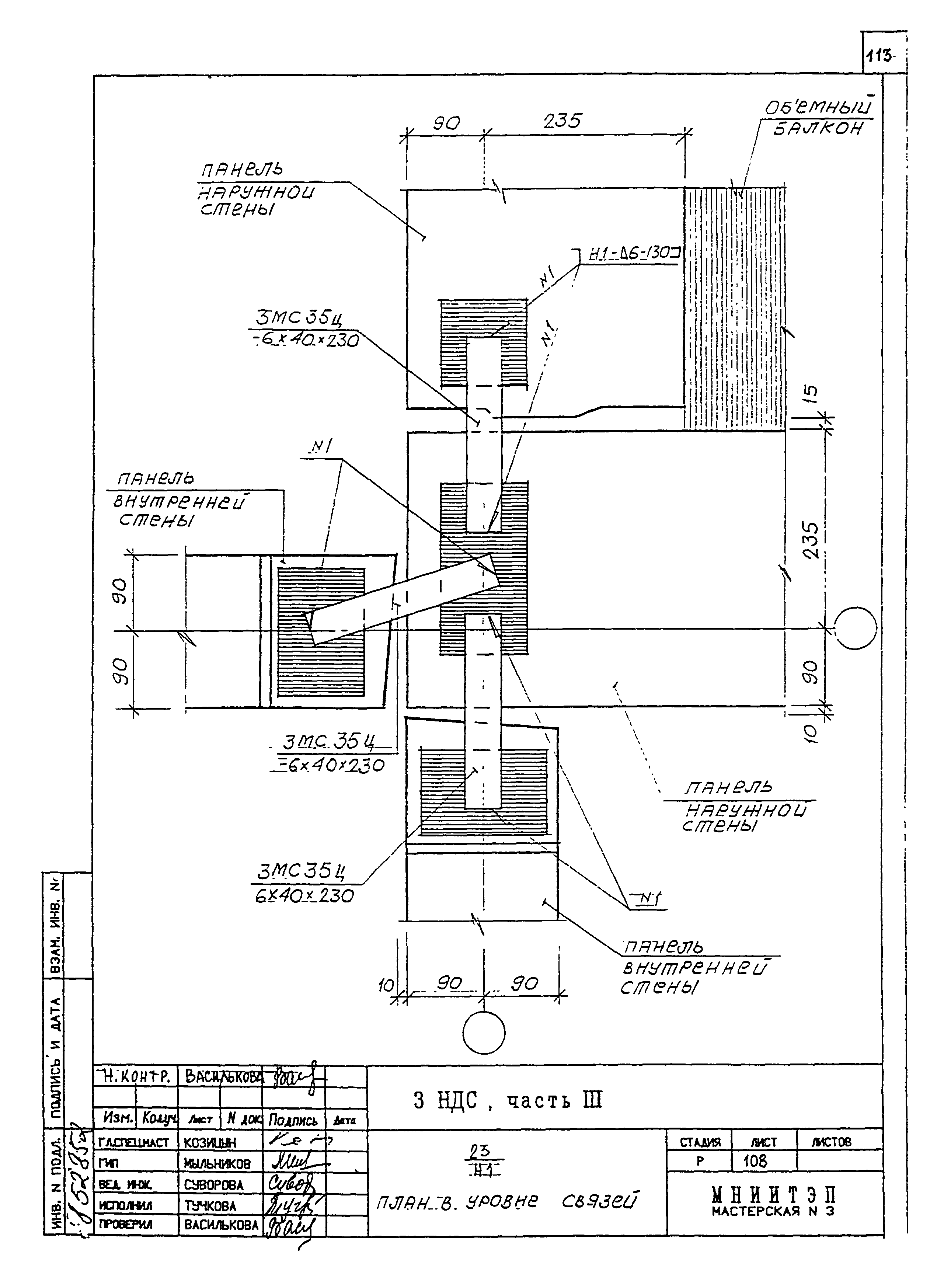
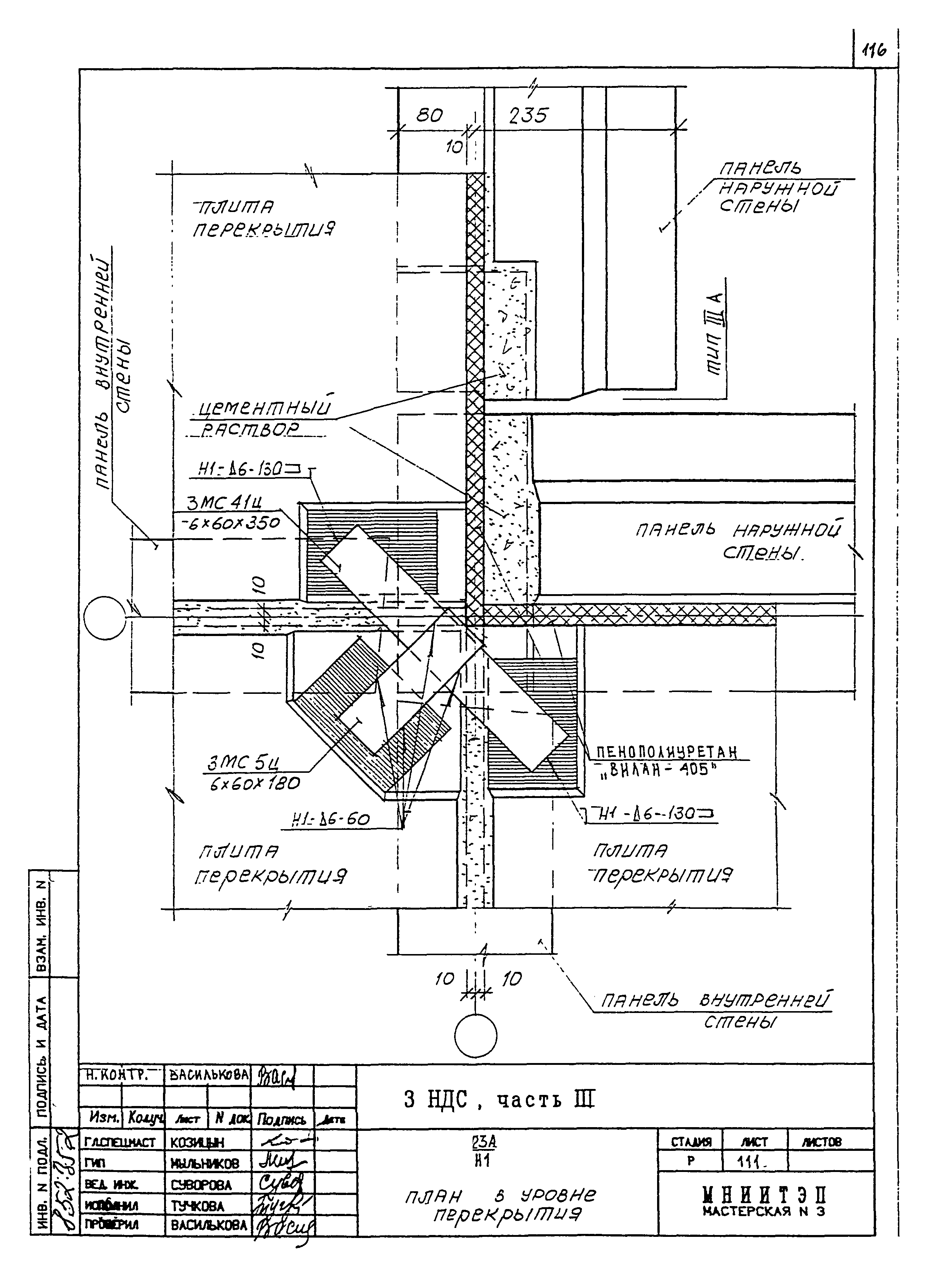
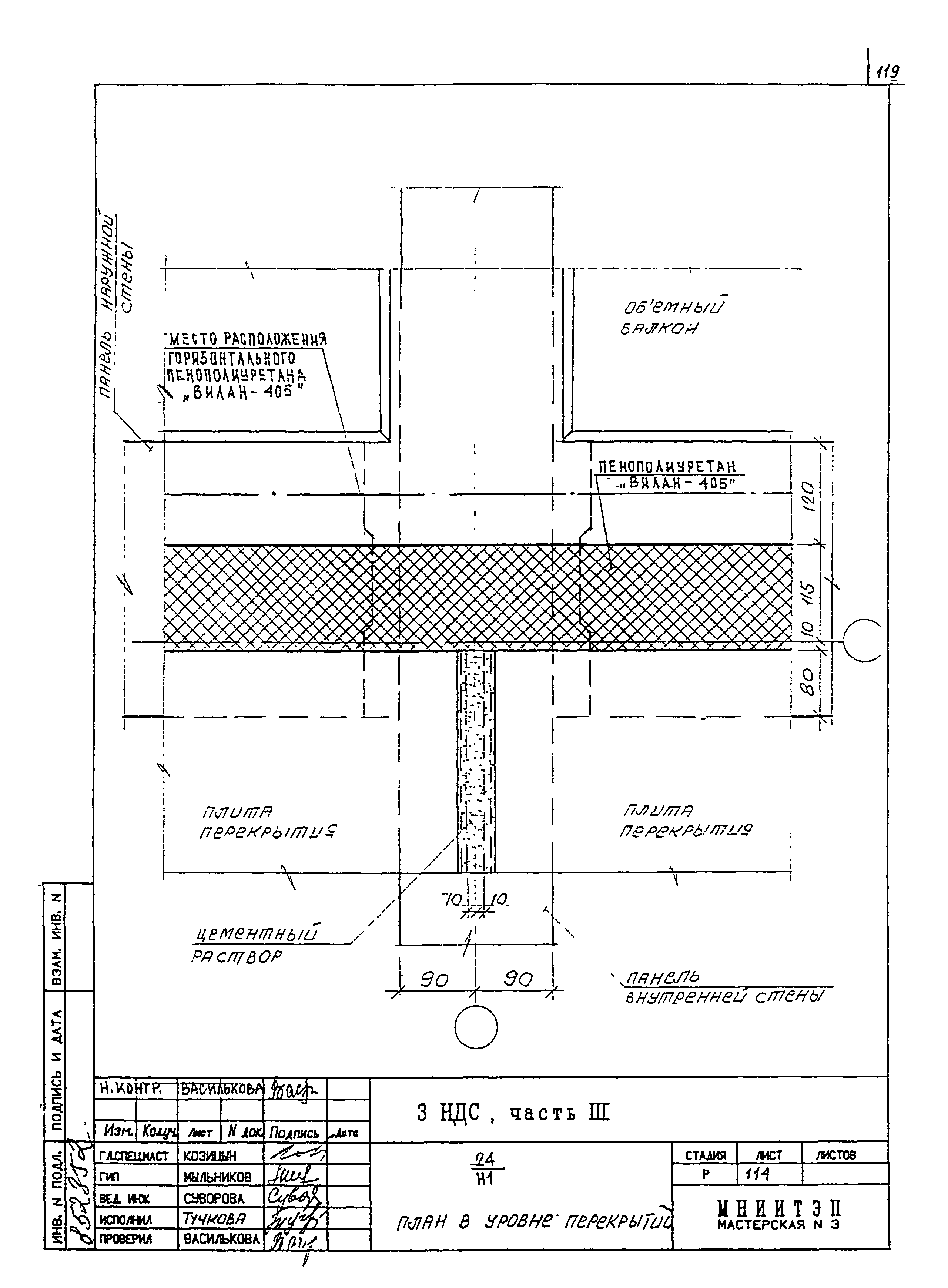
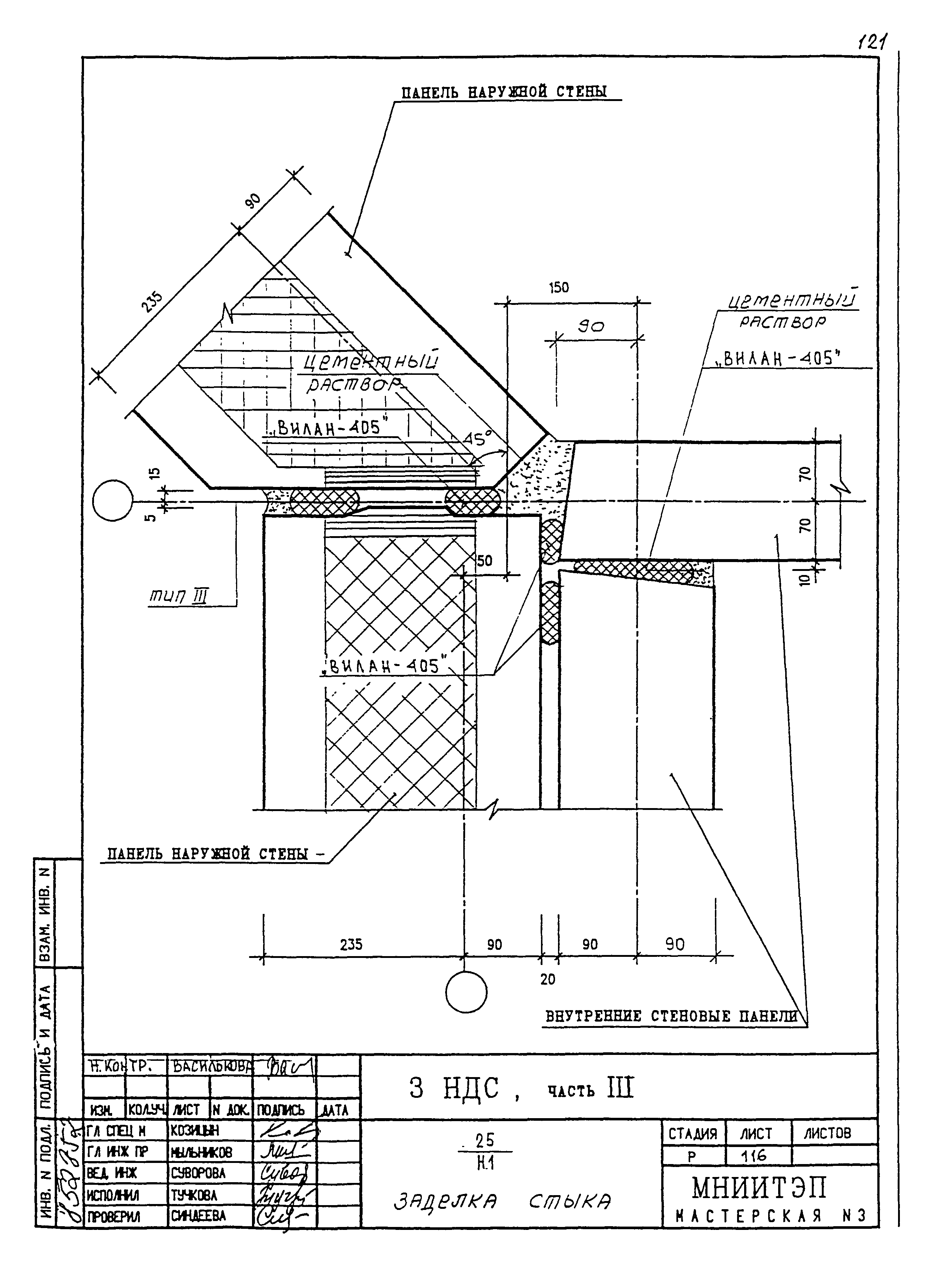
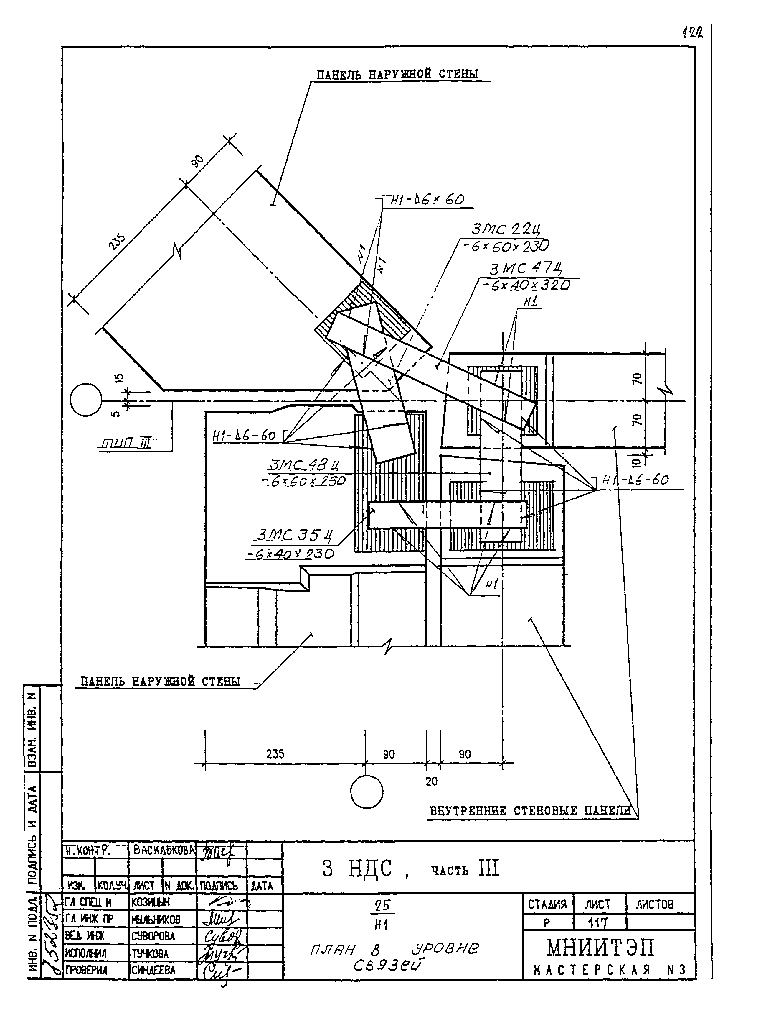
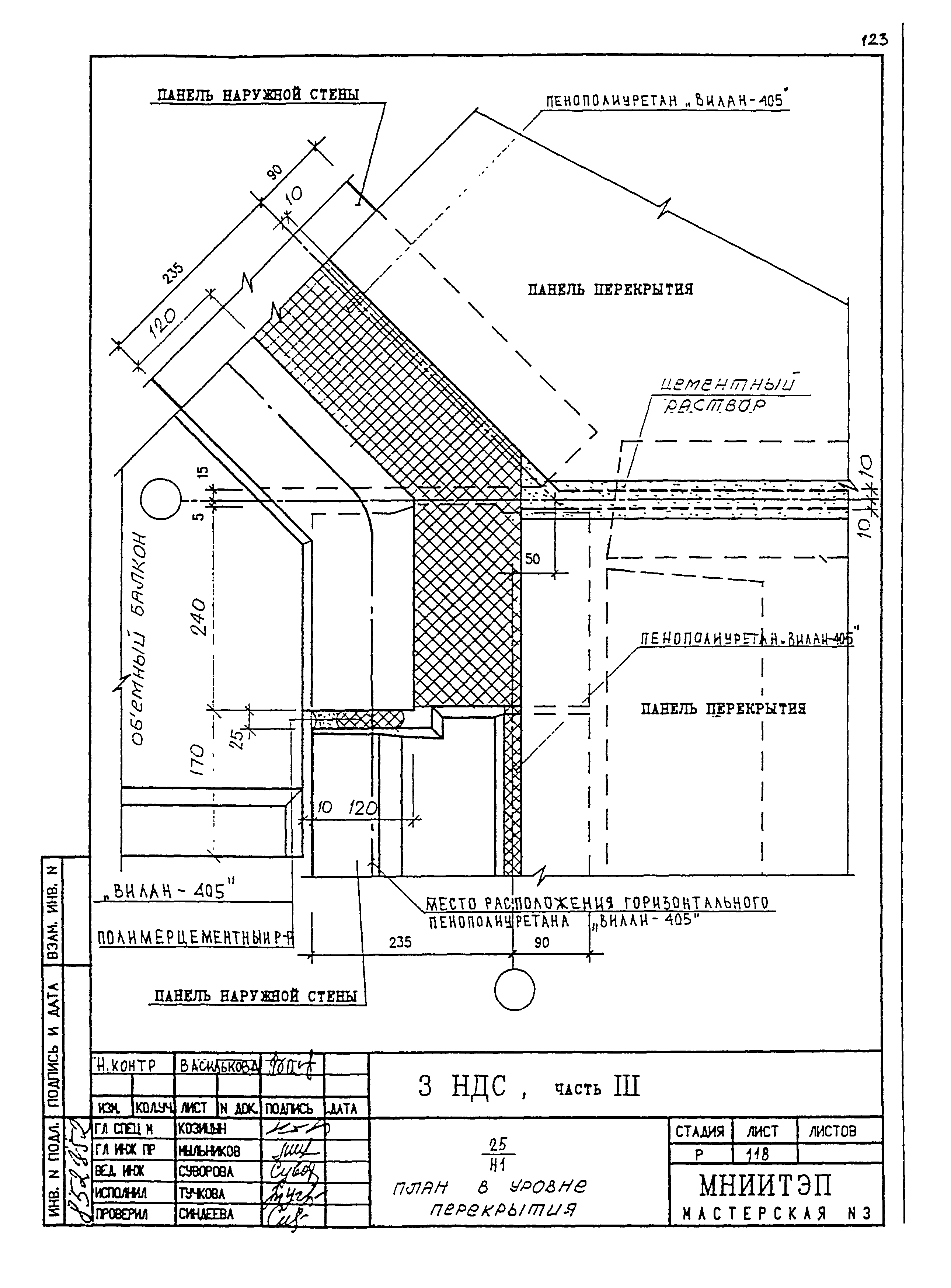
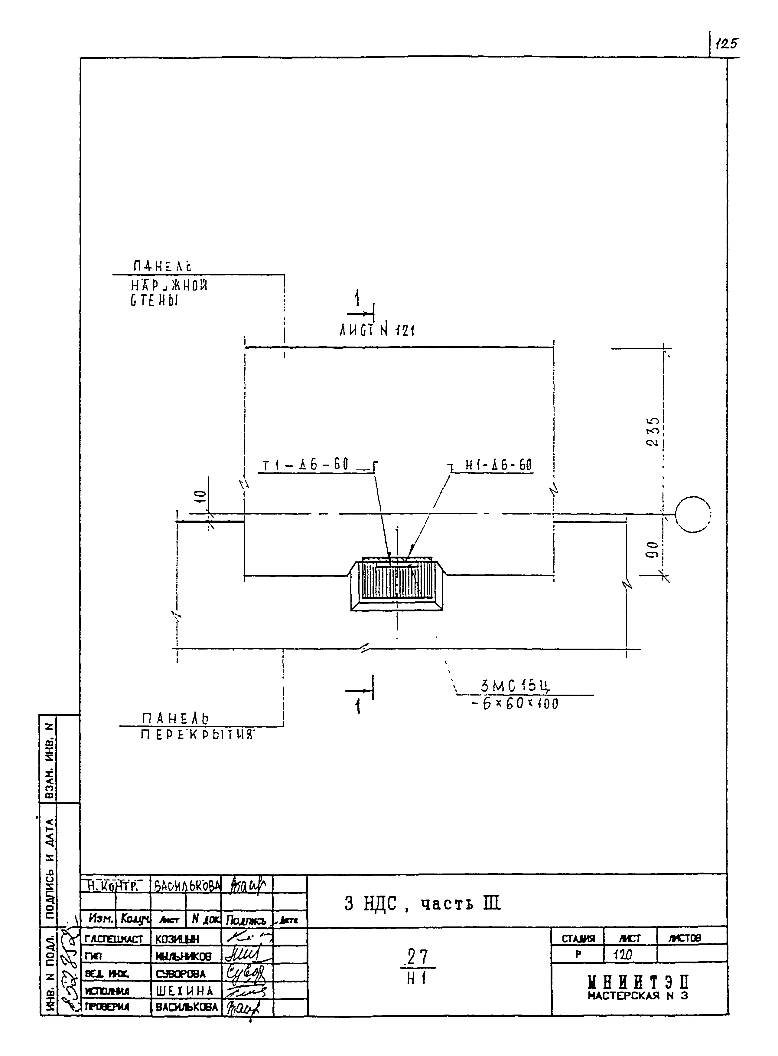
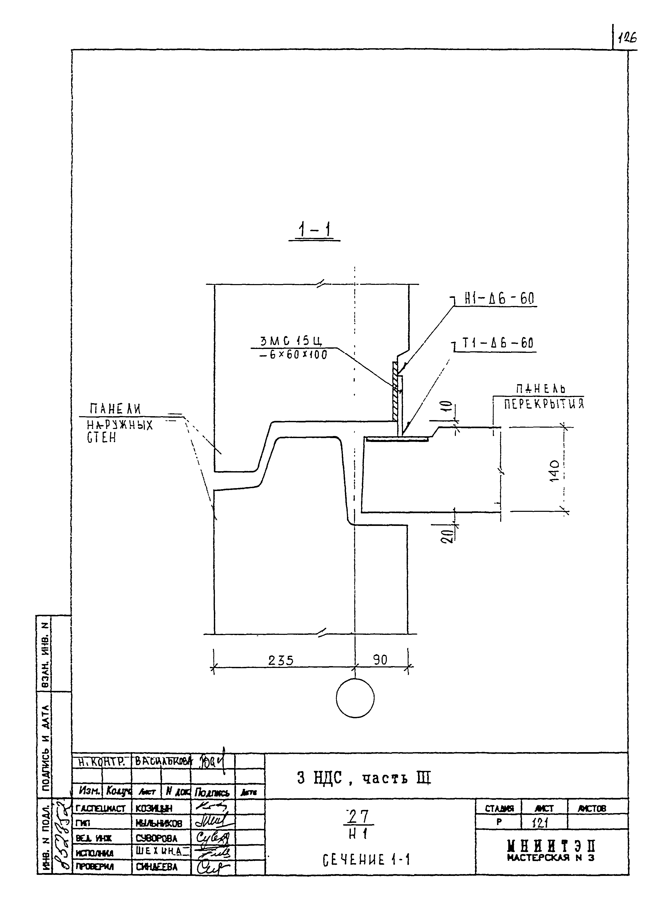
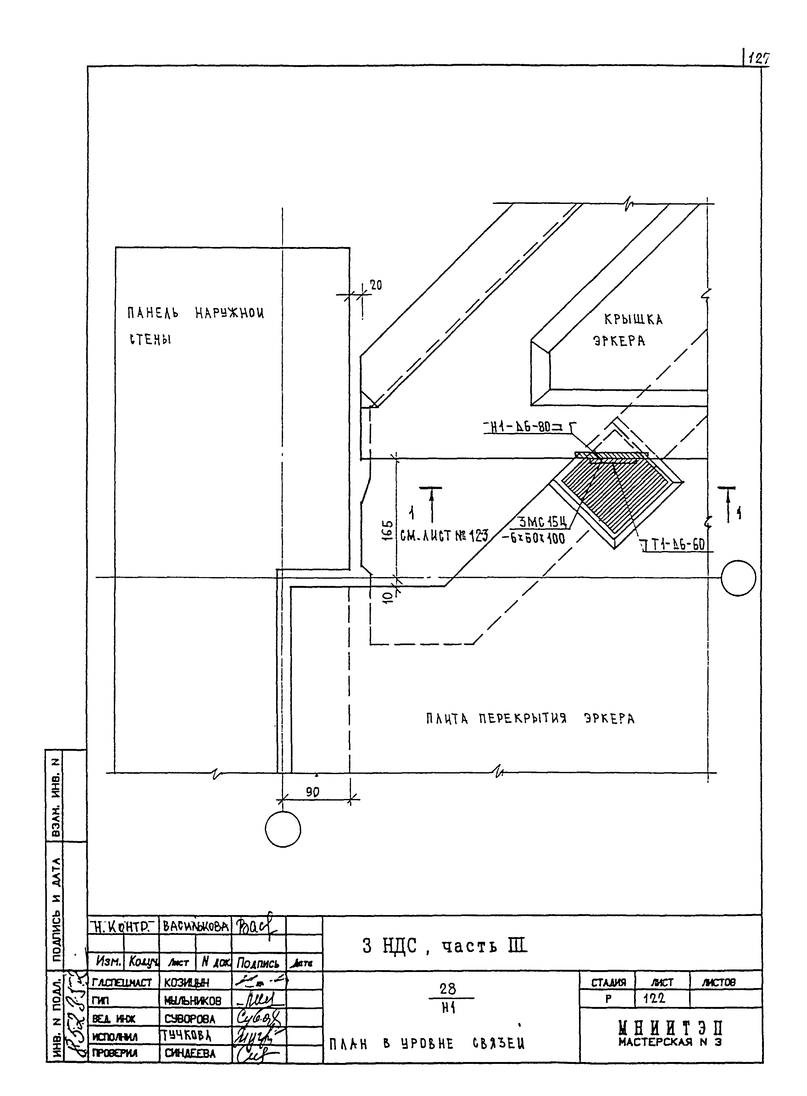
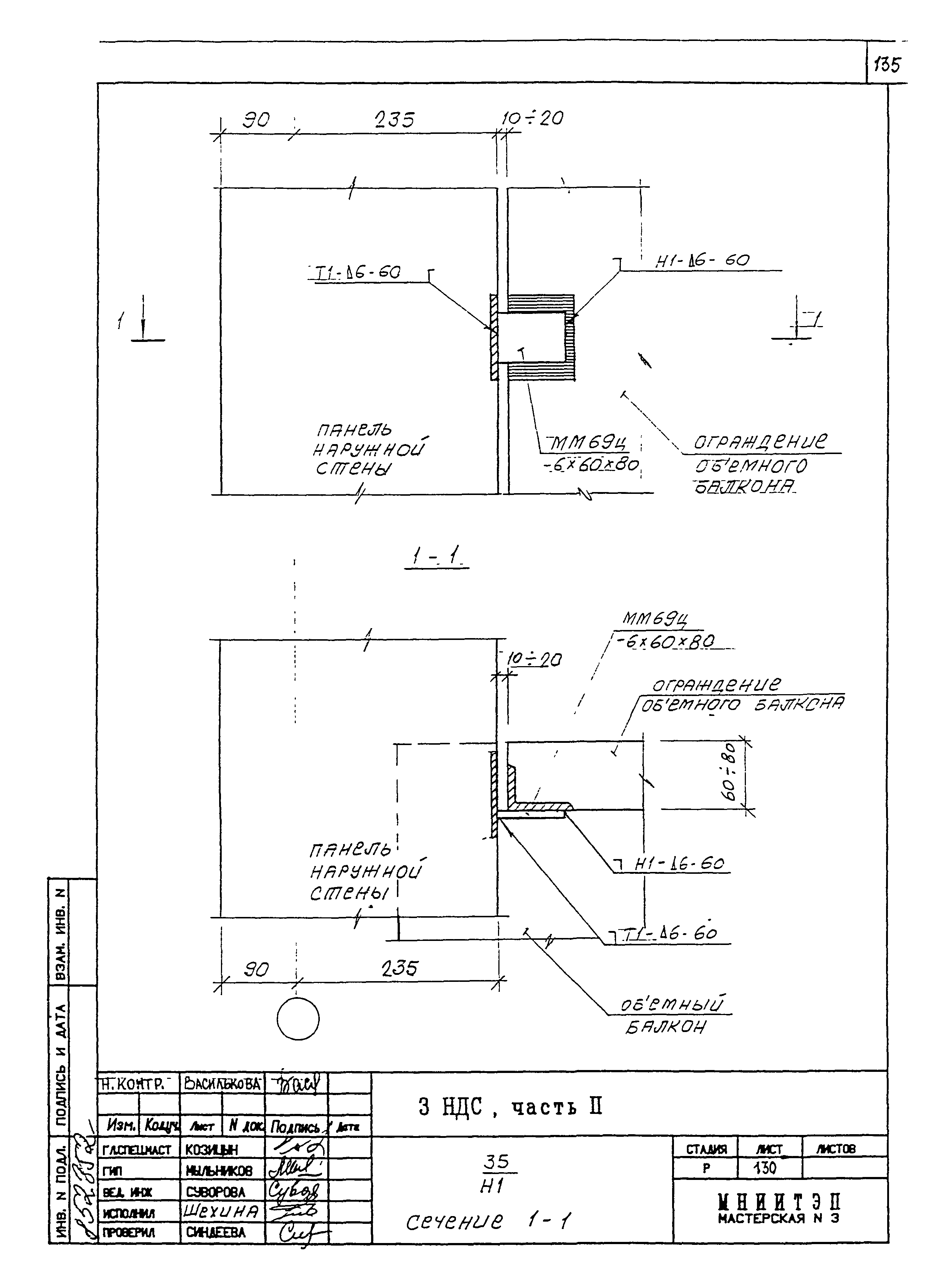
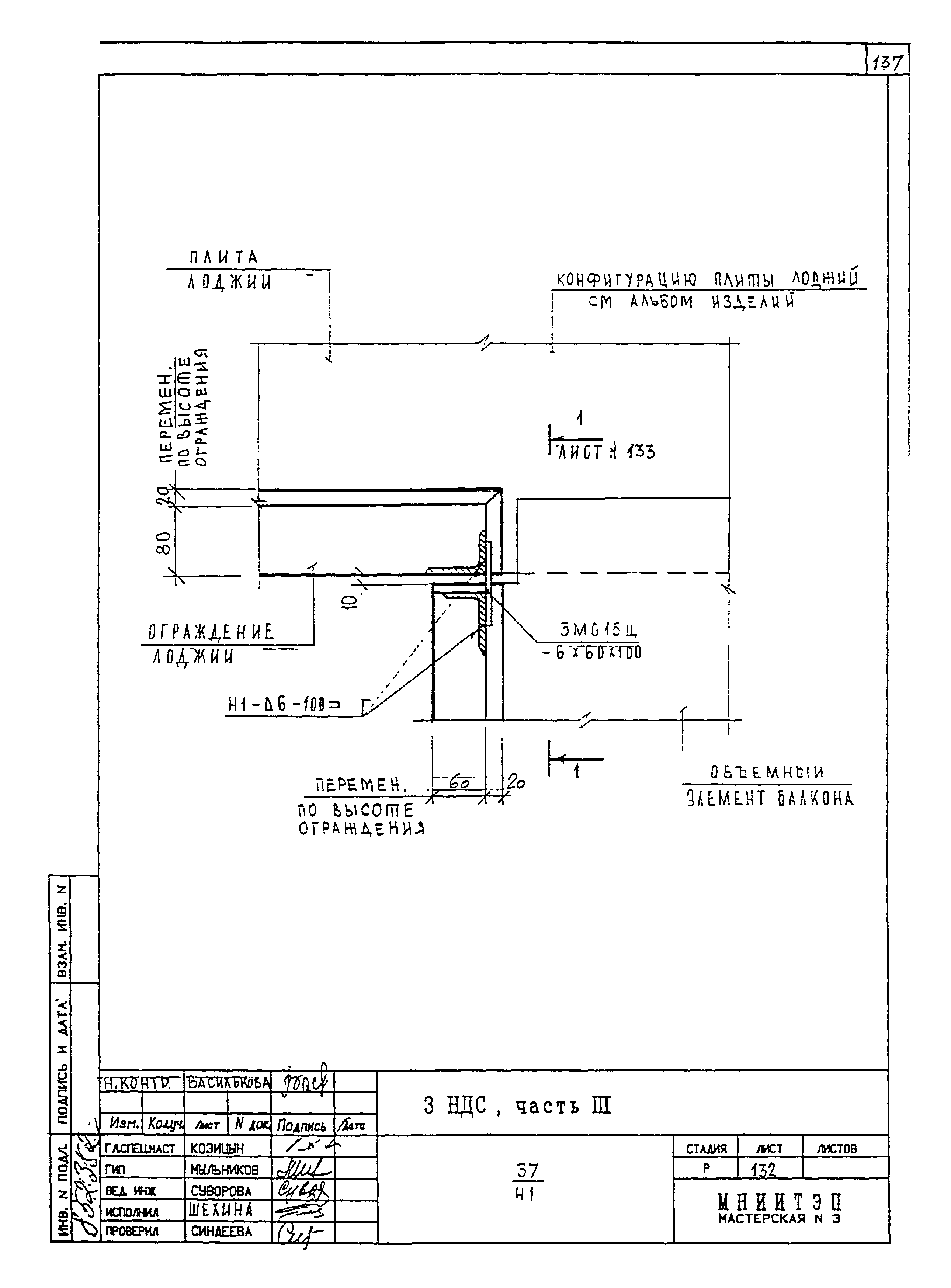
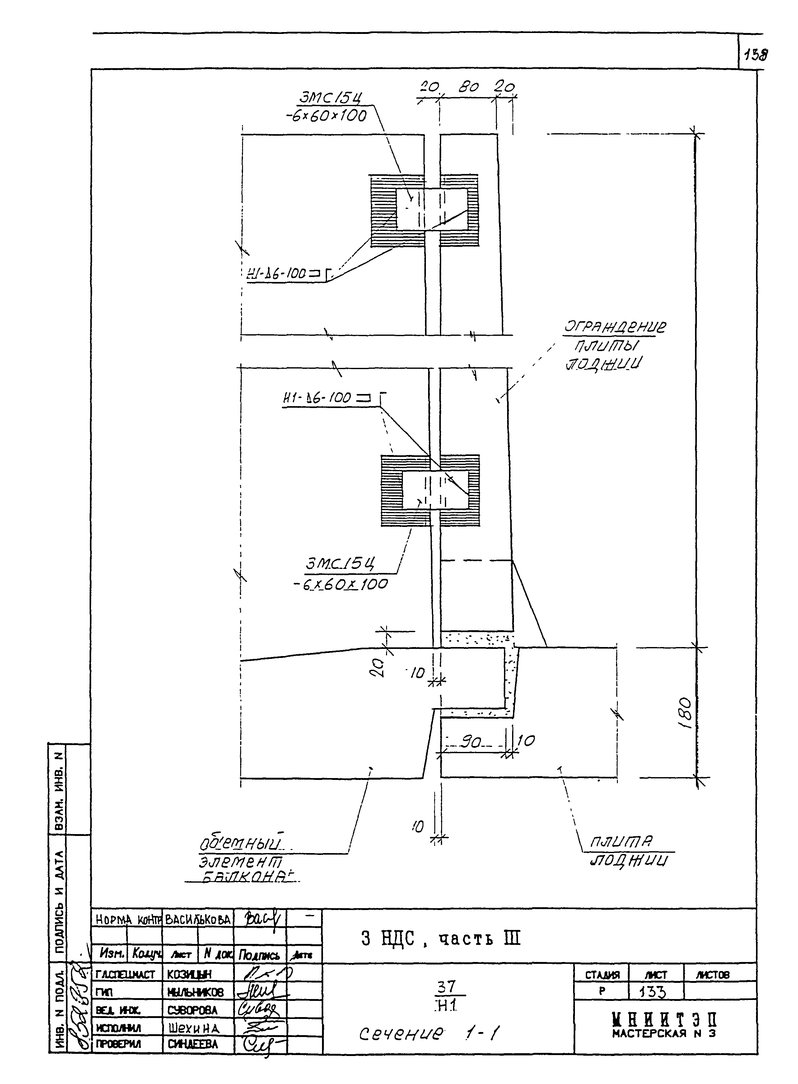
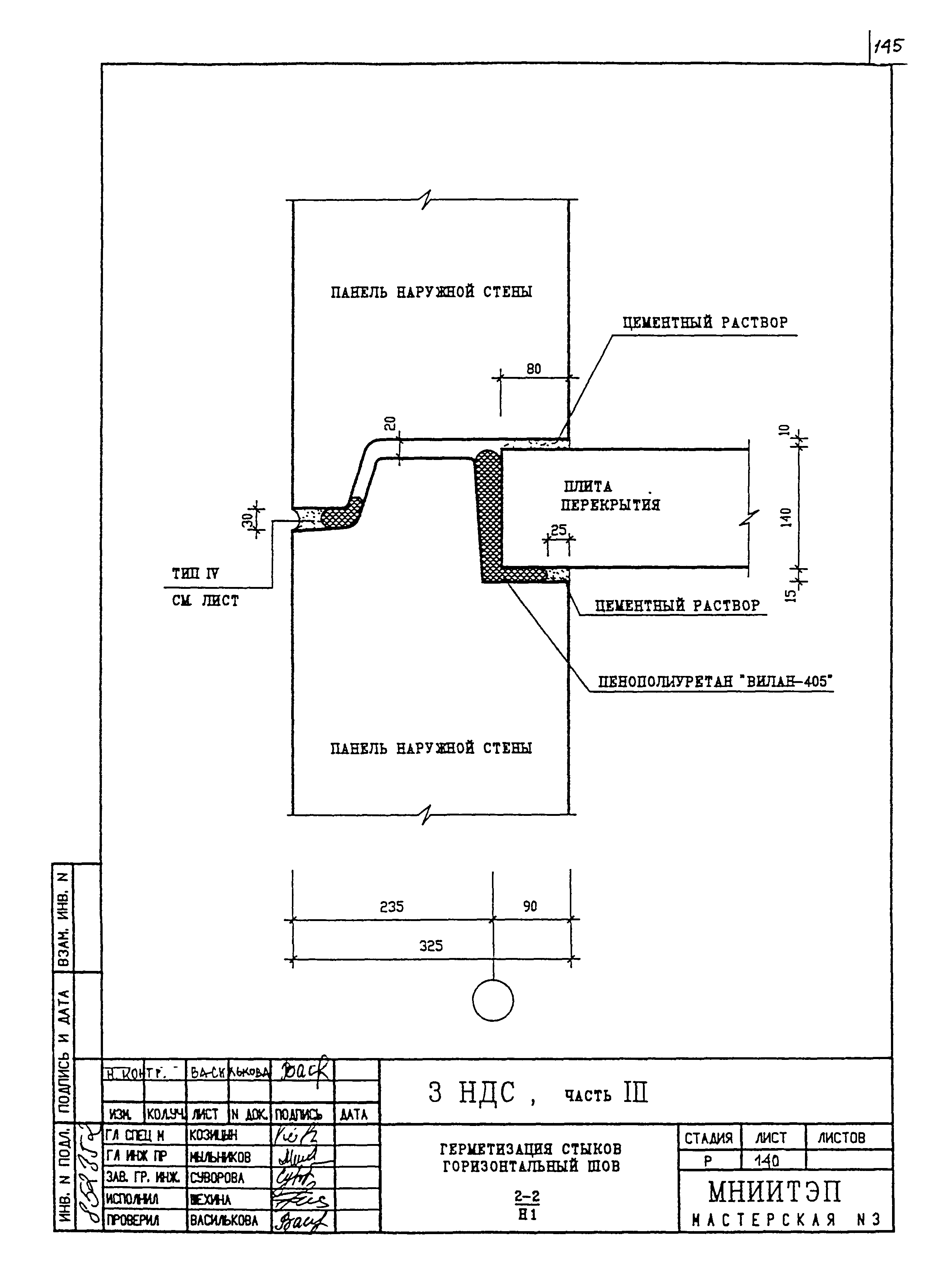
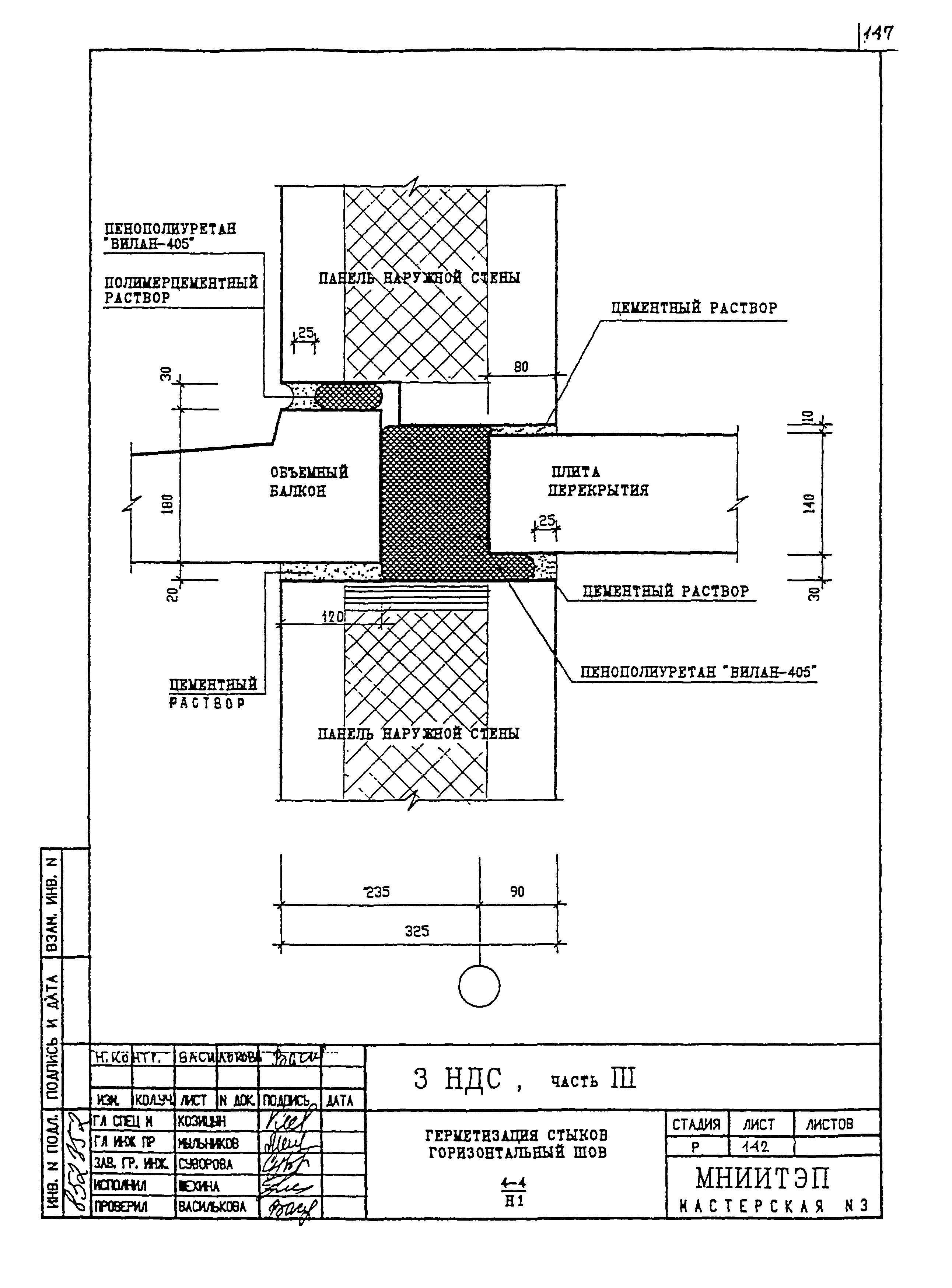
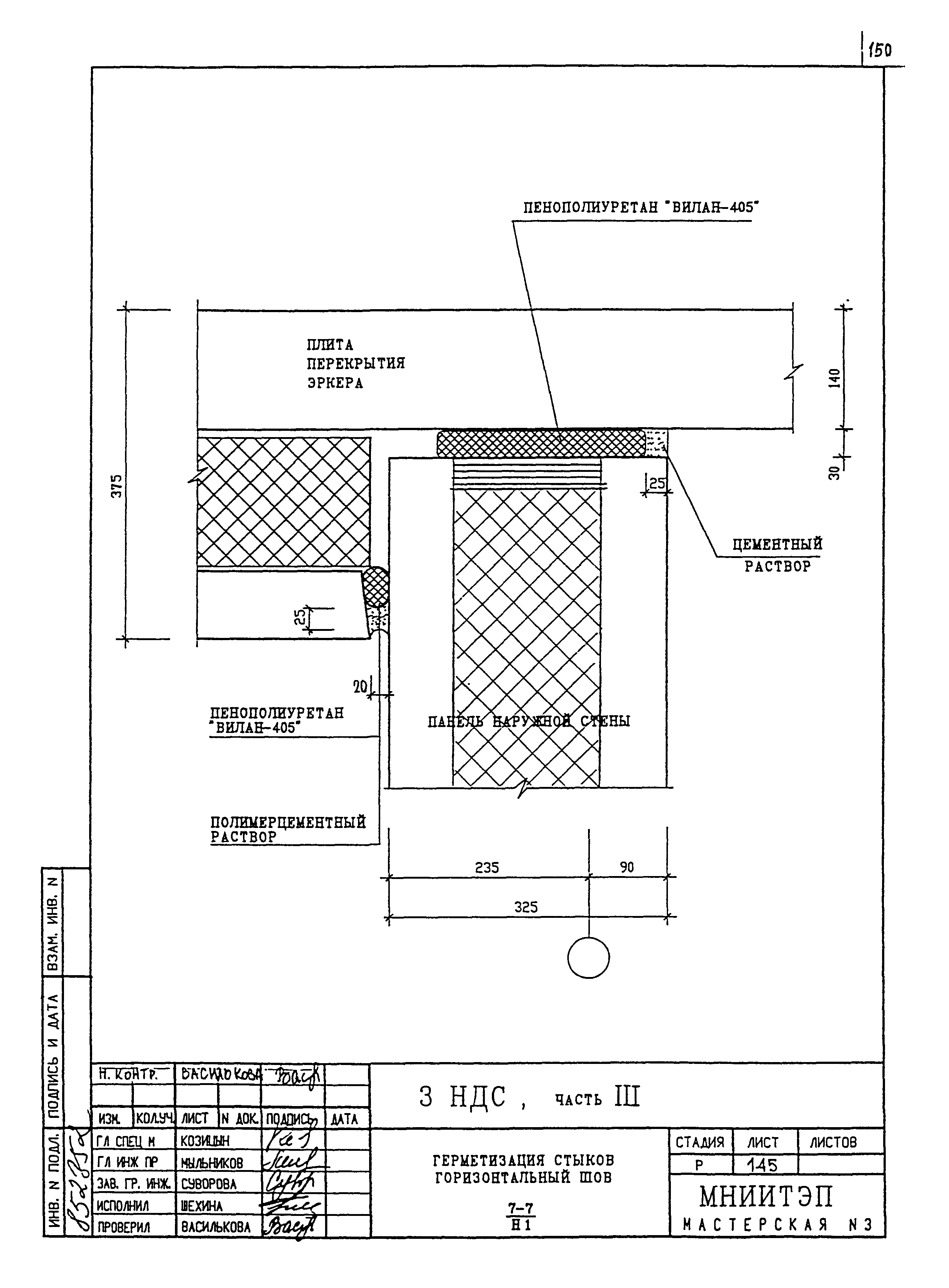
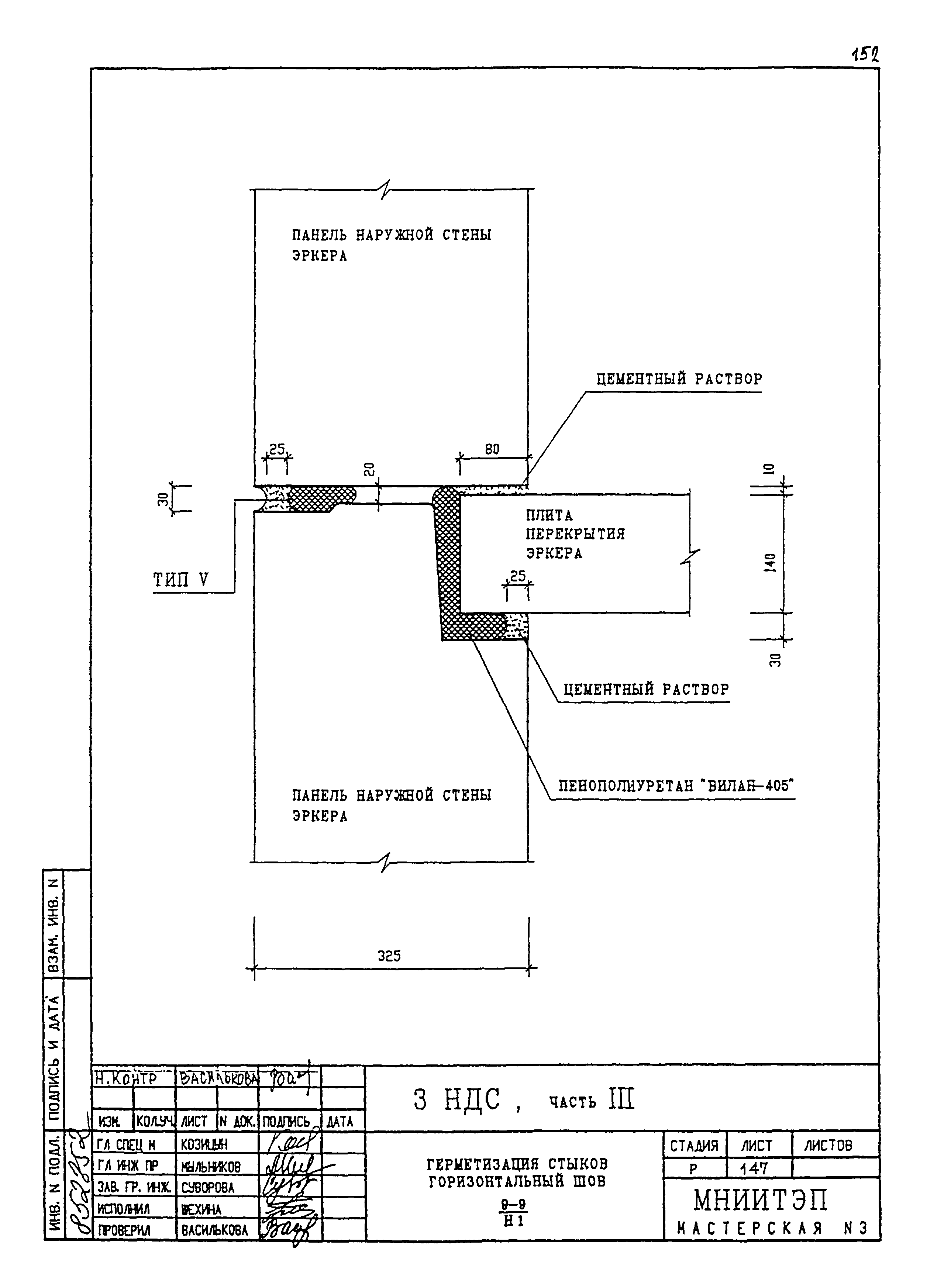
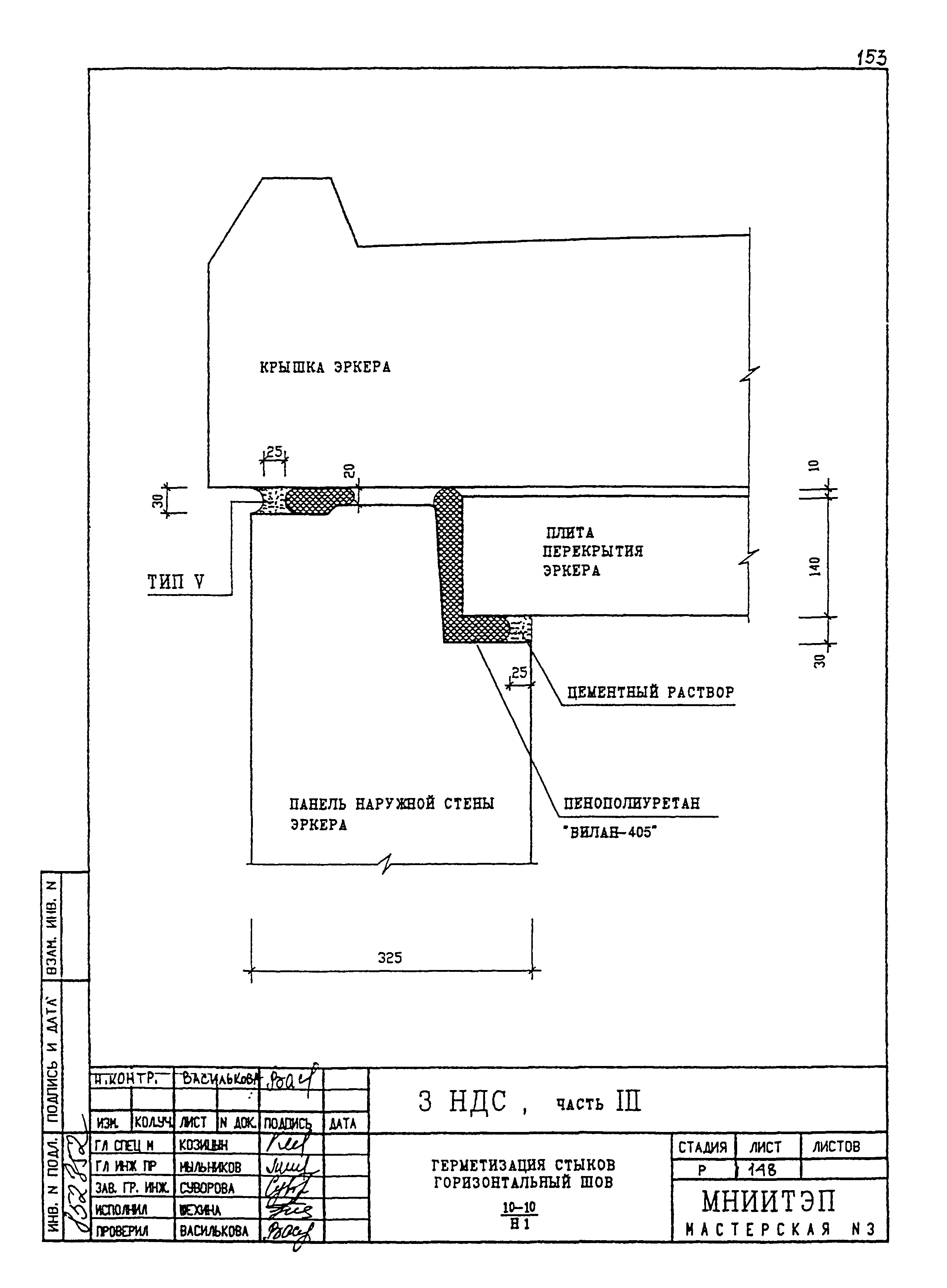
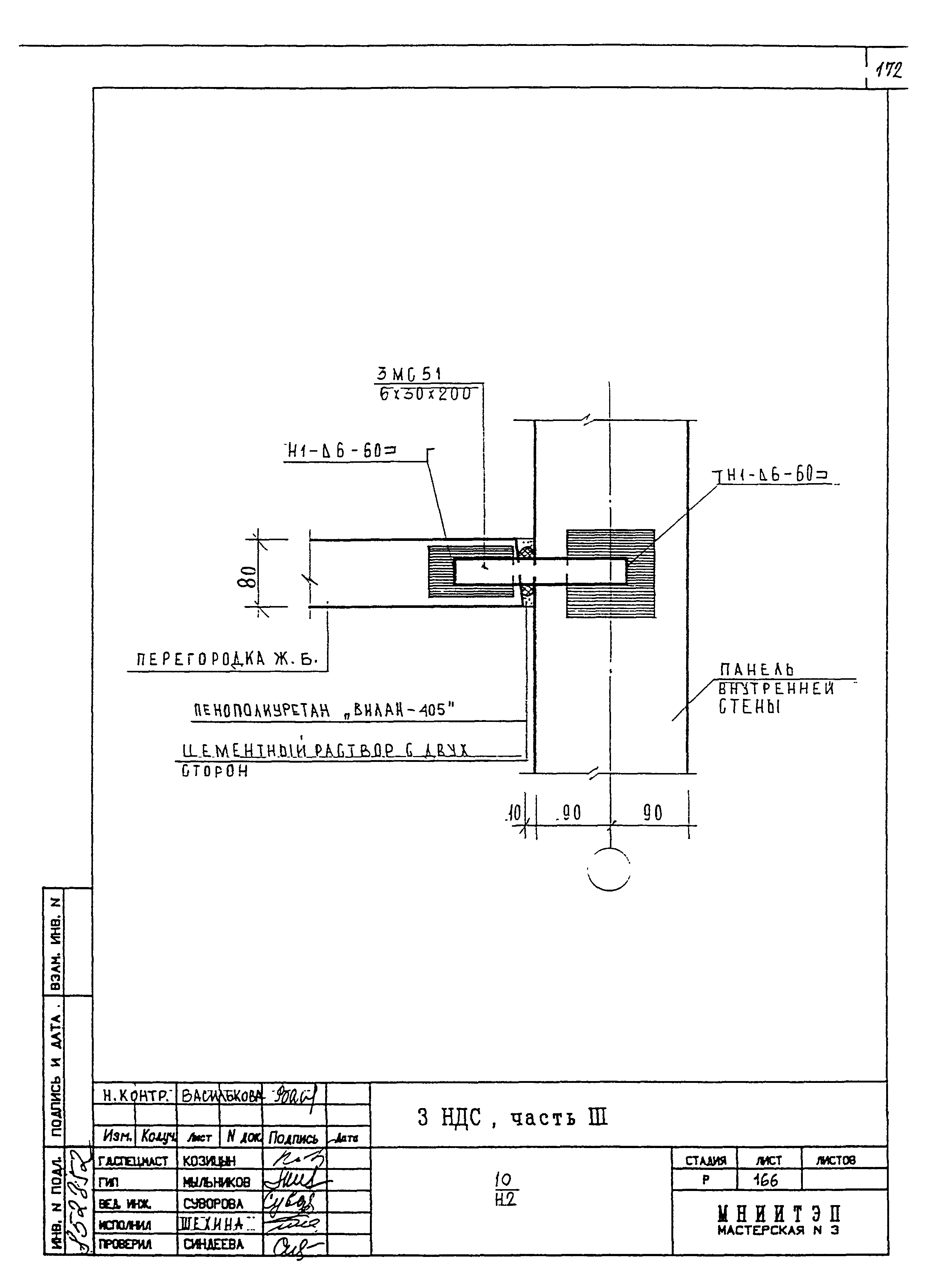
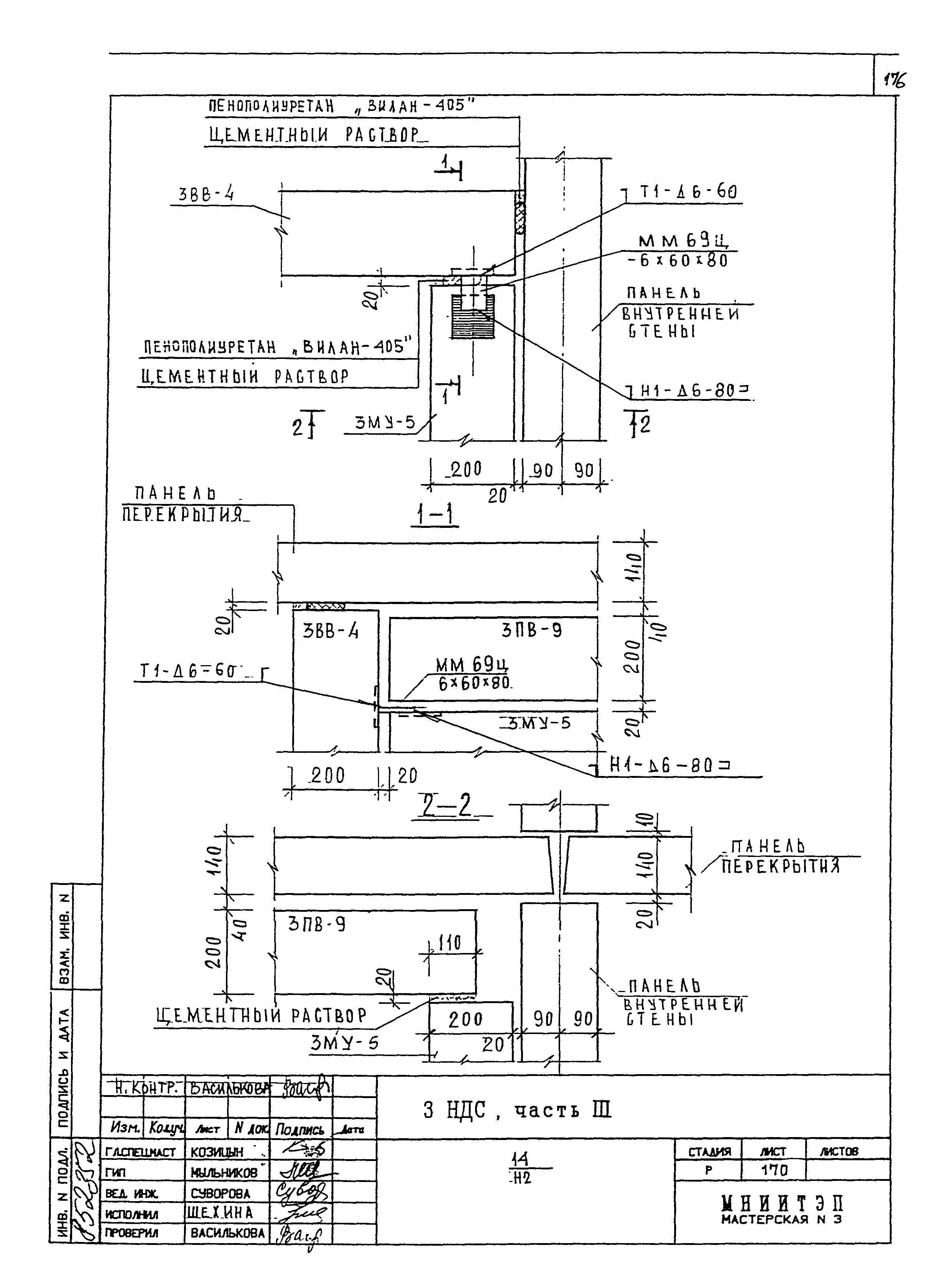
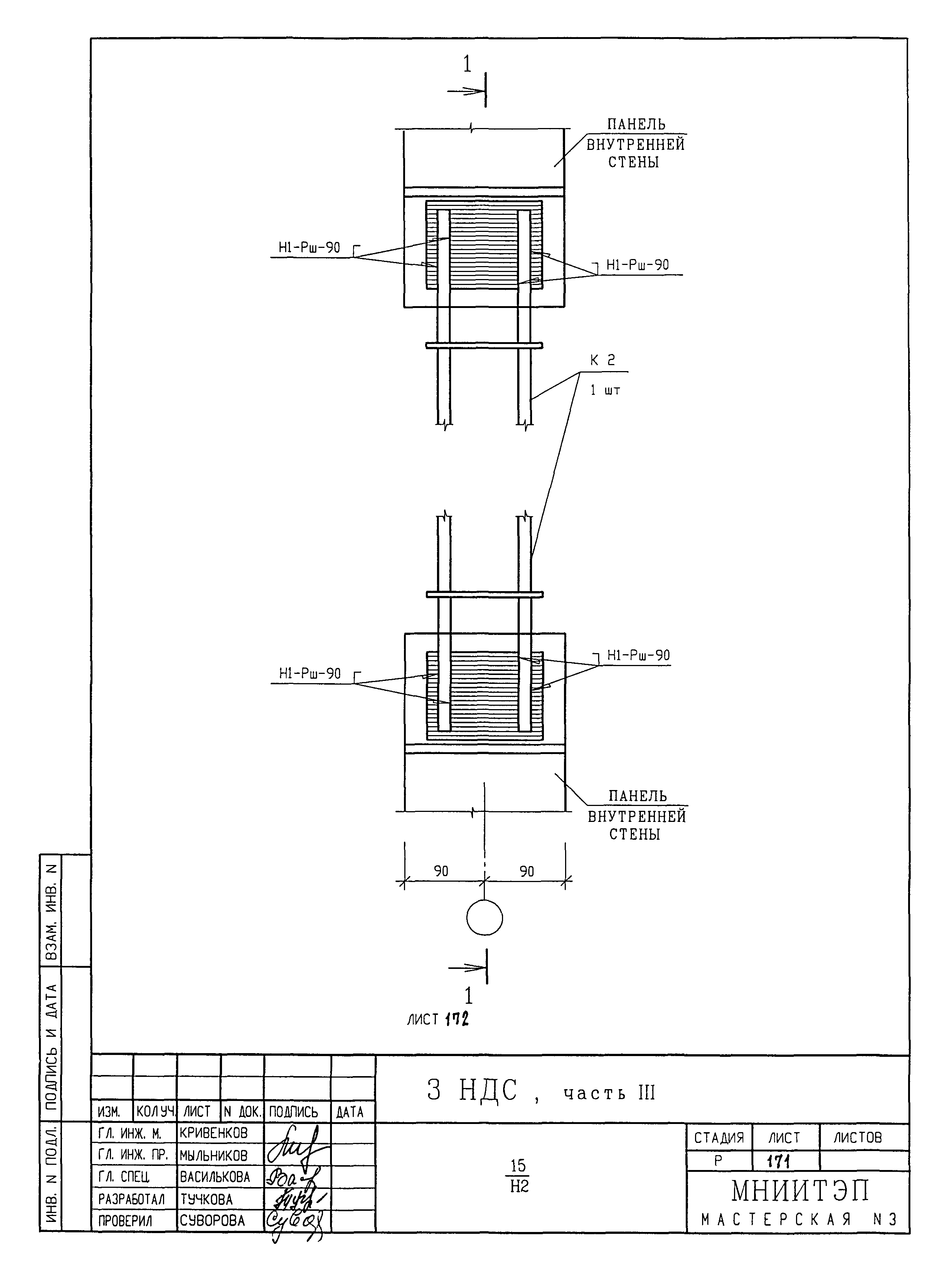
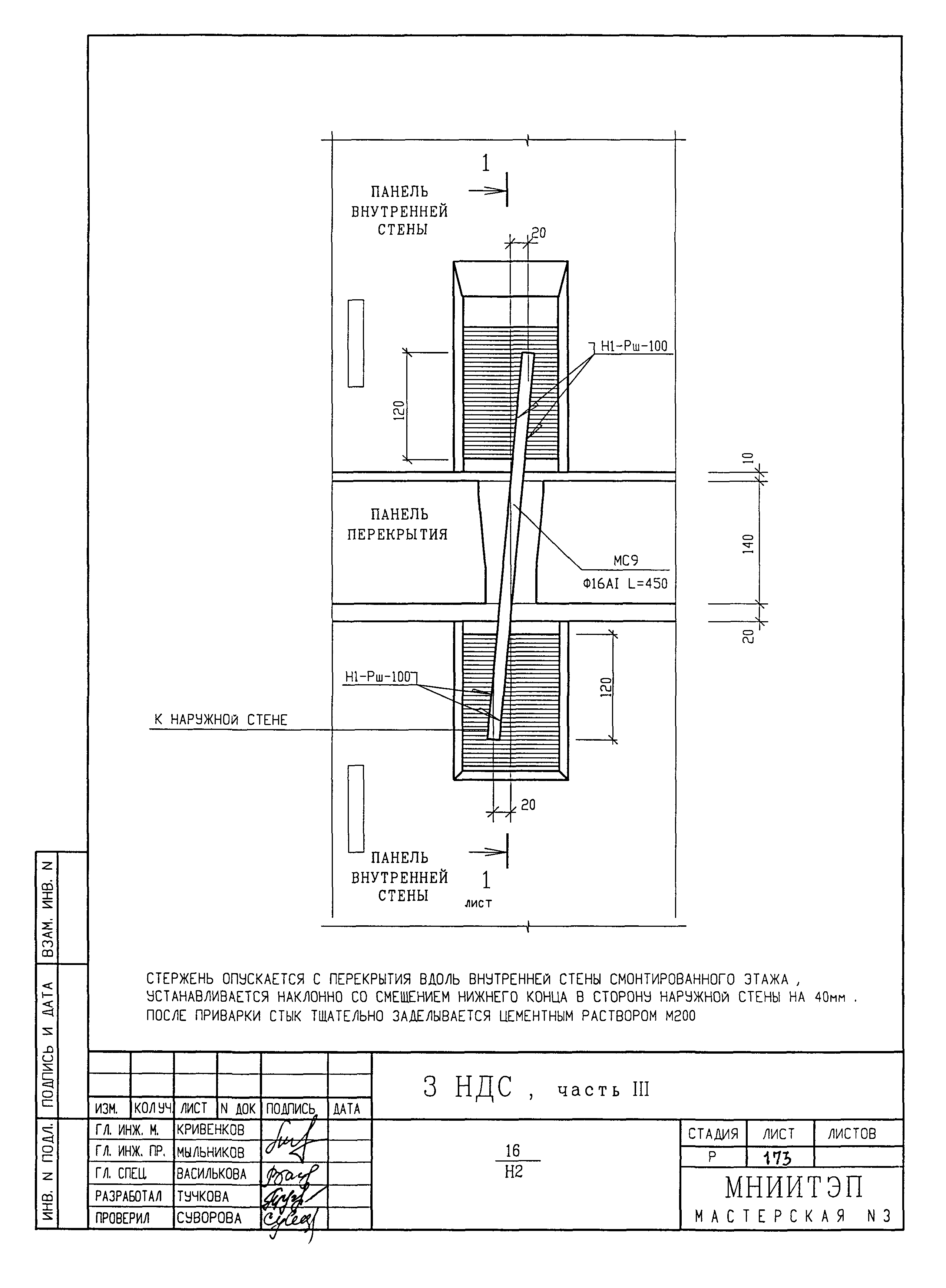
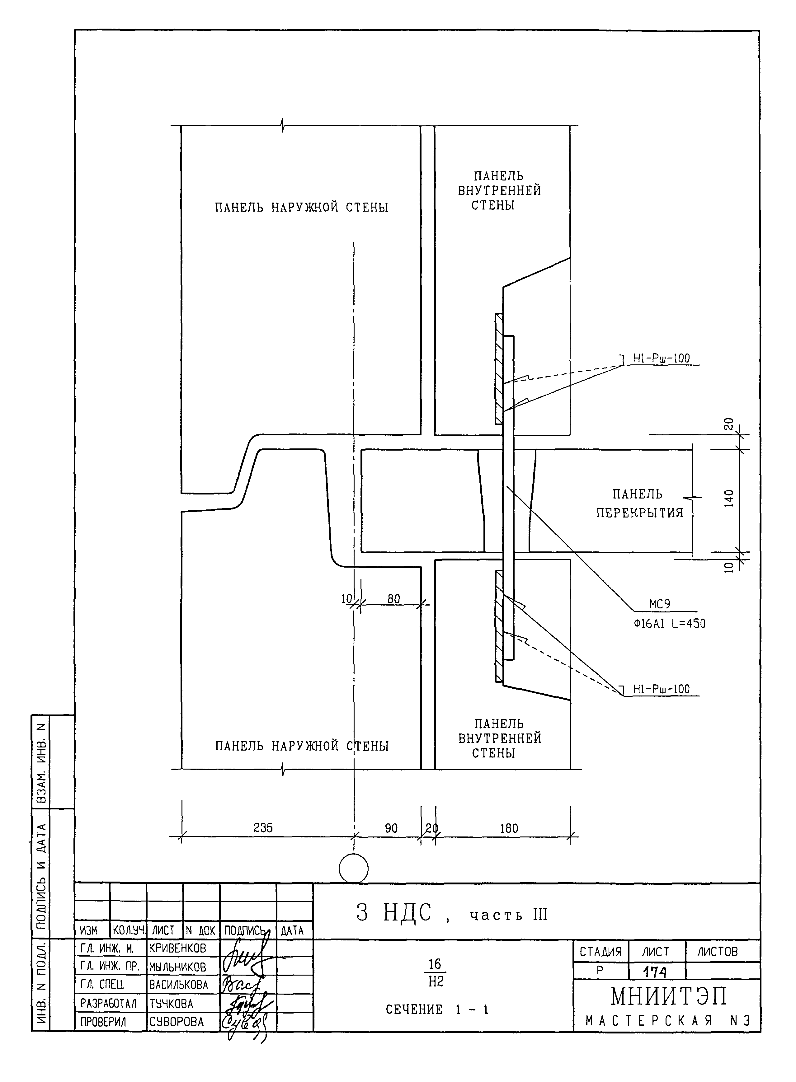
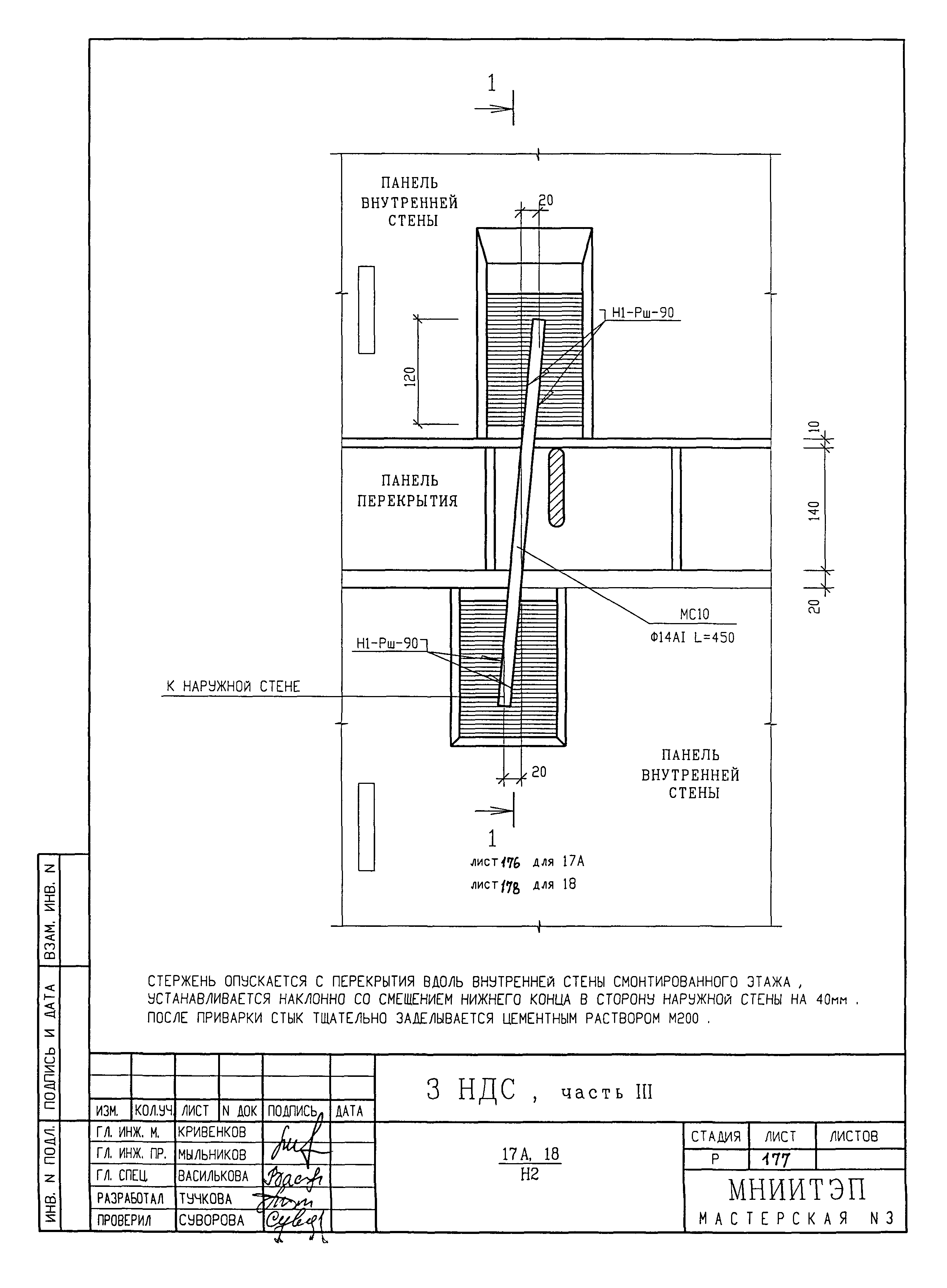
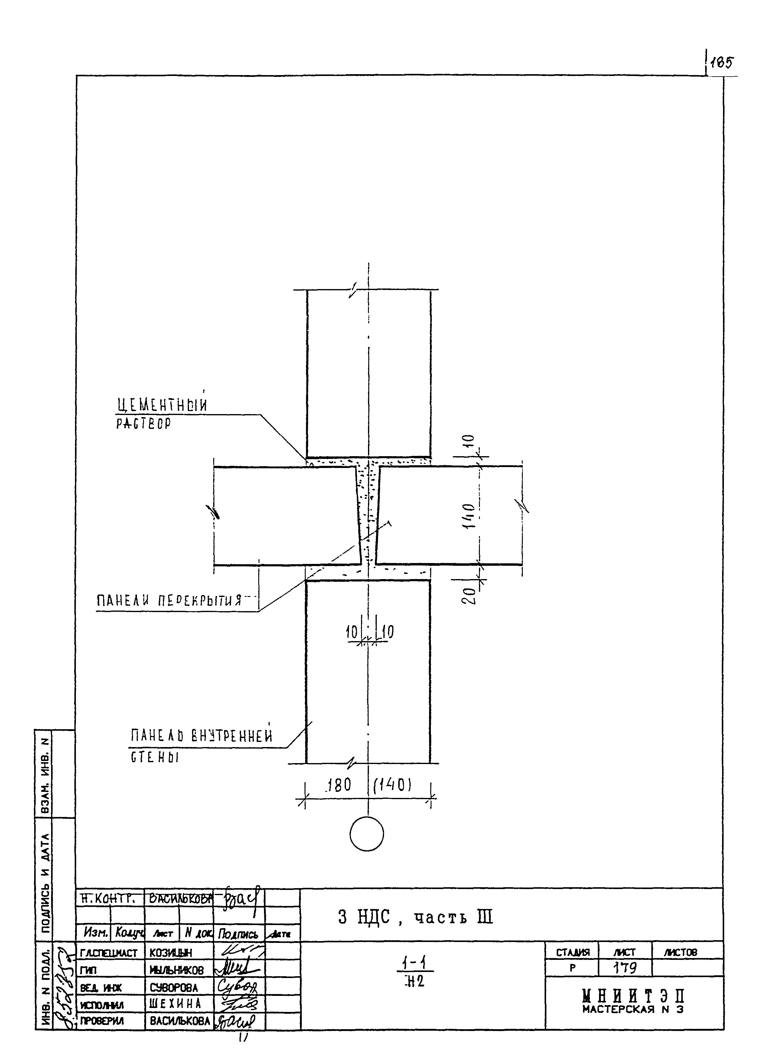
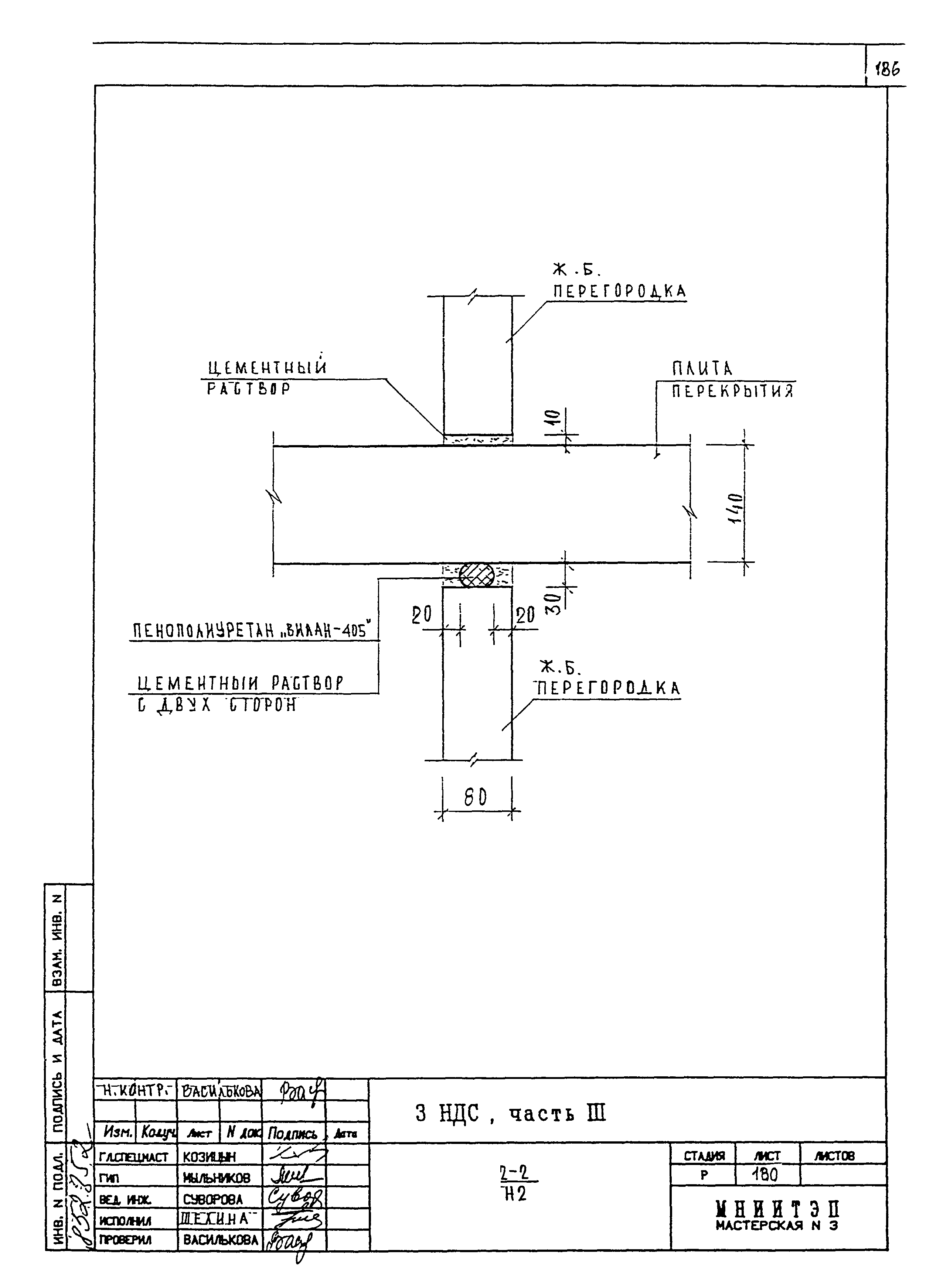
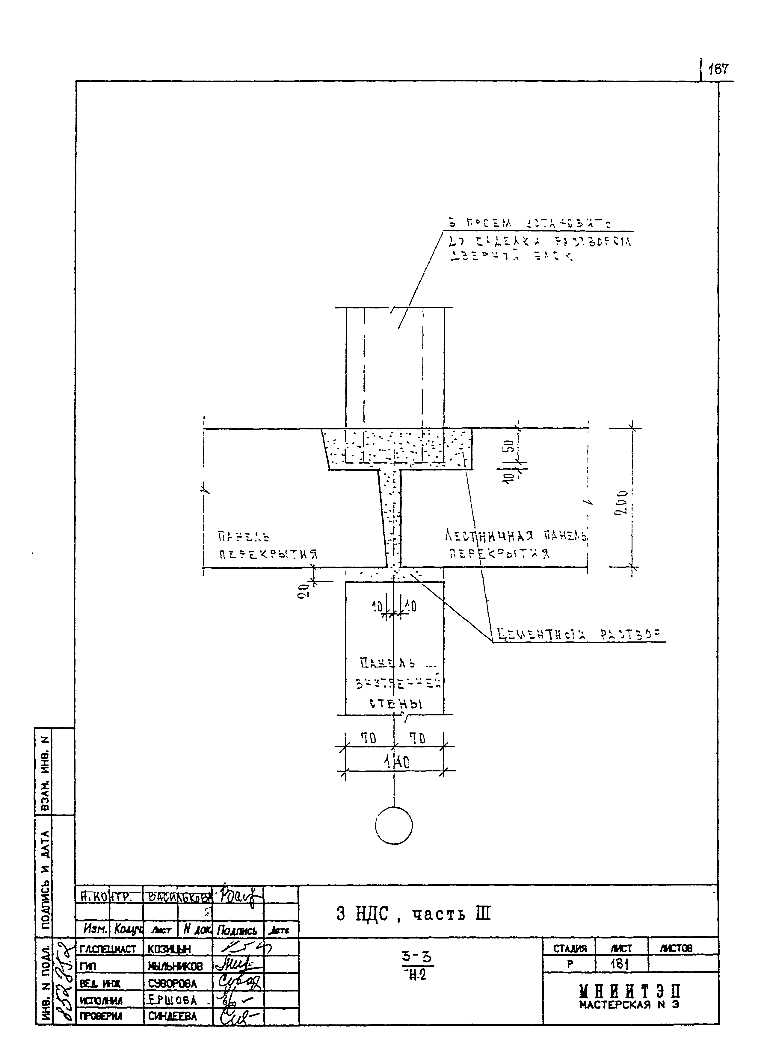
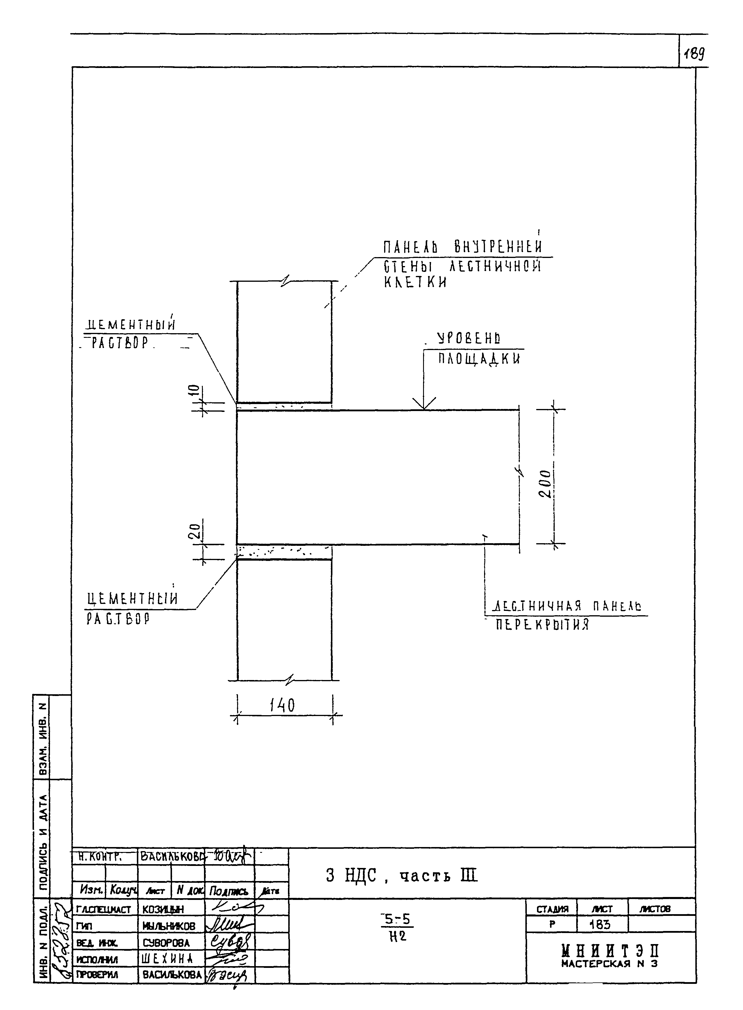
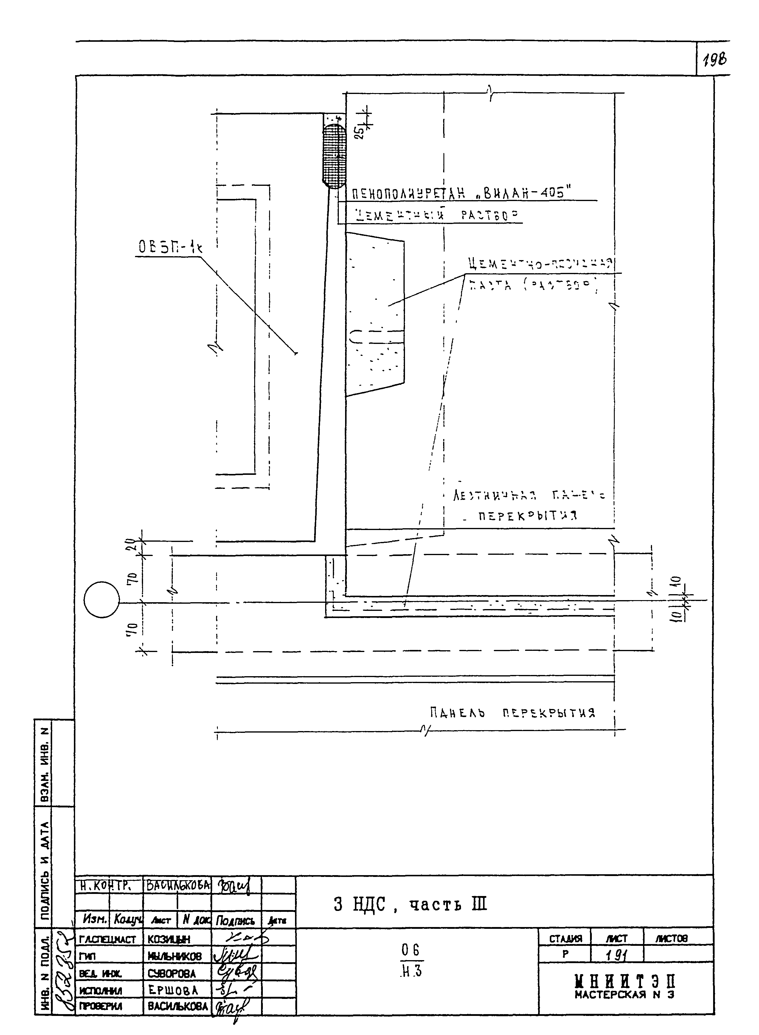
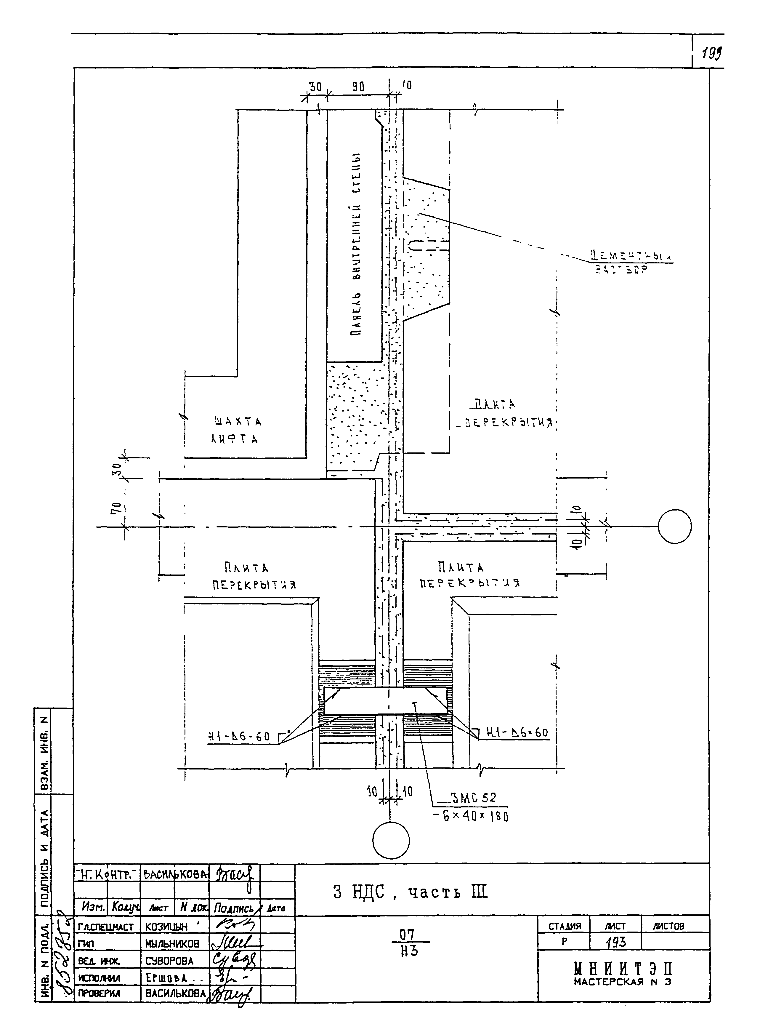
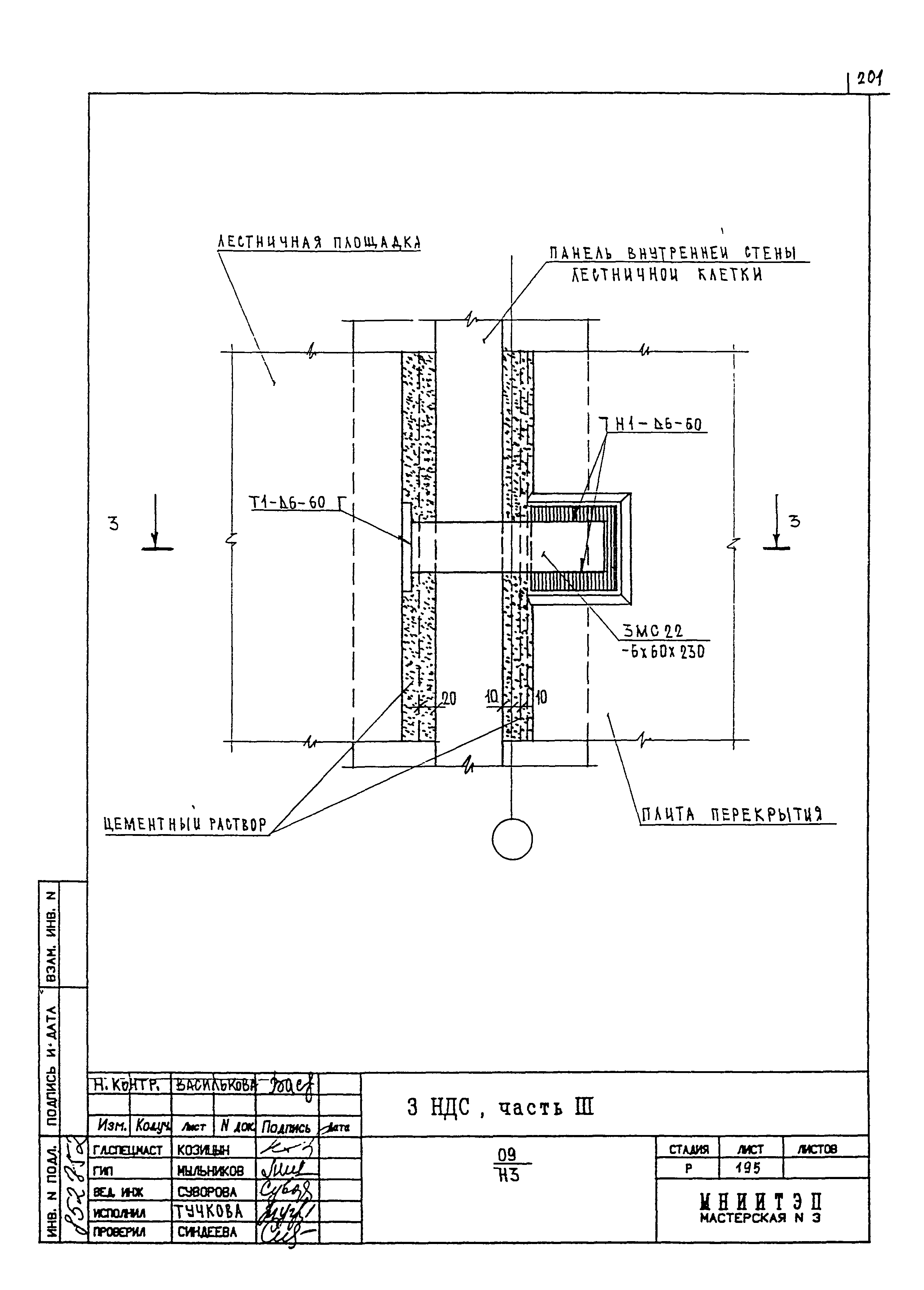
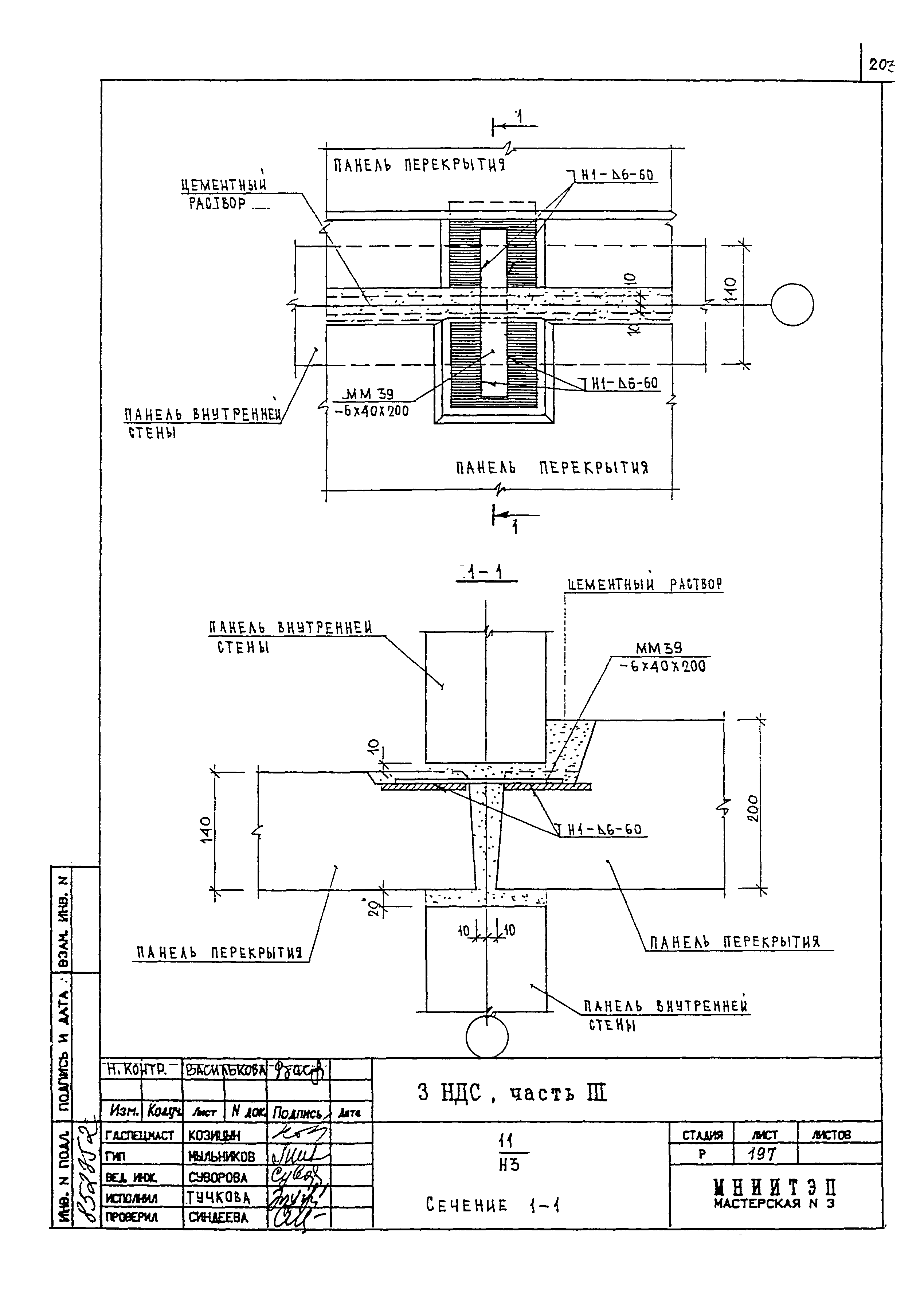
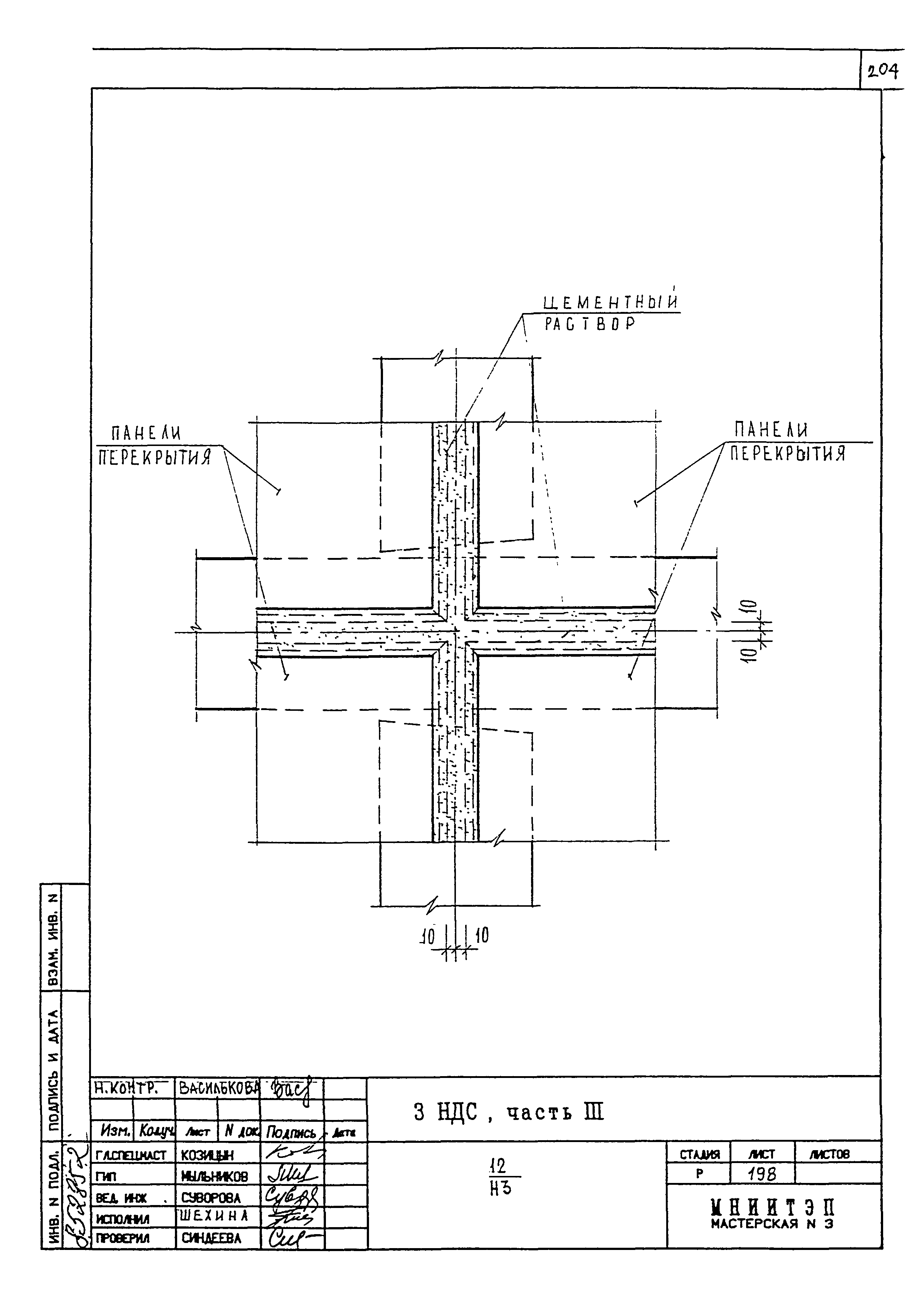
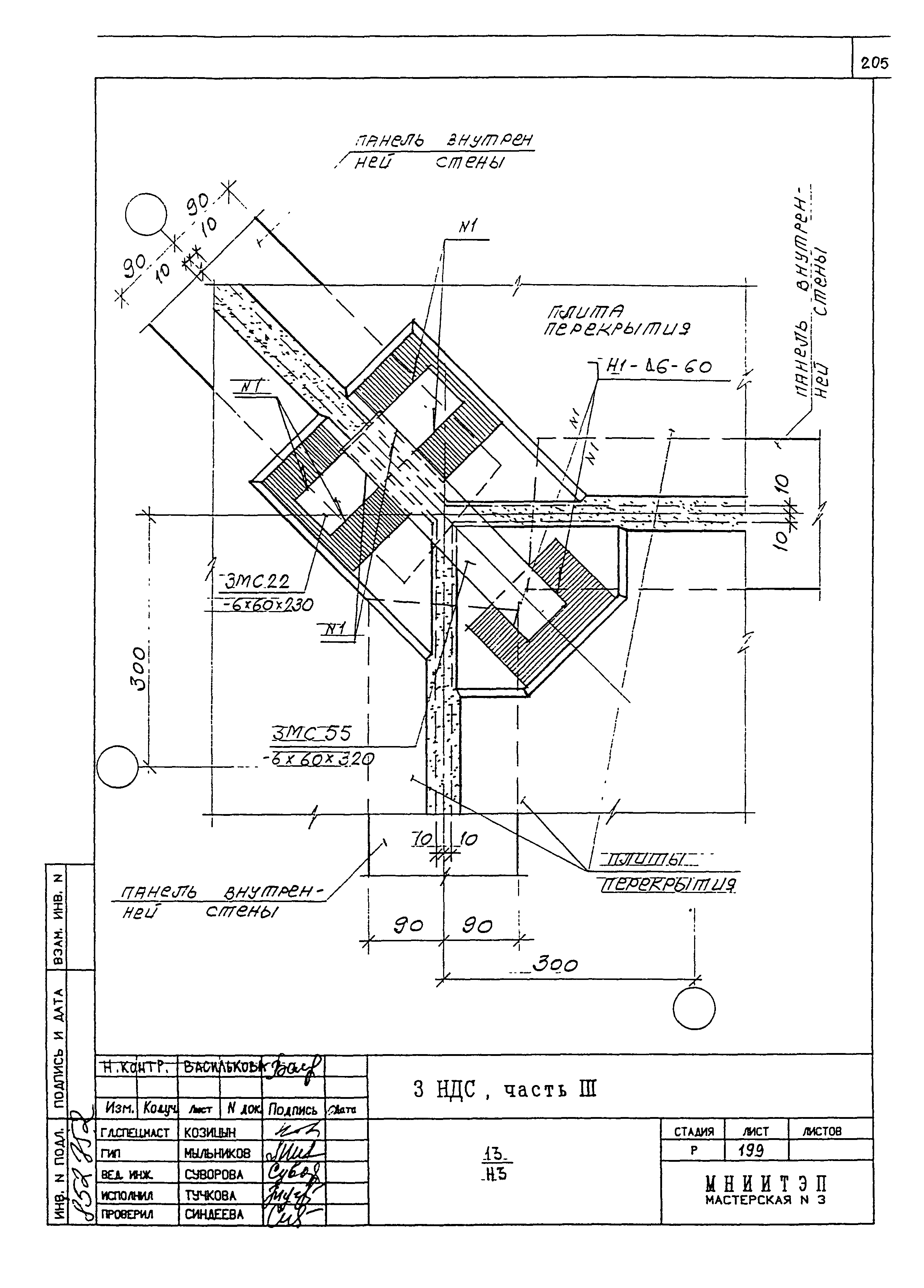
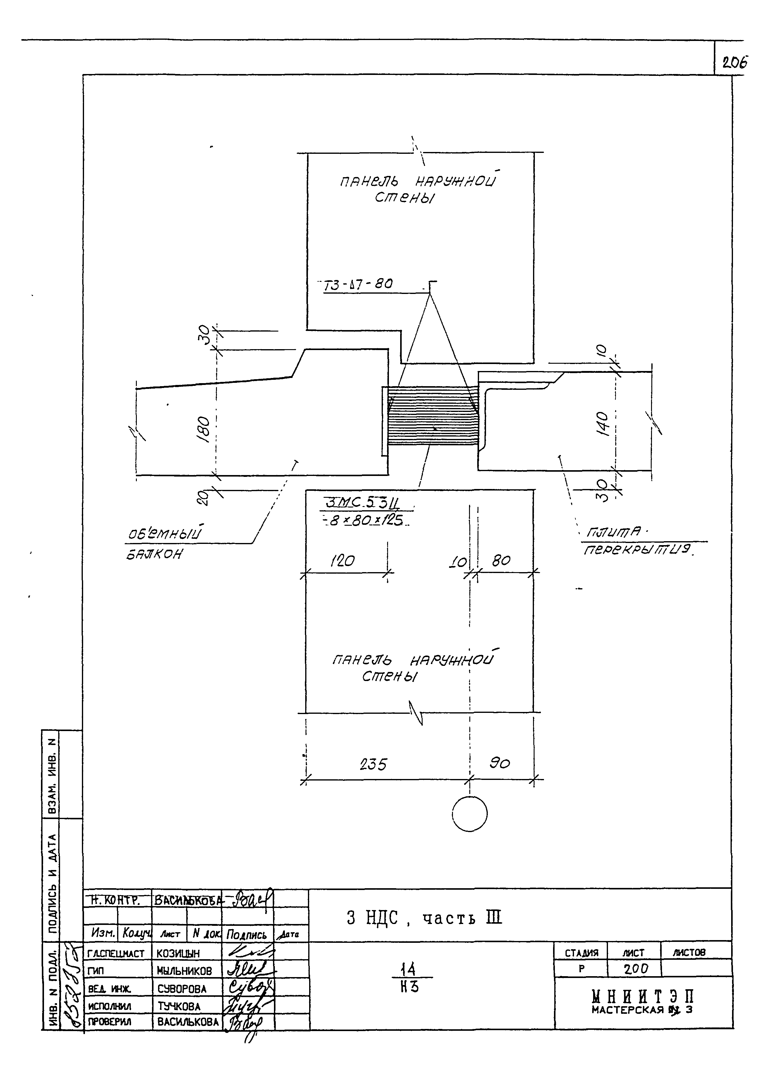
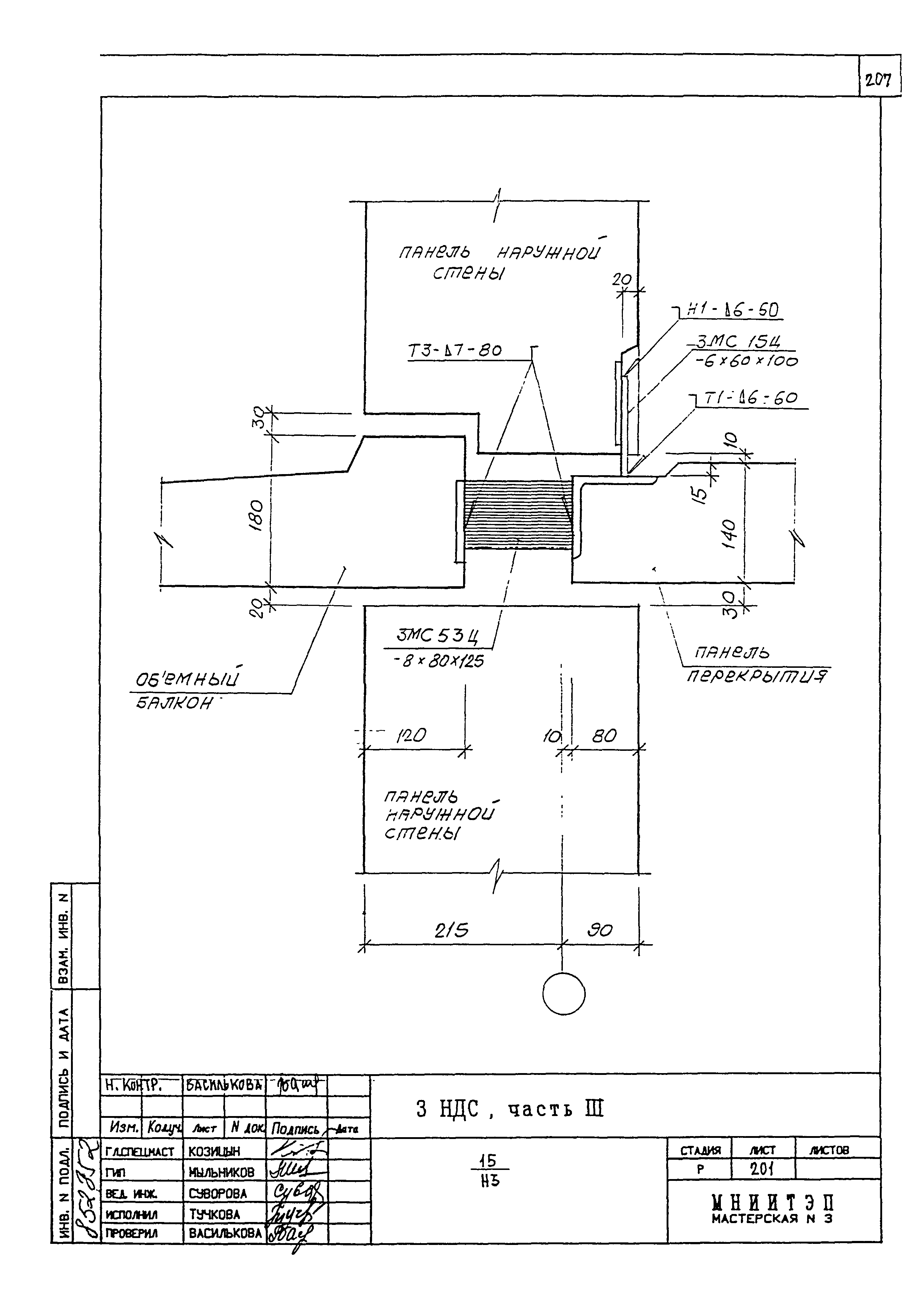
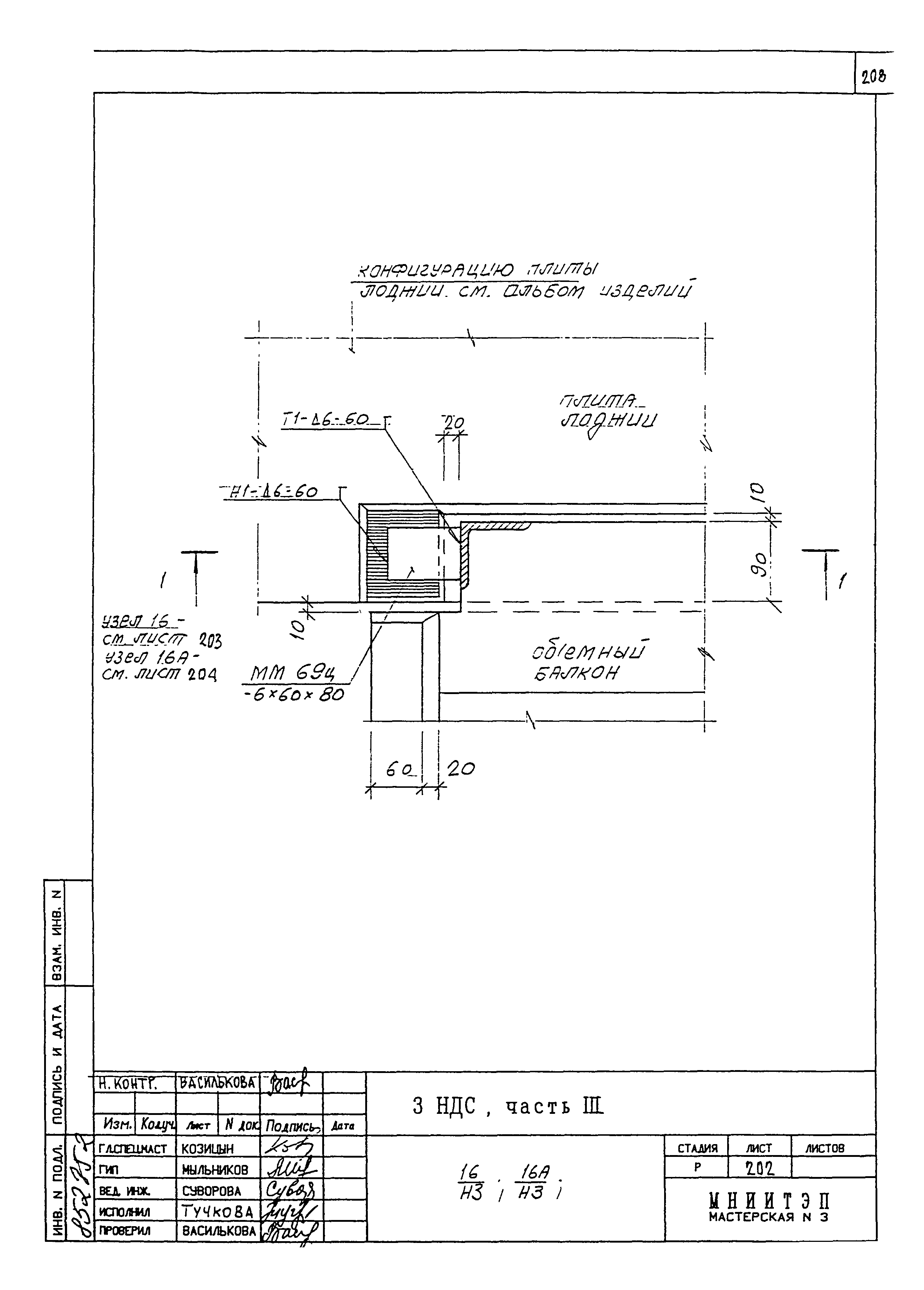
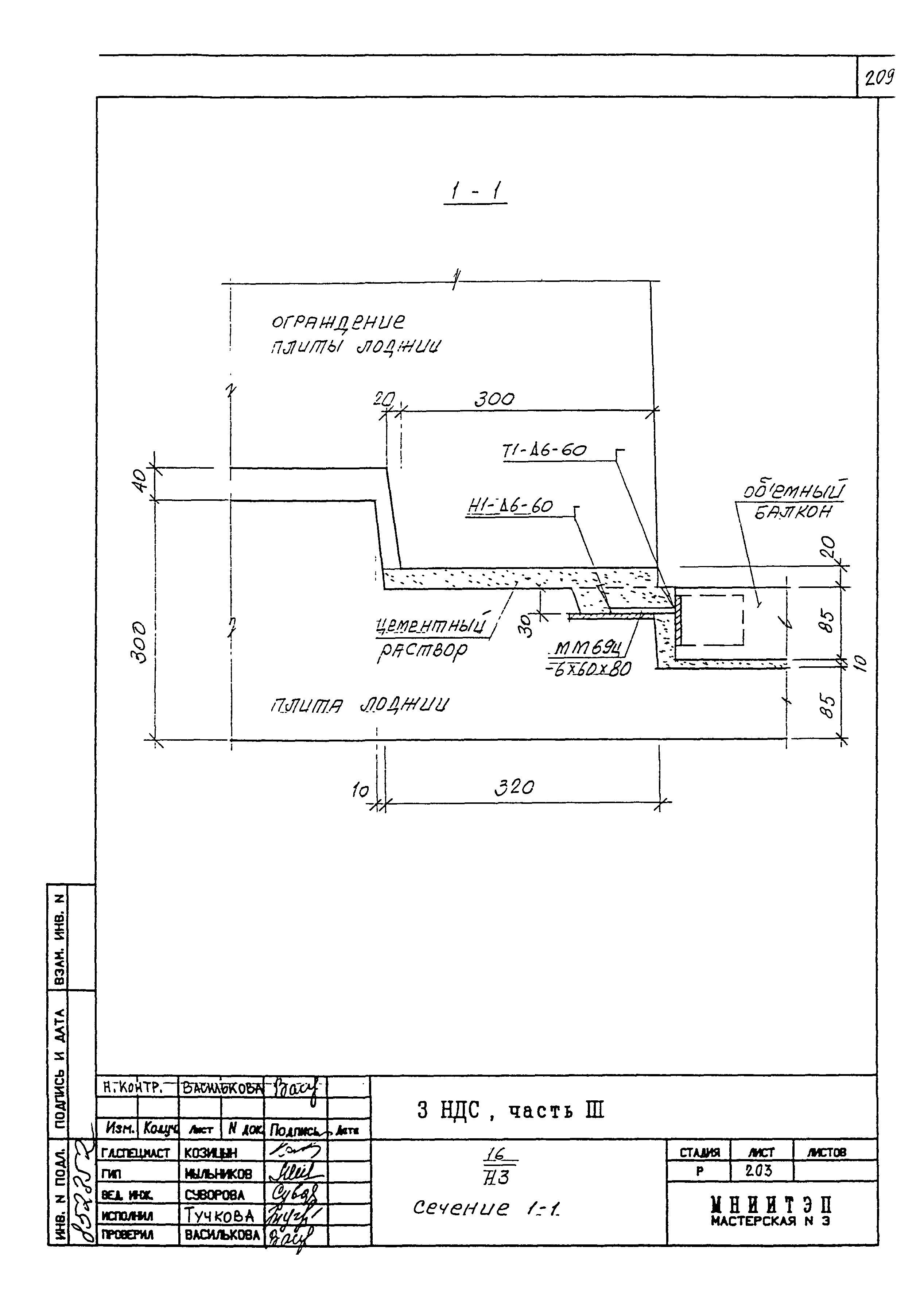
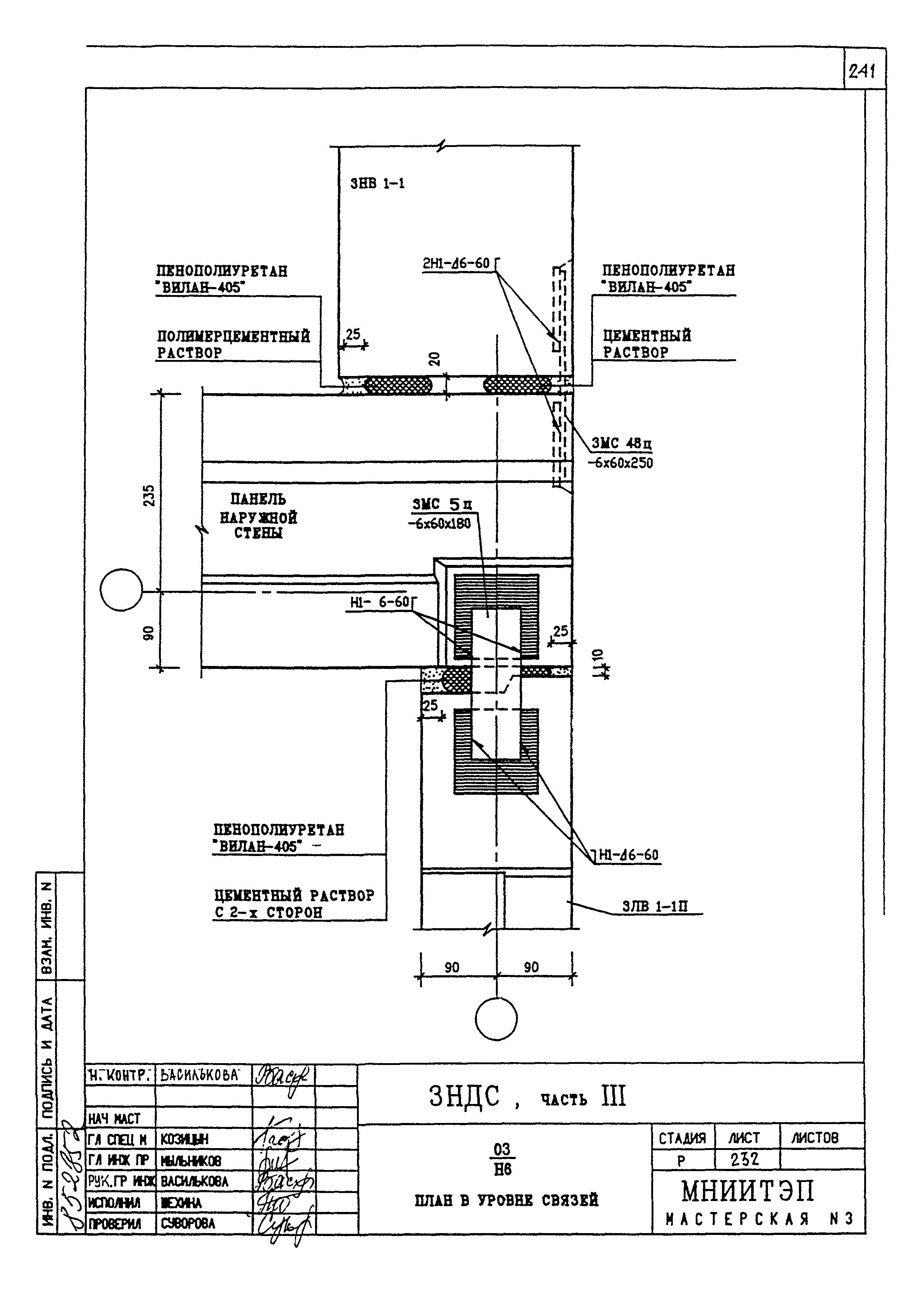
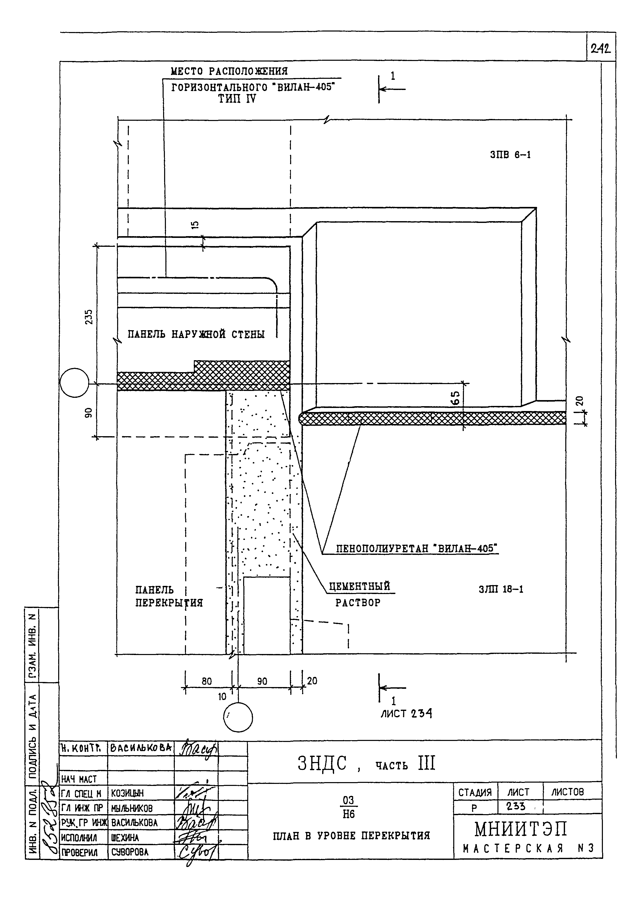
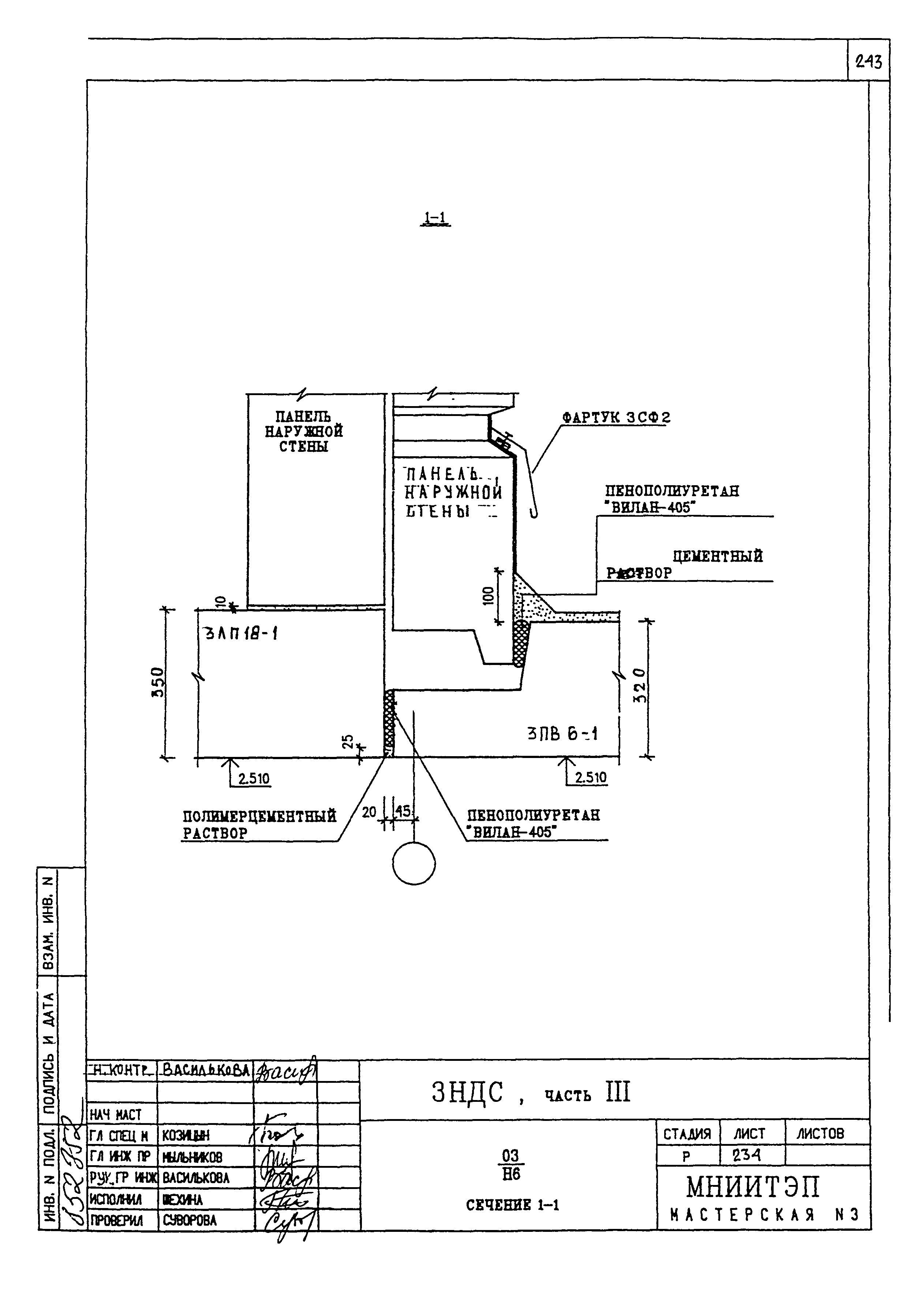
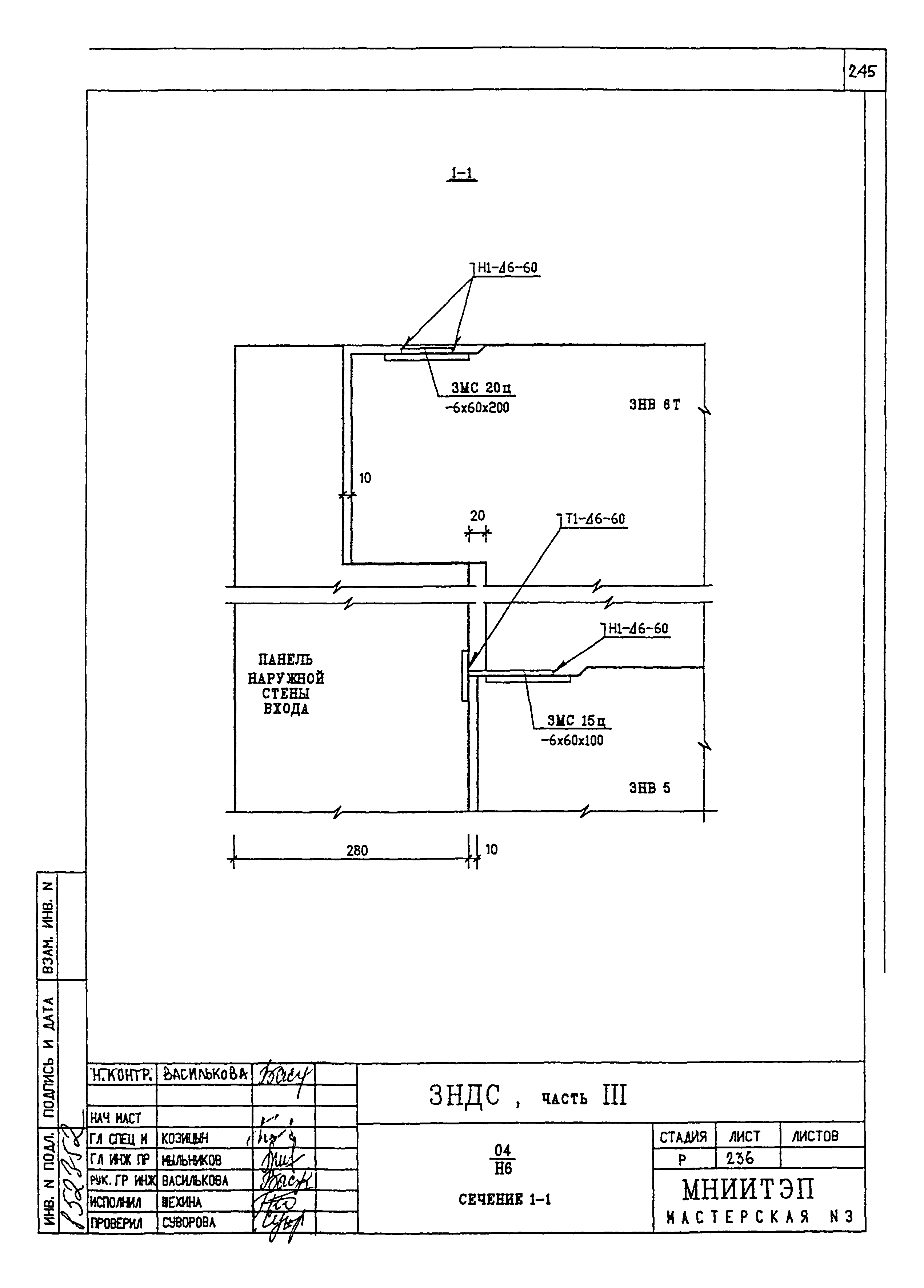
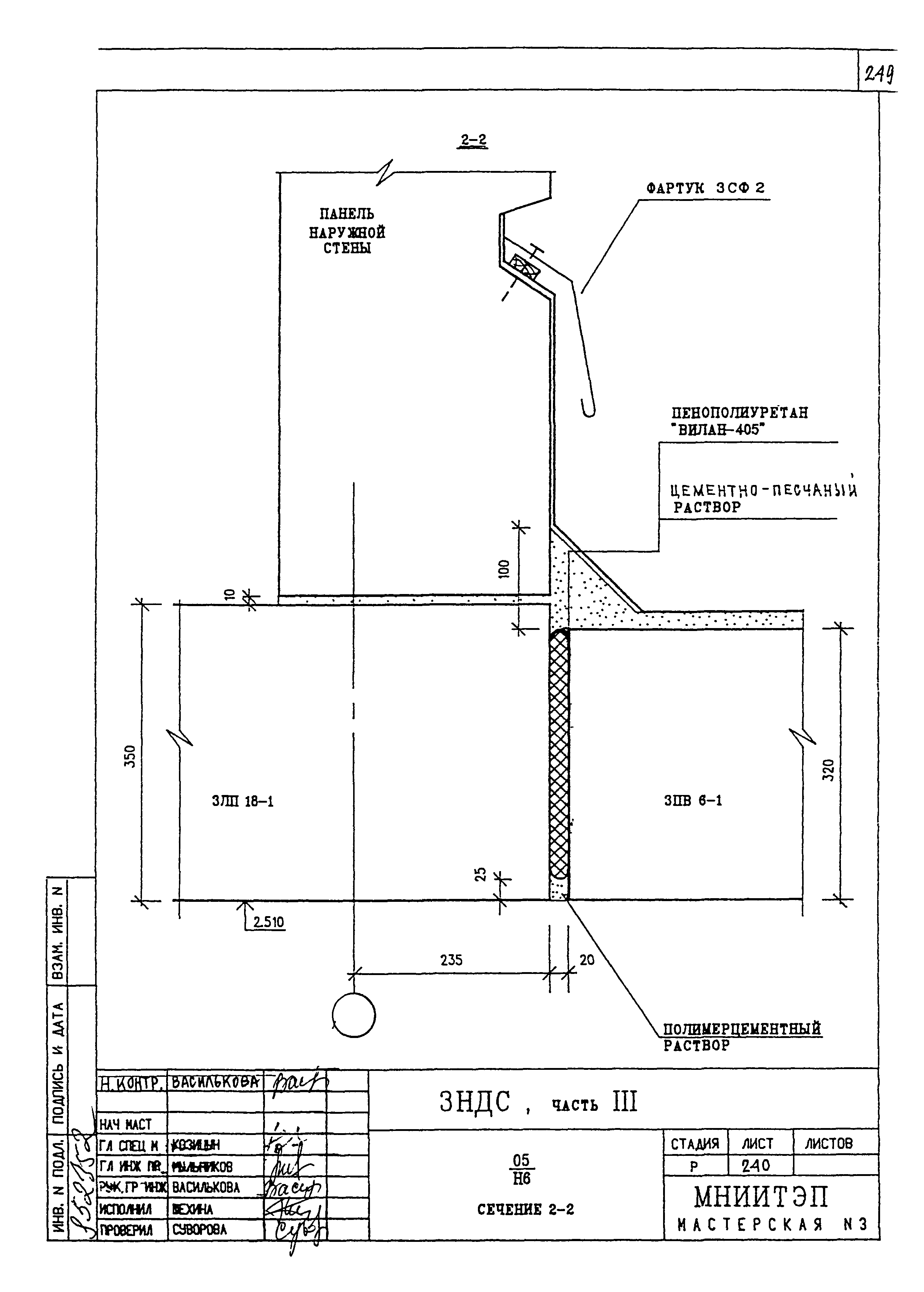
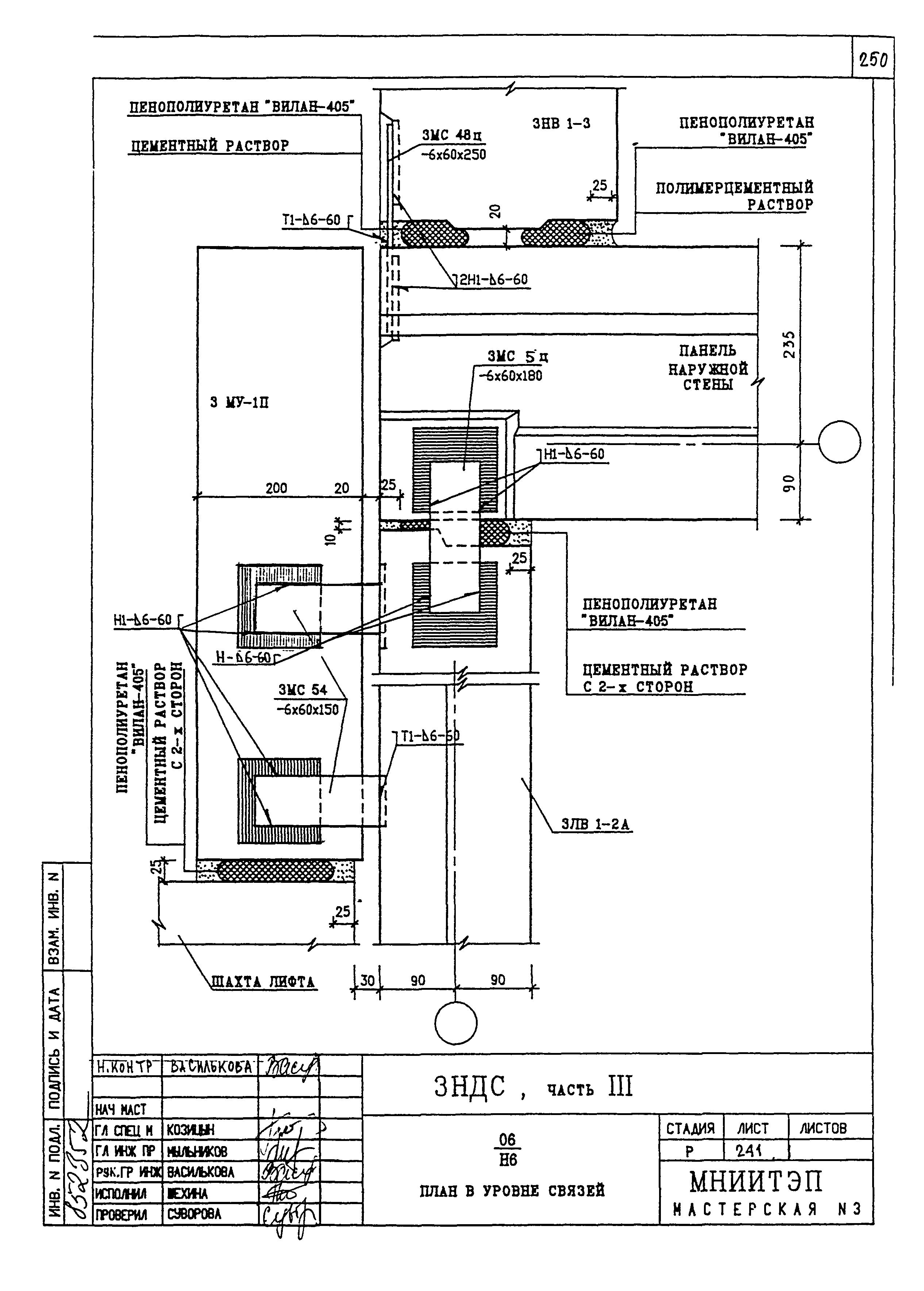
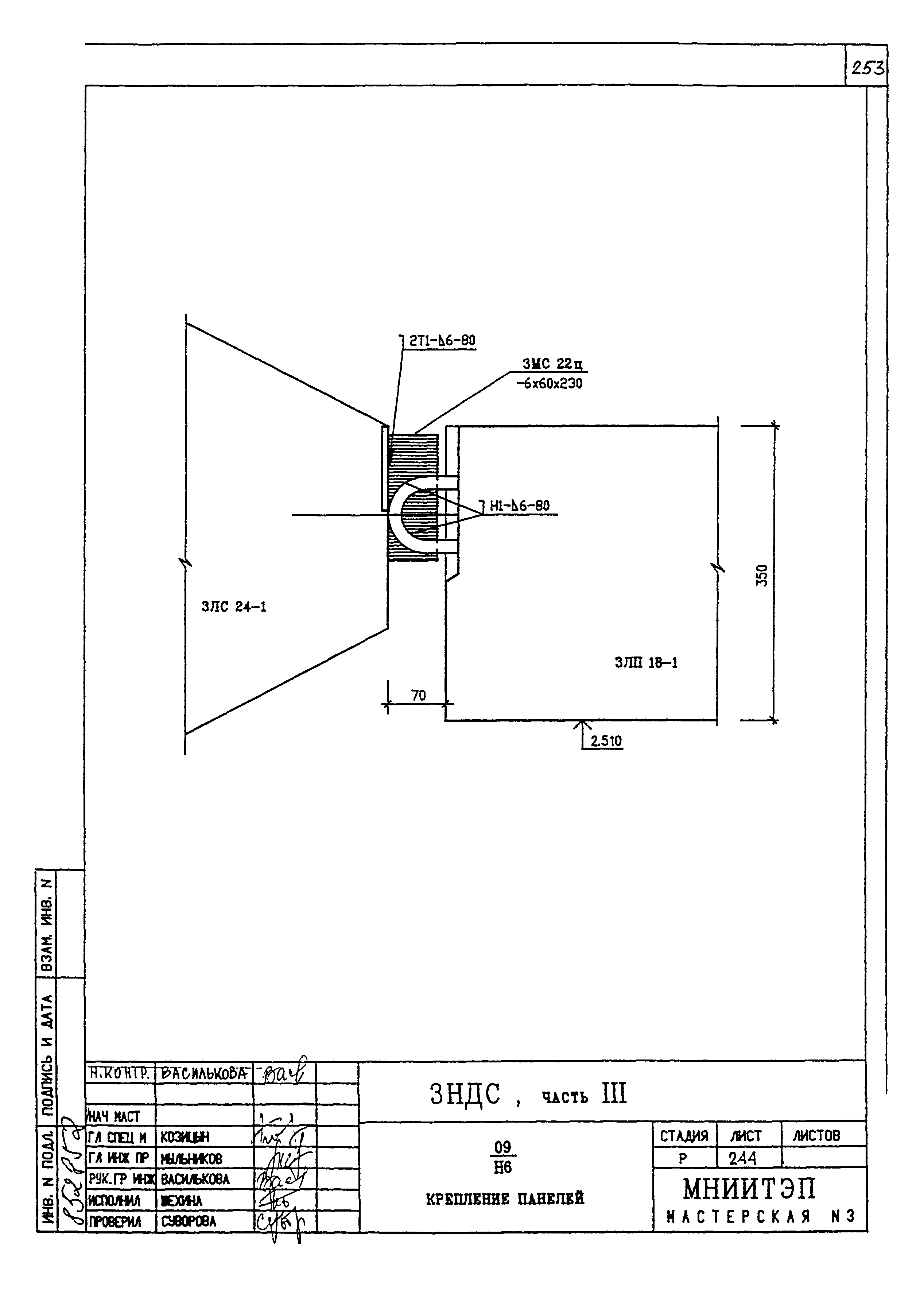
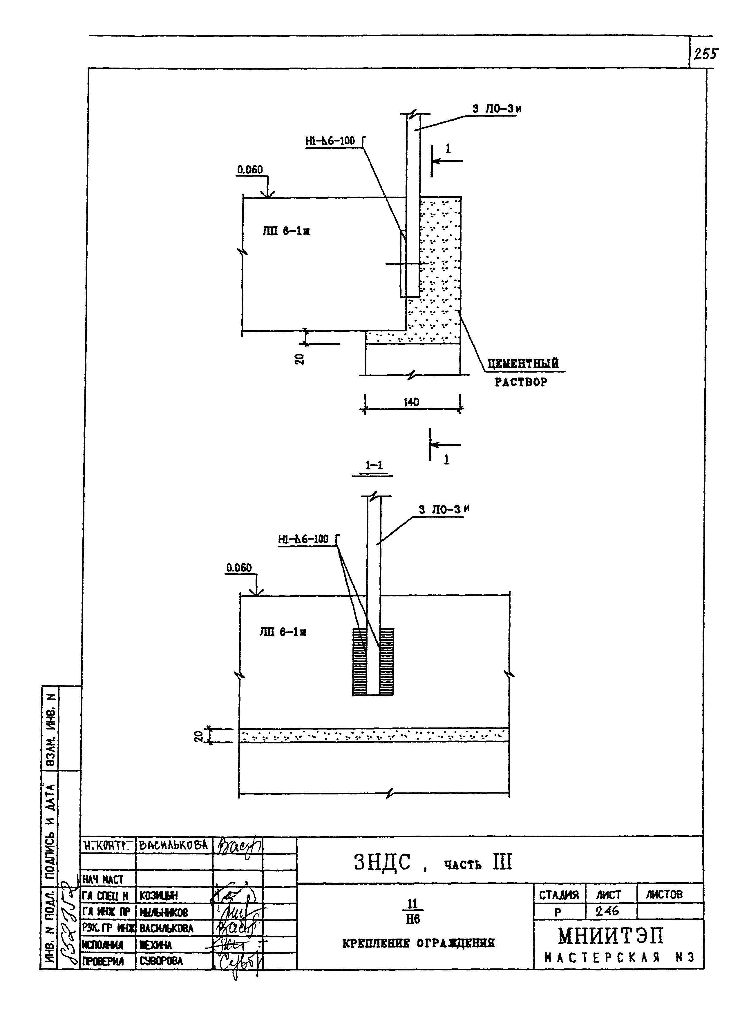
Скачать 3 НДС, часть III Железобетонные конструкции надземной части здания для жилых блок-секций серии П3М с 3-х слойными наружными стеновыми панелями. Вариант по защите здания от прогрессирующего обрушения. Детали узловДата актуализации: 01.01.2021 3 НДС, часть III
Железобетонные конструкции надземной части здания для жилых блок-секций серии П3М с 3-х слойными наружными стеновыми панелями. Вариант по защите здания от прогрессирующего обрушения. Детали узлов| Обозначение: | 3 НДС, часть III | | Обозначение англ: | 3 НДС, часть III | | Статус: | не определен законодательством | | Название рус.: | Железобетонные конструкции надземной части здания для жилых блок-секций серии П3М с 3-х слойными наружными стеновыми панелями. Вариант по защите здания от прогрессирующего обрушения. Детали узлов | | Дата добавления в базу: | 01.09.2013 | | Дата актуализации: | 01.01.2021 | | Дата введения: | 01.01.2003 | | Дата окончания срока действия: | 30.06.2003 | | Разработан: | МНИИТЭП
| | Утверждён: | 01.01.2003 МНИИТЭП (MNIITEP )
|
                                                                                                                                                                                                                                                                        
|