Скачать Новые объемно-разобщенные санитарно-технические кабины УК 1.1 и УК 1.2 для применения в строительстве массовых серий жилых домов в г. Москве. Эскизные архитектурно-планировочные и инженерные предложения (для изготовления опытных образцов)

Дата актуализации: 01.01.2021

Новые объемно-разобщенные санитарно-технические кабины УК 1.1 и УК 1.2 для применения в строительстве массовых серий жилых домов в г. Москве. Эскизные архитектурно-планировочные и инженерные предложения (для изготовления опытных образцов)

Статус:не определен законодательством
Название рус.:Новые объемно-разобщенные санитарно-технические кабины УК 1.1 и УК 1.2 для применения в строительстве массовых серий жилых домов в г. Москве. Эскизные архитектурно-планировочные и инженерные предложения (для изготовления опытных образцов)
Дата добавления в базу:01.09.2013
Дата актуализации:01.01.2021
Дата введения:01.01.2004
Оглавление:Содержание
Пояснительная записка
СТК УК 1.1. План размещения оборудования. Вариант №1. Для действующих серий
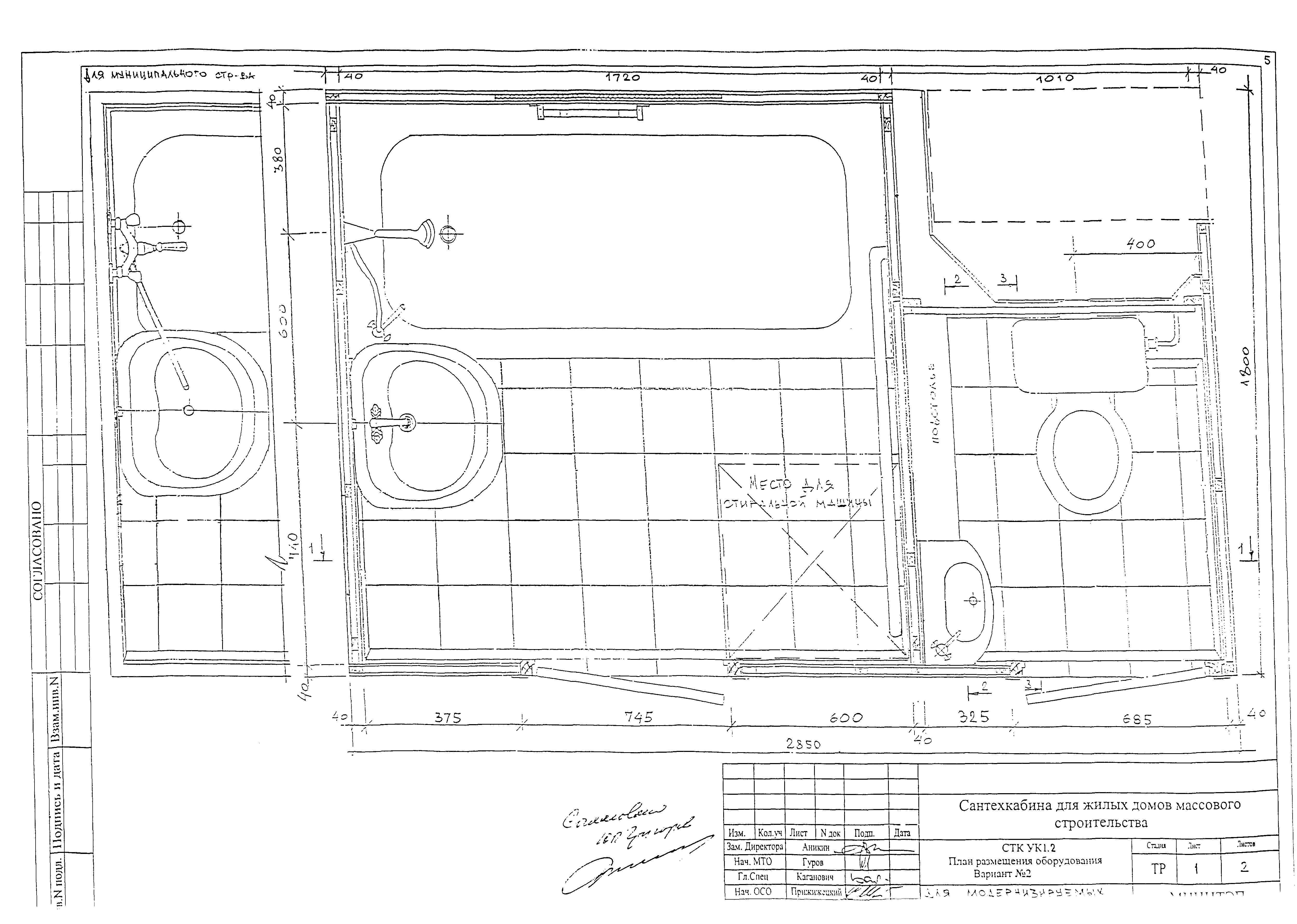
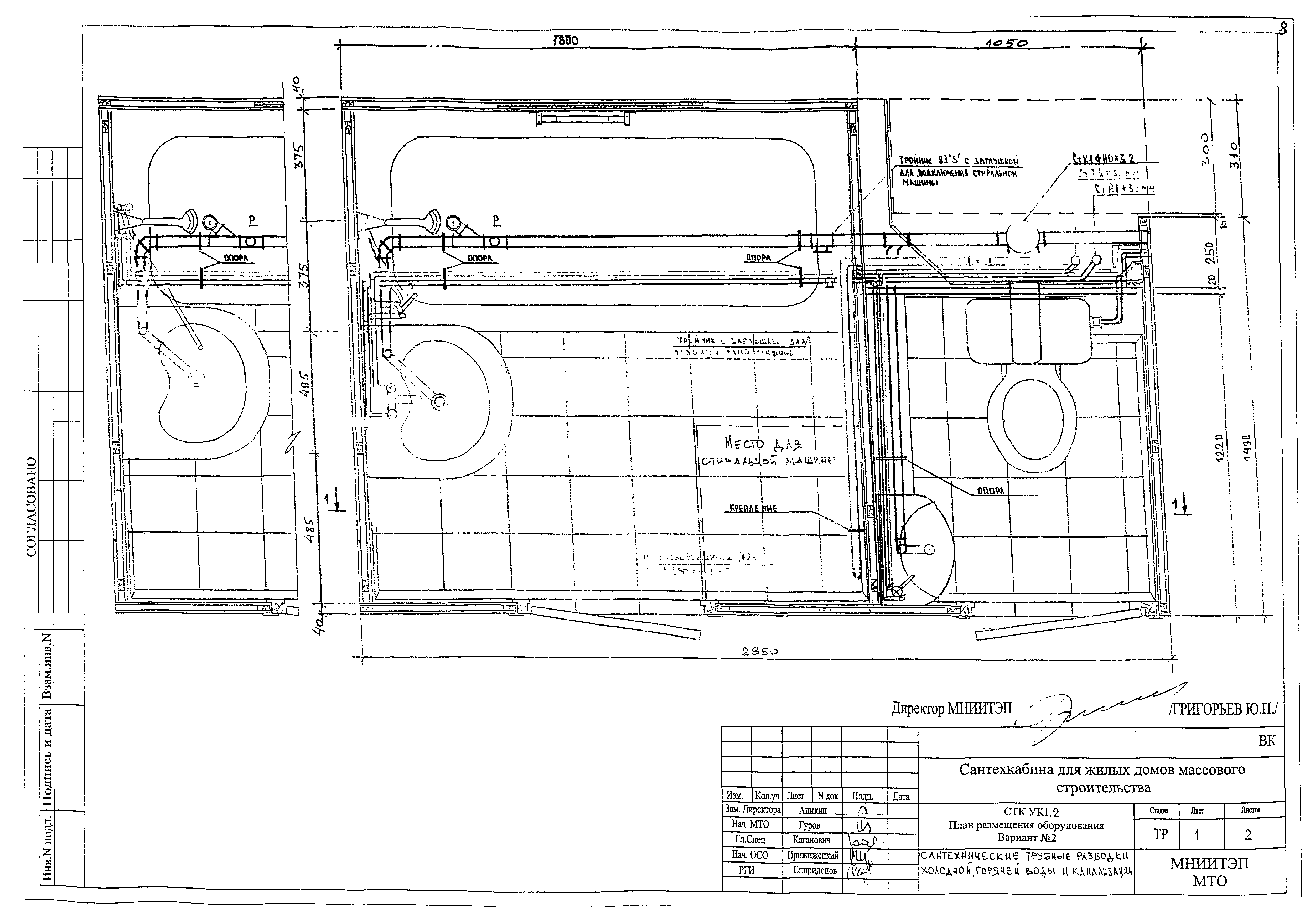
СТК УК 1.2. План размещения оборудования. Вариант №2. Для модернизируемых серий
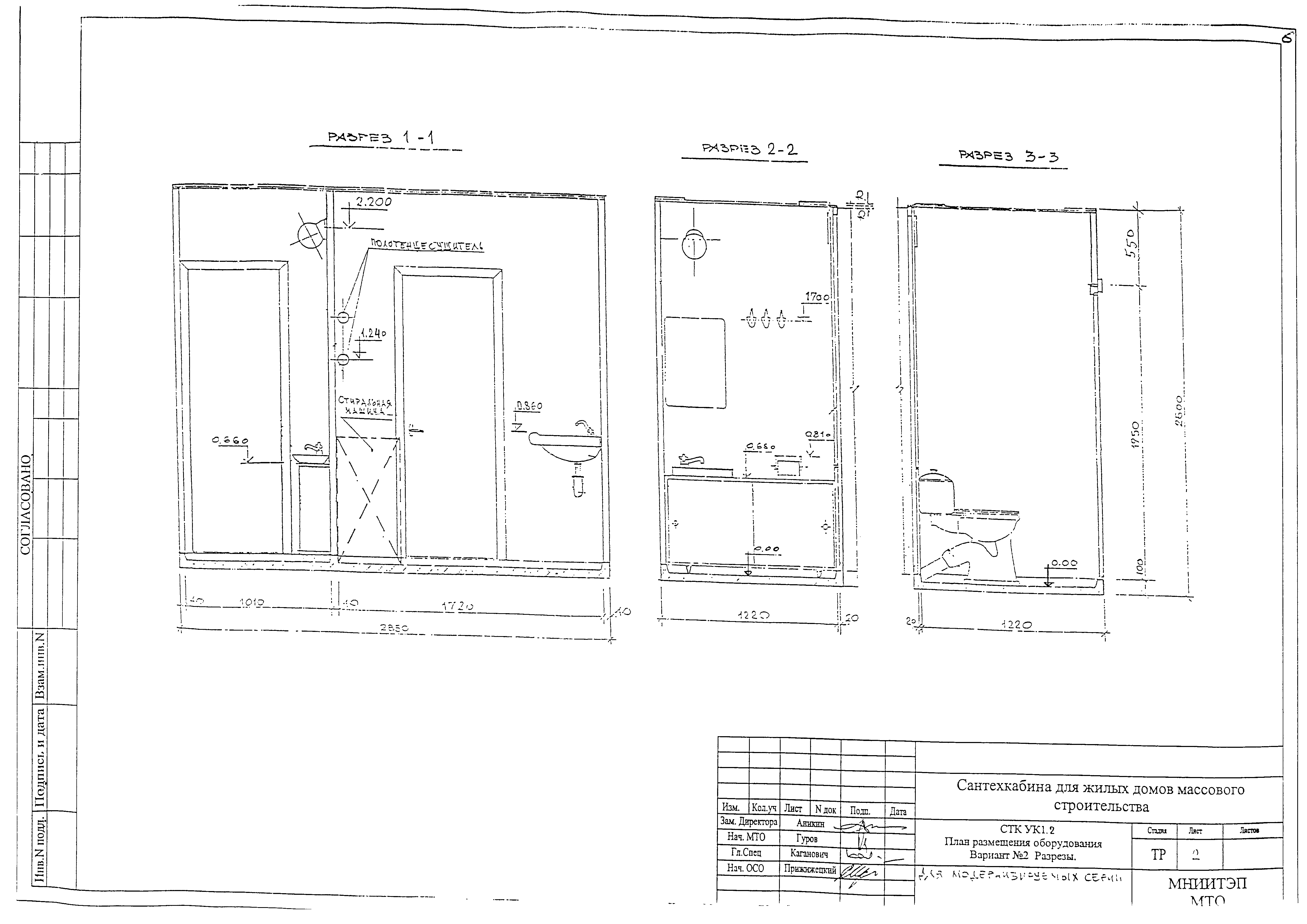
СТК УК 1.2. План размещения оборудования. Вариант №2. Разрезы для модернизируемых серий
СТК УК 1.1. План размещения оборудования. Вариант №1. Сантехнические трубные разводки
СТК УК 1.2. План размещения оборудования. Вариант №2. Сантехнические трубные разводки
СТК УК 1.2. План размещения оборудования. Вариант №2. Разрезы. Сантехнические трубные разводки
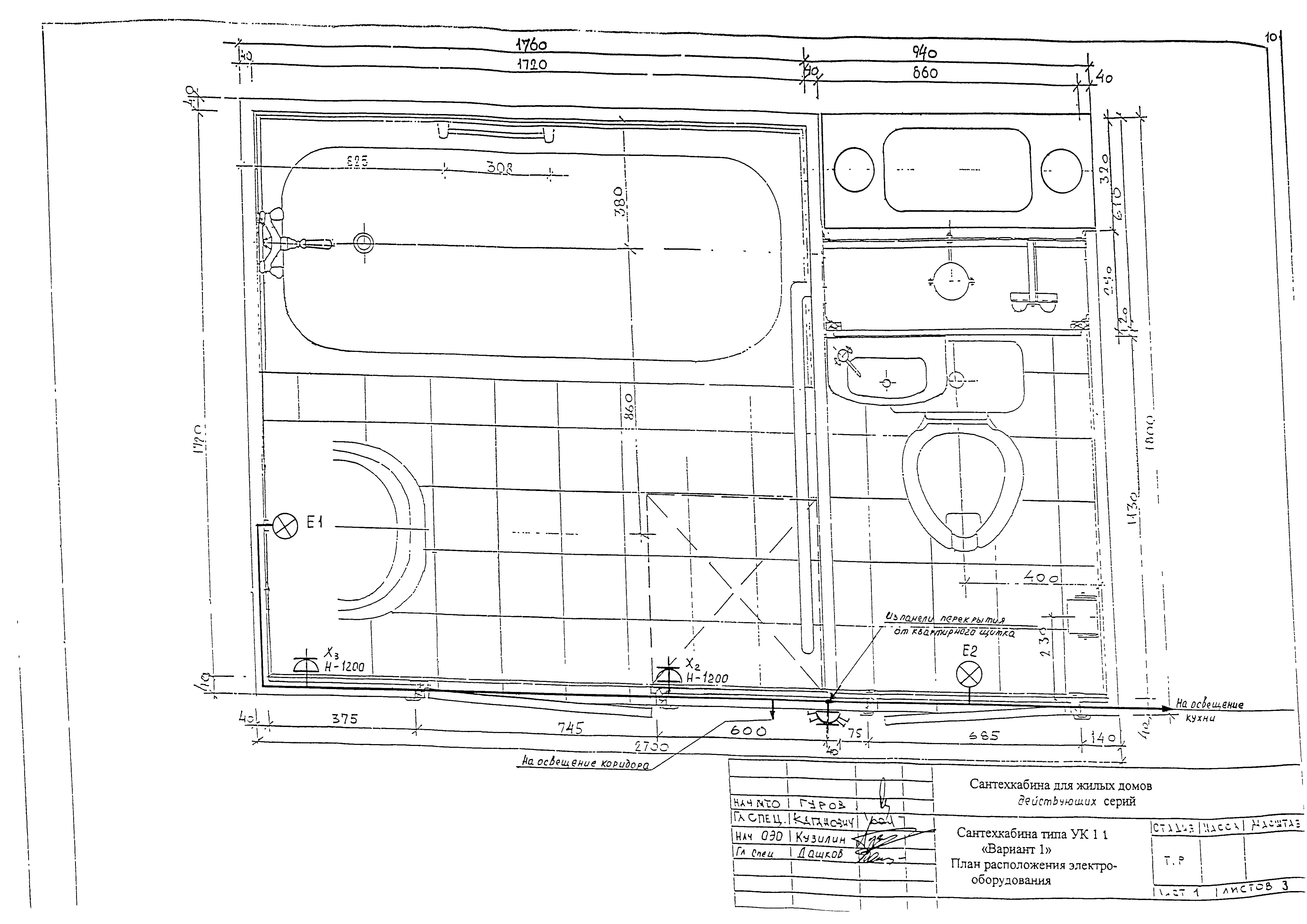
СТК УК 1.1. Вариант №1. План расположения электрооборудования
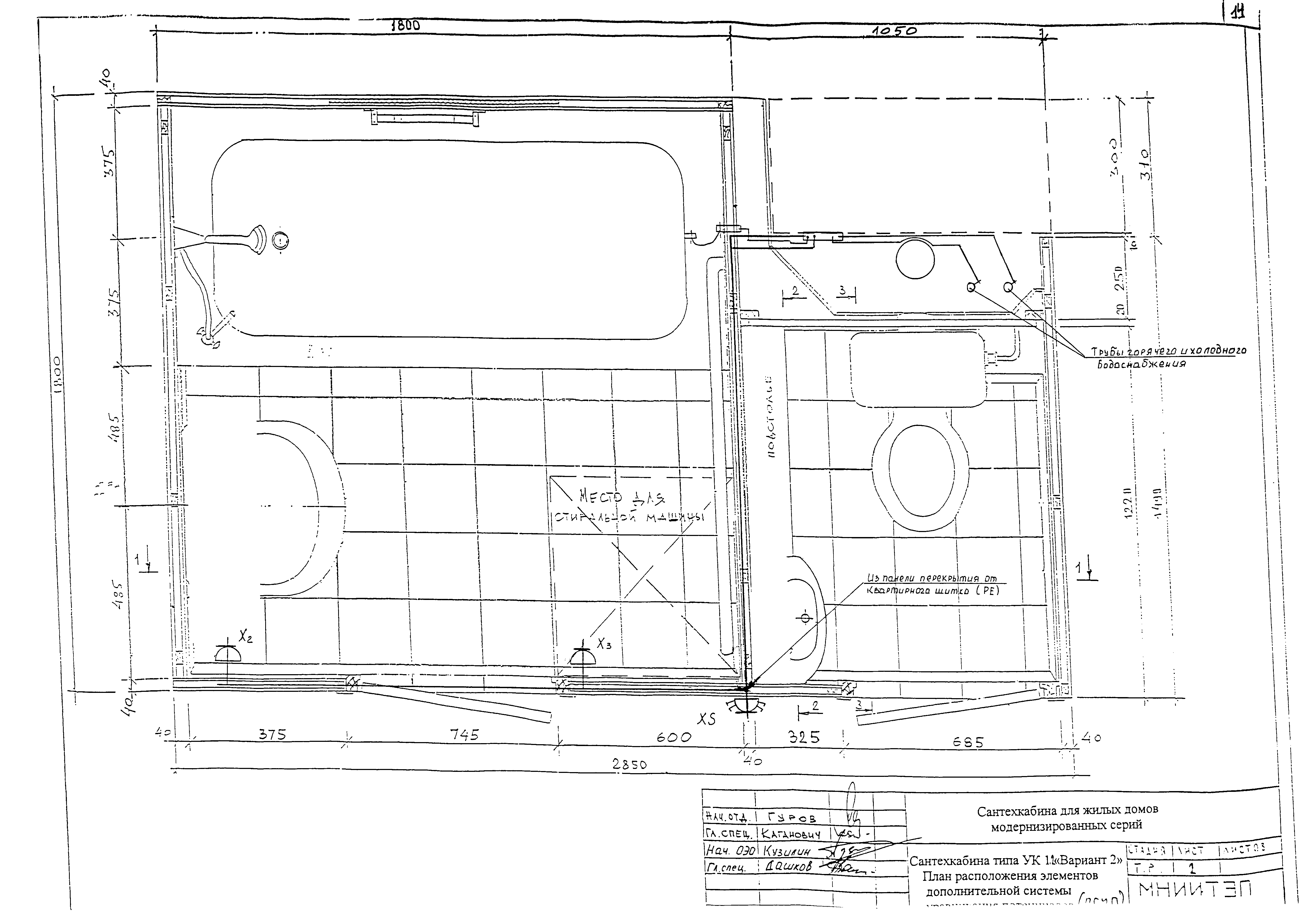
СТК УК 1.1. Вариант №1. План расположения элементов дополнительной системы уравнения потенциалов
СТК УК 1.1. Вариант №1. Схема электрическая принципиальная
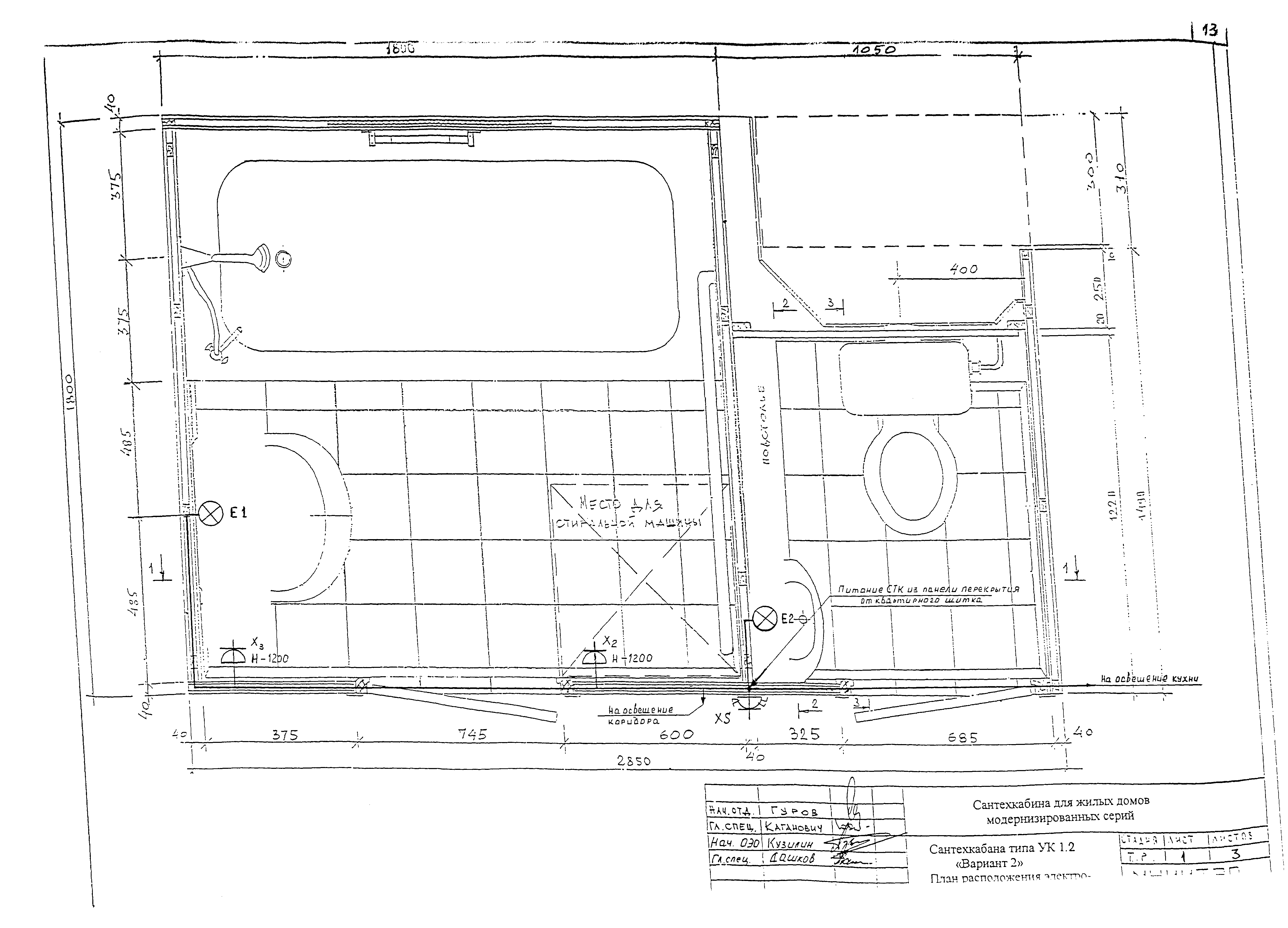
СТК УК 1.2. Вариант №2. План расположения электрооборудования
СТК УК 1.2. Вариант №2. План расположения элементов дополнительной системы уравнения потенциалов
СТК УК 1.2. Вариант №2. Схема электрическая принципиальная
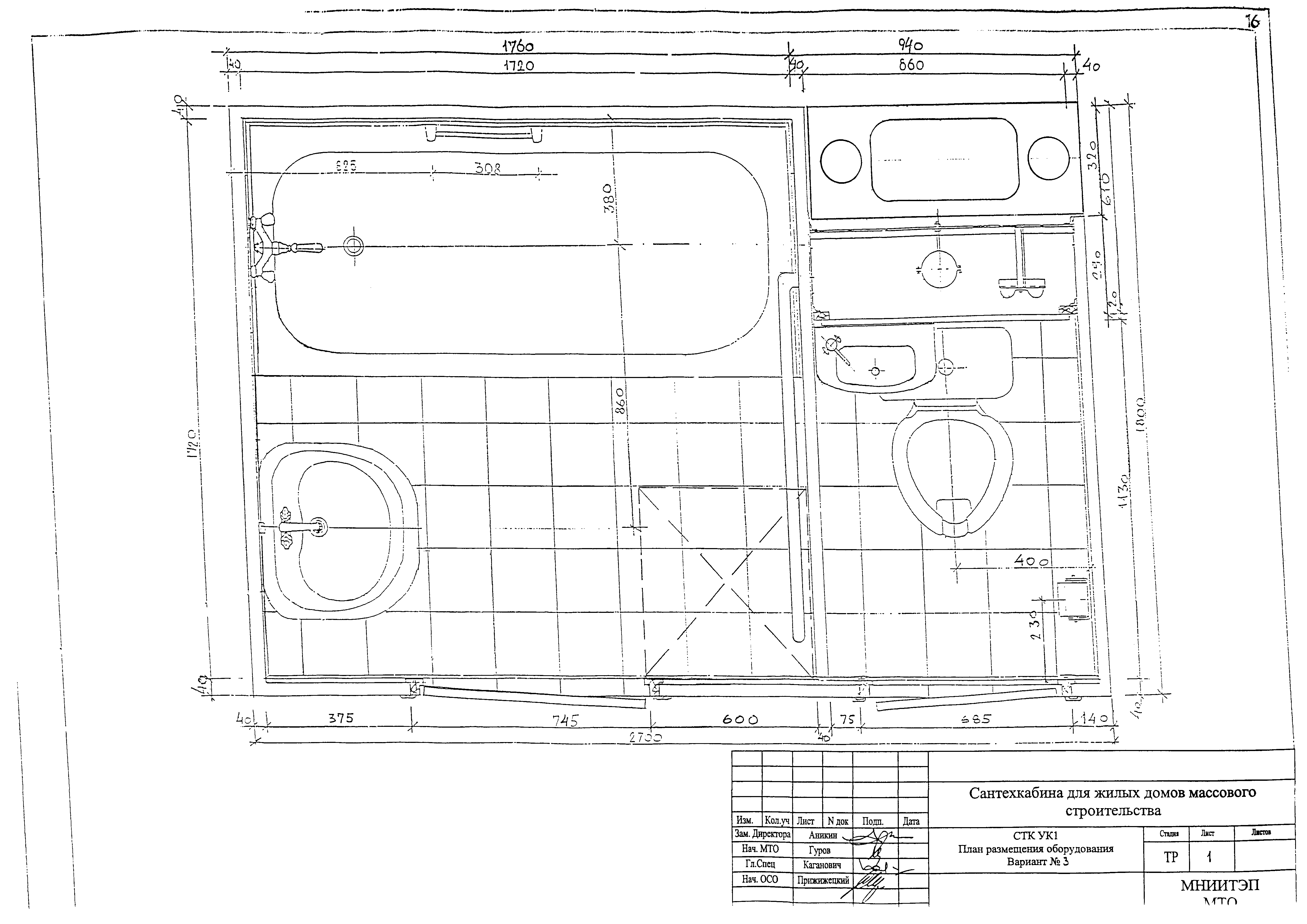
СТК УК1. План размещения оборудования. Вариант №3
СТК УК1. План размещения оборудования. Вариант №4
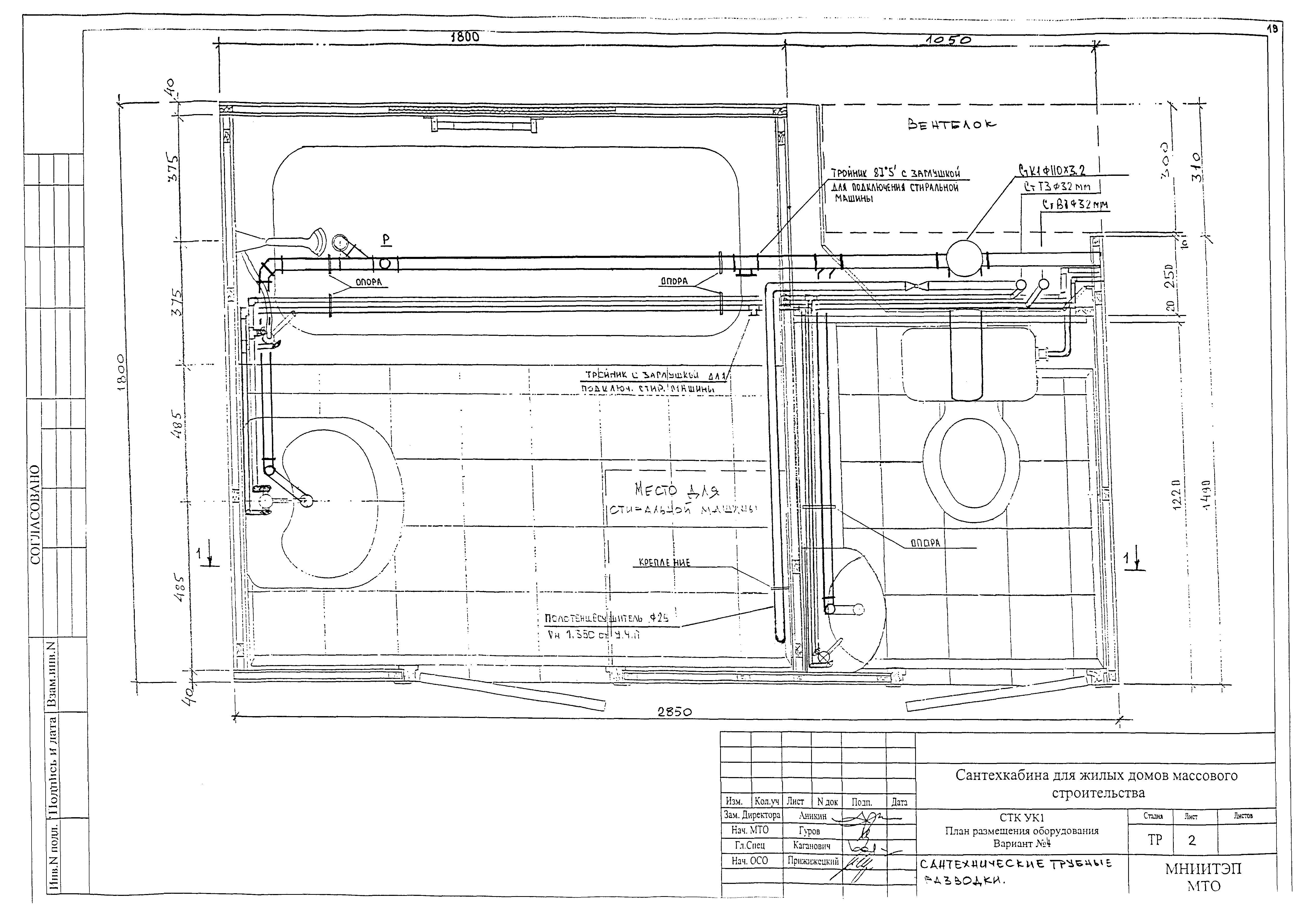
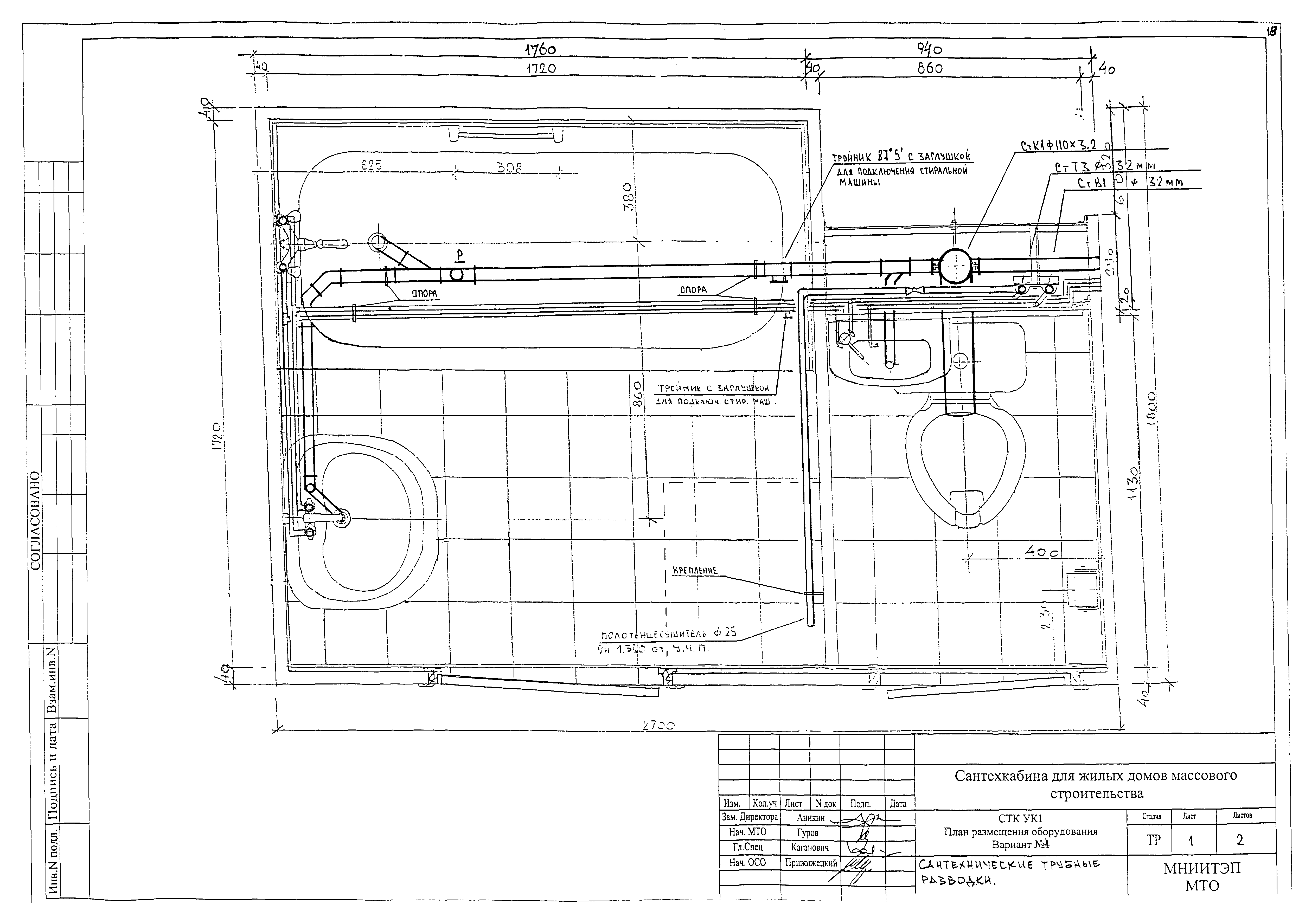
СТК УК1. План размещения оборудования. Вариант №4. Сантехразводки
СТК УК1. План размещения оборудования. Вариант №4. Разрезы. Сантехразводки
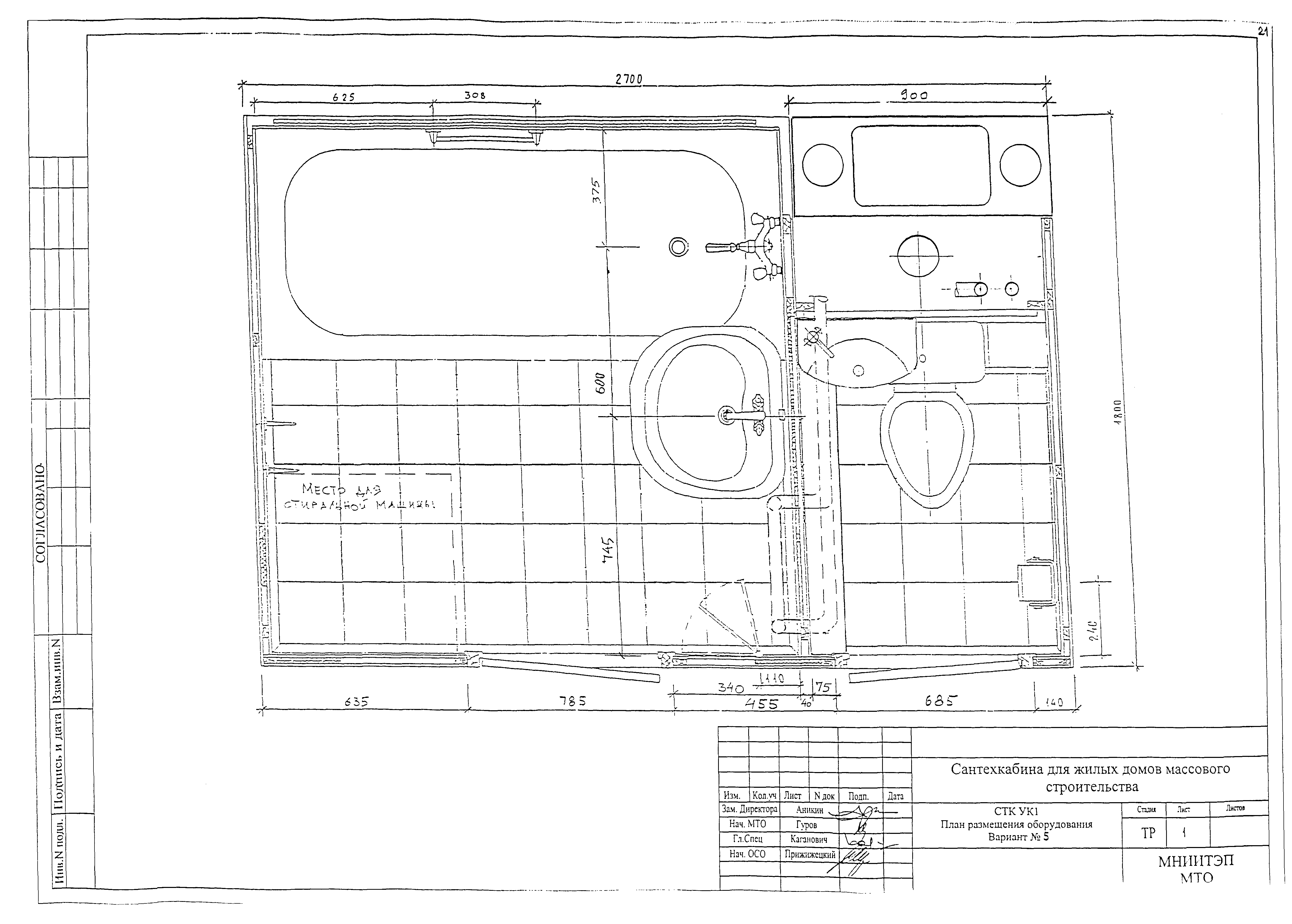
СТК УК1. План размещения оборудования. Вариант №5
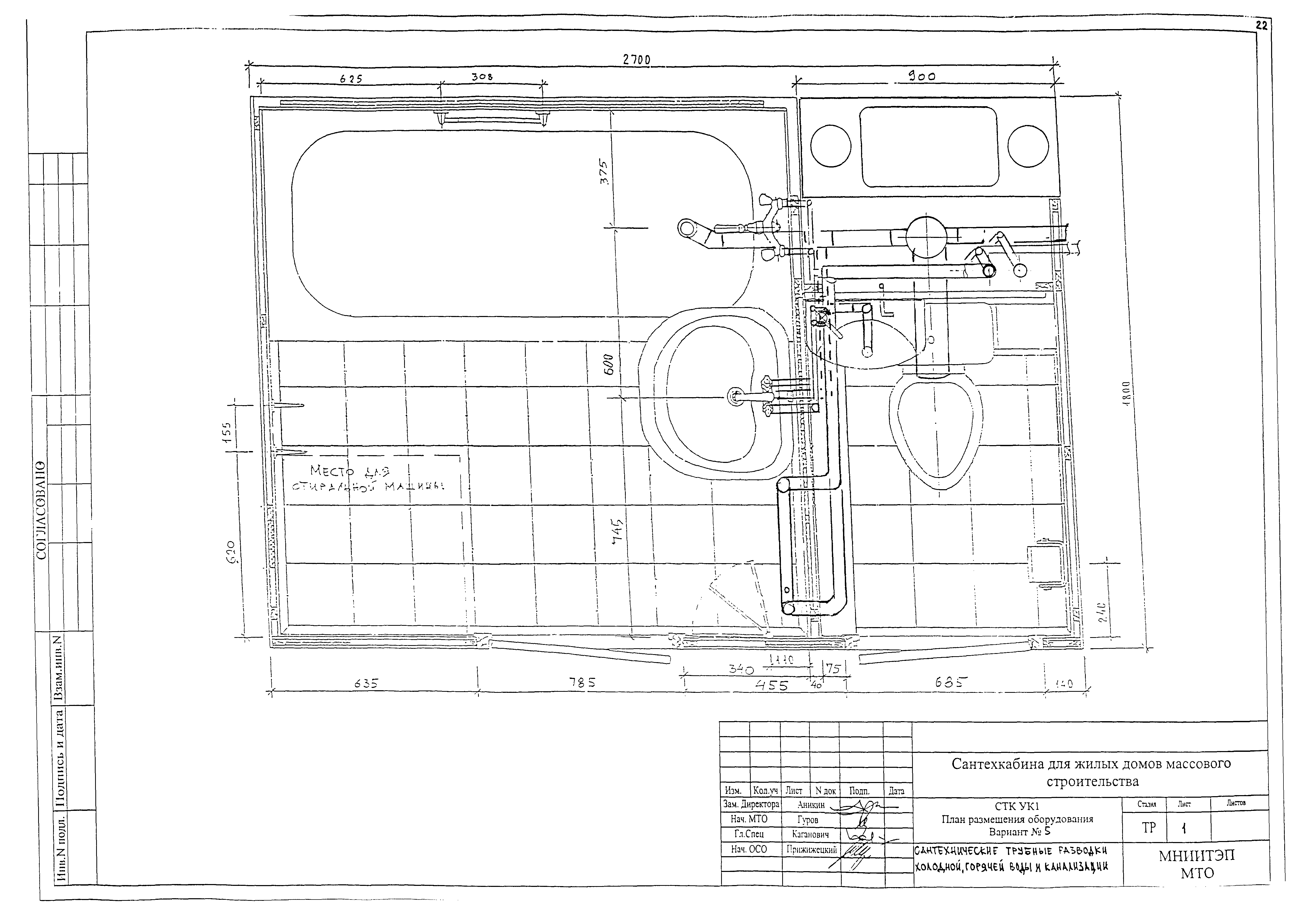
СТК УК1. План размещения оборудования. Вариант №5. Сантехразводки
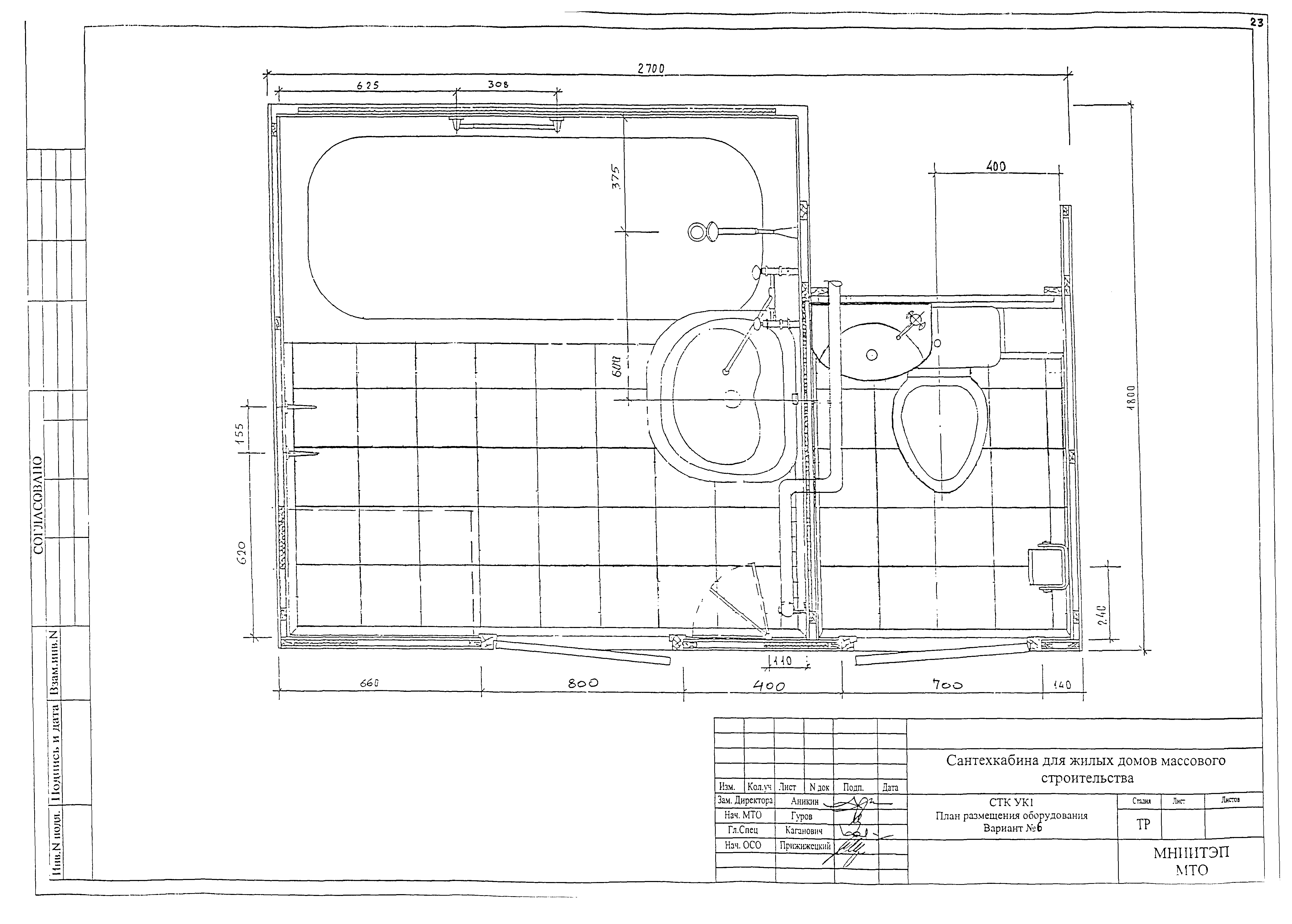
СТК УК1. План размещения оборудования. Вариант №6
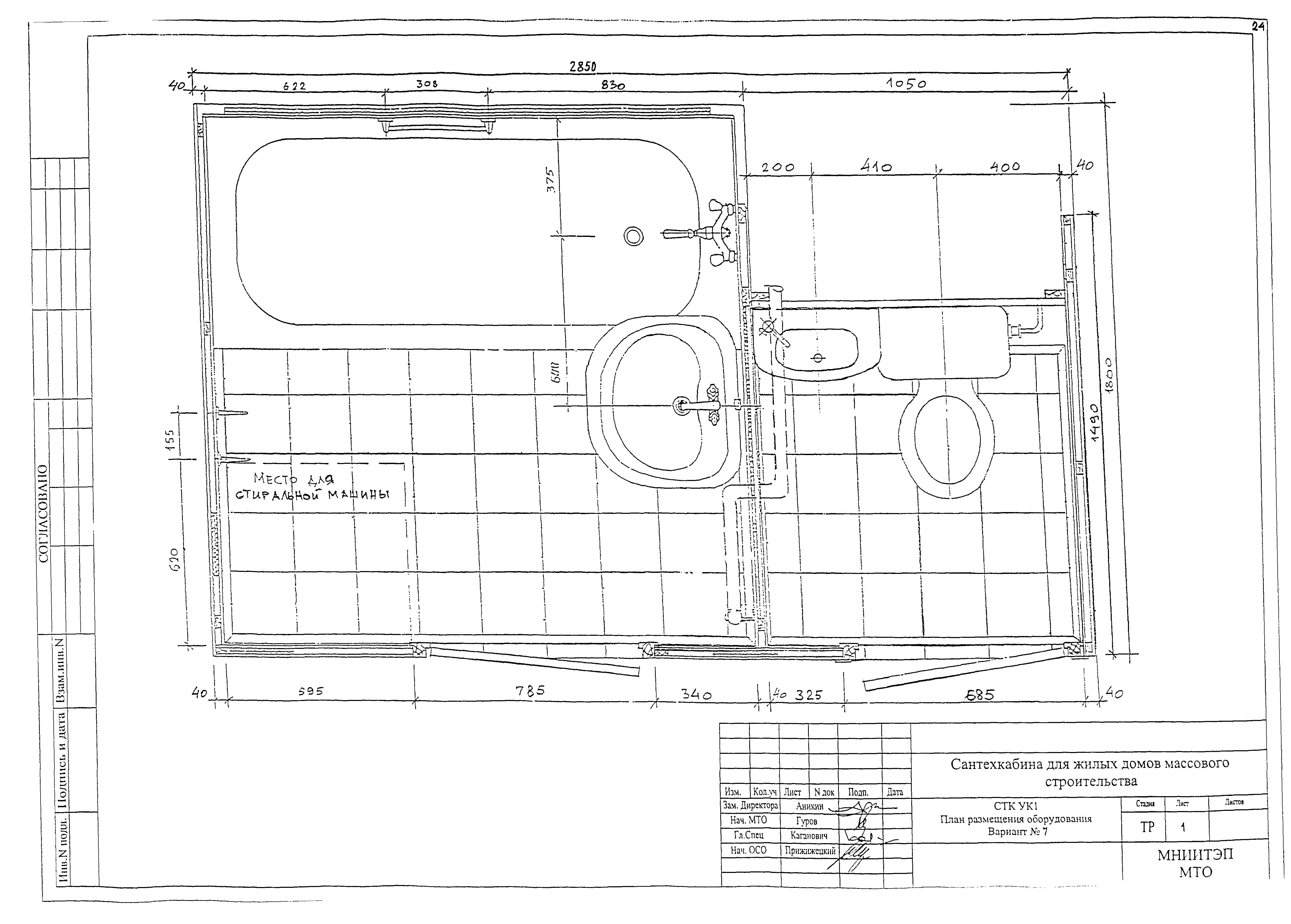
СТК УК1. План размещения оборудования. Вариант №7
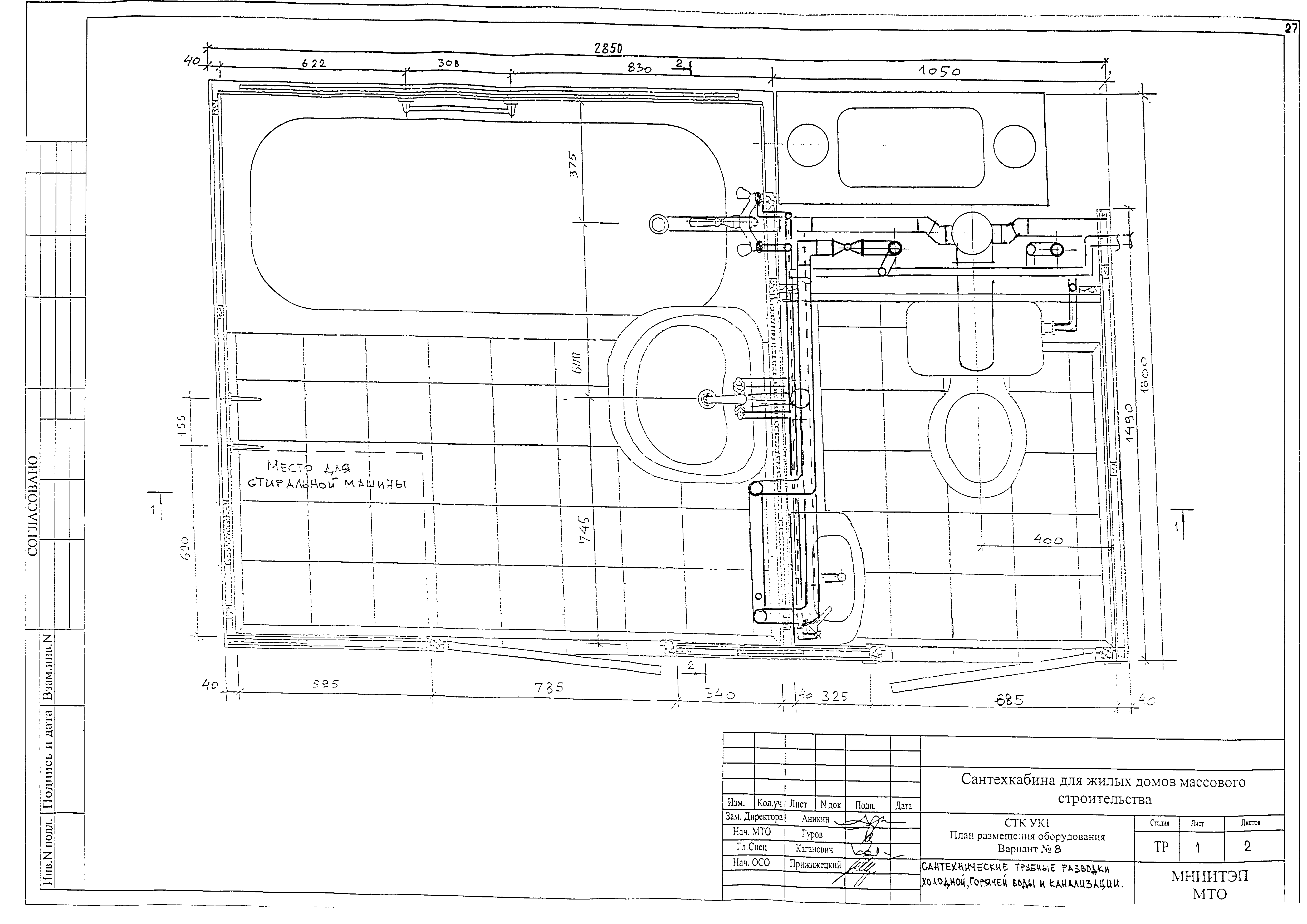
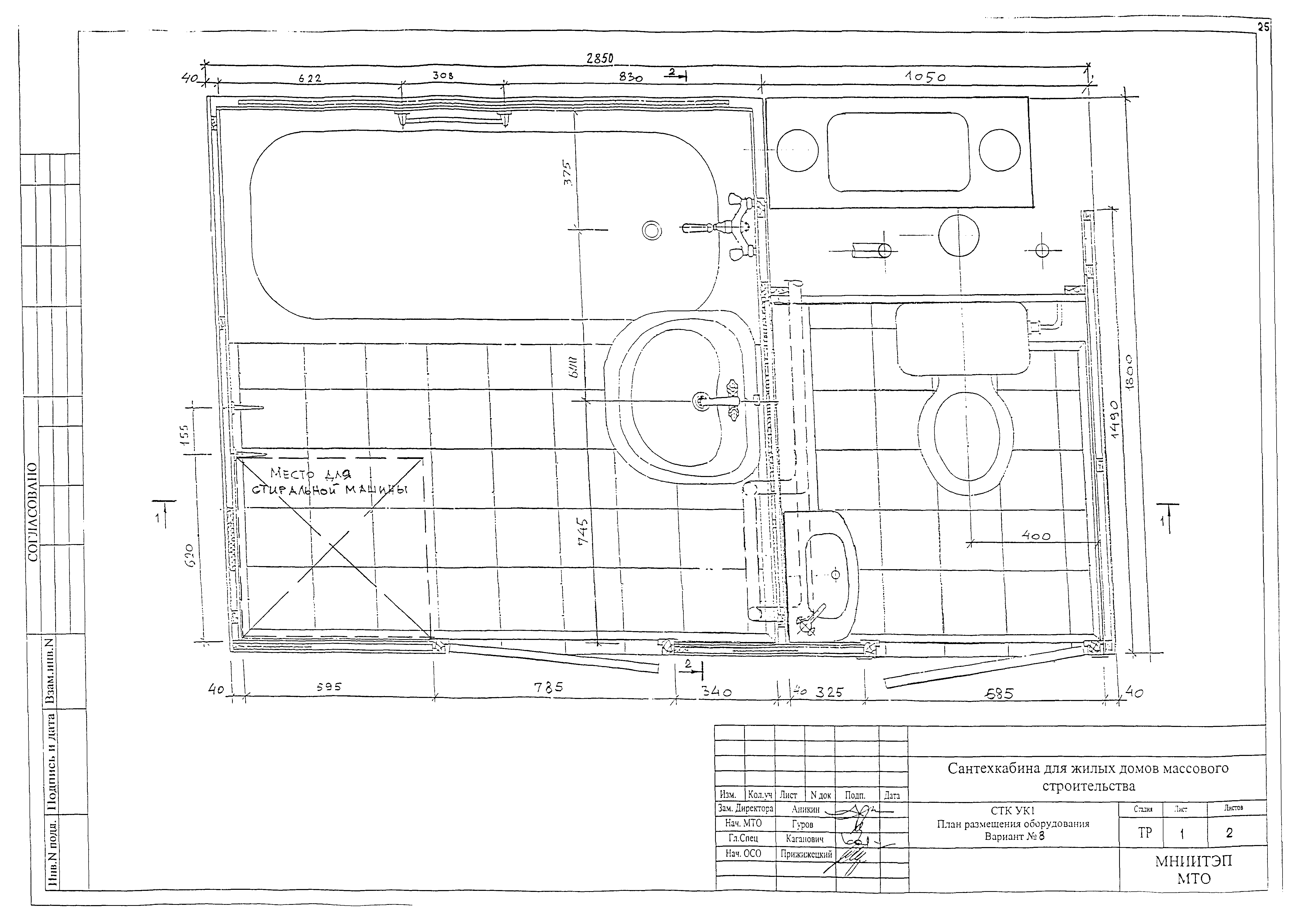
СТК УК1. План размещения оборудования. Вариант №8
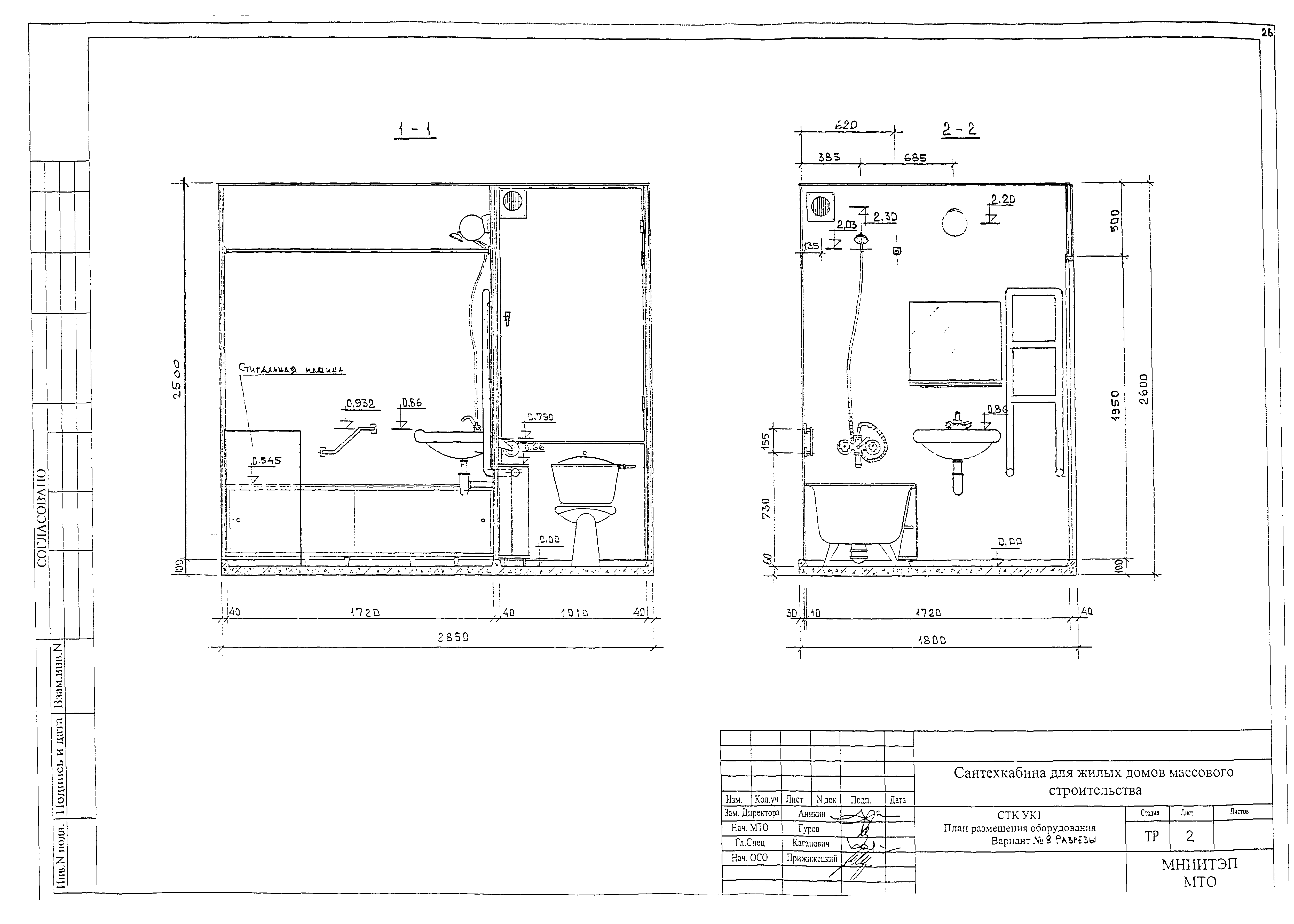
СТК УК1. План размещения оборудования. Вариант №8. Разрезы
СТК УК1. План размещения оборудования. Вариант №8. Сантехразводки
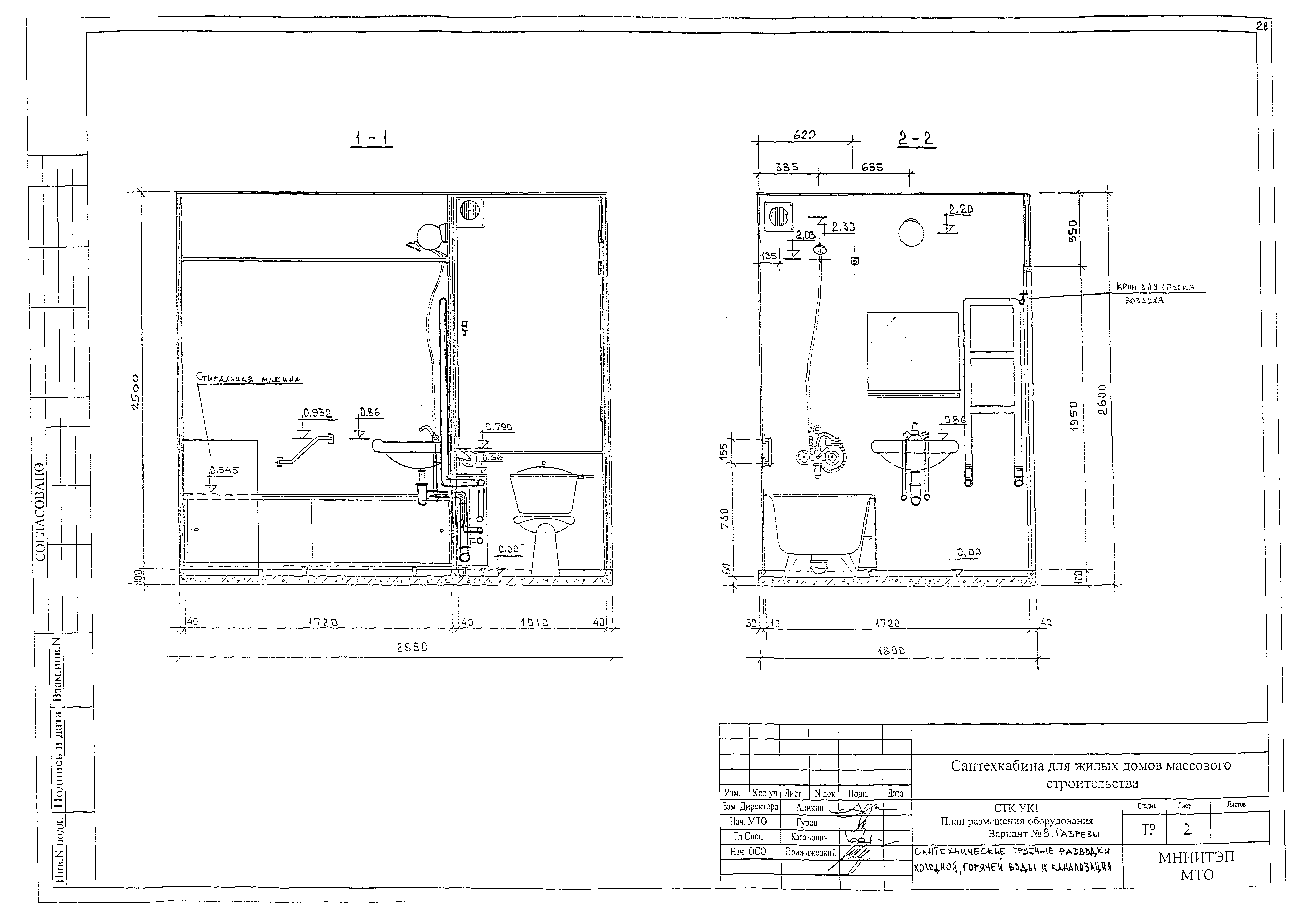
СТК УК1. План размещения оборудования. Вариант №8. Разрезы. Сантехразводки
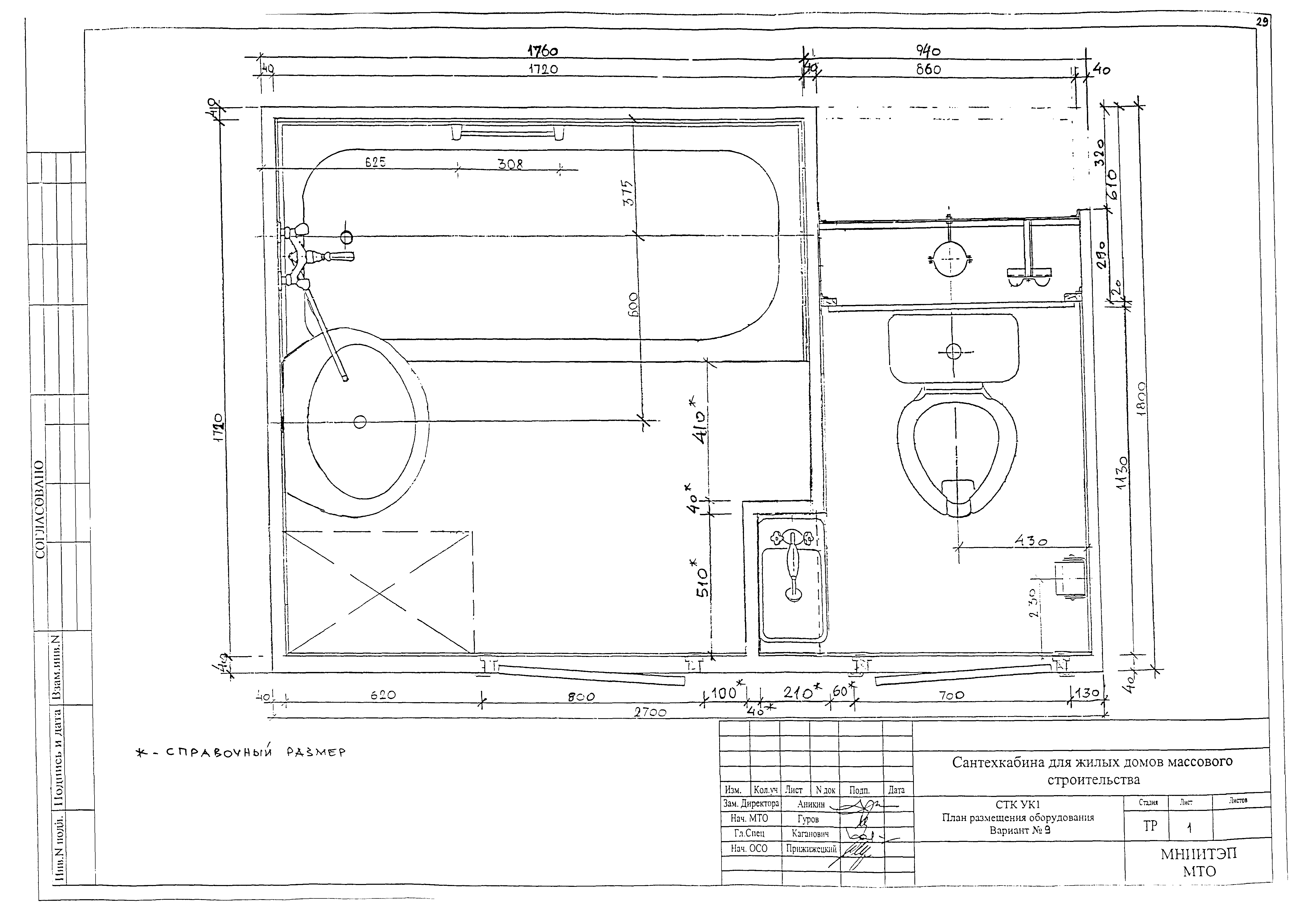
СТК УК1. План размещения оборудования. Вариант №9
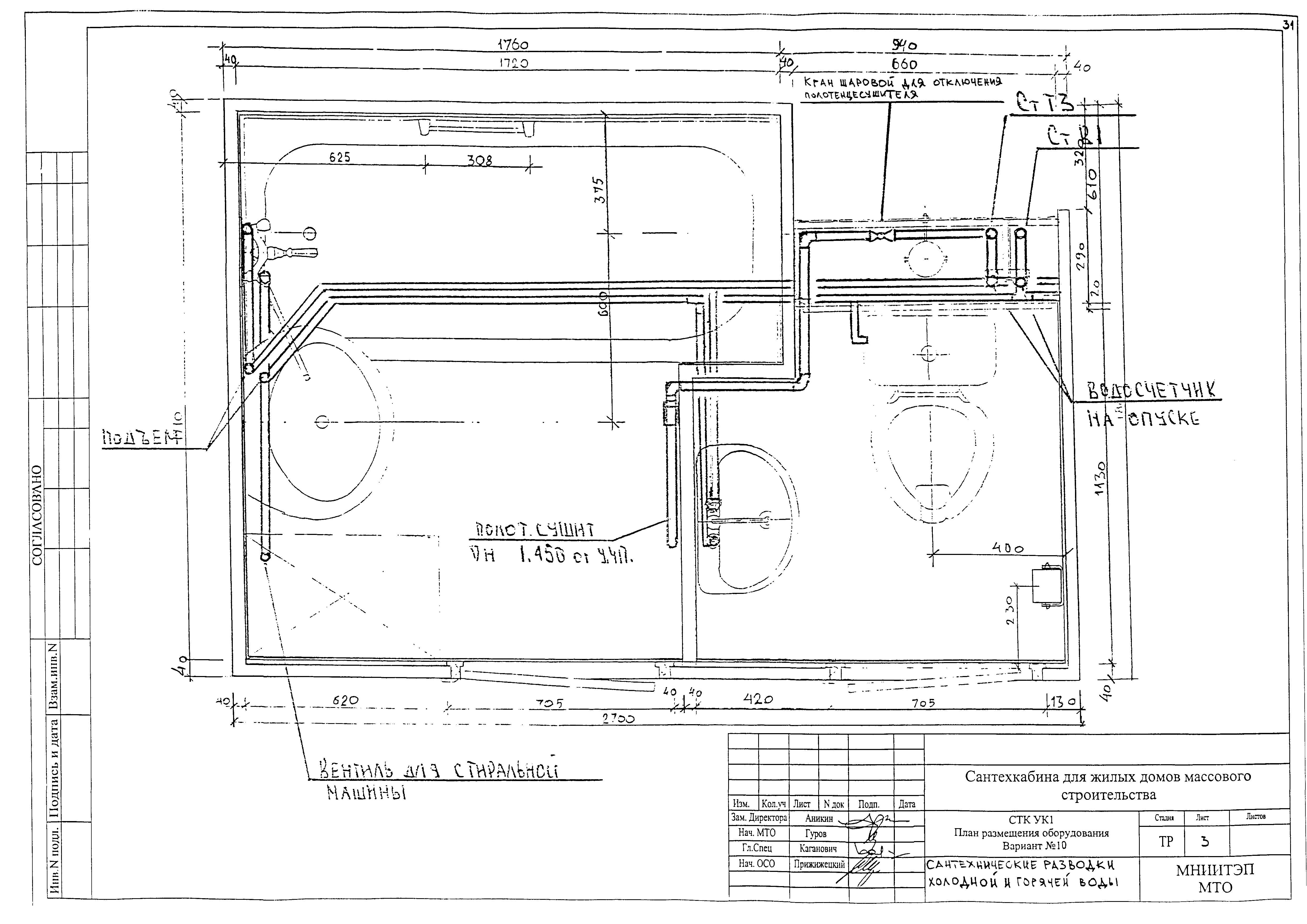
СТК УК1. План размещения оборудования. Вариант №10
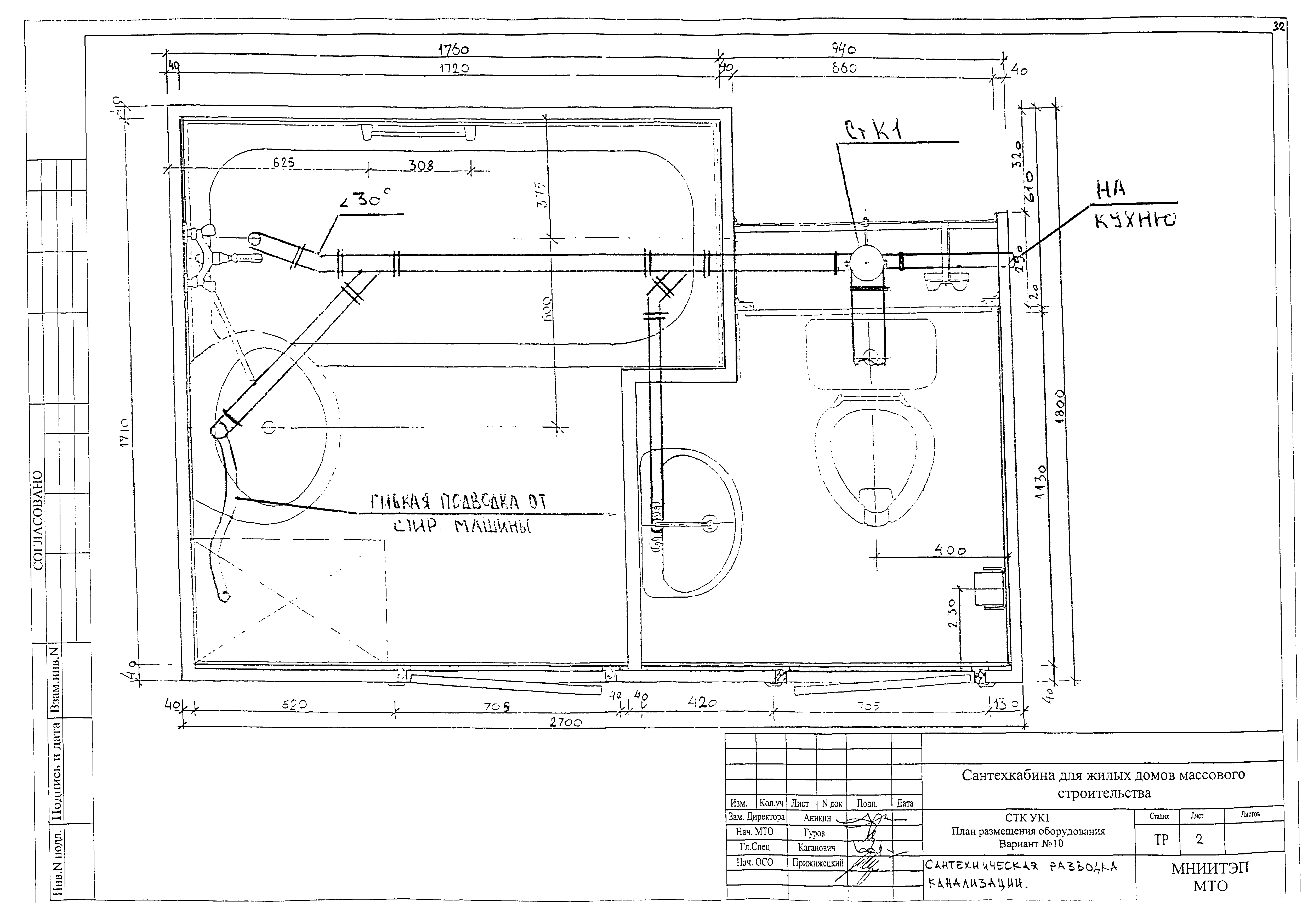
СТК УК1. План размещения оборудования. Вариант №10. Сантехразводки
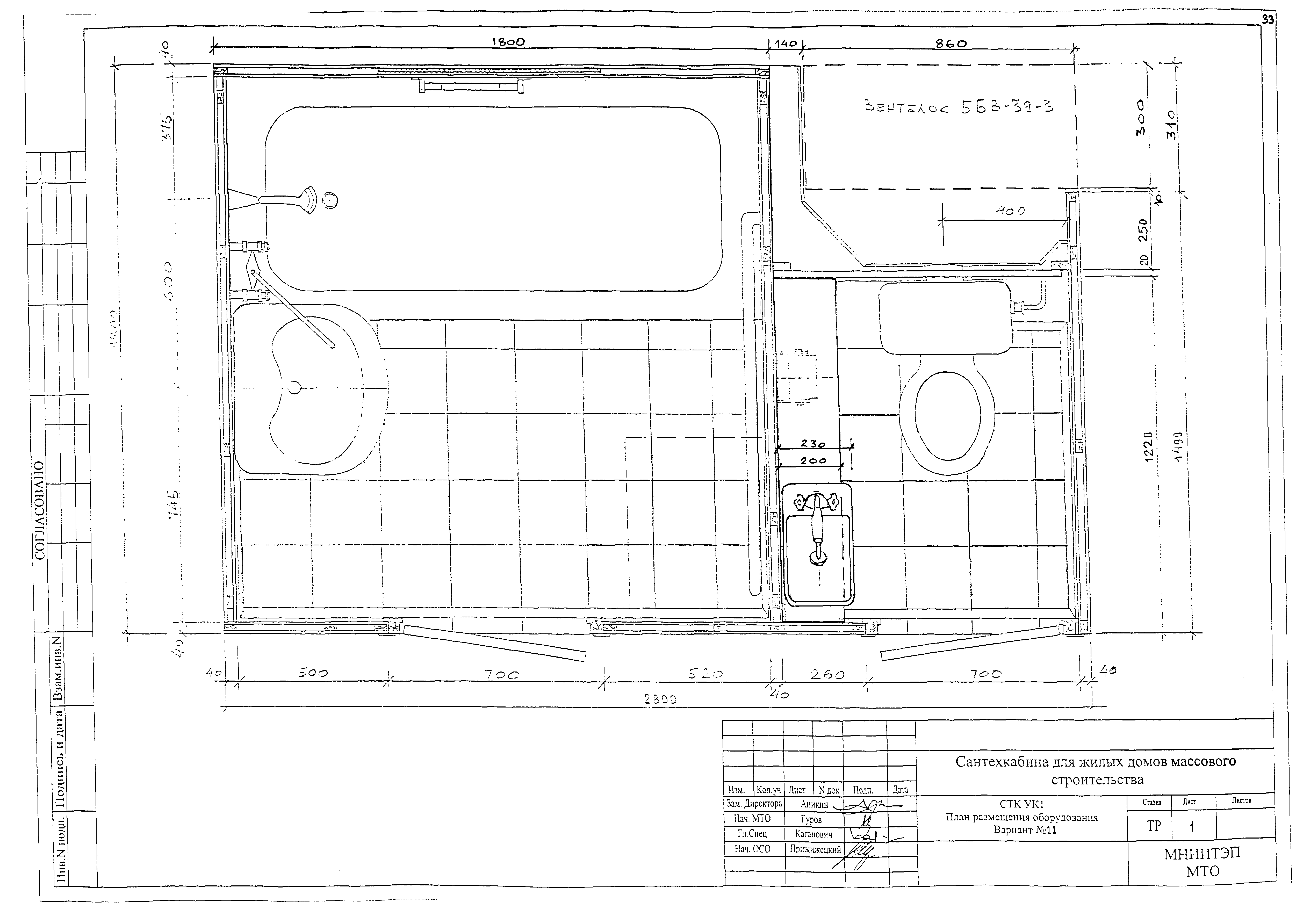
СТК УК1. План размещения оборудования. Вариант №11
Разработан: МНИИТЭП
Утверждён:01.01.2004 МНИИТЭП (MNIITEP )