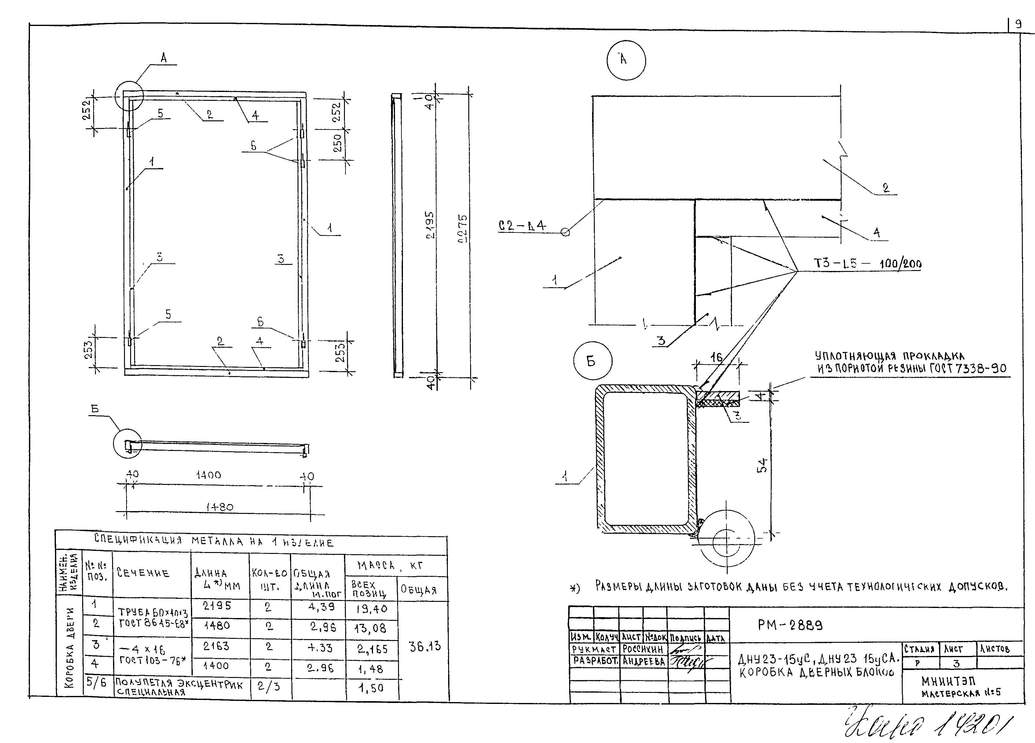
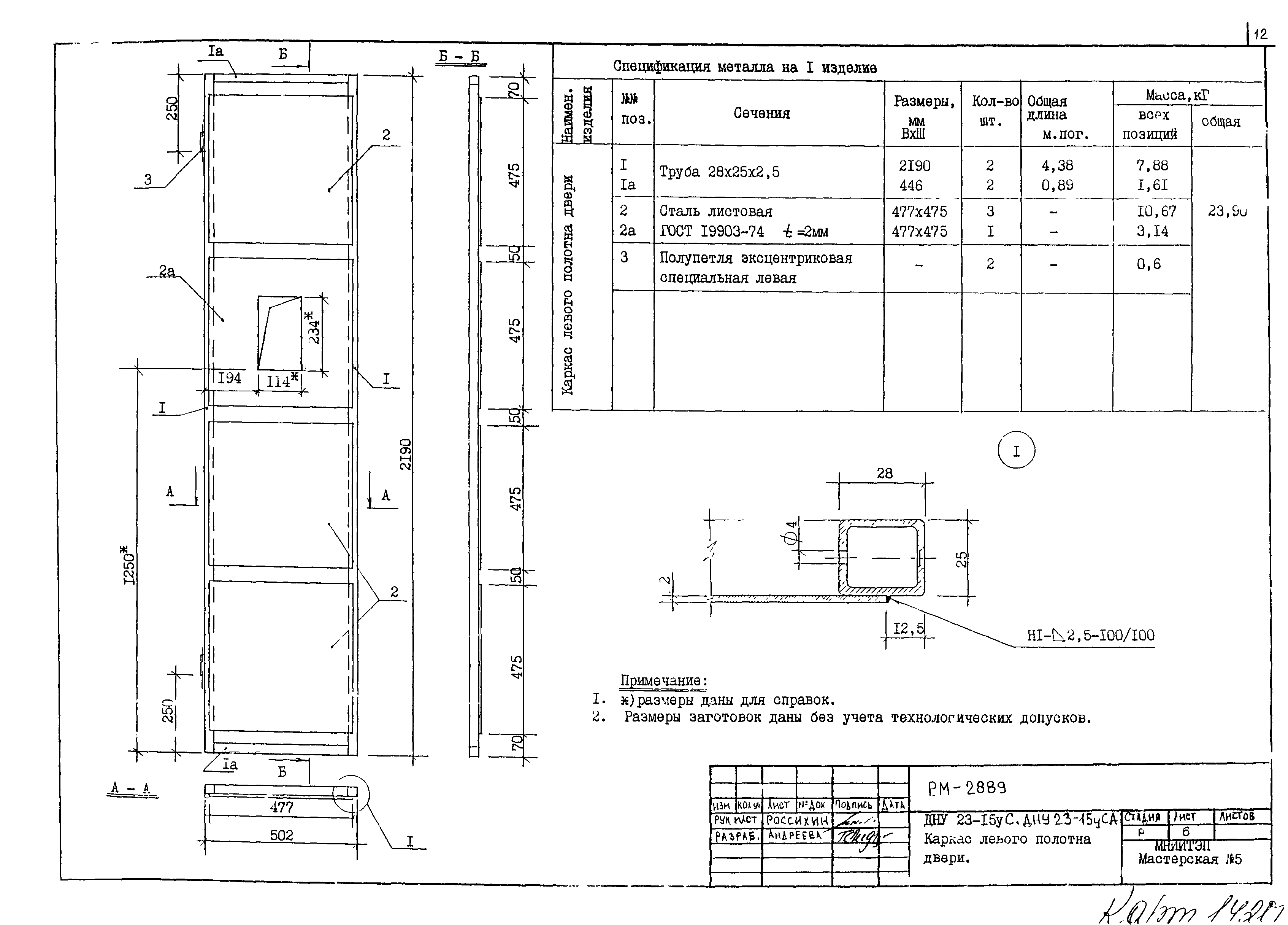
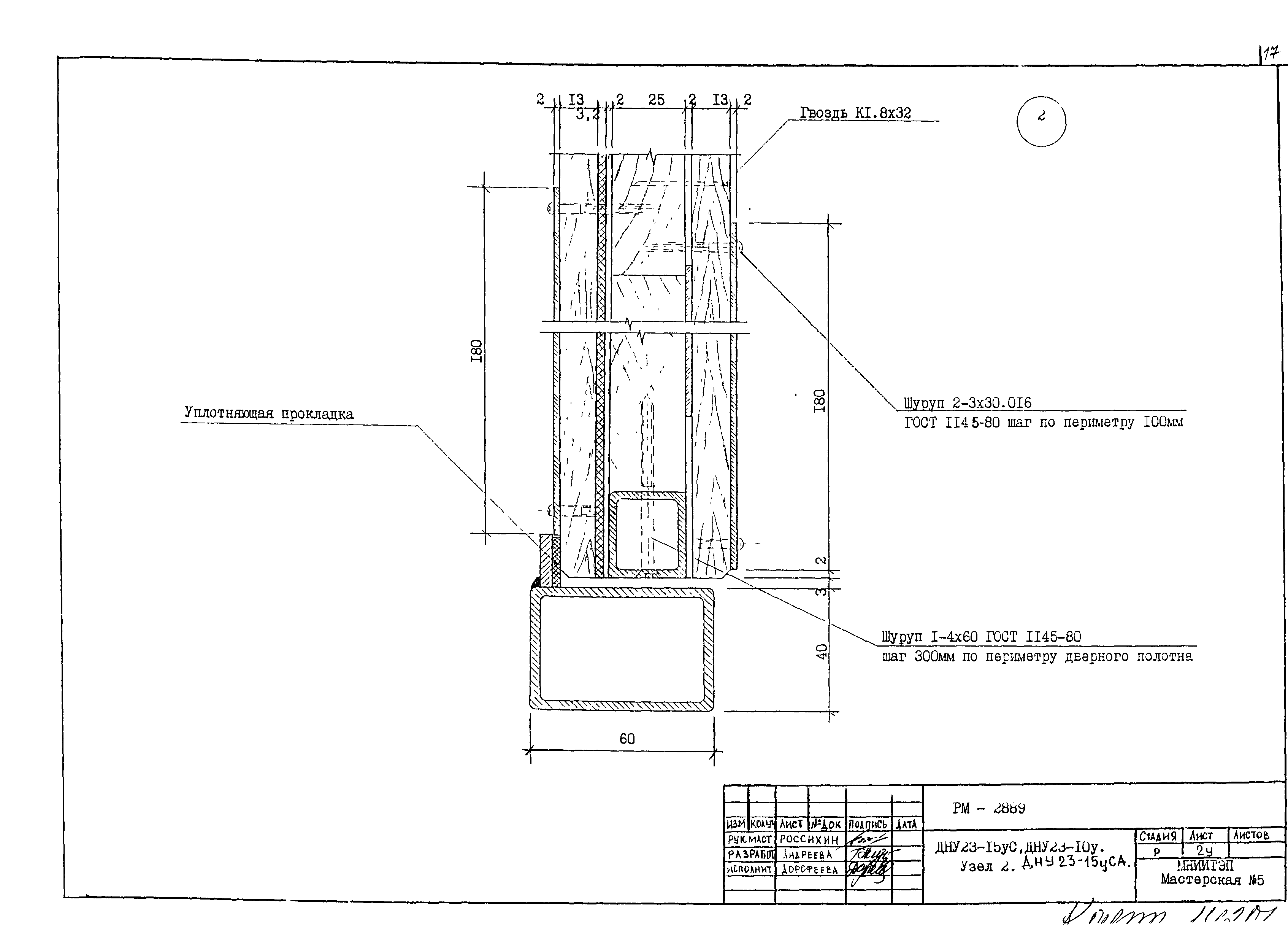
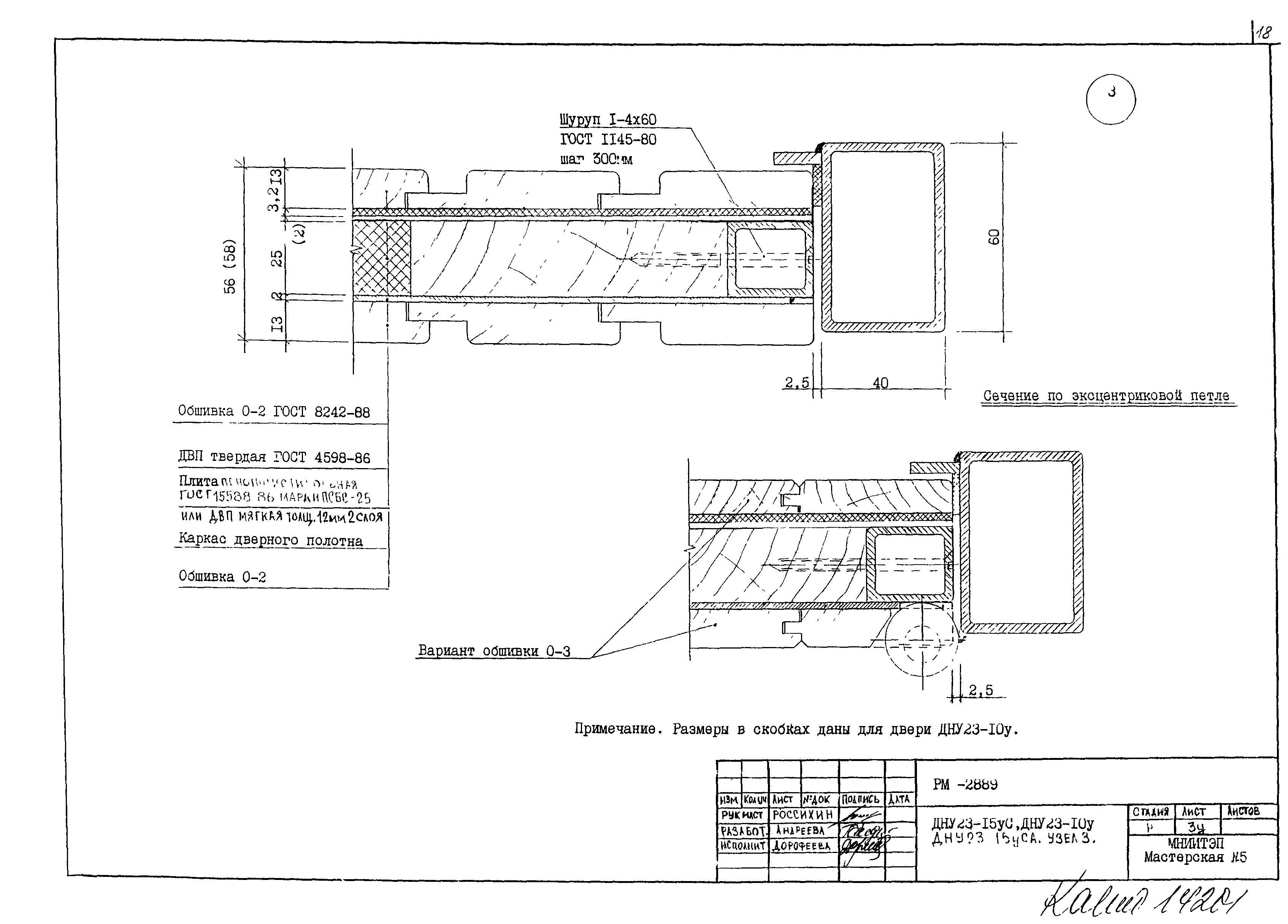
Скачать РМ-2889 Двери наружные в антивандальном исполнении входа в подъезд жилых домов. Рабочие чертежи для изготовления опытной партииДата актуализации: 01.01.2021 РМ-2889
Двери наружные в антивандальном исполнении входа в подъезд жилых домов. Рабочие чертежи для изготовления опытной партии| Обозначение: | РМ-2889 | | Обозначение англ: | РМ-2889 | | Статус: | не определен законодательством | | Название рус.: | Двери наружные в антивандальном исполнении входа в подъезд жилых домов. Рабочие чертежи для изготовления опытной партии | | Дата добавления в базу: | 01.09.2013 | | Дата актуализации: | 01.01.2021 | | Дата введения: | 01.01.2002 | | Дата окончания срока действия: | 30.06.2003 | | Разработан: | МНИИТЭП
| | Утверждён: | 01.01.2002 МНИИТЭП (MNIITEP )
|
                  
|