Скачать Серия 1.411.1-4 Выпуск 2. Подколонники сборные. Рабочие чертежиДата актуализации: 01.01.2021
|
| Обозначение: | Серия 1.411.1-4 |
| Обозначение англ: | Series 1.411.1-4 |
| Статус: | не определен законодательством |
| Название рус.: | Выпуск 2. Подколонники сборные. Рабочие чертежи |
| Дата добавления в базу: | 01.09.2013 |
| Дата актуализации: | 01.01.2021 |
| Дата введения: | 01.06.1993 |
| Дата окончания срока действия: | 30.06.2003 |
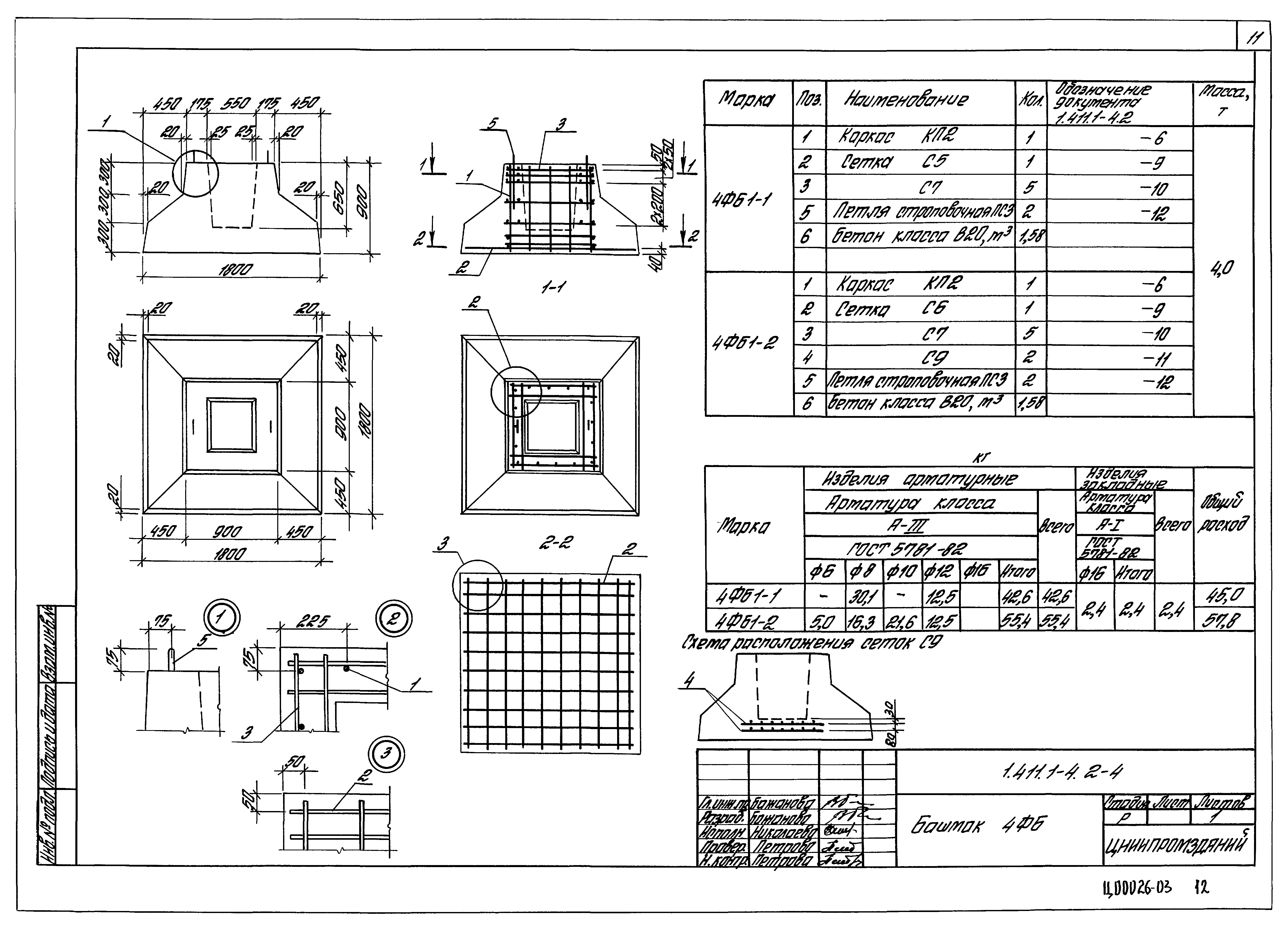
| Область применения: | Выпуск 2 серии 1.411.1-4 содержит рабочие чертежи сборных железобетонных подколлонников для сборно-монолитных ростверков свайных фундаментов под железобетонные колонны прямоугольного сечения размером 300х300 и 400х400 мм одноэтажных и многоэтажных производственных зданий |
| Оглавление: | 1.411.1-4.2-ТТ Технические требования 1.411.1-4.2-НИ Номенклатура сборных изделий 1.411.1-4.2-1 Башмак 1ФБ 1.411.1-4.2-2 Башмак 2ФБ 1.411.1-4.2-3 Башмак 3ФБ 1.411.1-4.2-4 Башмак 4ФБ 1.411.1-4.2-5 Башмак 5ФБ 1.411.1-4.2-6 Каркас КП1… КП5 1.411.1-4.2-7 Каркас КР1… КР5 1.411.1-4.2-8 Стека С1, С2 1.411.1-4.2-9 Стека С3... С6 1.411.1-4.2-10 Стека С1, С8 1.411.1-4.2-11 Стека С9 1.411.1-4.2-12 Петля строповочная ПС1, ПС2, ПС3 1.411.1-4.2-13 Петля строповочная ПС4 |
| Разработан: | ЦНИИпромзданий |
| Утверждён: | 21.12.1992 Минстрой России (Russian Federation Minstroy 9-1/397) |
| Нормативные ссылки: |

















