Скачать Серия 1.412.1-11 Выпуск 0. Материалы для проектированияДата актуализации: 01.01.2021
|
| Обозначение: | Серия 1.412.1-11 |
| Обозначение англ: | Series 1.412.1-11 |
| Статус: | не определен законодательством |
| Название рус.: | Выпуск 0. Материалы для проектирования |
| Дата добавления в базу: | 01.09.2013 |
| Дата актуализации: | 01.01.2021 |
| Дата введения: | 01.06.1993 |
| Дата окончания срока действия: | 30.06.2003 |
| Область применения: | Серия 1.412.1-11 содержит указания по применению и материалы для проектирования сборно-монолитных фундаментов на естественном основании под колонны одноэтажных и многоэтажных производственных зданий и рабочие чертежи сборных подколонников |
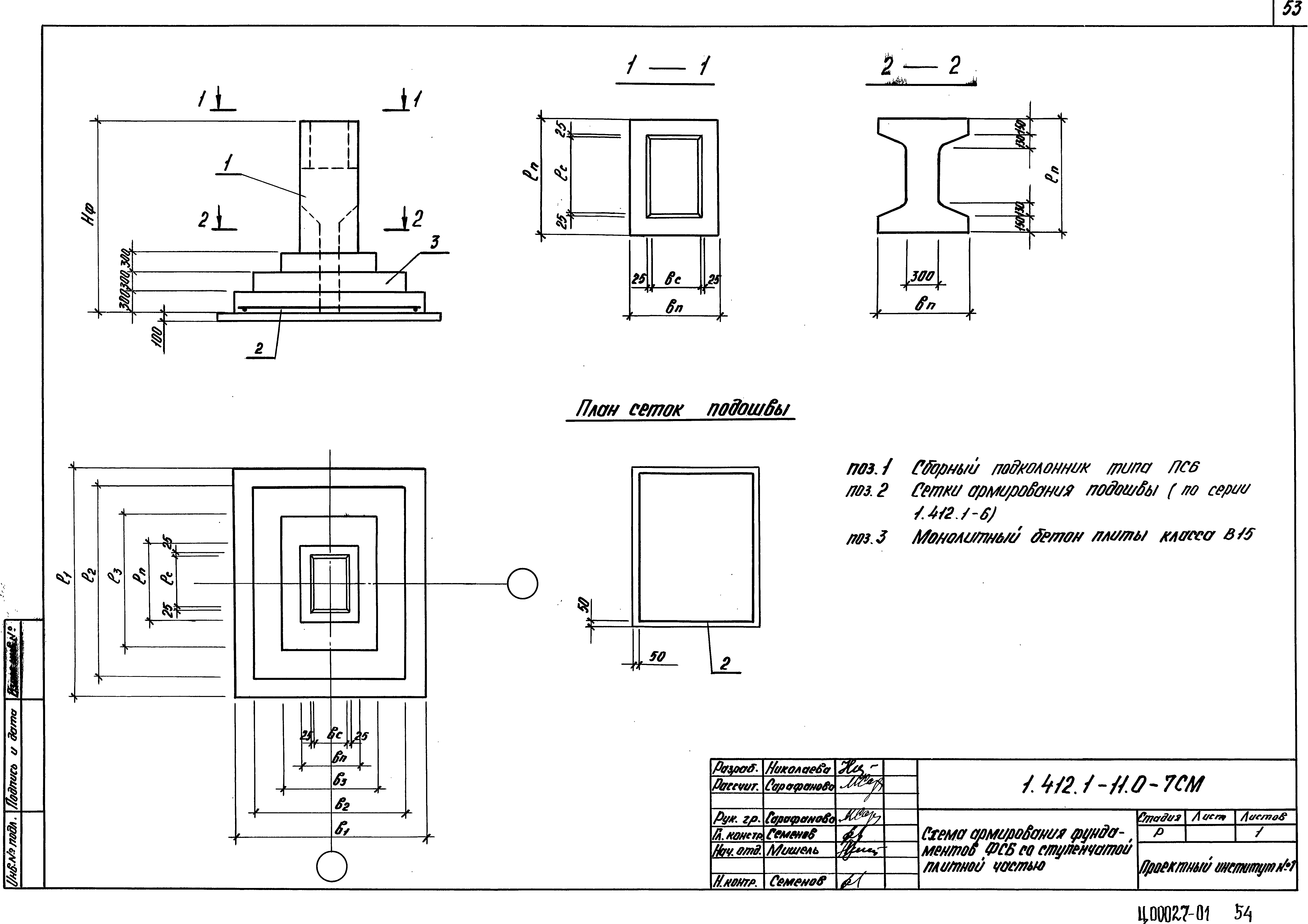
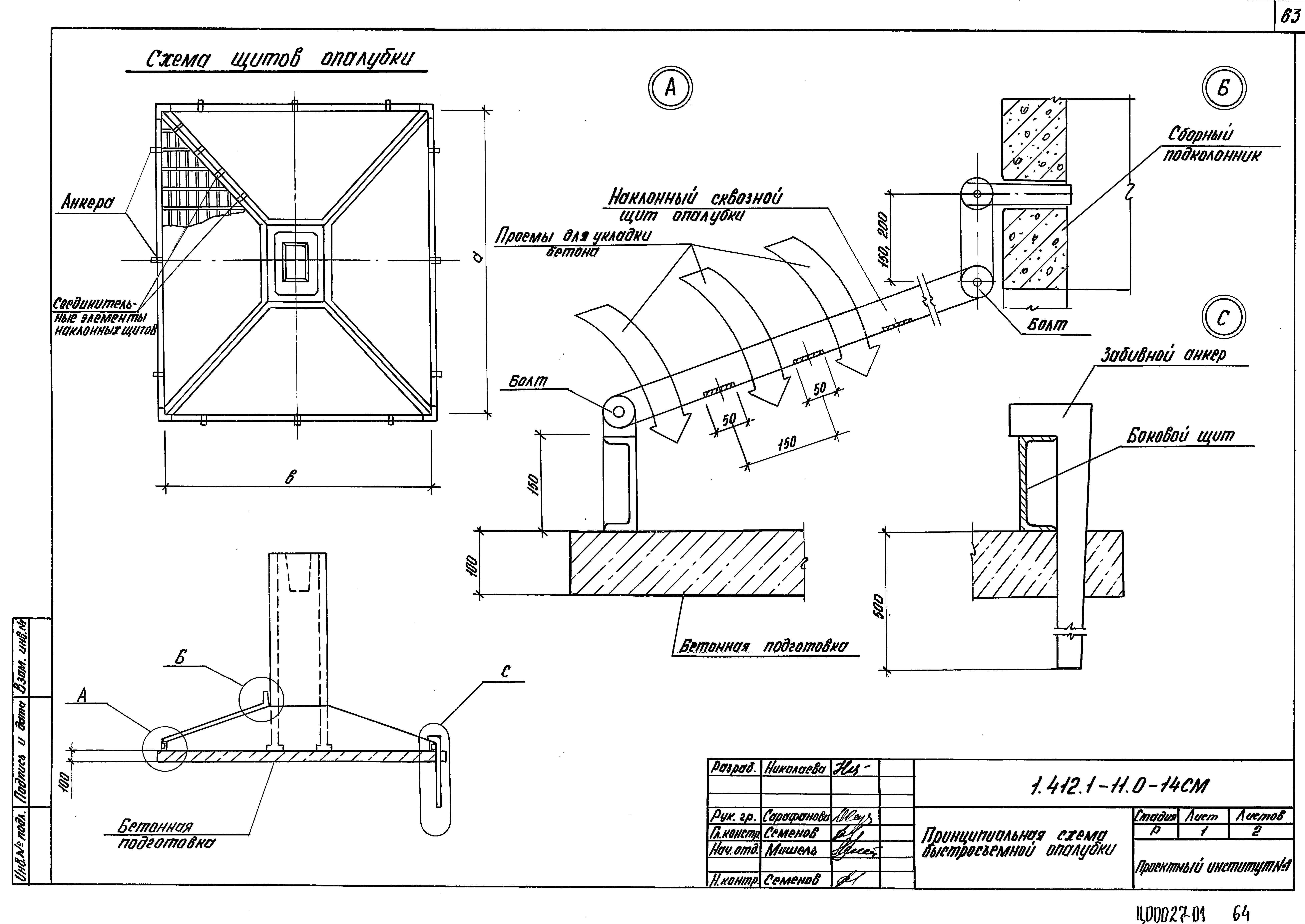
| Оглавление: | 1.412.1-11.0-ПЗ Пояснительная записка 1.412.1-11.0-1НИ Номенклатура сборно-монолитных фундаментов ФСМ 1.412.1-11.0-2НИ Номенклатура сборно-монолитных фундаментов ФСБ 1.412.1-11.0-3НИ Номенклатура сборных подколонников типа ПСМ 1.412.1-11.0-4НИ Номенклатура сборных подколонников типа ПСБ 1.412.1-11.0-5СМ Схема армирования фундаментов ФСМ со ступентчатой плитной частью 1.412.1-11.0-6СМ Схема армирования фундаментов ФСМ с пирамидальной плитной частью 1.412.1-11.0-7СМ Схема армирования фундаментов ФСБ со ступентчатой плитной частью 1.412.1-11.0-8СМ Схема армирования фундаментов ФСБ с пирамидальной плитной частью 1.412.1-11.0-9СМ Графики подбора вертикальой арматуры в прямоугольном сечении по низу подколонника 1.412.1-11.0-10М Графики подбора вертикальой арматуры в двутавровом сечении по низу подколонника 1.412.1-11.0-11СМ Графики подбора вертикальой арматуры в коробчатом сечении по низу стакана 1.412.1-11.0-12СМ Таблица подбора горизонтальной арматуры и сеток косвенного армирования 1.412.1-11.0-13СМ Схемы расположения дополнительных закладных изделий для молнезащиты и "безвыверочного" монтажа колонн 1.412.1-11.0-14СМ Принципиальная схема быстросъемной опалубки 1.412.1-11.0-15СМ Схема монтажного раскрепления сборного подколонника 1.412.1-11.0-16СМ Пример устройства монолитных набетонок |
| Разработан: | Проектный институт № 1 Минстроя СССР |
| Утверждён: | 21.12.1992 Минстрой России (Russian Federation Minstroy 9-1/397) |
| Нормативные ссылки: |


































































