Скачать Серия 1.117.1-20 Выпуск 1. Панели толщиной 400 и 450 мм. Рабочие чертежиДата актуализации: 01.01.2021
|
| Обозначение: | Серия 1.117.1-20 |
| Обозначение англ: | Series 1.117.1-20 |
| Статус: | действует |
| Название рус.: | Выпуск 1. Панели толщиной 400 и 450 мм. Рабочие чертежи |
| Дата добавления в базу: | 01.09.2013 |
| Дата актуализации: | 01.01.2021 |
| Дата введения: | 30.01.1986 |
| Область применения: | Рабочие чертежи унифицированных однослойных цокольных панелей наружных стен предназначены для проектирования и строительства крупнопанельных жилых зданий до 9 этажей в I климатическом районе (подрайоны IА, IБ, IГ, IД) на обычных и вечномерзлых грунтах, используемых по принципу II |
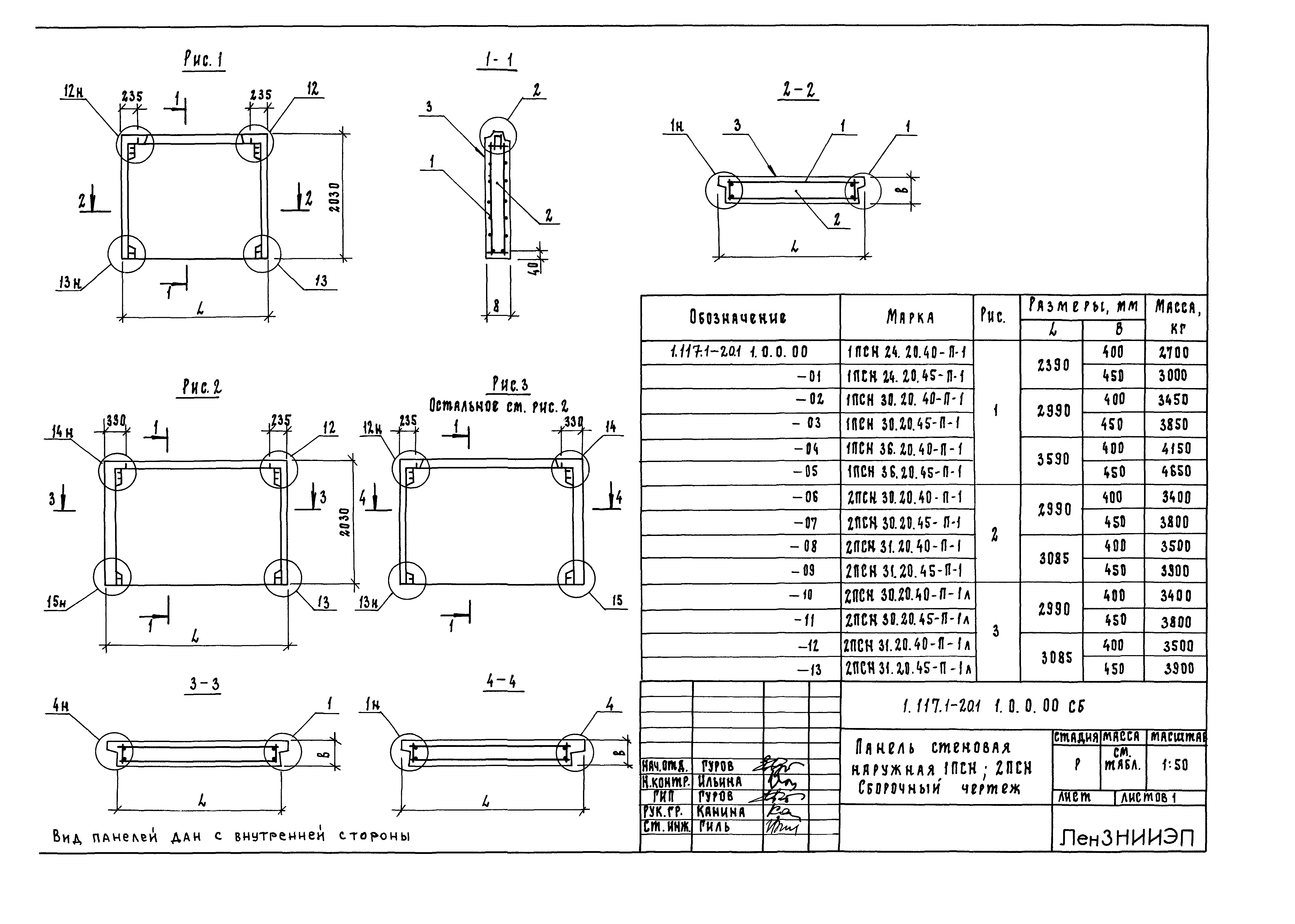
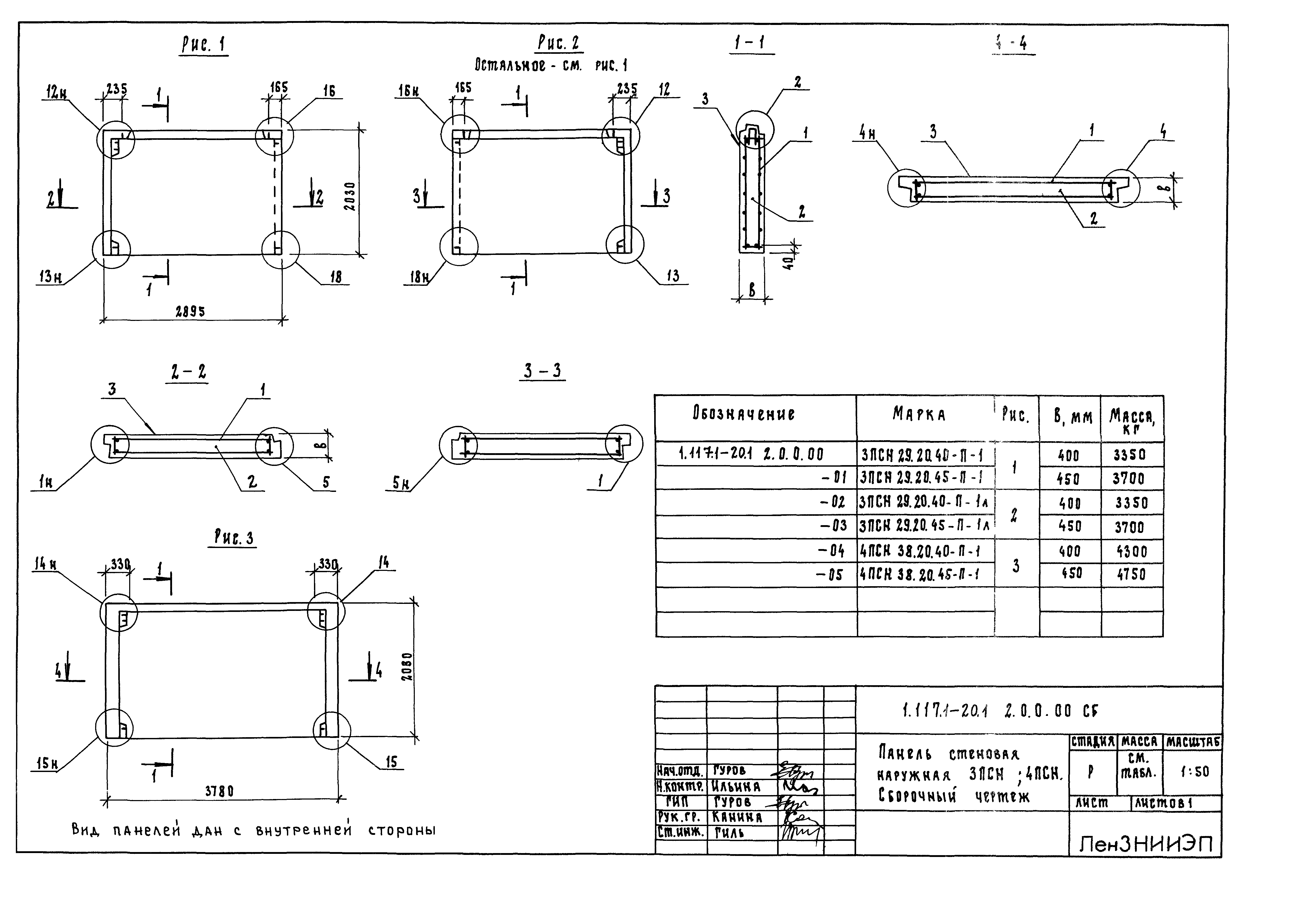
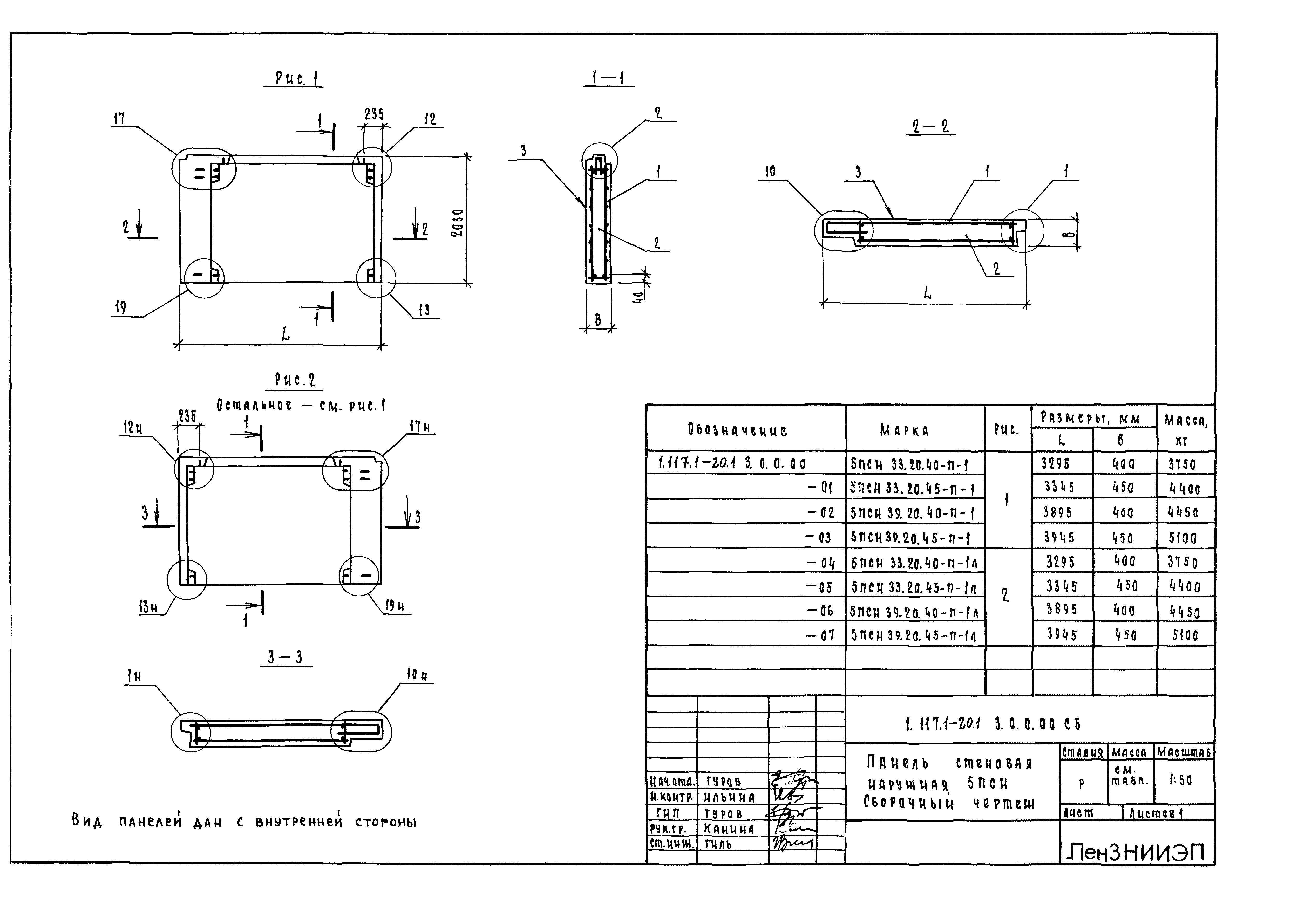
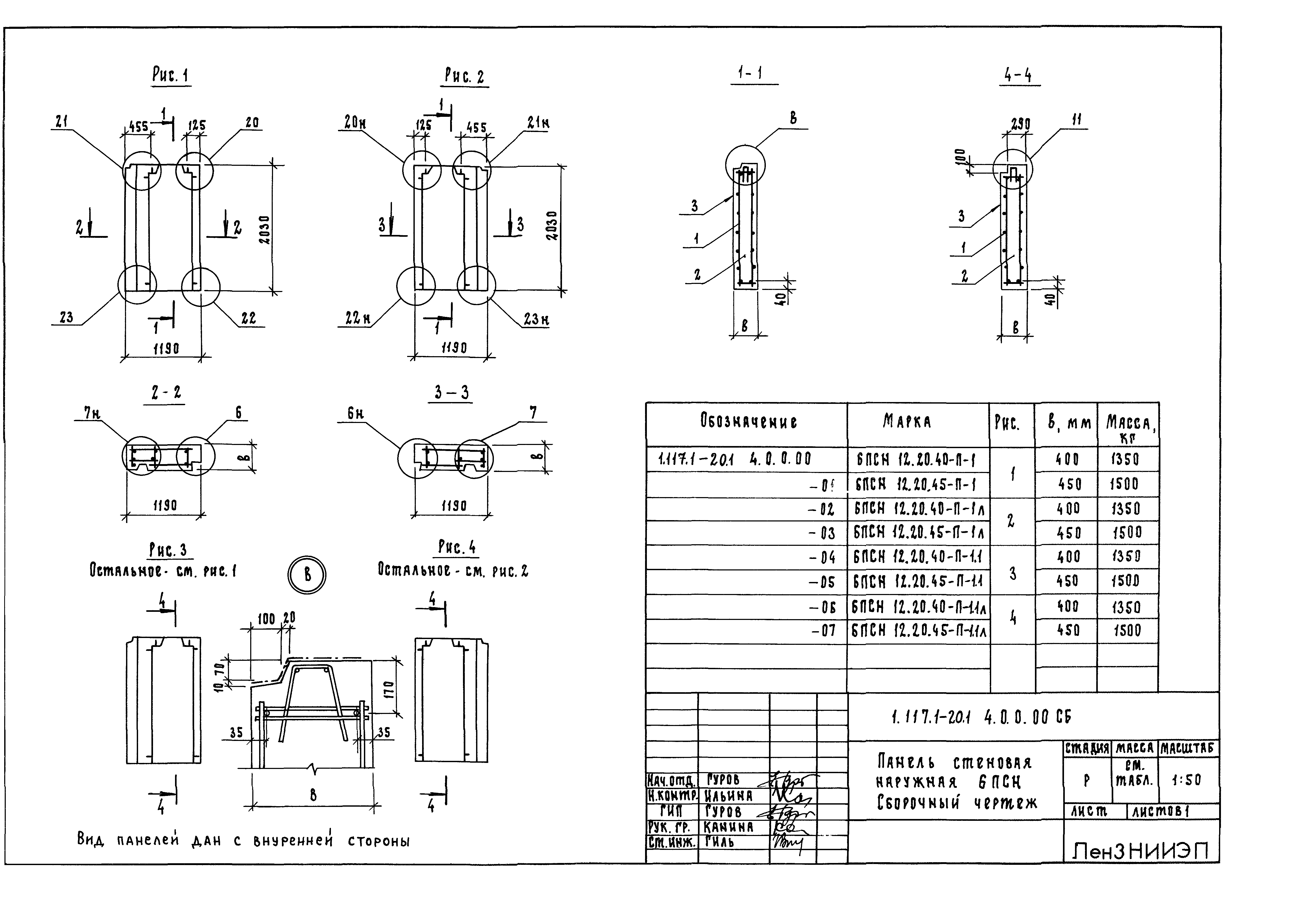
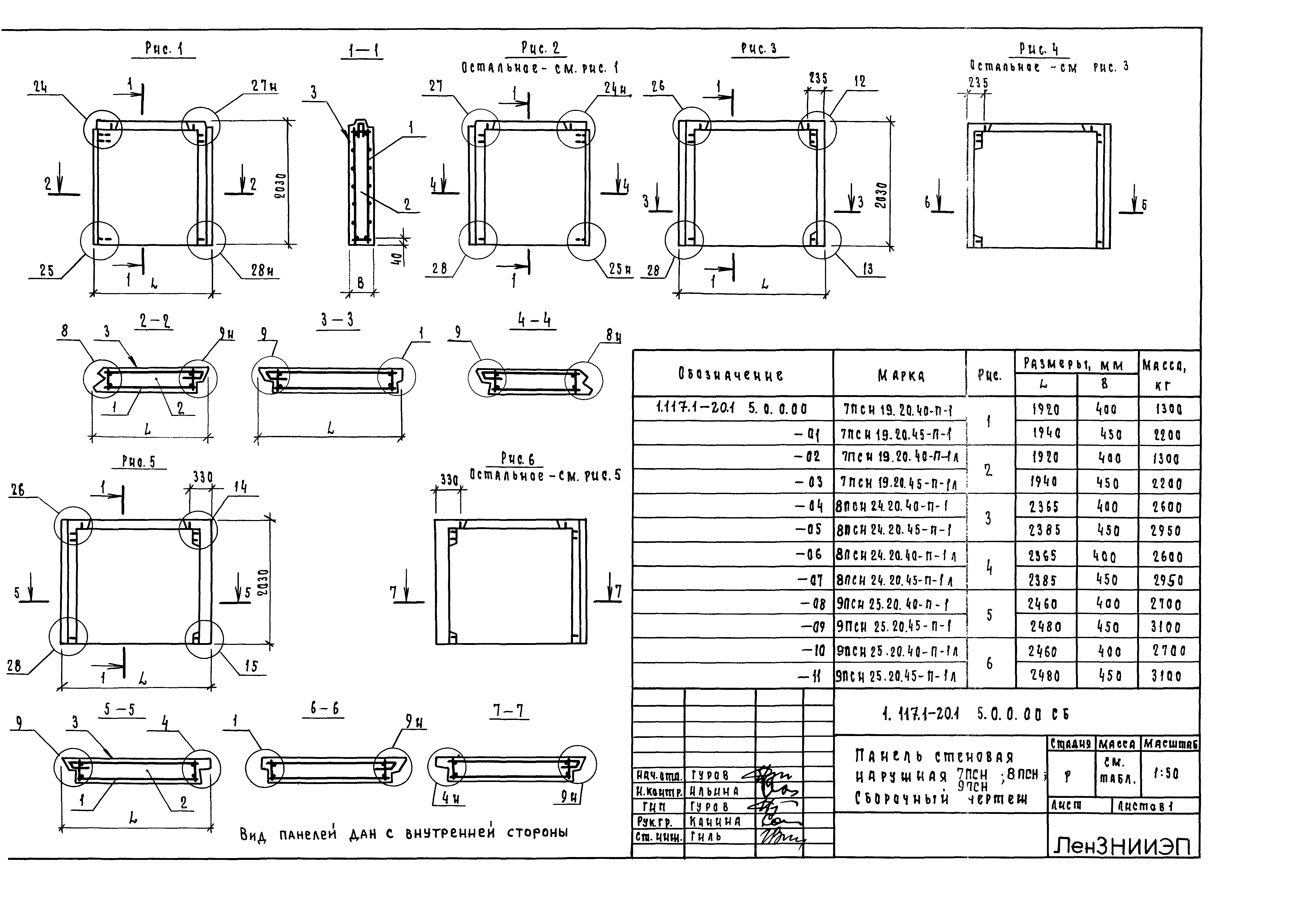
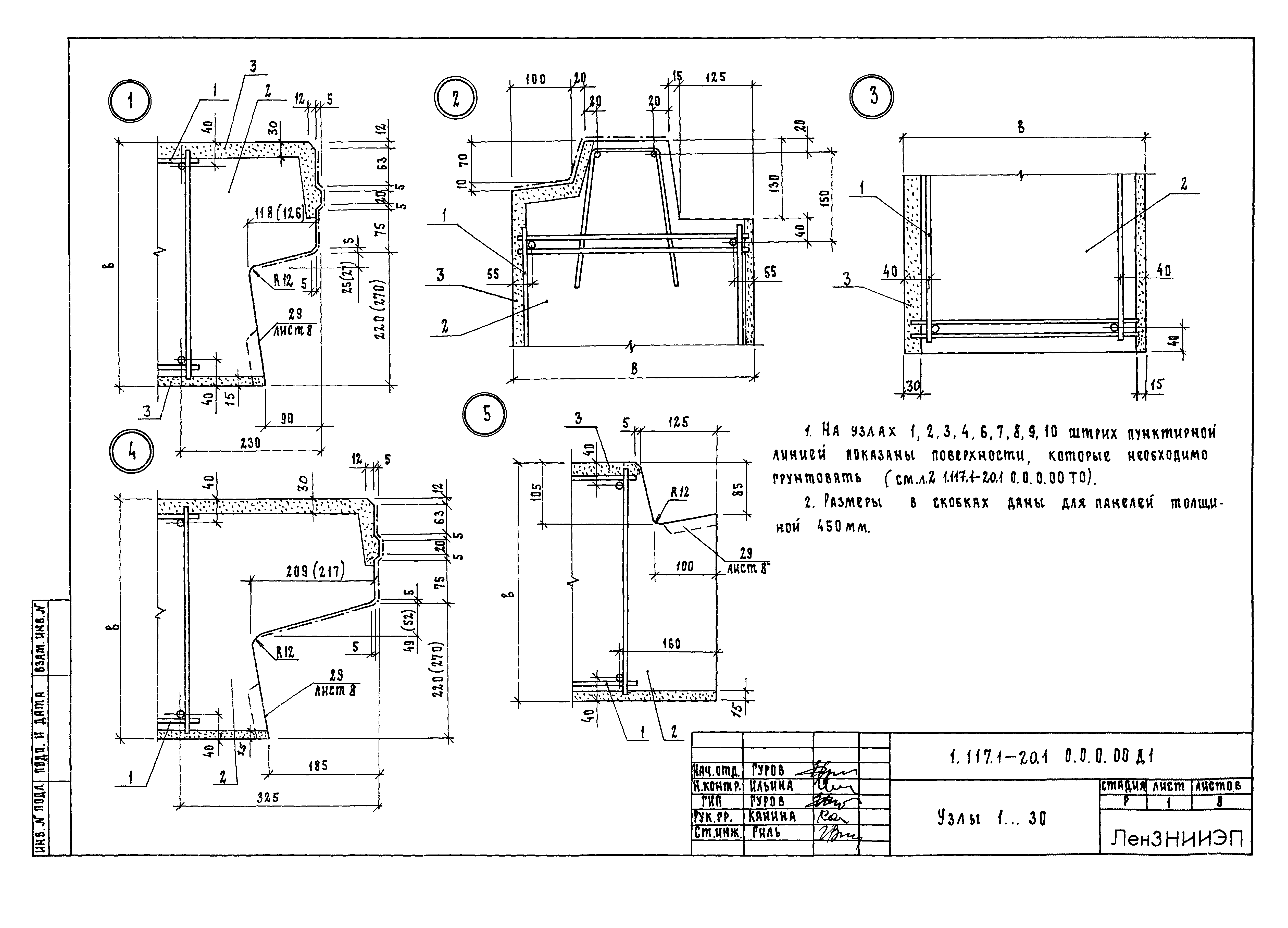
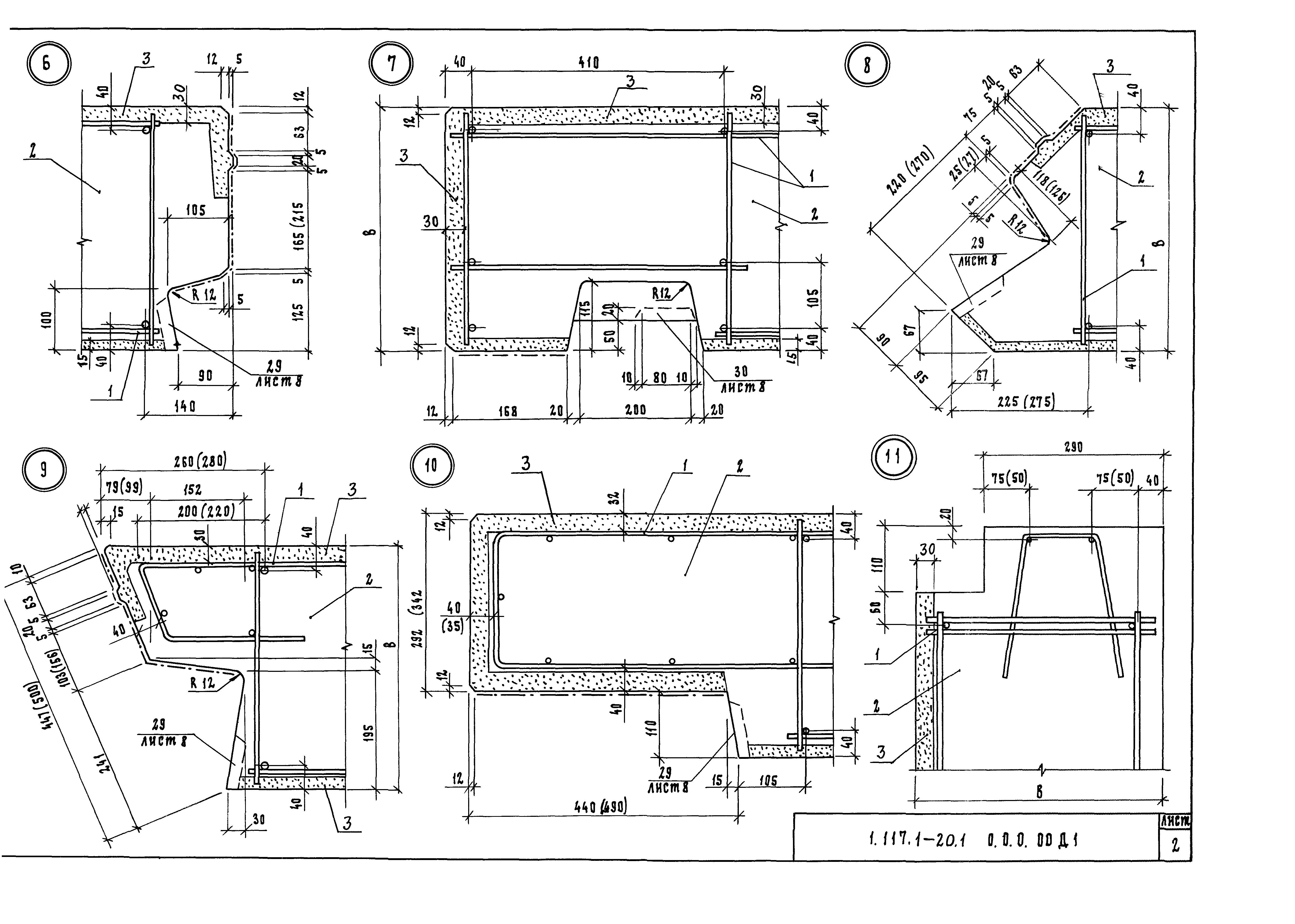
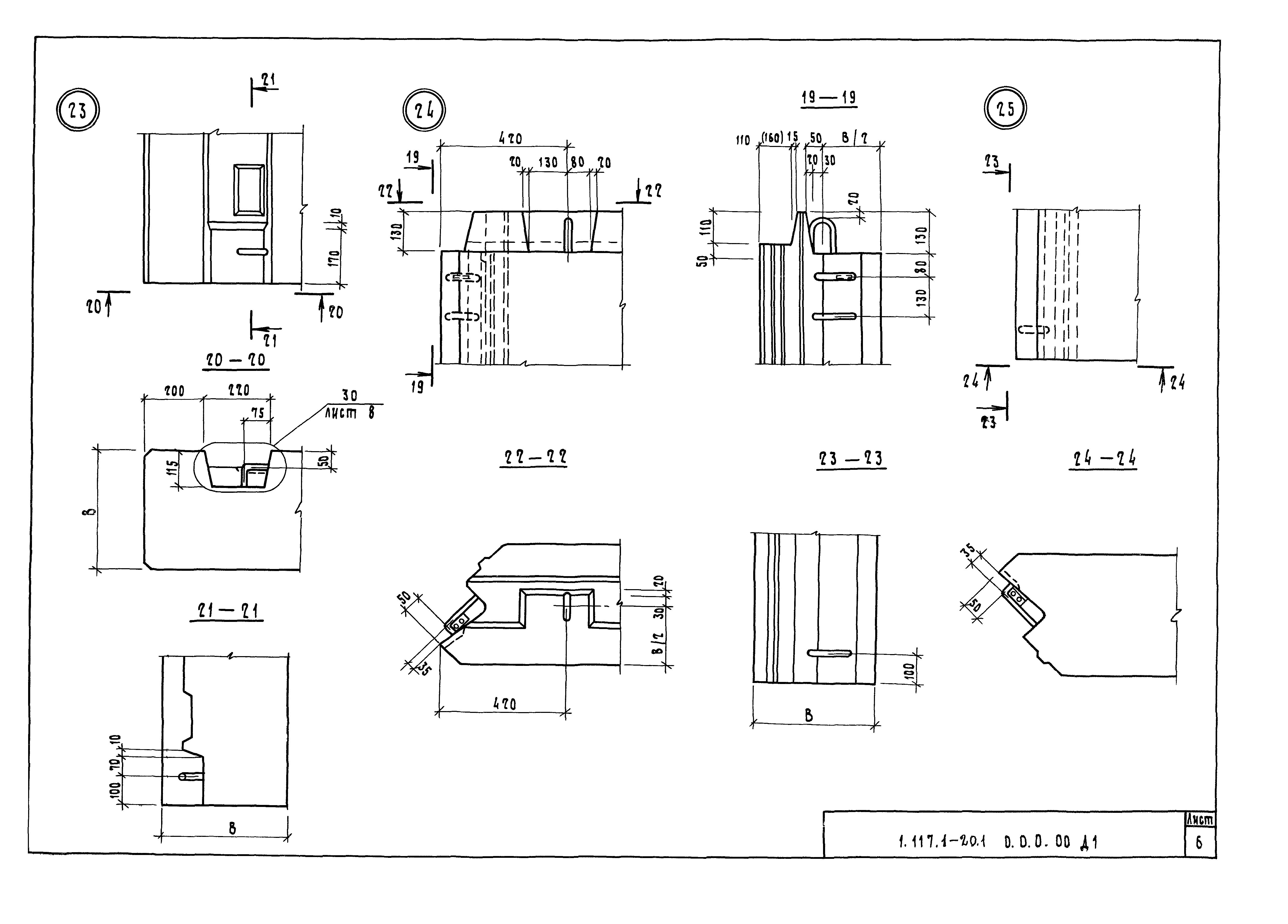
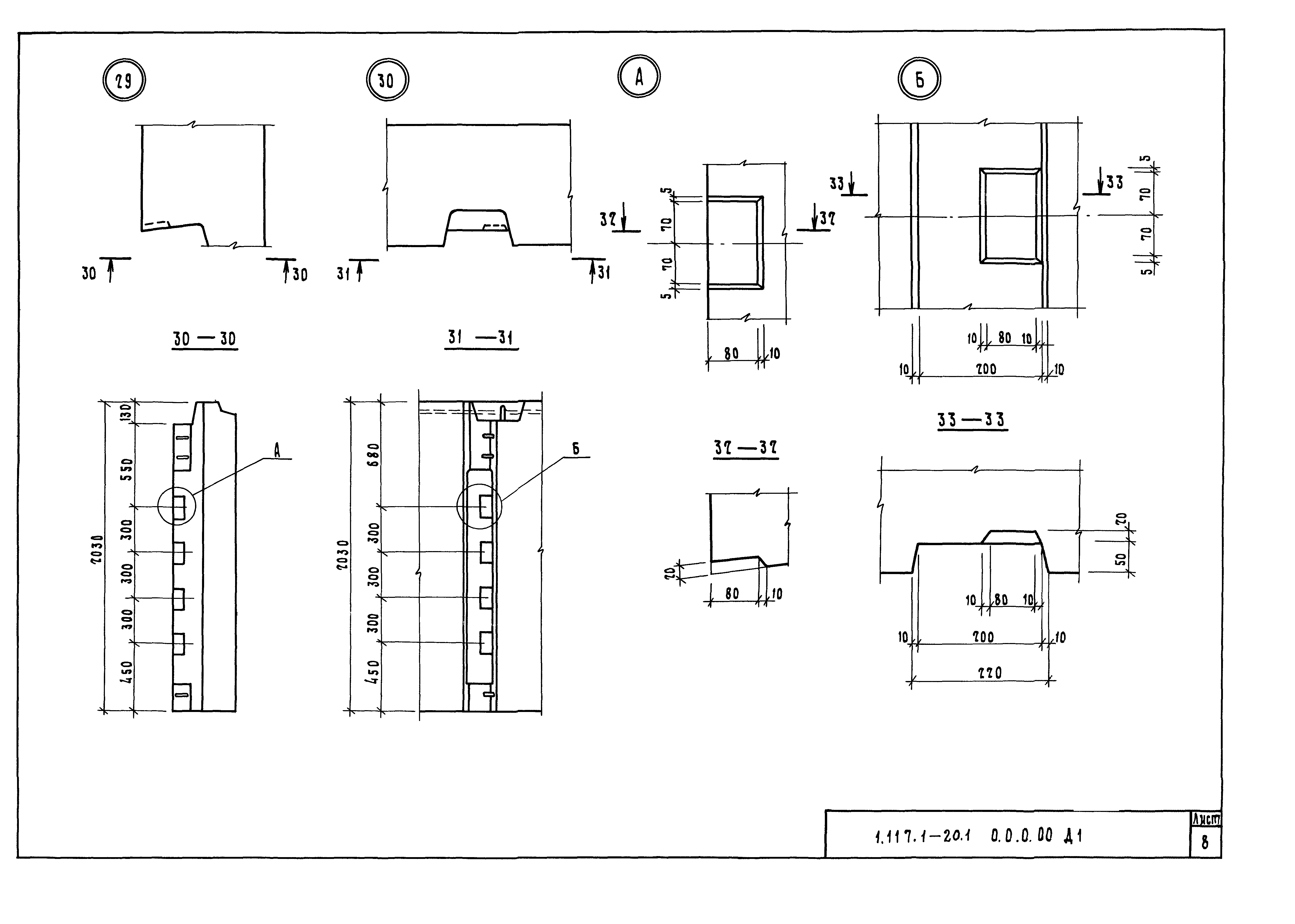
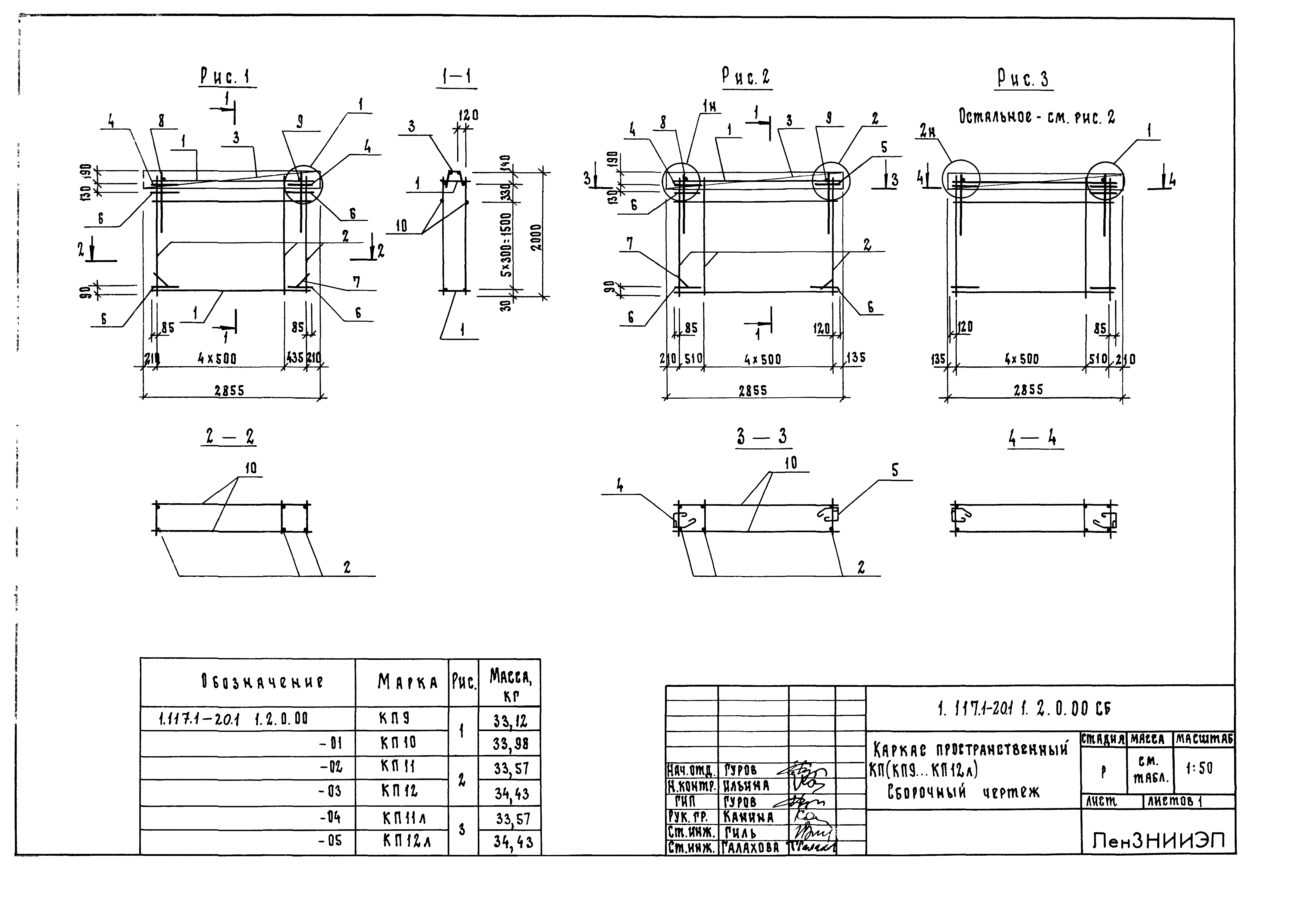
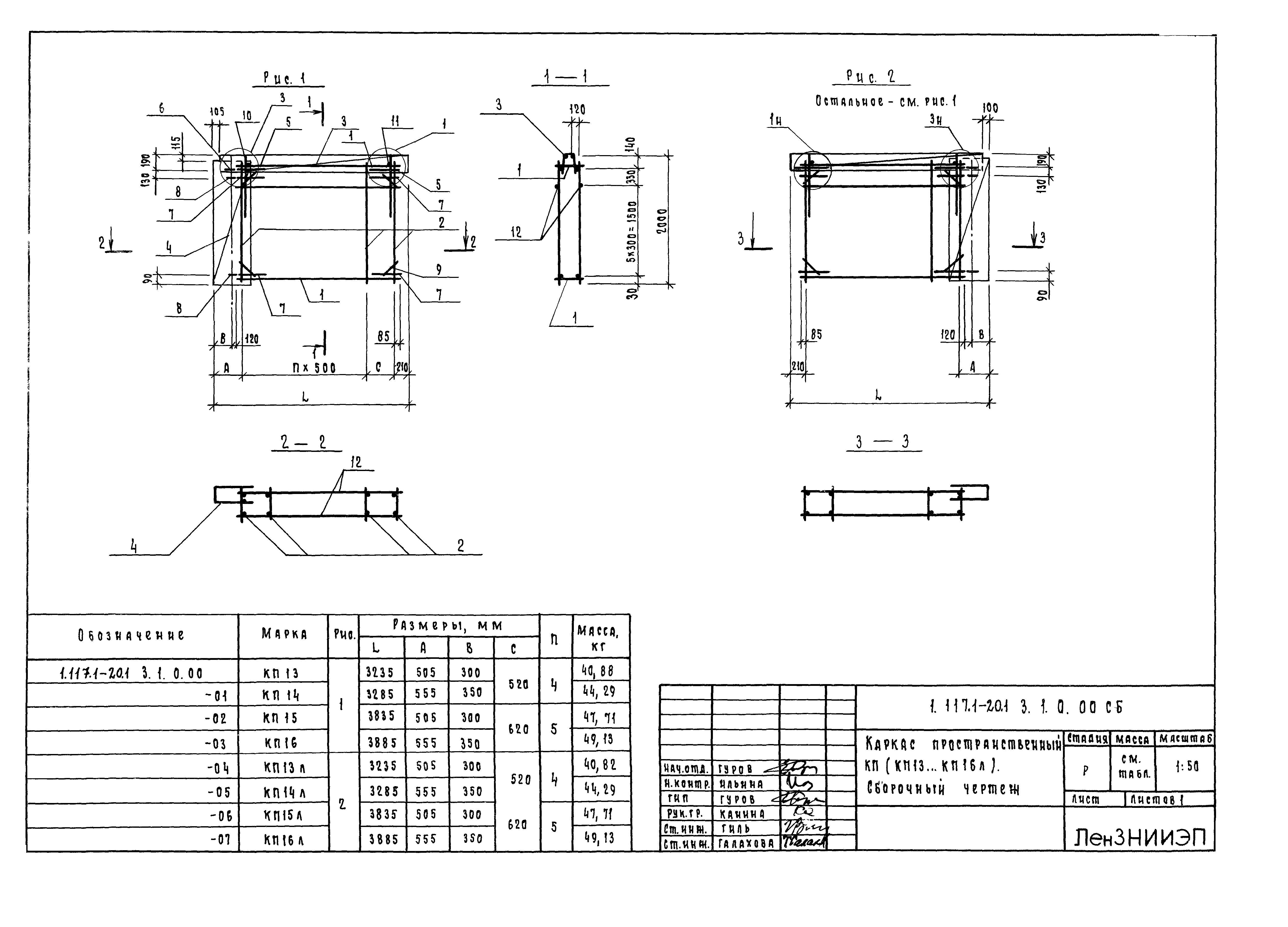
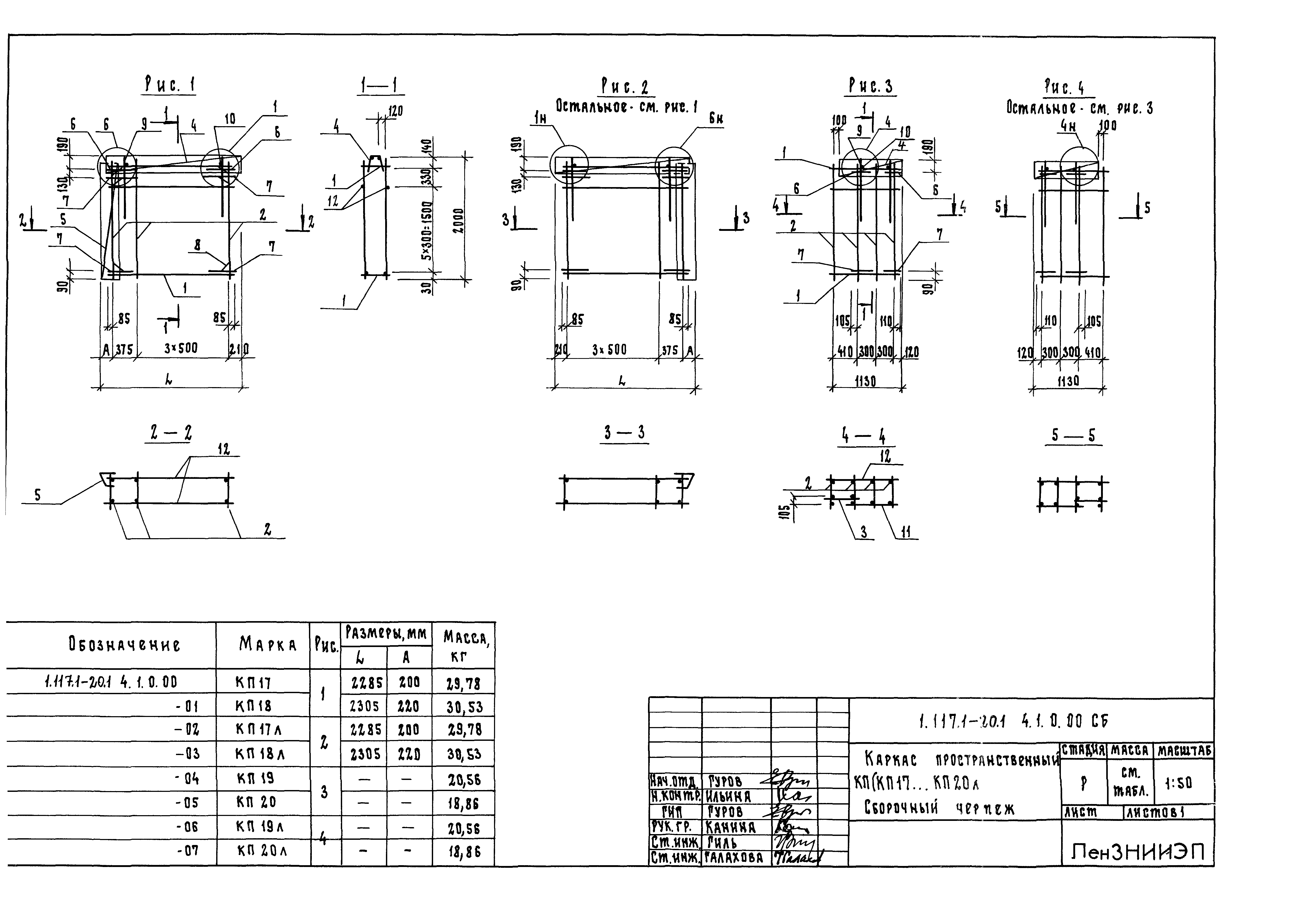
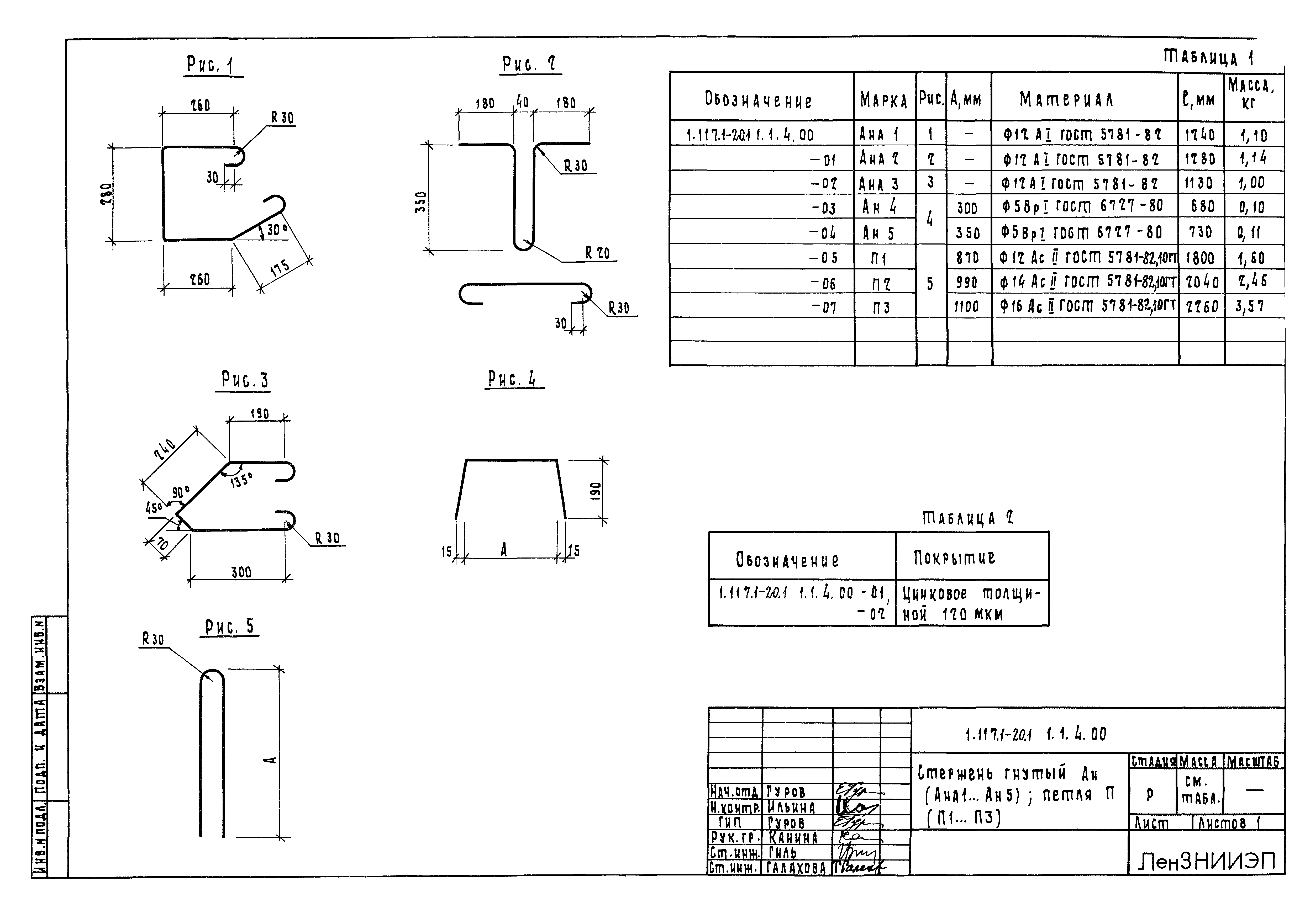
| Оглавление: | 1.117.1-20.10.0.0.00 ТО Техническое описание 1.117.1-20.10.0.0.00 НИ Номенклатура 1.117.1-20.11.0.0.00 Панель стеновая наружная 1ПСН, 2ПСН 1.117.1-20.11.0.0.00 СБ Панель стеновая наружная 1ПСН, 2ПСН. Сборочный чертеж 1.117.1-20.12.0.0.00 Панель стеновая наружная 3ПСН, 4ПСН 1.117.1-20.12.0.0.00 СБ Панель стеновая наружная 3ПСН, 4ПСН. Сборочный чертеж 1.117.1-20.13.0.0.00 Панель стеновая наружная 5ПСН 1.117.1-20.13.0.0.00 СБ Панель стеновая наружная 5ПСН. Сборочный чертеж 1.117.1-20.14.0.0.00 Панель стеновая наружная 6ПСН 1.117.1-20.14.0.0.00 СБ Панель стеновая наружная 6ПСН. Сборочный чертеж 1.117.1-20.15.0.0.00 Панель стеновая наружная 7ПСН, 8ПСН, 9ПСН 1.117.1-20.15.0.0.00 СБ Панель стеновая наружная 7ПСН, 8ПСН, 9ПСН. Сборочный чертеж 1.117.1-20.10.0.0.00 Д1 Узлы 1… 30 1.117.1-20.11.1.0.00 Каркас пространственный КП (КП1… КП8л) 1.117.1-20.11.1.0.00 СБ Каркас пространственный КП (КП1… КП8л). Сборочный чертеж 1.117.1-20.11.2.0.00 Каркас пространственный КП (КП9… КП12л) 1.117.1-20.11.2.0.00 СБ Каркас пространственный КП (КП9… КП12л). Сборочный чертеж 1.117.1-20.13.1.0.00 Каркас пространственный КП (КП13… КП16л) 1.117.1-20.13.1.0.00 СБ Каркас пространственный КП (КП13… КП16л). Сборочный чертеж 1.117.1-20.14.1.0.00 Каркас пространственный КП (КП17… КП20л) 1.117.1-20.14.1.0.00 СБ Каркас пространственный КП (КП17… КП20л). Сборочный чертеж 1.117.1-20.10.0.0.00 Д2 Узлы арматурные 1… 6 1.117.1-20.11.1.1.00 Каркас плоский КР(КР1… КР15) 1.117.1-20.11.1.1.00 СБ Каркас плоский КР(КР1… КР15). Сборочный чертеж 1.117.1-20.11.1.2.00 Сетка арматурная С(С1… С6) 1.117.1-20.11.1.2.00 СБ Сетка арматурная С(С1… С6). Сборочный чертеж 1.117.1-20.11.1.3.00 Изделие закладное Мна(Мна1… Мна4) 1.117.1-20.11.1.3.00 СБ Изделие закладное Мна(Мна1… Мна4). Сборочный чертеж 1.117.1-20.11.1.4.00 Стержень гнутый Ан(Ана1… Ана5). Петля П(П1… П3) 1.117.1-20.00.0.0.00 РС Ведомость расхода стали 1.117.1-20.00.0.0.00 РМ Ведомость расхода материалов |
| Разработан: | ЛенЗНИИЭП Госгражданстроя |
| Утверждён: | 20.01.1986 Госгражданстрой (Gosgrazhdanstroy 23) |
| Нормативные ссылки: |
|
























































