Скачать Серия 3.407.1-143 Выпуск 1. Опоры на базе железобетонных стоек длиной 10,5 м. Рабочие чертежиДата актуализации: 01.01.2021
|
| Обозначение: | Серия 3.407.1-143 |
| Обозначение англ: | Series 3.407.1-143 |
| Статус: | не определен законодательством |
| Название рус.: | Выпуск 1. Опоры на базе железобетонных стоек длиной 10,5 м. Рабочие чертежи |
| Дата добавления в базу: | 01.09.2013 |
| Дата актуализации: | 01.01.2021 |
| Дата введения: | 01.07.1989 |
| Дата окончания срока действия: | 30.06.2003 |
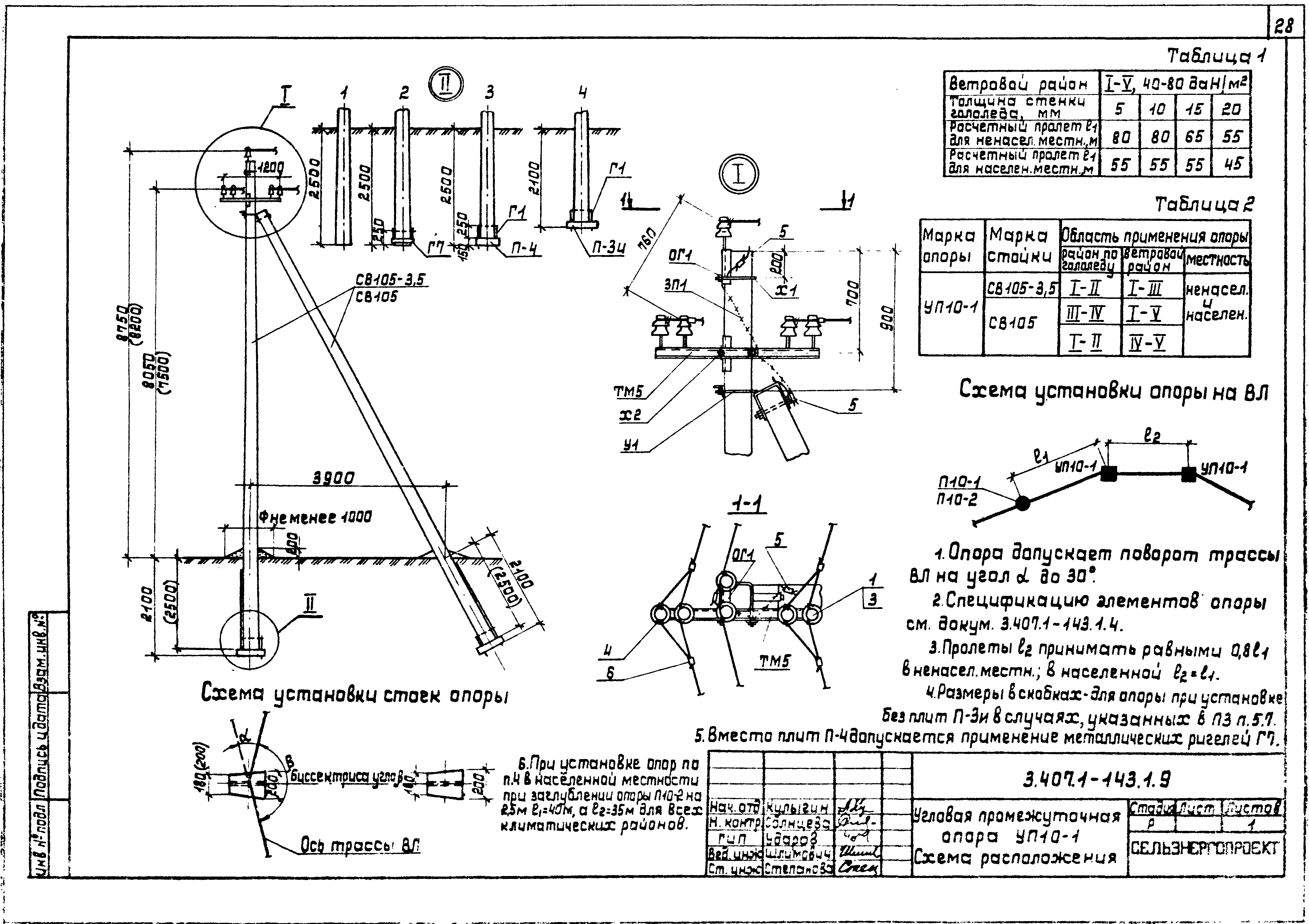
| Оглавление: | 3.407.1-143.1 00 Содержание 3.407.1-143.1 П3 Опоры на базе железобетонных стоек длиной 10,5 м. Пояснительная записка 3.407.1-143.1.1 Номенклатура опор ВЛ 10кВ 3.407.1-143.1.2 Номенклатура совместной подвески проводов ВЛ 0,38 и 10кВ 3.407.1-143.1.3 Номенклатура установок электрооборудования на опорах 3.407.1-143.1.4 Спецификация элементов опор 3.407.1-143.1.5 Спецификация элементов опор совместной подвески проводов ВЛ 0,38 и 10 кВ 3.407.1-143.1.6 Спецификация элементов установки электрооборудования на опорах 3.407.1-143.1.7 Промежуточная опора П10-1. Схема расположения 3.407.1-143.1.8 Промежуточная опора П10-2. Схема расположения 3.407.1-143.1.9 Угловая промежуточная опора УП10-1. Схема расположения 3.407.1-143.1.10 Анкерная (концевая) опора А10-1. Схема расположения 3.407.1-143.1.11 Угловая анкерная опора УА10-1. Схема расположения 3.407.1-143.1.12 Ответвительная анкерная опора ОА10-1. Схема расположения 3.407.1-143.1.13 Угловая ответвительная анкерная опора УОА10-1. Схема расположения 3.407.1-143.1.14 Устройство ответвления УОП на промежуточных опорах. Схема расположения 3.407.1-143.1.15 Устройство ответвления УОК на концевой опоре у подстанции и на анкерной опоре. Схема расположения 3.407.1-143.1.16 Промежуточная опора П10/0,38. Схема расположения 3.407.1-143.1.17 Угловая промежуточная опора УП10/0,38. Схема расположения 3.407.1-143.1.18 Анкерная (концевая) опора А10/0,38. Схема расположения 3.407.1-143.1.19 Угловая анкерная опора УА10/0,38. Схема расположения 3.407.1-143.1.20 Ответвительная анкерная опора ОА10/0,38. Схема расположения 3.407.1-143.1.21 Установка разъединителя ПР-1 на промежуточной опоре для ответвления к подстанции. Схема расположения 3.407.1-143.1.22 Установка разъединителя КР-1 на концевой опоре. Схема расположения 3.407.1-143.1.23 Установка разъединителя АР-1 на анкерной опоре. Схема расположения |
| Разработан: | Институт Сельэнергопроект |
| Утверждён: | 01.06.1988 Минэнерго СССР (USSR Minenergo 16 3/9 33) |
| Издан: | ЦИТП Госстроя СССР (CITP, Gosstroy (USSR) 1988 г. ) |
| Заменяет собой: |



























































