Скачать РМ-2779-01 Часть IДата актуализации: 01.01.2021
|
| Обозначение: | РМ-2779-01 |
| Обозначение англ: | РМ-2779-01 |
| Статус: | не определен законодательством |
| Название рус.: | Часть I |
| Дата добавления в базу: | 01.09.2013 |
| Дата актуализации: | 01.01.2021 |
| Дата введения: | 06.04.2000 |
| Дата окончания срока действия: | 30.06.2003 |
| Область применения: | Альбом содержит рабочие чертежи наружных трехслойных становых панелей из тяжелого бетона с эффективным утеплителем, предназначенных для жилых домов серии М6 /"ЭКО"/. |
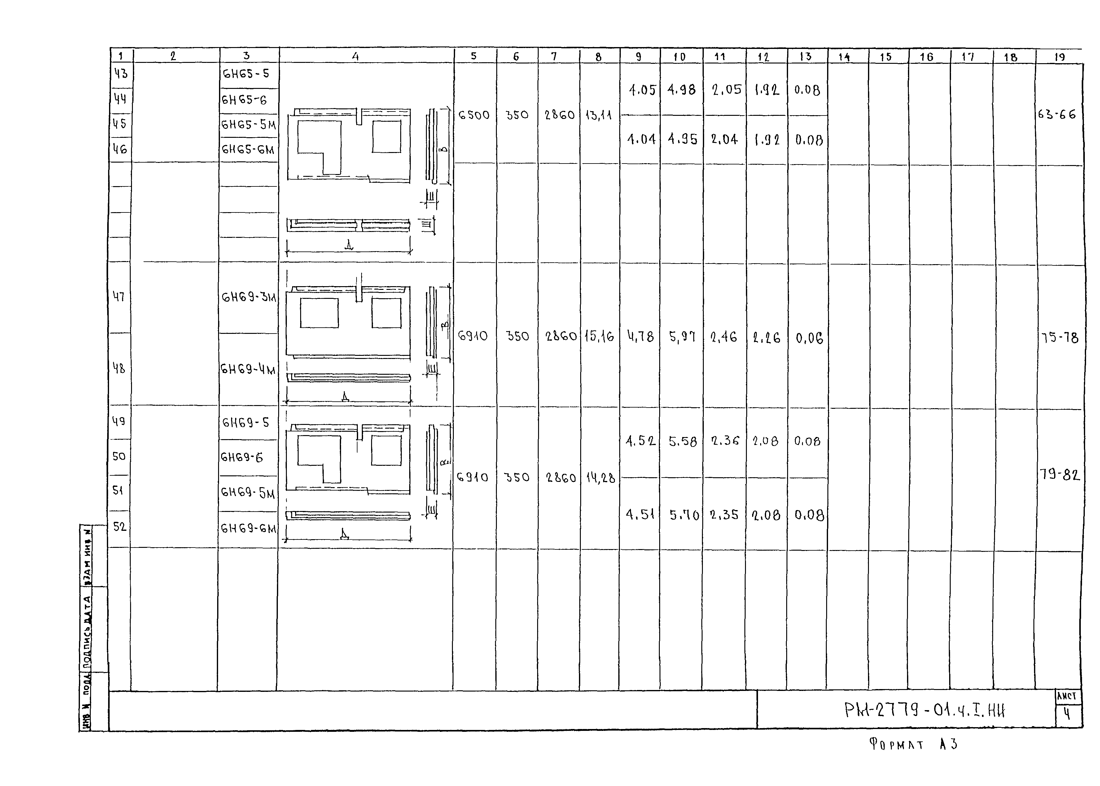
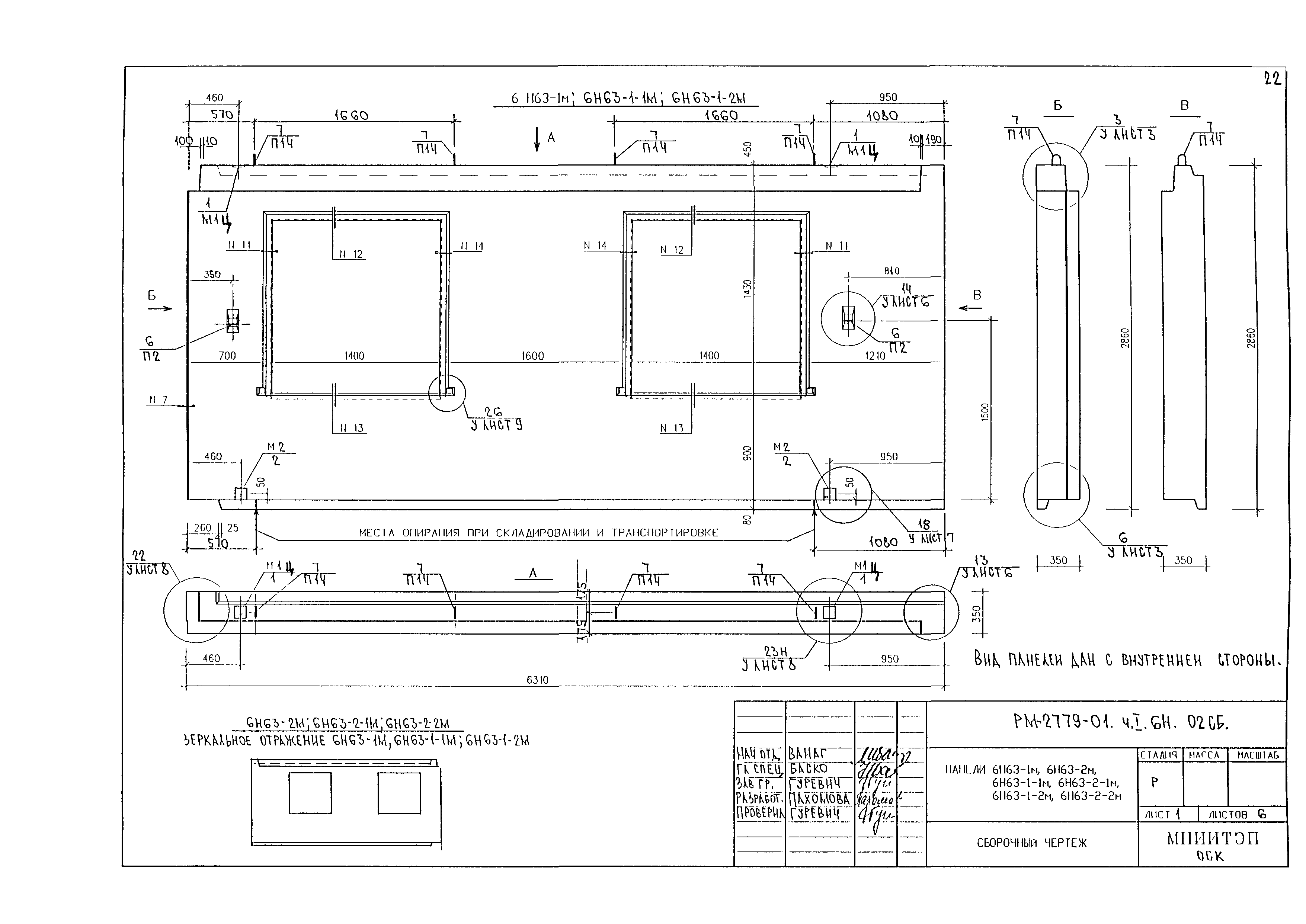
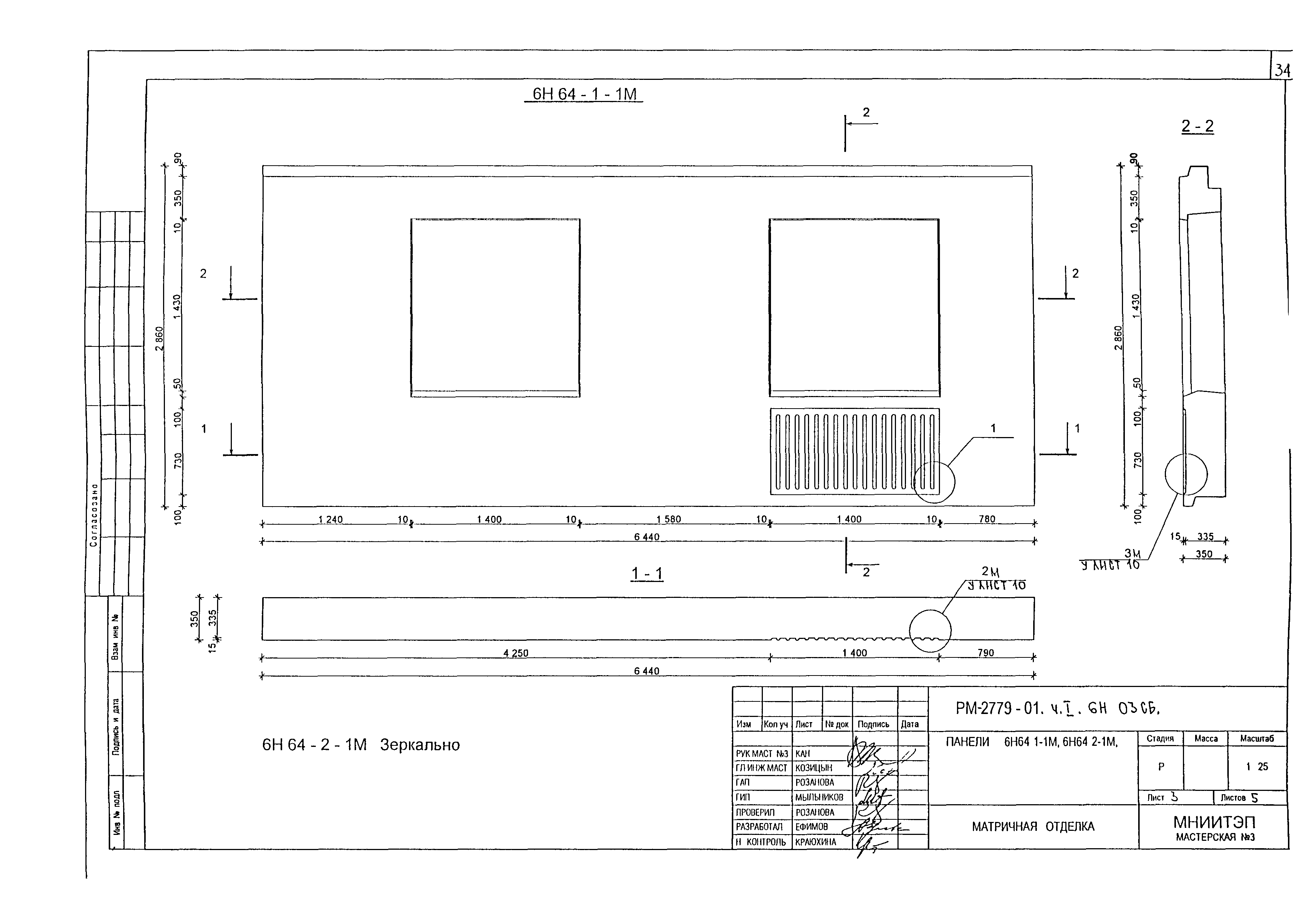
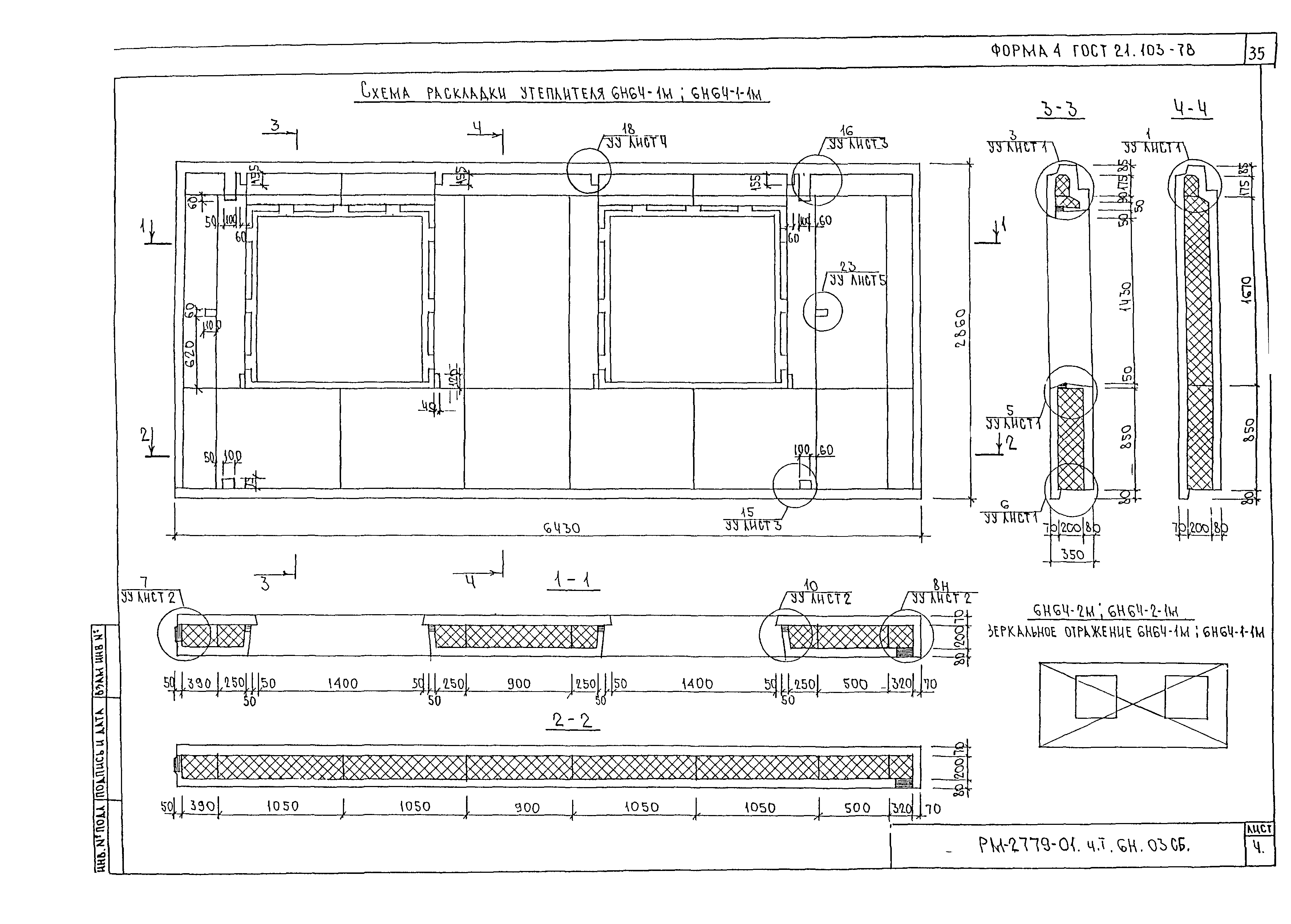
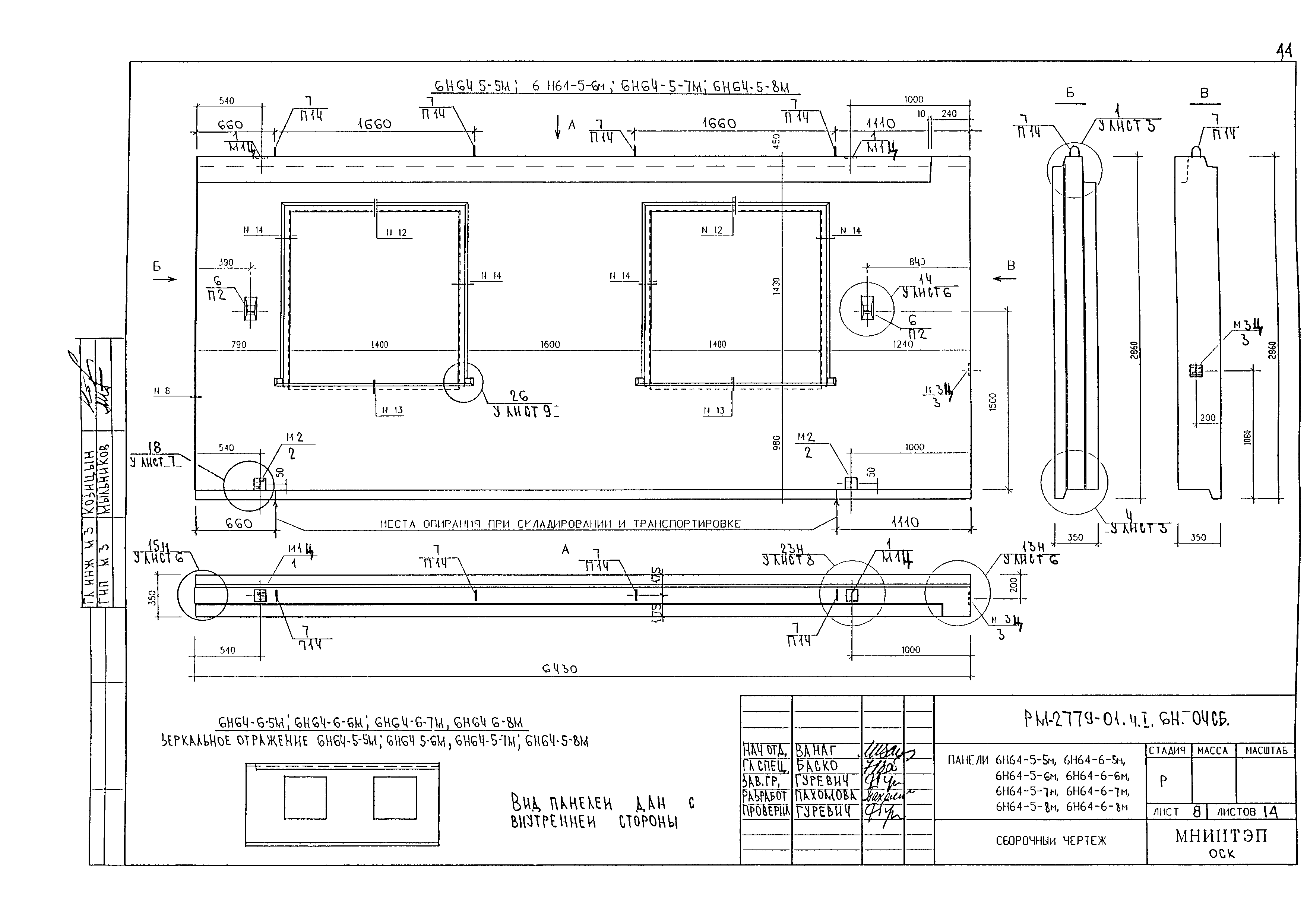
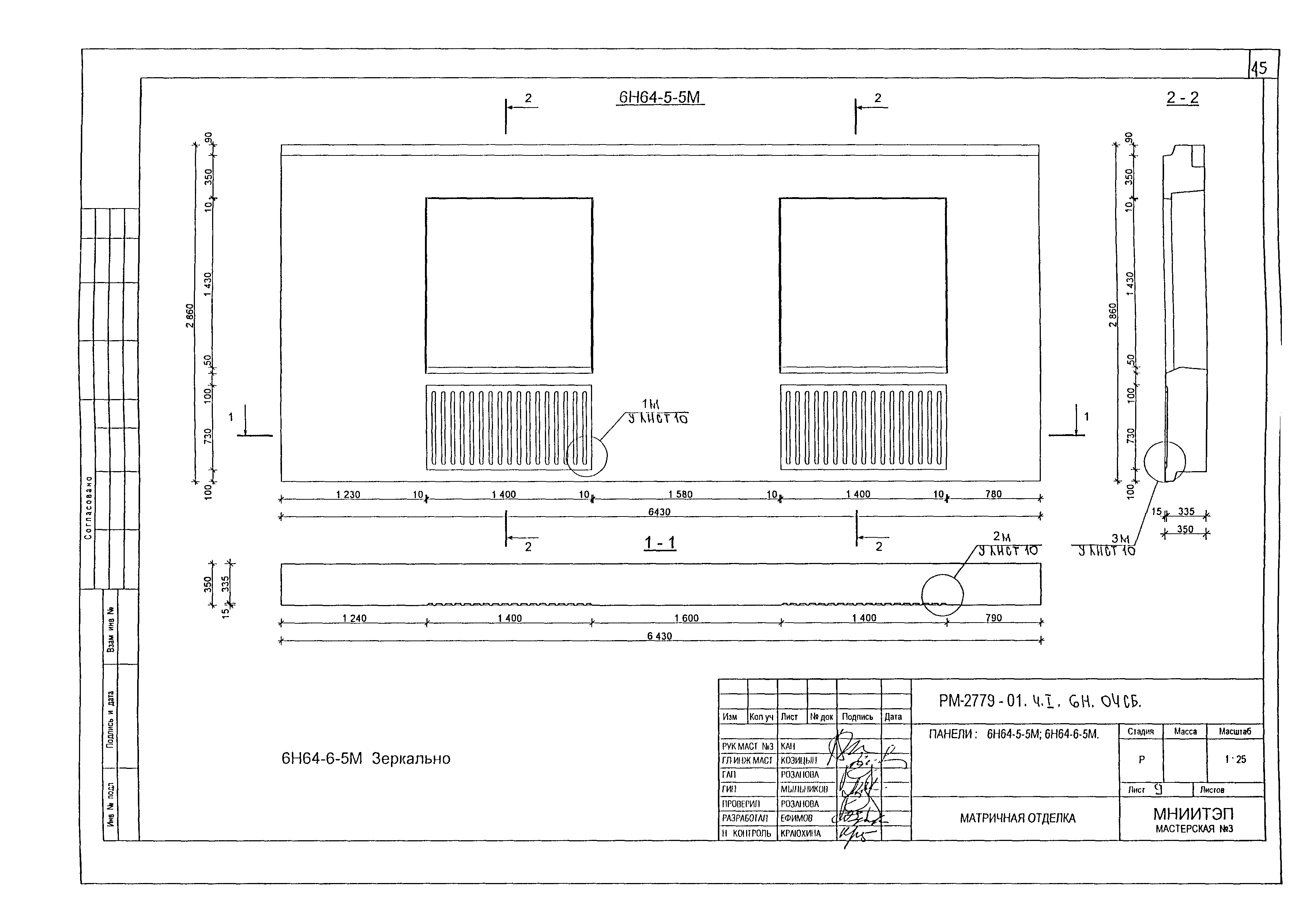
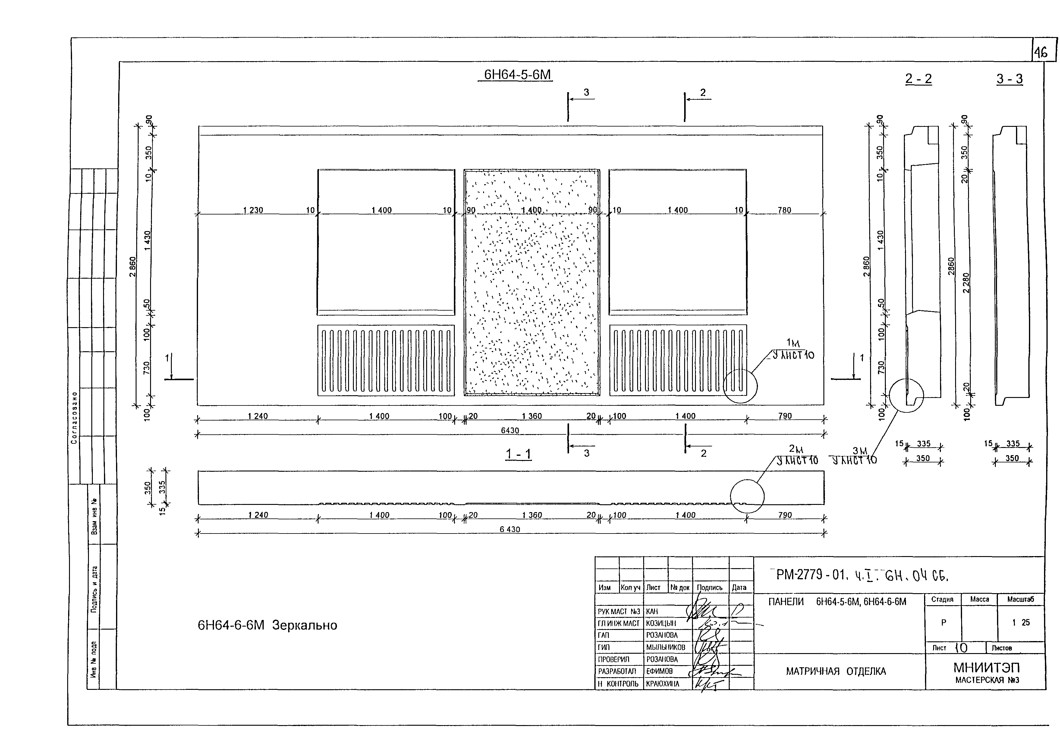
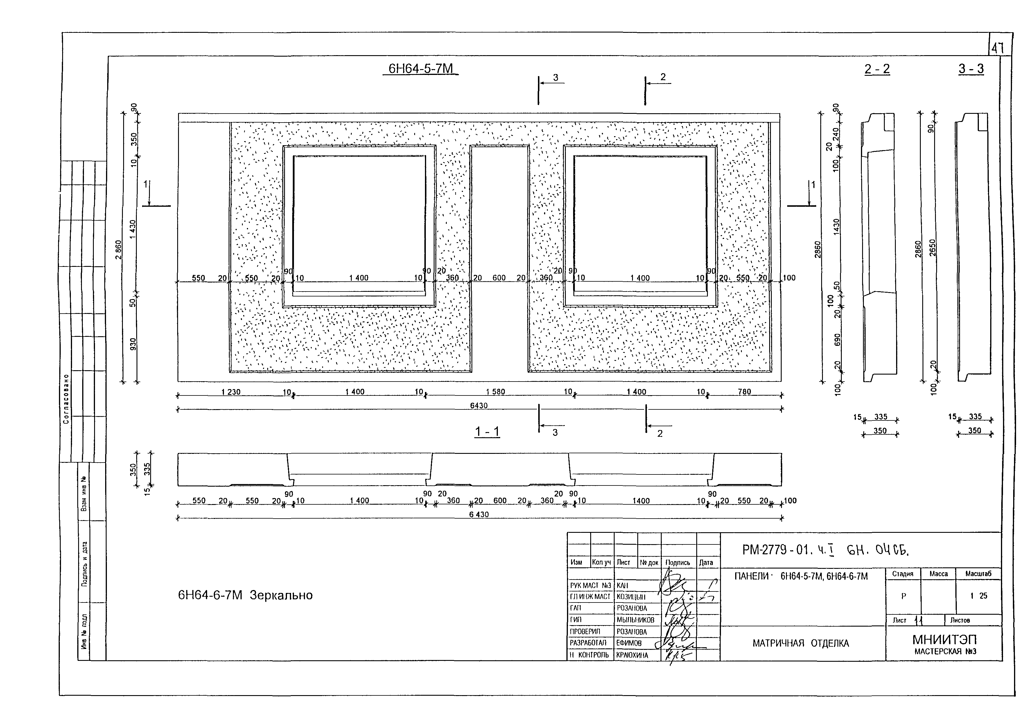
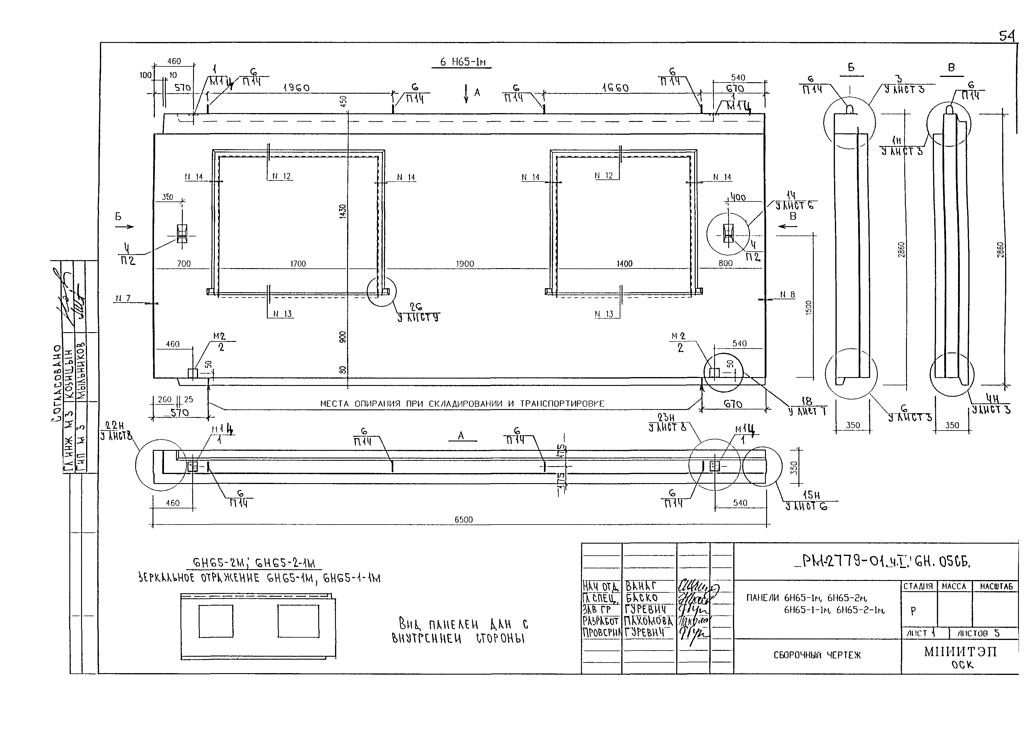
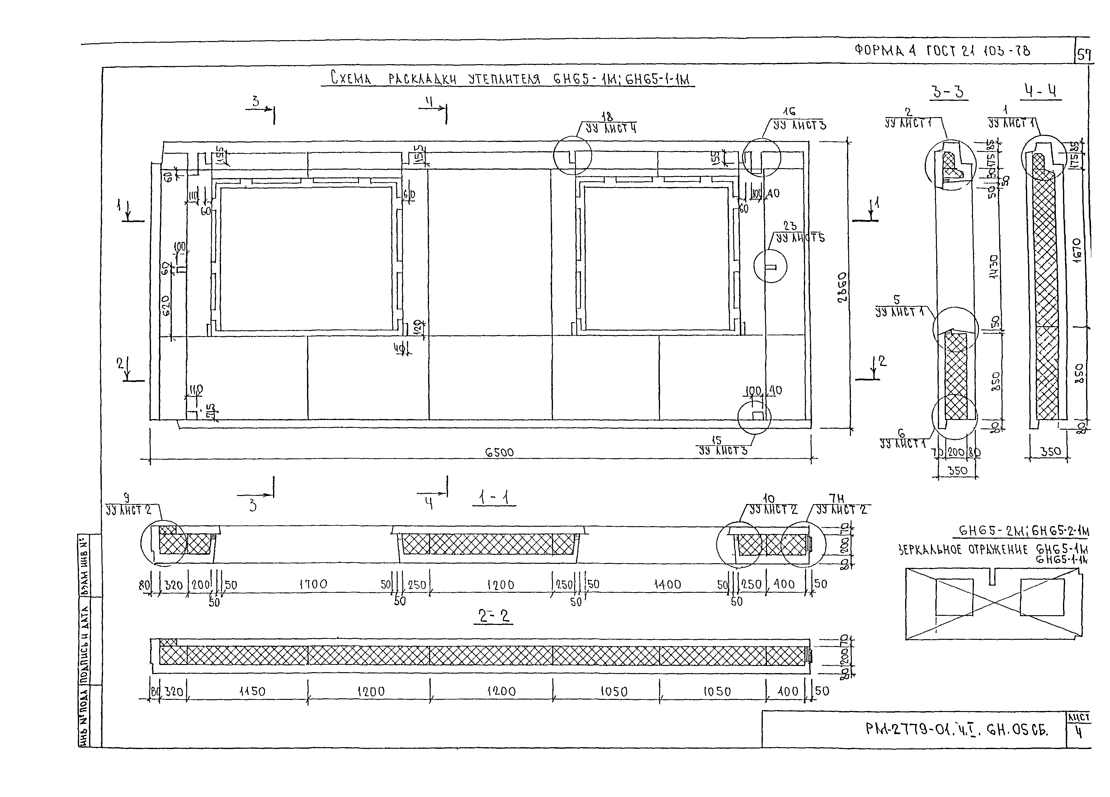
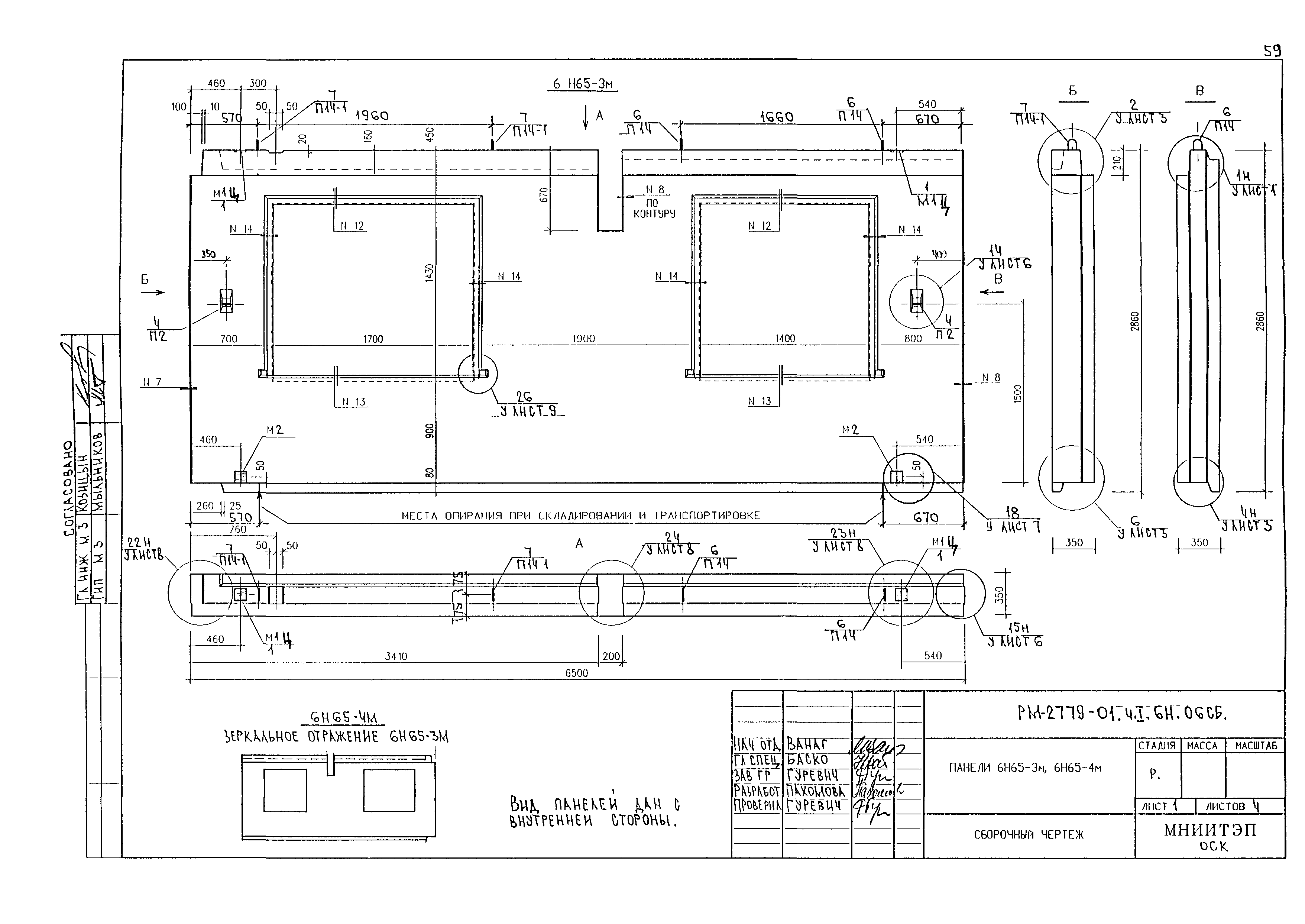
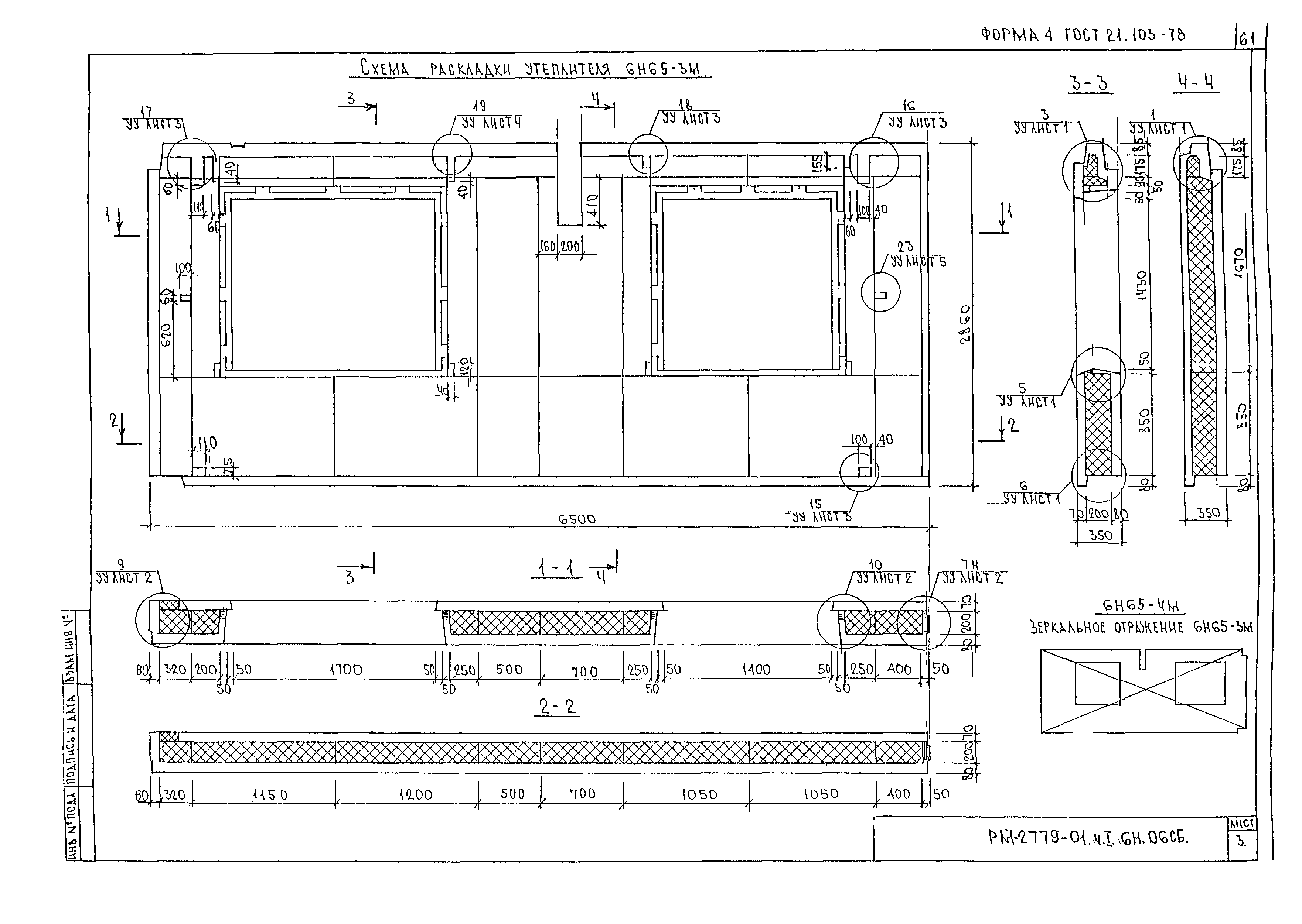
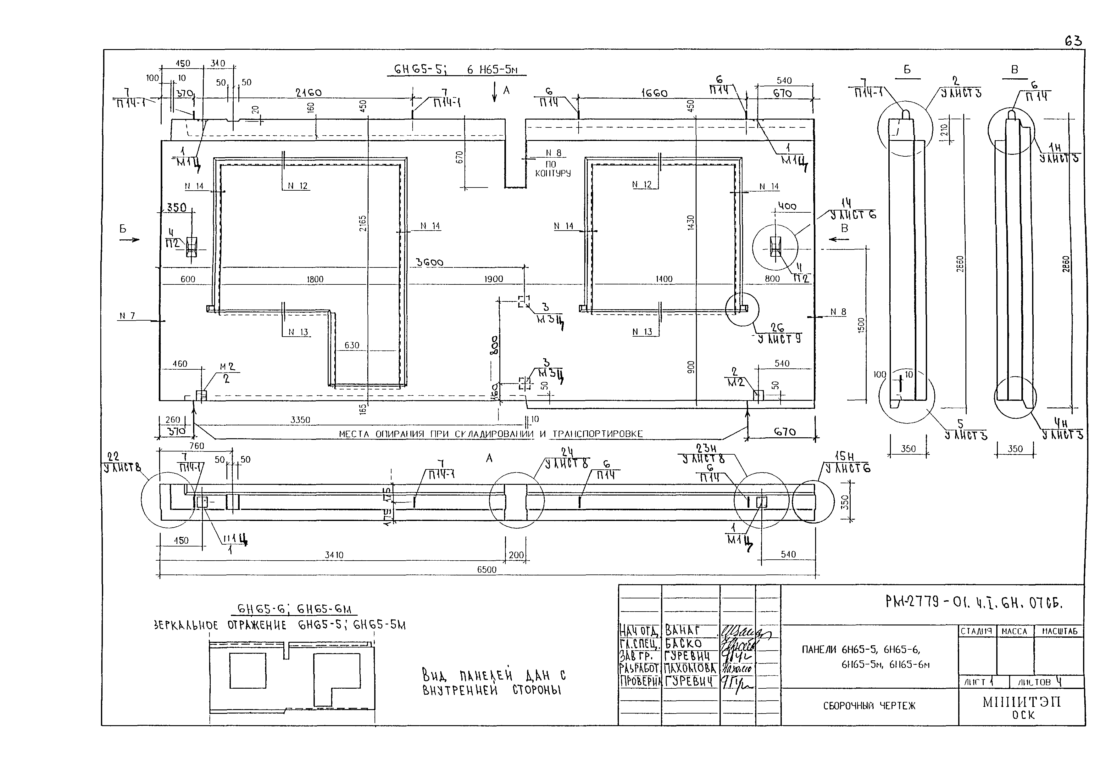
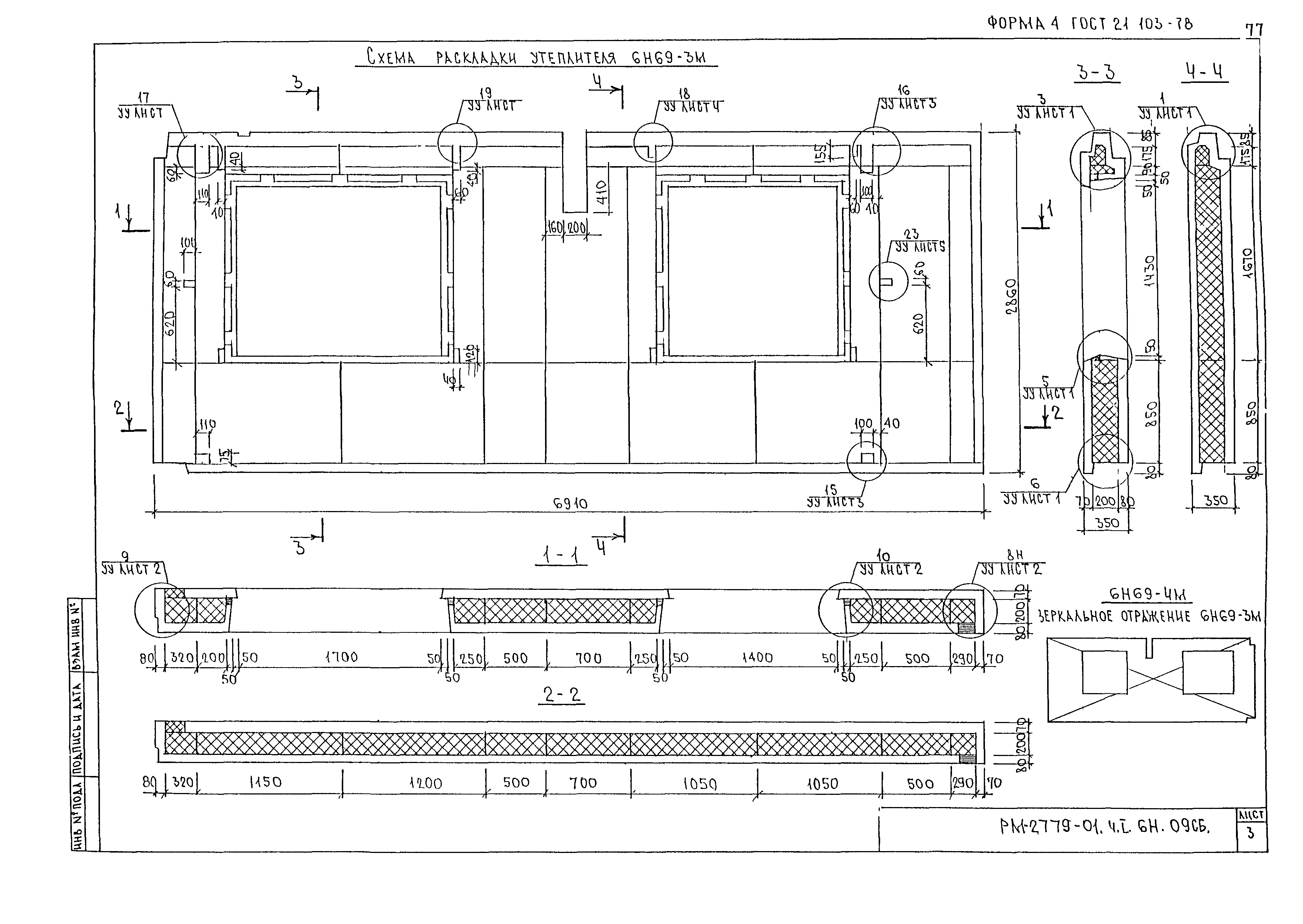
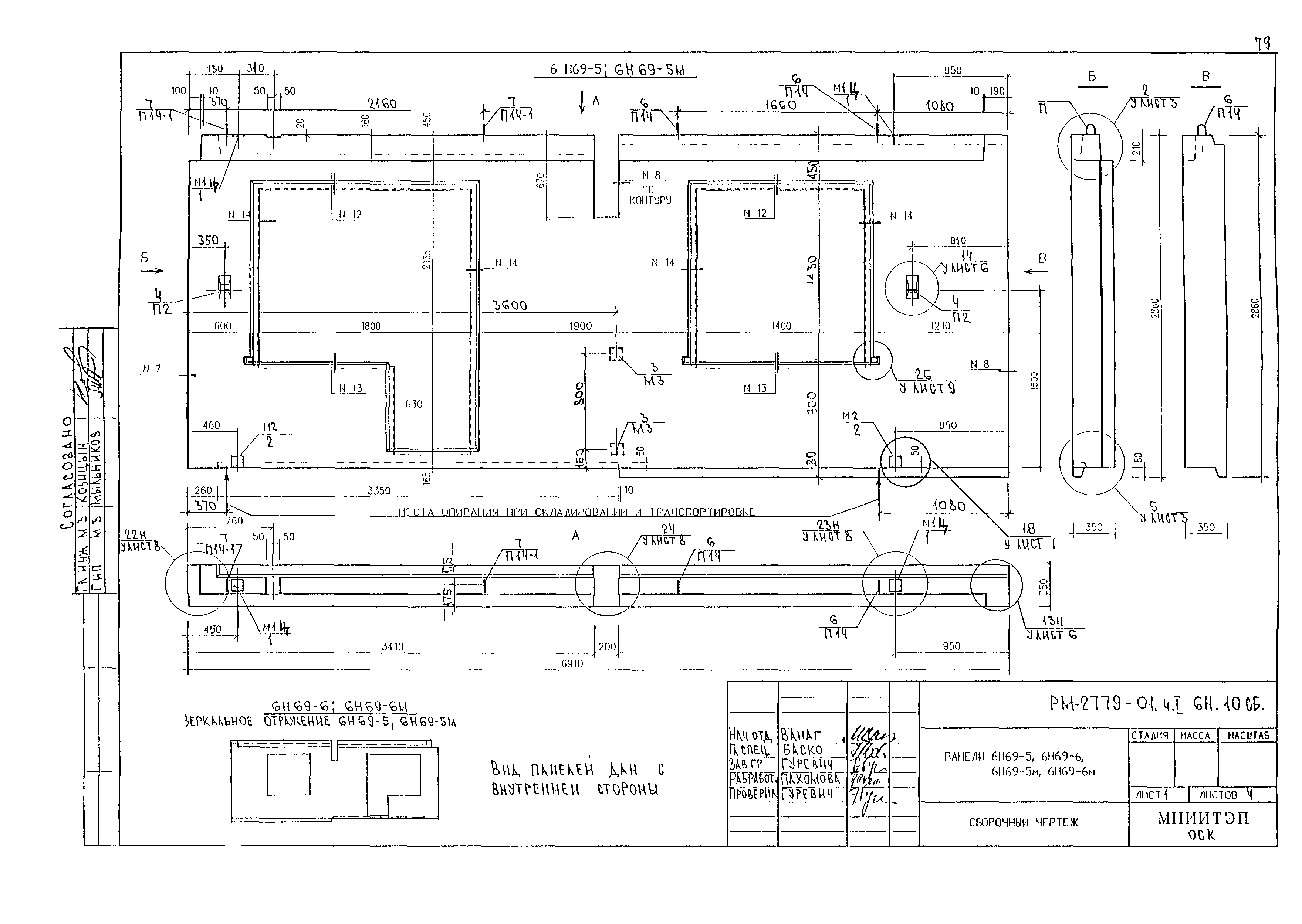
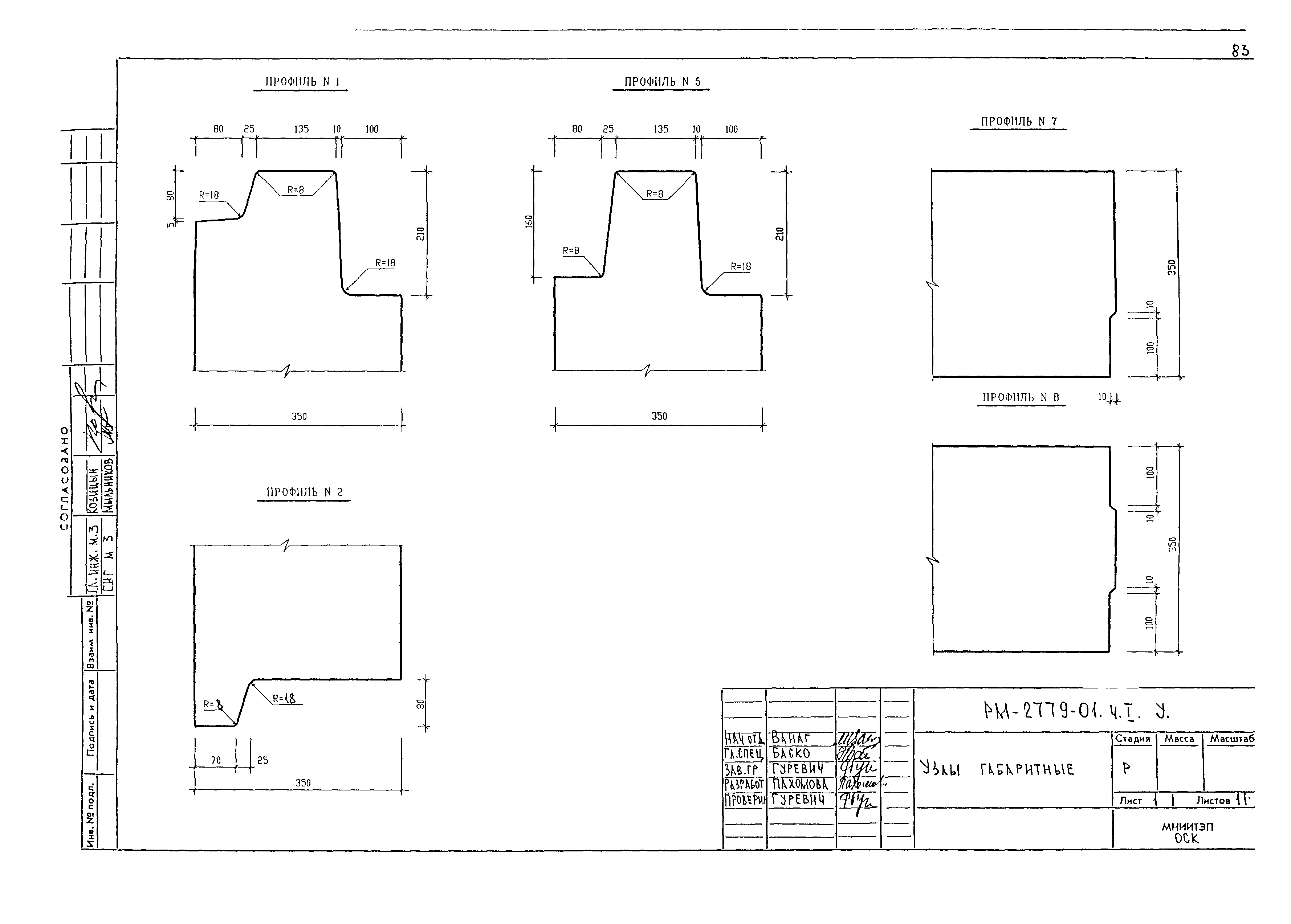
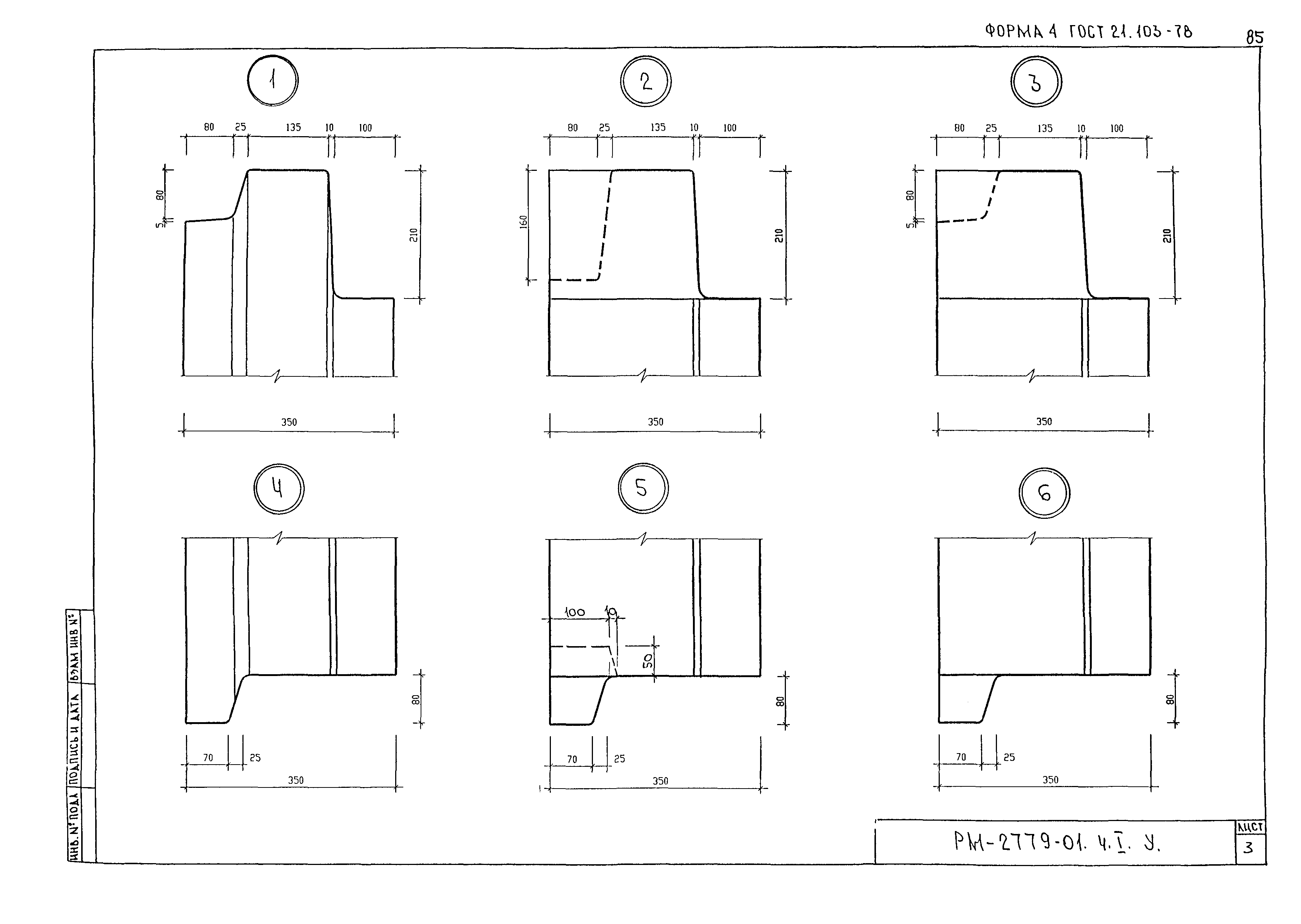
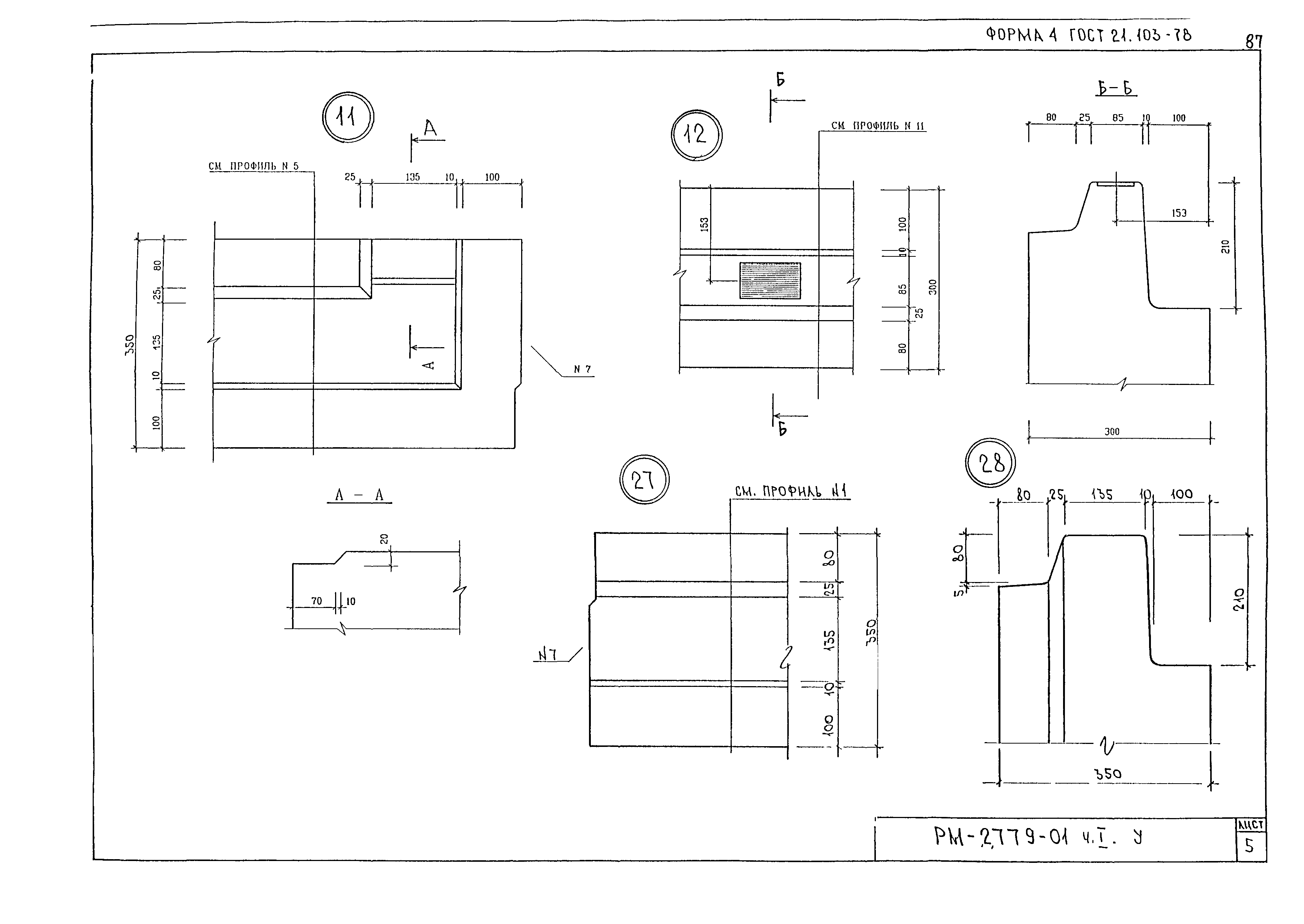
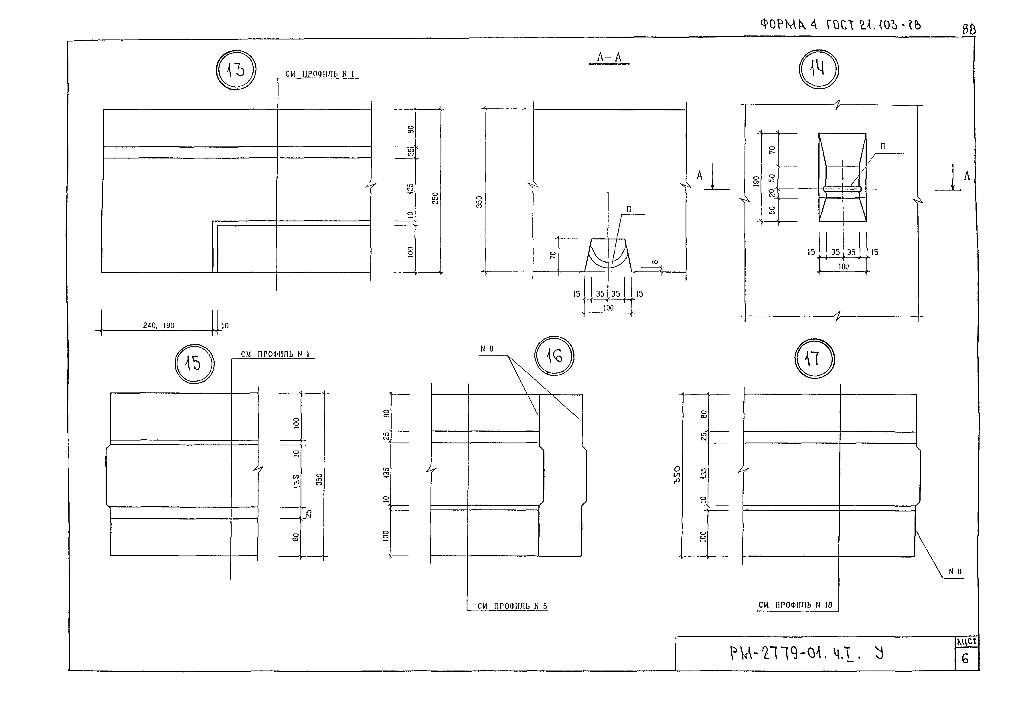
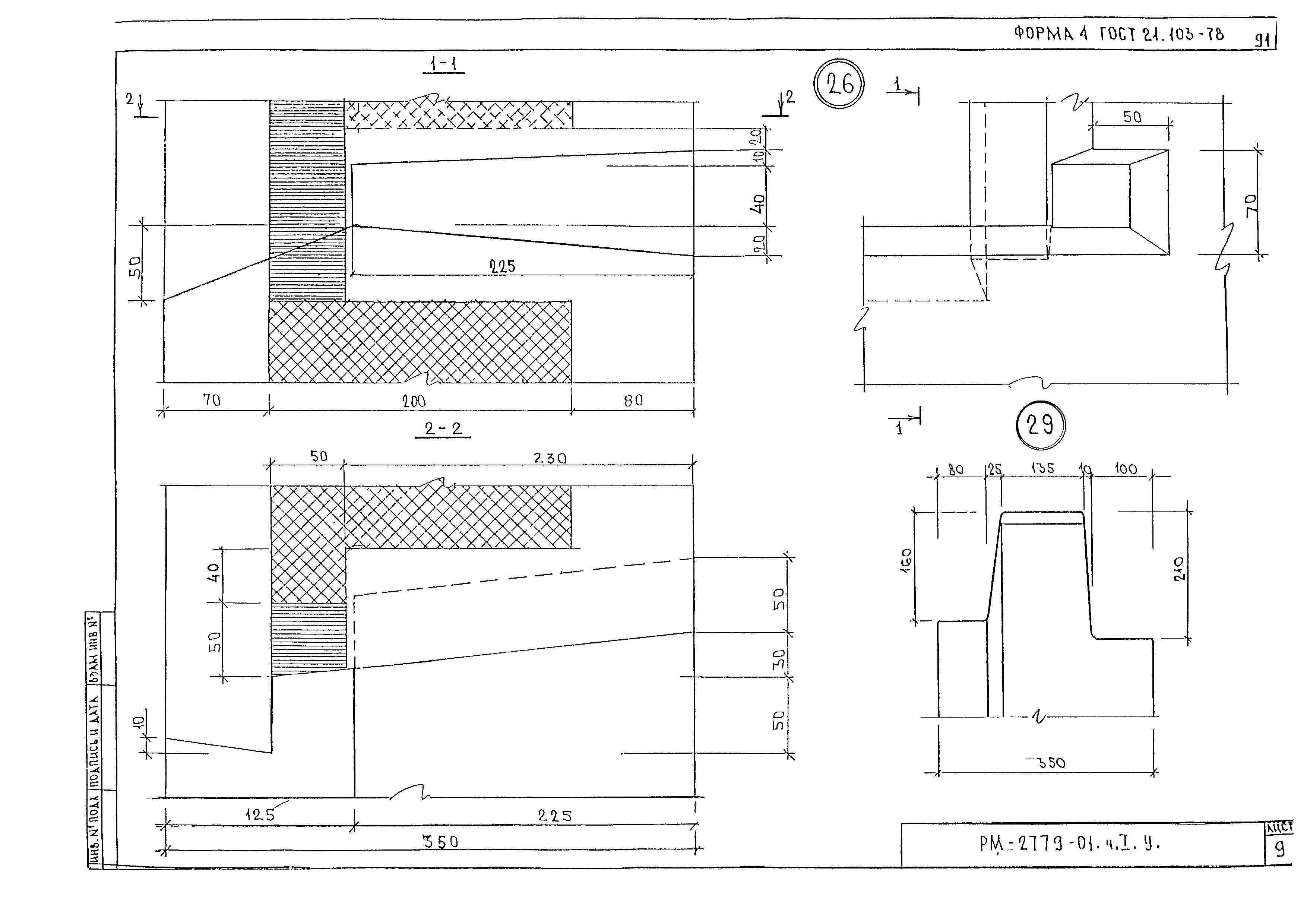
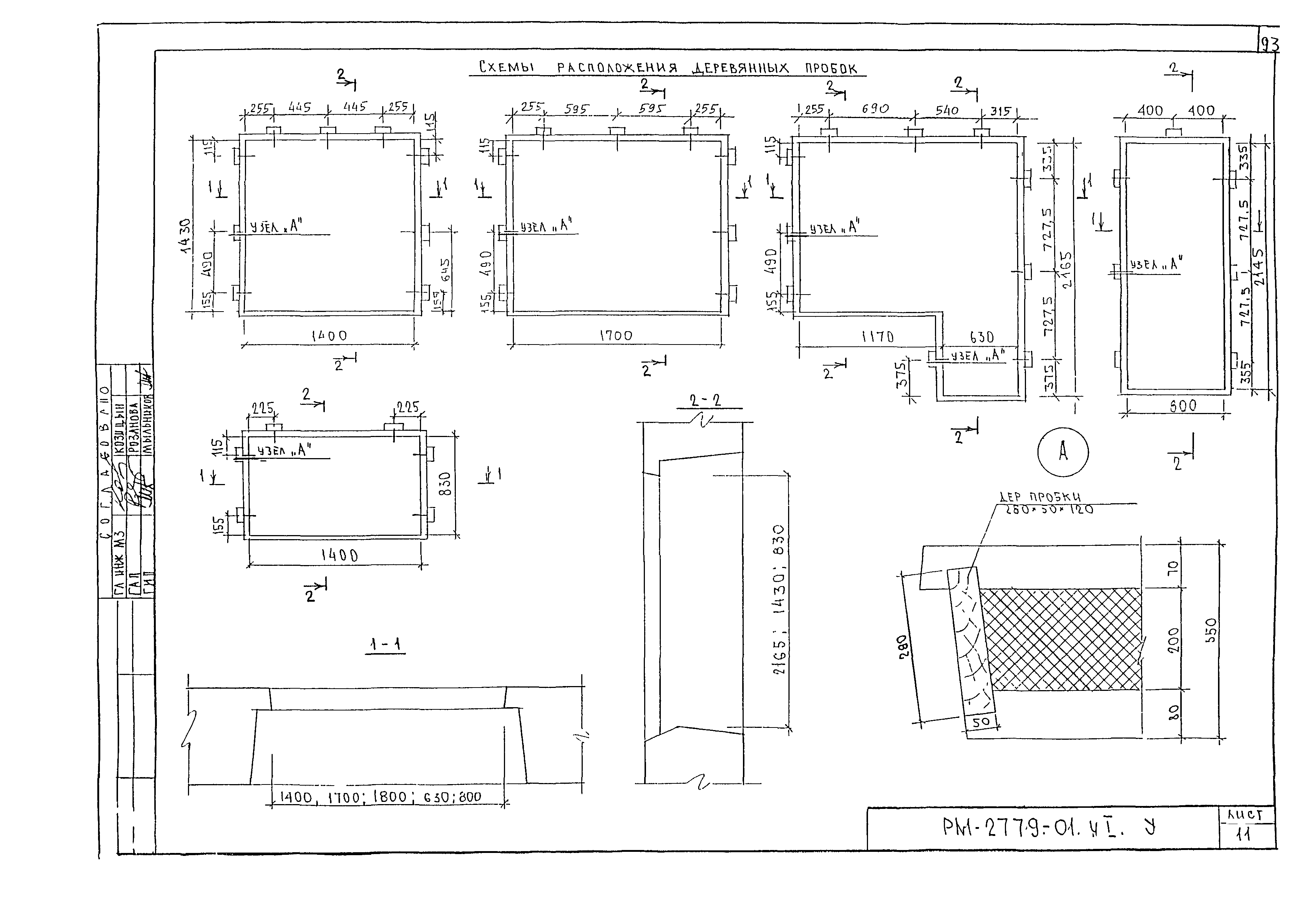
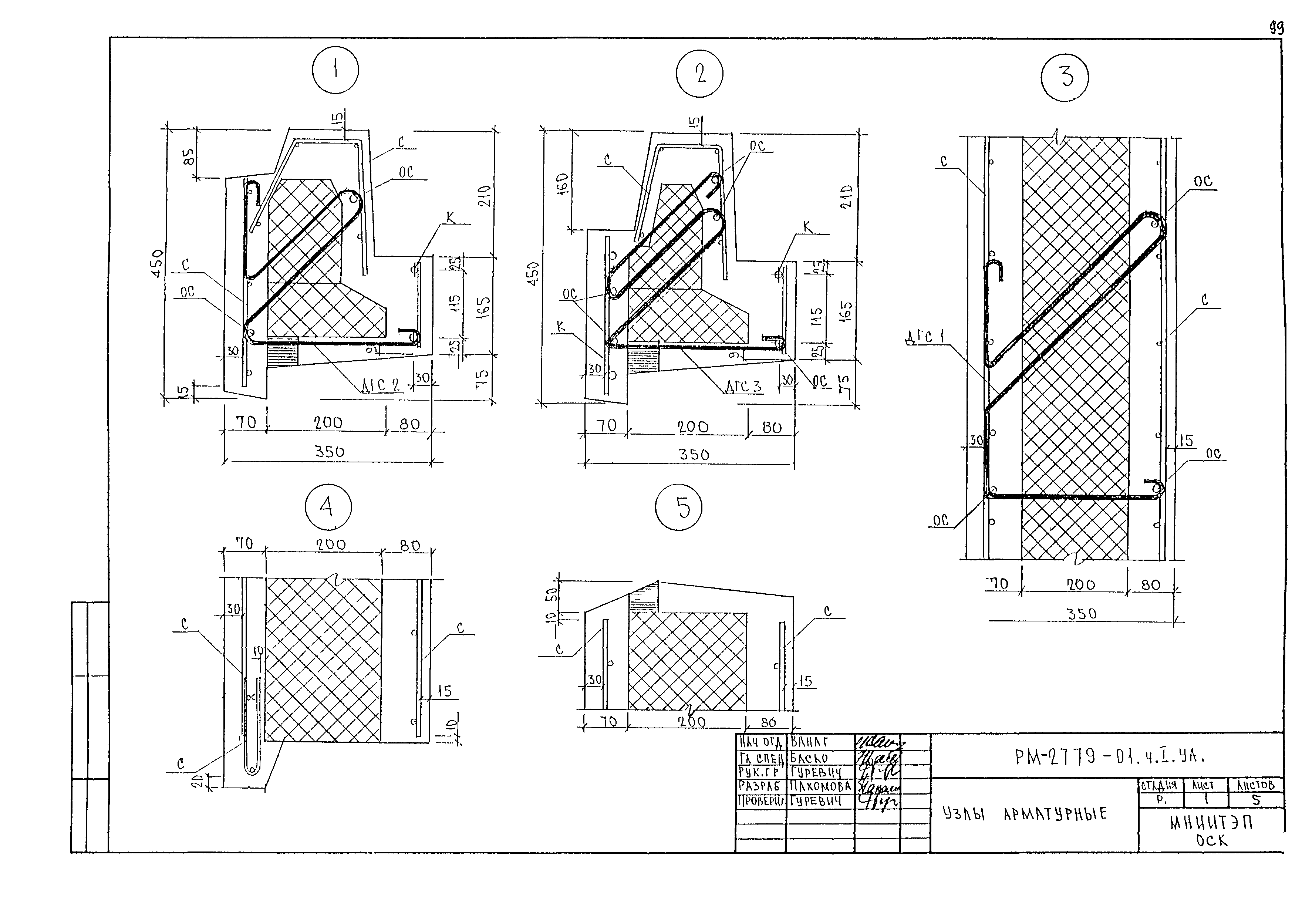
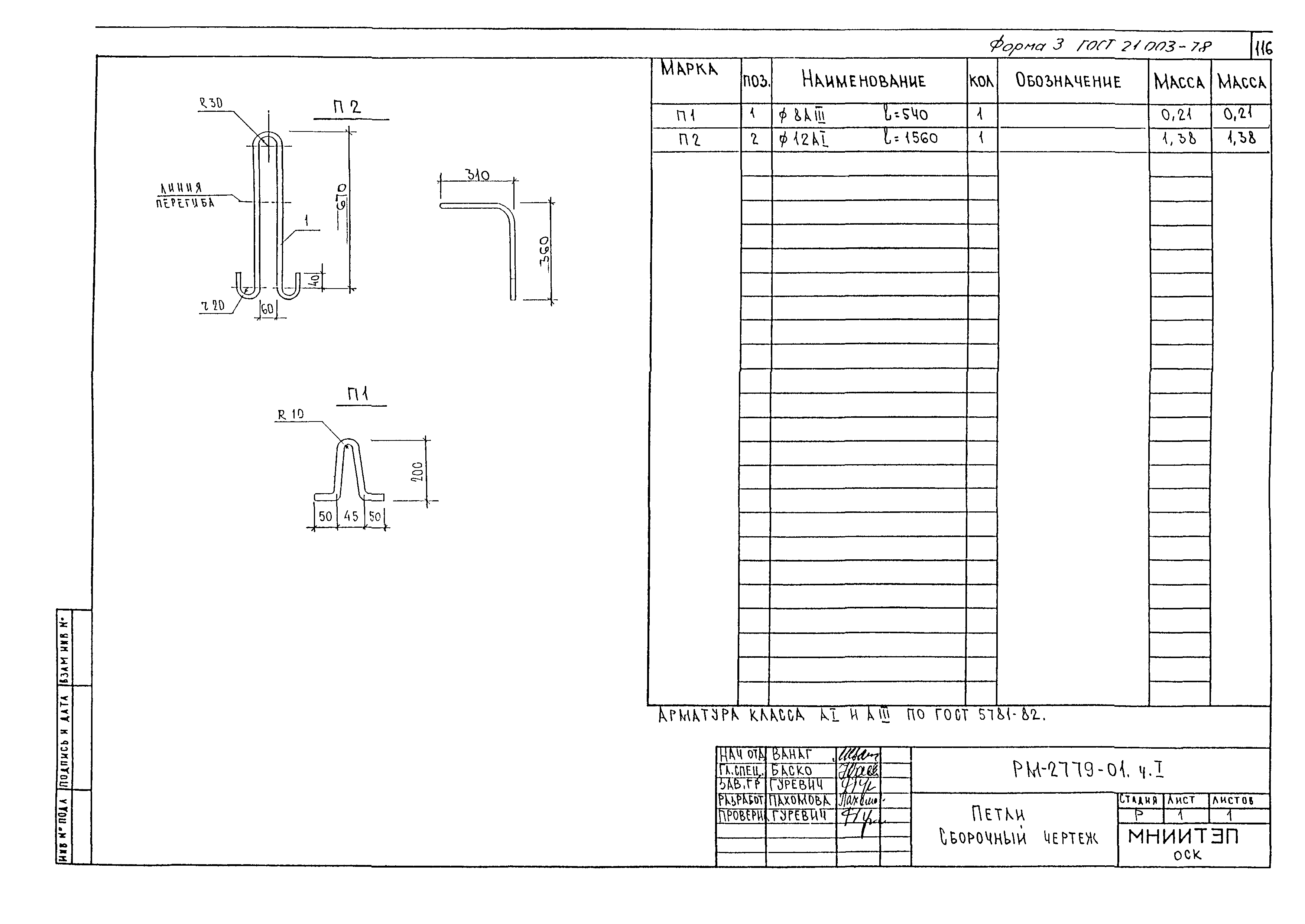
| Оглавление: | РМ-2779-01.ч.1.ПЗ Пояснительная записка РМ-2779-01.ч.1.НИ Номенклатура изделий РМ-2779-01.ч.1.РС Ведомость расхода стали РМ-2779-01.ч.1.6Н.01СБ Панели 6Н59-1м;6Н59-1-1м; 6Н59-1-2м ;6Н59-2м; 6Н59-2-1м; 6Н59-2-2м РМ-2779-01.ч.1.6Н.02СБ Панели 6Н63-1м; 6Н63-1-1м; 6Н63-1-2м; 6Н63-2м; 6Н63-2-1м; 6Н63-2-2м РМ-2779-01.ч.1.6Н.03СБ Панели 6Н64-1м; 6Н64-1-1м; 6Н64-2м; 6Н64-2-1м РМ-2779-01.ч.1.6Н.04СБ Панели 6H64-5-1м; 6Н64-5-2м; 6Н64-5-3м; 6Н64-5-4м; 6H64-6-1м; 6Н64-6-2М; 6Н64-6-3м; 6П64-6-4м. Панели 6Н64-5-5м; 6Н64-5-6м; 6Н64-5-7м; 6Н64-5-8м; 6Н64-6-5м; 6Н64-6-6м; 6Н64-6-7м; 6Н64-6-8м РМ-2779-01.ч.1.6Н.05СБ Панели 6Н65-1м; 6Н65-1-1м; 6Н65-2м; 6H65-2-1м РМ-2779-01.ч.1.6Н.06СБ Панели 6Н65-3м; 6Н65-4м РМ-2779-01.ч.1.6Н.07СБ Панели 6Н65-5; 6Н65-5м; 6Н65-6; 6Н65-6м РМ-2779-01.ч.1.6Н.08СБ Панели 6Н69-1м; 6Н69-1-1м; 6Н69-2м; 6H69-2-1м РМ-2779-01.ч.1.6Н.09СБ Панели 6Н69-3м; 6Н69-4м РМ-2779-01.ч.1.6Н.10СБ Панели 6H69-5; 6Н69-5м; 6Н69-6; 6Н69-6м РМ-2779-01.ч.1.У. Узлы габаритные РМ-2779-01.ч.1.УУ. Узлы раскладки утеплителя РМ-2779-01.ч.1.УА. Узлы арматурные РМ-2779-01.ч.1. Каркасы. Сборочный чертёж РМ-2779-01.ч.1. Сетки. Сборочный чертёж РМ-2779-01.ч.1. Дискретная связь. Сборочный чертёж РМ-2779-01.ч.1. Петли. Сборочный чертёж РМ-2779-01.ч.1. Закладные детали. Сборочный чертёж РМ-2779-01.ч.1. Информационная карта |
| Разработан: | МНИИТЭП |
| Утверждён: | 06.04.2000 МНИИТЭП (MNIITEP 17-ТО) |






















































































































