Скачать 6КДС Жилые блок-секции серии М6 ЭКО. Архитектурно-строительные решения. Надземная часть. Железобетонные конструкции чердака и кровли здания. Детали узловДата актуализации: 01.01.2021
|
| Обозначение: | 6КДС |
| Обозначение англ: | 6КДС |
| Статус: | не определен законодательством |
| Название рус.: | Жилые блок-секции серии М6 ЭКО. Архитектурно-строительные решения. Надземная часть. Железобетонные конструкции чердака и кровли здания. Детали узлов |
| Дата добавления в базу: | 01.09.2013 |
| Дата актуализации: | 01.01.2021 |
| Дата введения: | 01.01.1999 |
| Дата окончания срока действия: | 30.06.2003 |
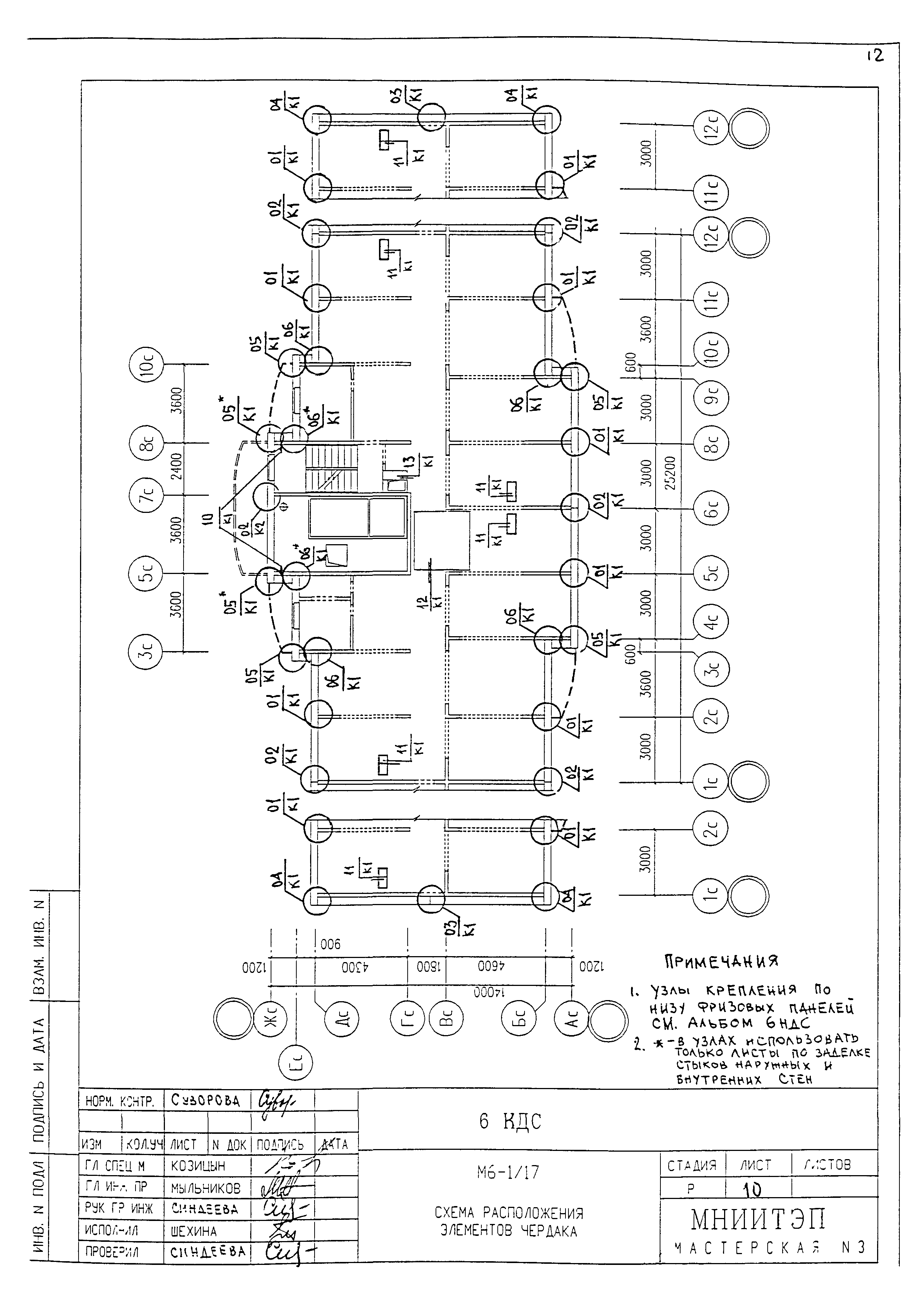
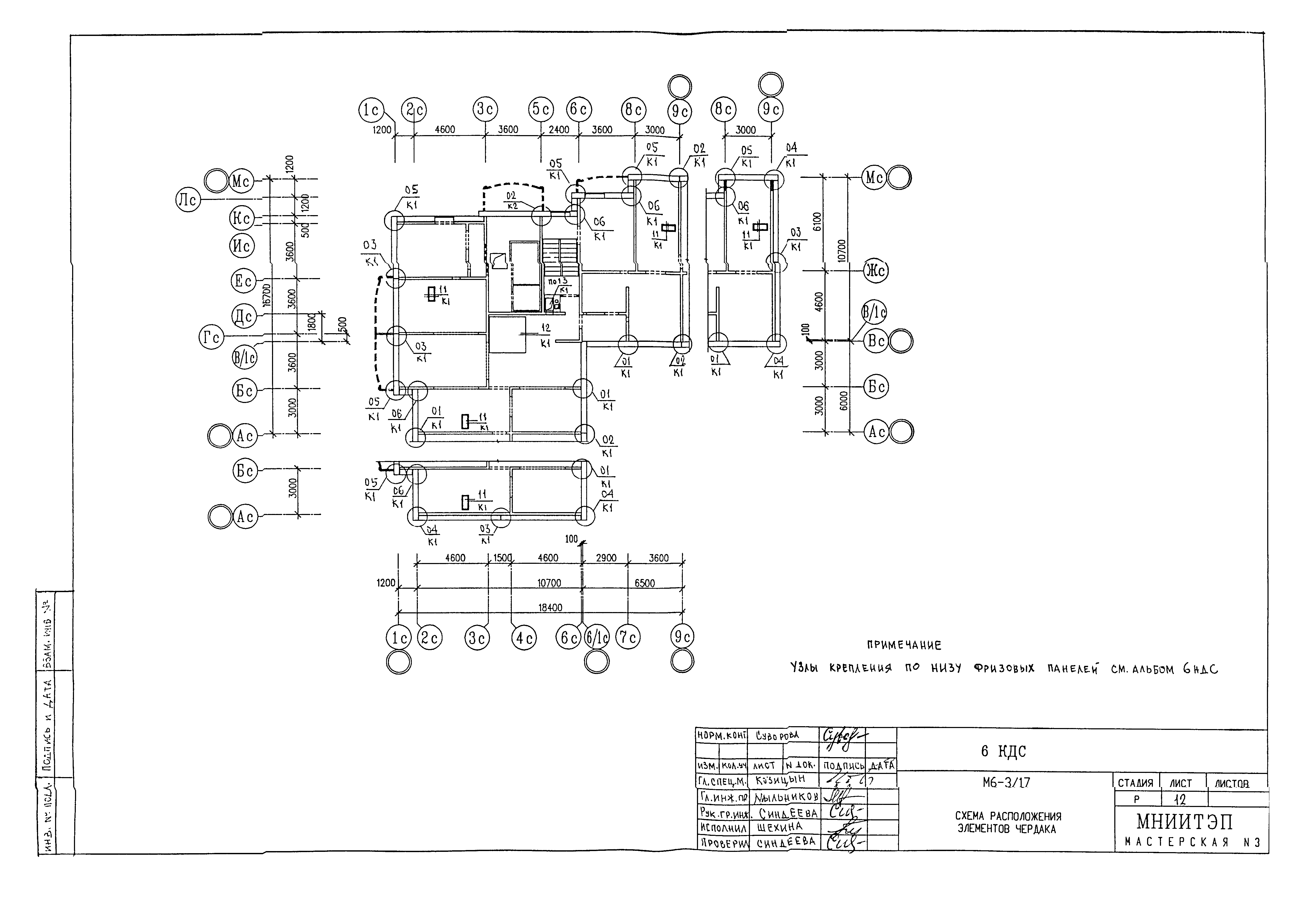
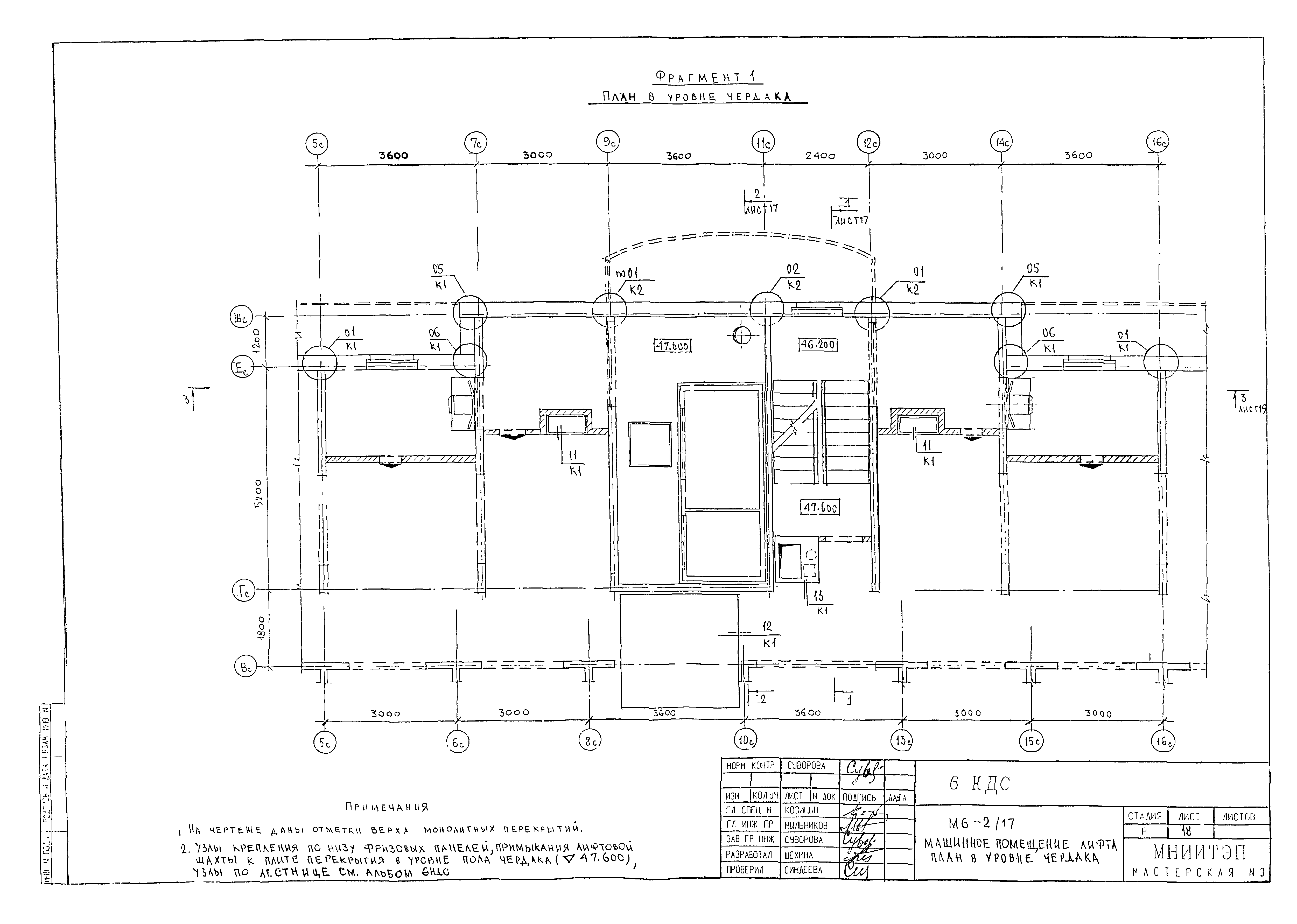
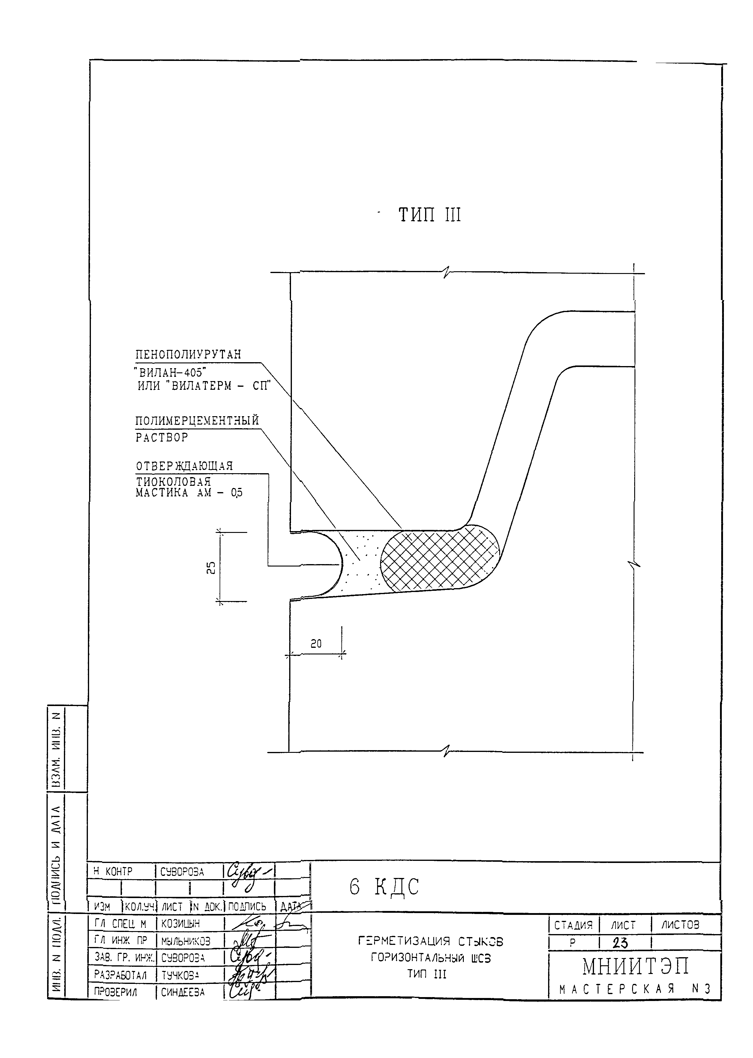
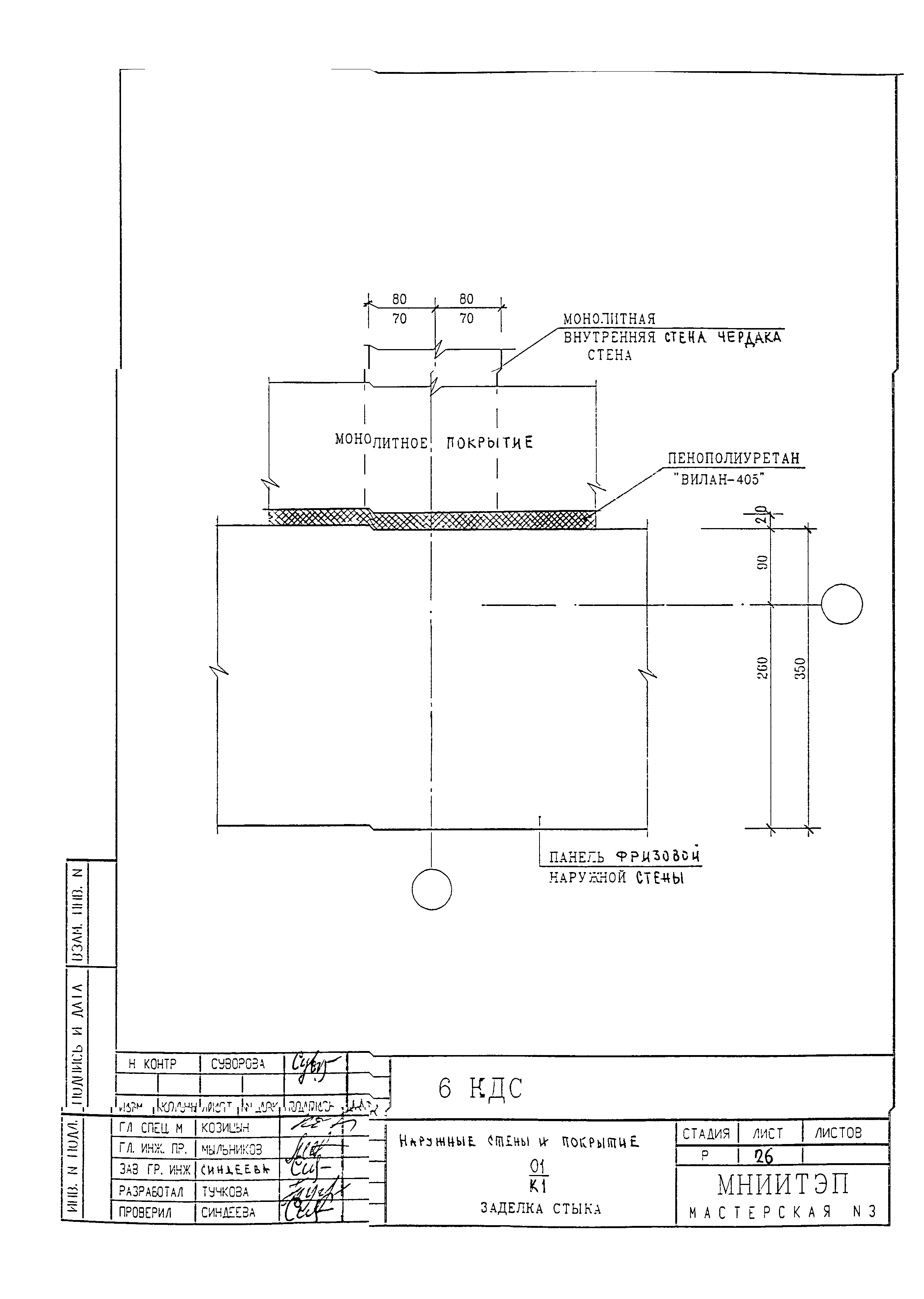
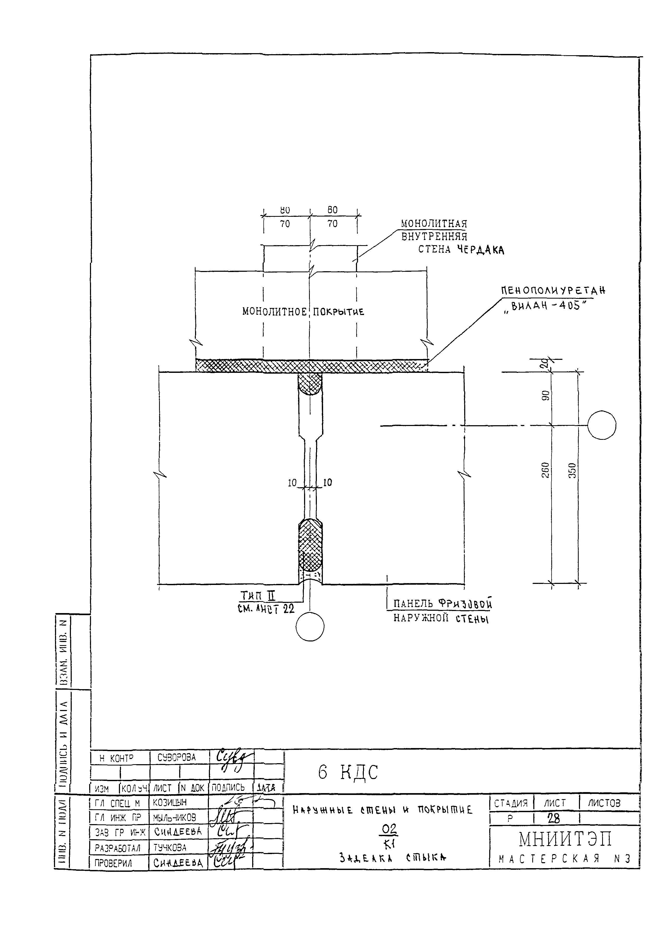
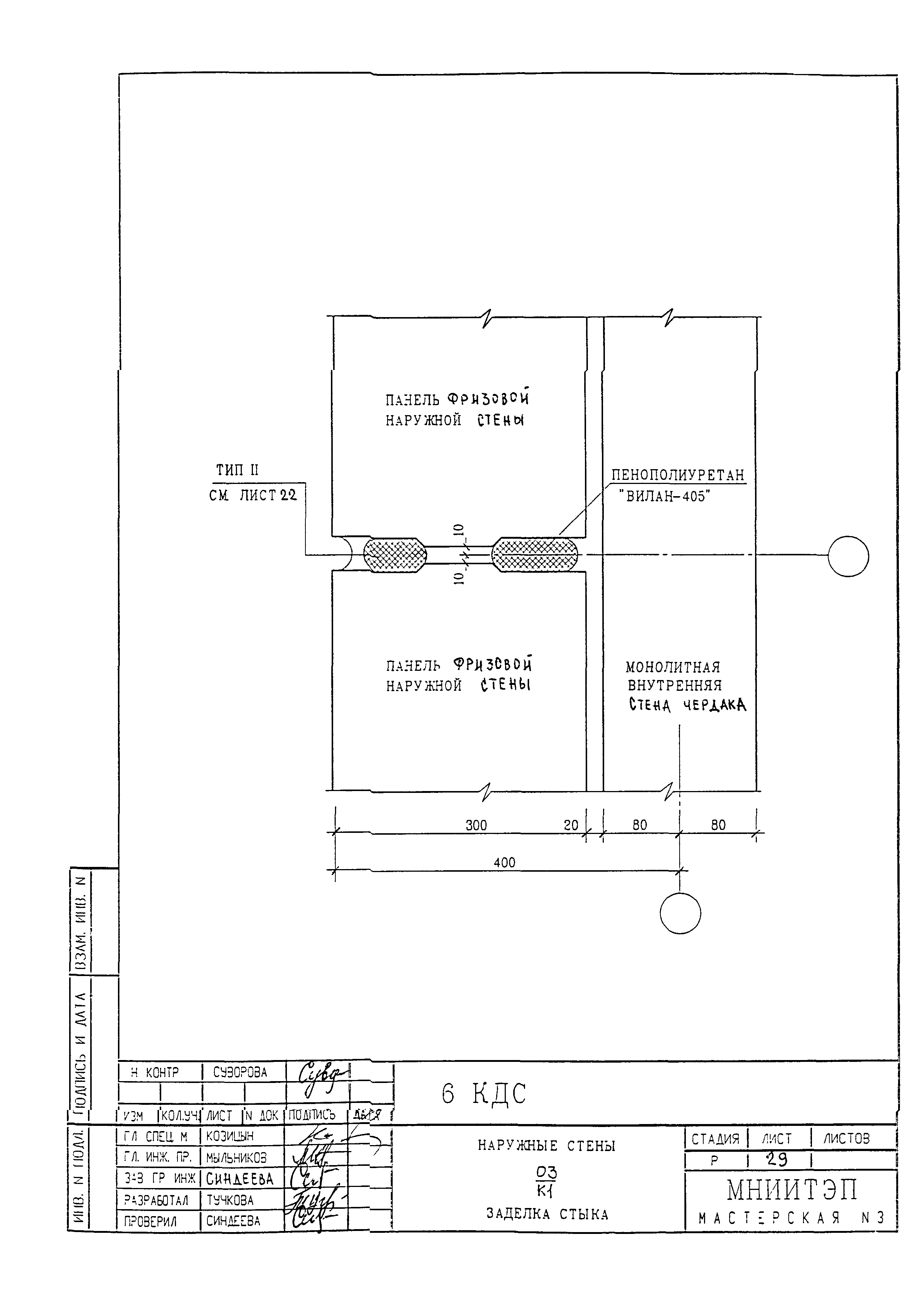
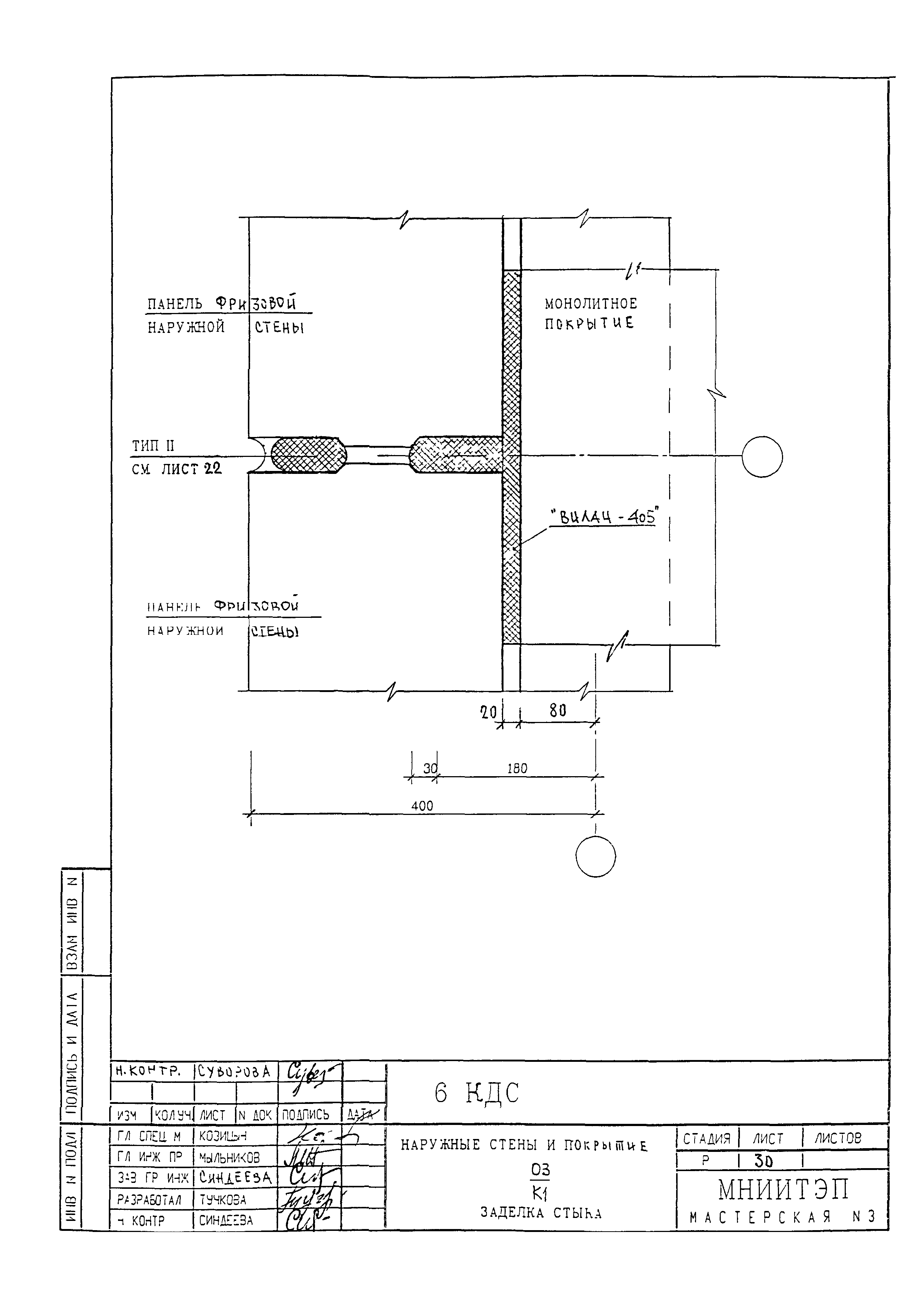
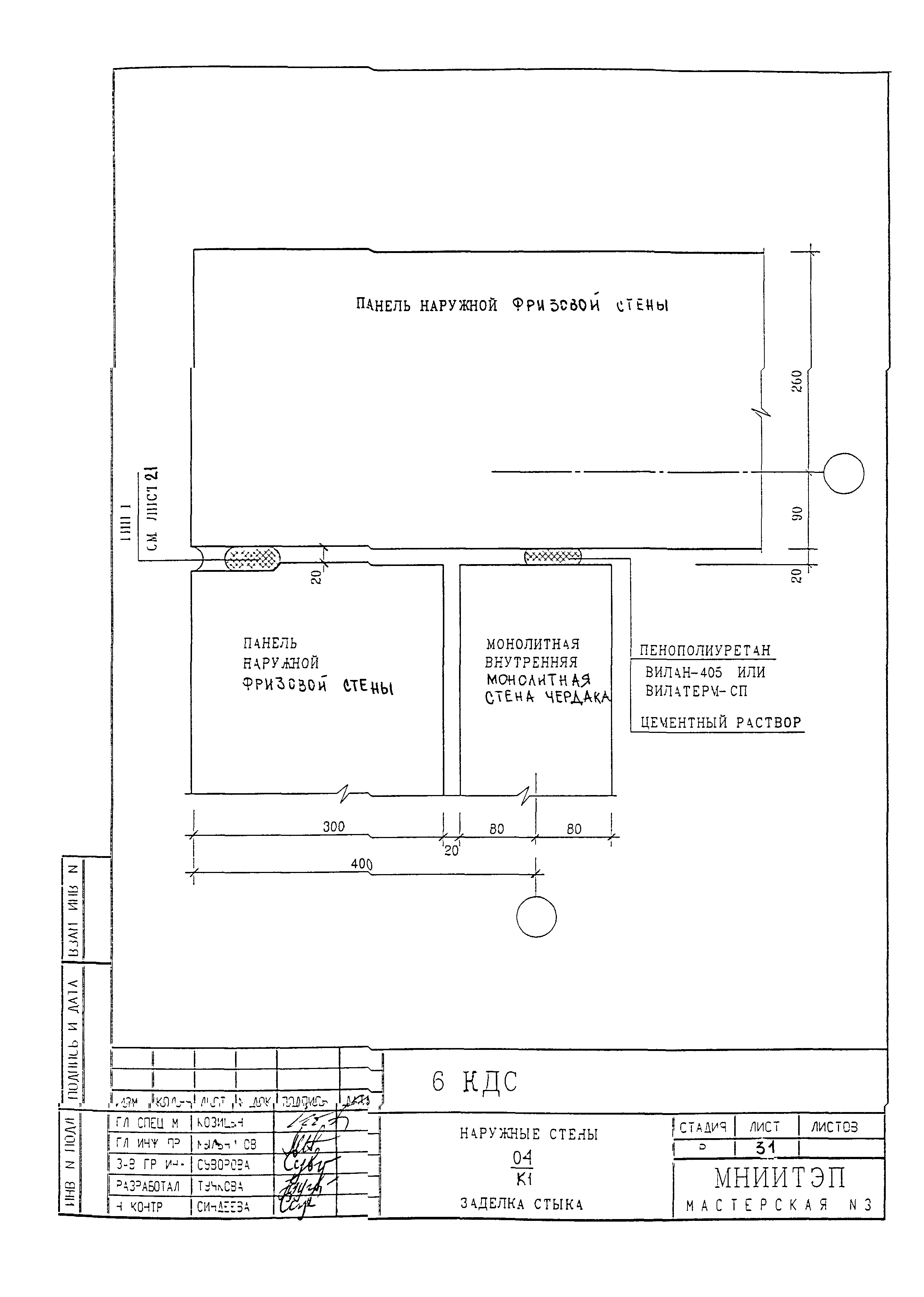
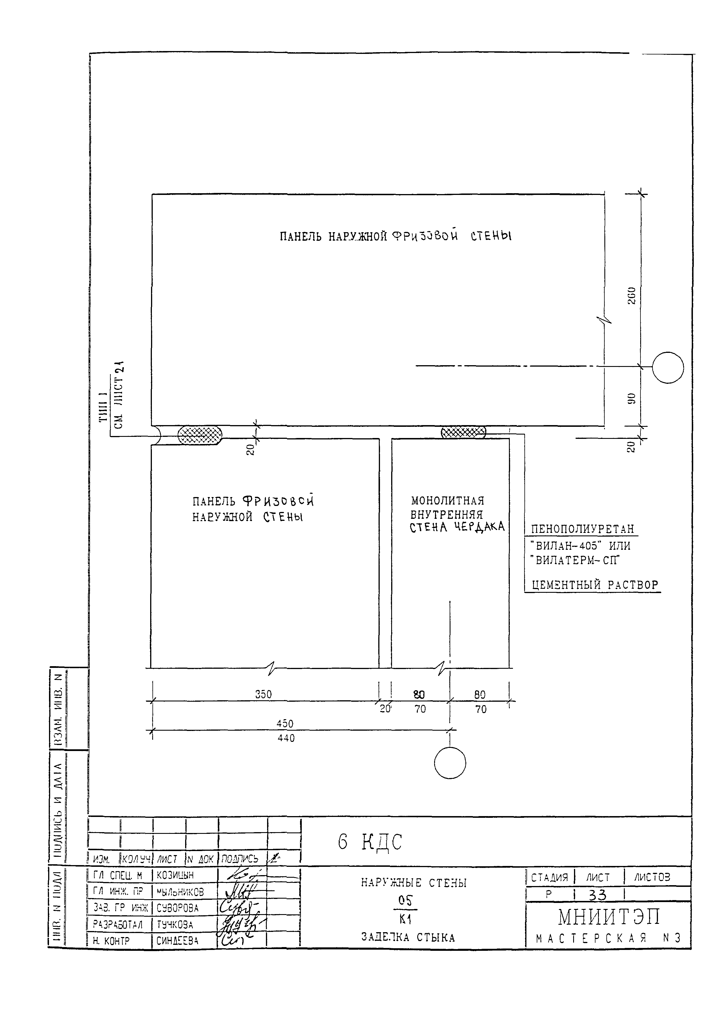
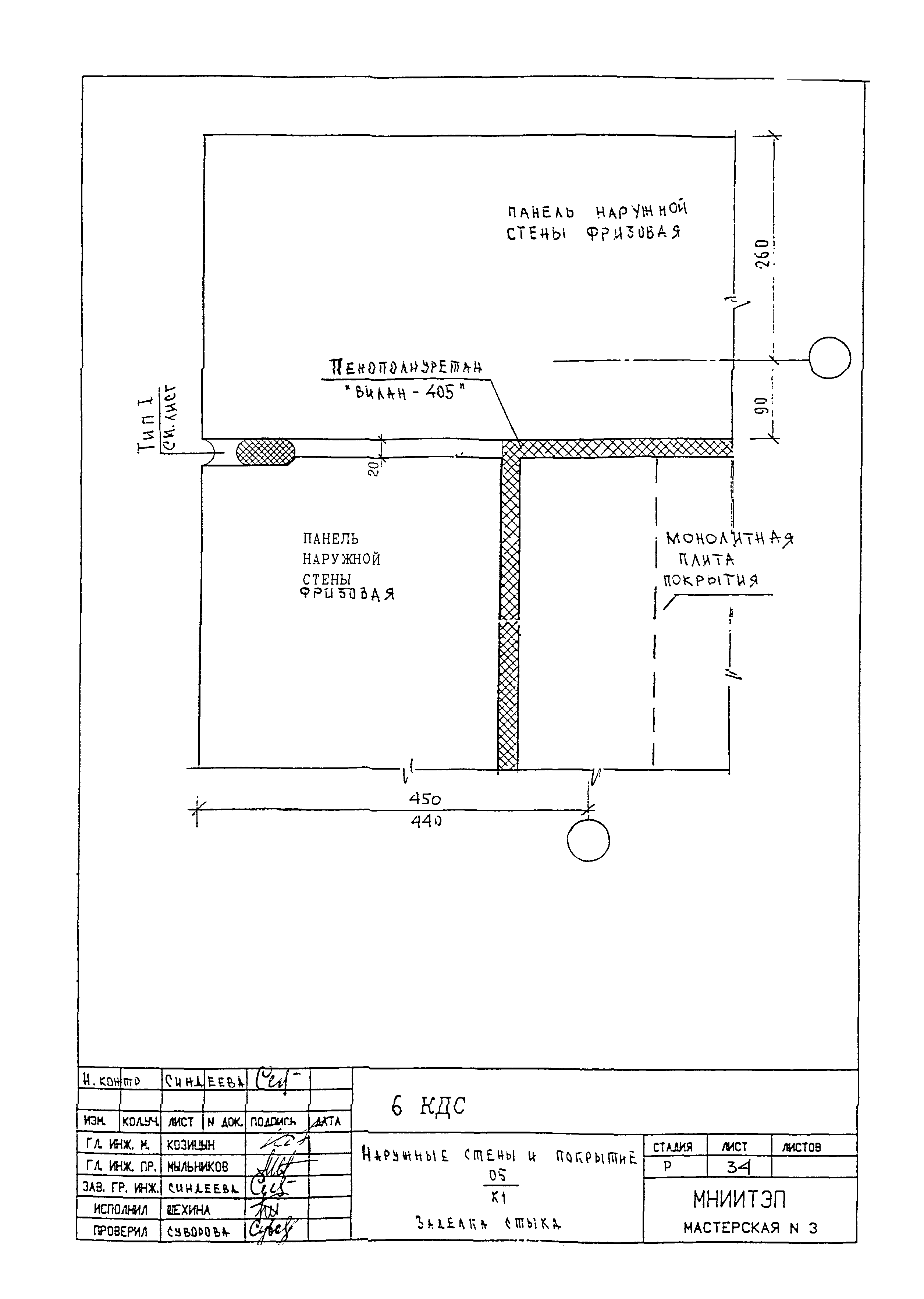
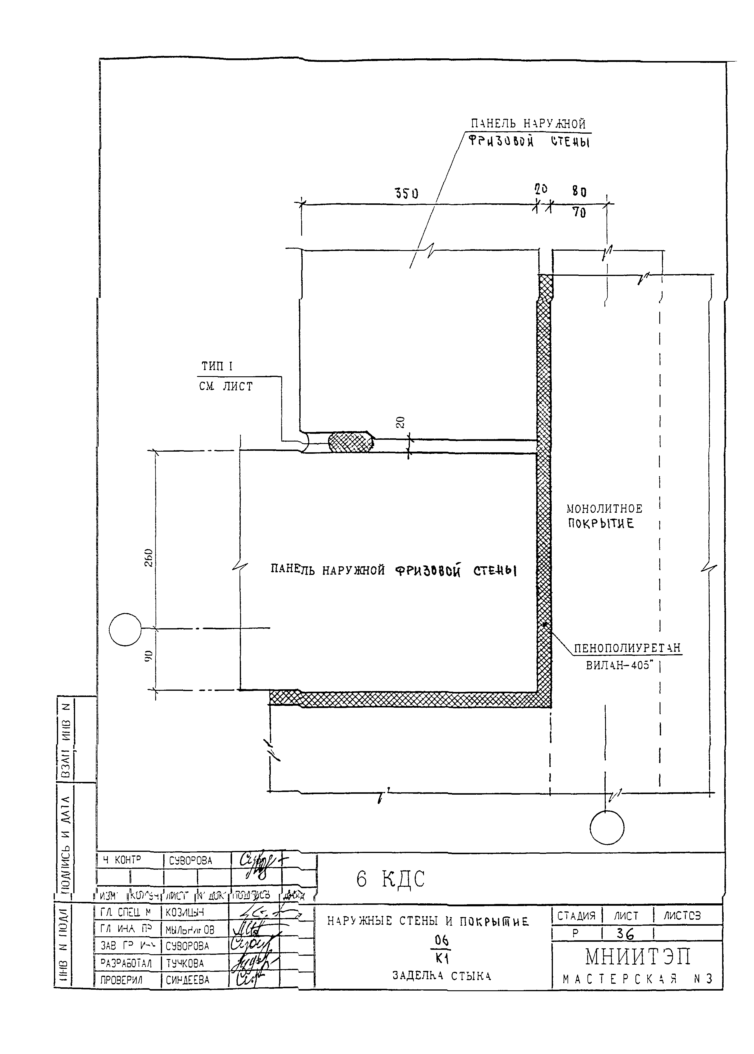
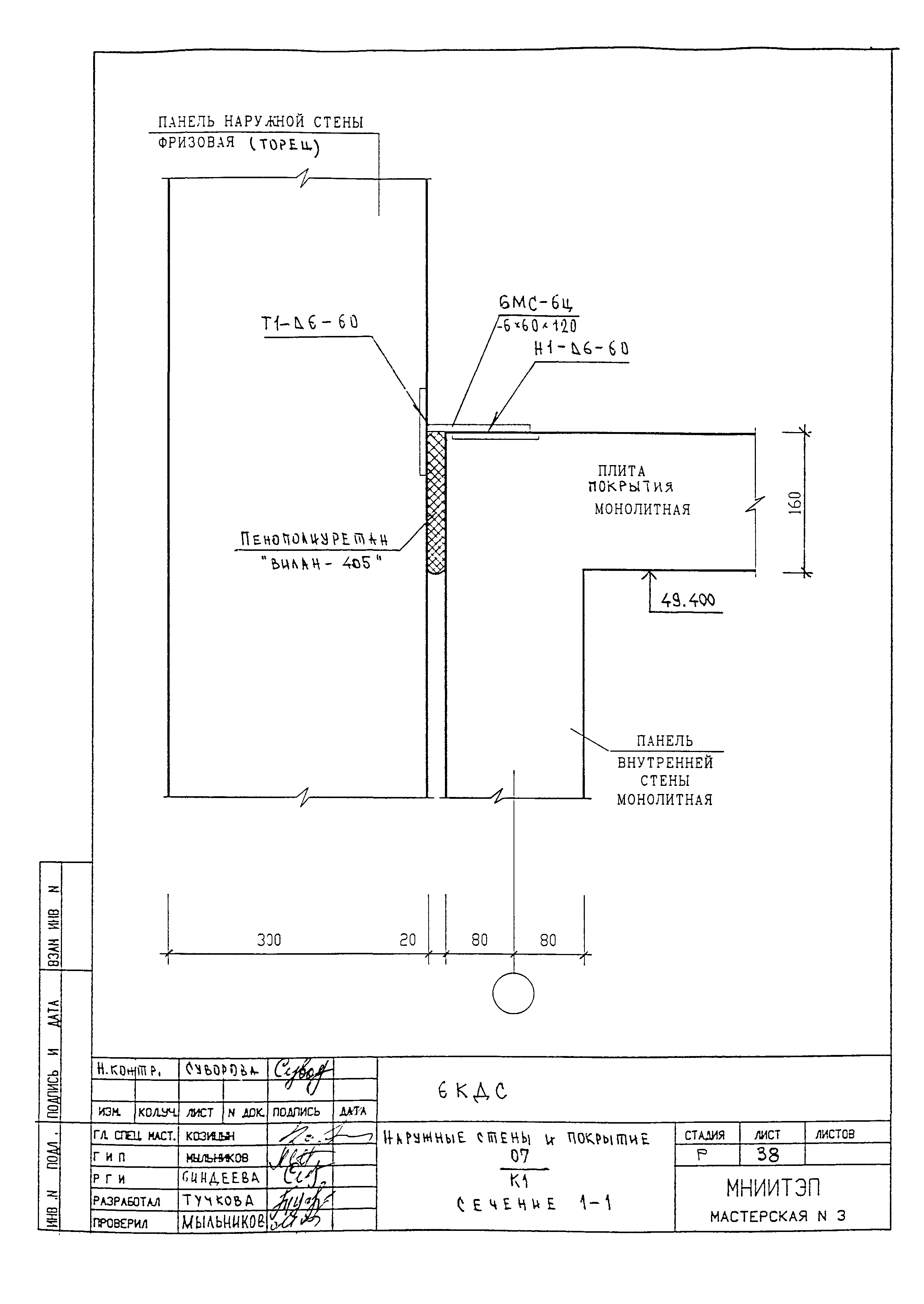
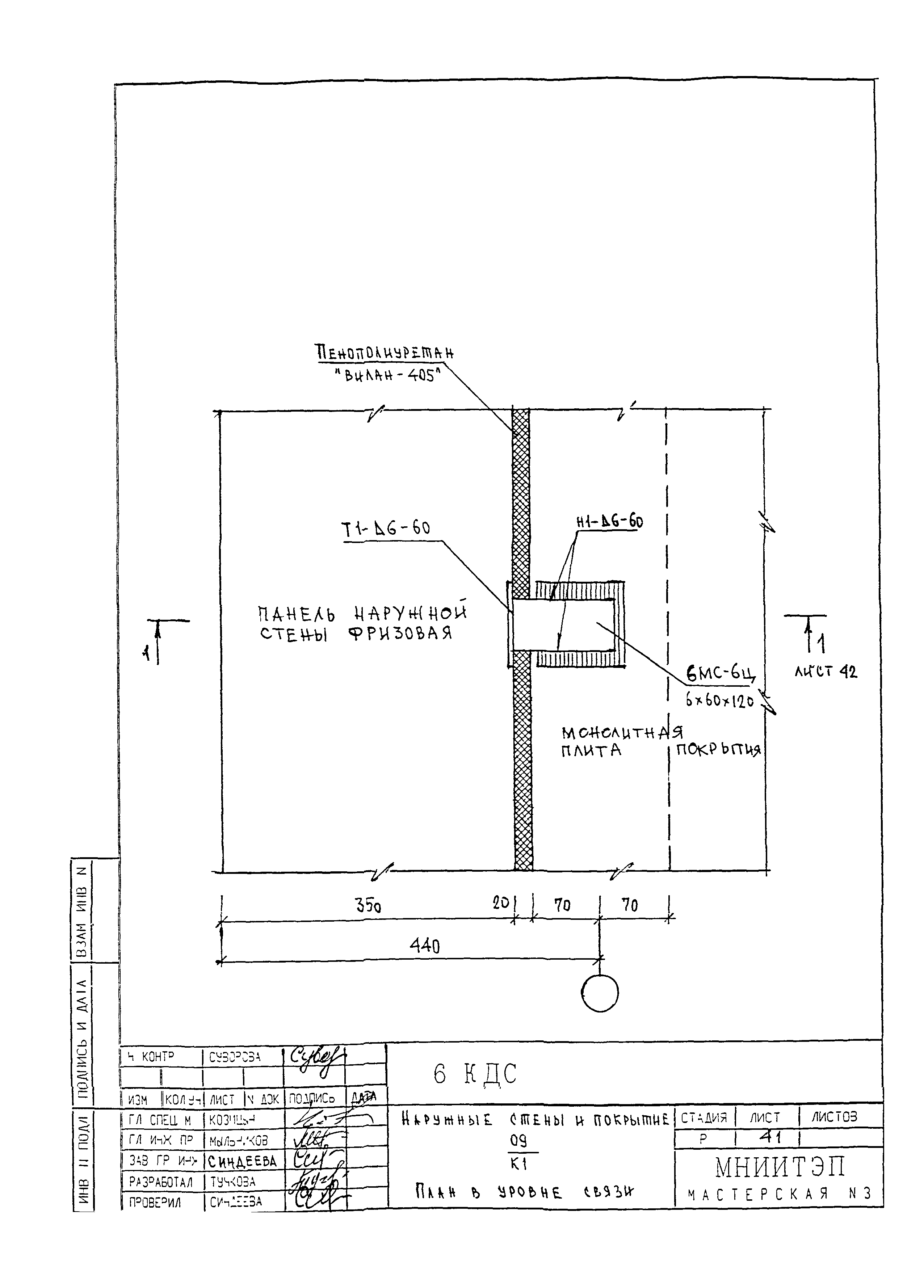
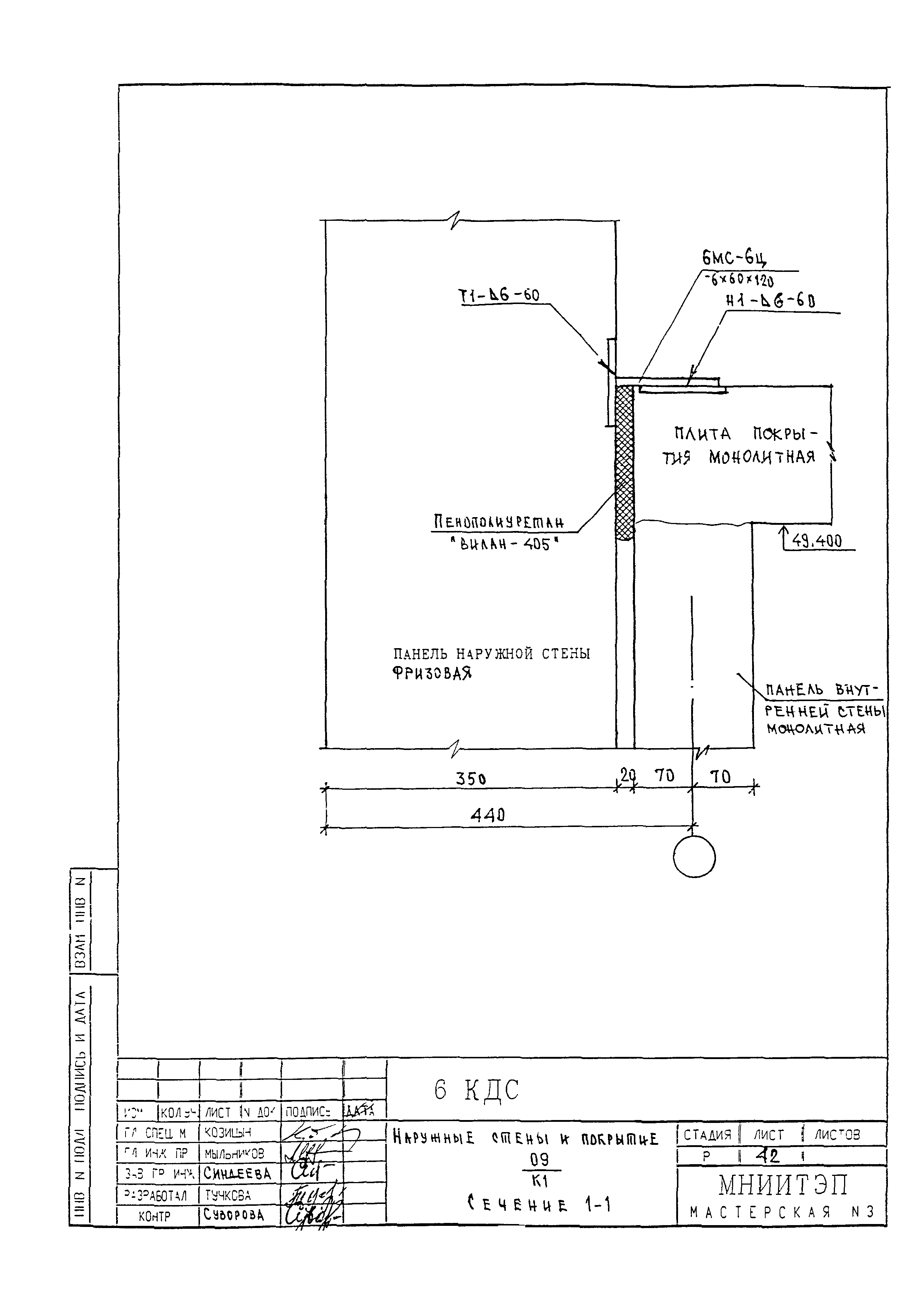
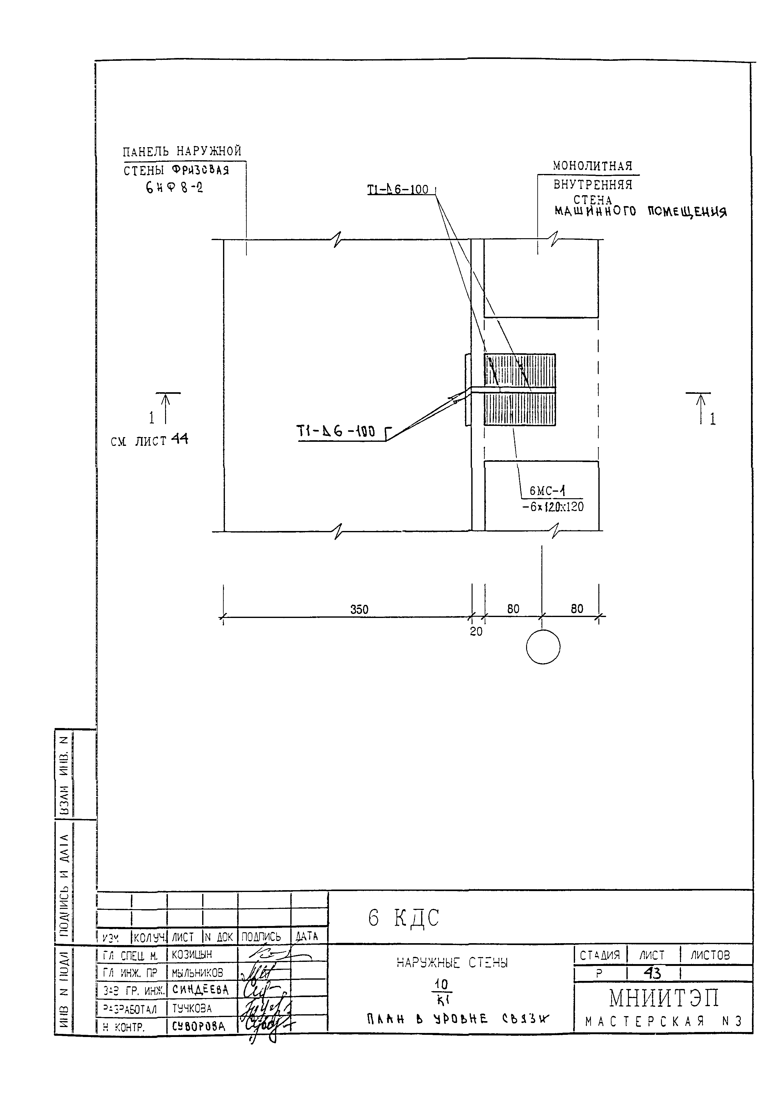
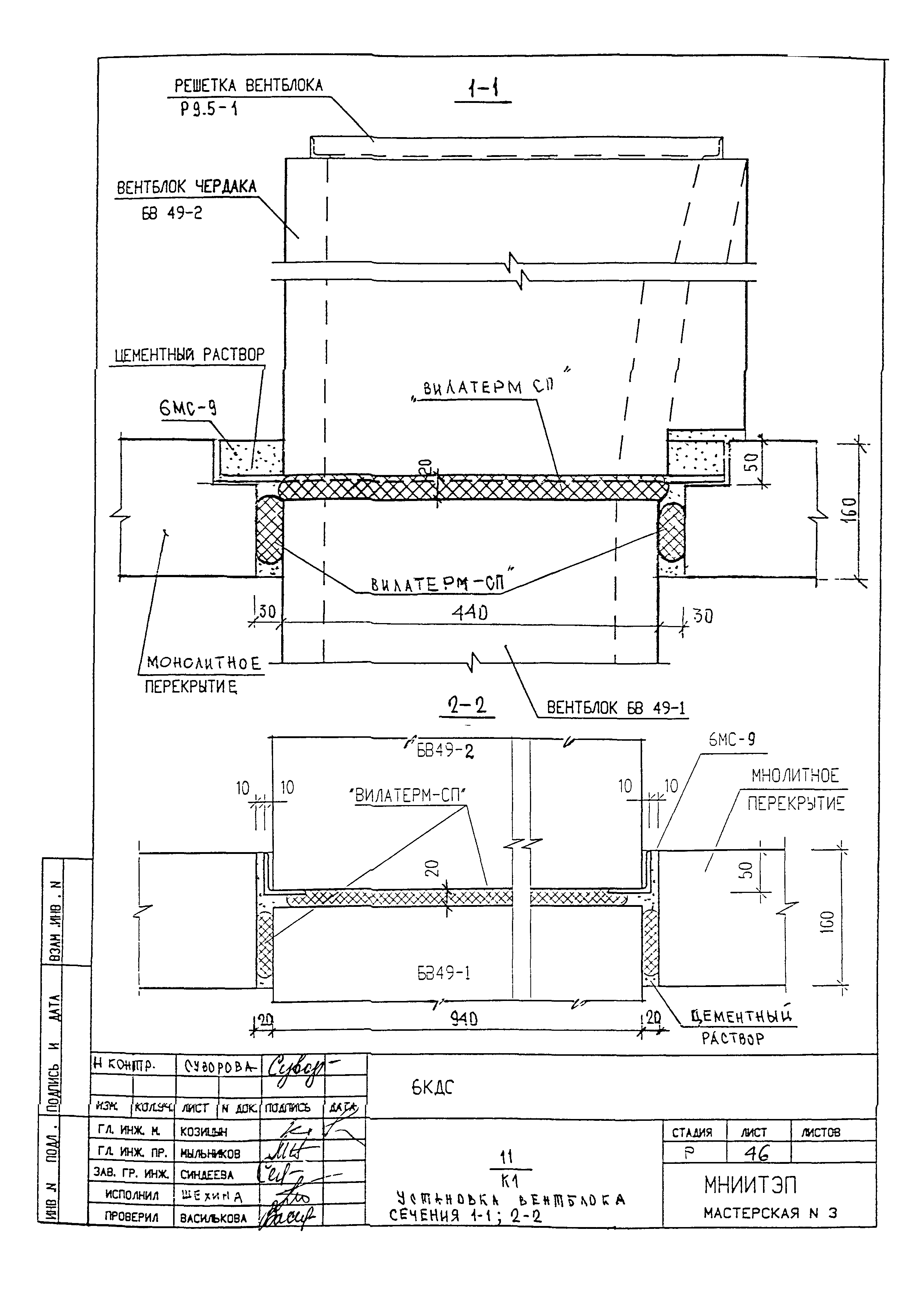
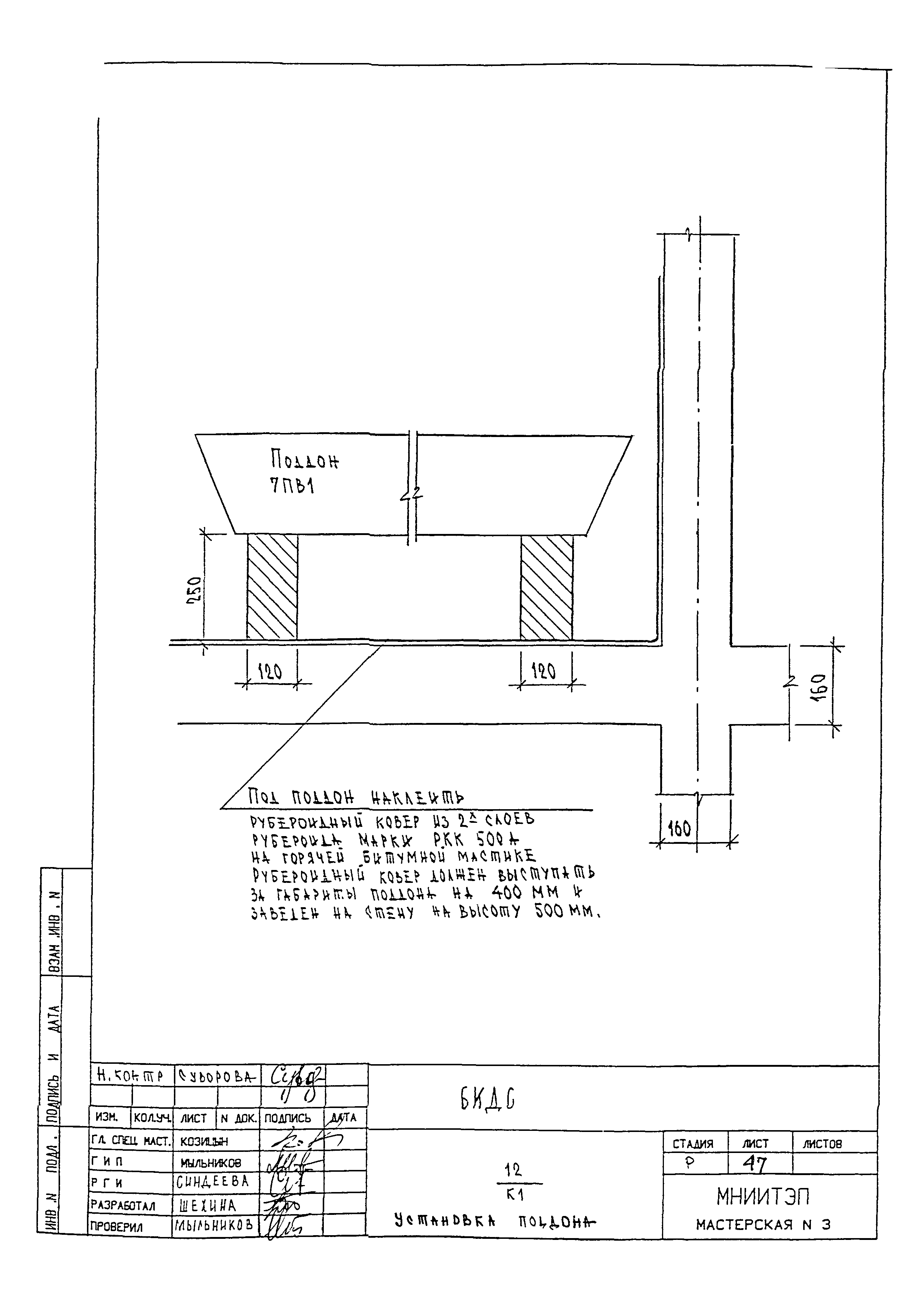
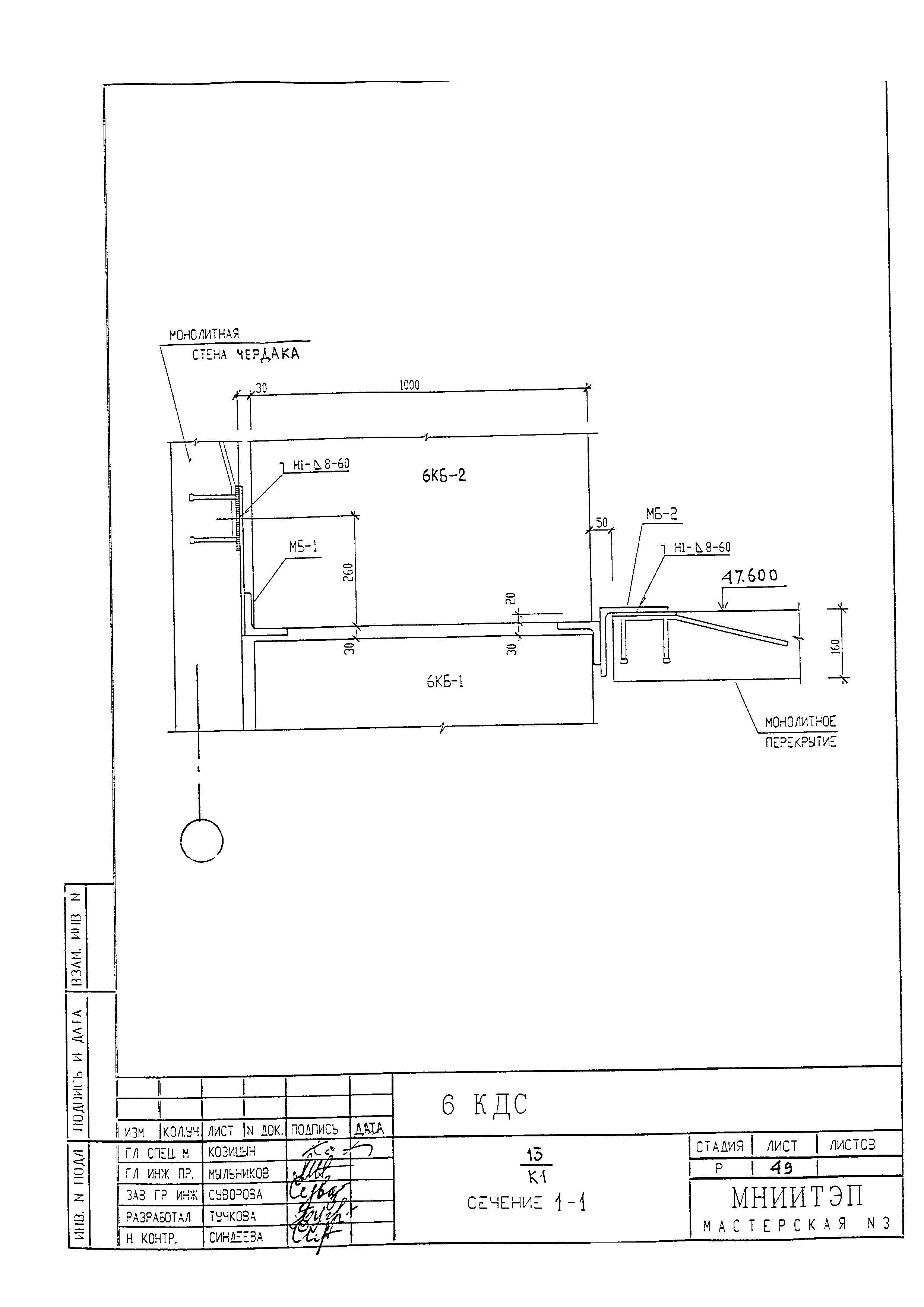
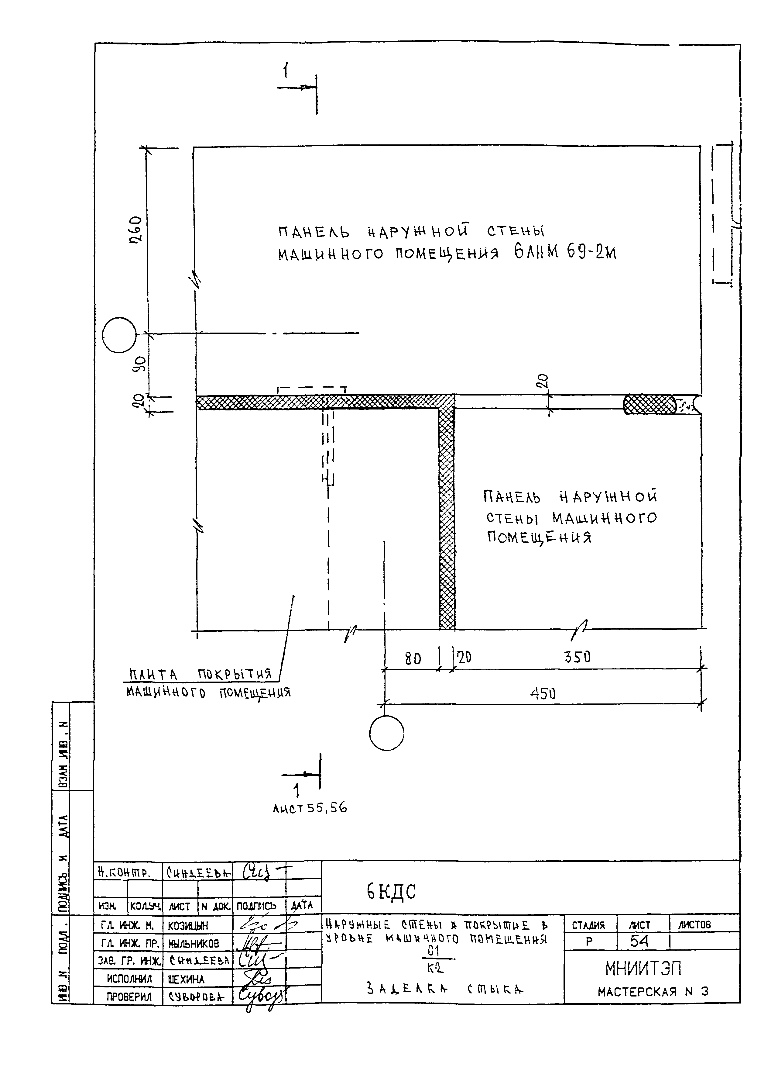
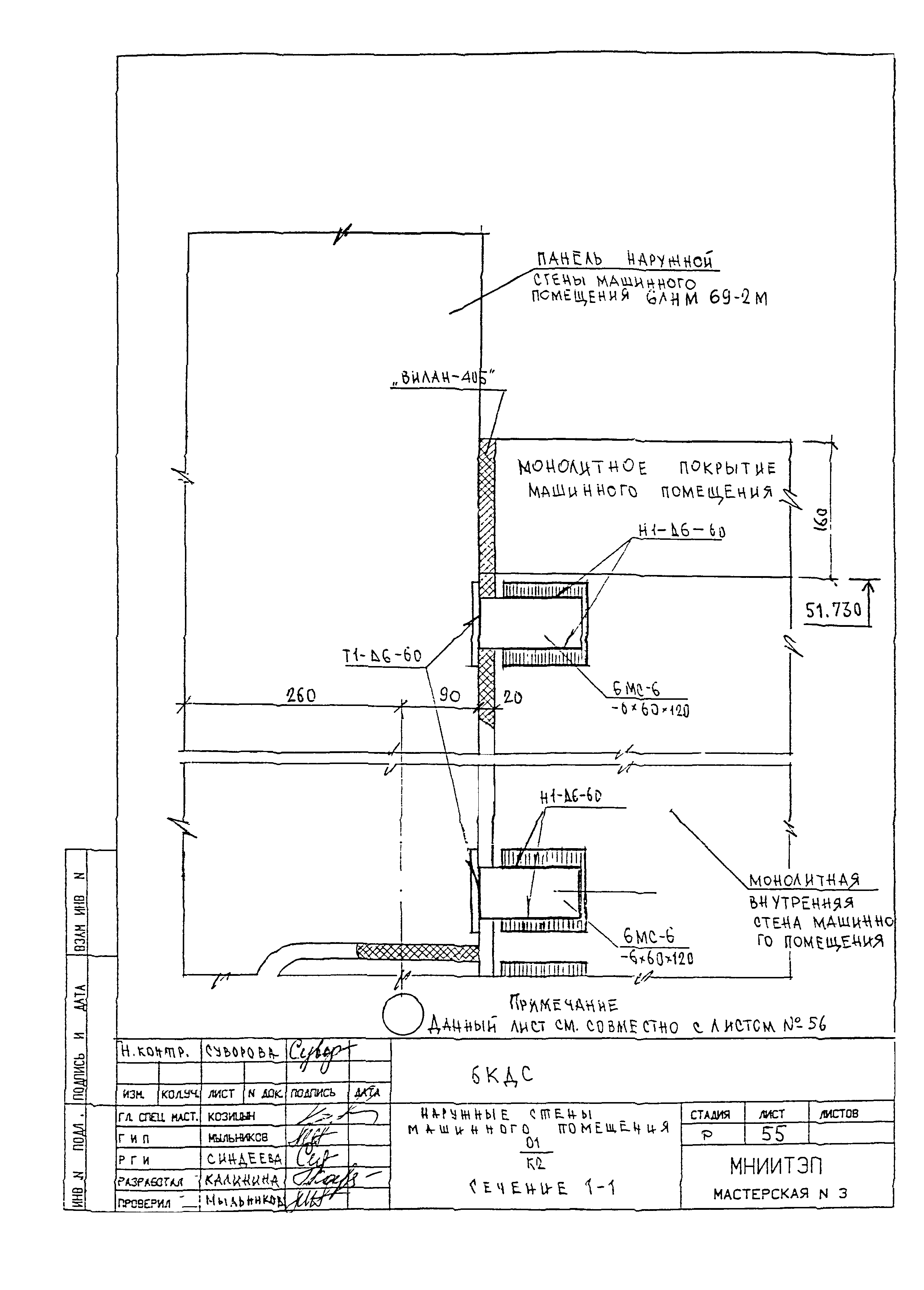
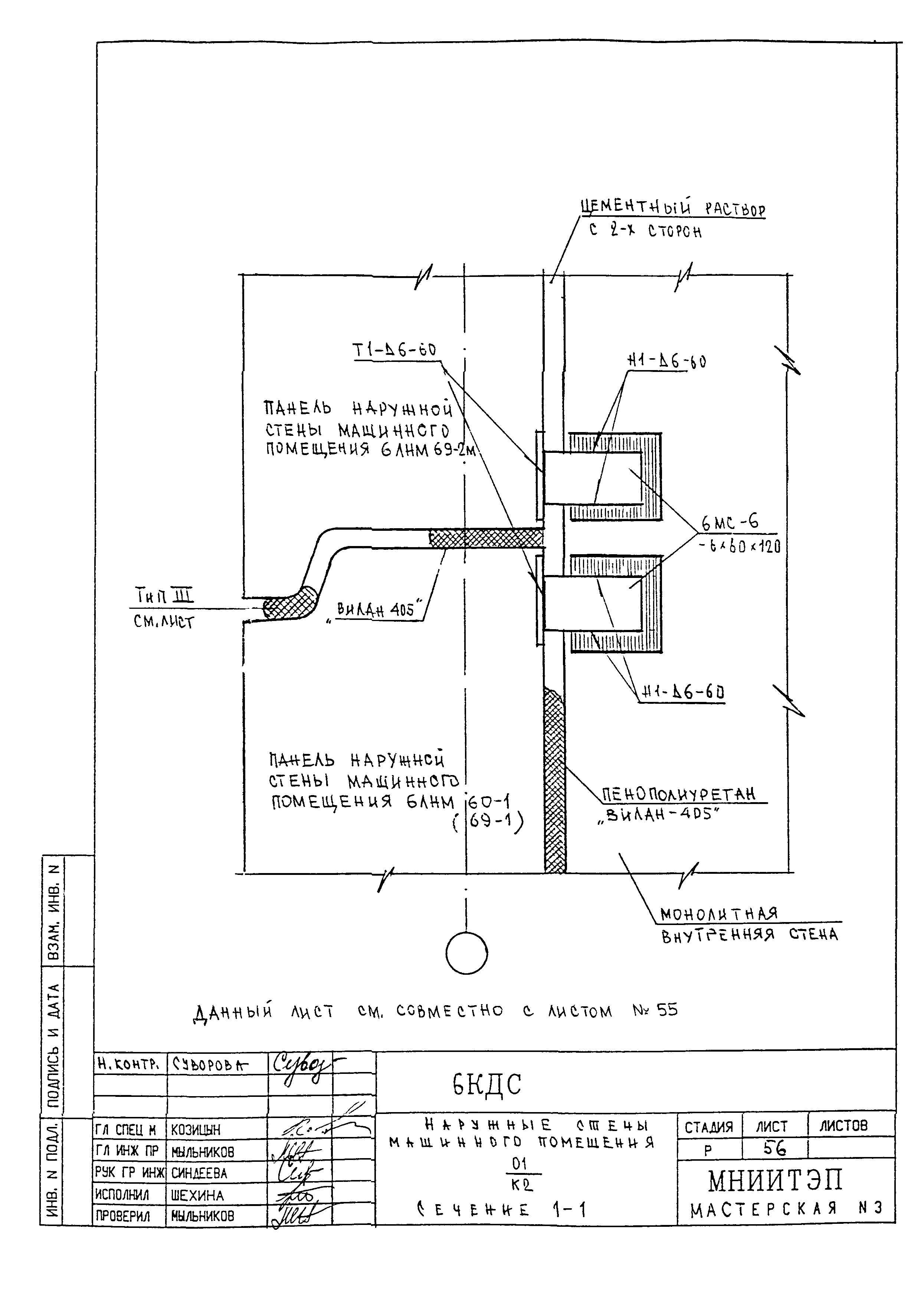
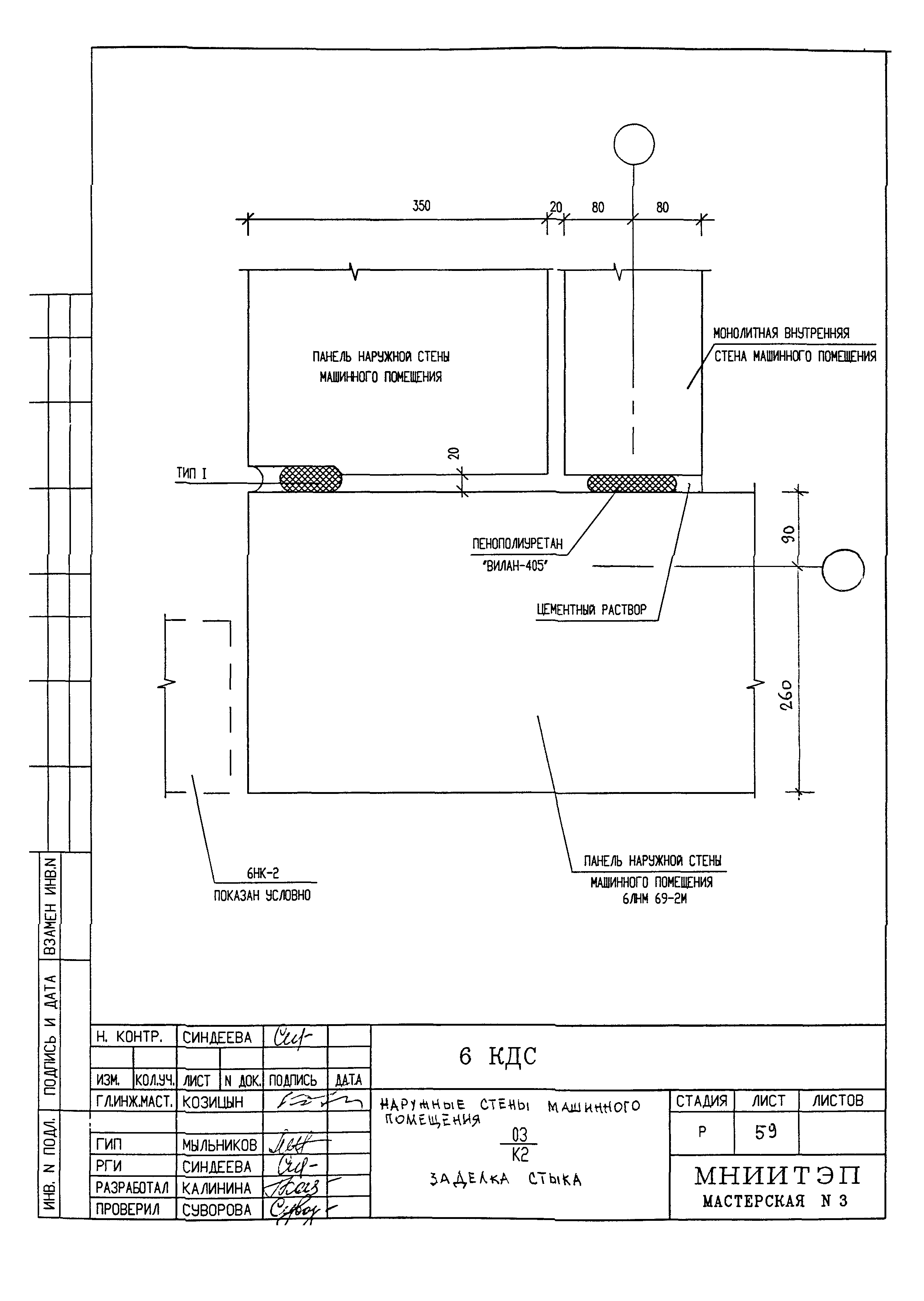
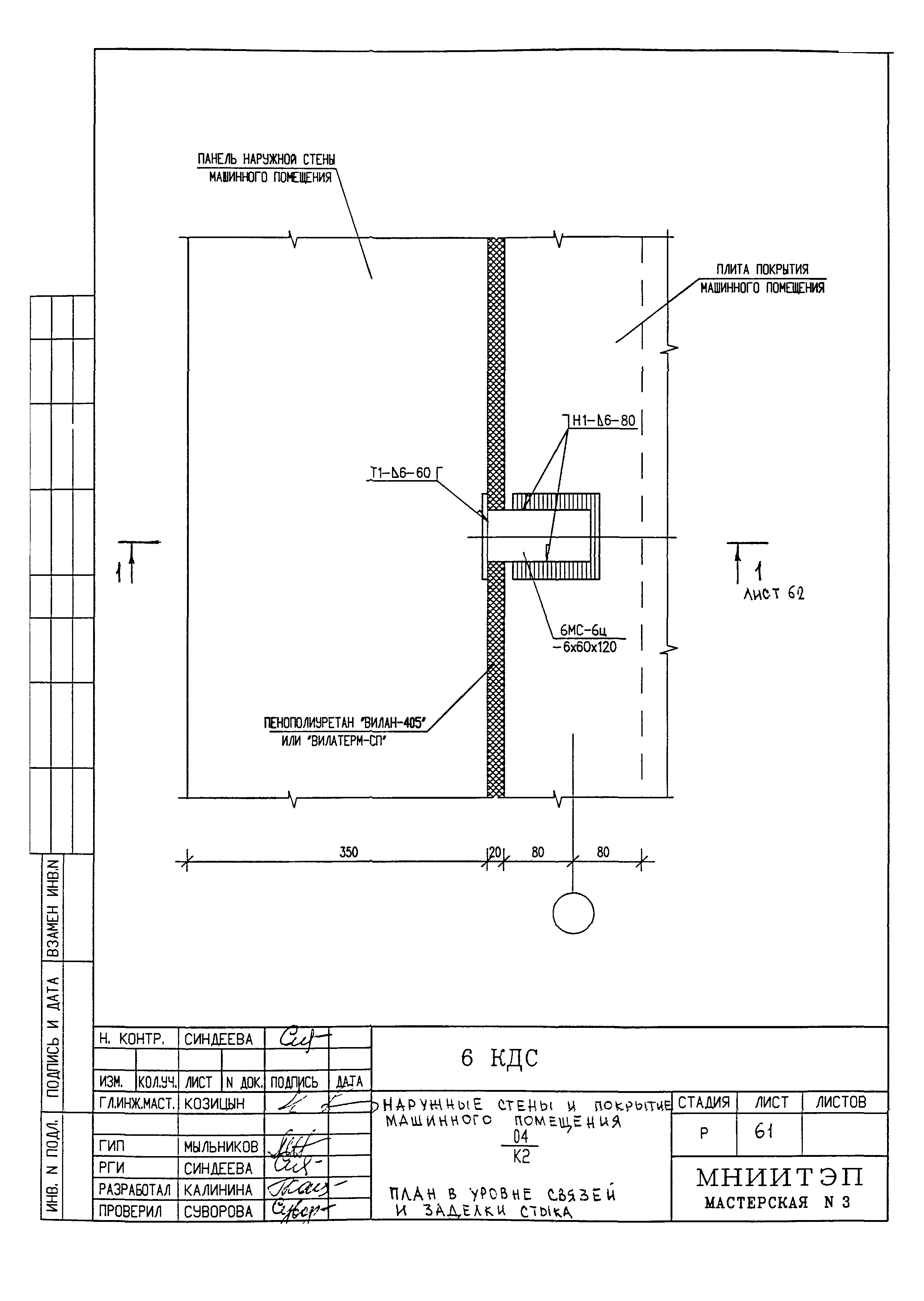
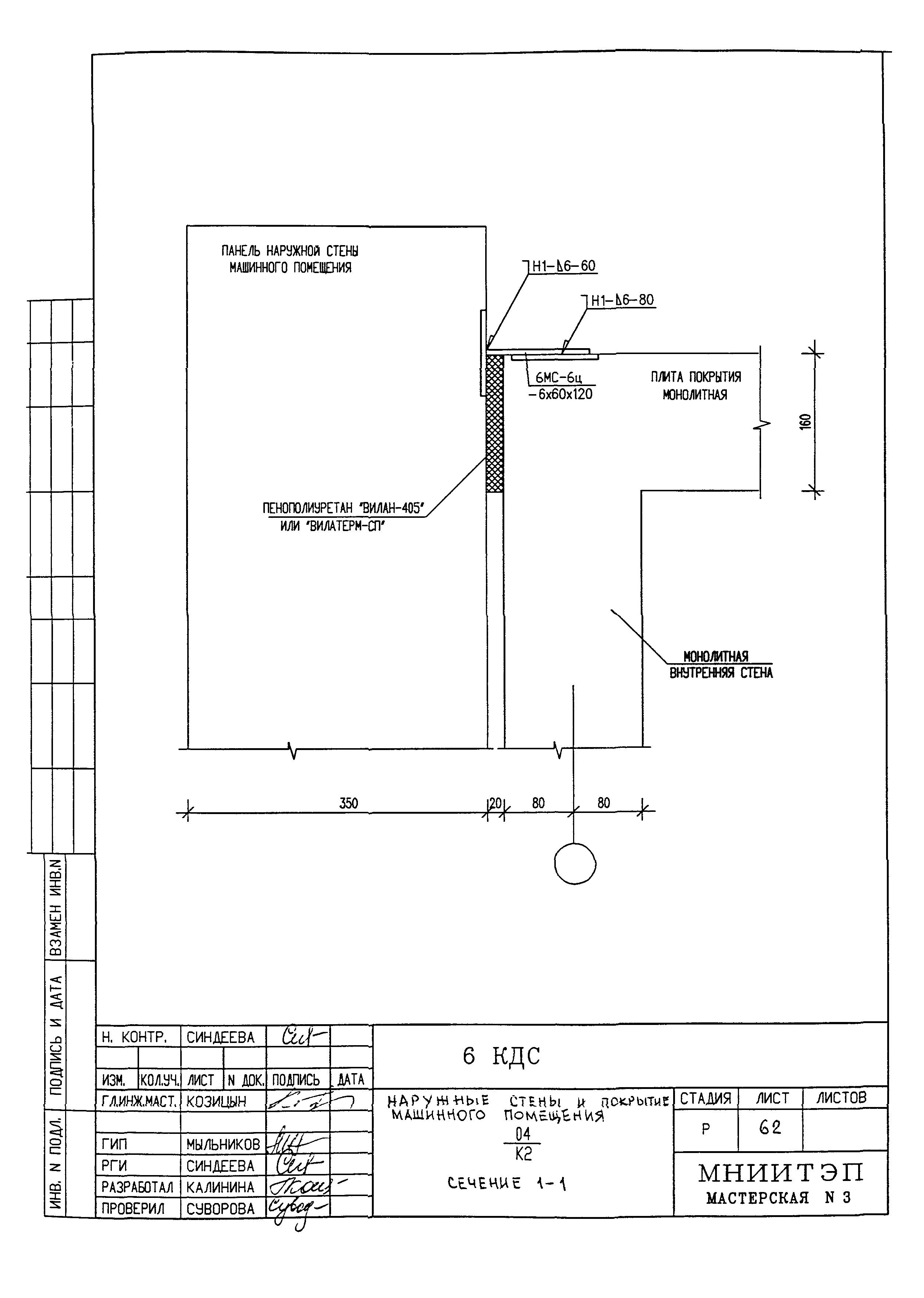
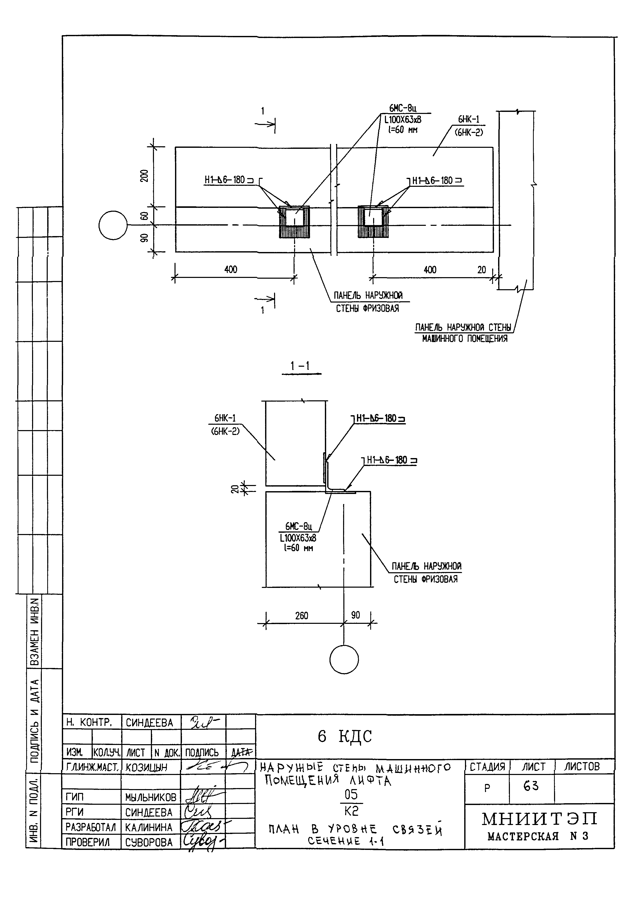
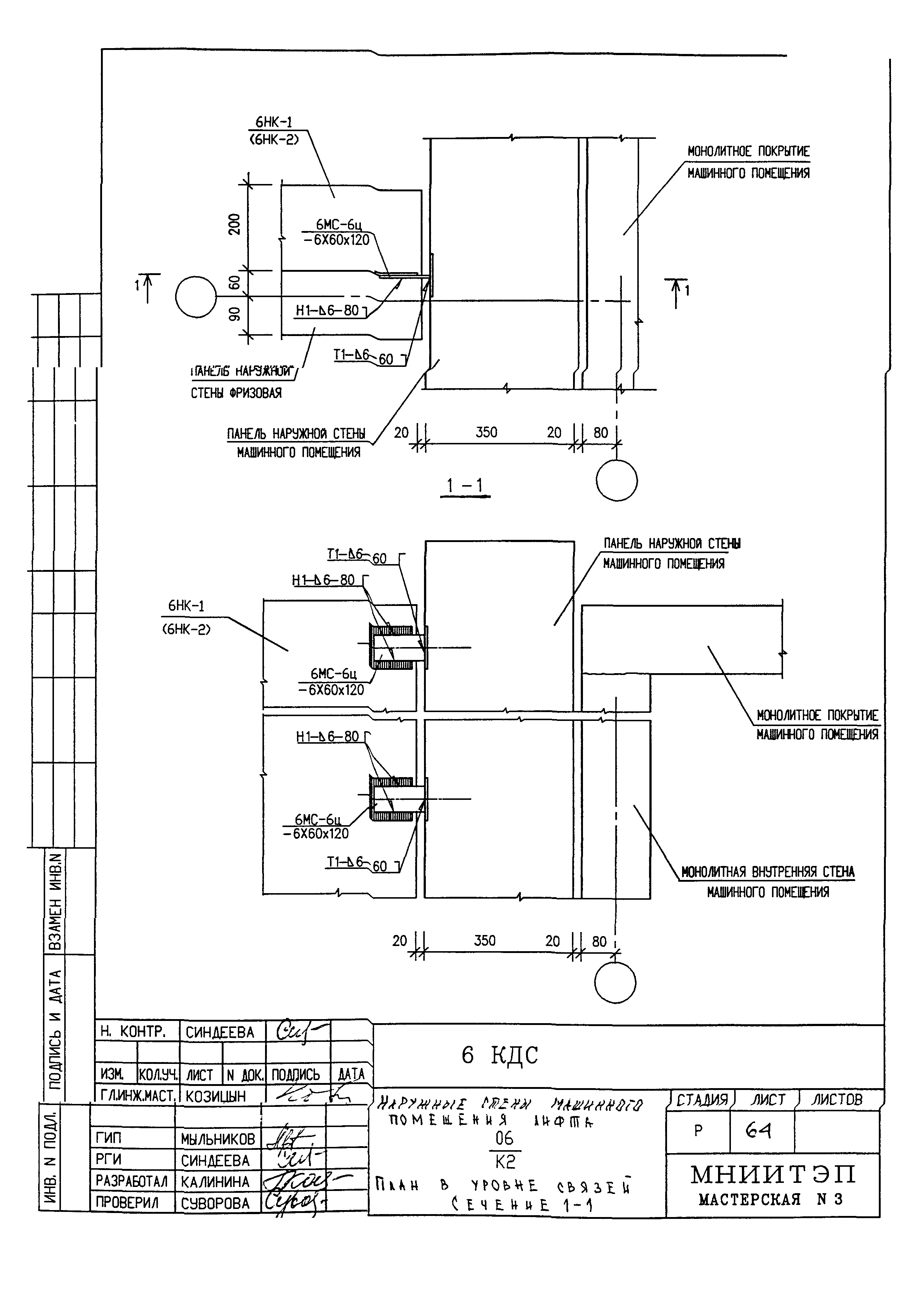
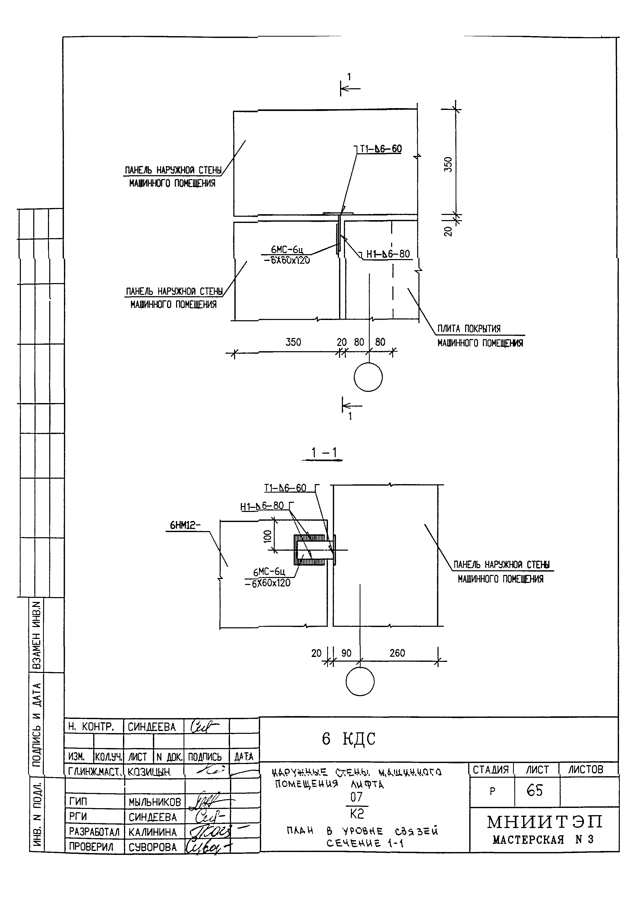
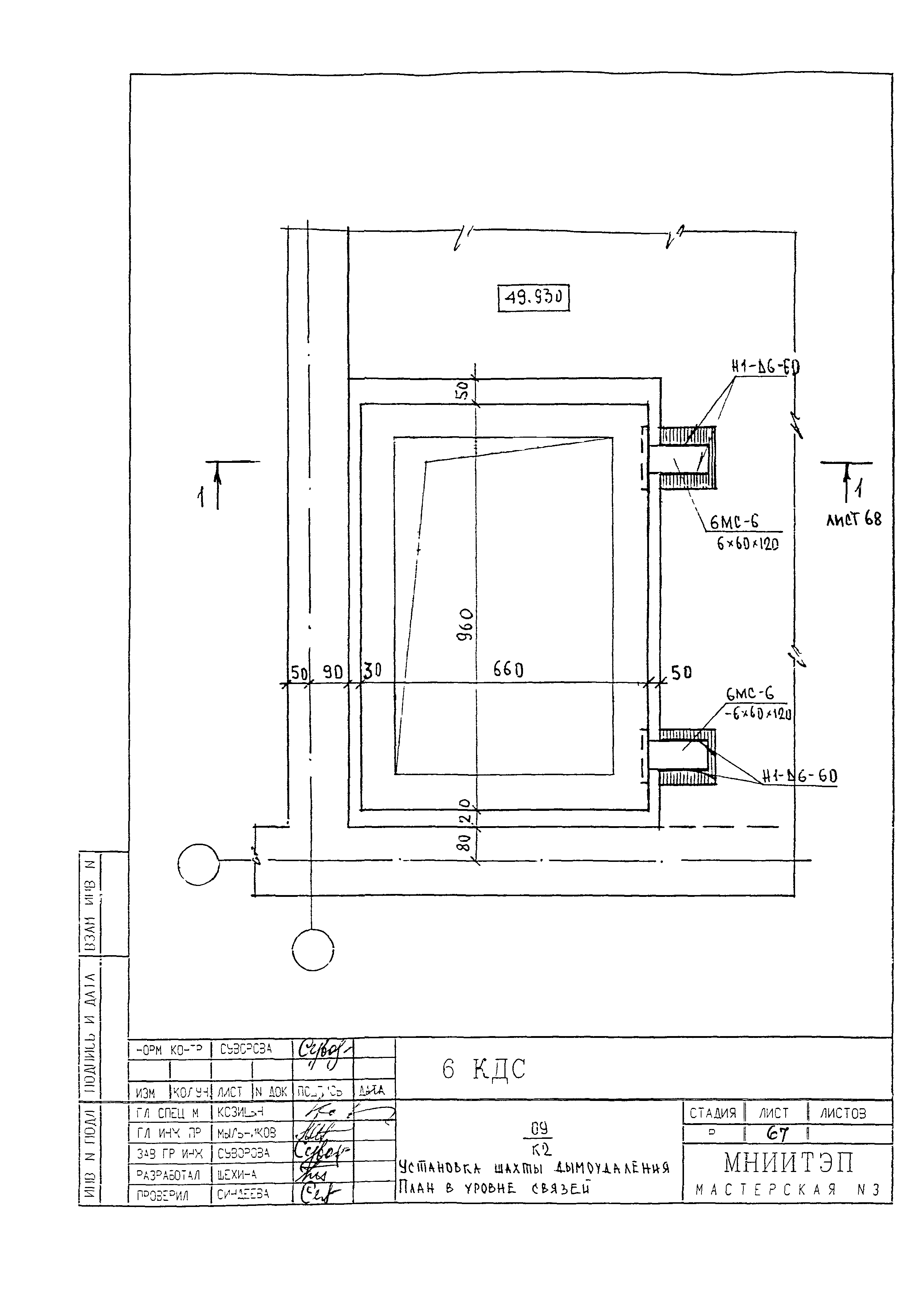
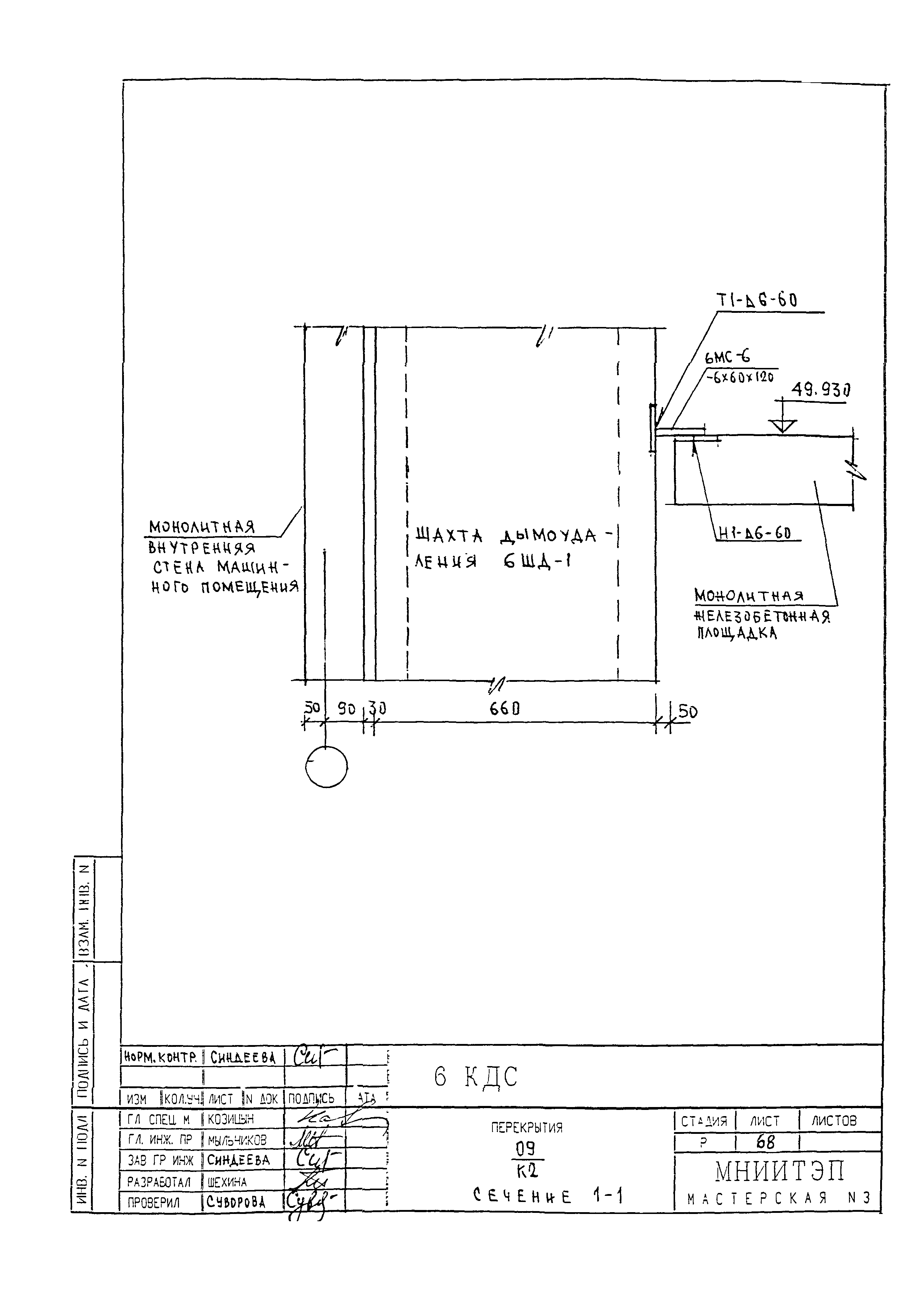
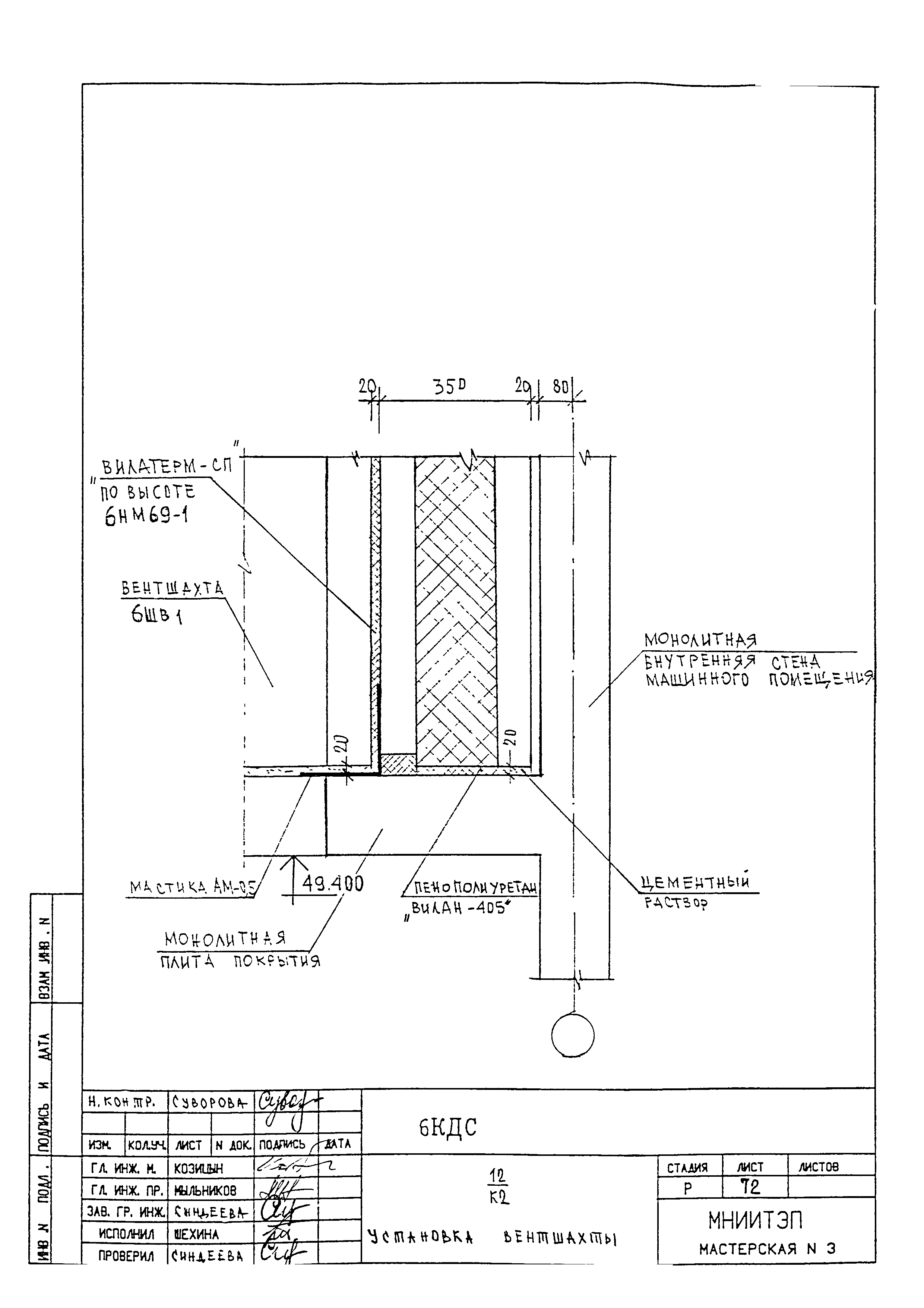
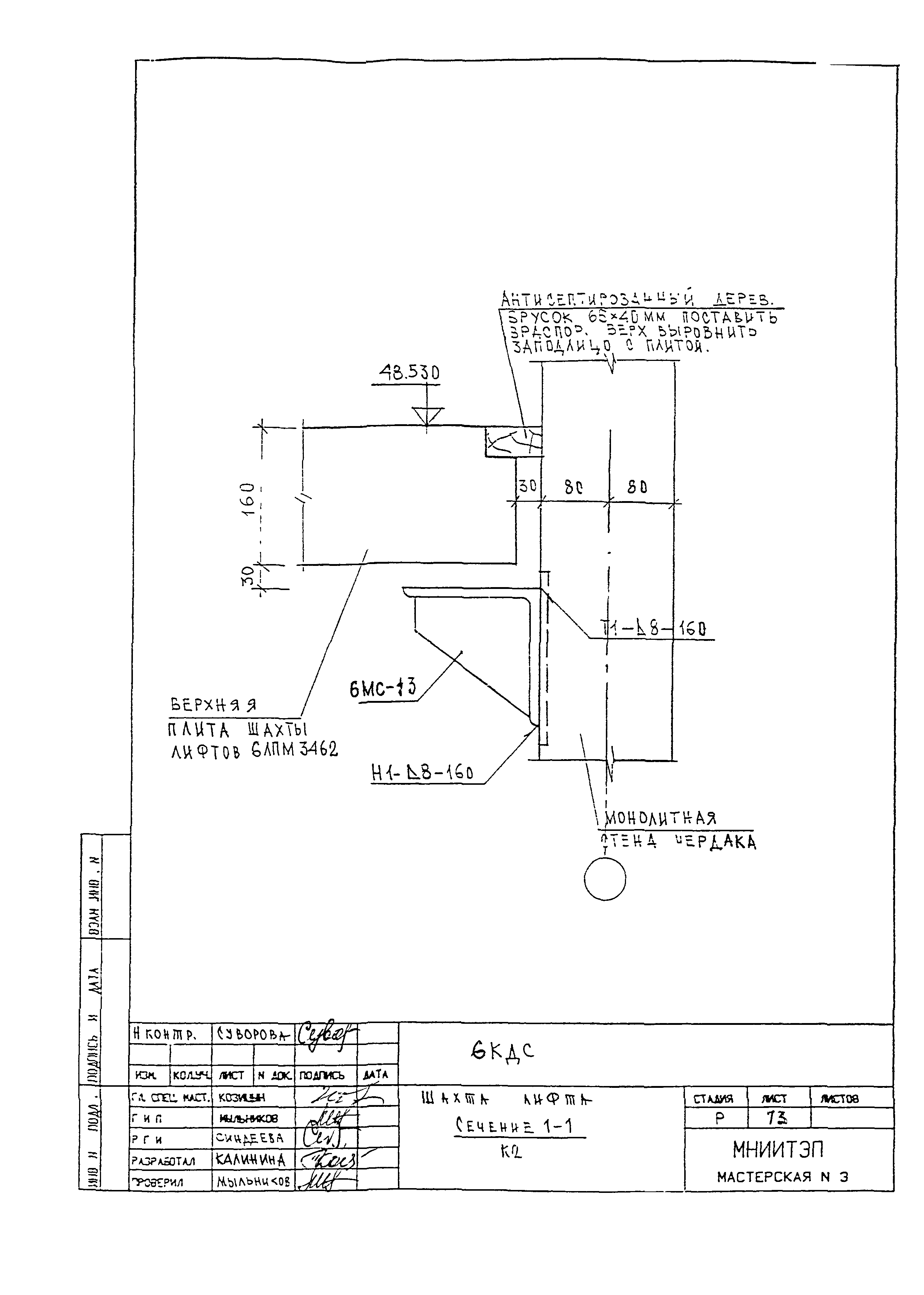
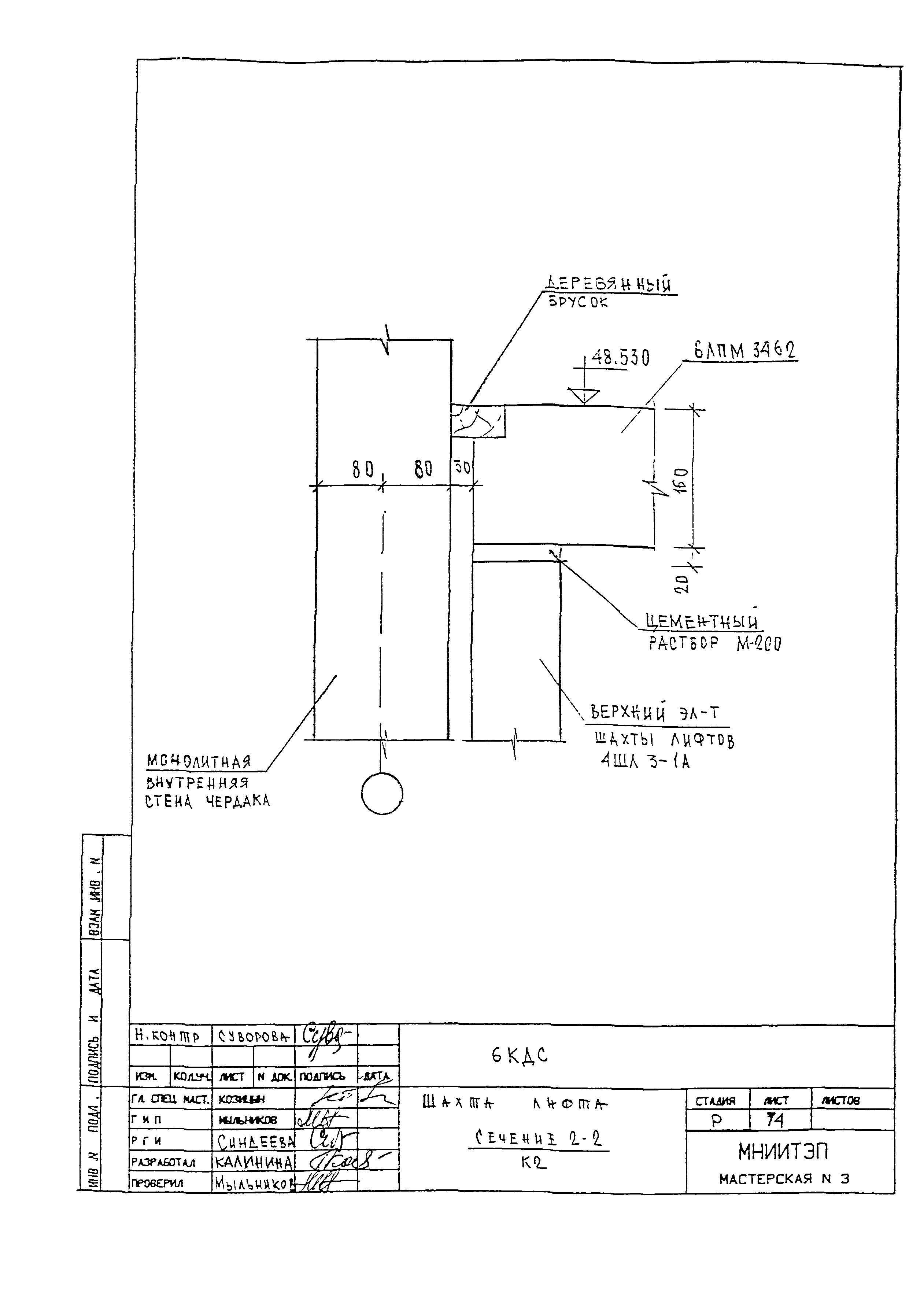
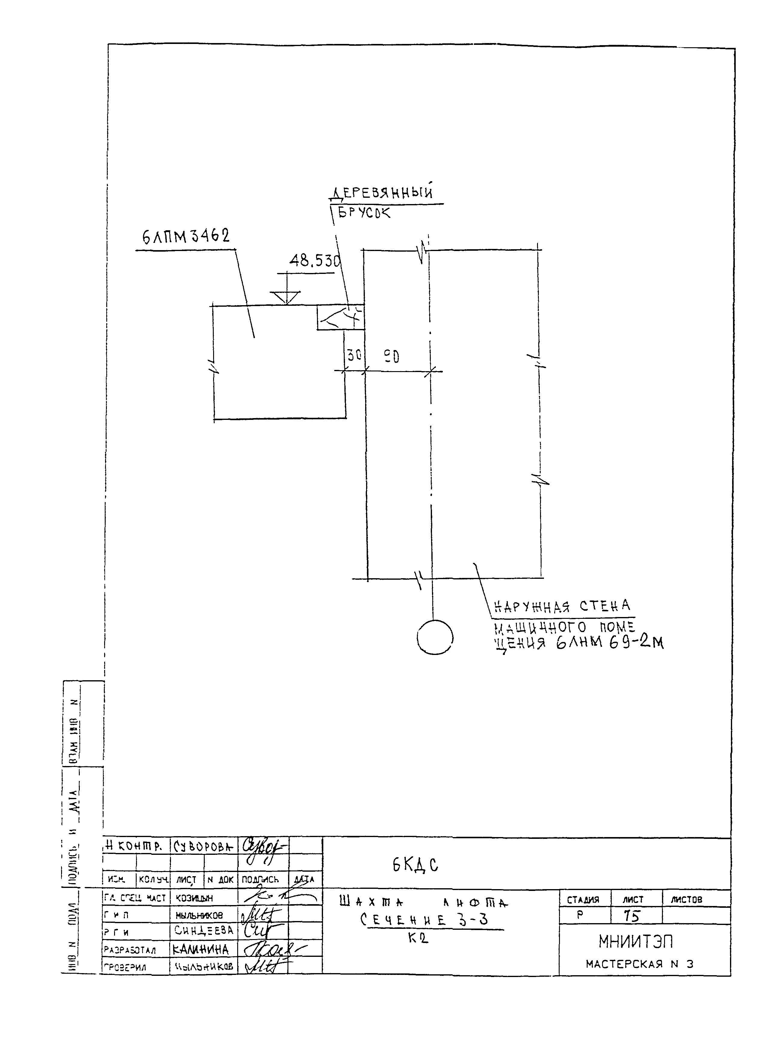
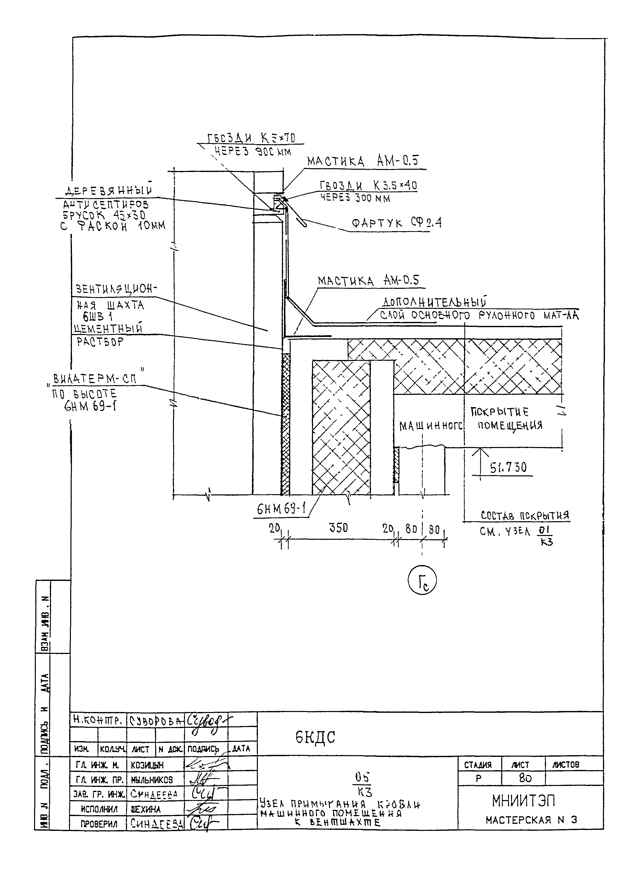
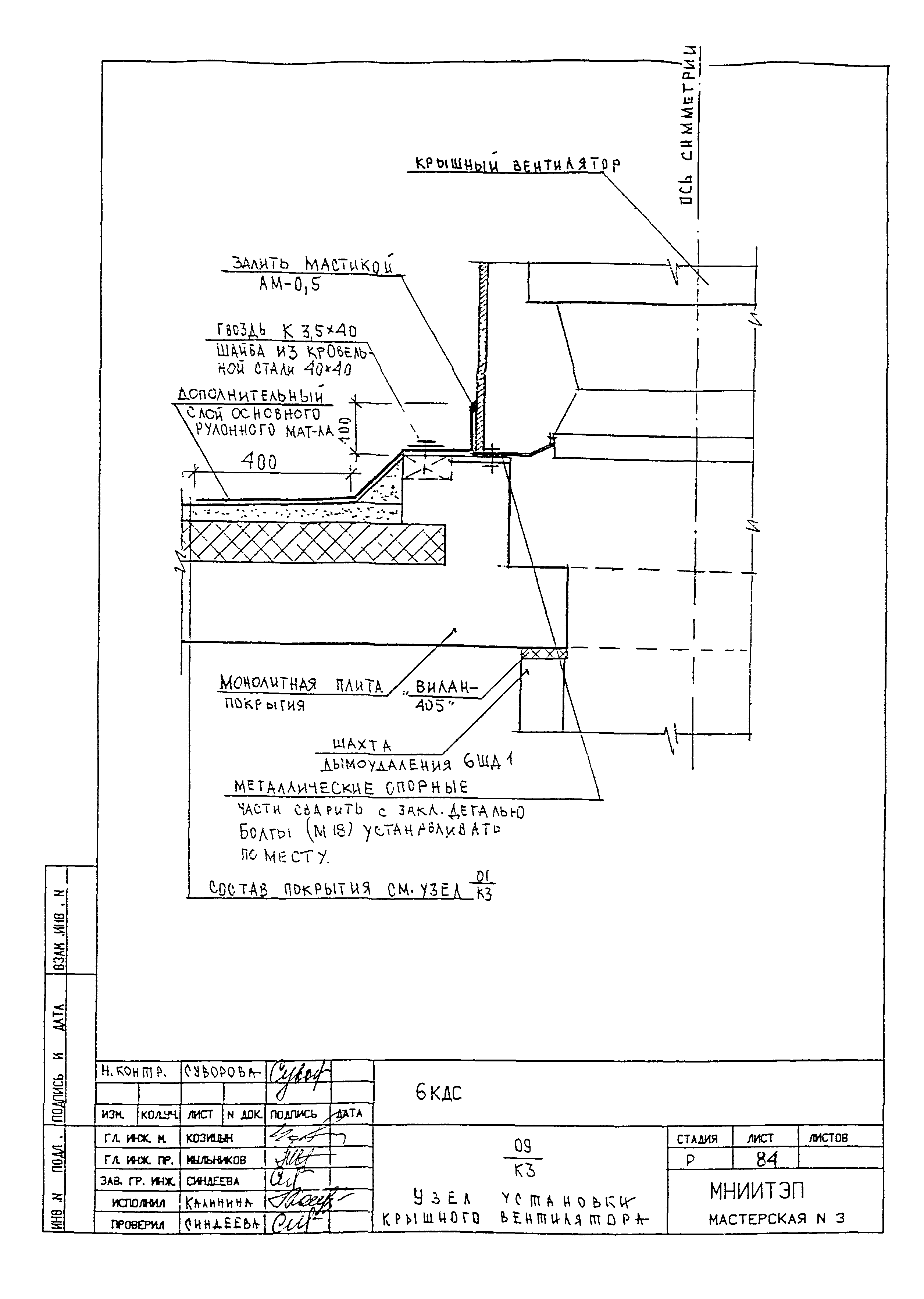
| Оглавление: | Содержание Техническое описание Ведомость нормативных документов на материалы, применяемые в узлах Монтажные связи Схемы расположения элементов сборных конструкций Герметизация стыков. Типы I - III Типы стандартных сварных швов. Условные обозначения Раздел К1. Соединение фризовых панелей с несущими конструкциями чердака. Заделка стыков Узлы 1 - 13 Раздел К2. Узлы и детали машинного помещения лифтов Узлы 1 - 12 Сечения 1-1 - 3-3 Раздел К3. Узлы и детали кровли Узлы 1 - 16 Информационная карта |
| Разработан: | МНИИТЭП |
| Утверждён: | 01.01.1999 МНИИТЭП (MNIITEP ) |
































































































