Скачать 3 ВДС часть III м Установка столярных изделий в жилых блок-секциях серии П3М. Детали узловДата актуализации: 01.01.2021
|
| Обозначение: | 3 ВДС часть III м |
| Обозначение англ: | 3 ВДС часть III м |
| Статус: | не определен законодательством |
| Название рус.: | Установка столярных изделий в жилых блок-секциях серии П3М. Детали узлов |
| Дата добавления в базу: | 01.09.2013 |
| Дата актуализации: | 01.01.2021 |
| Дата введения: | 01.01.1999 |
| Дата окончания срока действия: | 30.06.2003 |
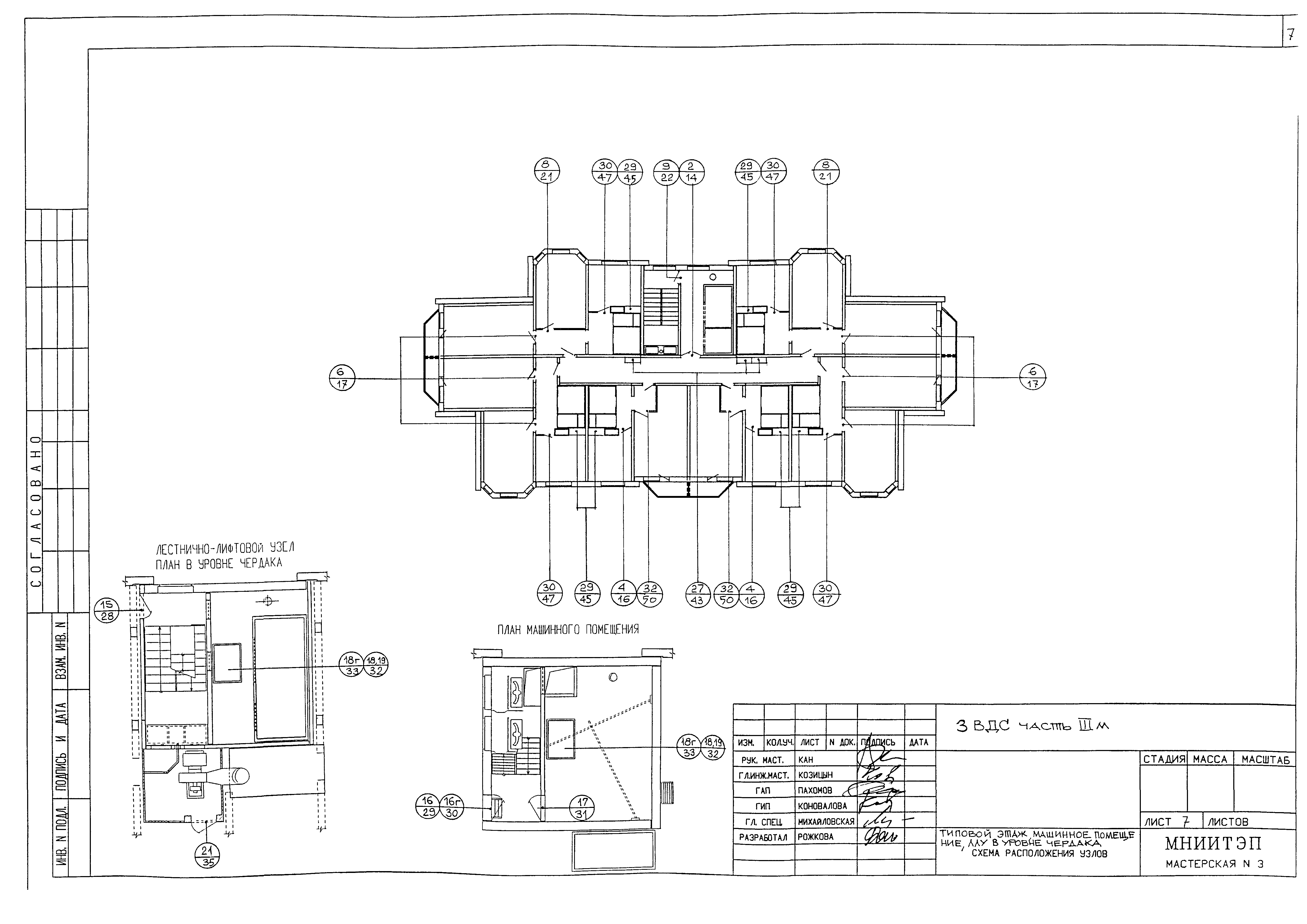
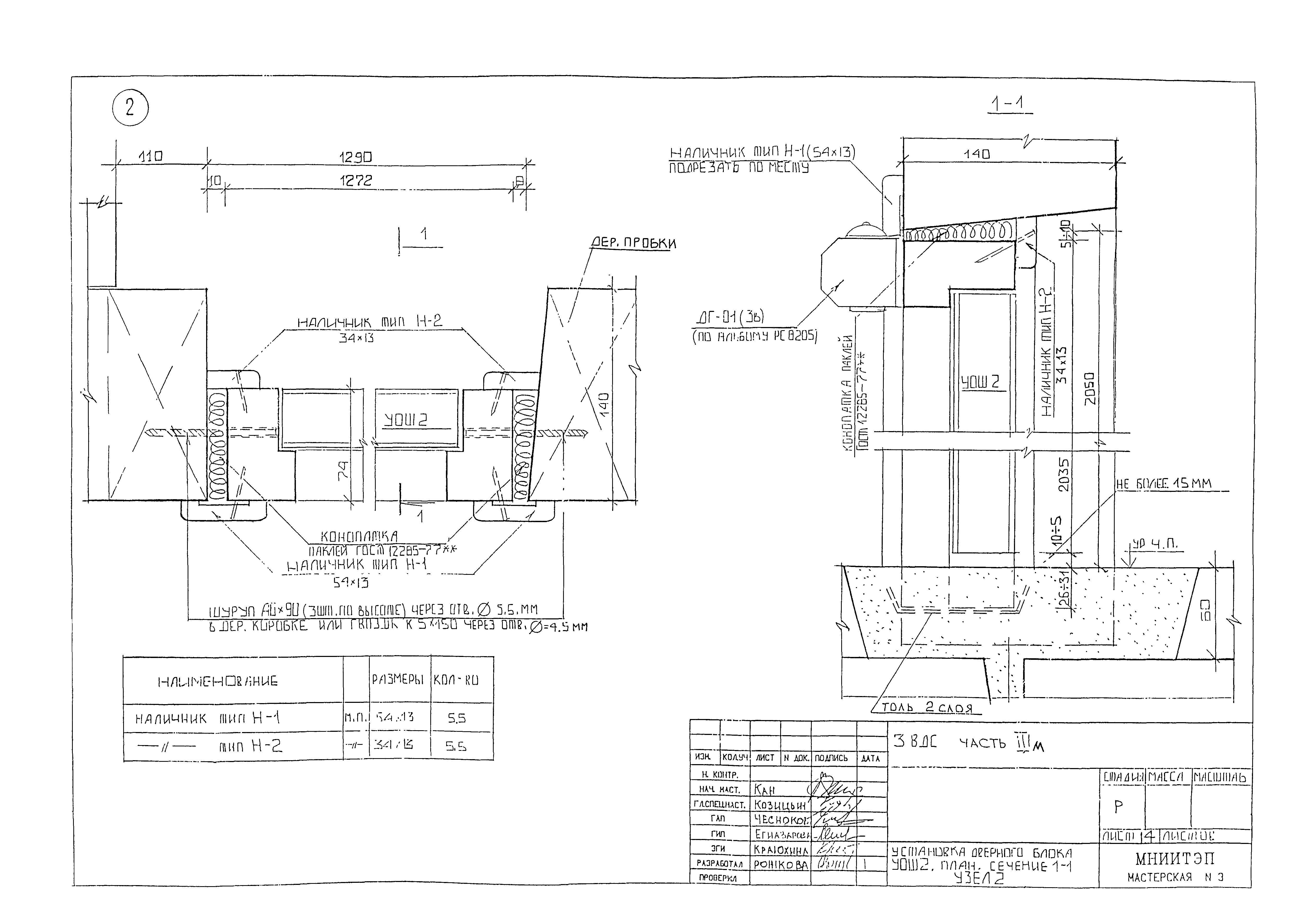
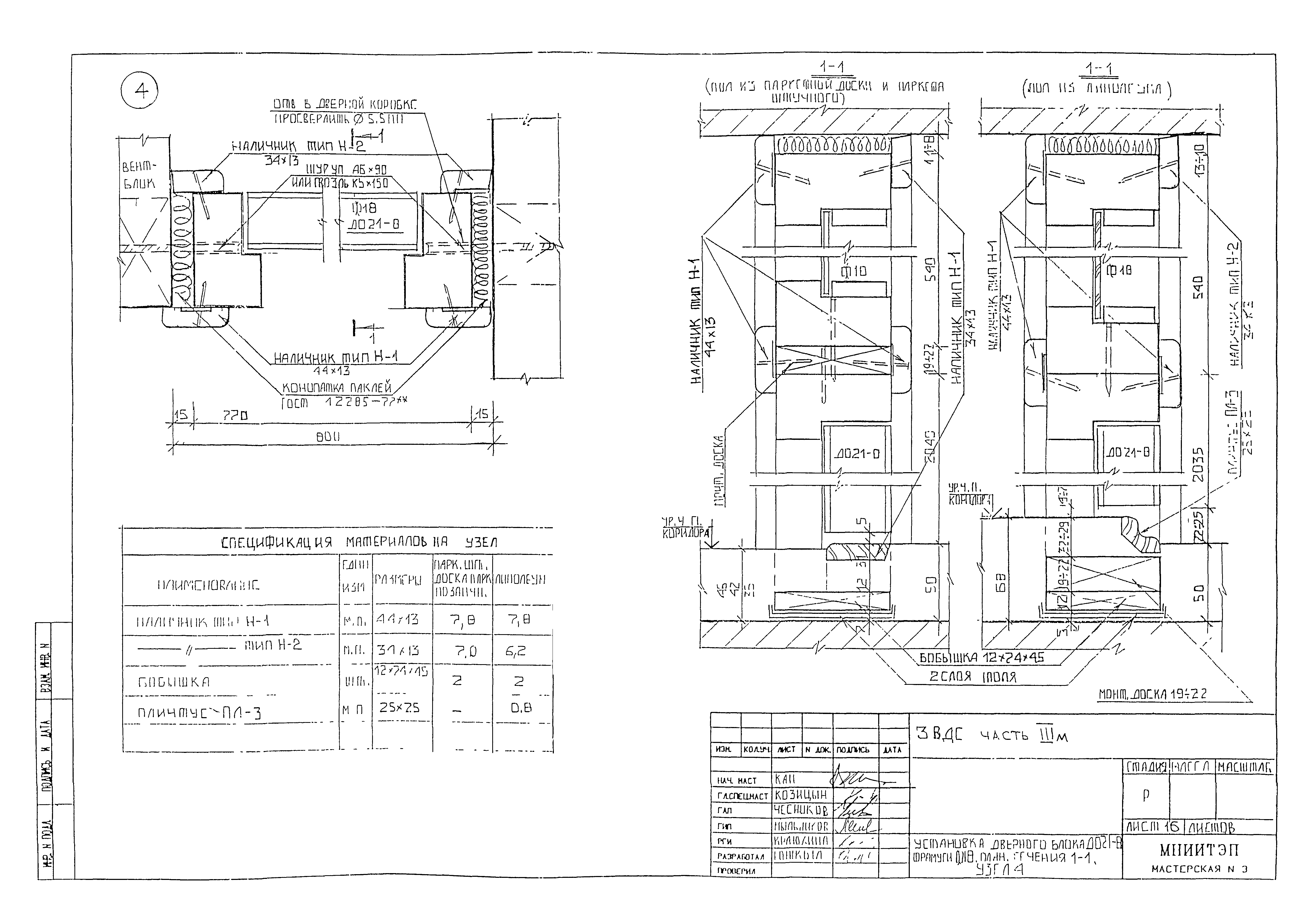
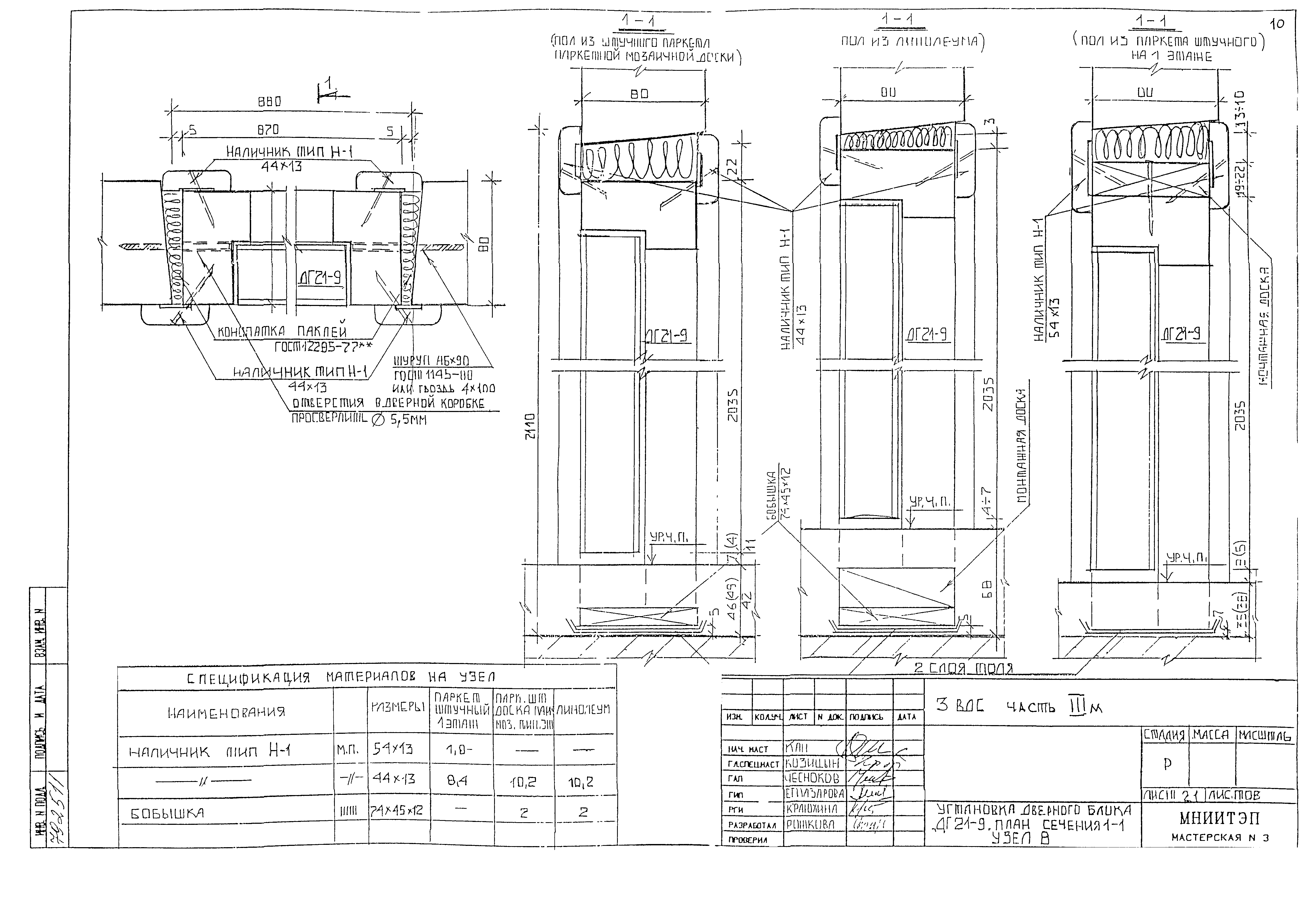
| Область применения: | Альбом содержит чертежи узлов установки и крепления к строительным конструкциям дверных блоков. |
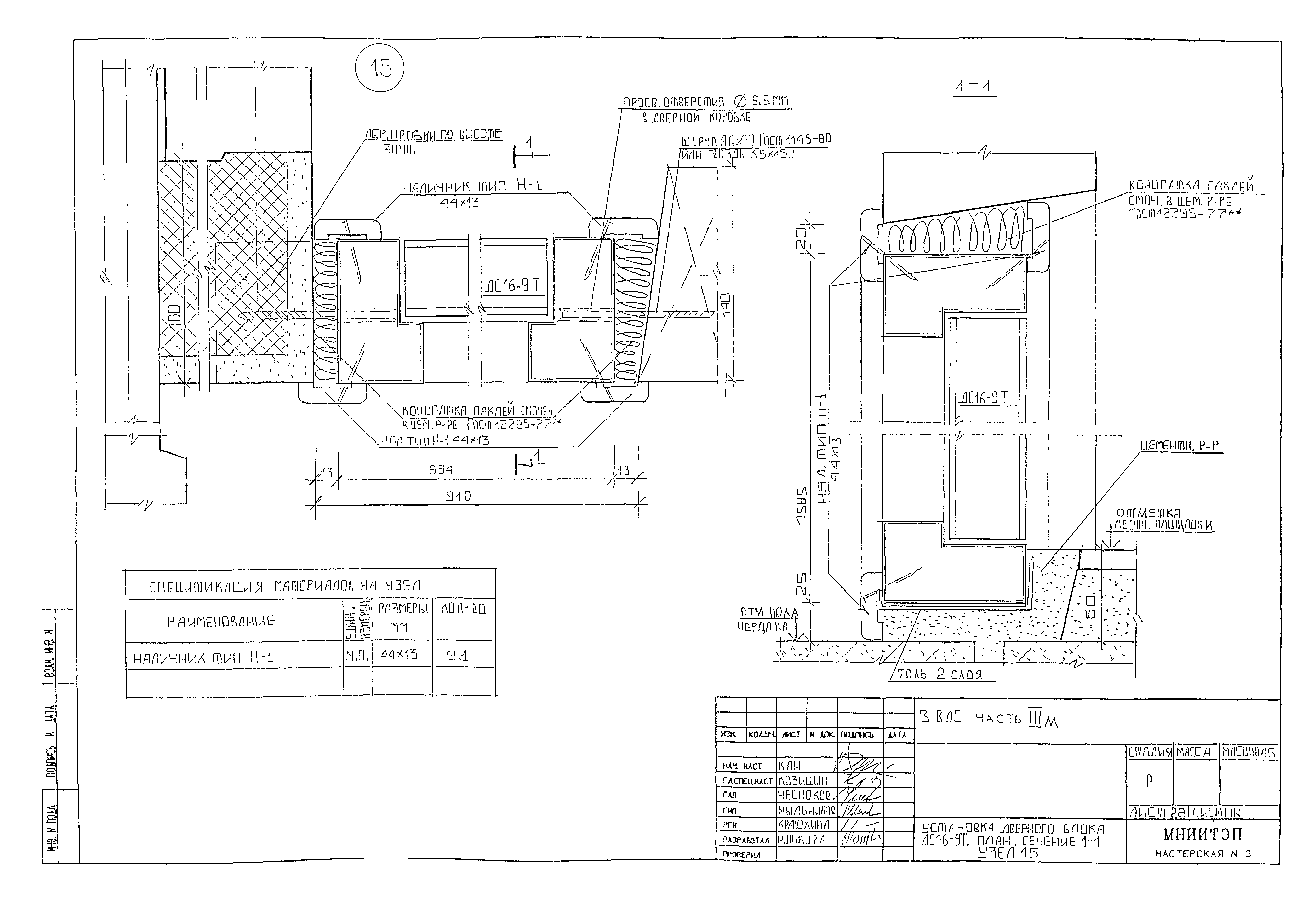
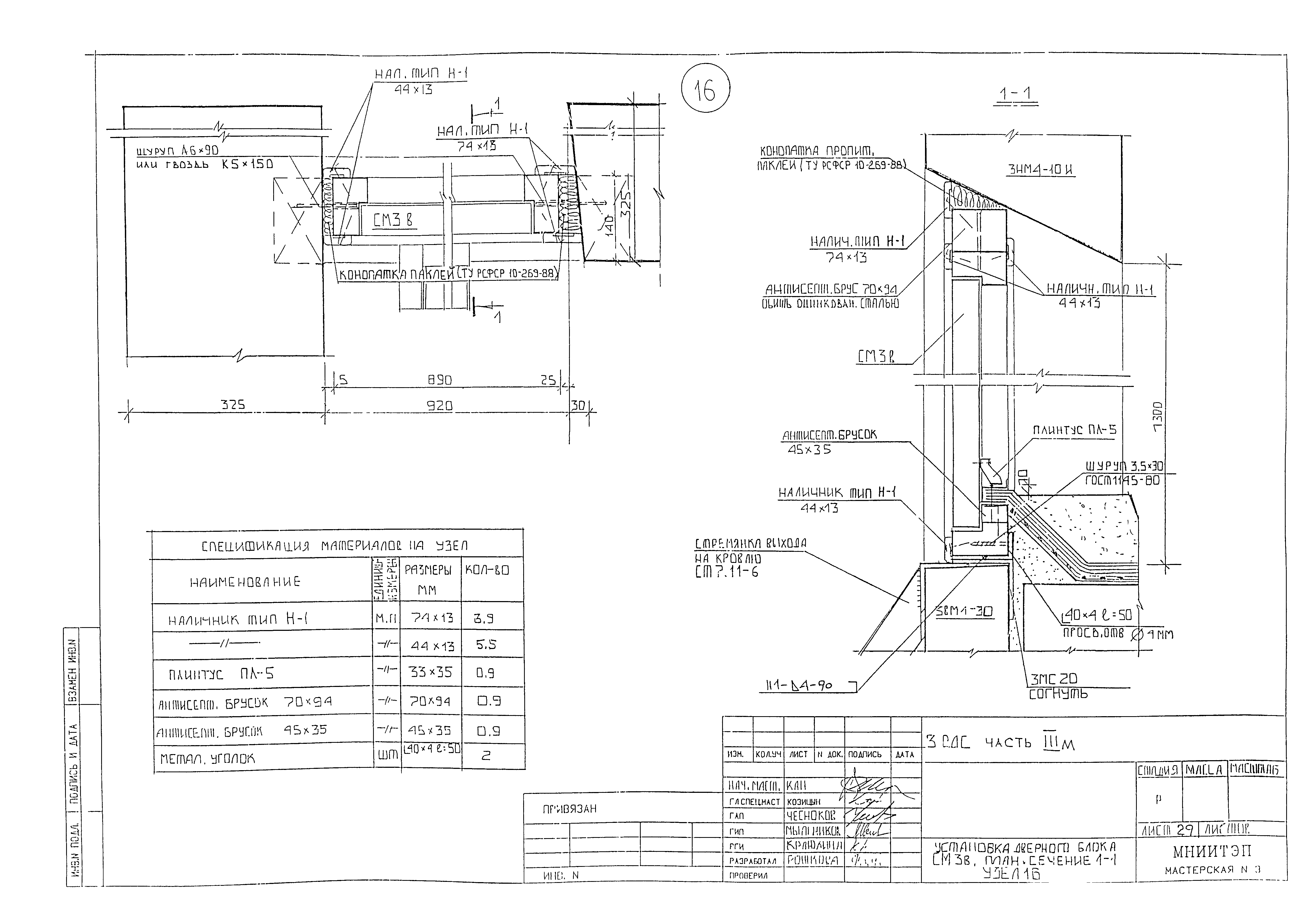
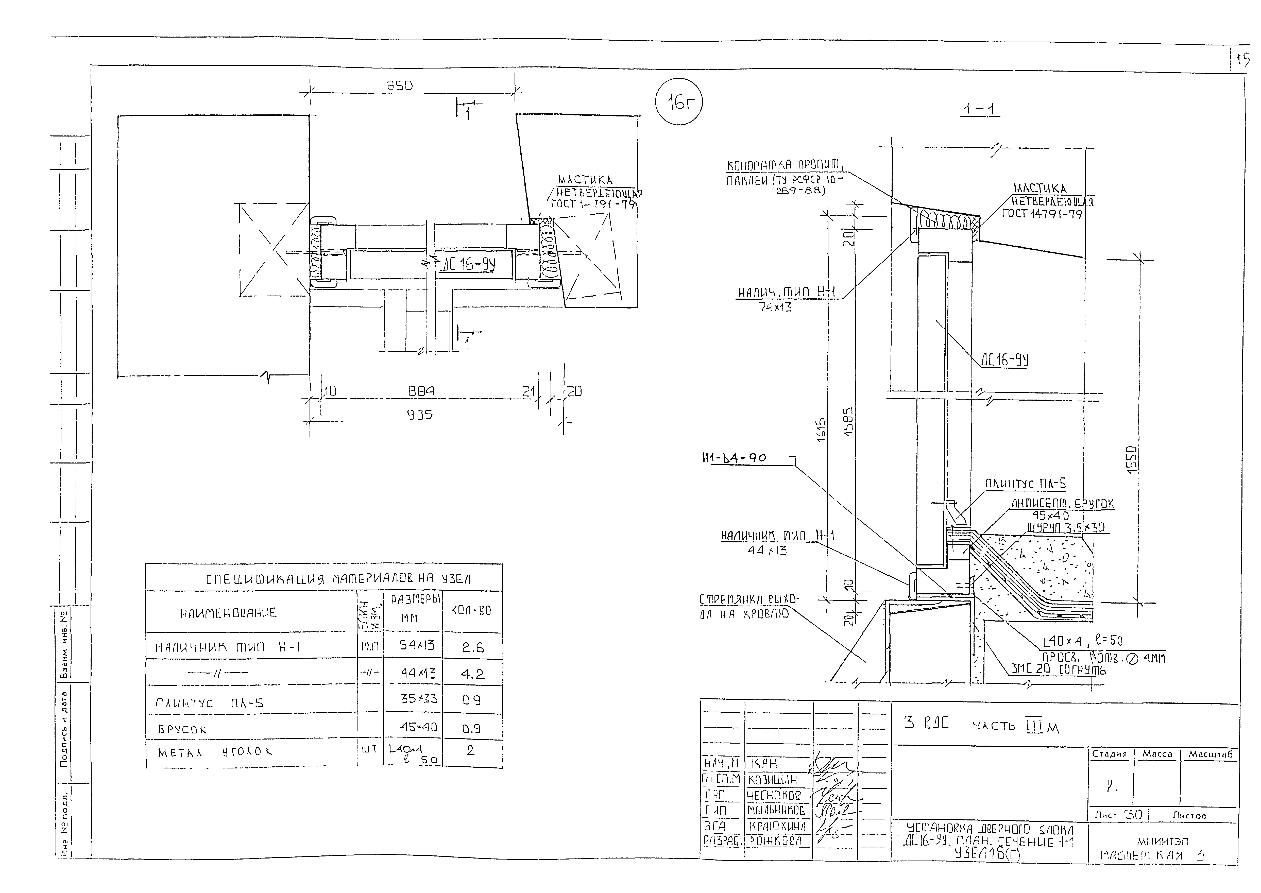
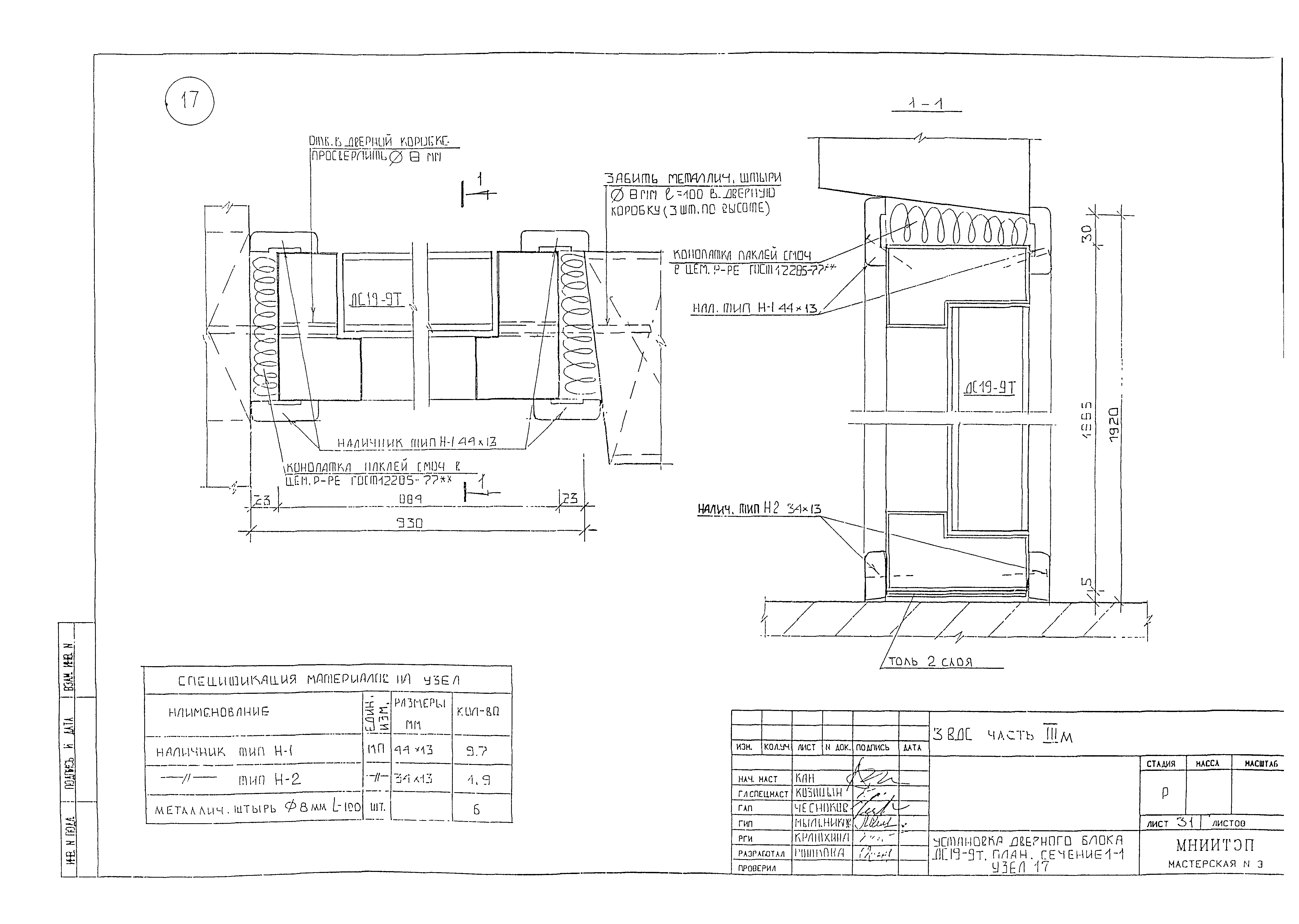
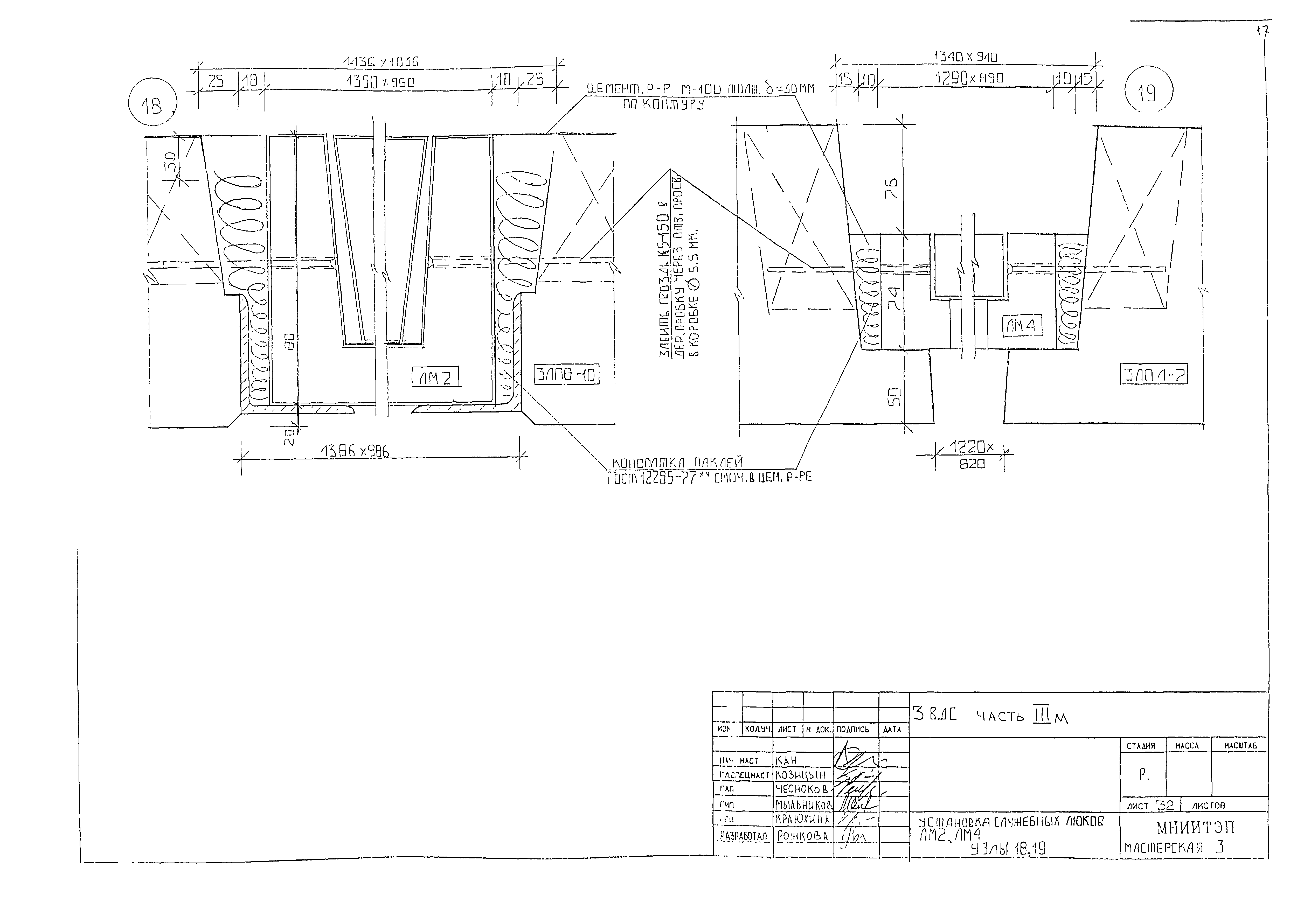
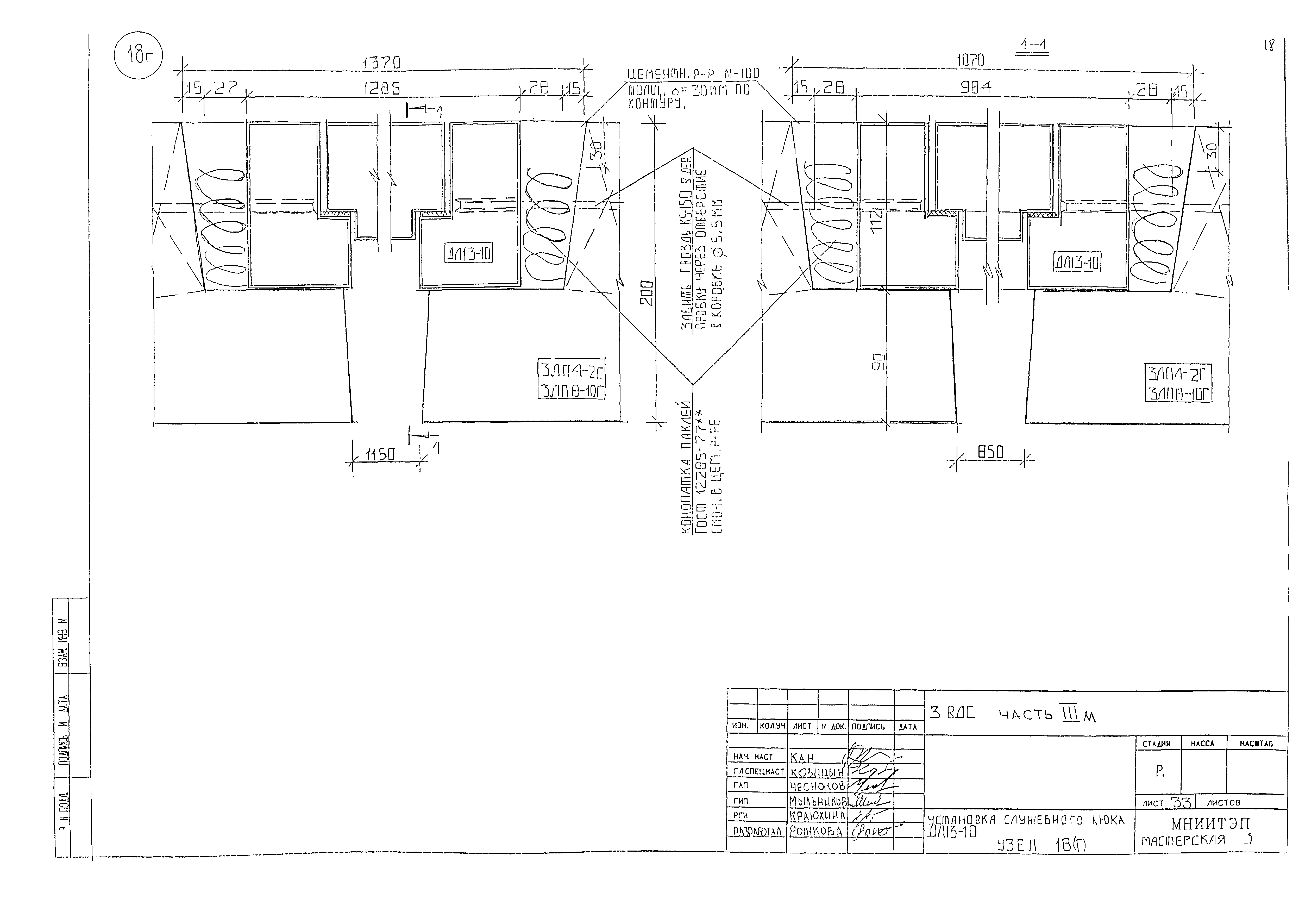
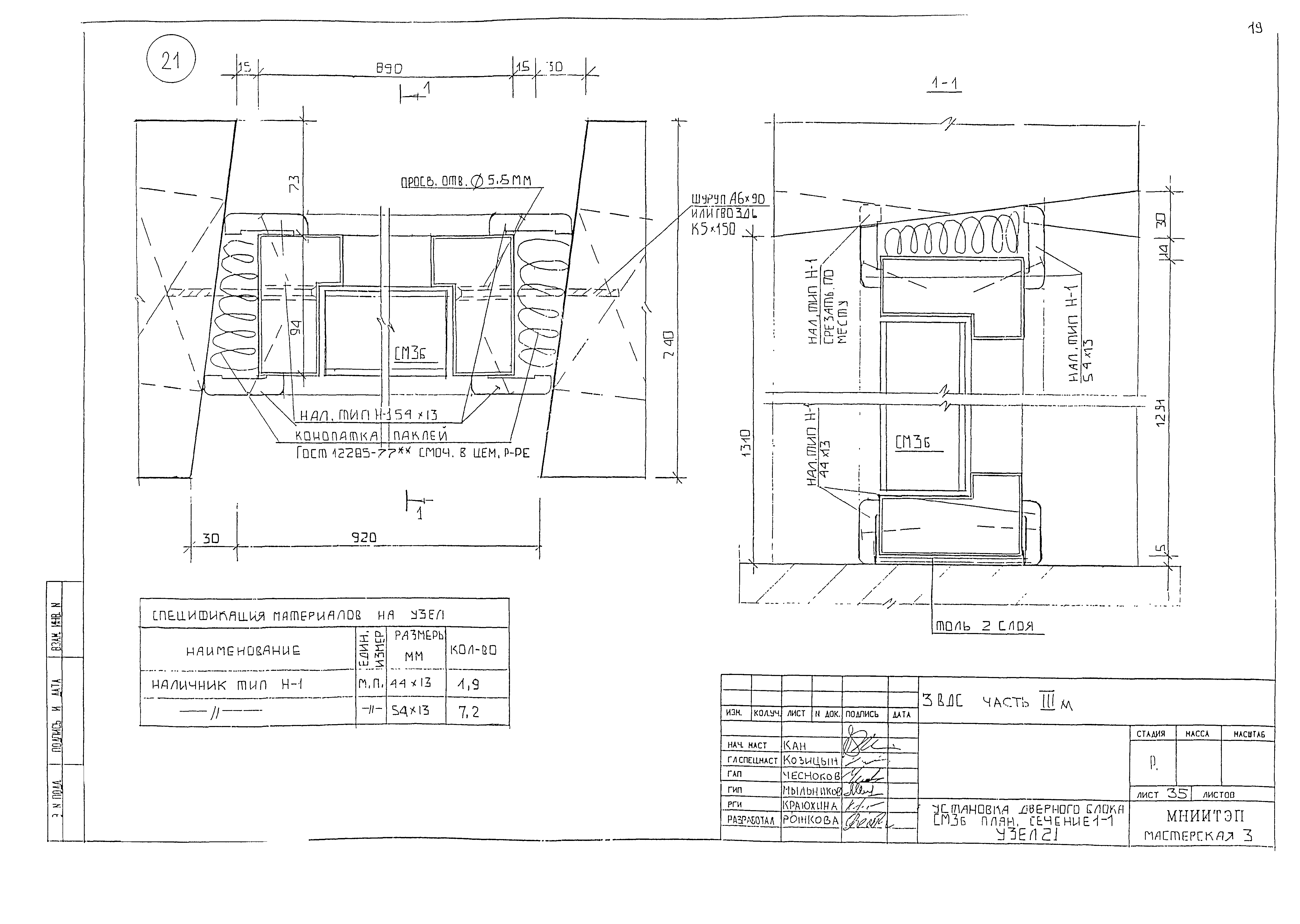
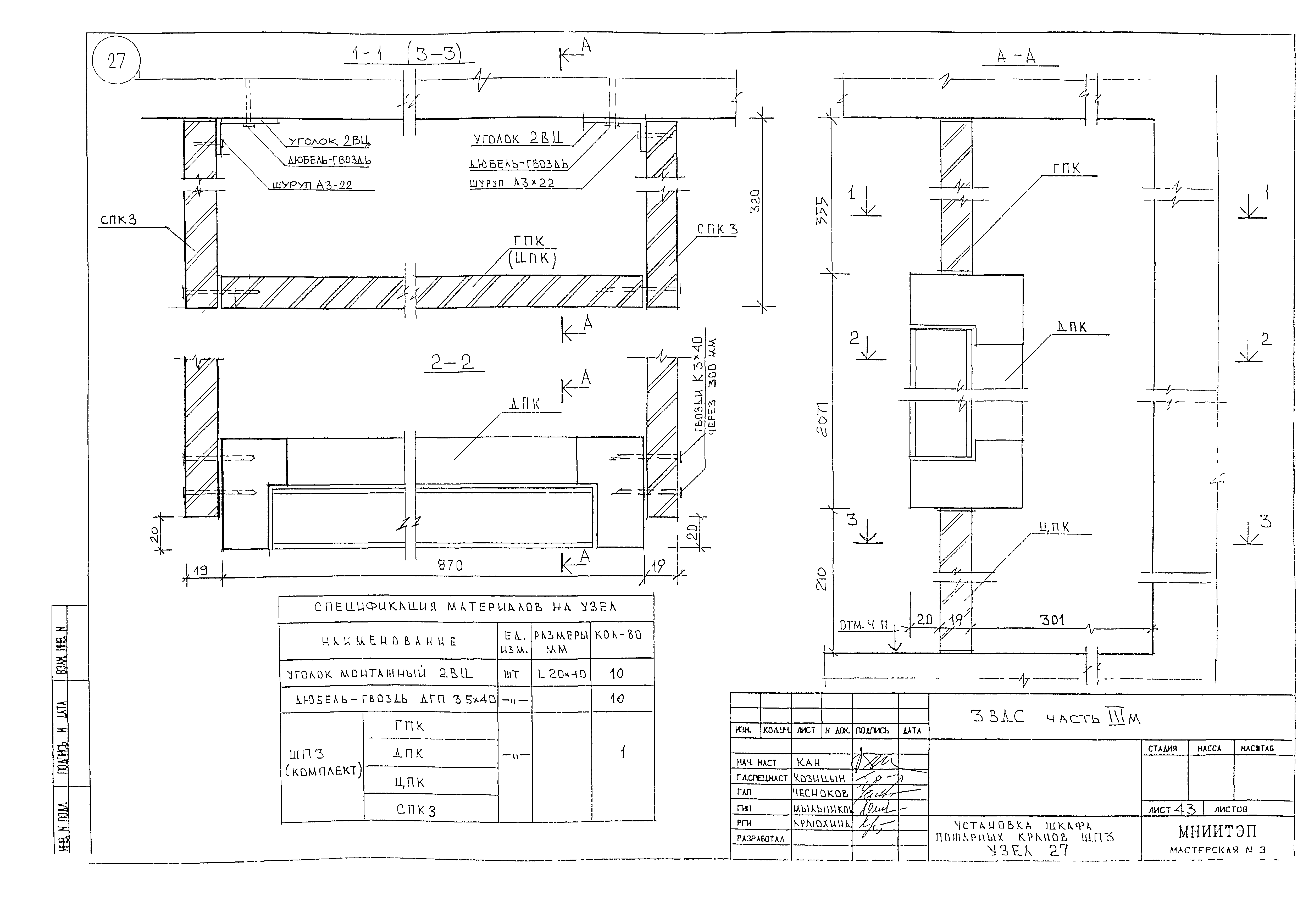
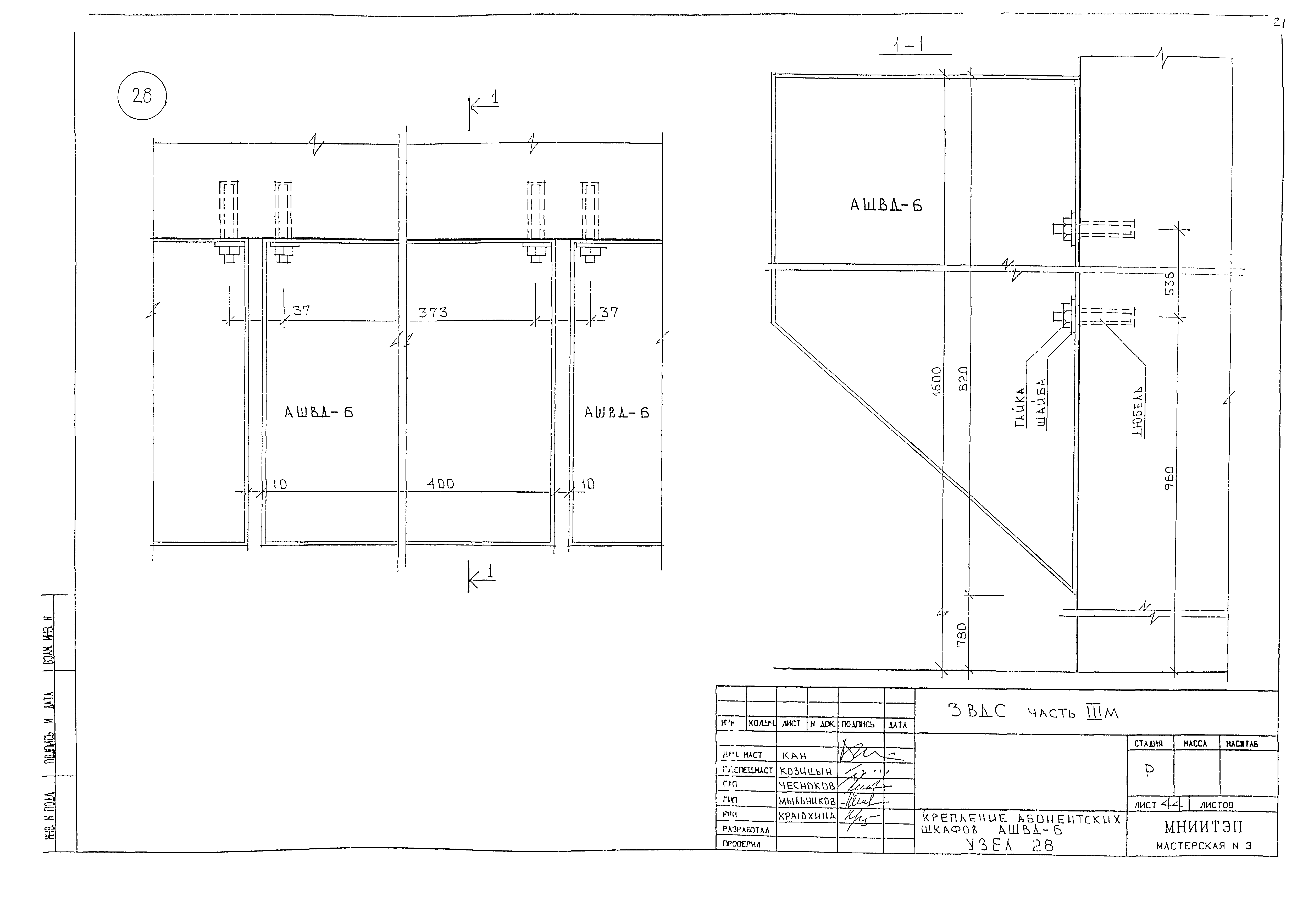
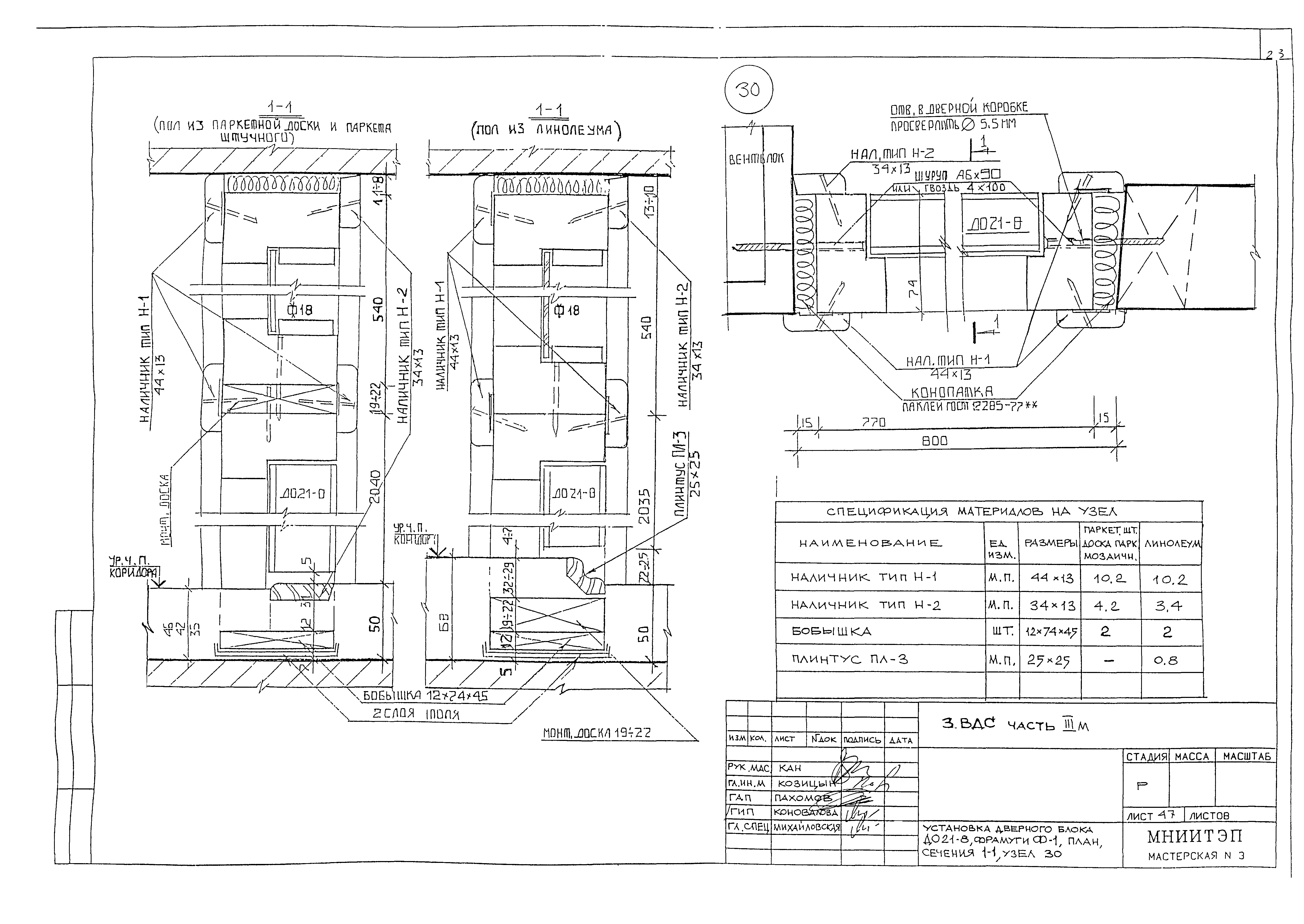
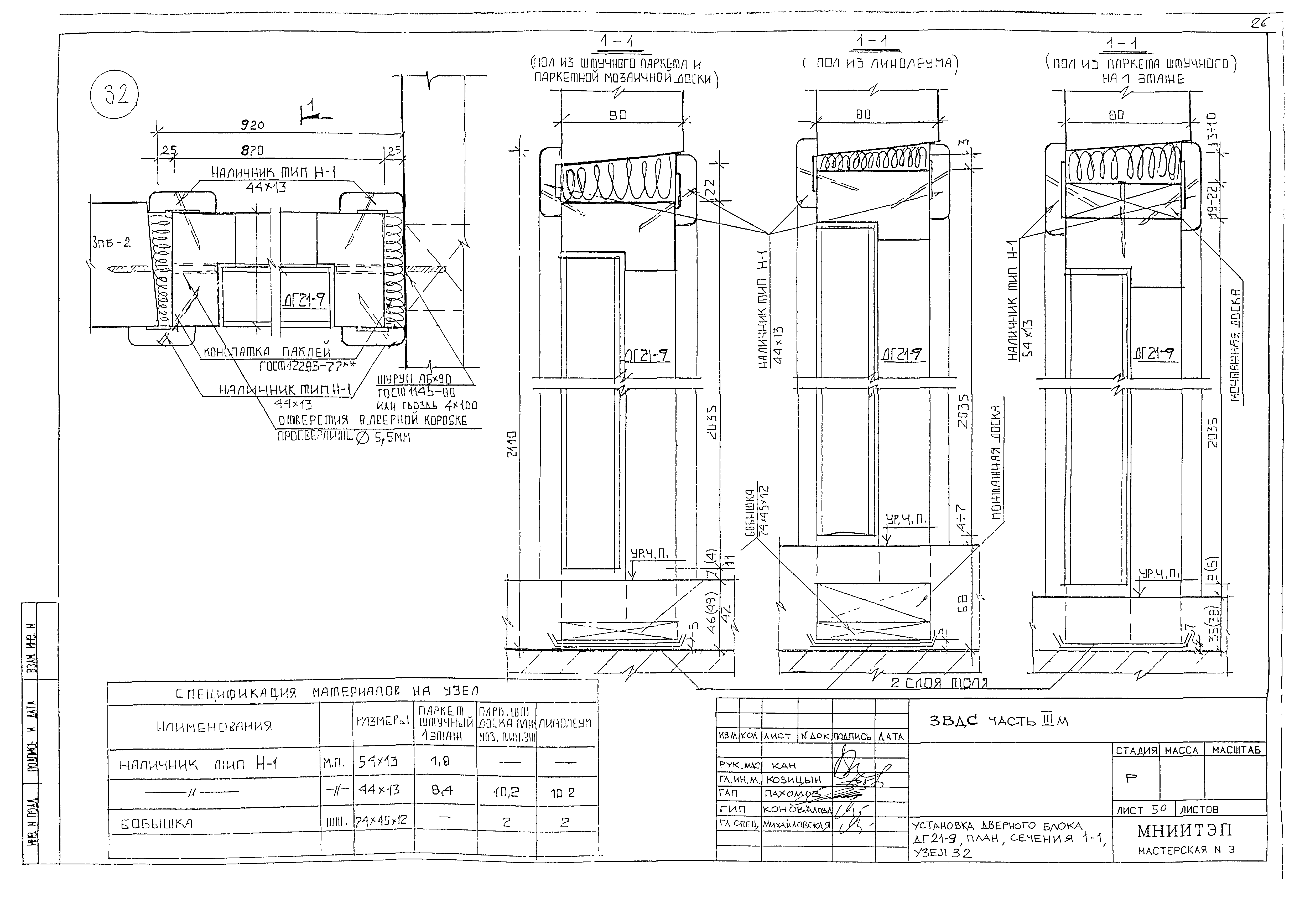
| Оглавление: | Содержание Общие данные Спецификация расходов материалов на узел Схема расположения узлов 1-го этажа Схема расположения узлов. Типовой этаж, машинное помещение, ЛЛУ в уровне чердака Узел 2. Установка дверного блока УОШ 2, план, сечение 1-1 Узел 4. Установка дверного блока ДО 21-8, фрамуги Ф18, план, сечение 1-1 Узел 8. Установка дверного блока ДГ21-9, план, сечение 1-1 Узел 9. Установка дверного блока УОШ 1, план, сечение 1-1 Узел 11. Электрощитовая. Установка решетки СТД-296/1Р-150, дверного блока ДГ21-9П Узел 15. Установка дверного блока ДС-16-9т, сечение 1-1 Узел 16. Установка дверного блока СМЗв, план, сечение 1-1 Узел 16(г). Установка дверного блока ДС16-9у, план, сечение 1-1 Узел 17. Установка дверного блока ДС19-9т, план, сечение 1-1 Узлы 18,19. Установка служебных люков ЛМ2, ЛМ4 Узел 18(г). Установка служебного люка ДЛ13-10 Узел 21. Установка дверного блока СМ36, план, сечение 1-1 Узел 27. Установка шкафа пожарных кранов ШП3 Узел 28. Крепление абонентских шкафов АШВД-6 Узел 29. Установка кухонного оборудования КВ-4, КМ5. Заделка монтажного люка сантехкабины Узел 30. Установка дверного блока ДО21-8, фрамуги Ф-1, план, сечение 1-1 Узлы 31. Установка дверного блока ДГ21-7, план, сечение 1-1. Крепление ограждения лестничных маршей Узел 32. Установка дверного блока ДГ21-9, план, сечение 1-1 |
| Разработан: | МНИИТЭП |
| Утверждён: | 01.01.1999 МНИИТЭП (MNIITEP ) |

























