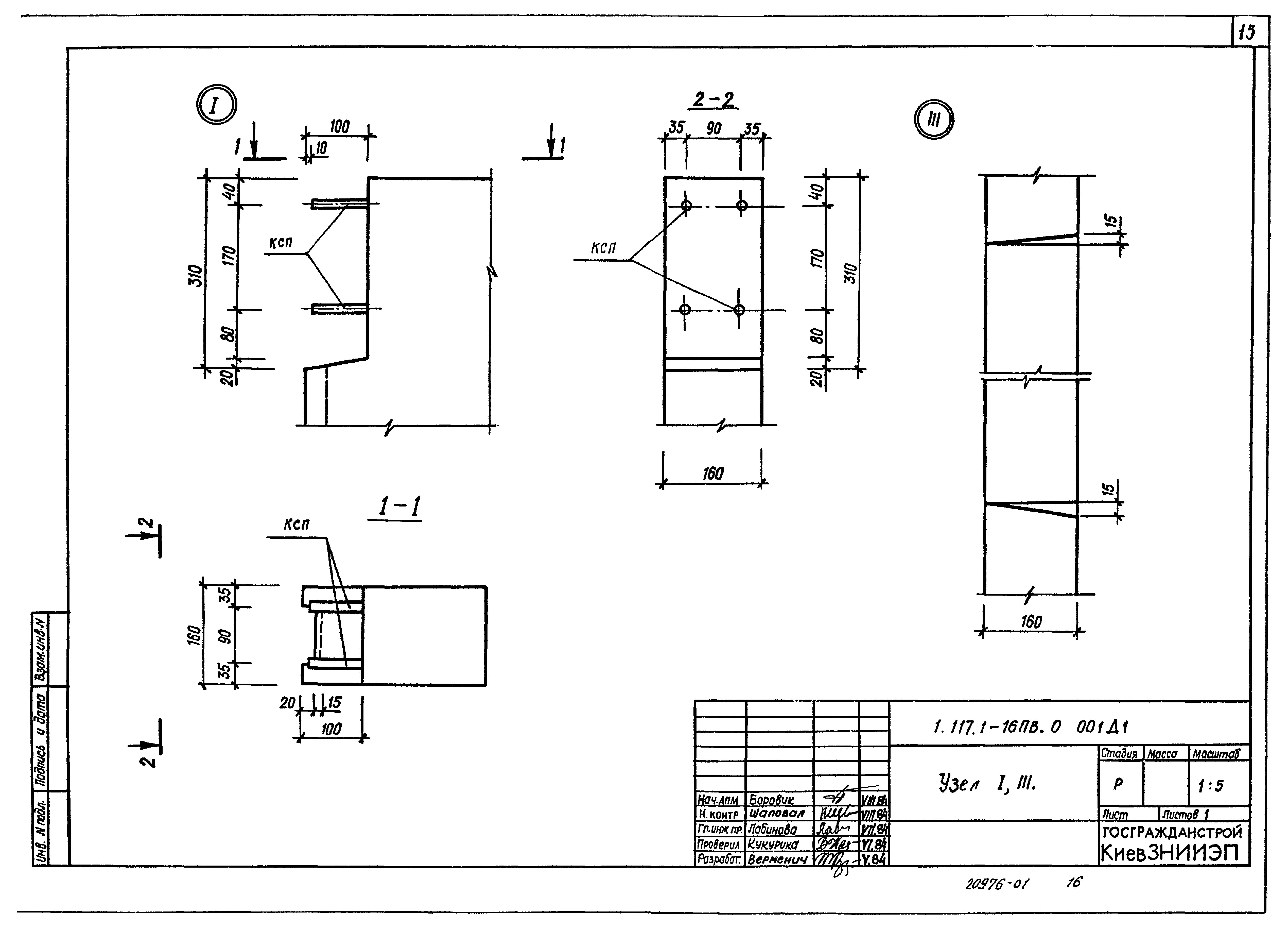
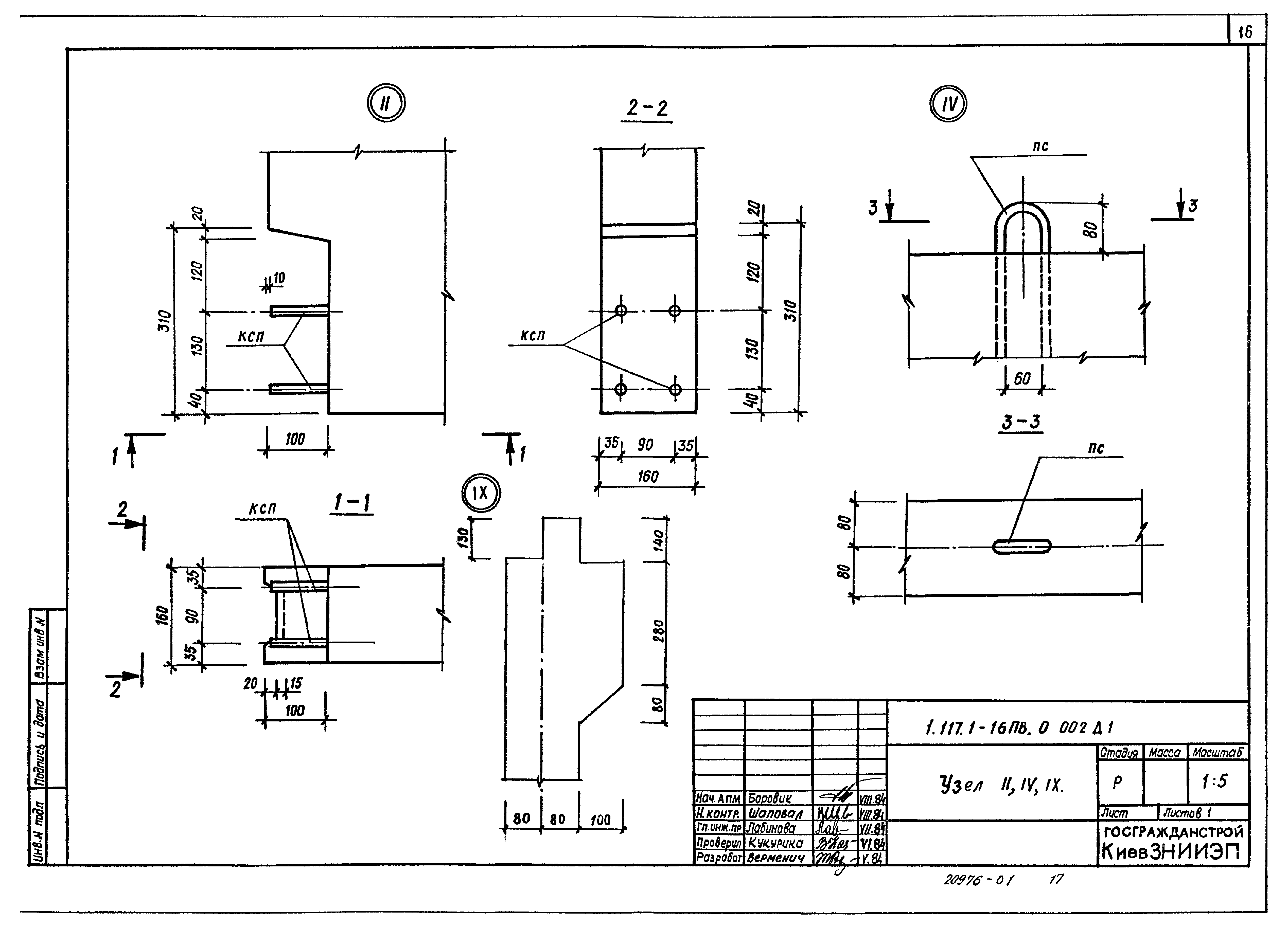
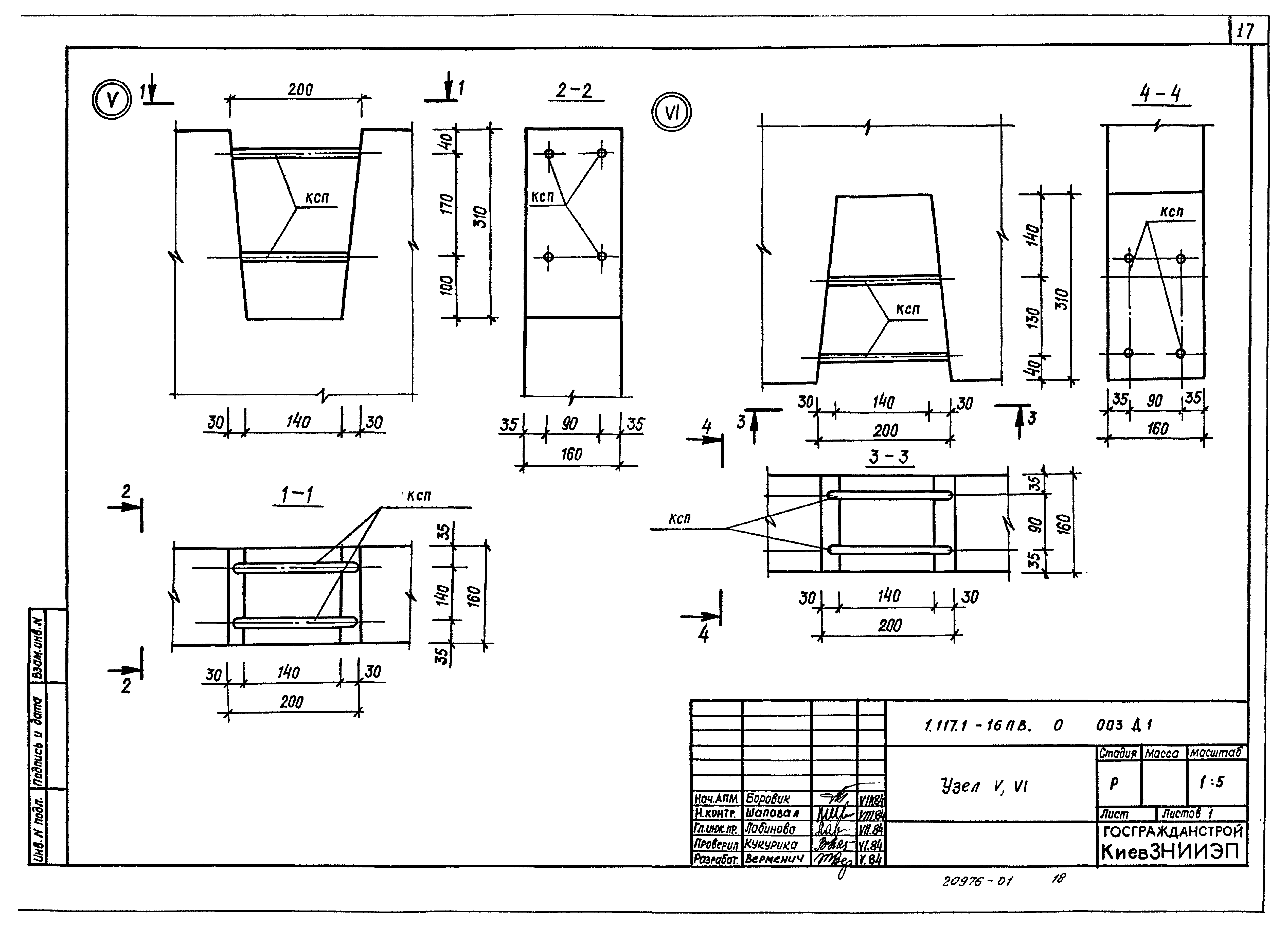
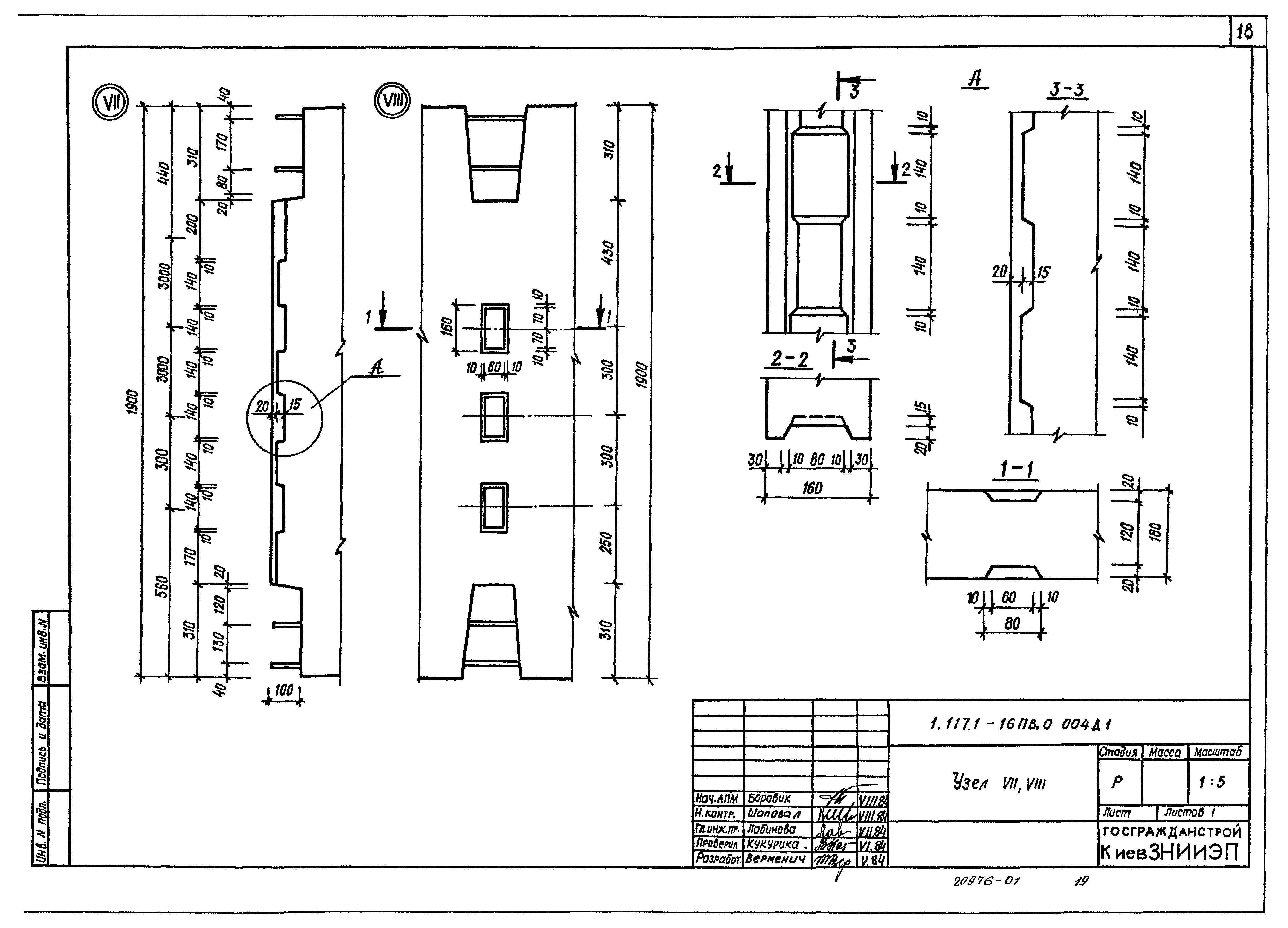
Скачать Серия 1.117.1-16пв Выпуск 0. Материалы для проектирования. Указания по изготовлению панелей. Узлы панелейДата актуализации: 01.01.2021 Серия 1.117.1-16пв
Выпуск 0. Материалы для проектирования. Указания по изготовлению панелей. Узлы панелей| Обозначение: | Серия 1.117.1-16пв | | Обозначение англ: | Series 1.117.1-16пв | | Статус: | действует | | Название рус.: | Выпуск 0. Материалы для проектирования. Указания по изготовлению панелей. Узлы панелей | | Дата добавления в базу: | 01.01.2021 | | Дата актуализации: | 01.01.2021 | | Дата введения: | 20.12.1985 | | Разработан: | КиевЗНИИЭП
| | Утверждён: | 29.11.1985 Госгражданстрой (Gosgrazhdanstroy 369)
|
                     
|