Скачать Серия 1.030.1-1/88 Выпуск 2-9. Панели из легких бетонов толщиной 400 мм для стен производственных зданий. Рабочие чертежиДата актуализации: 01.01.2021
|
| Обозначение: | Серия 1.030.1-1/88 |
| Обозначение англ: | Series 1.030.1-1/88 |
| Статус: | действует |
| Название рус.: | Выпуск 2-9. Панели из легких бетонов толщиной 400 мм для стен производственных зданий. Рабочие чертежи |
| Дата добавления в базу: | 01.09.2013 |
| Дата актуализации: | 01.01.2021 |
| Дата введения: | 01.08.1996 |
| Область применения: | Выпуск содержит опалубочные и арматурные чертежи панелей, выборку стали, арматурно-опалубочные узлы, а также номенклатуру панелей |
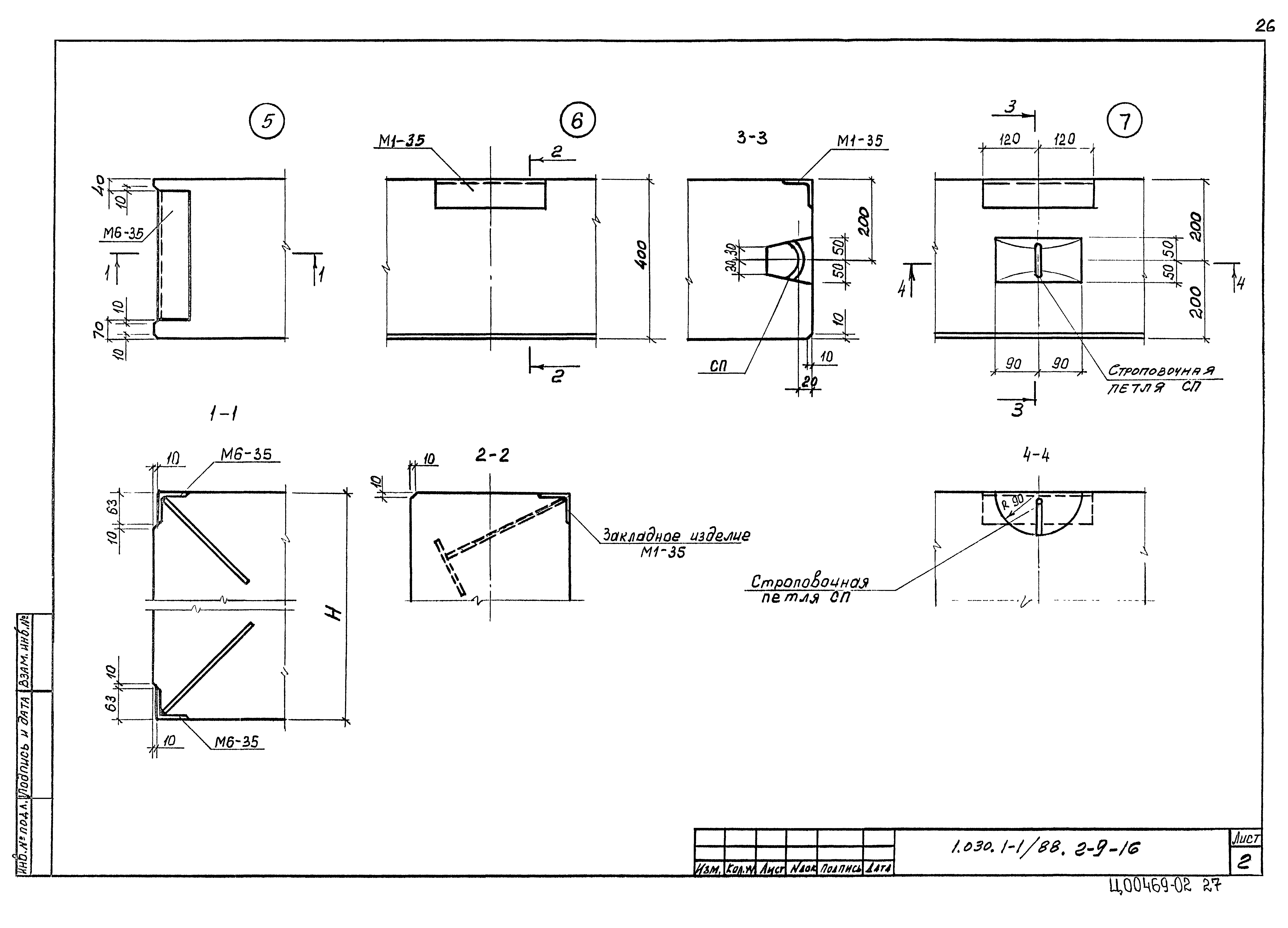
| Оглавление: | 1.030.1-1/88.2-9-ТО Техническое описание 1.030.1-1/88.2-9-НИ Номенклатура панелей 1.030.1-1/88.2-9-1 Панель ПС 60.9.4,0- 1.030.1-1/88.2-9-2 Панель ПС 60.12.4,0- 1.030.1-1/88.2-9-3 Панель ПС 60.15.4,0- 1.030.1-1/88.2-9-4 Панель ПС 60.18.4,0- 1.030.1-1/88.2-9-5 Панель ПС 64.9.4,0- 1.030.1-1/88.2-9-6 Панель ПС 64.12.4,0- 1.030.1-1/88.2-9-7 Панель ПС 64.18.4,0- 1.030.1-1/88.2-9-8 Панель ПС 67.9.4,0- 1.030.1-1/88.2-9-9 Панель ПС 67.12.4,0- 1.030.1-1/88.2-9-10 Панель ПС 67.18.4,0- 1.030.1-1/88.2-9-11 Панель ПС 30.9.4,0-; ПС 30.12.4,0-; ПС 30.18.4,0- 1.030.1-1/88.2-9-12 Панель простенка ПС 30.12.4,0; ПС 30.18.4,0; ПС 30.24.4,0 1.030.1-1/88.2-9-13 Панель простенка ПС 15.12.4,0; ПС 15.18.4,0; ПС 15.24.4,0 1.030.1-1/88.2-9-14 Панель простенка ПС 12.12.4,0; ПС 12.18.4,0; ПС 12.24.4,0 1.030.1-1/88.2-9-15 Панель простенка ПС 6.12.4,0; ПС 6.18.4,0; ПС 6.24.4,0 1.030.1-1/88.2-9-16 Узел 1… 7 1.030.1-1/88.2-9-17 Схема расположения закладных изделий в панели, спецификация и выборка стали на закладные изделия 1.030.1-1/88.2-9-18 Каркас КР-23.40; КР-26.40; КР-27.40; КР-28.40 1.030.1-1/88.2-9-19 Каркас КР-29.40; КР-30.40; КР-31.40 |
| Разработан: | ЦНИИпромзданий |
| Утверждён: | 21.05.1996 Главпроект Минстроя России (9-1-1/57) |
| Нормативные ссылки: |
|
































