Скачать Серия 1.132.1-21.98 Выпуск 0. Материалы для проектирования

Дата актуализации: 01.01.2021

Серия 1.132.1-21.98

Выпуск 0. Материалы для проектирования

Обозначение: Серия 1.132.1-21.98
Обозначение англ: Series 1.132.1-21.98
Статус:не определен законодательством
Название рус.:Выпуск 0. Материалы для проектирования
Дата добавления в базу:01.09.2013
Дата актуализации:01.01.2021
Дата введения:01.02.1998
Дата окончания срока действия:30.06.2003
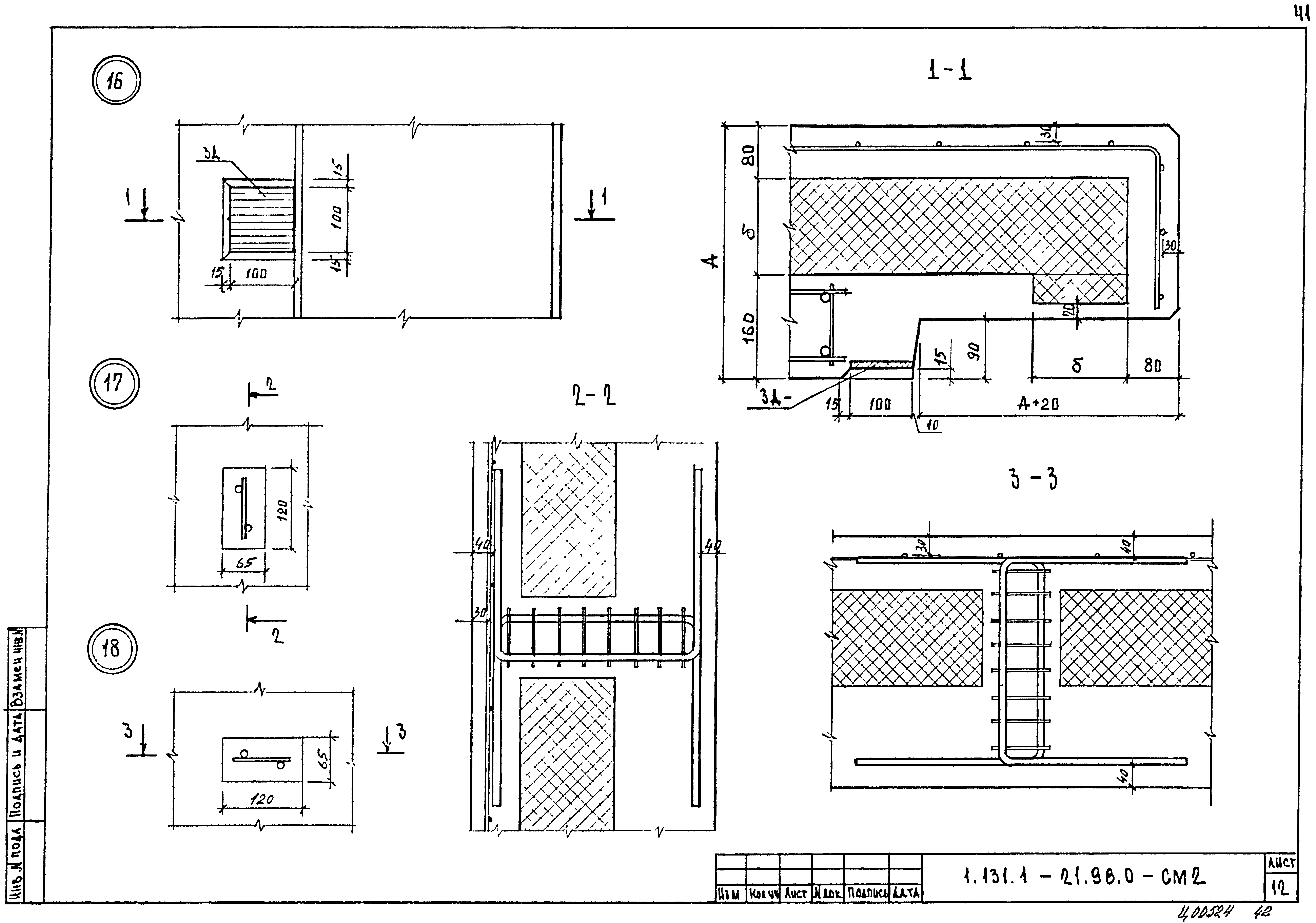
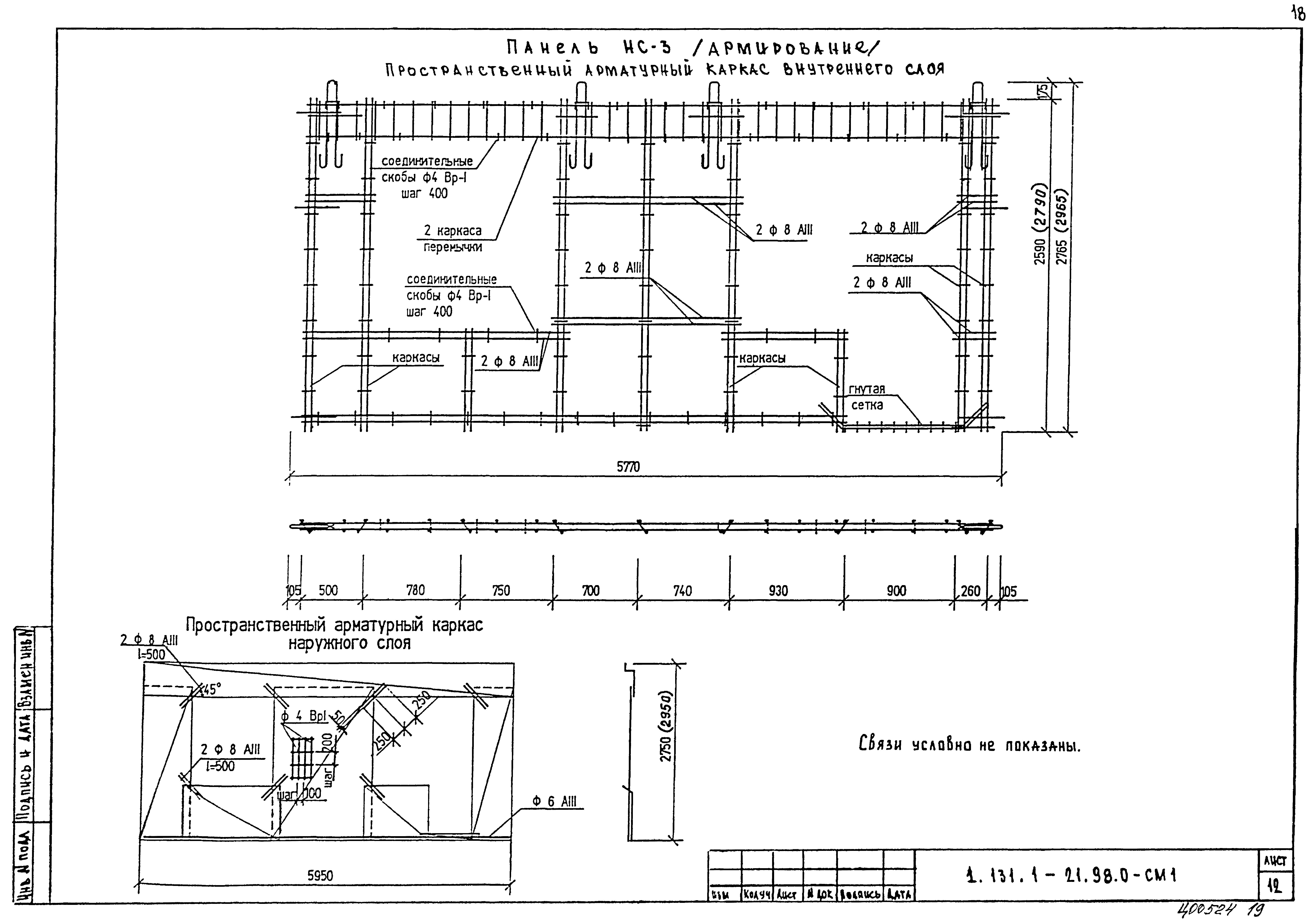
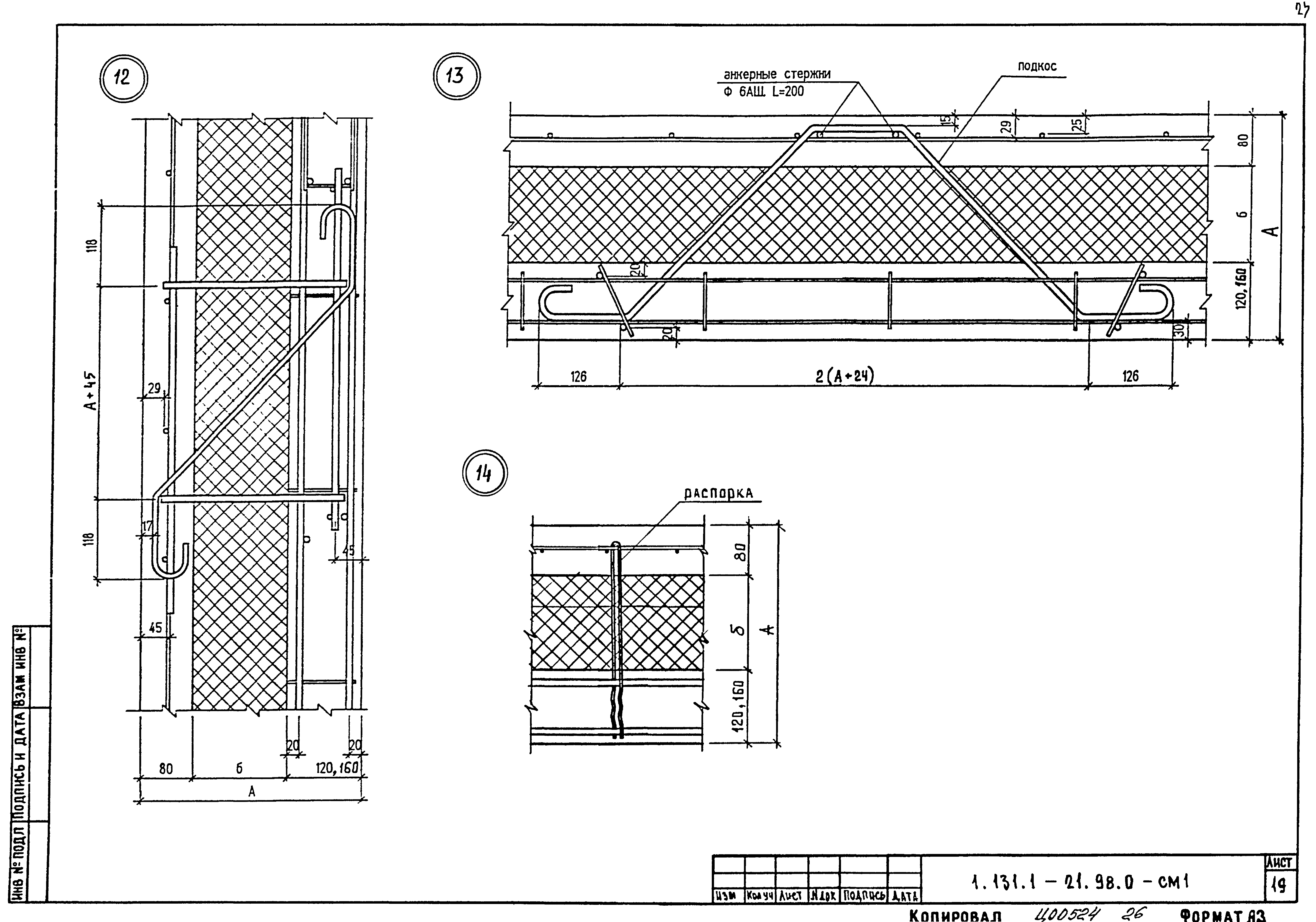
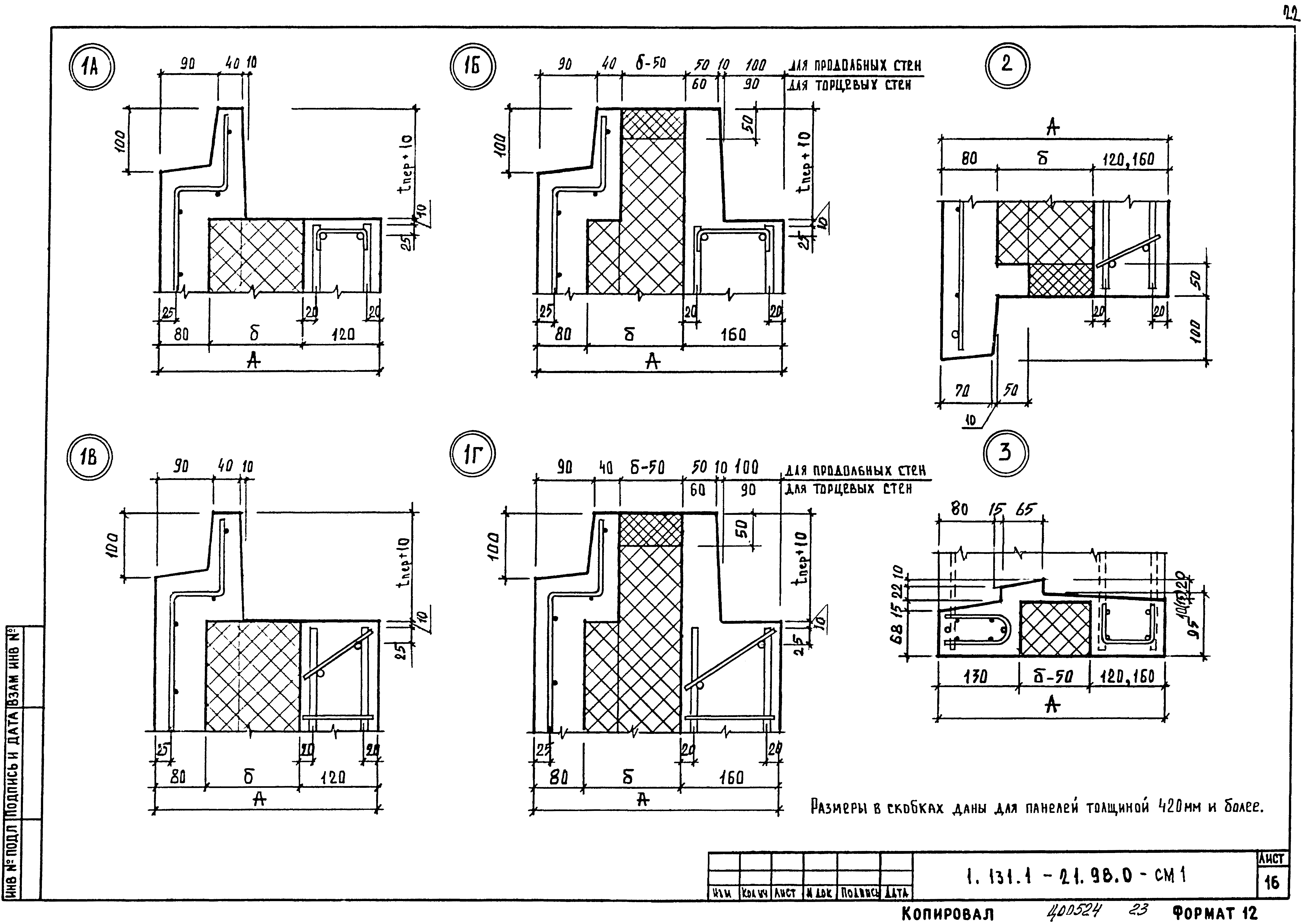
Область применения:В составе настоящего выпуска представлены материалы для проектирования наружных трехслойных железобетонных панелей с эффективным утеплителем для строительства крупнопанельных жилых зданий в зонах с обычными инженерно-геологическими условиями строительства и на площадках с сейсмичностью 7, 8 и 9 баллов
Оглавление:1.132.1-21.96.0-ПЗ Пояснительная записка
1.132.1-21.96.0-СМ1 Справочный материал /обычные условия строительства/
1.132.1-21.96.0-СМ2 Справочный материал /для сейсмичности 7, 8 и 9 баллов/
Разработан: КБ им. А.А. Якушева
Утверждён:30.01.1998 Госстрой России (Russian Federation Gosstroy 9-2-1/22)
Нормативные ссылки:
Серия 1.132.1-21.98Серия 1.132.1-21.98Серия 1.132.1-21.98Серия 1.132.1-21.98Серия 1.132.1-21.98Серия 1.132.1-21.98Серия 1.132.1-21.98Серия 1.132.1-21.98Серия 1.132.1-21.98Серия 1.132.1-21.98Серия 1.132.1-21.98Серия 1.132.1-21.98Серия 1.132.1-21.98Серия 1.132.1-21.98Серия 1.132.1-21.98Серия 1.132.1-21.98Серия 1.132.1-21.98Серия 1.132.1-21.98Серия 1.132.1-21.98Серия 1.132.1-21.98Серия 1.132.1-21.98Серия 1.132.1-21.98Серия 1.132.1-21.98Серия 1.132.1-21.98Серия 1.132.1-21.98Серия 1.132.1-21.98Серия 1.132.1-21.98Серия 1.132.1-21.98Серия 1.132.1-21.98Серия 1.132.1-21.98Серия 1.132.1-21.98Серия 1.132.1-21.98Серия 1.132.1-21.98Серия 1.132.1-21.98Серия 1.132.1-21.98Серия 1.132.1-21.98Серия 1.132.1-21.98Серия 1.132.1-21.98Серия 1.132.1-21.98Серия 1.132.1-21.98Серия 1.132.1-21.98Серия 1.132.1-21.98Серия 1.132.1-21.98Серия 1.132.1-21.98Серия 1.132.1-21.98