Скачать Серия 1.232.1-8 Выпуск 1-3. Панели однослойные самонесущие для зданий с высотой этажа 3,3 м. Арматурные и закладные изделия. Рабочие чертежиДата актуализации: 01.01.2021
|
| Обозначение: | Серия 1.232.1-8 |
| Обозначение англ: | Series 1.232.1-8 |
| Статус: | действует |
| Название рус.: | Выпуск 1-3. Панели однослойные самонесущие для зданий с высотой этажа 3,3 м. Арматурные и закладные изделия. Рабочие чертежи |
| Дата добавления в базу: | 01.09.2013 |
| Дата актуализации: | 01.01.2021 |
| Дата введения: | 01.07.1987 |
| Область применения: | Данный выпуск содержит рабочие чертежи плоских арматурных каркасов и сеток, закладный изделий, строповочных петель и отдельных стержней, предназначенных для армирования однослойных самонесущих панелей наружных стен для зданий с высотой этажа 3,3 м |
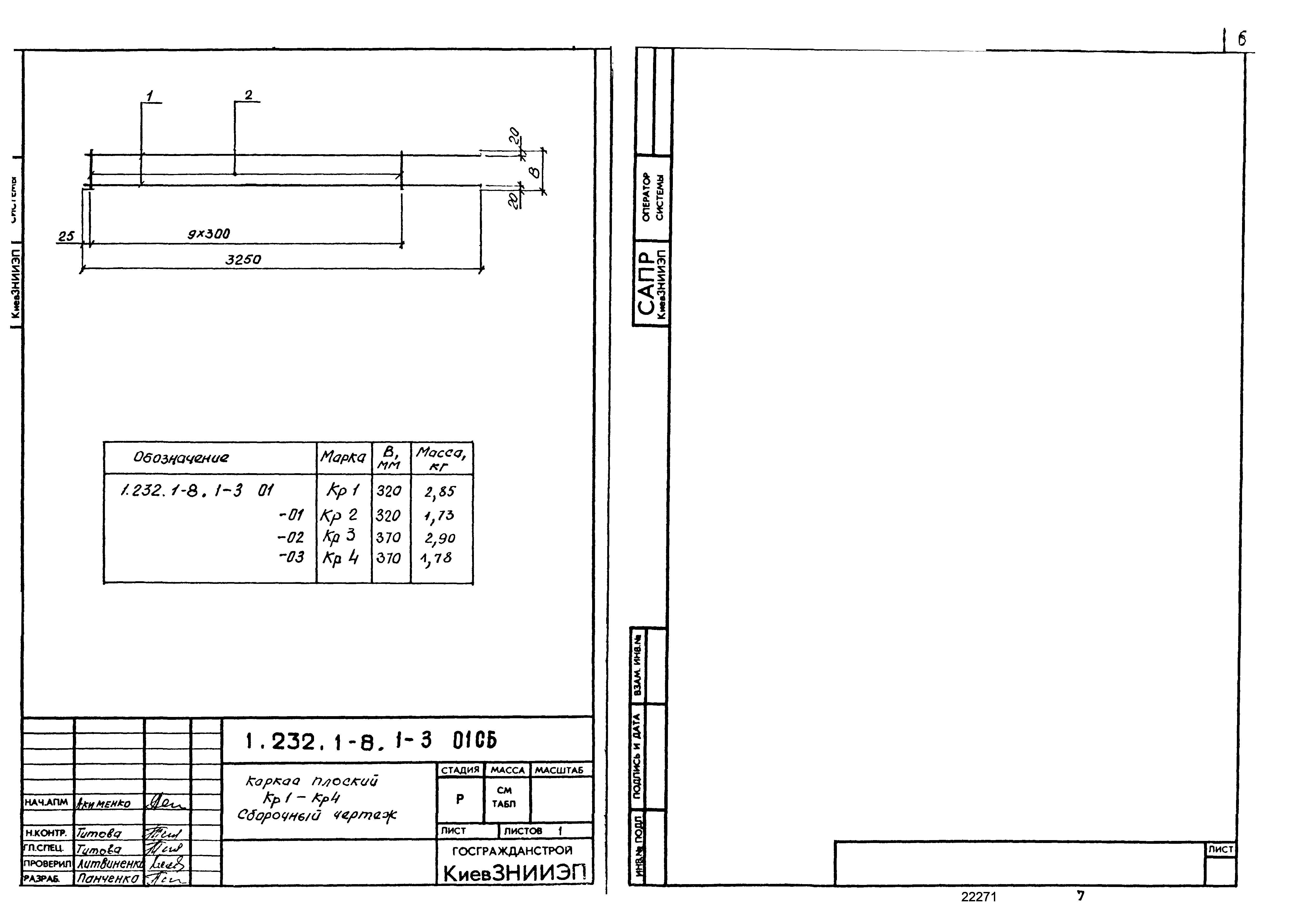
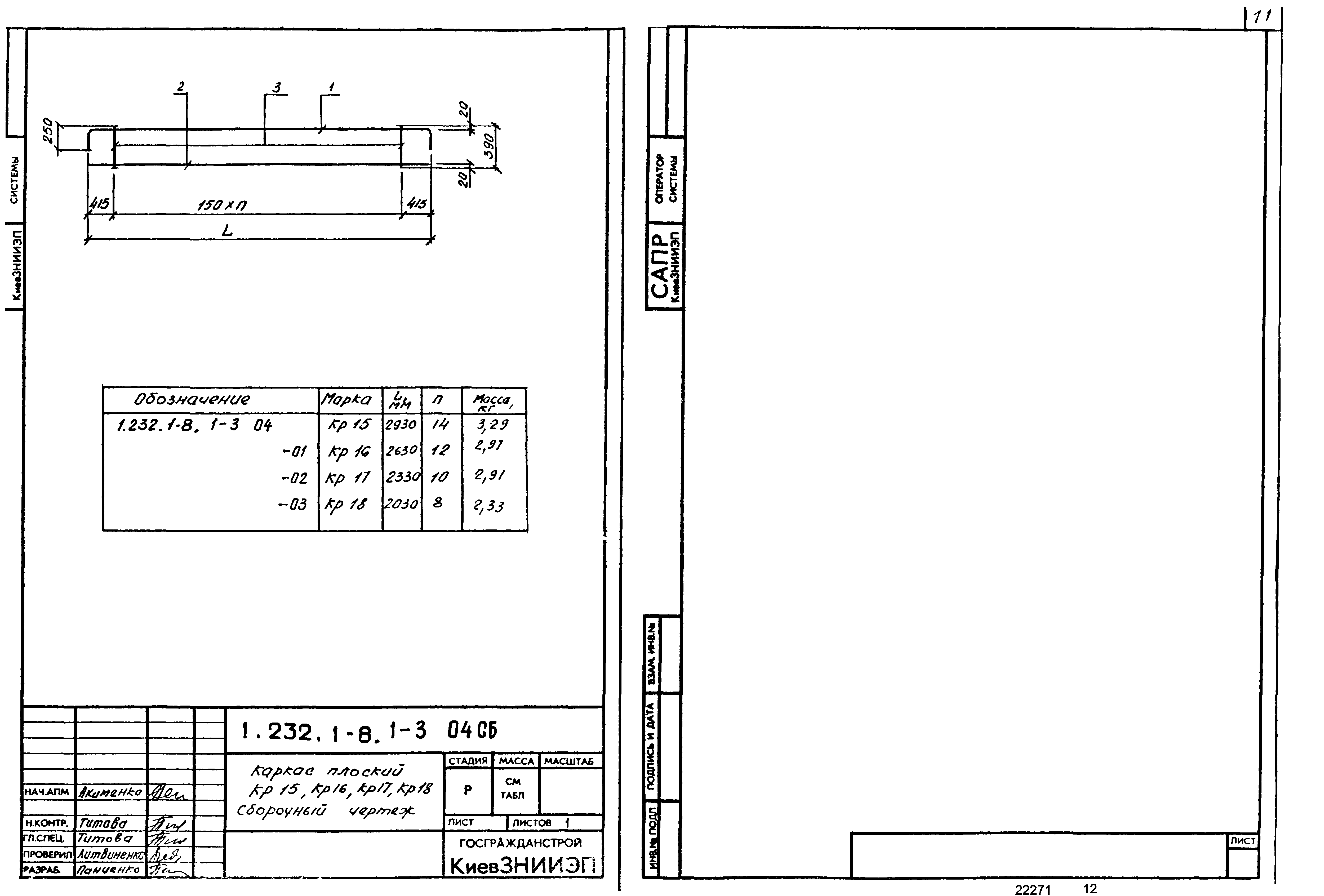
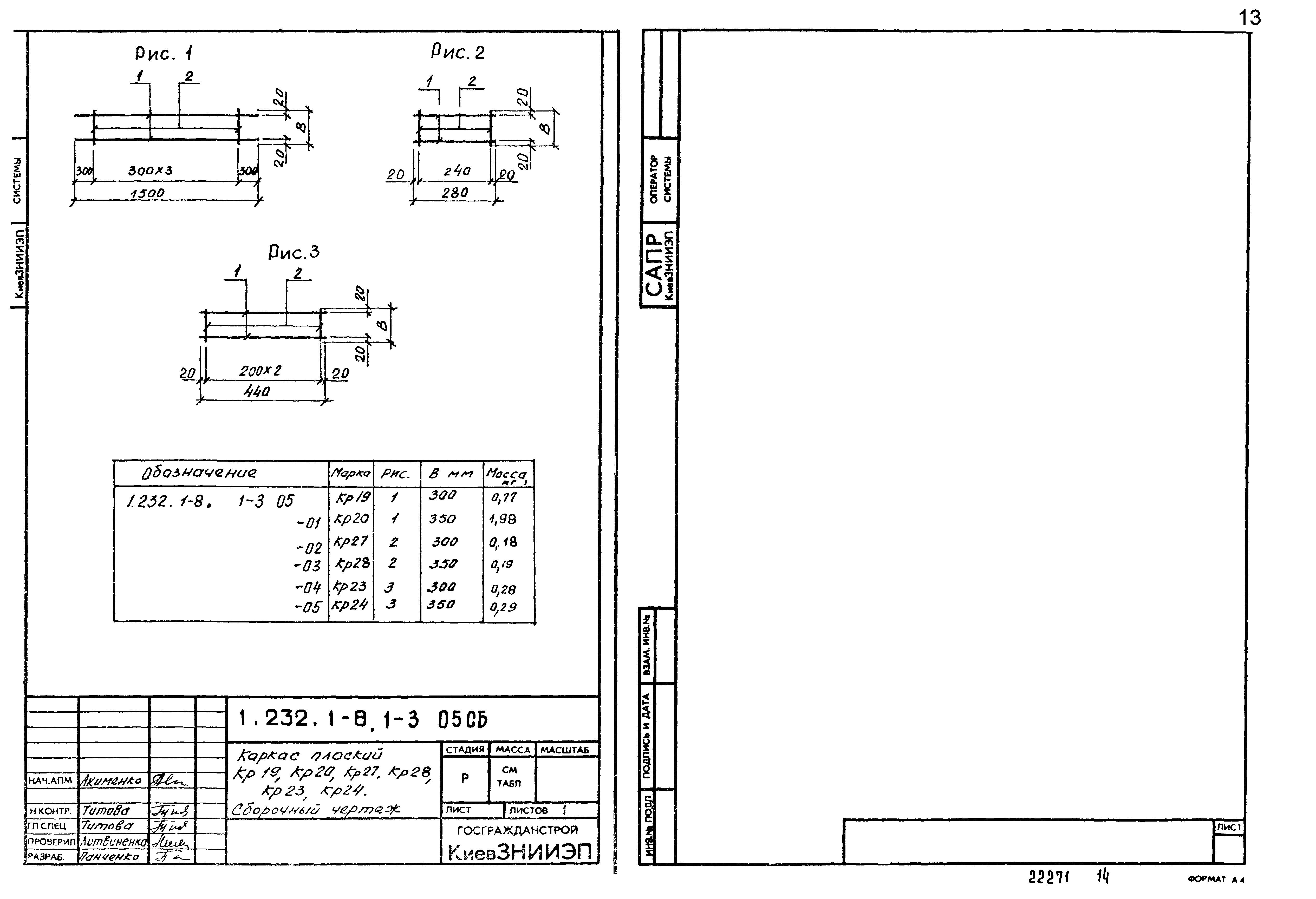
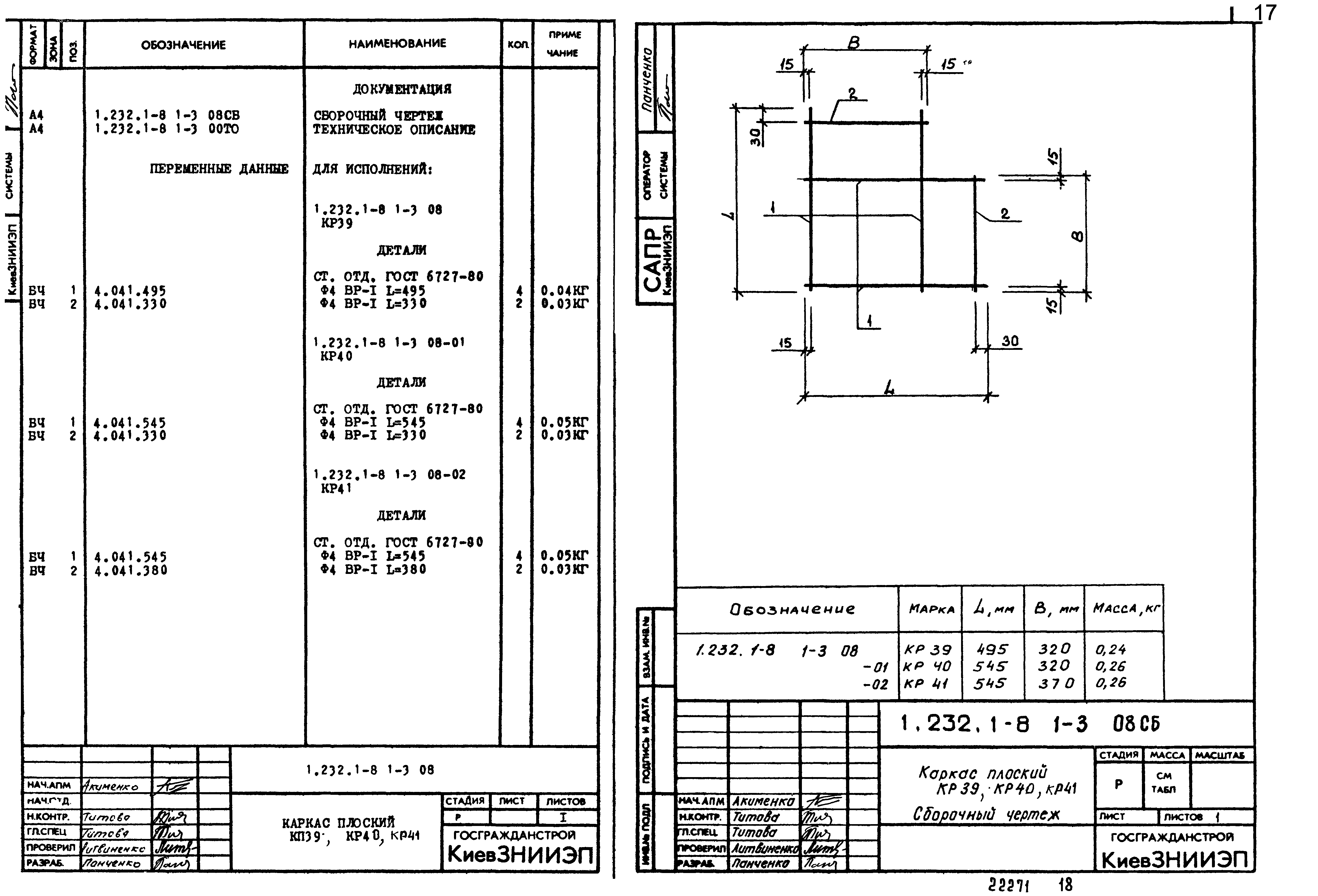
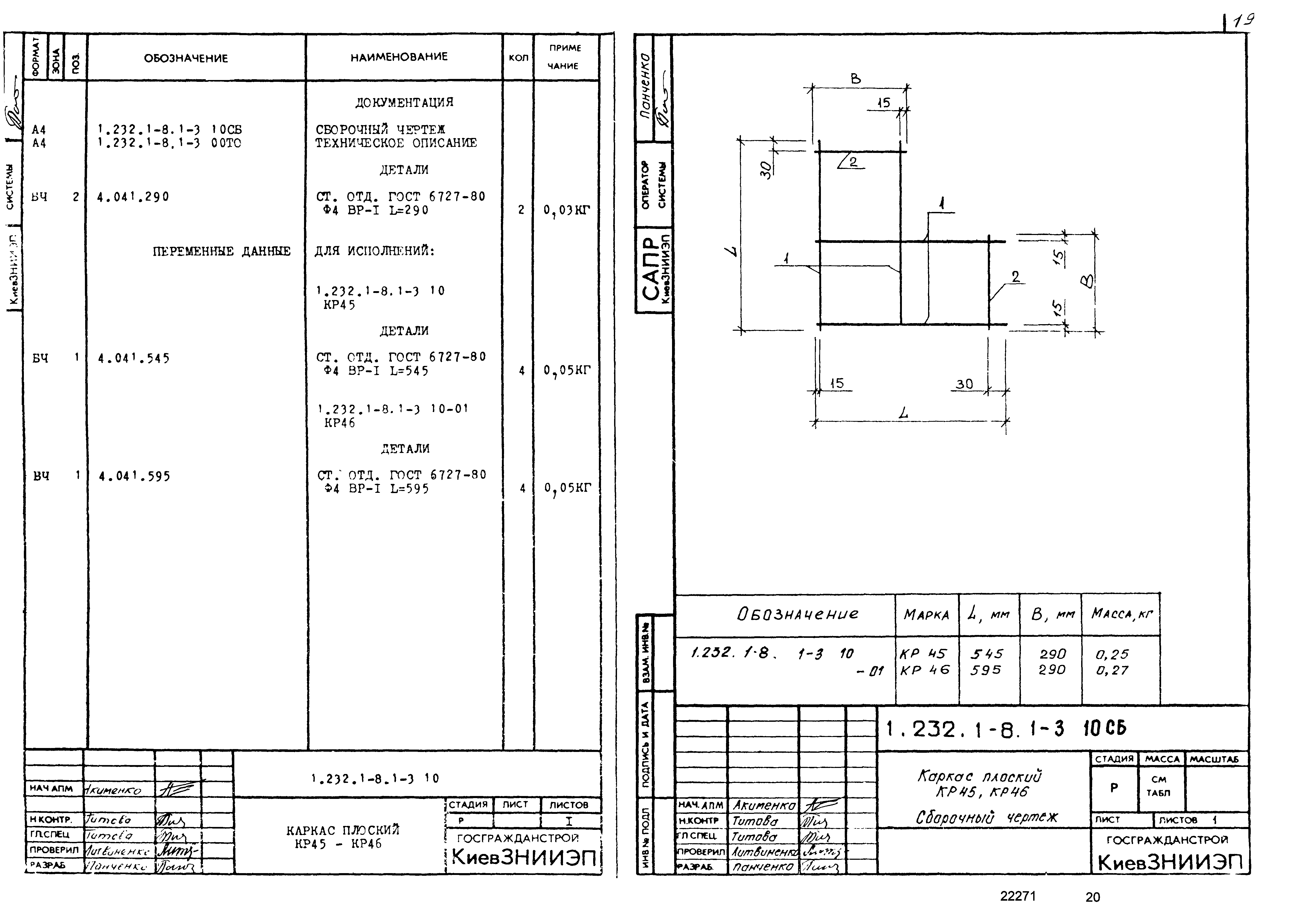
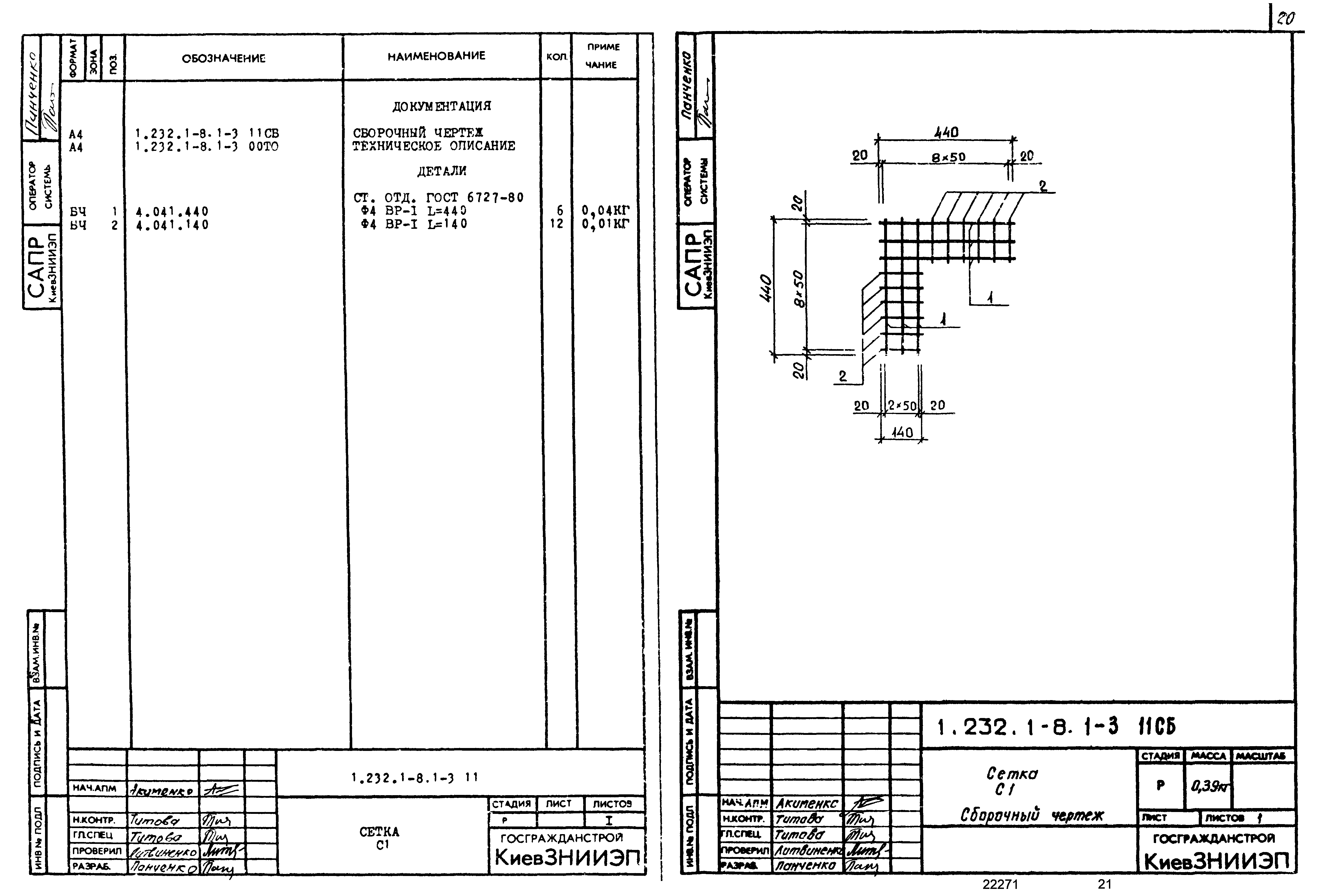
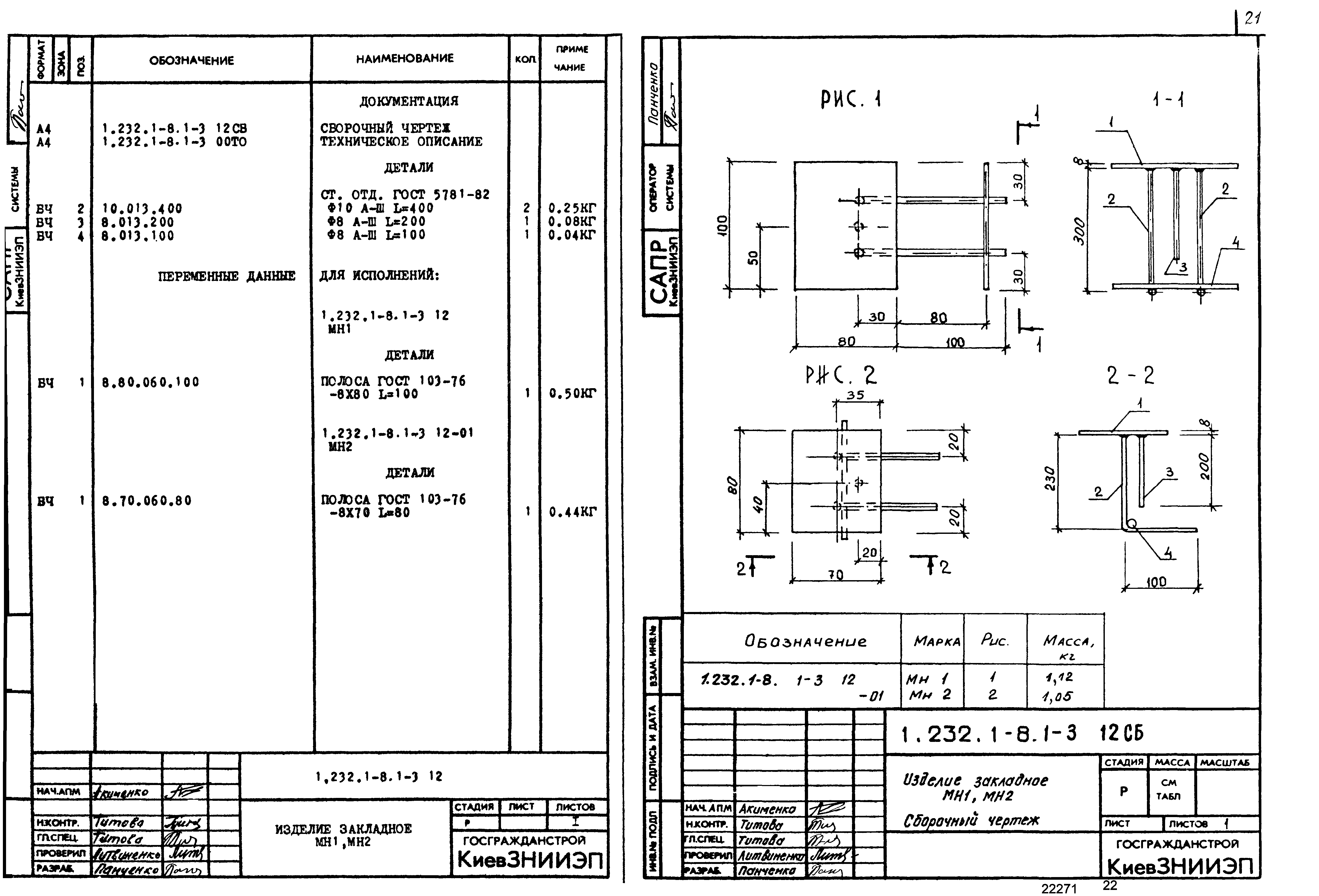
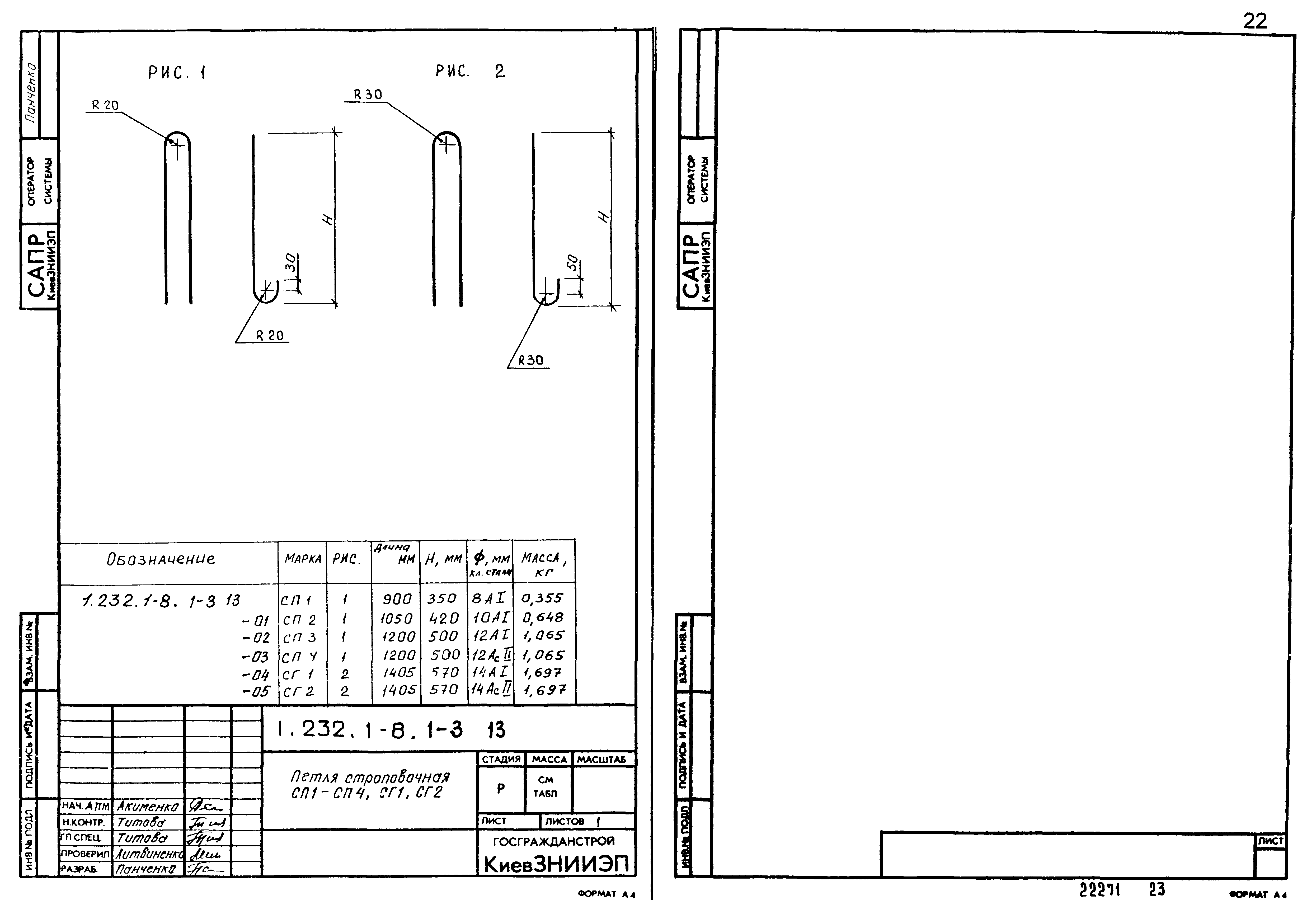
| Оглавление: | 1.232.1-8.1-3 00 ТО Техническое описание 1.232.1-8.1-3 01 Каркас плоский Кр1 - Кр4 1.232.1-8.1-3 01 СБ Каркас плоский Кр1 - Кр4. Сборочный чертеж 1.232.1-8.1-3 02 Каркас плоский Кр5 - Кр12 1.232.1-8.1-3 02 СБ Каркас плоский Кр5 - Кр12. Сборочный чертеж 1.232.1-8.1-3 03 Каркас плоский Кр13, Кр14, Кр35 1.232.1-8.1-3 03 СБ Каркас плоский Кр13, Кр14, Кр35. Сборочные чертежи 1.232.1-8.1-3 04 Каркас плоский Кр15, Кр16, Кр17, Кр18 1.232.1-8.1-3 04 СБ Каркас плоский Кр15, Кр16, Кр17, Кр18. Сборочные чертежи 1.232.1-8.1-3 05 Каркас плоский Кр19, Кр20, Кр27, Кр28, Кр23, Кр24 1.232.1-8.1-3 05 СБ Каркас плоский Кр19, Кр20, Кр27, Кр28, Кр23, Кр24. Сборочные чертежи 1.232.1-8.1-3 06 Каркас плоский Кр21, Кр22, Кр25, Кр26, Кр29 - Кр34 1.232.1-8.1-3 06 СБ Каркас плоский Кр21, Кр22, Кр25, Кр26, Кр29 - Кр34. Сборочные чертежи 1.232.1-8.1-3 07 Каркас плоский Кр37, Кр38 1.232.1-8.1-3 07 СБ Каркас плоский Кр37, Кр38. Сборочные чертежи 1.232.1-8.1-3 08 Каркас плоский Кр39, Кр40, Кр41 1.232.1-8.1-3 08 СБ Каркас плоский Кр39, Кр40, Кр41. Сборочные чертежи 1.232.1-8.1-3 09 Каркас плоский Кр42, Кр43, Кр44 1.232.1-8.1-3 09 СБ Каркас плоский Кр42, Кр43, Кр44. Сборочные чертежи 1.232.1-8.1-3 10 Каркас плоский Кр45, Кр46 1.232.1-8.1-3 10 СБ Каркас плоский Кр45, Кр46. Сборочные чертежи 1.232.1-8.1-3 11 Сетка С1 1.232.1-8.1-3 11 СБ Сетка С1. Сборочный чертеж 1.232.1-8.1-3 12 Изделия закладные МН-1, МН-2 1.232.1-8.1-3 12 СБ Изделия закладные МН-1, МН-2. Сборочный чертеж 1.232.1-8.1-3 13 Петля строповочная СП1 - СП4, СГ1, СГ2 1.232.1-8.1-3 14 Петля строповочная СП5, СП6 1.232.1-8.1-3 14 СБ Петля строповочная СП5, СП6. Сборочный чертеж |
| Разработан: | КиевЗНИИЭП |
| Утверждён: | 19.05.1987 Госгражданстрой (Gosgrazhdanstroy 161) |
| Нормативные ссылки: |
|
























