Скачать Серия 1.232.1-10 Выпуск 1. Панели. Рабочие чертежиДата актуализации: 01.01.2021
|
| Обозначение: | Серия 1.232.1-10 |
| Обозначение англ: | Series 1.232.1-10 |
| Статус: | не определен законодательством |
| Название рус.: | Выпуск 1. Панели. Рабочие чертежи |
| Дата добавления в базу: | 01.09.2013 |
| Дата актуализации: | 01.01.2021 |
| Дата введения: | 01.09.1987 |
| Дата окончания срока действия: | 30.06.2003 |
| Область применения: | Выпуск содержит: техническое описание, спецификации и сборочные чертежи панелей, узлы, ведомость расхода стали на панели |
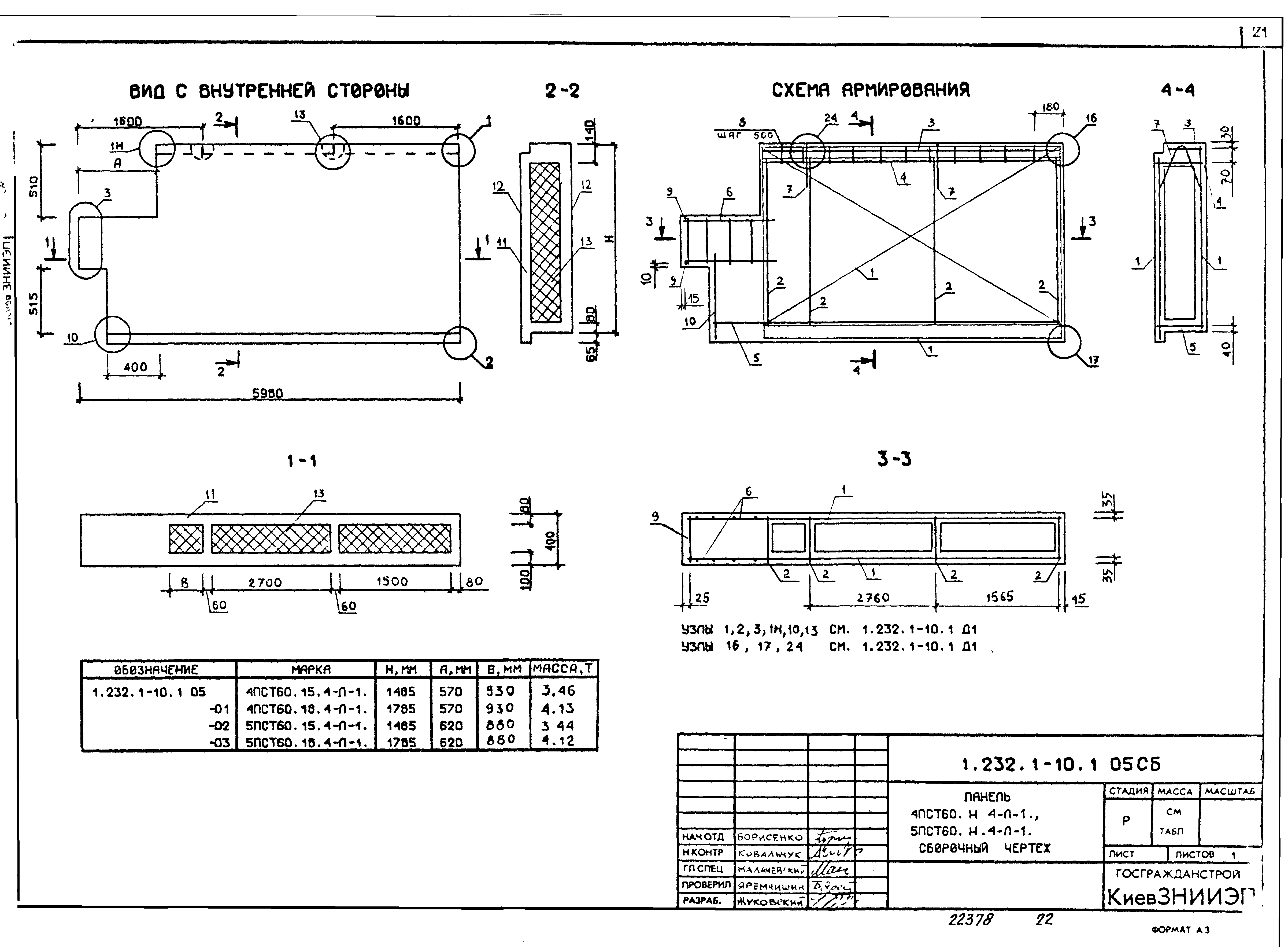
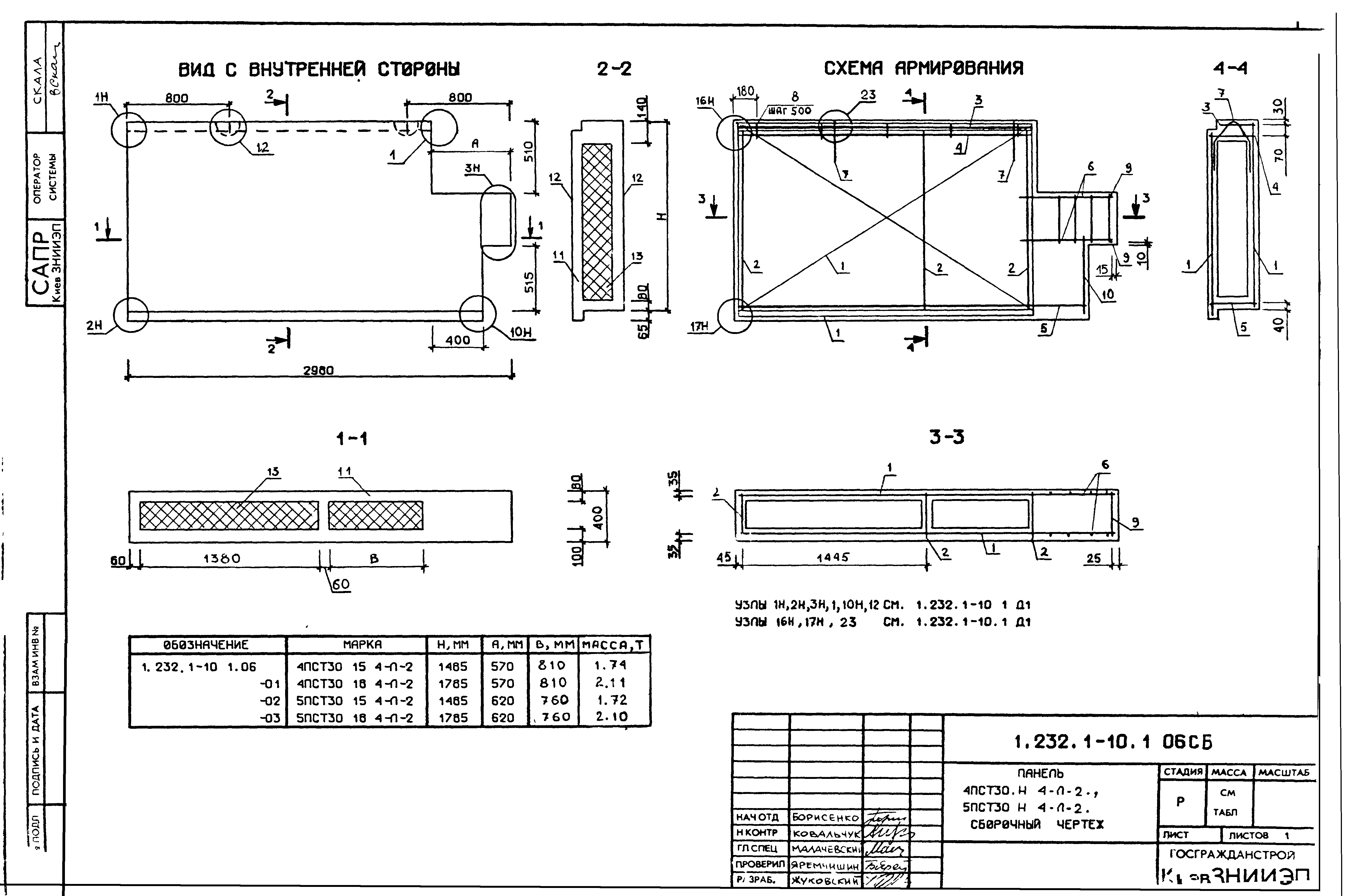
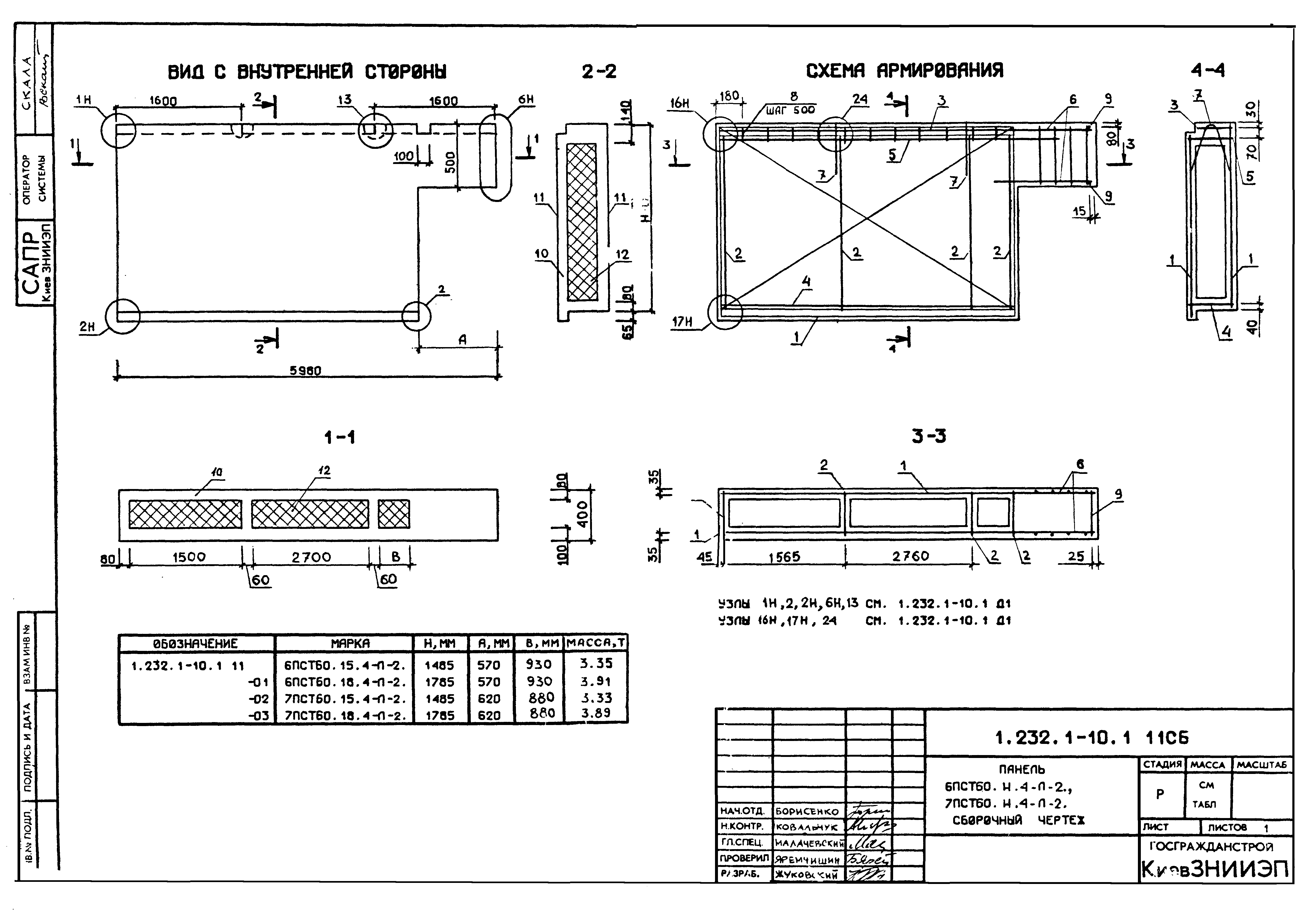
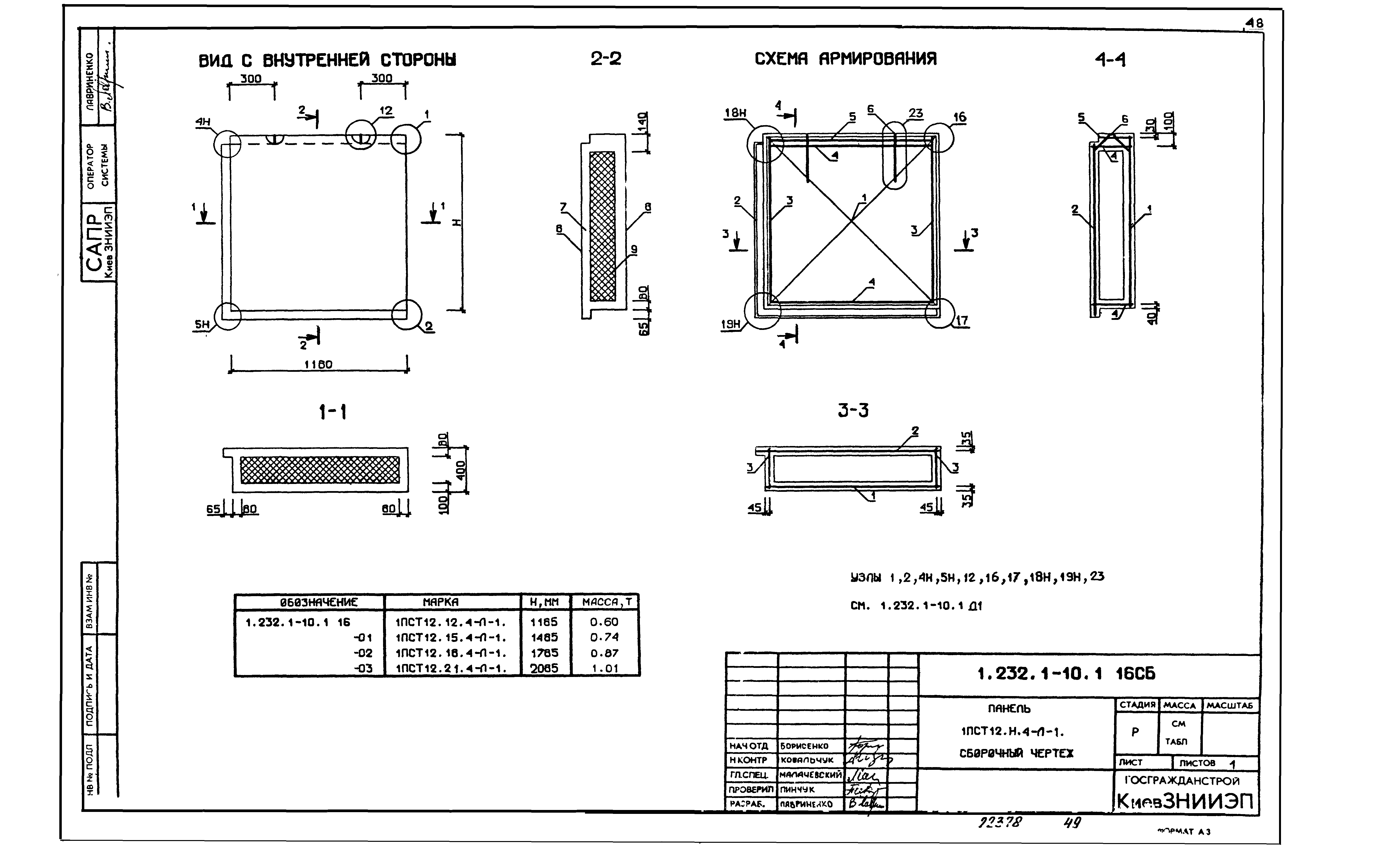
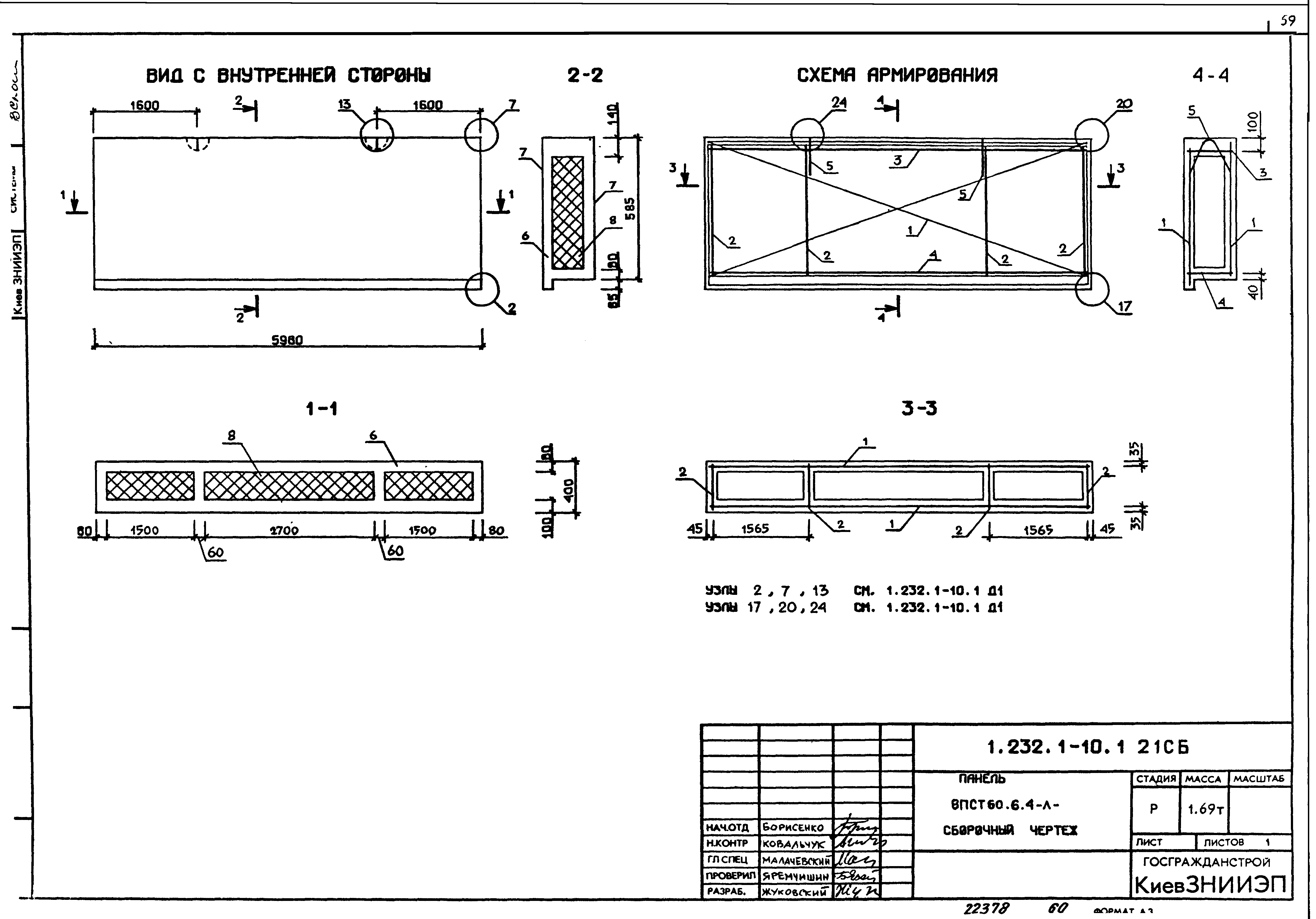
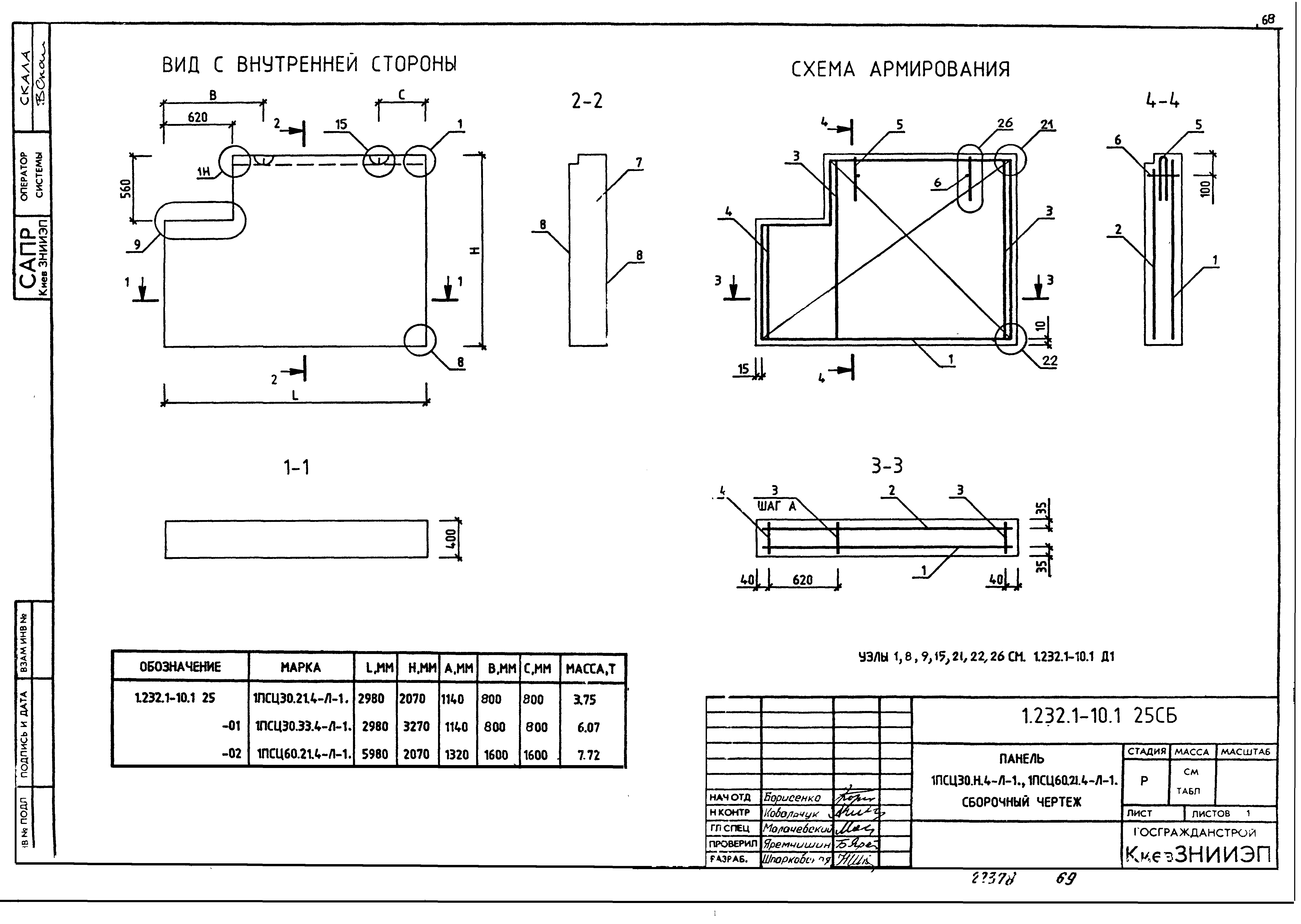
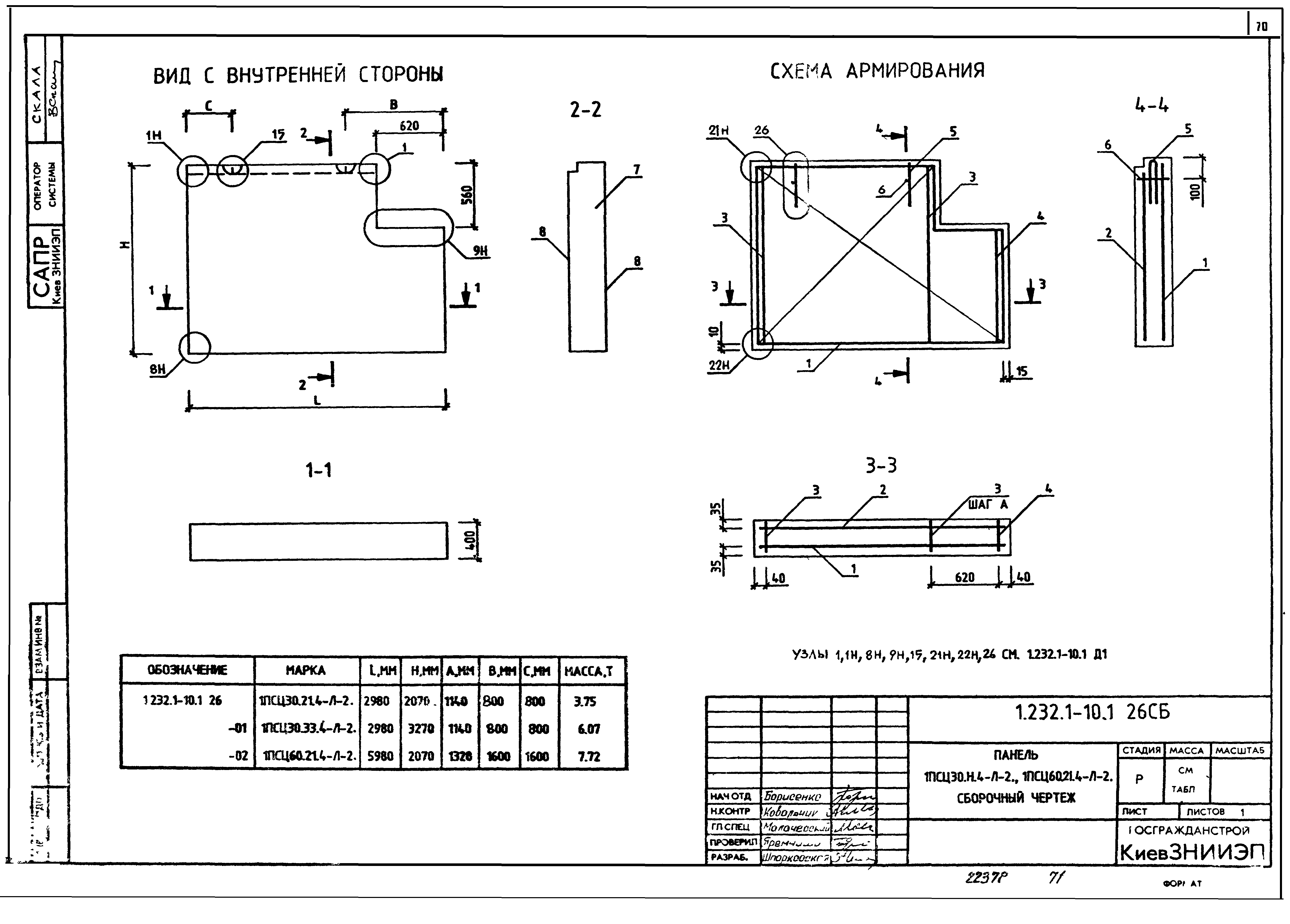
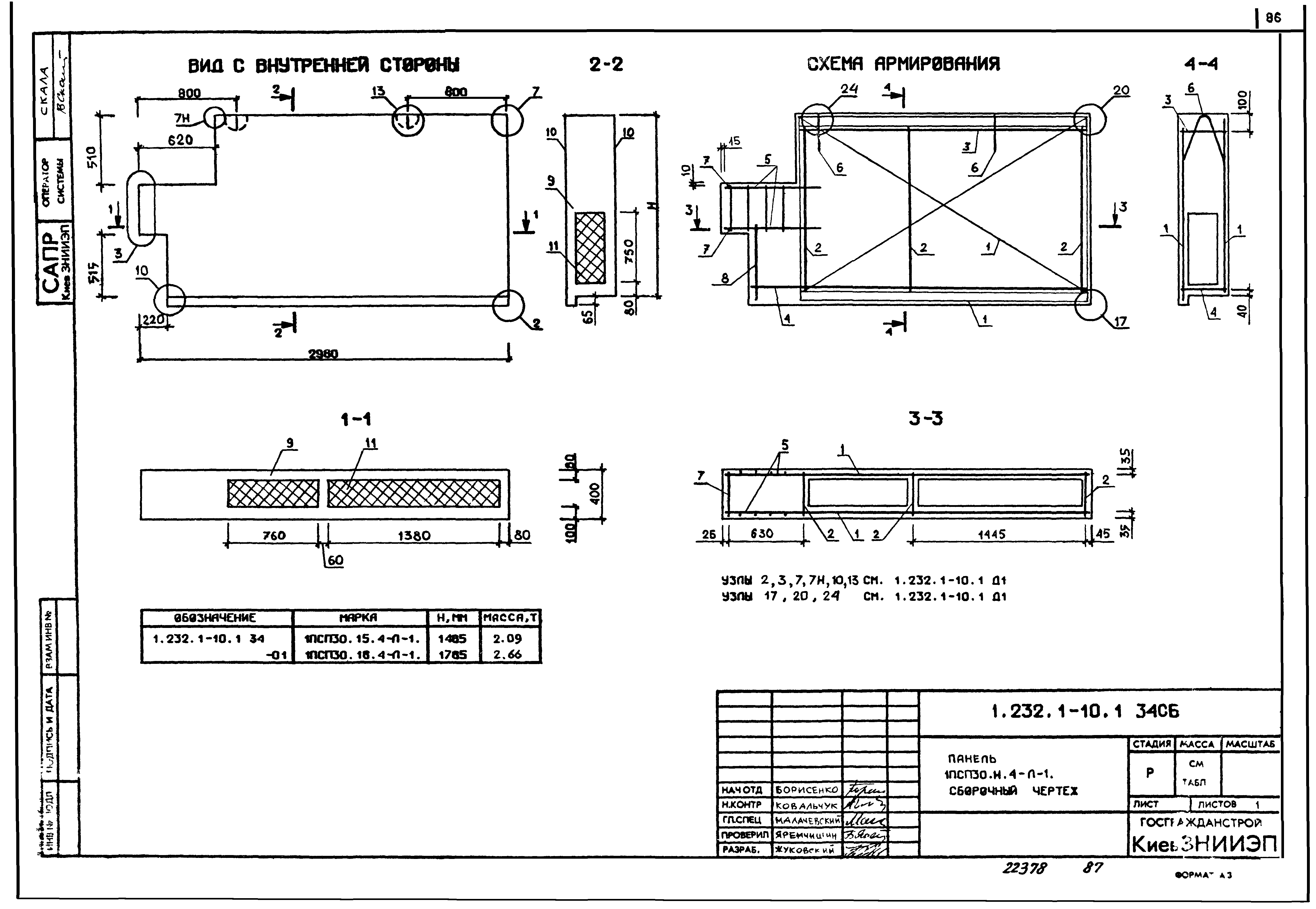
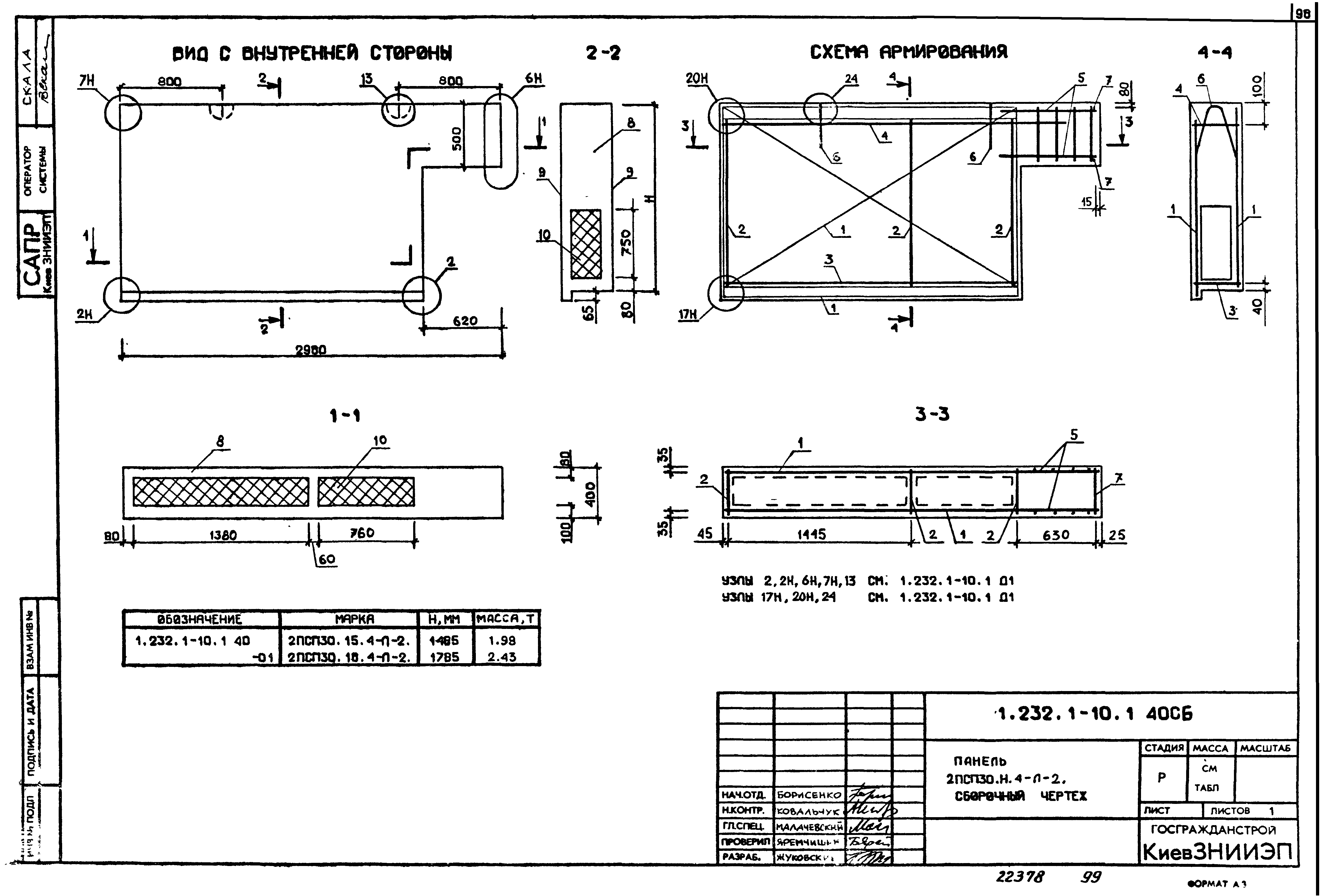
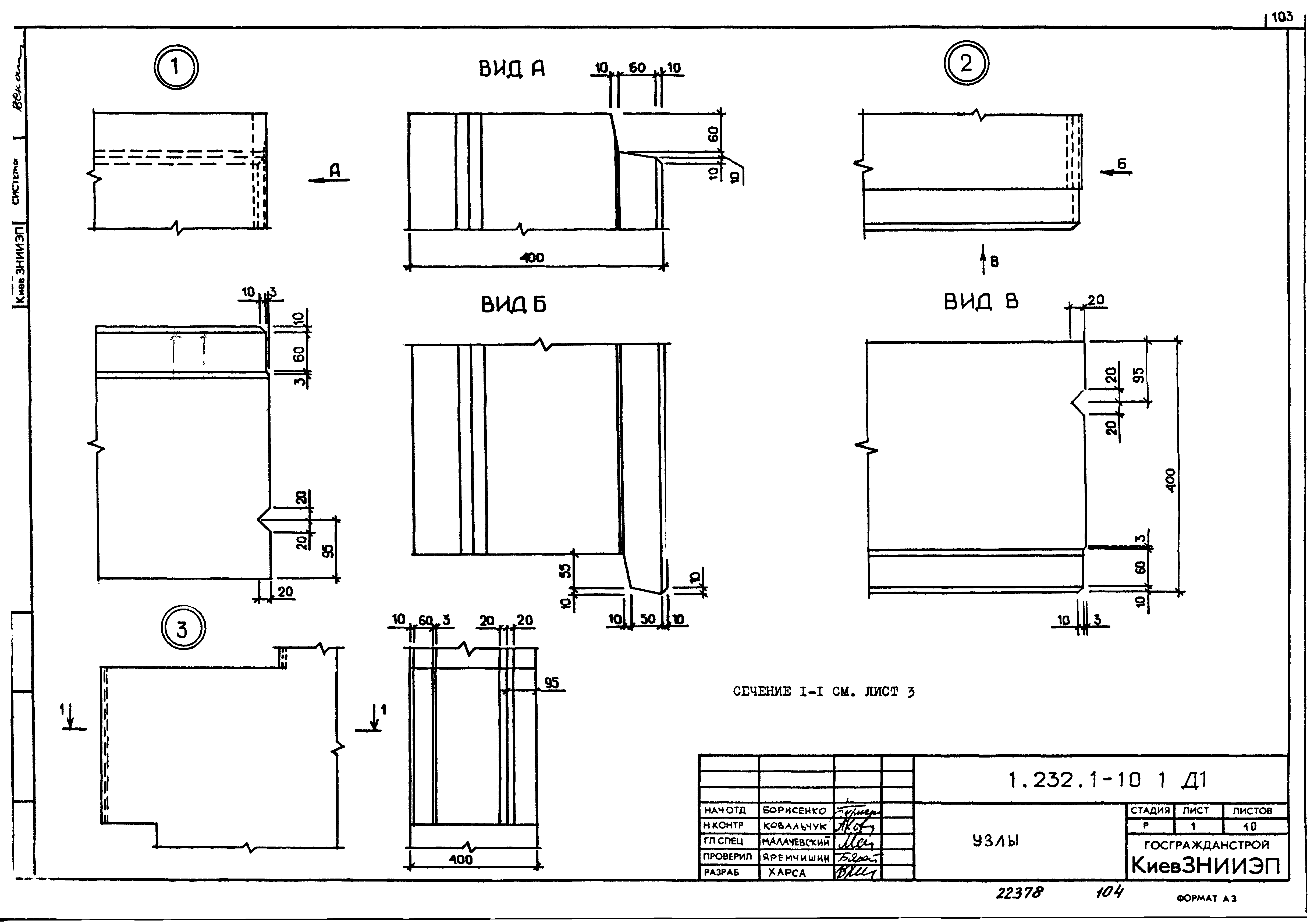
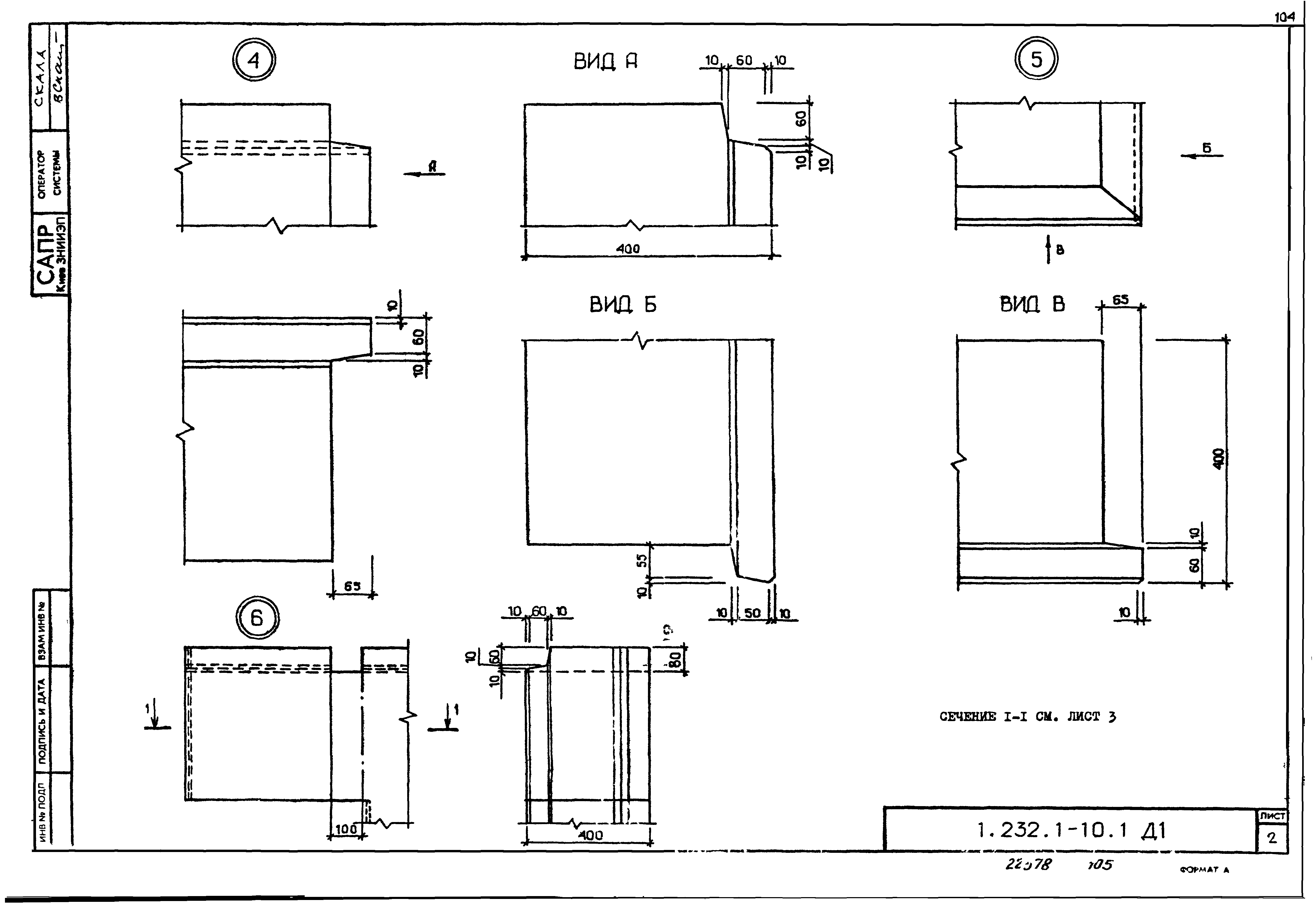
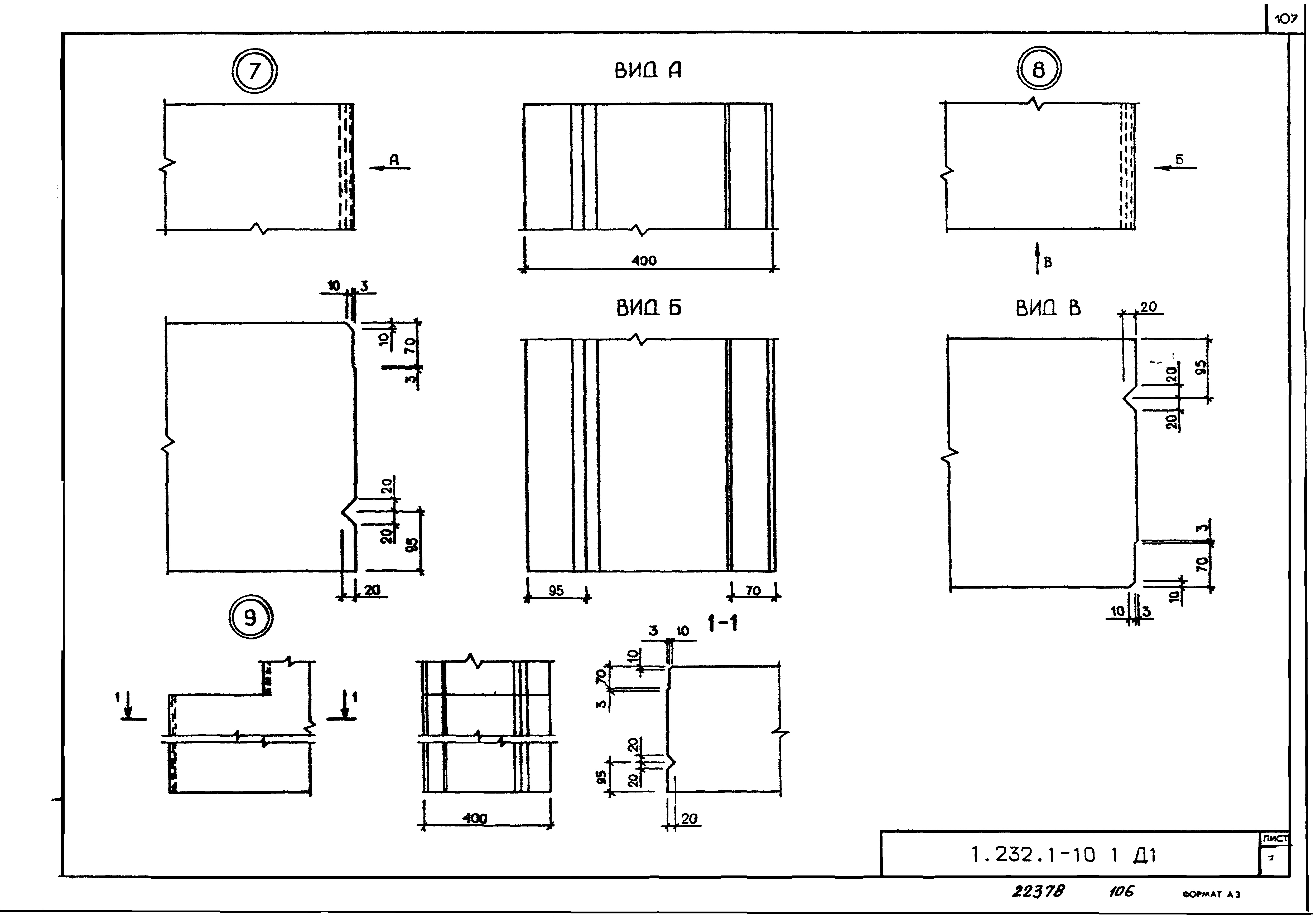
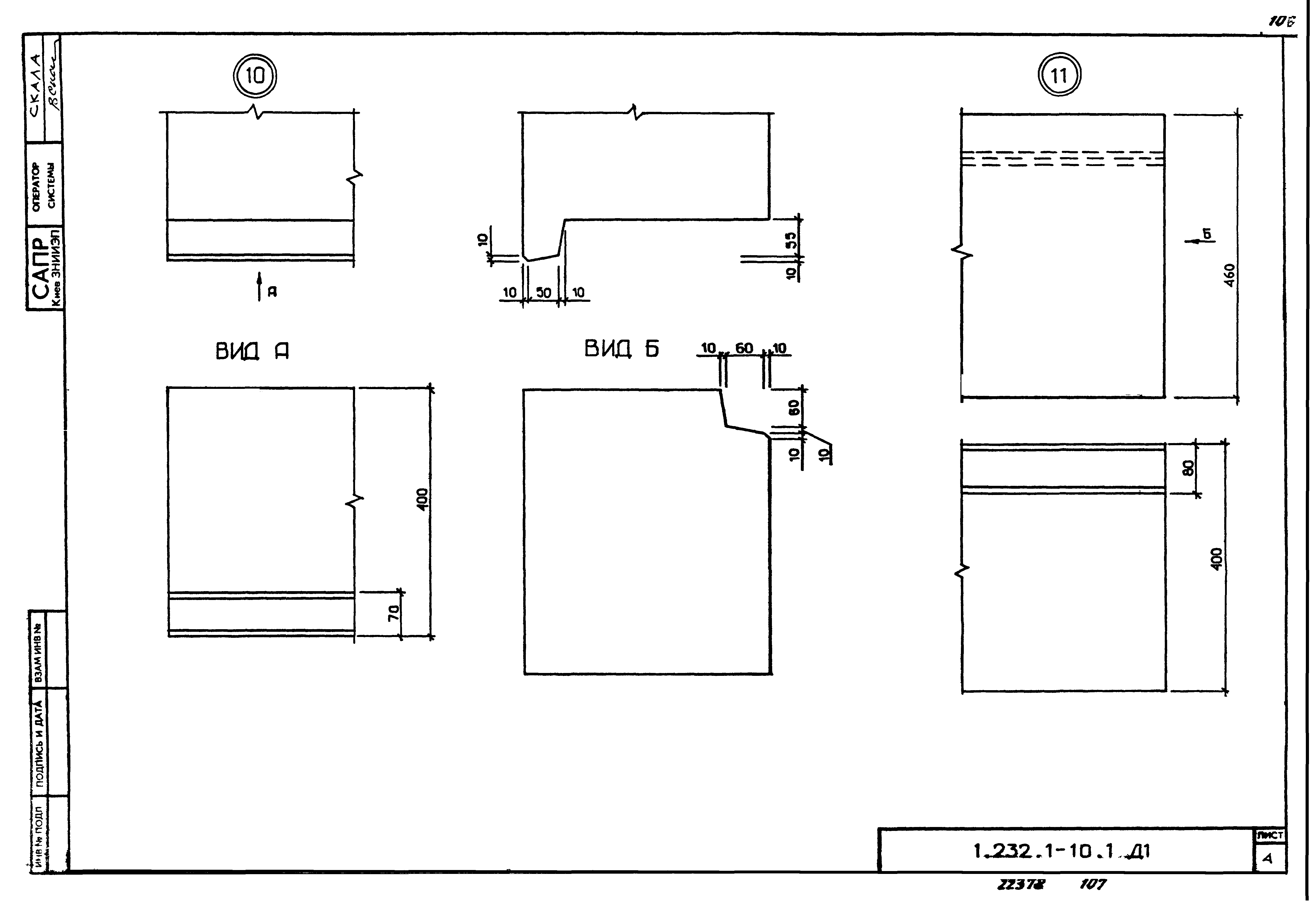
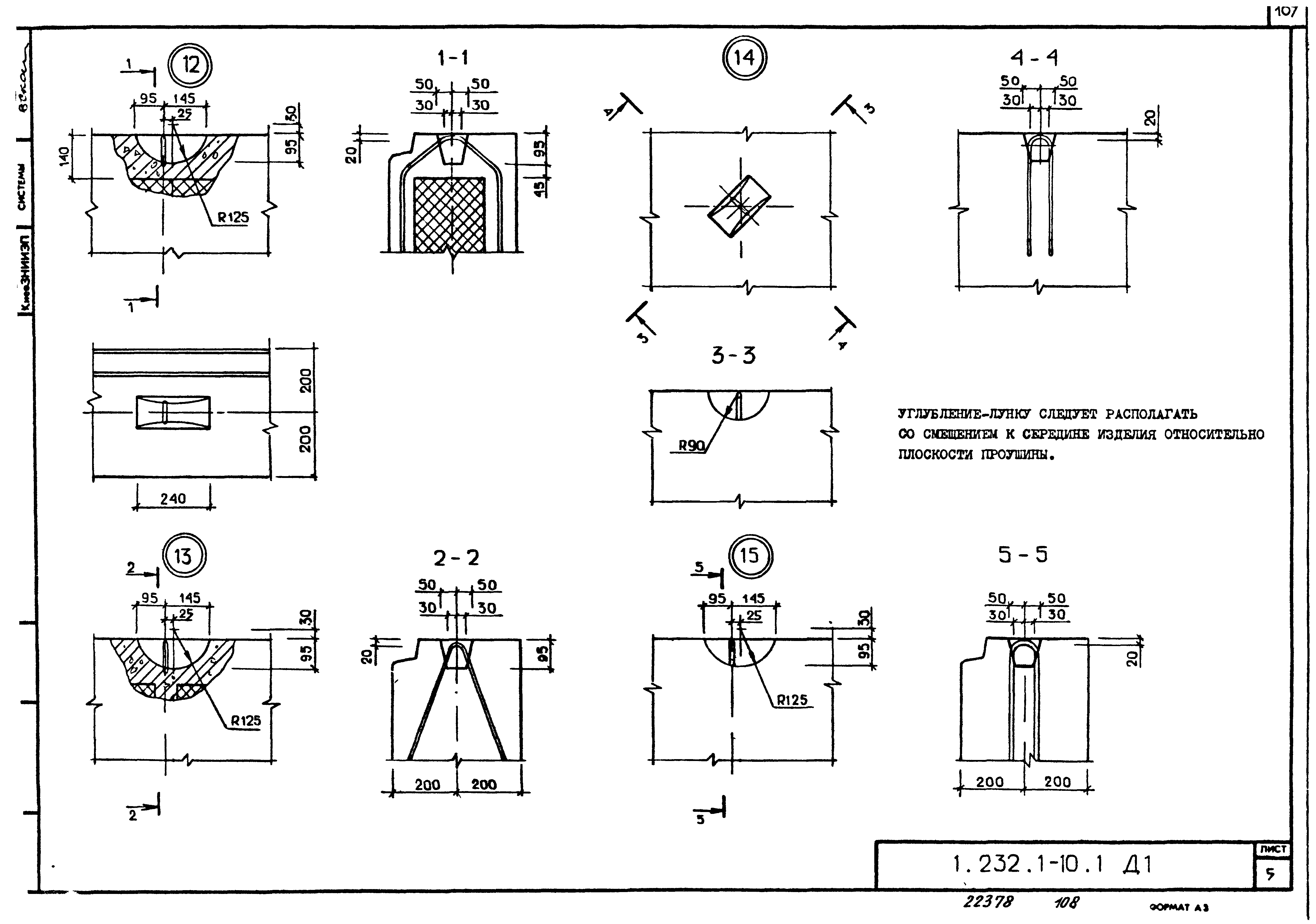
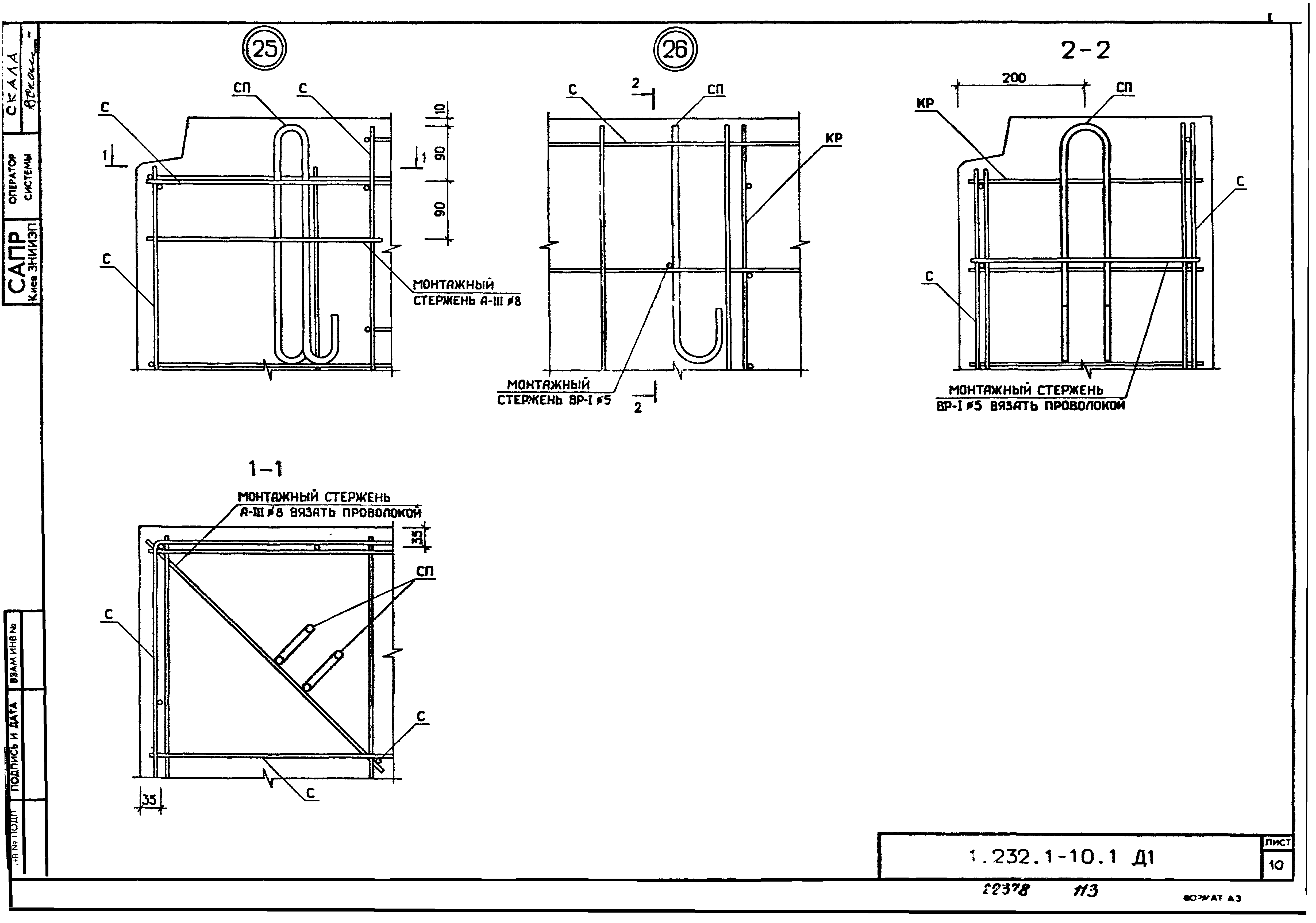
| Оглавление: | 1.232.1-10.1 ТО Техническое описание 1.232.1-10.1 01 Панель ПСТ30.Н.4-Л- 1.232.1-10.1 01 СБ Панель ПСТ30.Н.4-Л-. Сборочный чертеж 1.232.1-10.1 02 Панель ПСТ60.Н.4-Л- 1.232.1-10.1 02 СБ Панель ПСТ60.Н.4-Л-. Сборочный чертеж 1.232.1-10.1 03 Панель ПСТ72.Н.4-Л- 1.232.1-10.1 03 СБ Панель ПСТ72.Н.4-Л-. Сборочный чертеж 1.232.1-10.1 04 Панель 4ПСТ30.Н.4-Л-1., 5ПСТ30.Н.4-Л-1. 1.232.1-10.1 04 СБ Панель 4ПСТ30.Н.4-Л-1., 5ПСТ30.Н.4-Л-1. Сборочный чертеж 1.232.1-10.1 05 Панель 4ПСТ60.Н.4-Л-1., 5ПСТ60.Н.4-Л-1. 1.232.1-10.1 05 СБ Панель 4ПСТ60.Н.4-Л-1., 5ПСТ60.Н.4-Л-1. Сборочный чертеж 1.232.1-10.1 06 Панель 4ПСТ30.Н.4-Л-2., 5ПСТ30.Н.4-Л-2. 1.232.1-10.1 06 СБ Панель 4ПСТ30.Н.4-Л-2., 5ПСТ30.Н.4-Л-2. Сборочный чертеж 1.232.1-10.1 07 Панель 4ПСТ60.Н.4-Л-2., 5ПСТ60.Н.4-Л-2. 1.232.1-10.1 07 СБ Панель 4ПСТ60.Н.4-Л-2., 5ПСТ60.Н.4-Л-2. Сборочный чертеж 1.232.1-10.1 08 Панель 6ПСТ30.Н.4-Л-1., 7ПСТ30.Н.4-Л-1. 1.232.1-10.1 08 СБ Панель 6ПСТ30.Н.4-Л-1., 7ПСТ30.Н.4-Л-1. Сборочный чертеж 1.232.1-10.1 09 Панель 6ПСТ60.Н.4-Л-1., 7ПСТ60.Н.4-Л-1. 1.232.1-10.1 09 СБ Панель 6ПСТ60.Н.4-Л-1., 7ПСТ60.Н.4-Л-1. Сборочный чертеж 1.232.1-10.1 10 Панель 6ПСТ30.Н.4-Л-2., 7ПСТ30.Н.4-Л-2. 1.232.1-10.1 10 СБ Панель 6ПСТ30.Н.4-Л-2., 7ПСТ30.Н.4-Л-2. Сборочный чертеж 1.232.1-10.1 11 Панель 6ПСТ60.Н.4-Л-2., 7ПСТ60.Н.4-Л-2. 1.232.1-10.1 11 СБ Панель 6ПСТ60.Н.4-Л-2., 7ПСТ60.Н.4-Л-2. Сборочный чертеж 1.232.1-10.1 12 Панель 2ПСТ6.Н.4-Л-, 2ПСТ9.Н.4-Л- 1.232.1-10.1 12 СБ Панель 2ПСТ6.Н.4-Л-, 2ПСТ9.Н.4-Л-. Сборочный чертеж 1.232.1-10.1 13 Панель 2ПСТ12.Н.4-Л-, 2ПСТ15.Н.4-Л- 1.232.1-10.1 13 СБ Панель 2ПСТ12.Н.4-Л-, 2ПСТ15.Н.4-Л-. Сборочный чертеж 1.232.1-10.1 14 Панель 2ПСТ24.6.4-Л- 1.232.1-10.1 14 СБ Панель 2ПСТ24.6.4-Л-. Сборочный чертеж 1.232.1-10.1 15 Панель 1ПСТ6.Н.4-Л-1 1.232.1-10.1 15 СБ Панель 1ПСТ6.Н.4-Л-1. Сборочный чертеж 1.232.1-10.1 16 Панель 1ПСТ12.Н.4-Л-1 1.232.1-10.1 16 СБ Панель 1ПСТ12.Н.4-Л-1. Сборочный чертеж 1.232.1-10.1 17 Панель 1ПСТ6.Н.4-Л-2 1.232.1-10.1 17 СБ Панель 1ПСТ6.Н.4-Л-2. Сборочный чертеж 1.232.1-10.1 18 Панель 1ПСТ12.Н.4-Л-2 1.232.1-10.1 18 СБ Панель 1ПСТ12.Н.4-Л-2. Сборочный чертеж 1.232.1-10.1 19 Панель 1ПСТ12.6.4-Л-1, 1ПСТ12.6.4-Л-2 1.232.1-10.1 19 СБ Панель 1ПСТ12.6.4-Л-1, 1ПСТ12.6.4-Л-2. Сборочный чертеж 1.232.1-10.1 20 Панель 8ПСТ30.6.4-Л- 1.232.1-10.1 20 СБ Панель 8ПСТ30.6.4-Л-. Сборочный чертеж 1.232.1-10.1 21 Панель 8ПСТ60.6.4-Л- 1.232.1-10.1 21 СБ Панель 8ПСТ60.6.4-Л-. Сборочный чертеж 1.232.1-10.1 22 Панель 3ПСТ56.Н.40-Л- 1.232.1-10.1 22 СБ Панель 3ПСТ56.Н.40-Л-. Сборочный чертеж 1.232.1-10.1 23 Панель 3ПСТ61.Н.40-Л- 1.232.1-10.1 23 СБ Панель 3ПСТ61.Н.40-Л-. Сборочный чертеж 1.232.1-10.1 24 Панель ПСЦ30.Н.4-Л-, ПСЦ36.Н.4-Л-, ПСЦ60.21.4-Л- 1.232.1-10.1 24 СБ Панель ПСЦ30.Н.4-Л-, ПСЦ36.Н.4-Л-, ПСЦ60.21.4-Л-. Сборочный чертеж 1.232.1-10.1 25 Панель 1ПСЦ30.Н.4-Л-1, 1ПСЦ60.21.4-Л-1 1.232.1-10.1 25 СБ Панель 1ПСЦ30.Н.4-Л-1, 1ПСЦ60.21.4-Л-1. Сборочный чертеж 1.232.1-10.1 26 Панель 1ПСЦ30.Н.4-Л-2, 1ПСЦ60.21.4-Л-2 1.232.1-10.1 26 СБ Панель 1ПСЦ30.Н.4-Л-2, 1ПСЦ60.21.4-Л-2. Сборочный чертеж 1.232.1-10.1 27 Панель 2ПСЦ30.Н.4-Л-1, 2ПСЦ60.21.4-Л-1 1.232.1-10.1 27 СБ Панель 2ПСЦ30.Н.4-Л-1, 2ПСЦ60.21.4-Л-1. Сборочный чертеж 1.232.1-10.1 28 Панель 2ПСЦ30.Н.4-Л-2, 2ПСЦ60.21.4-Л-2 1.232.1-10.1 28 СБ Панель 2ПСЦ30.Н.4-Л-2, 2ПСЦ60.21.4-Л-2. Сборочный чертеж 1.232.1-10.1 29 Панель 3ПСЦ56.Н.40-Л- 1.232.1-10.1 29 СБ Панель 3ПСЦ56.Н.40-Л-. Сборочный чертеж 1.232.1-10.1 30 Панель 3ПСЦ61.Н.40-Л- 1.232.1-10.1 30 СБ Панель 3ПСЦ61.Н.40-Л-. Сборочный чертеж 1.232.1-10.1 31 Панель ПСП30.Н.4-Л- 1.232.1-10.1 31 СБ Панель ПСП30.Н.4-Л-. Сборочный чертеж 1.232.1-10.1 32 Панель ПСП60.Н.4-Л- 1.232.1-10.1 32 СБ Панель ПСП60.Н.4-Л-. Сборочный чертеж 1.232.1-10.1 33 Панель ПСП72.15.4-Л- 1.232.1-10.1 33 СБ Панель ПСП72.15.4-Л-. Сборочный чертеж 1.232.1-10.1 34 Панель 1ПСП30.Н.4-Л-1 1.232.1-10.1 34 СБ Панель 1ПСП30.Н.4-Л-1. Сборочный чертеж 1.232.1-10.1 35 Панель 1ПСП60.Н.4-Л-1 1.232.1-10.1 35 СБ Панель 1ПСП60.Н.4-Л-1. Сборочный чертеж 1.232.1-10.1 36 Панель 1ПСП30.Н.4-Л-2 1.232.1-10.1 36 СБ Панель 1ПСП30.Н.4-Л-2. Сборочный чертеж 1.232.1-10.1 37 Панель 1ПСП60.Н.4-Л-2 1.232.1-10.1 37 СБ Панель 1ПСП60.Н.4-Л-2. Сборочный чертеж 1.232.1-10.1 38 Панель 2ПСП30.Н.4-Л-1 1.232.1-10.1 38 СБ Панель 2ПСП30.Н.4-Л-1. Сборочный чертеж 1.232.1-10.1 39 Панель 2ПСП60.Н.4-Л-1 1.232.1-10.1 39 СБ Панель 2ПСП60.Н.4-Л-1. Сборочный чертеж 1.232.1-10.1 40 Панель 2ПСП30.Н.4-Л-2 1.232.1-10.1 40 СБ Панель 2ПСП30.Н.4-Л-2. Сборочный чертеж 1.232.1-10.1 41 Панель 2ПСП60.Н.4-Л-2 1.232.1-10.1 41 СБ Панель 2ПСП60.Н.4-Л-2. Сборочный чертеж 1.232.1-10.1 42 Балка БЦ30.5.4-Л, БЦ36.5.4-Л, БЦ60.5.4-Л 1.232.1-10.1 42 СБ Балка БЦ30.5.4-Л, БЦ36.5.4-Л, БЦ60.5.4-Л. Сборочный чертеж 1.232.1-10.1 Д1 Узлы 1.232.1-10.1 РС Ведомость расхода стали на элемент |
| Разработан: | ЛенЗНИИЭП Госгражданстроя КиевЗНИИЭП |
| Утверждён: | 17.07.1987 Госгражданстрой (Gosgrazhdanstroy 223) |
| Нормативные ссылки: |
|























































































































