Скачать Серия 1.832.1-10 Выпуск 6. Панели цокольные, изготовляемые на заводах, имеющих кантователи. Арматурные и закладные изделия. Рабочие чертежиДата актуализации: 01.01.2021
|
| Обозначение: | Серия 1.832.1-10 |
| Обозначение англ: | Series 1.832.1-10 |
| Статус: | действует |
| Название рус.: | Выпуск 6. Панели цокольные, изготовляемые на заводах, имеющих кантователи. Арматурные и закладные изделия. Рабочие чертежи |
| Дата добавления в базу: | 01.09.2013 |
| Дата актуализации: | 01.01.2021 |
| Дата введения: | 01.01.1986 |
| Область применения: | Выпуск содержит рабочие чертежи арматурных и закладных изделий цокольных панелей повышенной заводской готовности |
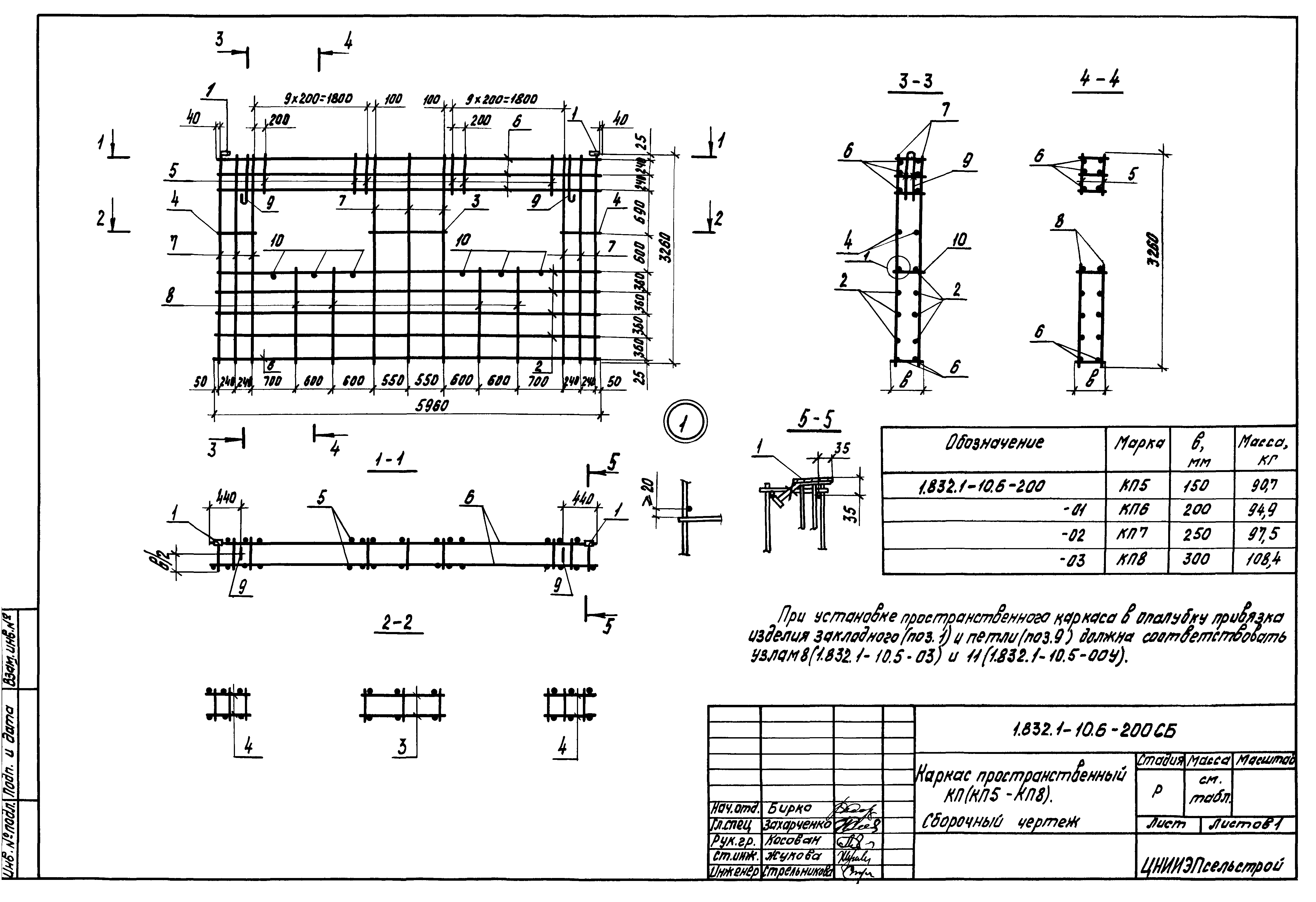
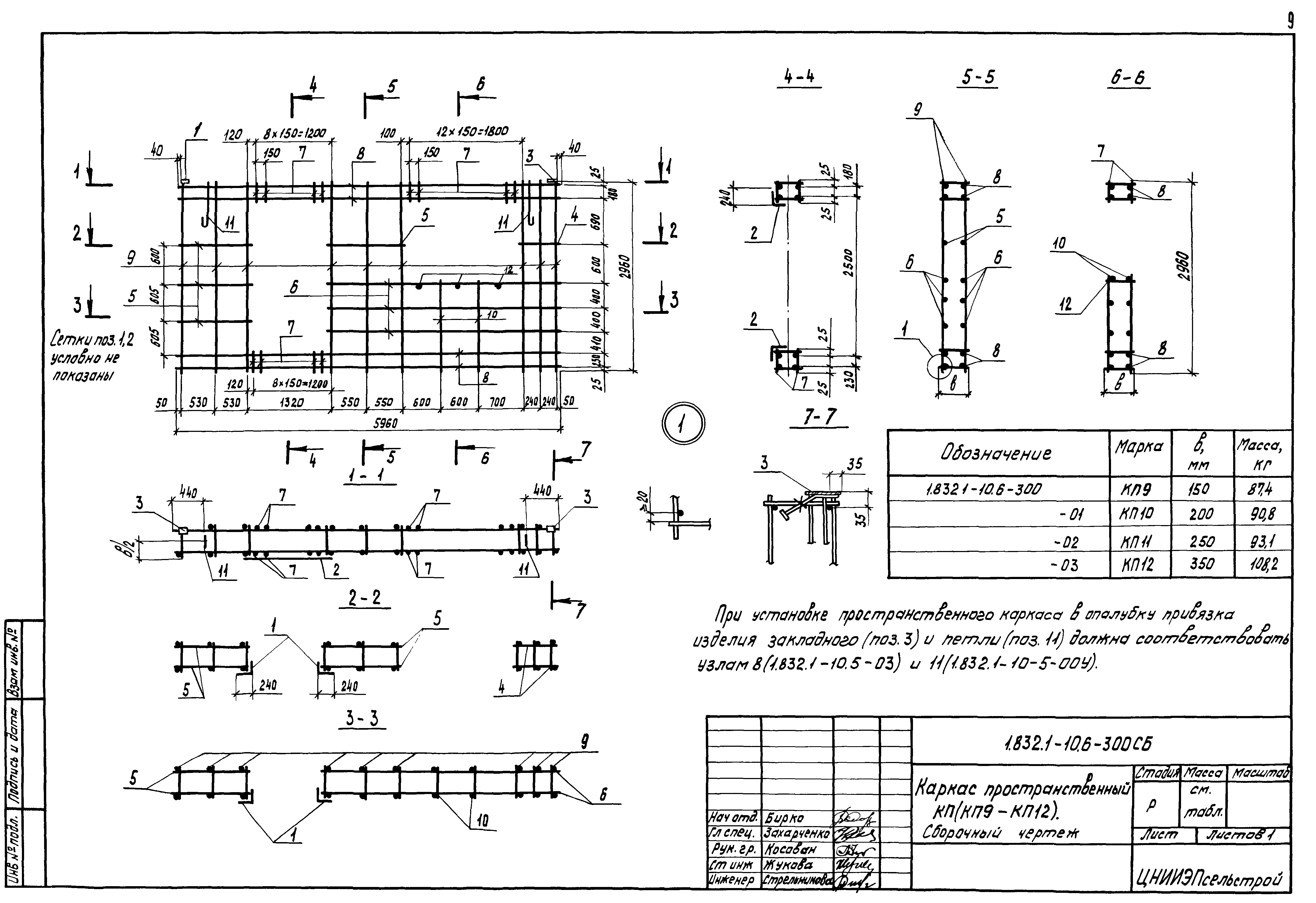
| Оглавление: | 1.832.1-10.6-000 ТО Техническое описание 1.832.1-10.6-100 Каркас пространственный КП (КП1-КП4) 1.832.1-10.6-100 СБ Каркас пространственный КП (КП1-КП4). Сборочный чертеж 1.832.1-10.6-200 Каркас пространственный КП (КП5-КП8) 1.832.1-10.6-200 СБ Каркас пространственный КП (КП5-КП8). Сборочный чертеж 1.832.1-10.6-300 Каркас пространственный КП (КП9-КП12) 1.832.1-10.6-300 СБ Каркас пространственный КП (КП9-КП12). Сборочный чертеж 1.832.1-10.6-400 Каркас пространственный КП (КП13-КП16) 1.832.1-10.6-400 СБ Каркас пространственный КП (КП13-КП16). Сборочный чертеж 1.832.1-10.6-010 Каркас плоский КР (КР1-КР4) 1.832.1-10.6-010 СБ Каркас пространственный КР (КР1-КР4). Сборочный чертеж 1.832.1-10.6-020 Каркас плоский КР (КР5-КР8) 1.832.1-10.6-020 СБ Каркас пространственный КР (КР5-КР8). Сборочный чертеж 1.832.1-10.6-030 Каркас плоский КР (КР9-КР12) 1.832.1-10.6-030 СБ Каркас пространственный КР (КР9-КР12). Сборочный чертеж 1.832.1-10.6-040 Каркас плоский КР (КР13-КР16) 1.832.1-10.6-040 СБ Каркас пространственный КР (КР13-КР16). Сборочный чертеж 1.832.1-10.6-050 Сетка С (С1, С2) 1.832.1-10.6-060 Изделие закладное Мн1 1.832.1-10.6-070 Петля П (П1-П5) 1.832.1-10.6-070 СБ Петля П (П1-П5). Сборочный чертеж 1.832.1-10.6-080 Изделие закладное Мн2 1.832.1-10.6-090 Слив СЛ (СЛ1-СЛ5) 1.832.1-10.6-001 Стержень арматурный |
| Разработан: | НИИЖБ Госстроя СССР ЦНИИЭПсельстрой Минсельстроя СССР |
| Утверждён: | 27.09.1985 Госстрой СССР (Государственный комитет Совета Министров СССР по делам строительства) (USSR Gosstroy АЧ-37) |
| Издан: | ЦИТП Госстроя СССР (CITP, Gosstroy (USSR) 1985 г. ) |
| Нормативные ссылки: |
|




















