Скачать Серия 1.432.2-30.93 Выпуск 1. Стеновые панели. Рабочие чертежи

Дата актуализации: 01.01.2021

Серия 1.432.2-30.93

Выпуск 1. Стеновые панели. Рабочие чертежи

Обозначение: Серия 1.432.2-30.93
Обозначение англ: Series 1.432.2-30.93
Статус:не определен законодательством
Название рус.:Выпуск 1. Стеновые панели. Рабочие чертежи
Дата добавления в базу:01.09.2013
Дата актуализации:01.01.2021
Дата введения:01.09.1993
Дата окончания срока действия:30.06.2003
Область применения:В состав выпуска 1 данной работы входят рабочие чертежи стеновых металлических каркасных панелей поэлементной сборки, а также крепежные и погонажные изделия (сливы, нащельники)
Оглавление:1.432.2-30.93.1-ТО Техническое описание
1.432.2-30.93.1-1 Панель стеновая рядовая
1.432.2-30.93.1-2 Панель стеновая парапетная
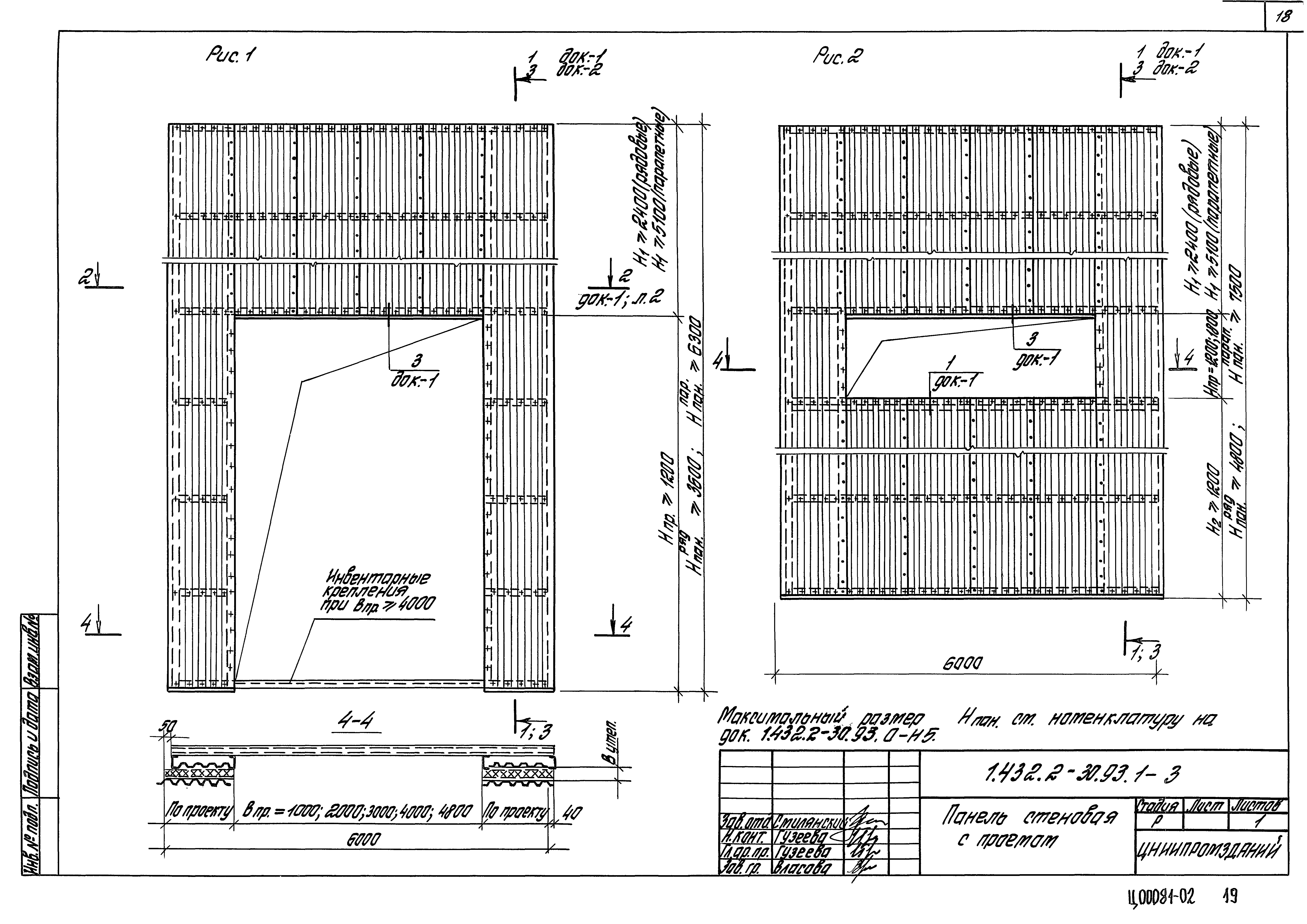
1.432.2-30.93.1-3 Панель стеновая с проемом
1.432.2-30.93.1-4 Панель стеновая надворотная
1.432.2-30.93.1-5 Каркас панели КР1… КР20
1.432.2-30.93.1-6 Каркас панели КР21… КР46
1.432.2-30.93.1-7 Каркас панели КР47… КР66
1.432.2-30.93.1-8 Узел I… VI
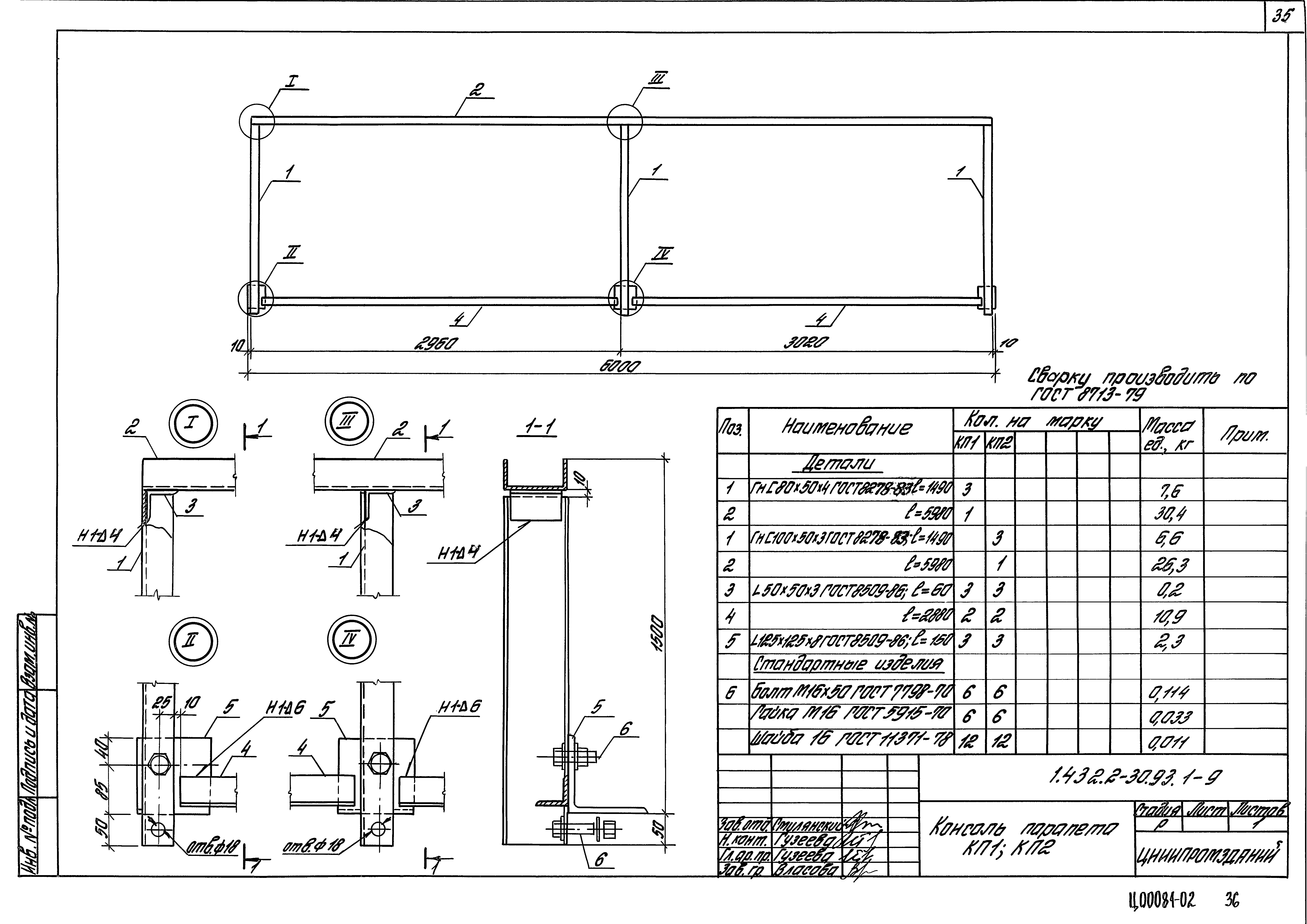
1.432.2-30.93.1-9 Консоль парапета КП1; КП2
1.432.2-30.93.1-10 Нащельник МС1; МС2; МС3; МС5; МС6; МС7. Слив С1; МС4
1.432.2-30.93.1-11 Слив МС8; МС10; МС11; МС13. Нащельник МС9; МС12; МС14
1.432.2-30.93.1-12 Упор У1. Костыль К1. Консоль К2; К3; К4; К5
1.432.2-30.93.1-13 Консоль К6; К7; К10. Опора ОП1; ОП2; ОП3. Элемент крепления У2; У3
Разработан: ЦНИИпромзданий
Утверждён:30.12.1992 Минстрой России (Russian Federation Minstroy 9-1/419)
Нормативные ссылки:
Серия 1.432.2-30.93Серия 1.432.2-30.93Серия 1.432.2-30.93Серия 1.432.2-30.93Серия 1.432.2-30.93Серия 1.432.2-30.93Серия 1.432.2-30.93Серия 1.432.2-30.93Серия 1.432.2-30.93Серия 1.432.2-30.93Серия 1.432.2-30.93Серия 1.432.2-30.93Серия 1.432.2-30.93Серия 1.432.2-30.93Серия 1.432.2-30.93Серия 1.432.2-30.93Серия 1.432.2-30.93Серия 1.432.2-30.93Серия 1.432.2-30.93Серия 1.432.2-30.93Серия 1.432.2-30.93Серия 1.432.2-30.93Серия 1.432.2-30.93Серия 1.432.2-30.93Серия 1.432.2-30.93Серия 1.432.2-30.93Серия 1.432.2-30.93Серия 1.432.2-30.93Серия 1.432.2-30.93Серия 1.432.2-30.93Серия 1.432.2-30.93Серия 1.432.2-30.93Серия 1.432.2-30.93Серия 1.432.2-30.93Серия 1.432.2-30.93Серия 1.432.2-30.93Серия 1.432.2-30.93Серия 1.432.2-30.93Серия 1.432.2-30.93Серия 1.432.2-30.93