Скачать Серия 1.432.2-32.93 Выпуск 1. Стеновые панели. Рабочие чертежи

Дата актуализации: 01.01.2021

Серия 1.432.2-32.93

Выпуск 1. Стеновые панели. Рабочие чертежи

Обозначение: Серия 1.432.2-32.93
Обозначение англ: Series 1.432.2-32.93
Статус:не определен законодательством
Название рус.:Выпуск 1. Стеновые панели. Рабочие чертежи
Дата добавления в базу:01.09.2013
Дата актуализации:01.01.2021
Дата введения:01.03.1994
Дата окончания срока действия:30.06.2003
Область применения:В состав выпуска 1 данной работы входят рабочие чертежи стеновых металлических каркасных панелей укрупнительной сборки с внутренней неметаллической обшивкой, а также крепежные и погонажные изделия (сливы, нащельники)
Оглавление:1.432.2-32.93.1-ТО Техническое описание
1.432.2-32.93.1-1 Панель стеновая рядовая
1.432.2-32.93.1-2 Панель стеновая парапетная
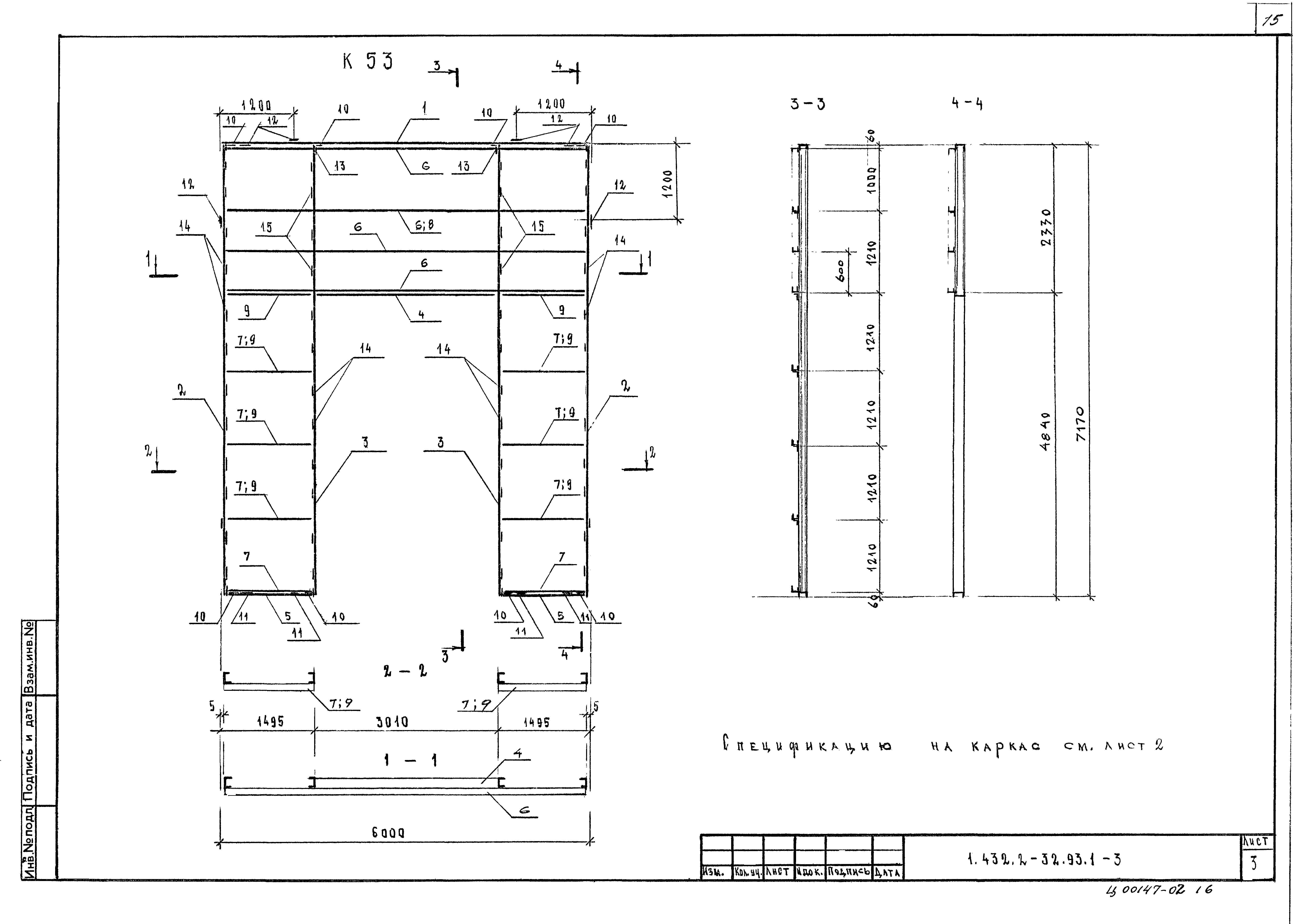
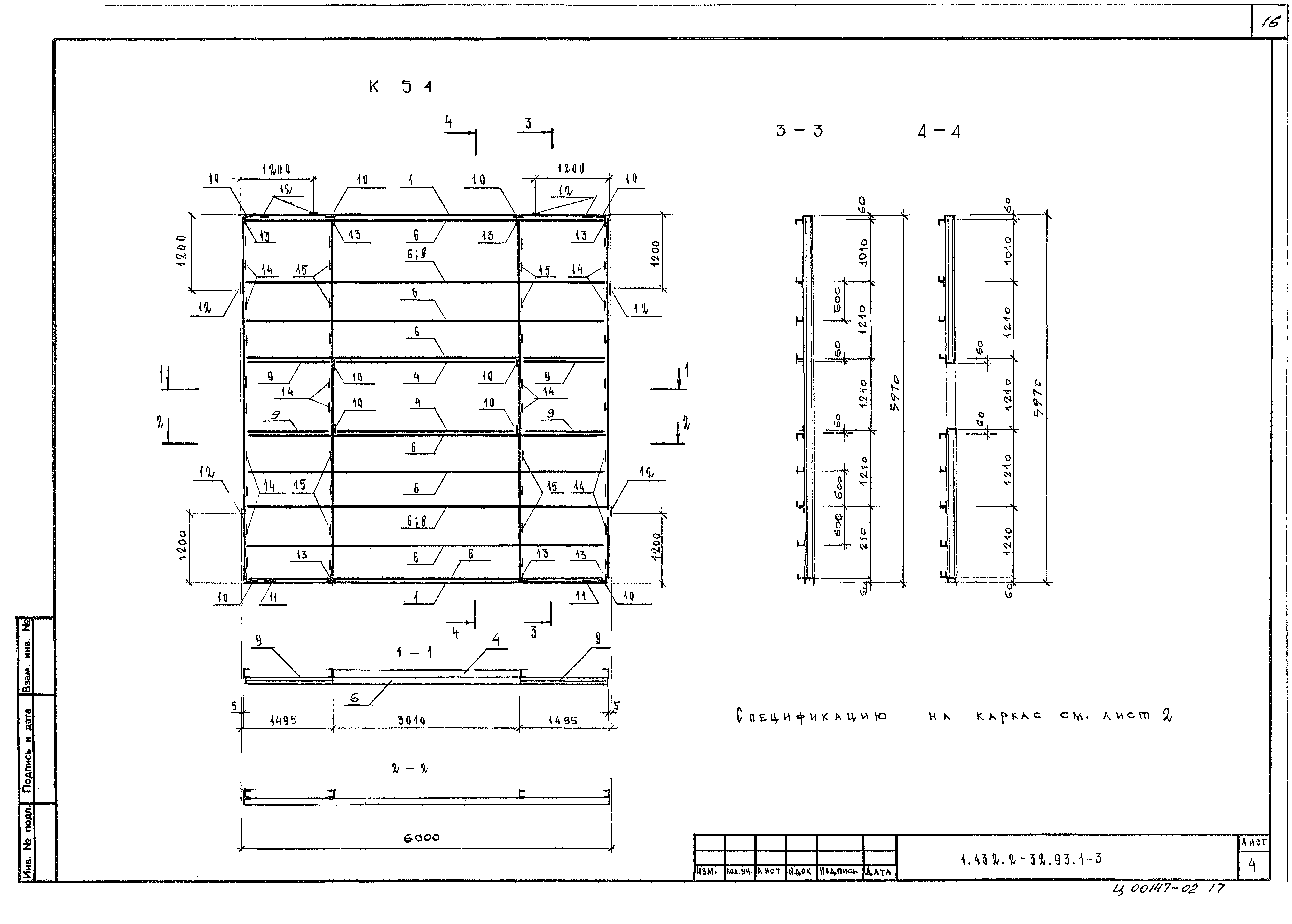
1.432.2-32.93.1-3 Панель стеновая с проемом. Пример 1; 2
1.432.2-32.93.1-4 Панель стеновая надворотная
1.432.2-32.93.1-5 Каркас панели КР1… КР30
1.432.2-32.93.1-6 Каркас панели КР31… КР52
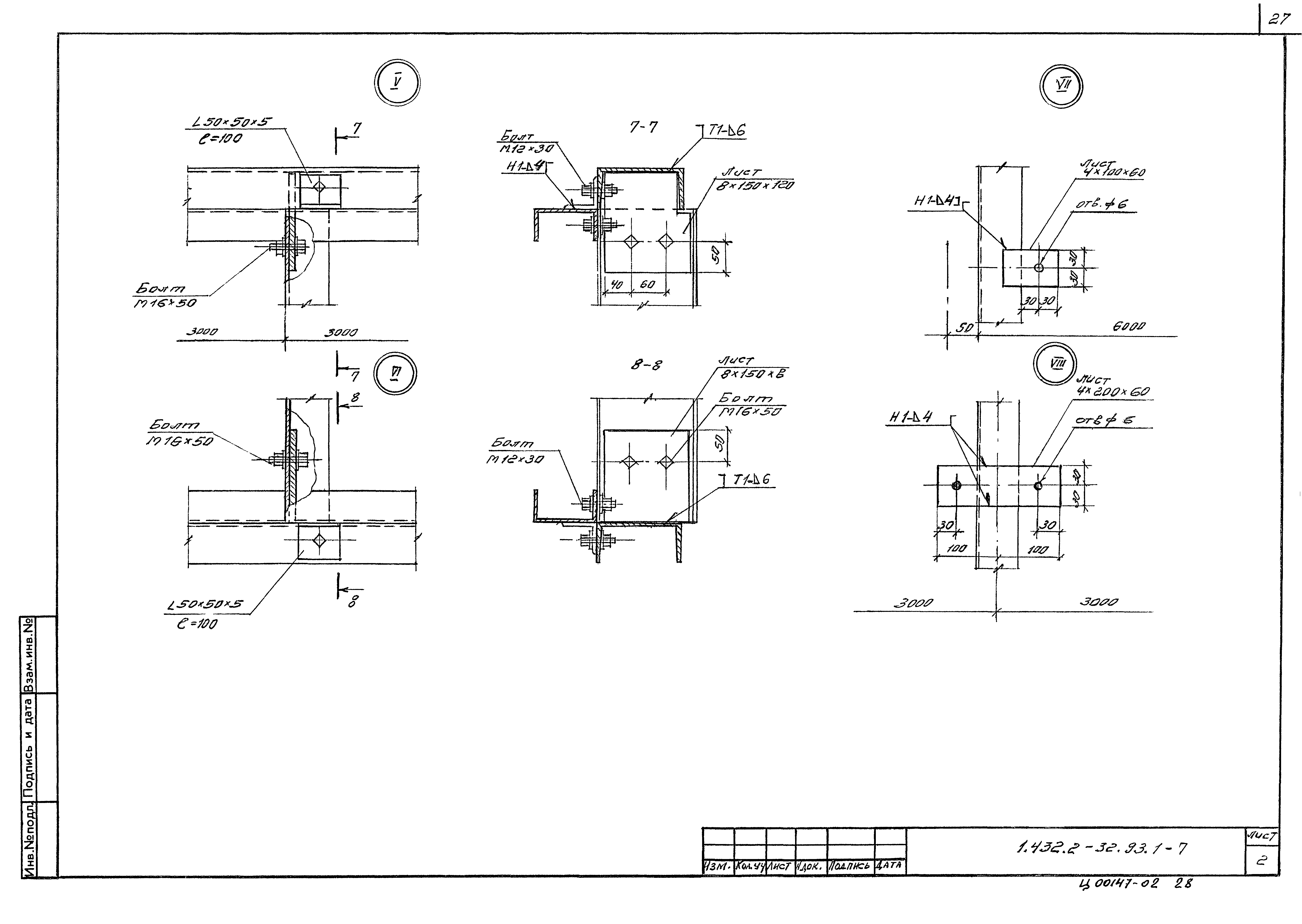
1.432.2-32.93.1-7 Узел I… VIII
1.432.2-32.93.1-8 Консоль парапета КП1; КП2
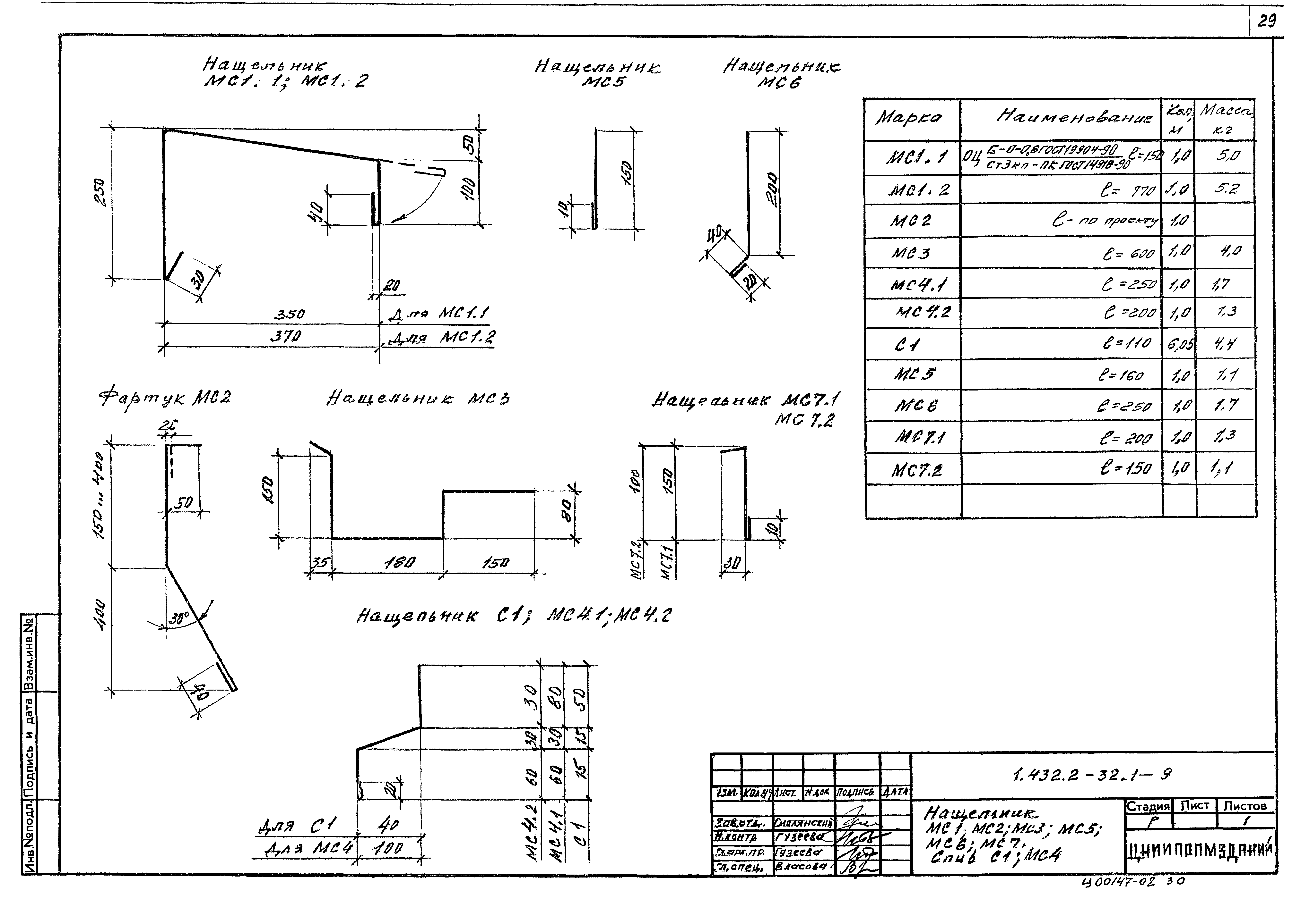
1.432.2-32.93.1-9 Нащельник МС1; МС2; МС3; МС5; МС6; МС7. Слив С1; МС4
1.432.2-32.93.1-10 Слив МС8; МС10; МС11; МС13. Нащельник МС9; МС12; МС14; МС15
1.432.2-32.93.1-11 Упор У1. Костыль К1. Консоль К2; К3; К4; К5
1.432.2-32.93.1-12 Консоль К6; К7; К10. Опора ОП1; ОП2; ОП3. Элемент крепления У2; У3
Разработан: ЦНИИпромзданий
Утверждён:16.11.1993 Госстрой России (Russian Federation Gosstroy 9-3-2/240)
Нормативные ссылки:
Серия 1.432.2-32.93Серия 1.432.2-32.93Серия 1.432.2-32.93Серия 1.432.2-32.93Серия 1.432.2-32.93Серия 1.432.2-32.93Серия 1.432.2-32.93Серия 1.432.2-32.93Серия 1.432.2-32.93Серия 1.432.2-32.93Серия 1.432.2-32.93Серия 1.432.2-32.93Серия 1.432.2-32.93Серия 1.432.2-32.93Серия 1.432.2-32.93Серия 1.432.2-32.93Серия 1.432.2-32.93Серия 1.432.2-32.93Серия 1.432.2-32.93Серия 1.432.2-32.93Серия 1.432.2-32.93Серия 1.432.2-32.93Серия 1.432.2-32.93Серия 1.432.2-32.93Серия 1.432.2-32.93Серия 1.432.2-32.93Серия 1.432.2-32.93Серия 1.432.2-32.93Серия 1.432.2-32.93Серия 1.432.2-32.93Серия 1.432.2-32.93Серия 1.432.2-32.93Серия 1.432.2-32.93