Скачать Серия 1.832.5-11 Выпуск 6-1. Панели с обшивками из асбестоцементных листов для торцов зданий. Рабочие чертежиДата актуализации: 01.01.2021
|
| Обозначение: | Серия 1.832.5-11 |
| Обозначение англ: | Series 1.832.5-11 |
| Статус: | не определен законодательством |
| Название рус.: | Выпуск 6-1. Панели с обшивками из асбестоцементных листов для торцов зданий. Рабочие чертежи |
| Дата добавления в базу: | 01.09.2013 |
| Дата актуализации: | 01.01.2021 |
| Дата введения: | 15.11.1988 |
| Дата окончания срока действия: | 30.06.2003 |
| Область применения: | В выпуске приведены панели, предназначенные для торцевых стен сельскохозяйственных производственных зданий |
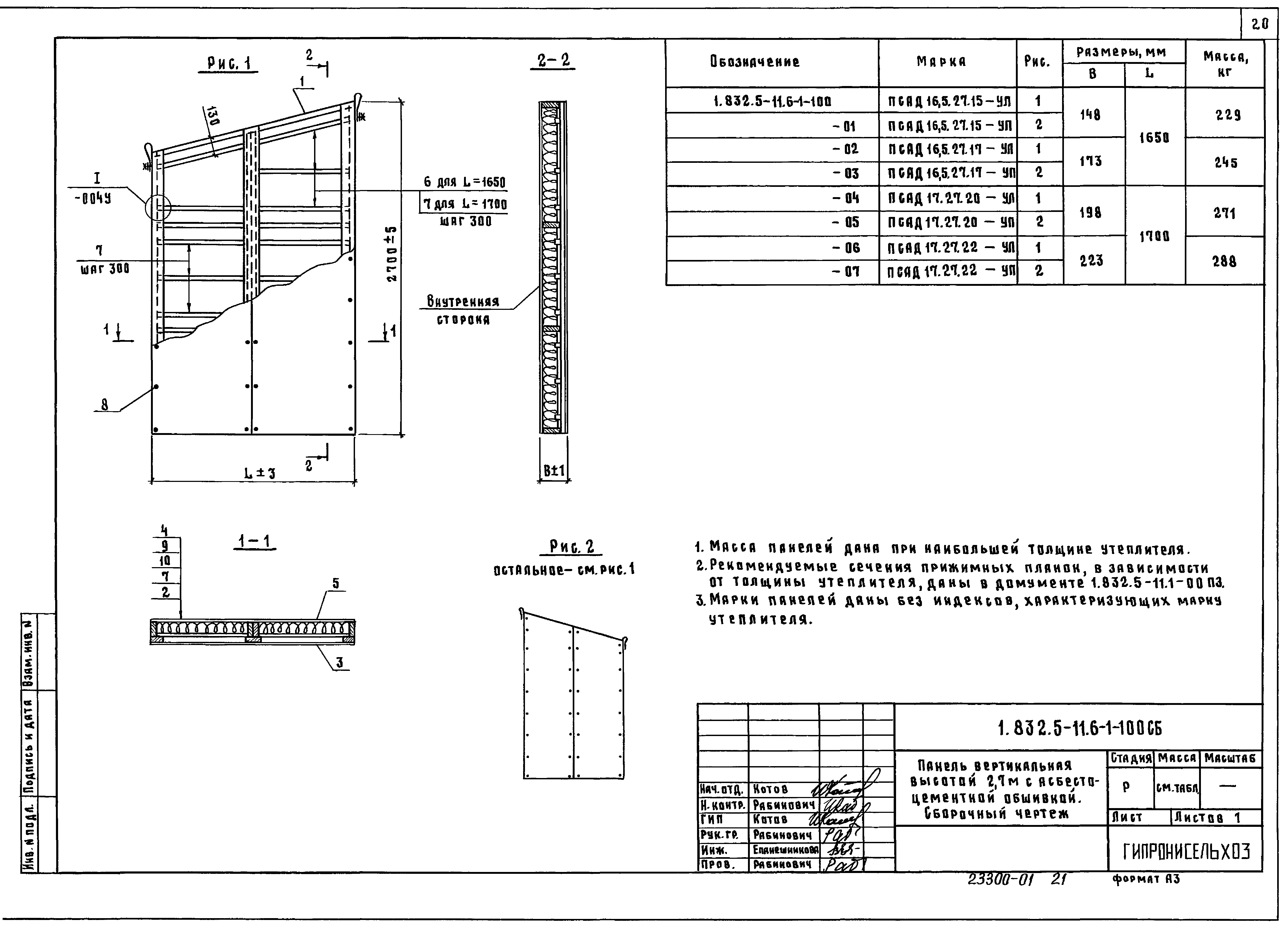
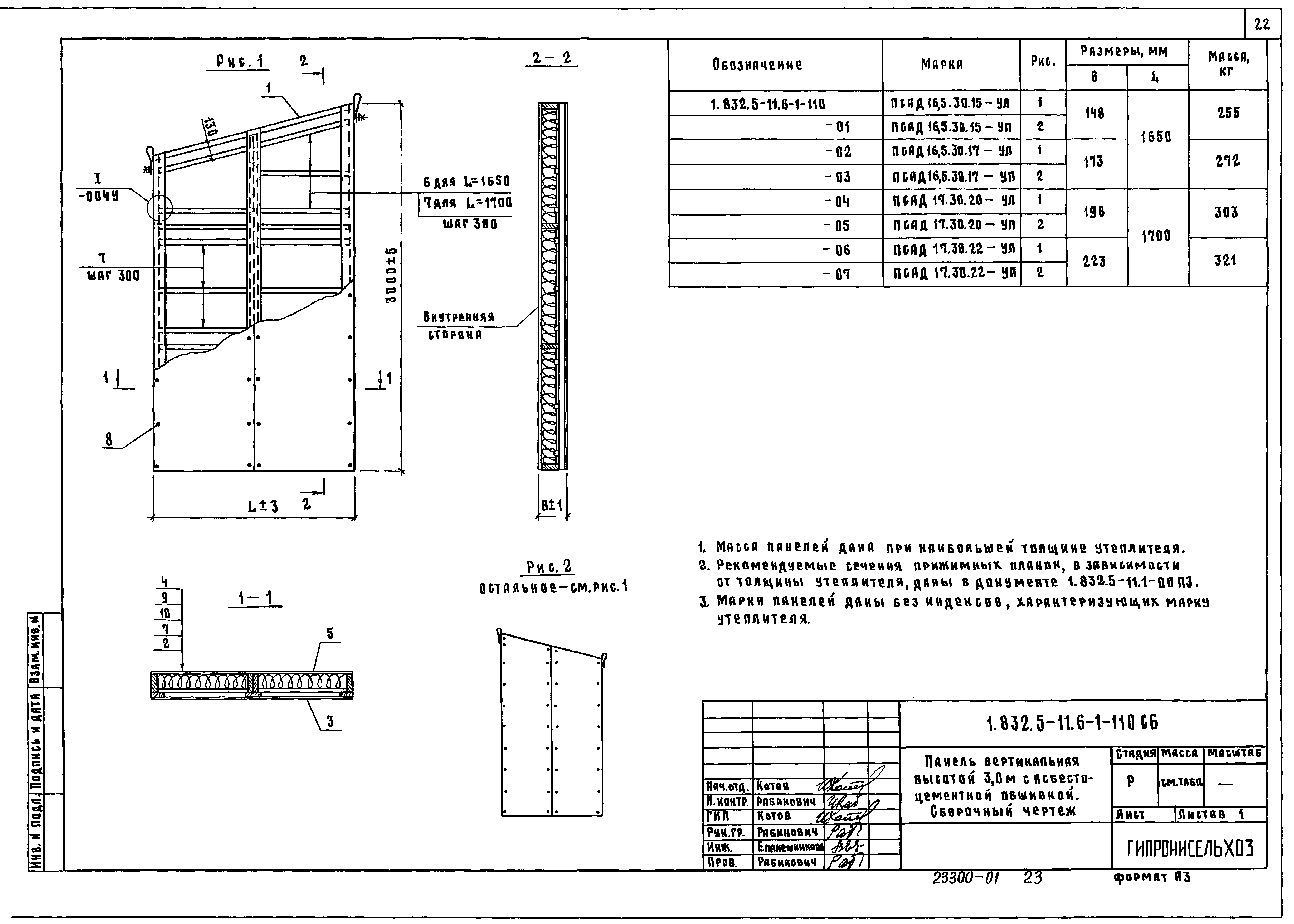
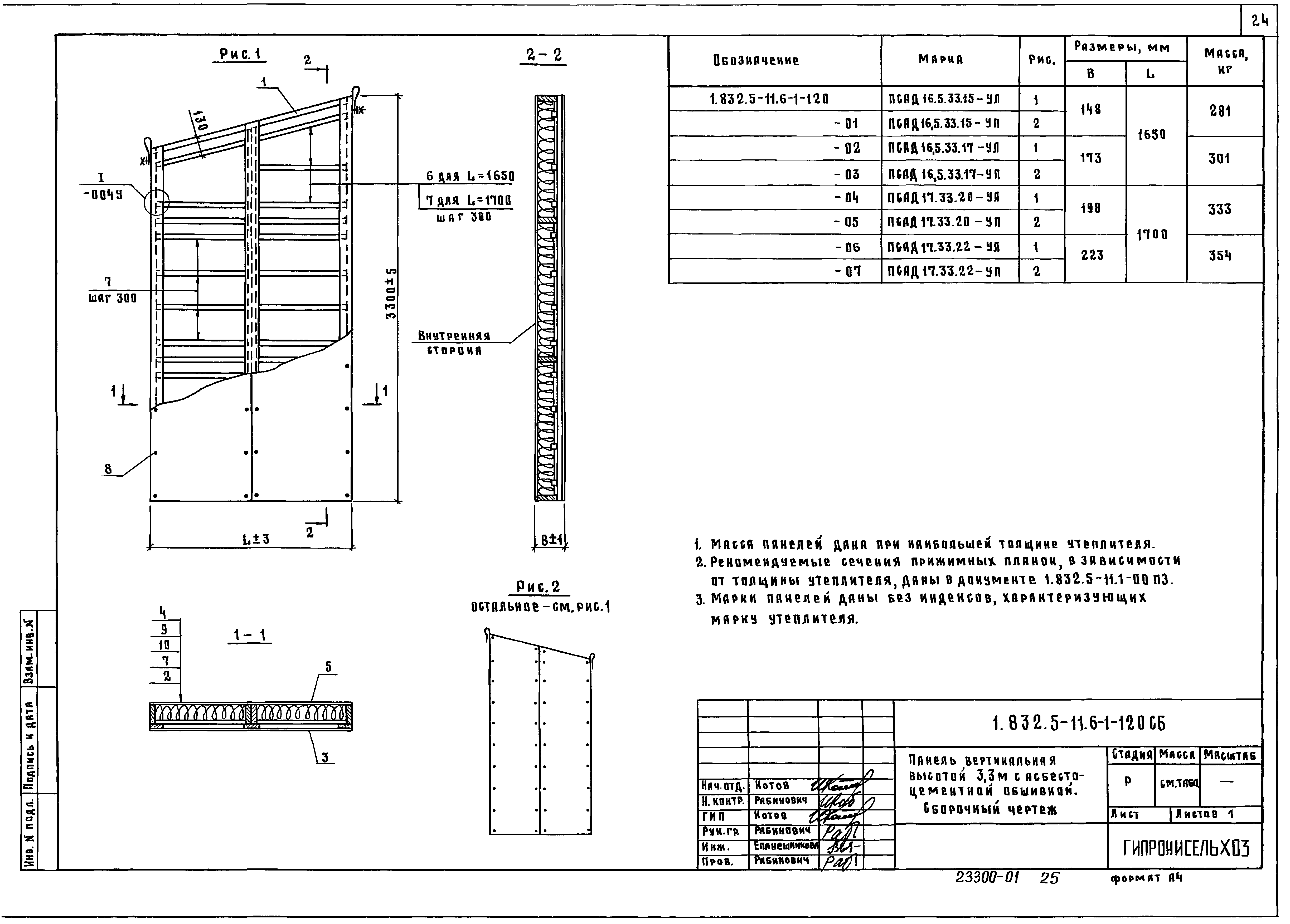
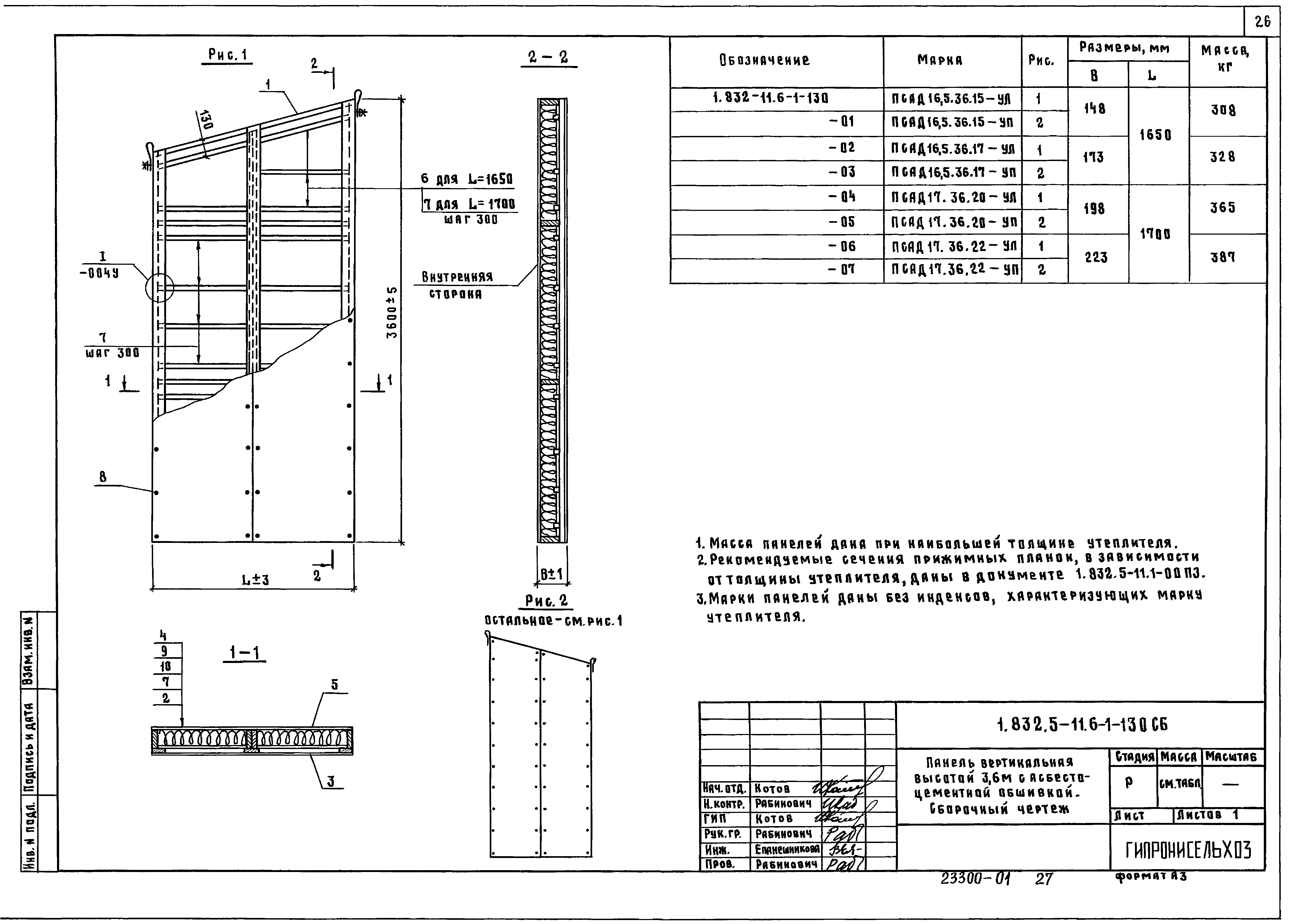
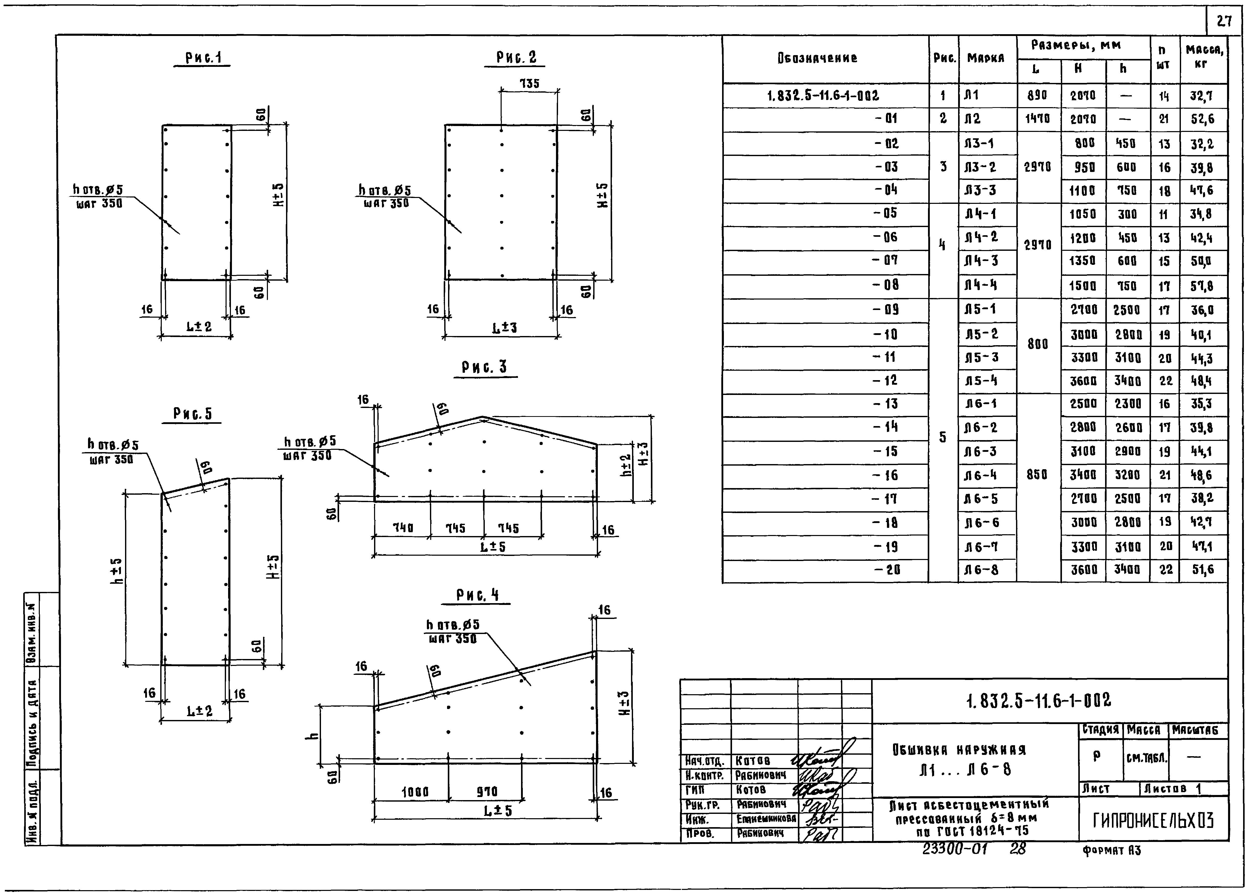
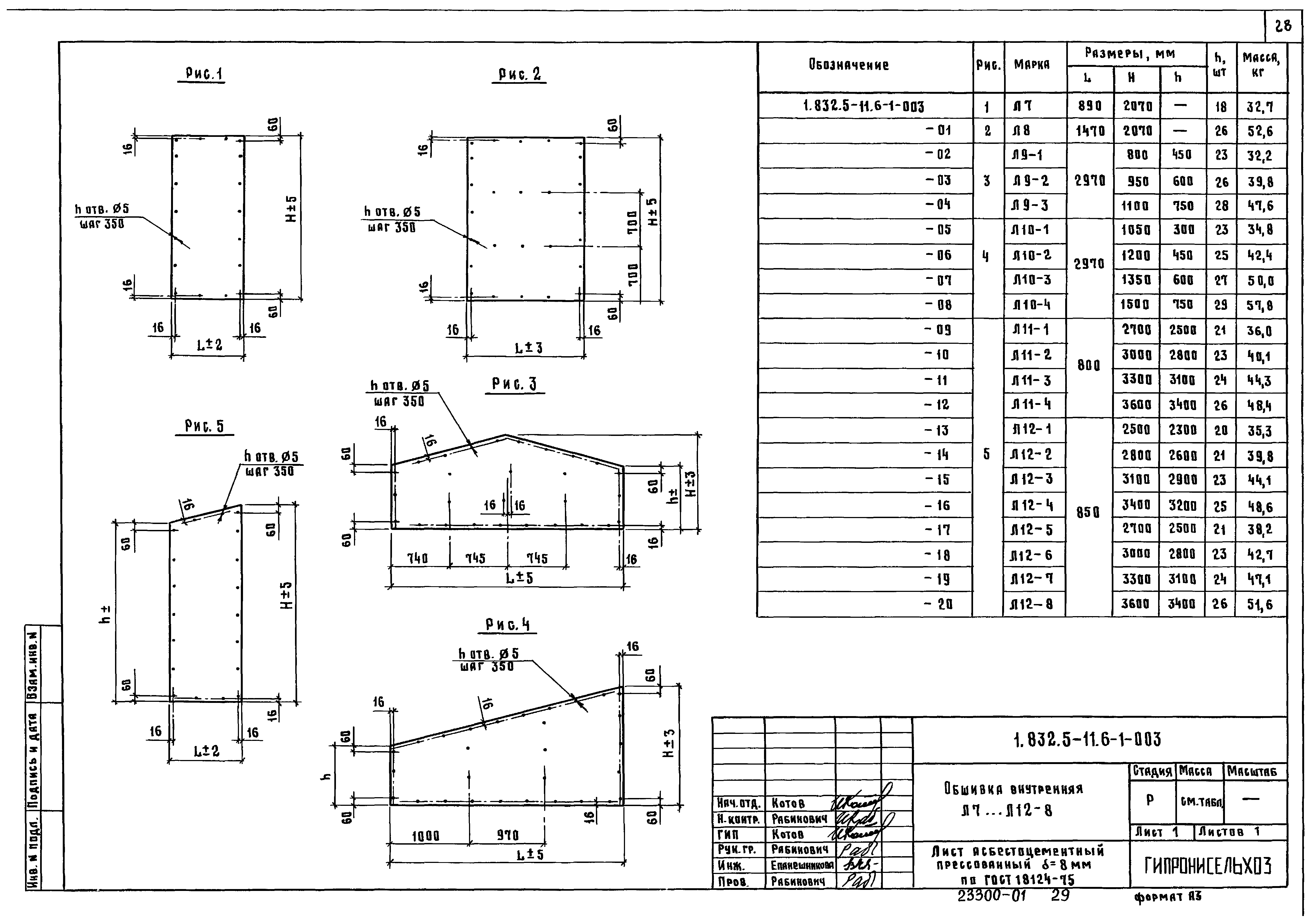
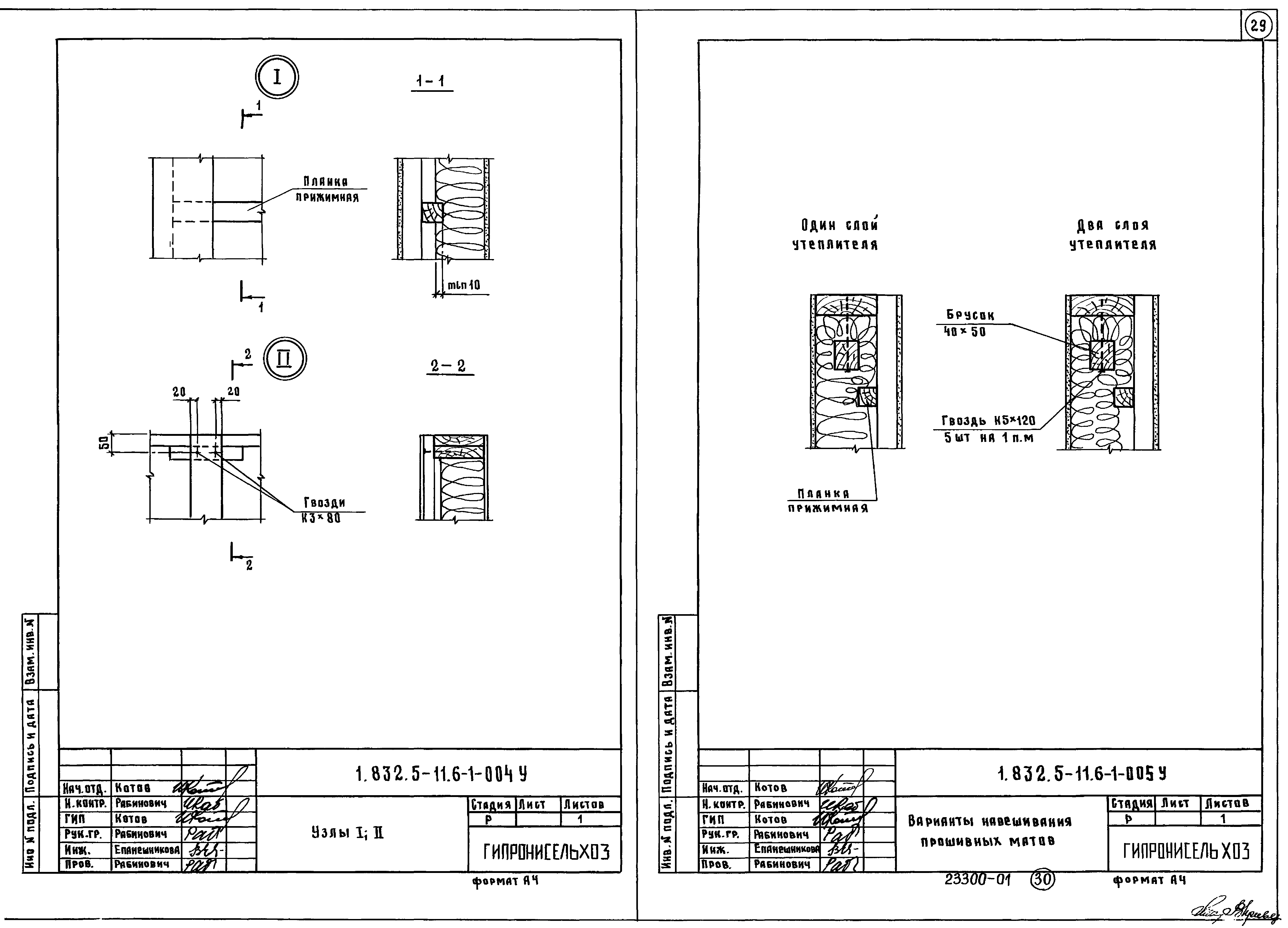
| Оглавление: | 1.832.5-11.6-1-000 ПЗ Пояснительная записка 1.832.5-11.6-1-001 Н Номенклатура стеновых панелей с асбестоцементной обшивкой 1.832.5-11.6-1-010 Панель вертикальная длиной 1,5 м с асбестоцементной обшивкой 1.832.5-11.6-1-020 Панель вертикальная длиной 1,8 м с асбестоцементной обшивкой 1.832.5-11.6-1-030 Панель фронтонная высотой 0,8 м с асбестоцементной обшивкой 1.832.5-11.6-1-040 Панель фронтонная высотой 0,95 м с асбестоцементной обшивкой 1.832.5-11.6-1-050 Панель фронтонная высотой 1,1 м с асбестоцементной обшивкой 1.832.5-11.6-1-060 Панель фронтонная высотой 1,05 м с асбестоцементной обшивкой 1.832.5-11.6-1-060 СБ Панель фронтонная высотой 1,05 м с асбестоцементной обшивкой. Сборочный чертеж 1.832.5-11.6-1-070 Панель фронтонная высотой 1,2 м с асбестоцементной обшивкой 1.832.5-11.6-1-070 СБ Панель фронтонная высотой 1,2 м с асбестоцементной обшивкой. Сборочный чертеж 1.832.5-11.6-1-080 Панель фронтонная высотой 1,35 м с асбестоцементной обшивкой 1.832.5-11.6-1-080 СБ Панель фронтонная высотой 1,35 м с асбестоцементной обшивкой. Сборочный чертеж 1.832.5-11.6-1-090 Панель фронтонная высотой 1,5 м с асбестоцементной обшивкой 1.832.5-11.6-1-090 СБ Панель фронтонная высотой 1,5 м с асбестоцементной обшивкой. Сборочный чертеж 1.832.5-11.6-1-100 Панель вертикальная высотой 2,7 м с асбестоцементной обшивкой 1.832.5-11.6-1-100 СБ Панель вертикальная высотой 2,7 м с асбестоцементной обшивкой. Сборочный чертеж 1.832.5-11.6-1-110 Панель вертикальная высотой 3,0 м с асбестоцементной обшивкой 1.832.5-11.6-1-110 СБ Панель вертикальная высотой 3,0 м с асбестоцементной обшивкой. Сборочный чертеж 1.832.5-11.6-1-120 Панель вертикальная высотой 3,3 м с асбестоцементной обшивкой 1.832.5-11.6-1-120 СБ Панель вертикальная высотой 3,3 м с асбестоцементной обшивкой. Сборочный чертеж 1.832.5-11.6-1-130 Панель вертикальная высотой 3,6 м с асбестоцементной обшивкой 1.832.5-11.6-1-130 СБ Панель вертикальная высотой 3,6 м с асбестоцементной обшивкой. Сборочный чертеж 1.832.5-11.6-1-002 Обшивка наружная Л1… Л6-8 1.832.5-11.6-1-003 Обшивка наружная Л7… Л12-8 1.832.5-11.6-1-004 У Узлы I, II 1.832.5-11.6-1-005 У Варианты навешивания прошивных матов |
| Разработан: | ЦНИИСК им. В.А. Кучеренко ЦНИИЭПсельстрой ГипроНИсельхоз (Институт Гипронисельхоз ) |
| Утверждён: | 07.05.1988 Госагропром СССР (USSR Gosagroprom 804-48/582) |
| Нормативные ссылки: |
|





























