Скачать Серия 1.138-11с Выпуск 0-1. Общие материалы и унифицированные детали панелей толщиной 300 мм. Рабочие чертежиДата актуализации: 01.01.2021
|
| Обозначение: | Серия 1.138-11с |
| Обозначение англ: | Series 1.138-11с |
| Статус: | не определен законодательством |
| Название рус.: | Выпуск 0-1. Общие материалы и унифицированные детали панелей толщиной 300 мм. Рабочие чертежи |
| Дата добавления в базу: | 01.09.2013 |
| Дата актуализации: | 01.01.2021 |
| Дата введения: | 01.07.1980 |
| Дата окончания срока действия: | 30.06.2003 |
| Область применения: | Рабочие чертежи унифицированных однослойных легкобетонных панелей парапета с проходным чердаком разработаны для наружных стен крупнопанельных жилых зданий с шагом поперечных внутренних несущих стен 2,4 - 3,6 м, предназначенных для строительства в районах с расчетной сейсмичностью 7 - 9 баллов |
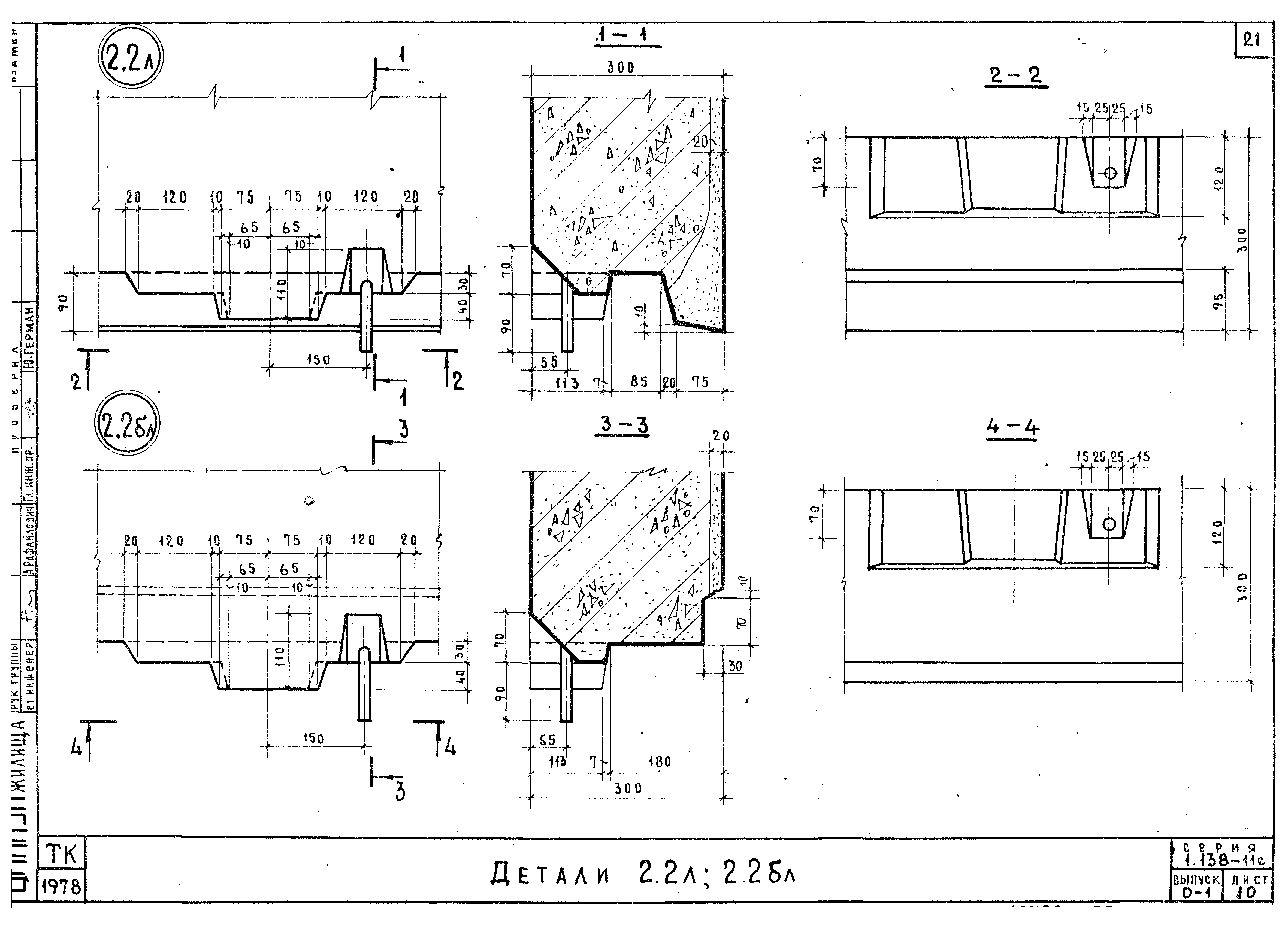
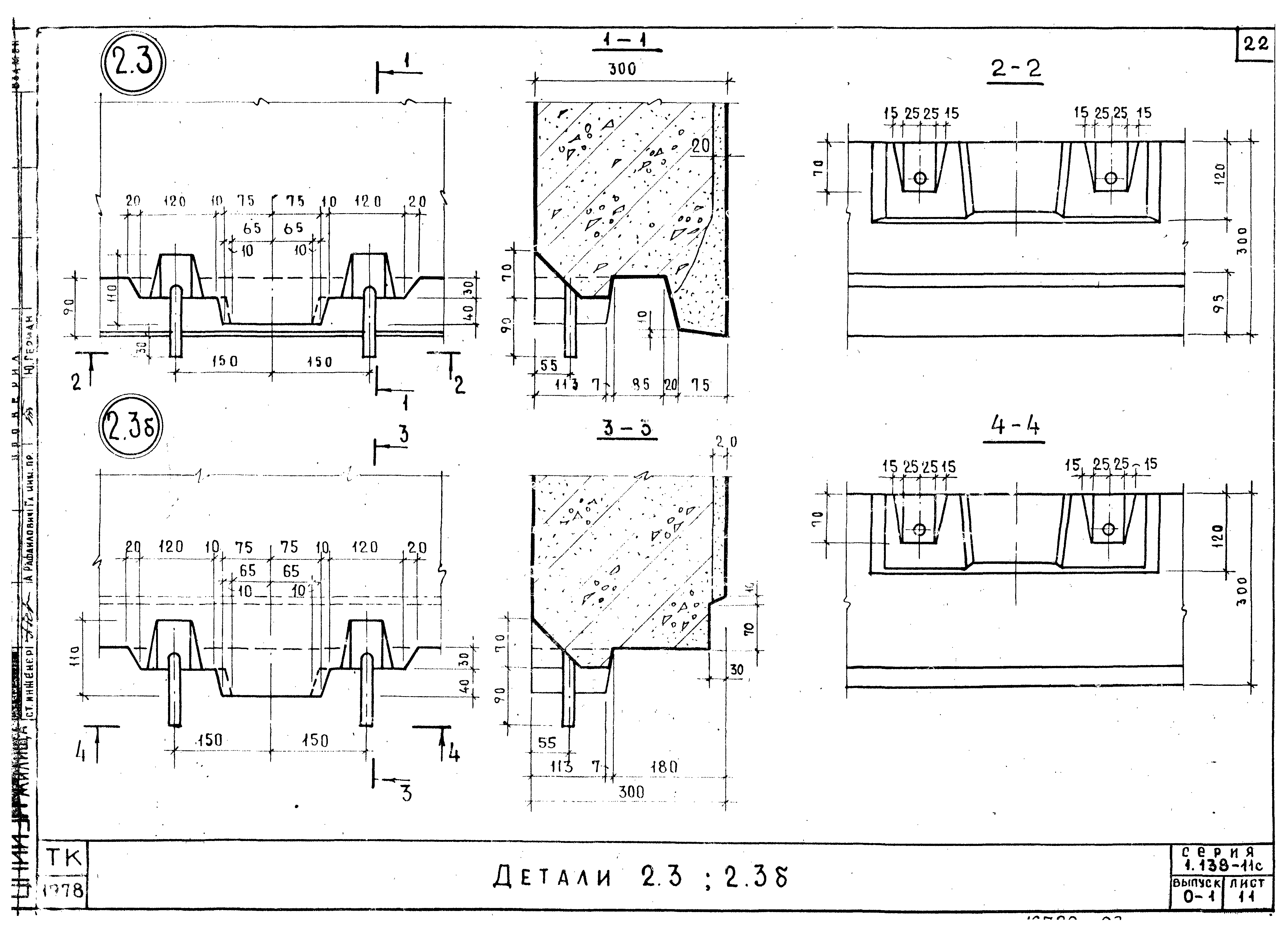
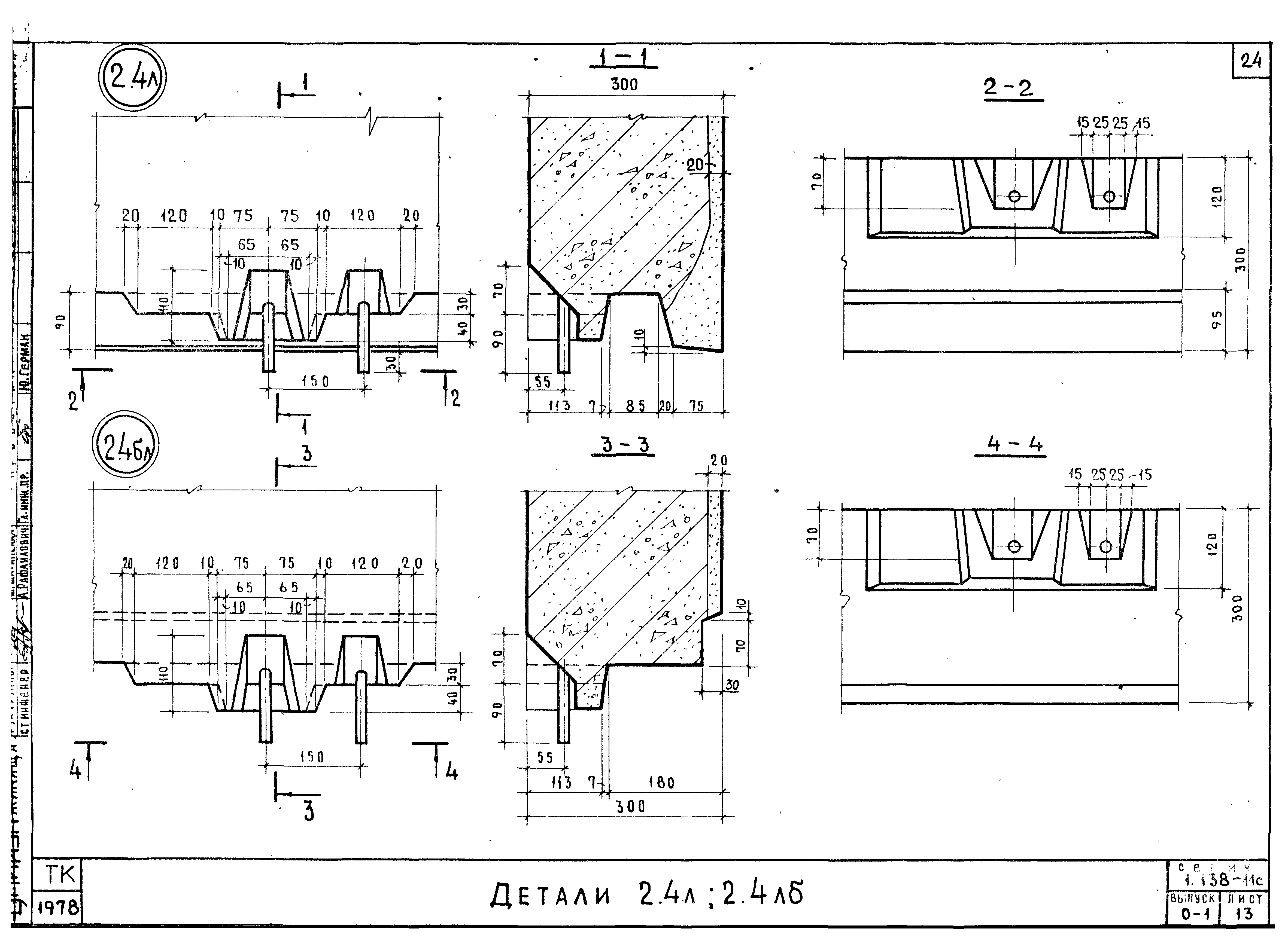
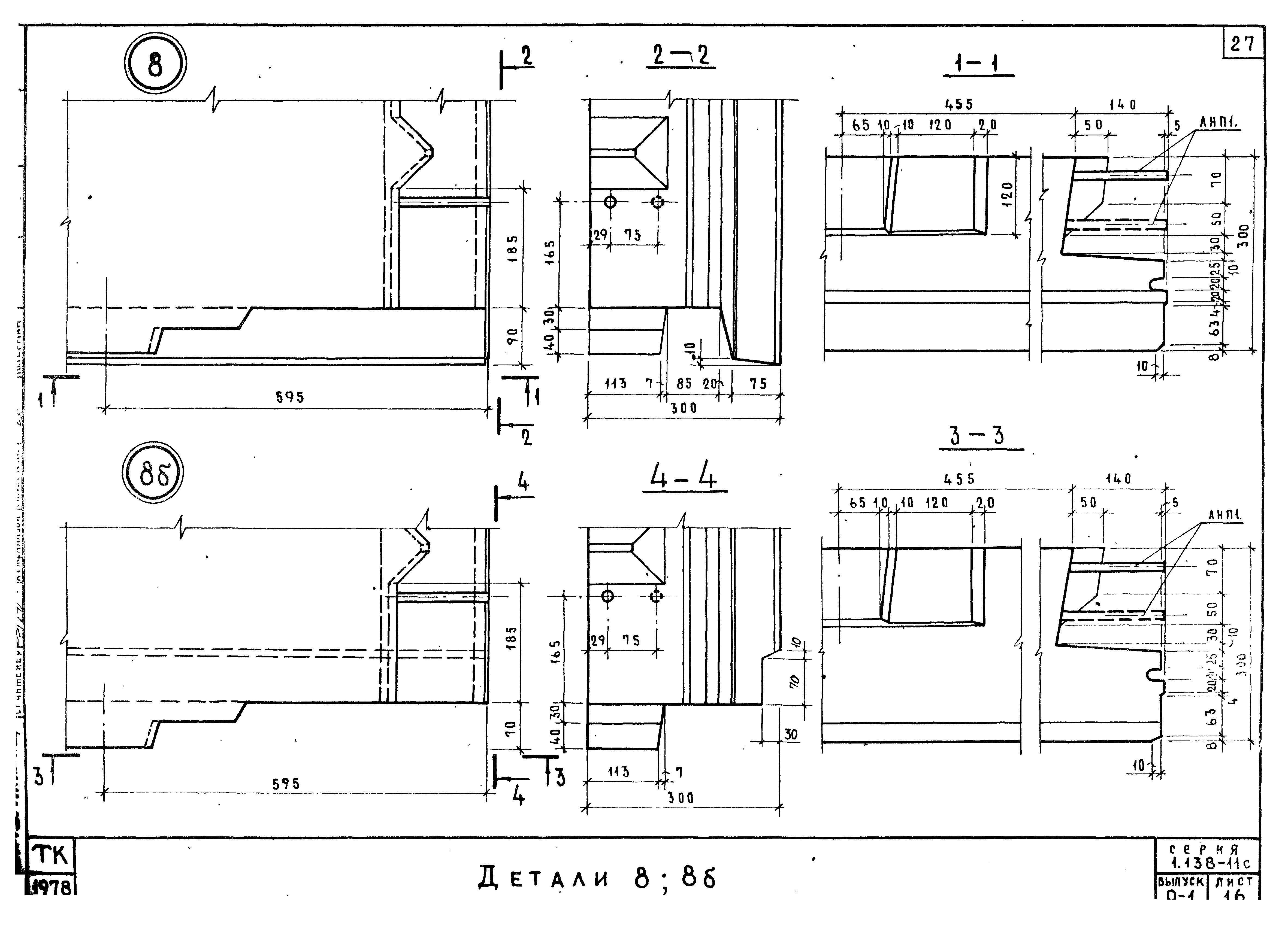
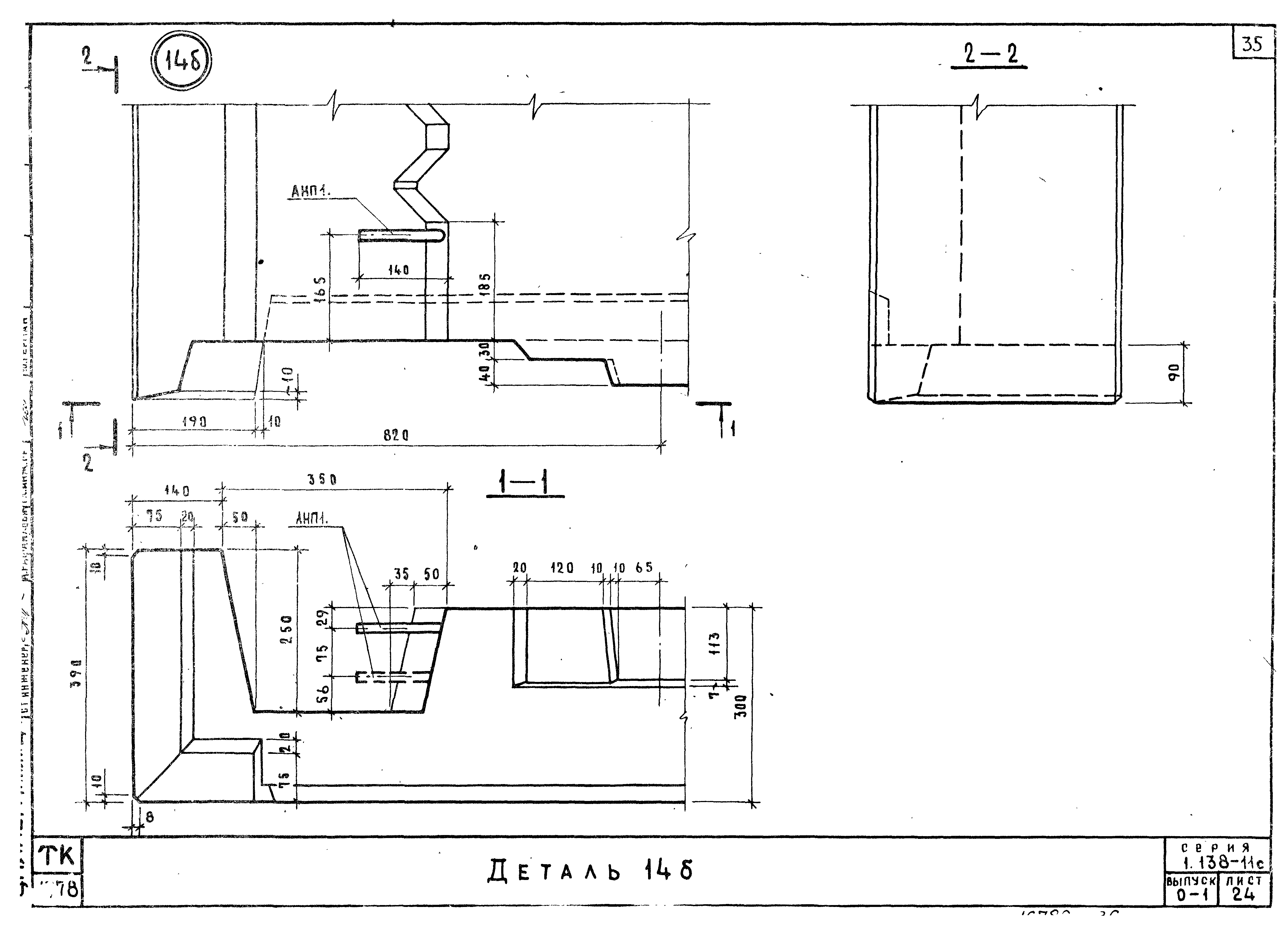
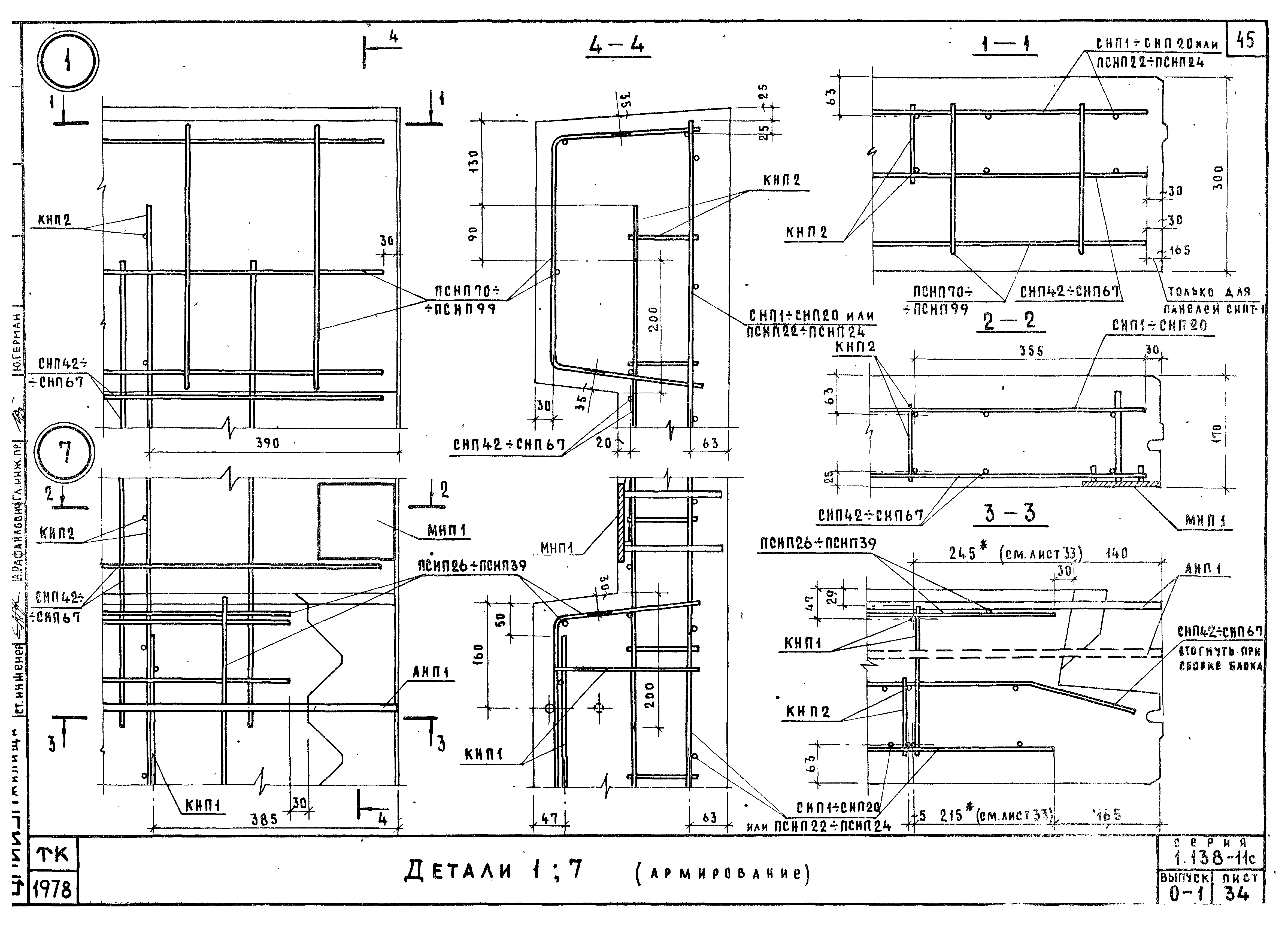
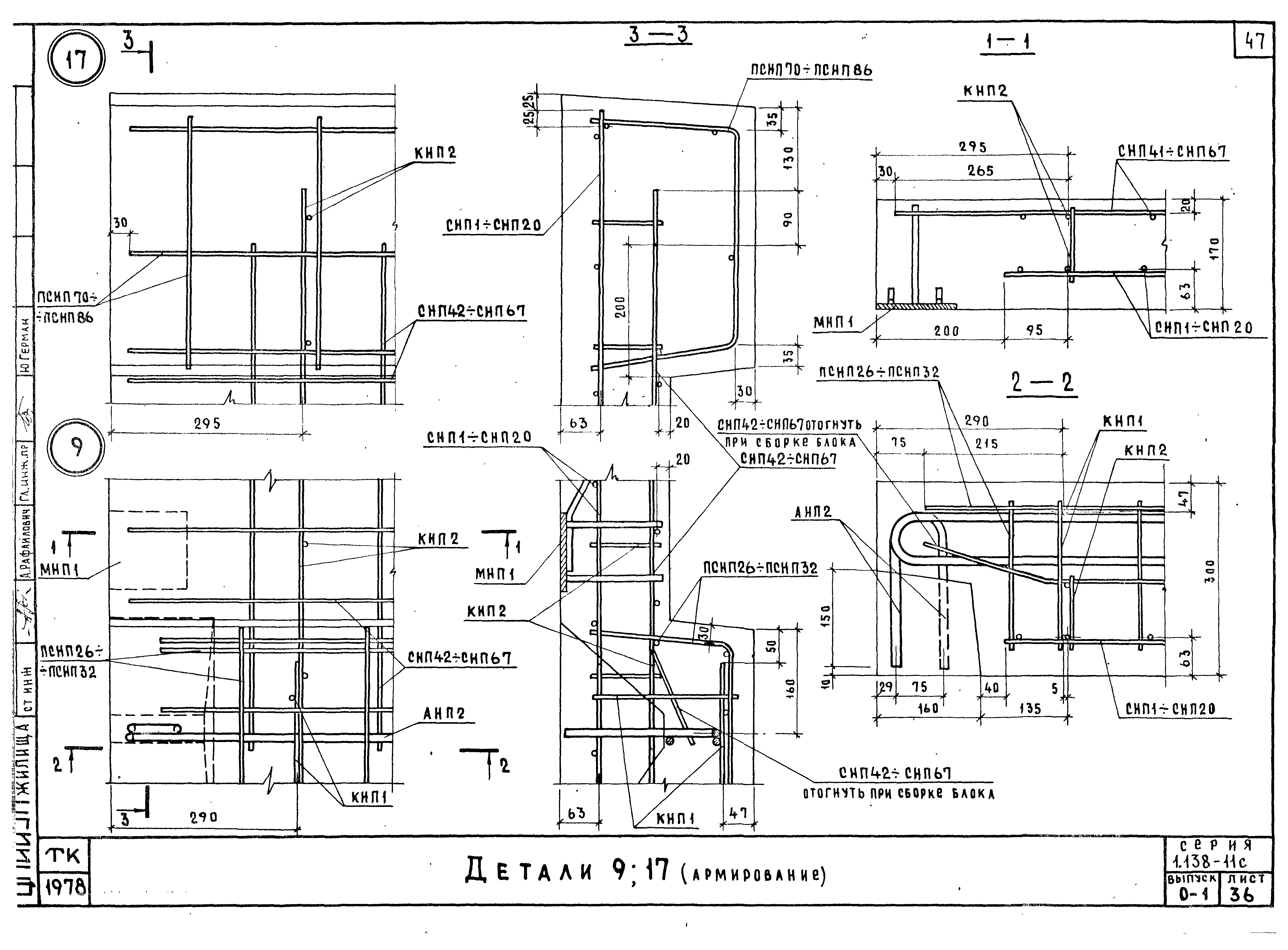
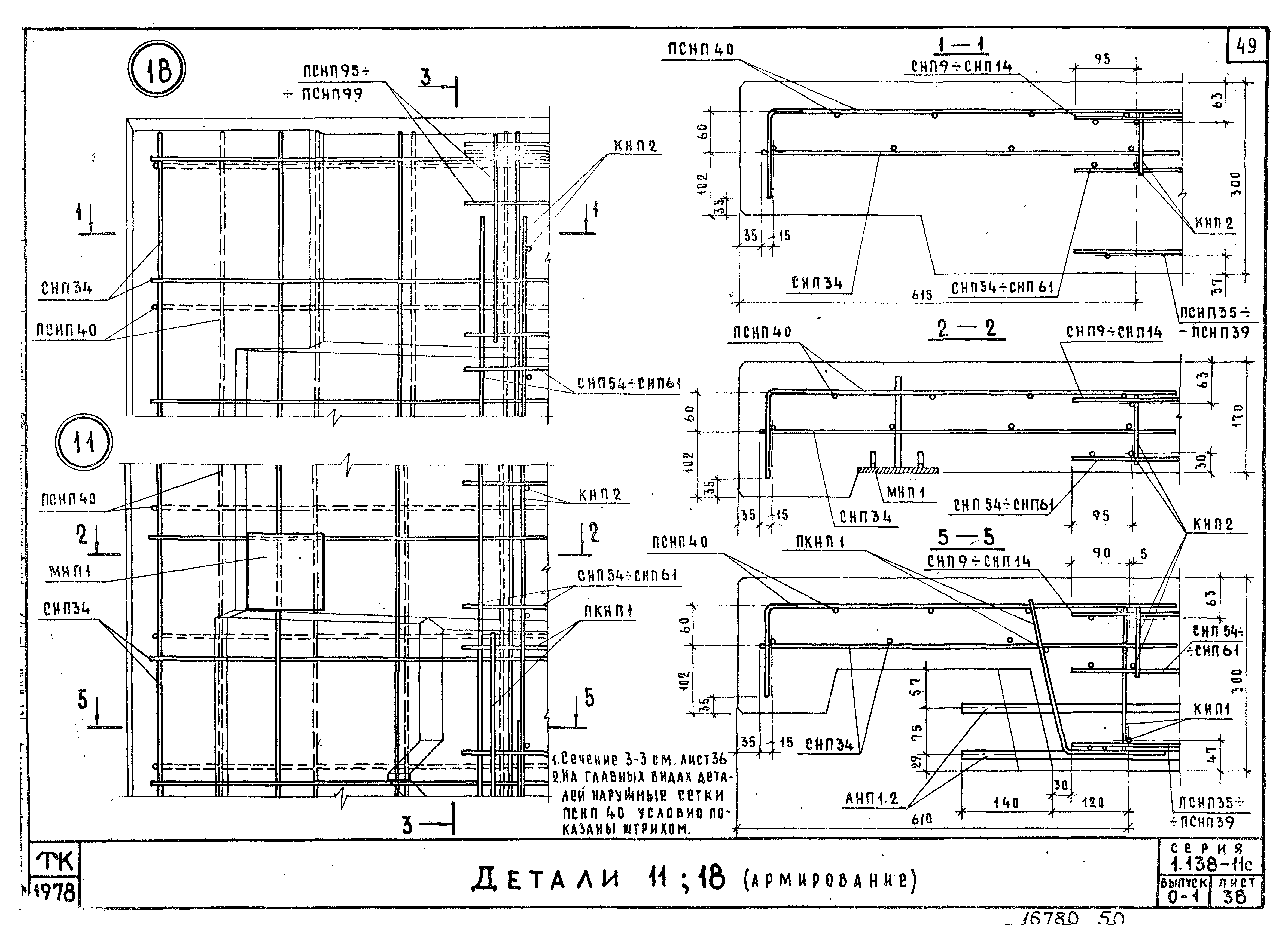
| Оглавление: | Содержание Пояснительная записка Схемы видов панелей группы Р1 и маркировка опалубочных деталей Схемы видов панелей группы Р4 и маркировка опалубочных деталей Схемы видов панелей группы Р5 и маркировка опалубочных деталей Схемы видов панелей группы Т1, Т4 и маркировка опалубочных деталей Детали 2.0; 2.0б Детали 2.1; 2.1б Детали 2.2; 2.2б Детали 2.2л; 2.2бл Детали 2.3; 2.3б Детали 2.4; 2.4б Детали 2.4л; 2.4бл Детали 3; 4; 5; 6 Детали 1; 7 Детали 8; 8б Детали 9; 17 Детали 10; 10б Детали 11; 18 Деталь 12; вид 3-3 Деталь 12б Детали 13; 19 Деталь 14; вид 5-5 Деталь 14б Детали 15; 16 Деталь 16б. Деталь установки деревянной пробки для крепления окрытия Детали 16б; 23 Детали 20; 21; 22 Разбивка и детали шпонок в панелях групп Р1, Р4, Р5 Разбивка и детали шпонок в панелях групп Т1 и Т4 и штрабе Примеры установки вертикальных выпусков обрамления проемов Детали 2.4; 2.4б (армирование) Детали 3; 4; 5; 6 (армирование) Детали 1; 7 (армирование) Детали 8; 8б (армирование) Детали 9; 17 (армирование) Детали 10; 10б (армирование) Детали 11; 18 (армирование) Деталь 12; вид 3-3 (армирование) Деталь 12б (армирование) Детали 13; 19 (армирование) Деталь 14 (армирование); сечение 5-5 Деталь 14б (армирование) Детали 15; 16 (армирование) Деталь 16б (армирование), вертикальное сечение по штрабе двухшаговых панелей парапета Детали 16б; 23 (армирование) Детали 20; 21; 22 (армирование) |
| Разработан: | ЦНИИСК им. В.А. Кучеренко ЦНИИЭП жилища |
| Утверждён: | 06.06.1980 Госгражданстрой (Gosgrazhdanstroy 149) |
| Нормативные ссылки: |
|


























































