Скачать Серия 1.138-11с Выпуск 1-2. Панели групп С-НПР1, С-НПР4, С-НПР5 двухшаговые толщиной 300 и 350 мм. Рабочие чертежиДата актуализации: 01.01.2021
|
| Обозначение: | Серия 1.138-11с |
| Обозначение англ: | Series 1.138-11с |
| Статус: | не определен законодательством |
| Название рус.: | Выпуск 1-2. Панели групп С-НПР1, С-НПР4, С-НПР5 двухшаговые толщиной 300 и 350 мм. Рабочие чертежи |
| Дата добавления в базу: | 01.09.2013 |
| Дата актуализации: | 01.01.2021 |
| Дата введения: | 01.07.1980 |
| Дата окончания срока действия: | 30.06.2003 |
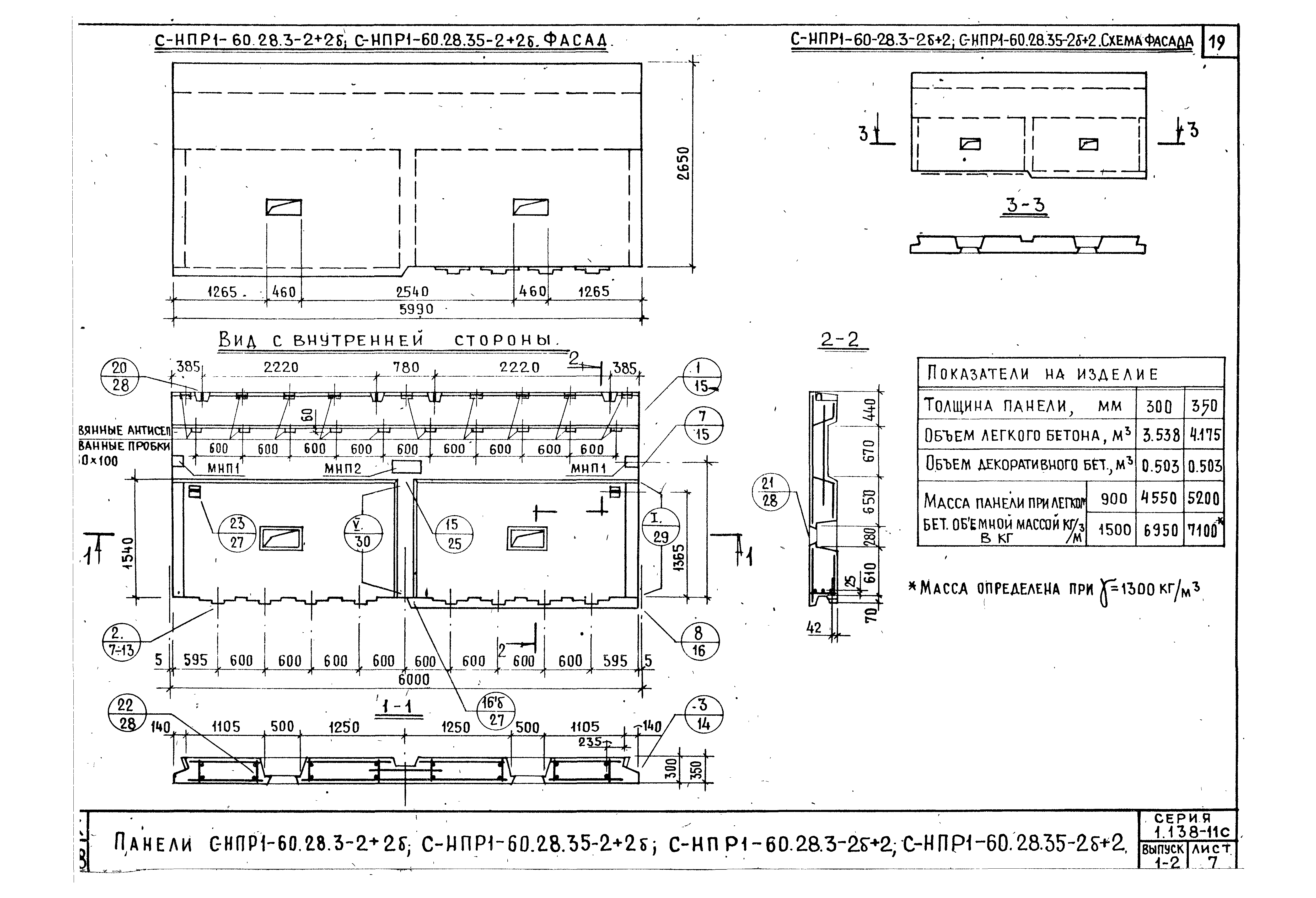
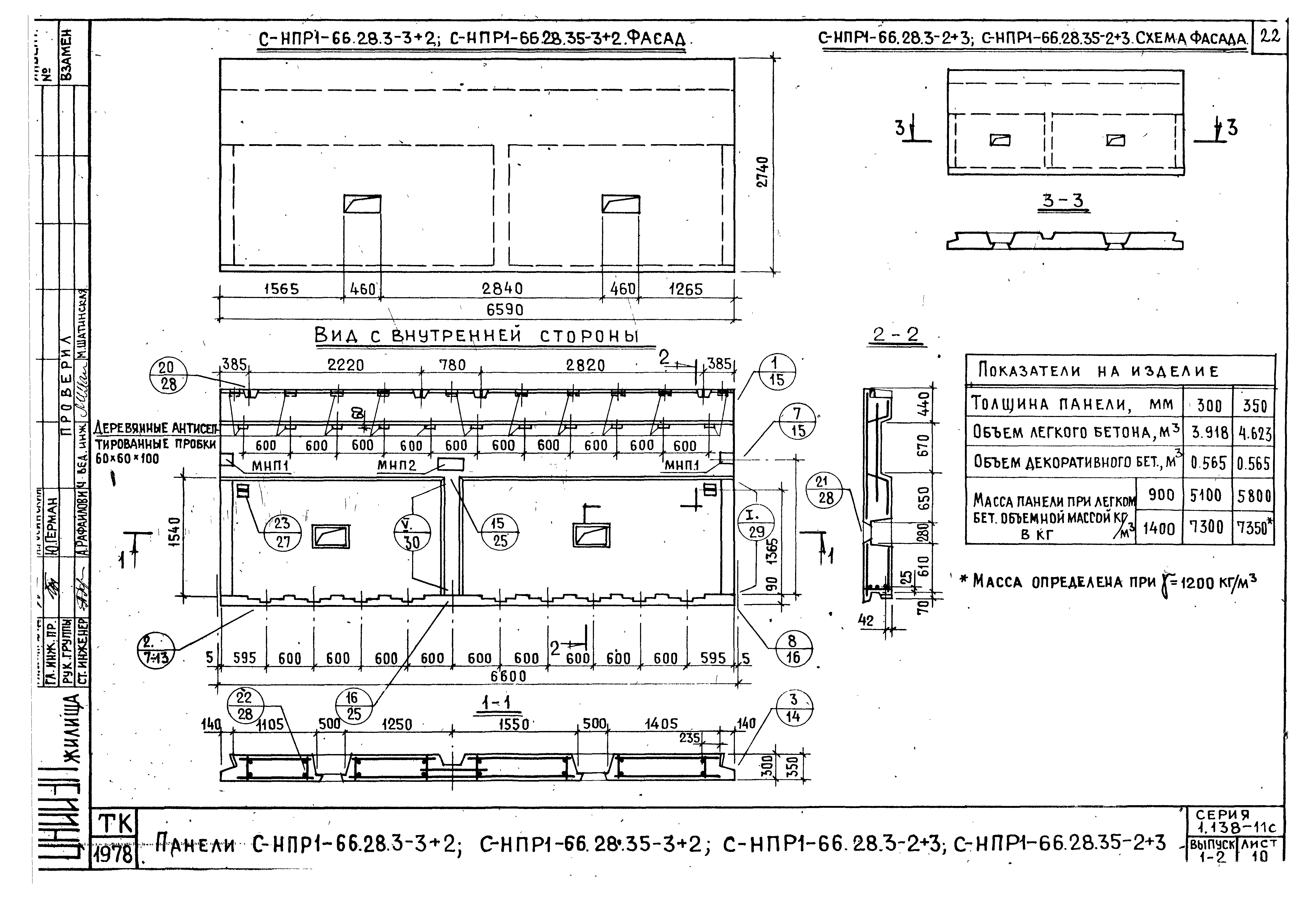
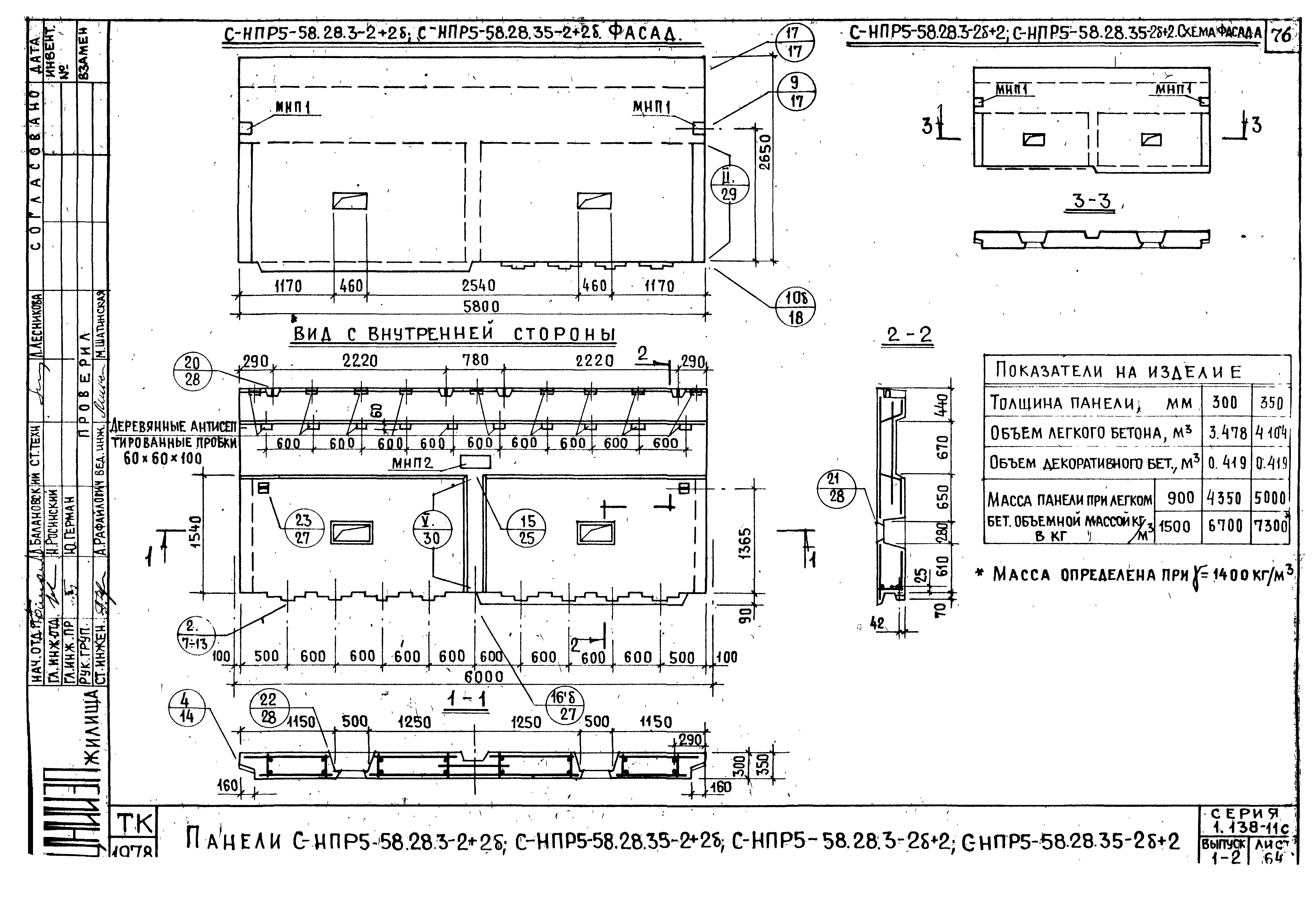
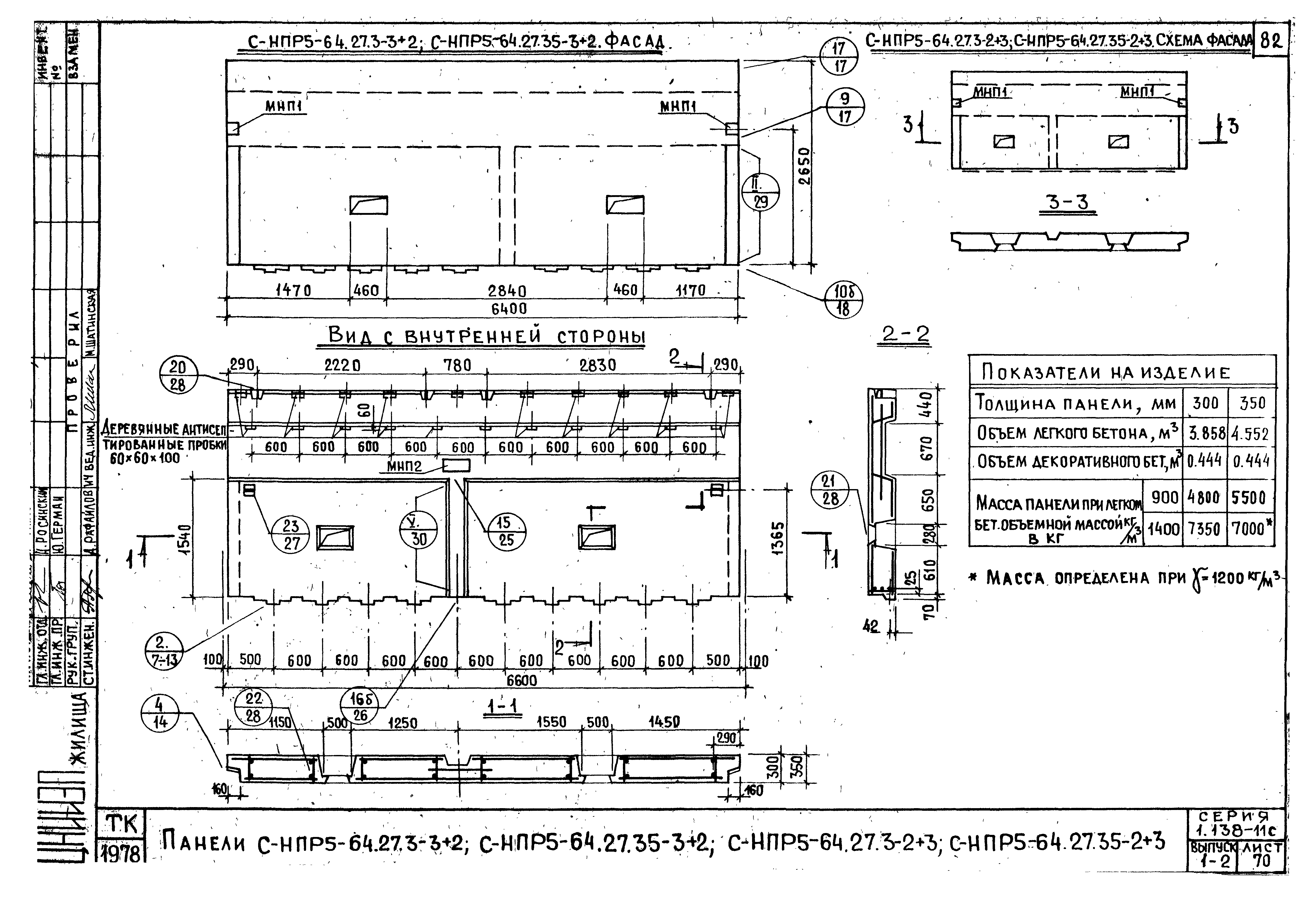
| Область применения: | Панели легкобетонные предназначены для применения в 4 - 5 этажных домах в районах с сейсмичностью 7 - 9 баллов, а также высотой 9 этажей в районах с сейсмичностью 7 и 8 баллов и 7 этажей при 9 баллов |
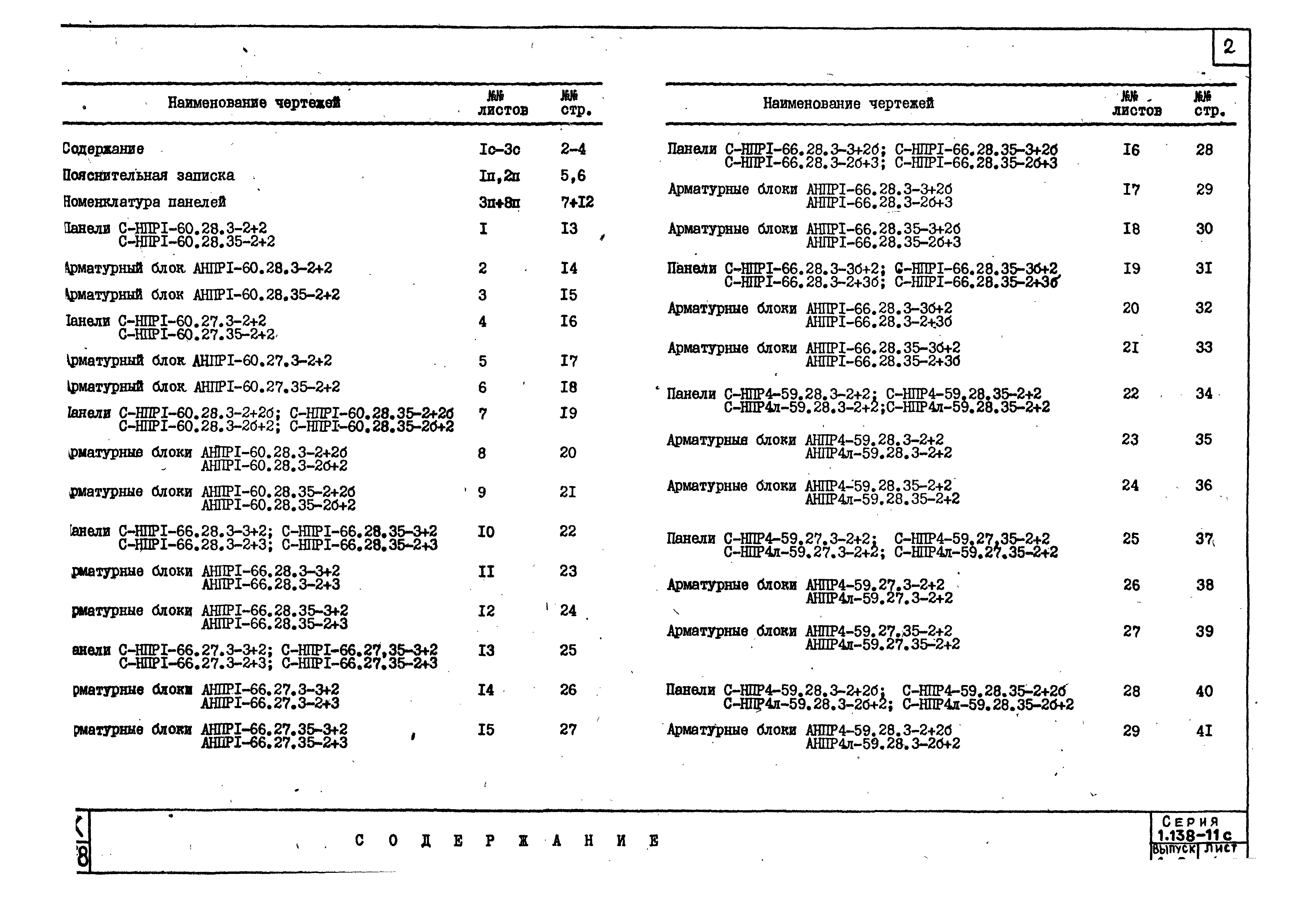
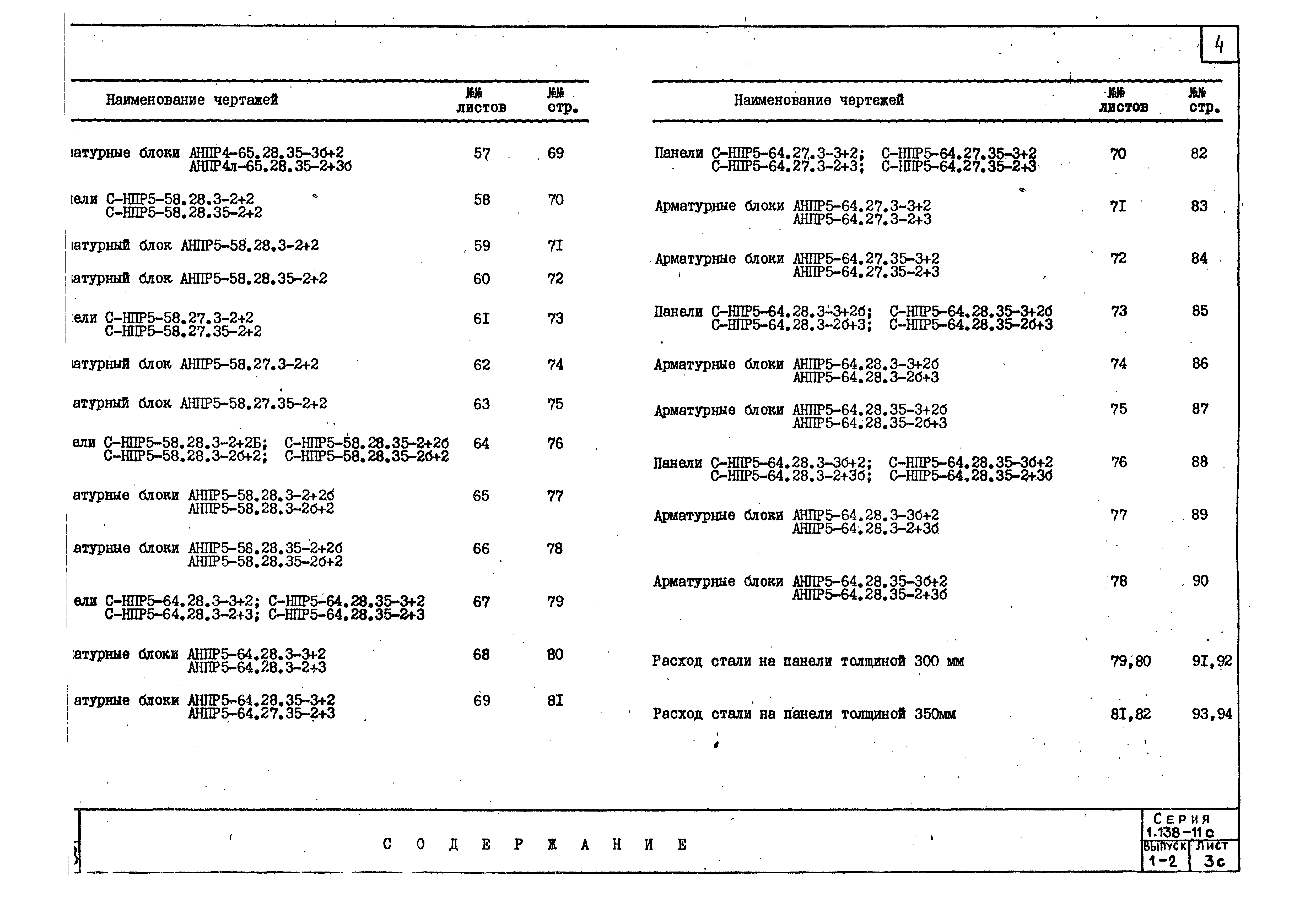
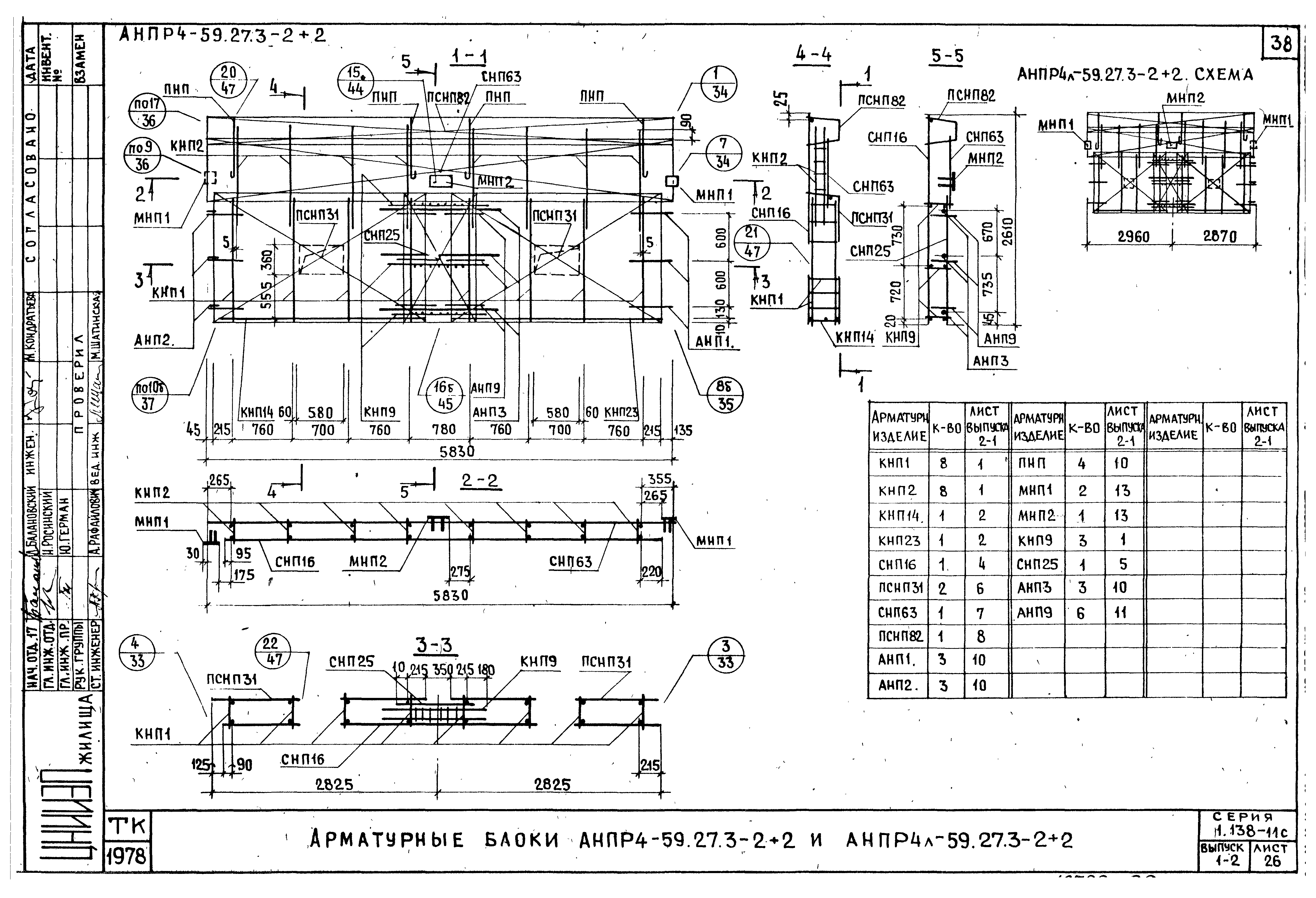
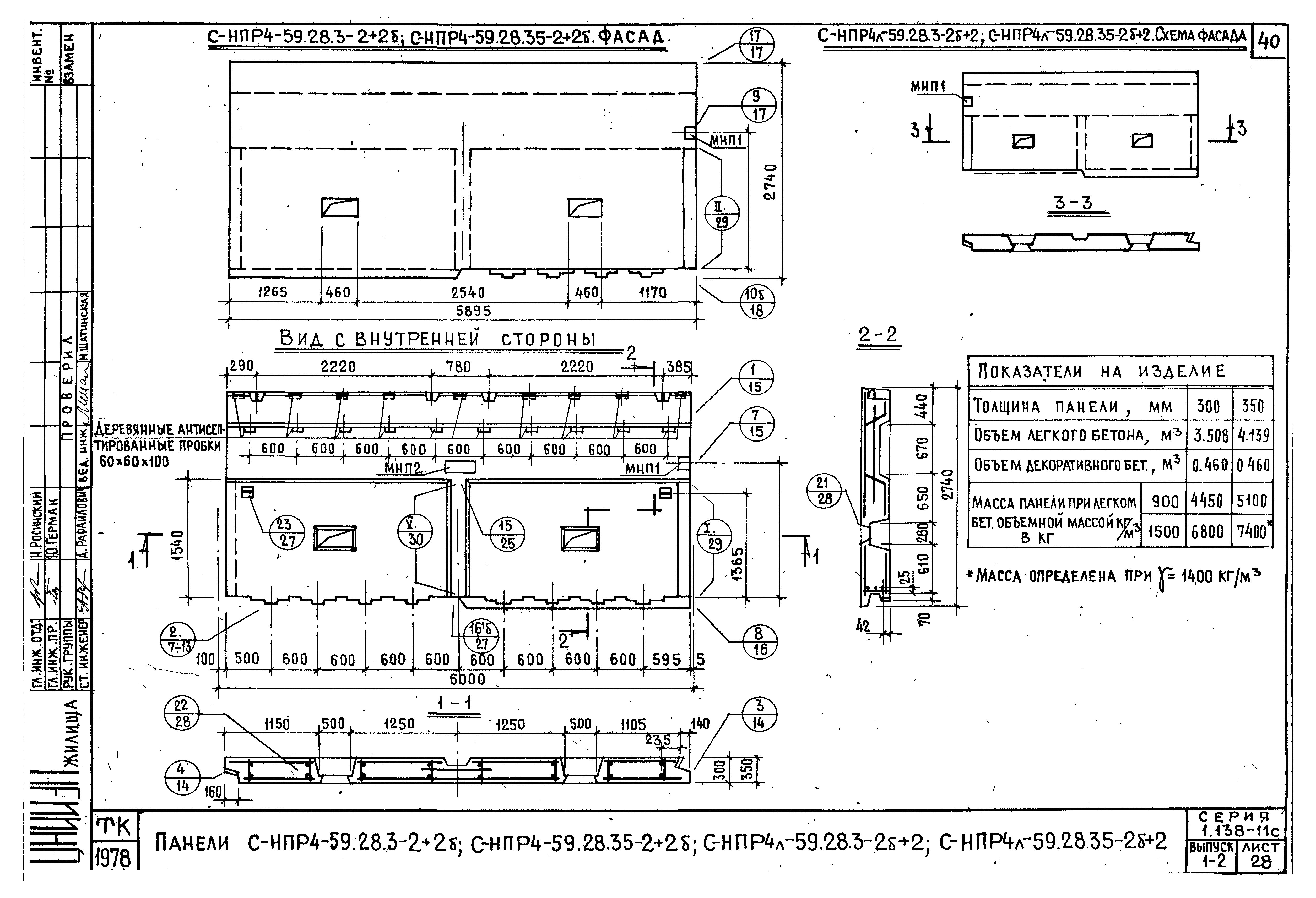
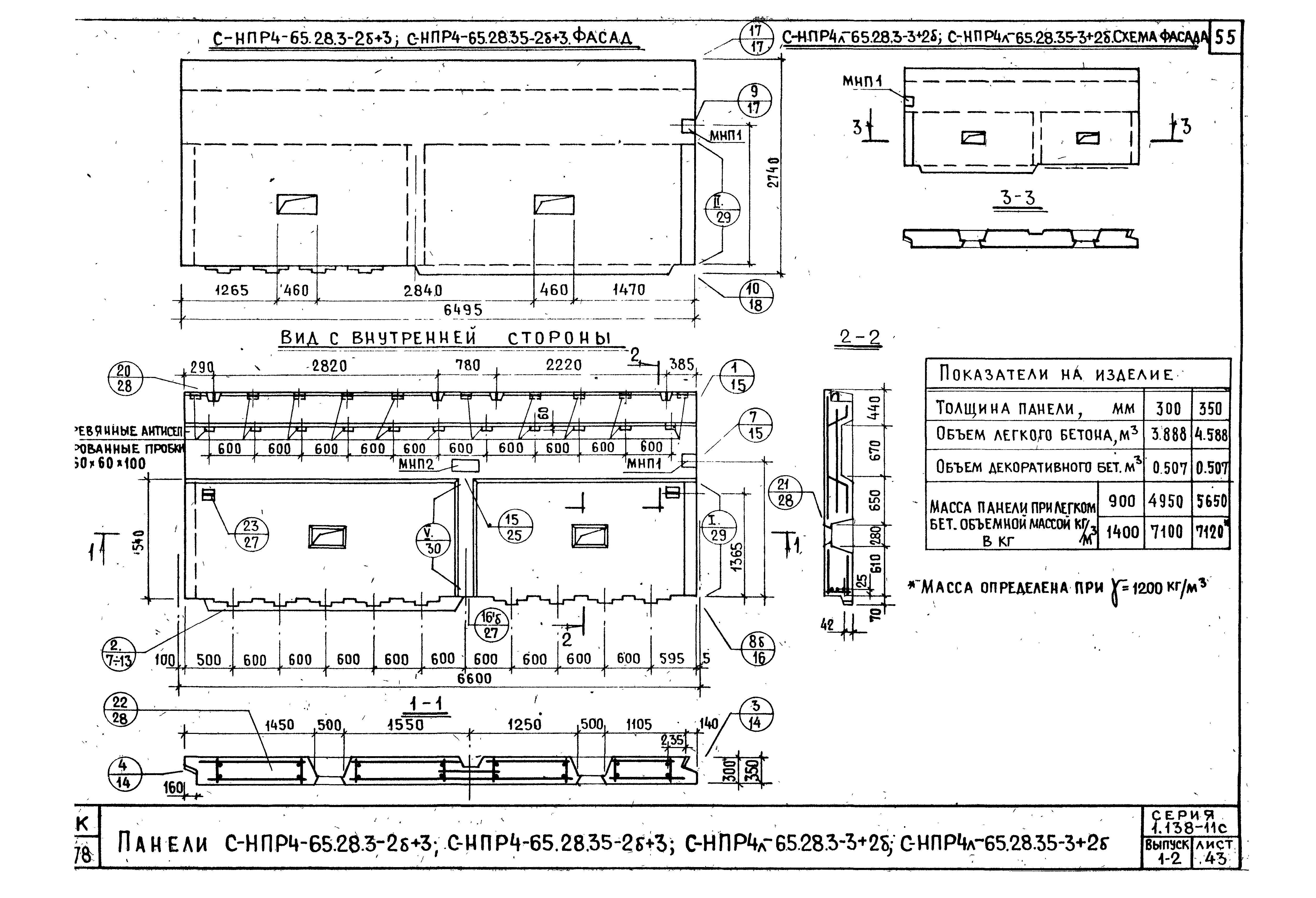
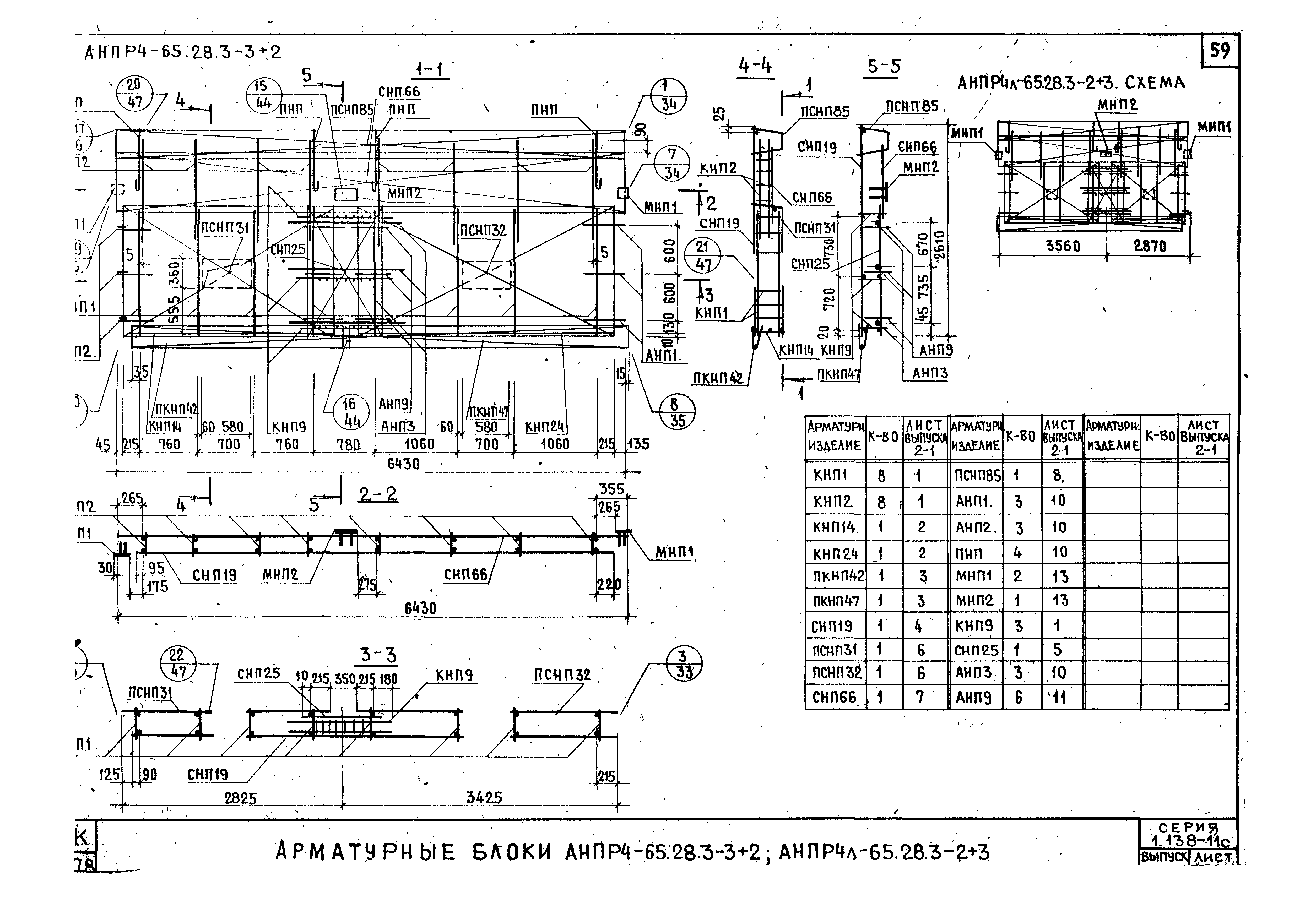
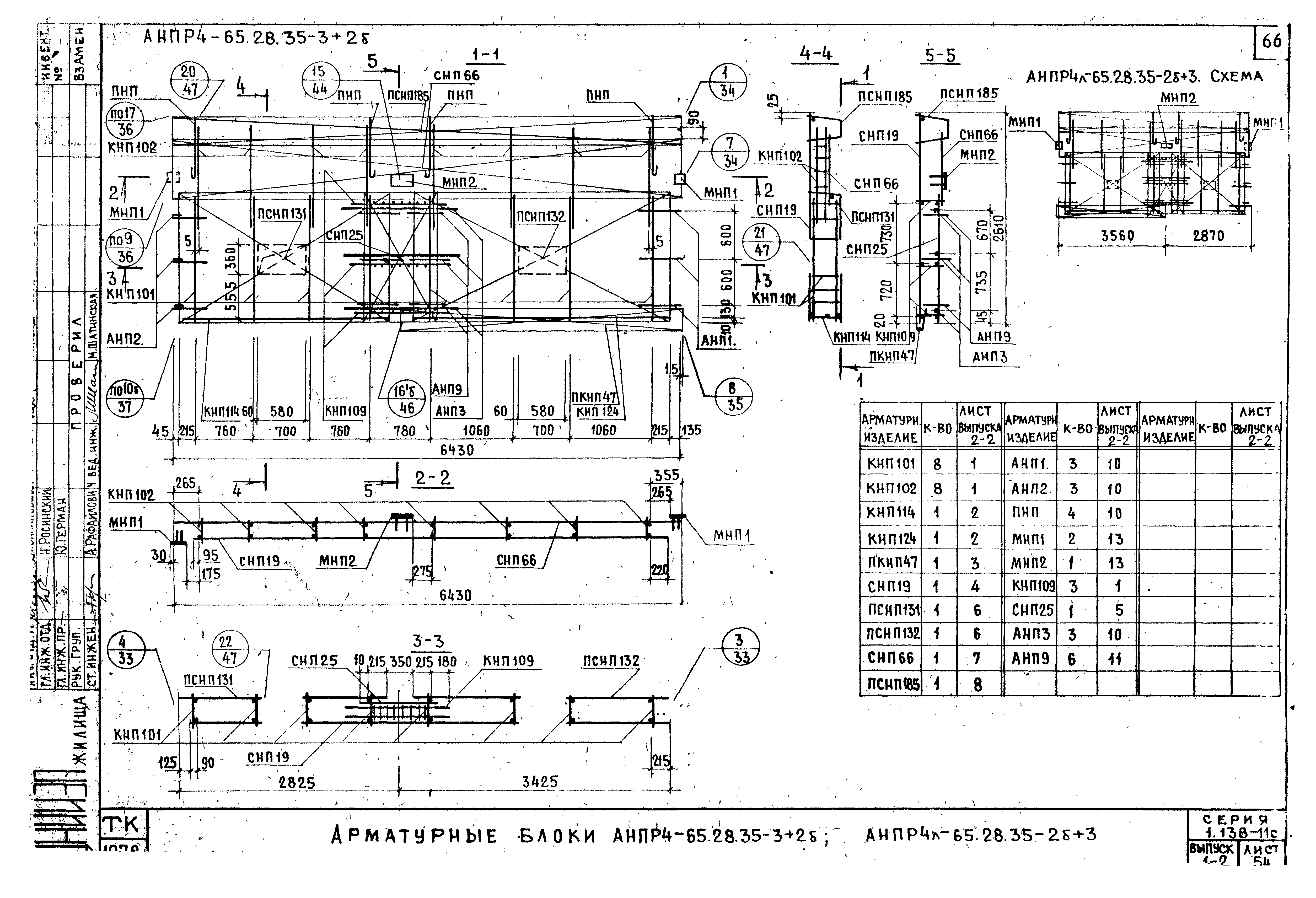
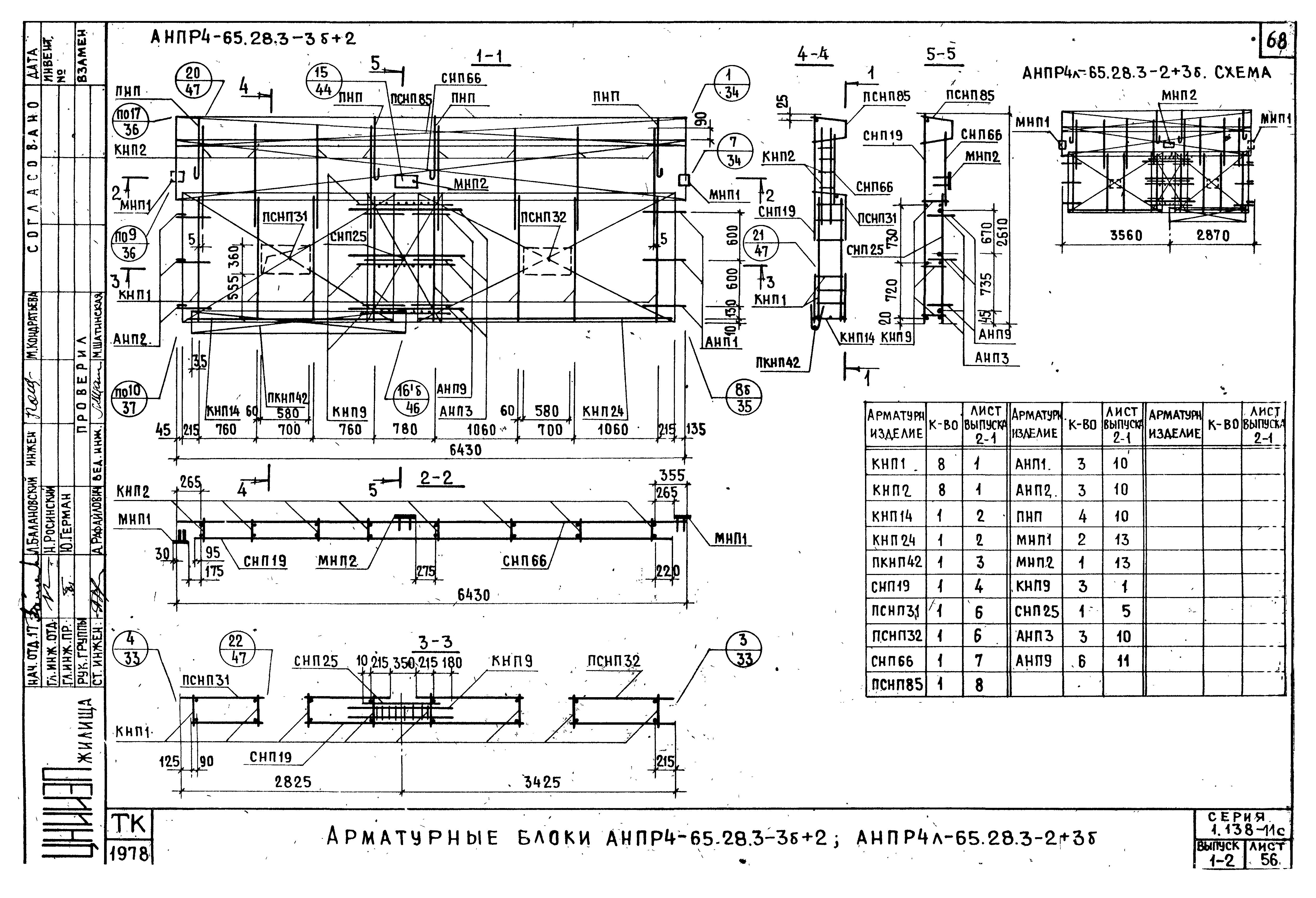
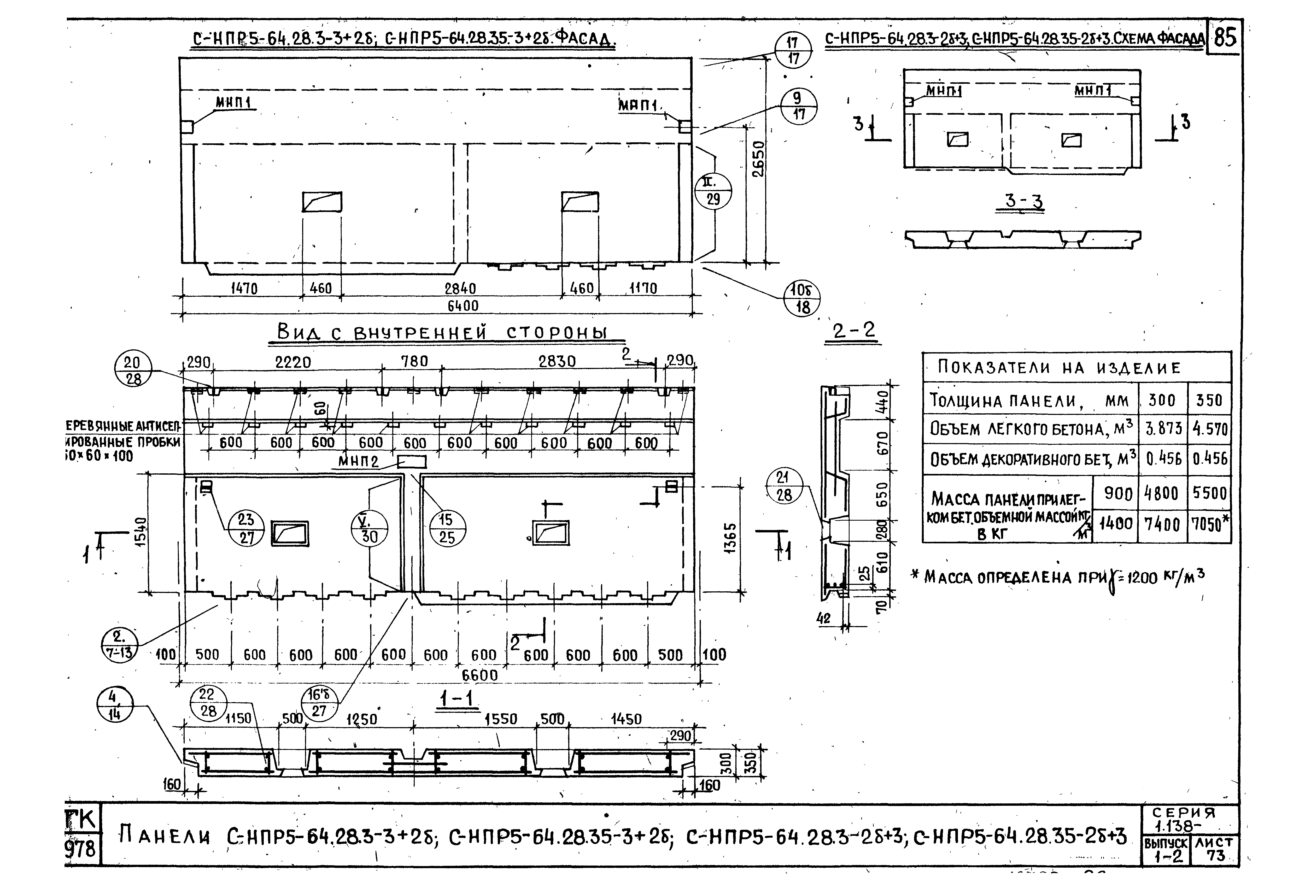
| Оглавление: | Содержание Пояснительная записка Номенклатура панелей Панели С-НПР1-60.28.3-2+2; С-НПР1-60.28.35-2+2 Арматурный блок АНПР1-60.28.3-2+2 Арматурный блок АНПР1-60.28.35-2+2 Панели С-НПР1-60.27.3-2+2; С-НПР1-60.27.35-2+2 Арматурный блок АНПР1-60.27.3-2+2 Арматурный блок АНПР1-60.27.35-2+2 Панели С-НПР1-60.28.3-2+2б; С-НПР1-60.28.35-2+2б; С-НПР1-60.28.3-2б+2; С-НПР1-60.28.35-2б+2 Арматурные блоки АНПР1-60.28.3-2+2б; АНПР1-60.28.3-2б+2 Арматурные блоки АНПР1-60.28.35-2+2б; АНПР1-60.28.35-2б+2 Панели С-НПР1-66.28.3-3+2; С-НПР1-66.28.35-3+2; С-НПР1-66.28.3-2+3; С-НПР1-66.28.35-2+3 Арматурные блоки АНПР1-66.28.3-3+2; АНПР1-66.28.3-2+3 Арматурные блоки АНПР1-66.28.35-3+2; АНПР1-66.28.35-2+3 Панели С-НПР1-66.27.3-3+2; С-НПР1-66.27.35-3+2; С-НПР1-66.27.3-2+3; С-НПР1-66.27.35-2+3 Арматурные блоки АНПР1-66.27.3-3+2; АНПР1-66.27.3-2+3 Арматурные блоки АНПР1-66.27.35-3+2; АНПР1-66.27.35-2+3 Панели С-НПР1-66.28.3-3+2б; С-НПР1-66.28.35-3+2б; С-НПР1-66.28.3-2б+3; С-НПР1-66.28.35-2б+3 Арматурные блоки АНПР1-66.28.3-3+2б; АНПР1-66.28.3-2б+3 Арматурные блоки АНПР1-66.28.35-3+2б; АНПР1-66.28.35-2б+3 Панели С-НПР1-66.28.3-3б+2; С-НПР1-66.28.35-3б+2; С-НПР1-66.28.3-2+3б; С-НПР1-66.28.35-2+3б Арматурные блоки АНПР1-66.28.3-3б+2; АНПР1-66.28.3-2+3б Арматурные блоки АНПР1-66.28.35-3б+2; АНПР1-66.28.35-2+3б Панели С-НПР4-59.28.3-2+2; С-НПР4-59.28.35-2+2; С-НПР4л-59.28.3-2+2; С-НПР4л-59.28.35-2+2 Арматурные блоки АНПР4-59.28.3-2+2; АНПР4л-59.28.3-2+2 Арматурные блоки АНПР4-59.28.35-2+2; АНПР4л-59.28.35-2+2 Панели С-НПР4-59.27.3-2+2; С-НПР4-59.27.35-2+2; С-НПР4л-59.27.3-2+2; С-НПР4л-59.27.35-2+2 Арматурные блоки АНПР4-59.27.3-2+2; АНПР4л-59.27.3-2+2 Арматурные блоки АНПР4-59.27.35-2+2; АНПР4л-59.27.35-2+2 Панели С-НПР4-59.28.3-2+2б; С-НПР4-59.28.35-2+2б; С-НПР4л-59.28.3-2б+2; С-НПР4л-59.28.35-2б+2 Арматурные блоки АНПР4-59.28.3-2+2б; АНПР4л-59.28.3-2б+2 Арматурные блоки АНПР4-59.28.35-2+2б; АНПР4л-59.28.35-2б+2 Панели С-НПР4-59.28.3-2б+2; С-НПР4-59.28.35-2б+2; С-НПР4л-59.28.3-2+2б; С-НПР4л-59.28.35-2+2б Арматурные блоки АНПР4-59.28.3-2б+2; АНПР4л-59.28.3-2+2б Арматурные блоки АНПР4-59.28.35-2б+2; АНПР4л-59.28.35-2+2б Панели С-НПР4-65.28.3-2+3; С-НПР4-65.28.35-2+3; С-НПР4л-65.28.3-3+2; С-НПР4л-65.28.35-3+2 Арматурные блоки АНПР4-65.28.3-2+3; АНПР4л-65.28.3-3+2 Арматурные блоки АНПР4-65.28.35-2+3; АНПР4л-65.28.35-3+2 Панели С-НПР4-65.27.3-2+3; С-НПР4-65.27.35-2+3; С-НПР4л-65.27.3-3+2; С-НПР4л-65.27.35-3+2 Арматурные блоки АНПР4-65.27.3-2+3; АНПР4л-65.27.3-3+2 Арматурные блоки АНПР4-65.27.35-2+3; АНПР4л-65.27.35-3+2 Панели С-НПР4-65.28.3-2+3б; С-НПР4-65.28.35-2+3б; С-НПР4л-65.28.3-3б+2; С-НПР4л-65.28.35-3б+2 Арматурные блоки АНПР4-65.28.3-2+3б; АНПР4л-65.28.3-3б+2 Арматурные блоки АНПР4-65.28.35-2+3б; АНПР4л-65.28.35-3б+2 Панели С-НПР4-65.28.3-2б+3; С-НПР4-65.28.35-2б+3; С-НПР4л-65.28.3-3+2б; С-НПР4л-65.28.35-3+2б Арматурные блоки АНПР4-65.28.3-2б+3; АНПР4л-65.28.3-3+2б Арматурные блоки АНПР4-65.28.35-2б+3; АНПР4л-65.28.35-3+2б Панели С-НПР4-65.28.3-3+2; С-НПР4-65.28.35-3+2; С-НПР4л-65.28.3-2+3; С-НПР4л-65.28.35-2+3 Арматурные блоки АНПР4-65.28.3-3+2; АНПР4л-65.28.3-2+3 Арматурные блоки АНПР4-65.28.35-3+2; АНПР4л-65.28.35-2+3 Панели С-НПР4-65.27.3-3+2; С-НПР4-65.27.35-3+2; С-НПР4л-65.27.3-2+3; С-НПР4л-65.27.35-2+3 Арматурные блоки АНПР4-65.27.3-3+2; АНПР4л-65.27.3-2+3 Арматурные блоки АНПР4-65.27.35-3+2; АНПР4л-65.27.35-2+3 Панели С-НПР4-65.28.3-3+2б; С-НПР4-65.28.35-3+2б; С-НПР4л-65.28.3-2б+3; С-НПР4л-65.28.35-2б+3 Арматурные блоки АНПР4-65.28.3-3+2б; АНПР4л-65.28.3-2б+3 Арматурные блоки АНПР4-65.28.35-3+2б; АНПР4л-65.28.35-2б+3 Панели С-НПР4-65.28.3-3б+2; С-НПР4-65.28.35-3б+2; С-НПР4л-65.28.3-2+3б; С-НПР4л-65.28.35-2+3б Арматурные блоки АНПР4-65.28.3-3б+2; АНПР4л-65.28.3-2+3б Арматурные блоки АНПР4-65.28.35-3б+2; АНПР4л-65.28.35-2+3б Панели С-НПР5-58.28.3-2+2; С-НПР5-58.28.35-2+2 Арматурный блок АНПР5-58.28.3-2+2 Арматурный блок АНПР5-58.28.35-2+2 Панели С-НПР5-58.27.3-2+2; С-НПР5-58.27.35-2+2 Арматурный блок АНПР5-58.27.3-2+2 Арматурный блок АНПР5-58.27.35-2+2 Панели С-НПР5-58.28.3-2+2б; С-НПР5-58.28.35-2+2б; С-НПР5-58.28.3-2б+2; С-НПР5-58.28.35-2б+2 Арматурные блоки АНПР5-58.28.3-2+2б; АНПР5-58.28.3-2б+2 Арматурные блоки АНПР5-58.28.35-2+2б; АНПР5-58.28.35-2б+2 Панели С-НПР5-64.28.3-3+2; С-НПР5-64.28.35-3+2; С-НПР5-64.28.3-2+3; С-НПР5-64.28.35-2+3 Арматурные блоки АНПР5-64.28.3-3+2; АНПР5-64.28.3-2+3 Арматурные блоки АНПР5-64.28.35-3+2; АНПР5-64.28.35-2+3 Панели С-НПР5-64.27.3-3+2; С-НПР5-64.27.35-3+2; С-НПР5-64.27.3-2+3; С-НПР5-64.27.35-2+3 Арматурные блоки АНПР5-64.27.3-3+2; АНПР5-64.27.3-2+3 Арматурные блоки АНПР5-64.27.35-3+2; АНПР5-64.27.35-2+3 Панели С-НПР5-64.28.3-3+2б; С-НПР5-64.28.35-3+2б; С-НПР5-64.28.3-2б+3; С-НПР5-64.28.35-2б+3 Арматурные блоки АНПР5-64.28.3-3+2б; АНПР5-64.28.3-2б+3 Арматурные блоки АНПР5-64.28.35-3+2б; АНПР5-64.28.35-2б+3 Панели С-НПР5-64.28.3-3б+2; С-НПР5-64.28.35-3б+2; С-НПР5-64.28.3-2+3б; С-НПР5-64.28.35-2+3б Арматурные блоки АНПР5-64.28.3-3б+2; АНПР5-64.28.3-2+3б Арматурные блоки АНПР5-64.28.35-3б+2; АНПР5-64.28.35-2+3б Расход стали на панели толщиной 300 мм Расход стали на панели толщиной 350 мм |
| Разработан: | ЦНИИСК им. В.А. Кучеренко ЦНИИЭП жилища |
| Утверждён: | 06.06.1980 Госгражданстрой (Gosgrazhdanstroy 149) |






























































































