Скачать Серия 1.131.1-25 Выпуск 1. Панели толщиной 120 и 160 мм. Рабочие чертежиДата актуализации: 01.01.2021
|
| Обозначение: | Серия 1.131.1-25 |
| Обозначение англ: | Series 1.131.1-25 |
| Статус: | не определен законодательством |
| Название рус.: | Выпуск 1. Панели толщиной 120 и 160 мм. Рабочие чертежи |
| Дата добавления в базу: | 01.09.2013 |
| Дата актуализации: | 01.01.2021 |
| Дата введения: | 30.01.1986 |
| Дата окончания срока действия: | 30.06.2003 |
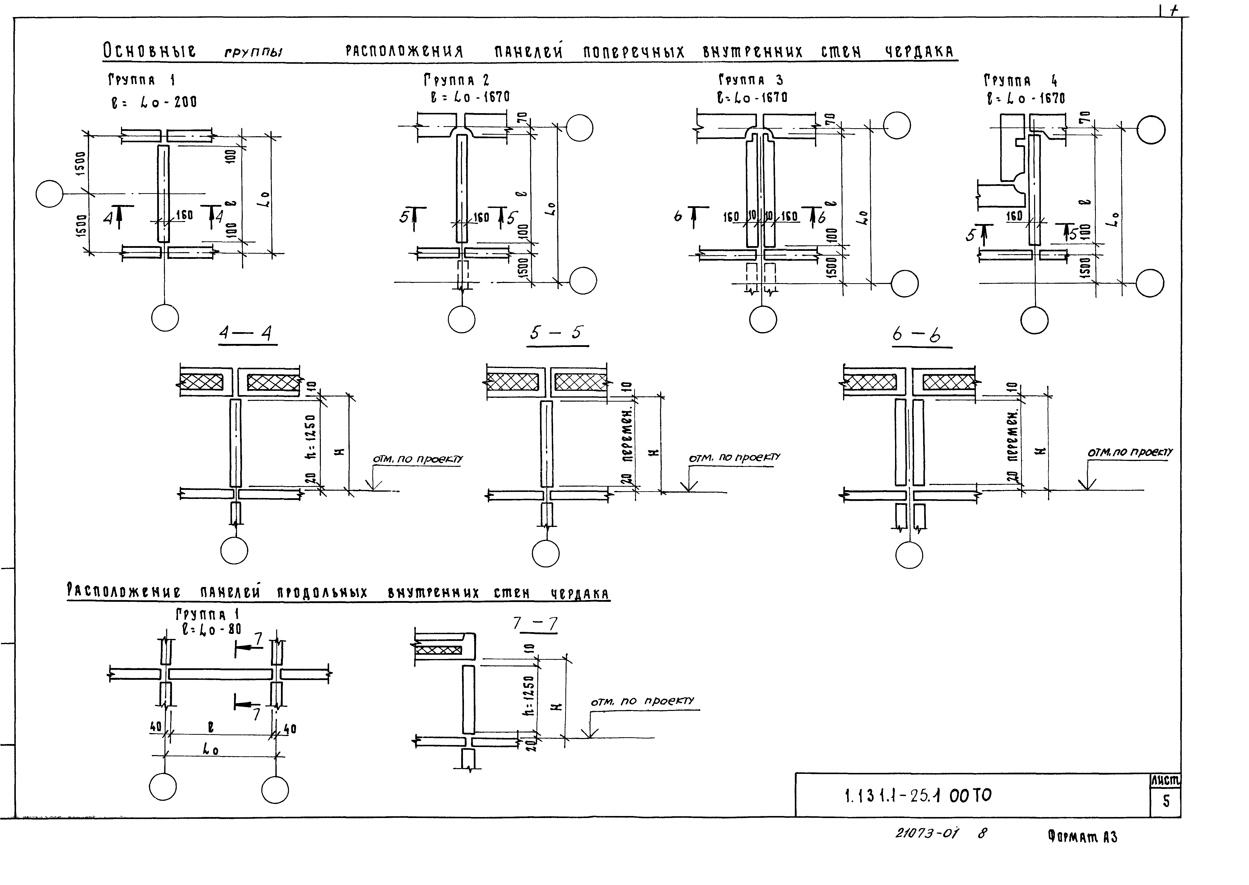
| Область применения: | Рабочие чертежи панелей внутренних стен предназначены для проектирования и строительства жилых 5 и 9 - этажных домов с высотой этажа 3,0 м |
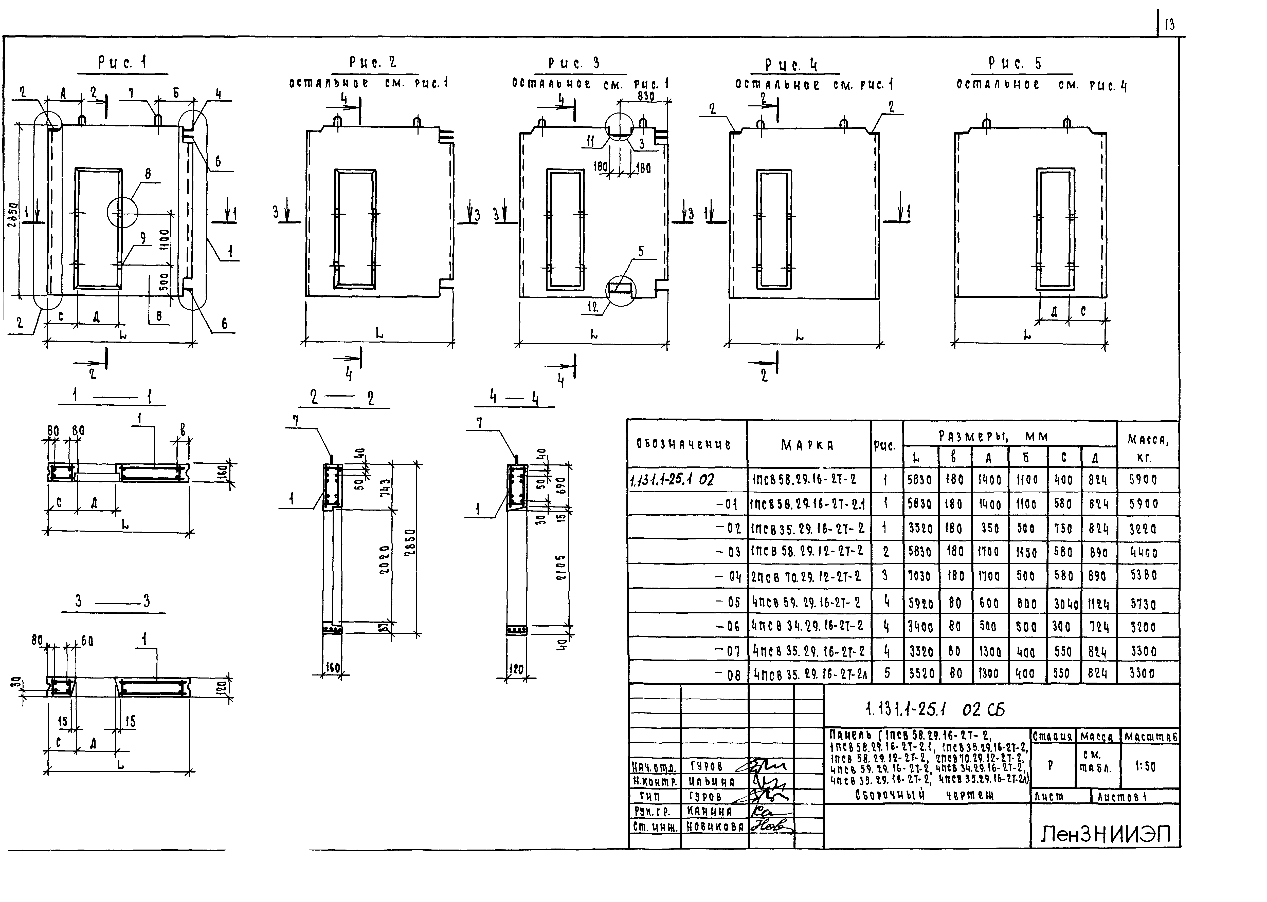
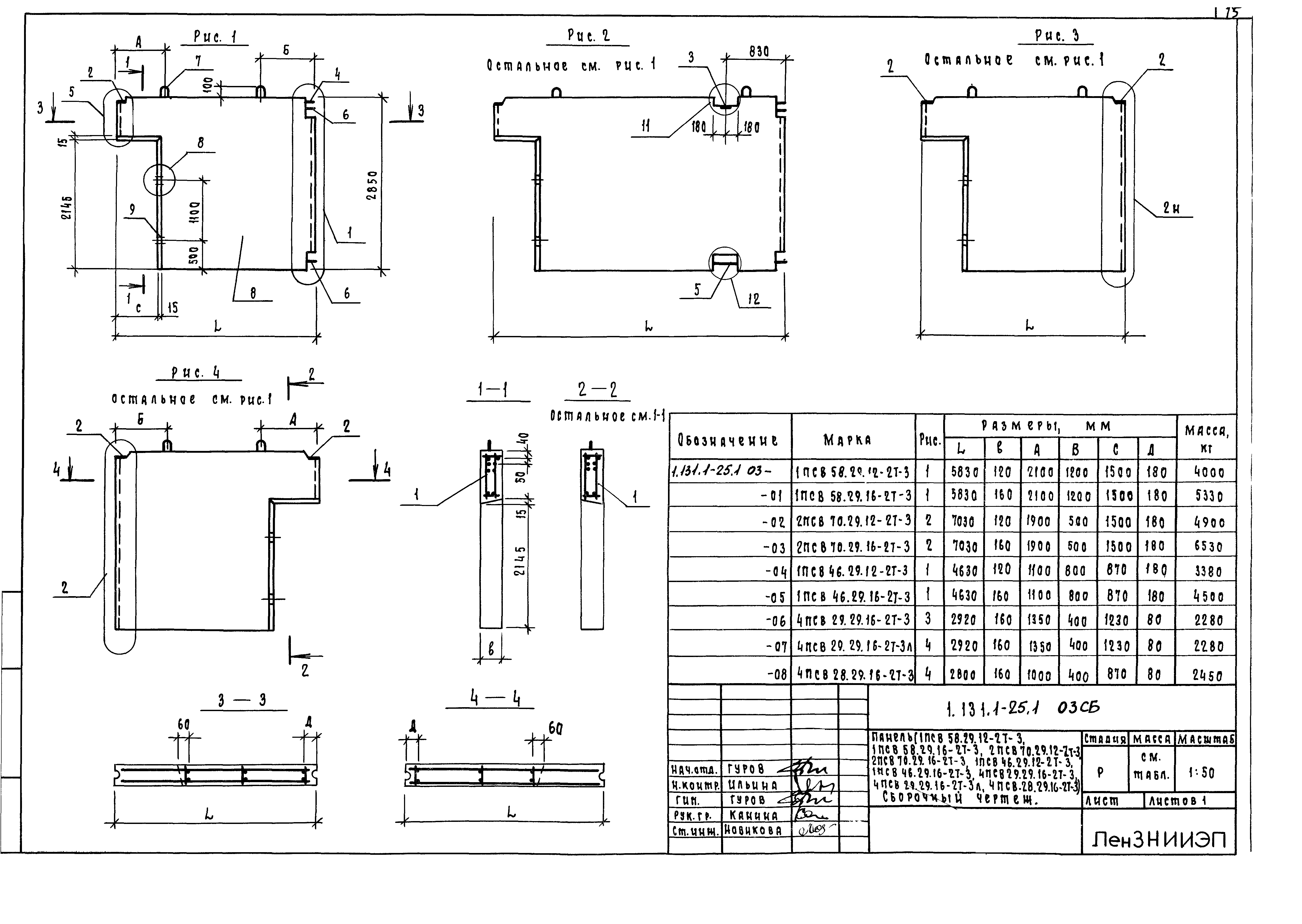
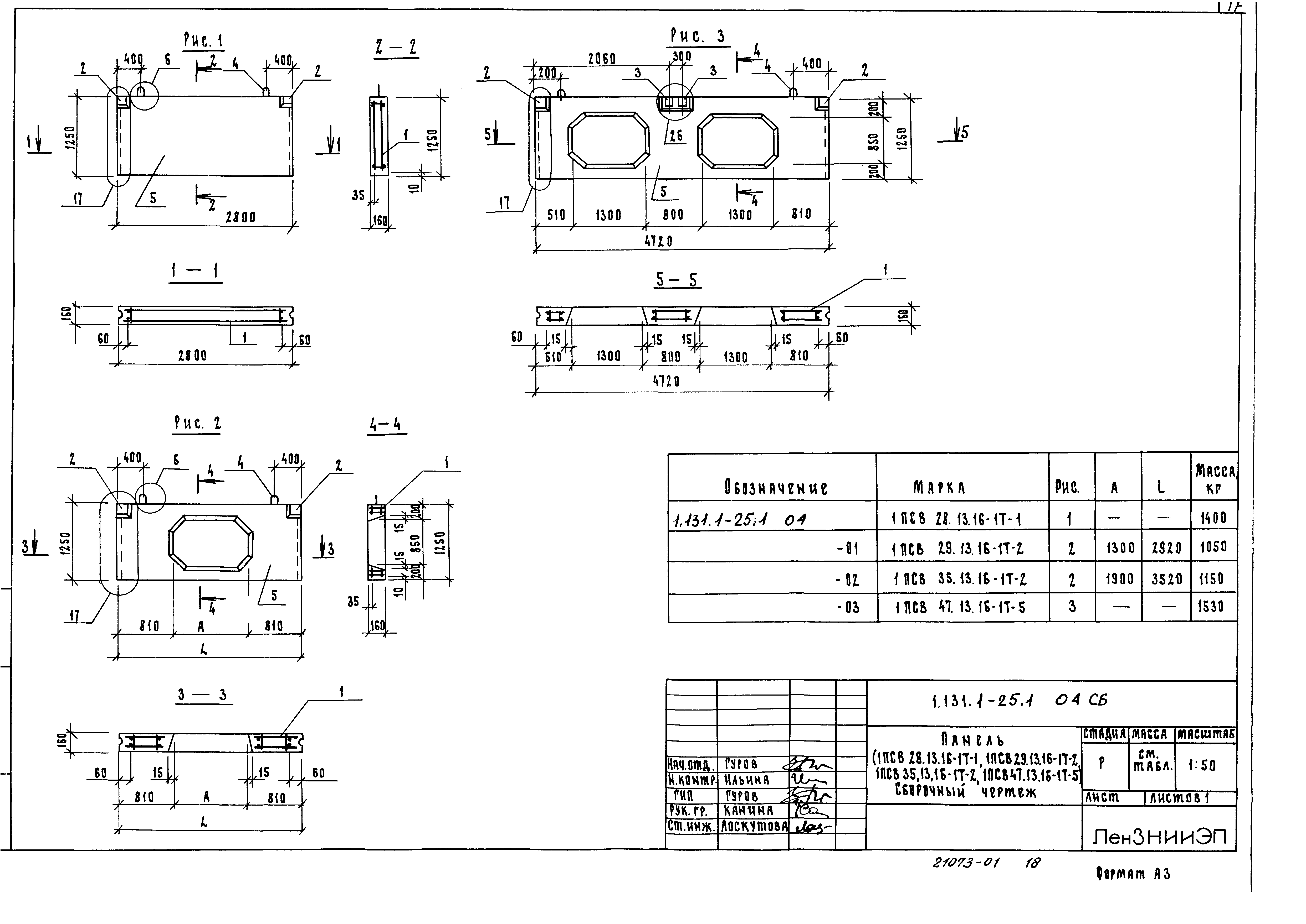
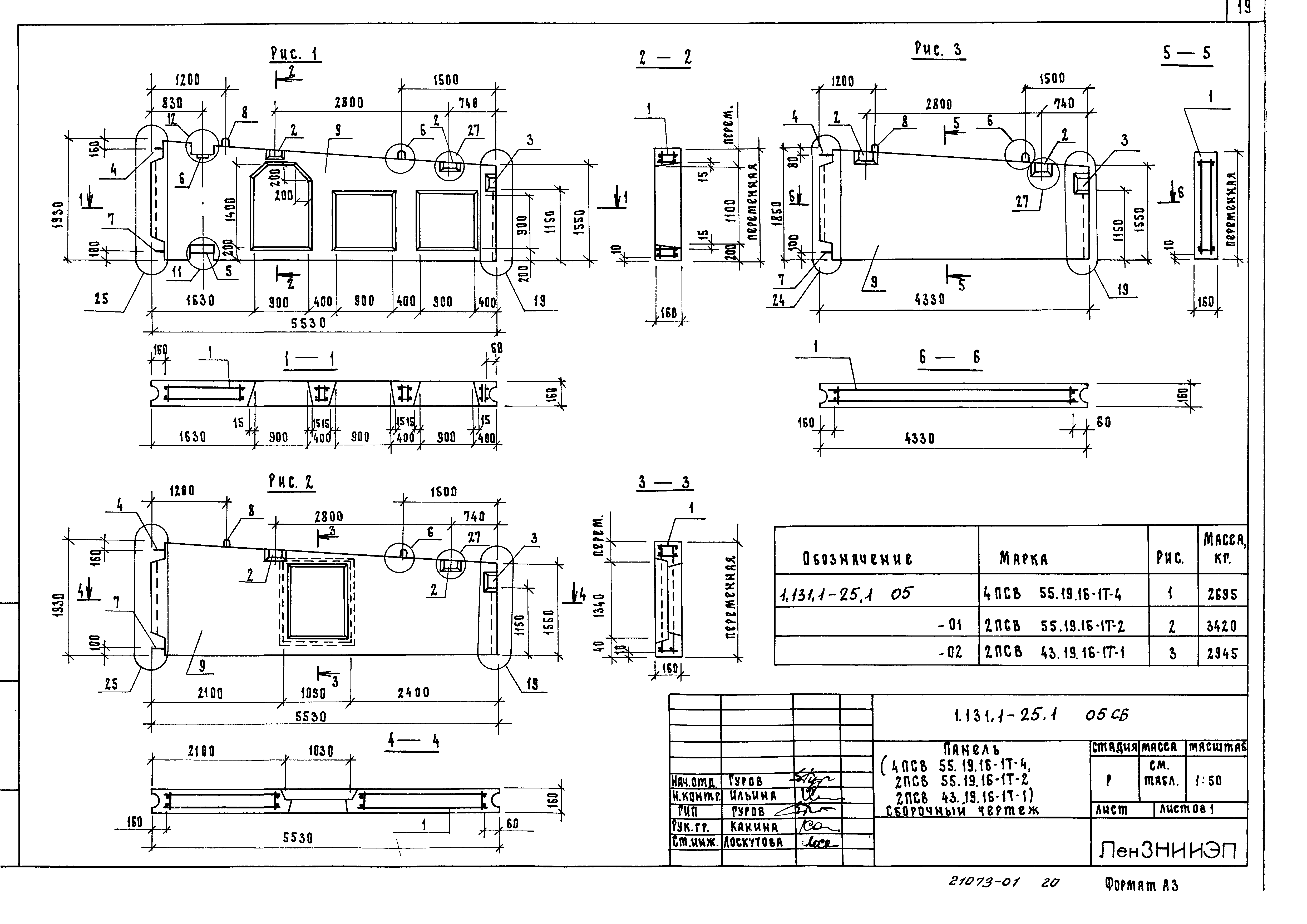
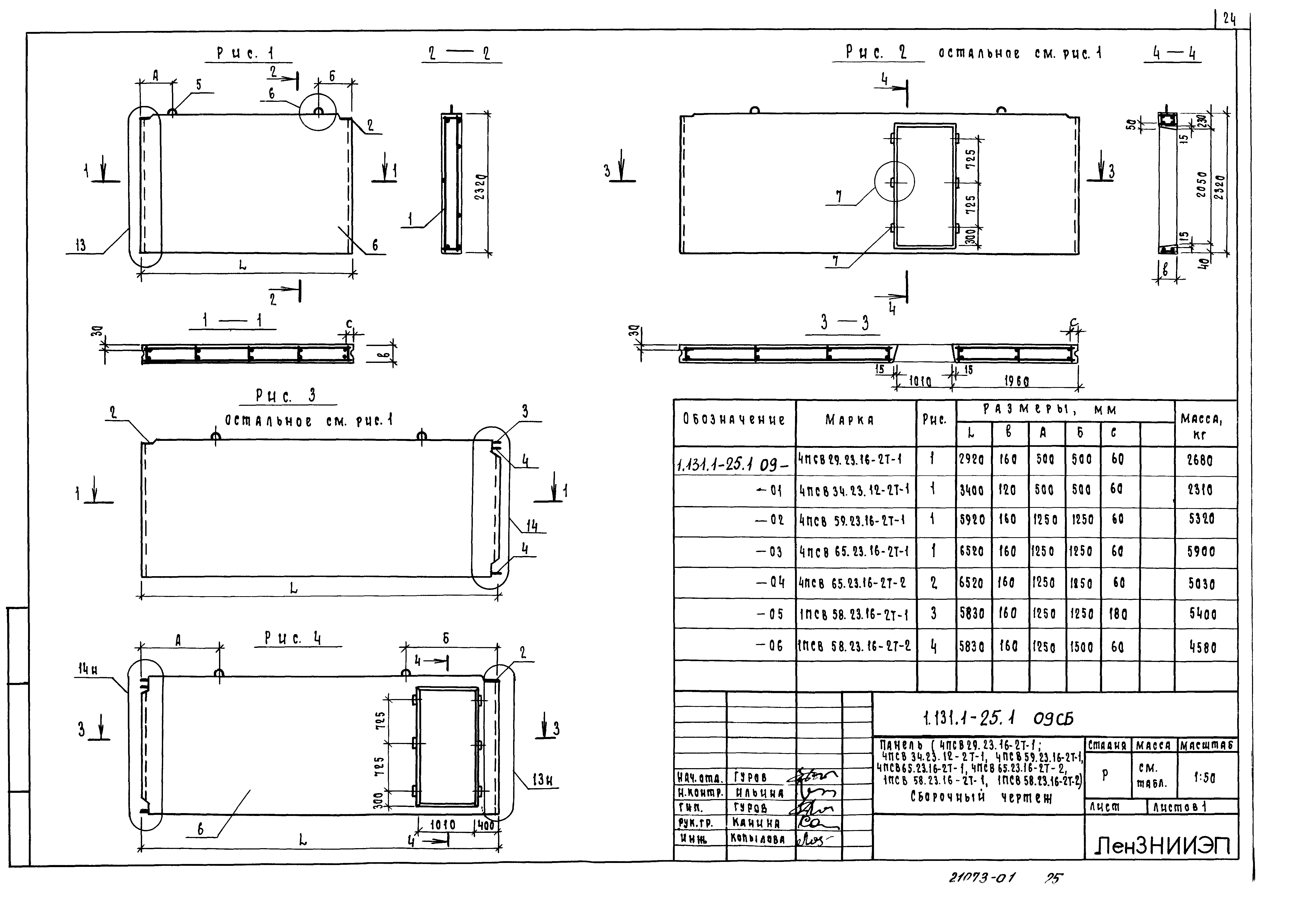
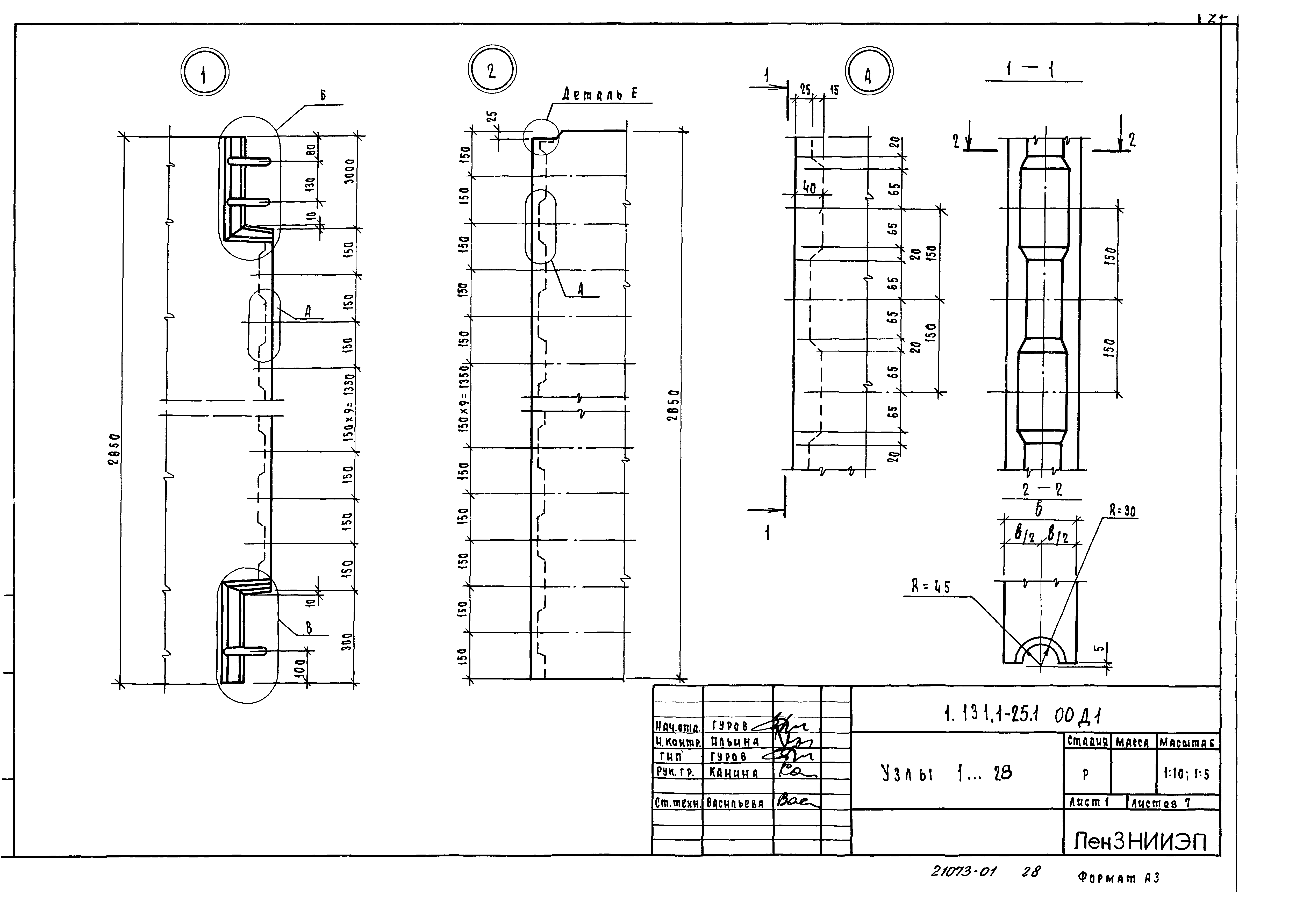
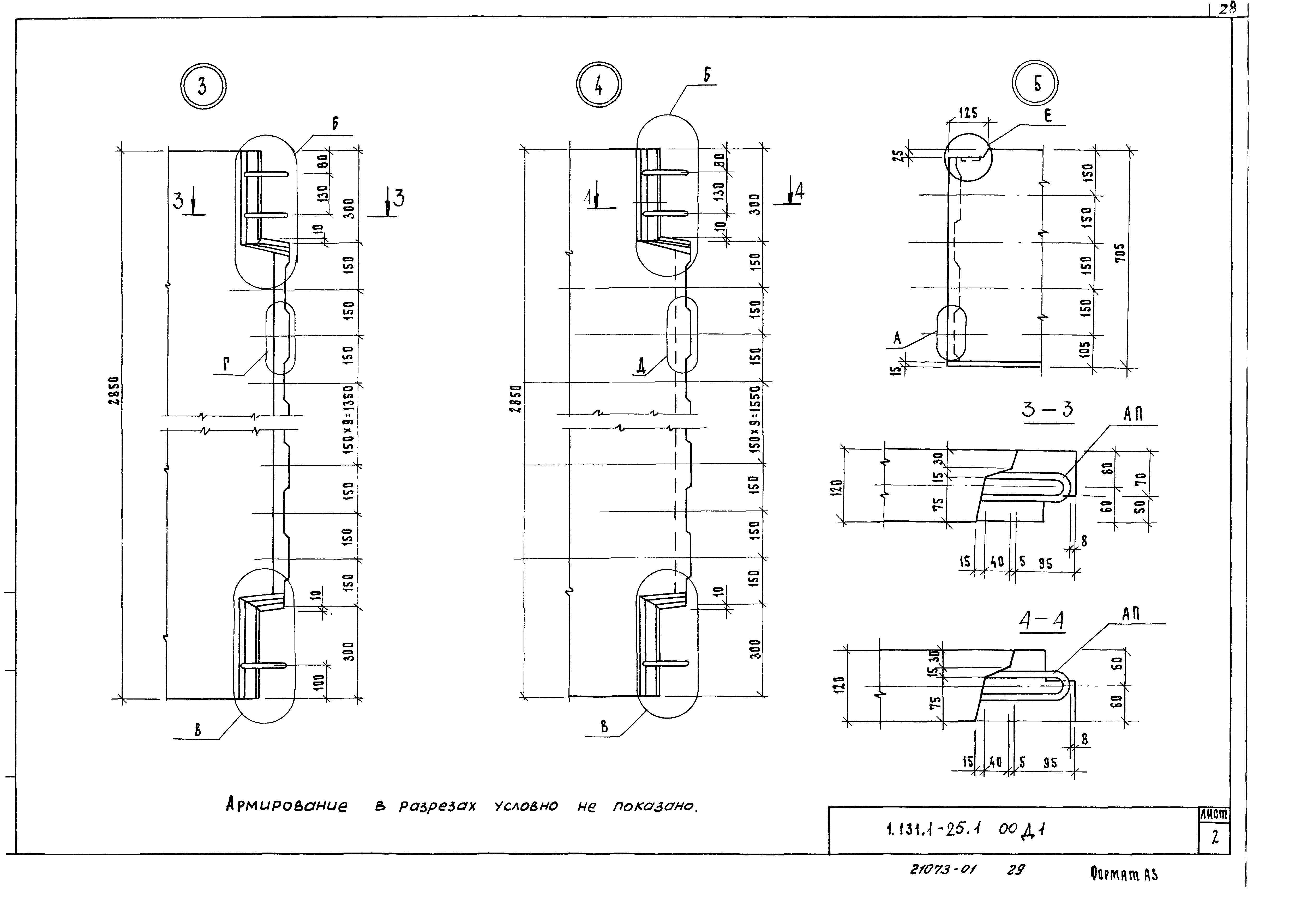
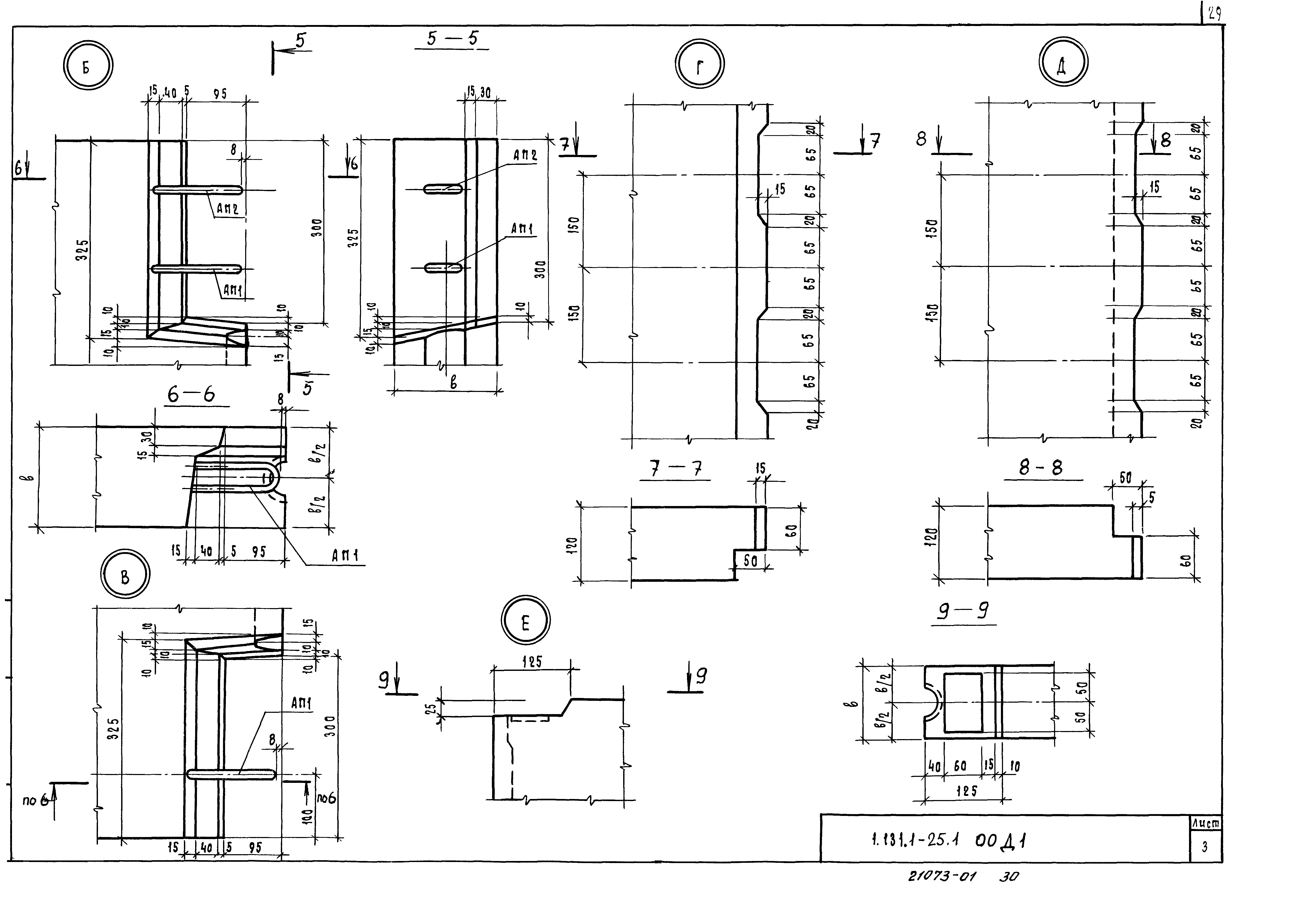
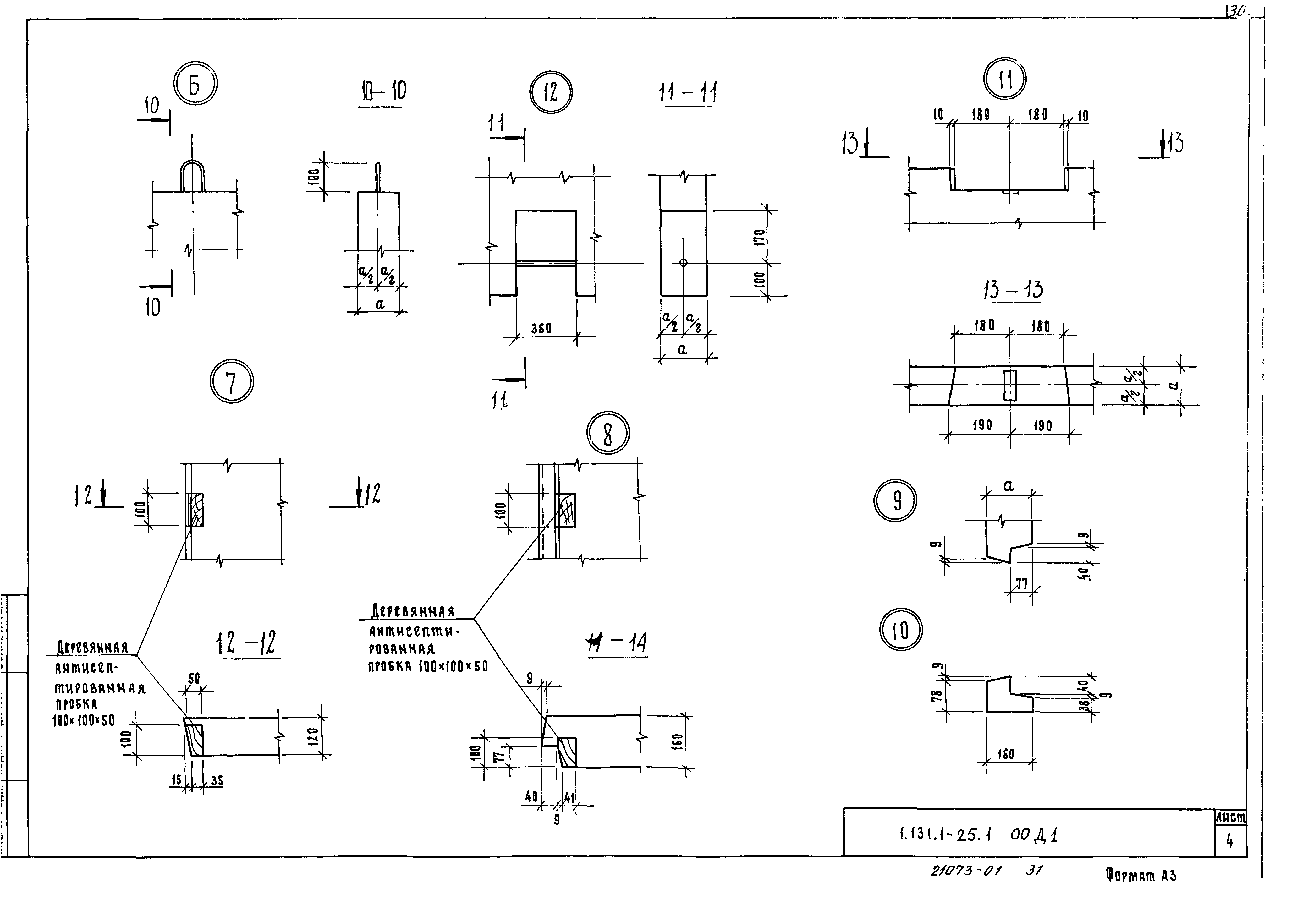
| Оглавление: | 1.131.1-25.1 00 ТО Техническое описание 1.131.1-25.1 00 НИ Номенклатура панелей 1.131.1-25.1 01 Панель (1ПСВ 58.29.16-1Т-1, 1ПСВ 29.29.16-1Т-1, 1ПСВ 58.29.16-1Т-1, 3ПСВ 58.29.12-1Т-1, 3ПСВ 70.29.12-1Т-1, 3ПСВ 58.29.12-1Т-1л, 3ПСВ 70.29.12-1Т-1л, 4ПСВ 29.29.16-1Т-1, 4ПСВ 28.29.16-1Т-1) 1.131.1-25.1 01 СБ Панель (1ПСВ 58.29.16-1Т-1, 1ПСВ 29.29.16-1Т-1, 1ПСВ 58.29.16-1Т-1, 3ПСВ 58.29.12-1Т-1, 3ПСВ 70.29.12-1Т-1, 3ПСВ 58.29.12-1Т-1л, 3ПСВ 70.29.12-1Т-1л, 4ПСВ 29.29.16-1Т-1, 4ПСВ 28.29.16-1Т-1). Сборочный чертеж 1.131.1-25.1 02 Панель (1ПСВ 58.29.16-2Т-2, 1ПСВ 58.29.16-2Т-2.1, 1ПСВ 35.29.16-2Т-2, 1ПСВ 58.29.12-2Т-2, 2ПСВ 70.29.12-2Т-2, 4ПСВ 59.29.16-2Т-2, 4ПСВ 34.29.16-2Т-2, 4ПСВ 35.29.16-2Т-2, 4ПСВ 35.29.16-2Т-2л) 1.131.1-25.1 02 СБ Панель (1ПСВ 58.29.16-2Т-2, 1ПСВ 58.29.16-2Т-2.1, 1ПСВ 35.29.16-2Т-2, 1ПСВ 58.29.12-2Т-2, 2ПСВ 70.29.12-2Т-2, 4ПСВ 59.29.16-2Т-2, 4ПСВ 34.29.16-2Т-2, 4ПСВ 35.29.16-2Т-2, 4ПСВ 35.29.16-2Т-2л). Сборочный чертеж 1.131.1-25.1 03 Панель (1ПСВ 58.29.12-2Т-3, 1ПСВ 58.29.16-2Т-3, 2ПСВ 70.29.17-2Т-3, 2ПСВ 70.29.16-2Т-3, 1ПСВ 46.29.12-2Т-3, 1ПСВ 46.29.16-2Т-3, 4ПСВ 29.29.16-2Т-3, 4ПСВ 29.29.16-2Т-3л, 4ПСВ 28.29.16-2Т-3) 1.131.1-25.1 03 СБ Панель (1ПСВ 58.29.12-2Т-3, 1ПСВ 58.29.16-2Т-3, 2ПСВ 70.29.17-2Т-3, 2ПСВ 70.29.16-2Т-3, 1ПСВ 46.29.12-2Т-3, 1ПСВ 46.29.16-2Т-3, 4ПСВ 29.29.16-2Т-3, 4ПСВ 29.29.16-2Т-3л, 4ПСВ 28.29.16-2Т-3). Сборочный чертеж 1.131.1-25.1 04 Панель (1ПСВ 28.13 .16-1Т-1, 1ПСВ 29.13.16-1Т-2, 1ПСВ 35.13.16-1Т-2, 1ПСВ 47.13.16-1Т-5) 1.131.1-25.1 04 СБ Панель (1ПСВ 28.13 .16-1Т-1, 1ПСВ 29.13.16-1Т-2, 1ПСВ 35.13.16-1Т-2, 1ПСВ 47.13.16-1Т-5). Сборочный чертеж 1.131.1-25.1 05 Панель (4ПСВ 55.19.16-1Т-4, 2ПСВ 55.19.16-1Т-2, 2ПСВ 43.19.16-1Т-1) 1.131.1-25.1 05 СБ Панель (4ПСВ 55.19.16-1Т-4, 2ПСВ 55.19.16-1Т-2, 2ПСВ 43.19.16-1Т-1). Сборочный чертеж 1.131.1-25.1 06 Панель (2ПСВ 43.19.16-1Т-4, 2ПСВ 43.19.16-1Т-2) 1.131.1-25.1 07 Панель (3ПСВ 43.19.16-1Т-2, 3ПСВ 43.19.16-1Т-2л) 1.131.1-25.1 08 Панель (3ПСВ 55.19.16-1Т-2, 3ПСВ 55.19.16-1Т-2л) 1.131.1-25.1 09 Панель (4ПСВ 29.23.16-2Т-1, 4ПСВ 34.23.12-2Т-1, 4ПСВ 59.23.16-2Т-1, 4ПСВ 65.23.16-2Т-1, 4ПСВ 65.23.16-2Т-2, 1ПСВ 58.23.16-2Т-1, 1ПСВ 58.23.16-2Т-2) 1.131.1-25.1 09 СБ Панель (4ПСВ 29.23.16-2Т-1, 4ПСВ 34.23.12-2Т-1, 4ПСВ 59.23.16-2Т-1, 4ПСВ 65.23.16-2Т-1, 4ПСВ 65.23.16-2Т-2, 1ПСВ 58.23.16-2Т-1, 1ПСВ 58.23.16-2Т-2). Сборочный чертеж 1.131.1-25.1 10 Панель (1ПСВ 58.23.16-2Т-4, 3ПСВ 58.23.12-2Т-4, 3ПСВ 58.23.12-2Т-4л, 2ПСВ 70.23.16-2Т-4, 3ПСВ 70.73.12-2Т-4, 3ПСВ 70.23.12-2Т-4л) 1.131.1-25.1 10 СБ Панель (1ПСВ 58.23.16-2Т-4, 3ПСВ 58.23.12-2Т-4, 3ПСВ 58.23.12-2Т-4л, 2ПСВ 70.23.16-2Т-4, 3ПСВ 70.73.12-2Т-4, 3ПСВ 70.23.12-2Т-4л). Сборочный чертеж 1.131.1-25.1 00 Д1 Узлы 1… 28 1.131.1-25.1 00 РС Ведомость расхода стали 1.131.1-25.1 00 Д2 Схемы испытаний панелей внутренних стеновых панелей 1.131.1-25.1 00 РМ Ведомость расхода материалов |
| Разработан: | ЛенЗНИИЭП Госгражданстроя |
| Утверждён: | 20.01.1986 Госгражданстрой (Gosgrazhdanstroy 23) |
| Издан: | ЦИТП Госстроя СССР (CITP, Gosstroy (USSR) 1986 г. ) |
| Нормативные ссылки: |
|














































