Скачать Серия 1.131.1-25 Выпуск 2. Панели толщиной 120 и 160 мм. Арматурные и закладные изделия. Рабочие чертежиДата актуализации: 01.01.2021
|
| Обозначение: | Серия 1.131.1-25 |
| Обозначение англ: | Series 1.131.1-25 |
| Статус: | не определен законодательством |
| Название рус.: | Выпуск 2. Панели толщиной 120 и 160 мм. Арматурные и закладные изделия. Рабочие чертежи |
| Дата добавления в базу: | 01.09.2013 |
| Дата актуализации: | 01.01.2021 |
| Дата введения: | 30.01.1986 |
| Дата окончания срока действия: | 30.06.2003 |
| Область применения: | В настоящем выпуске представлены рабочие чертежи арматурных и закладных изделий для внутренних стеновых панелей |
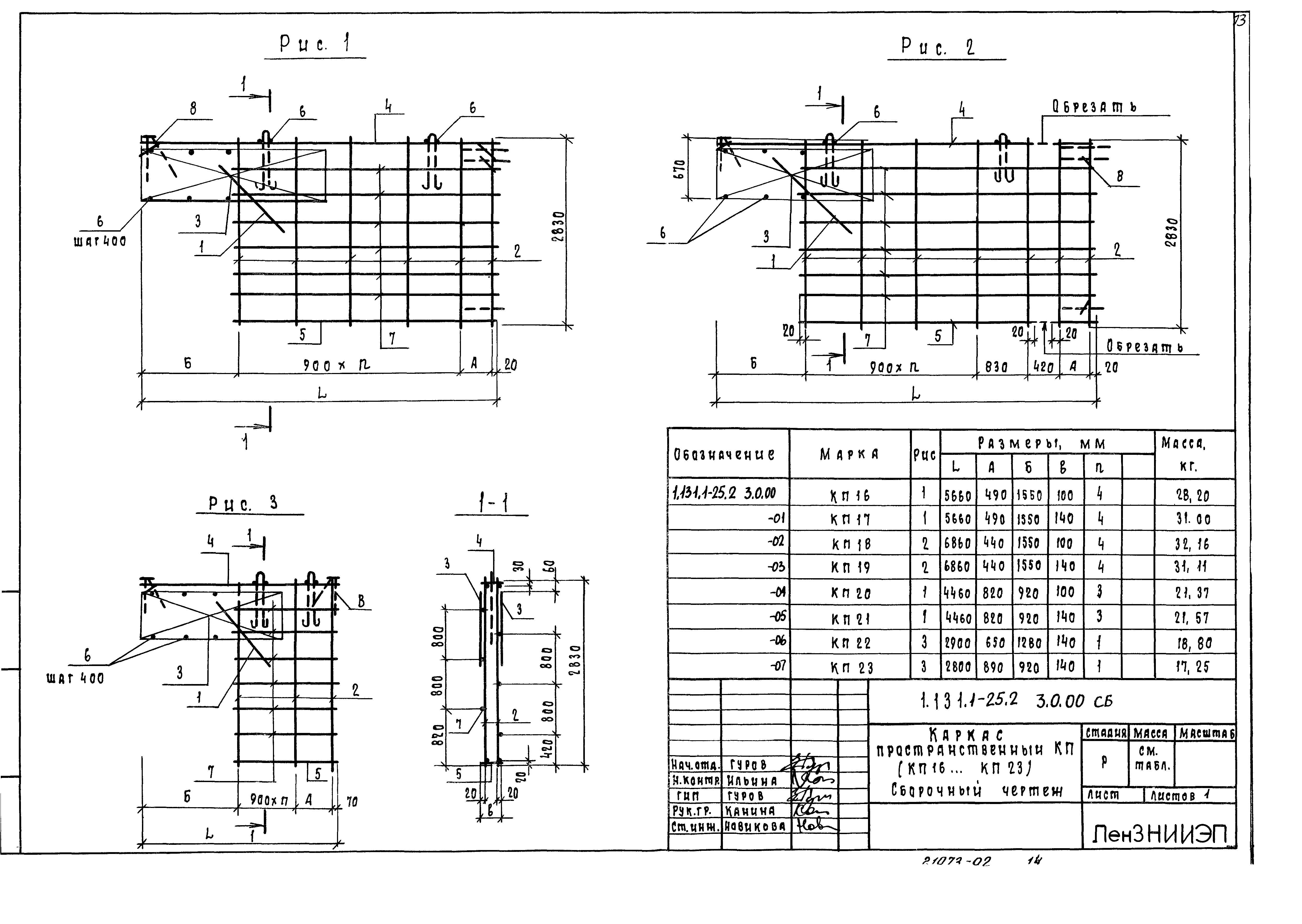
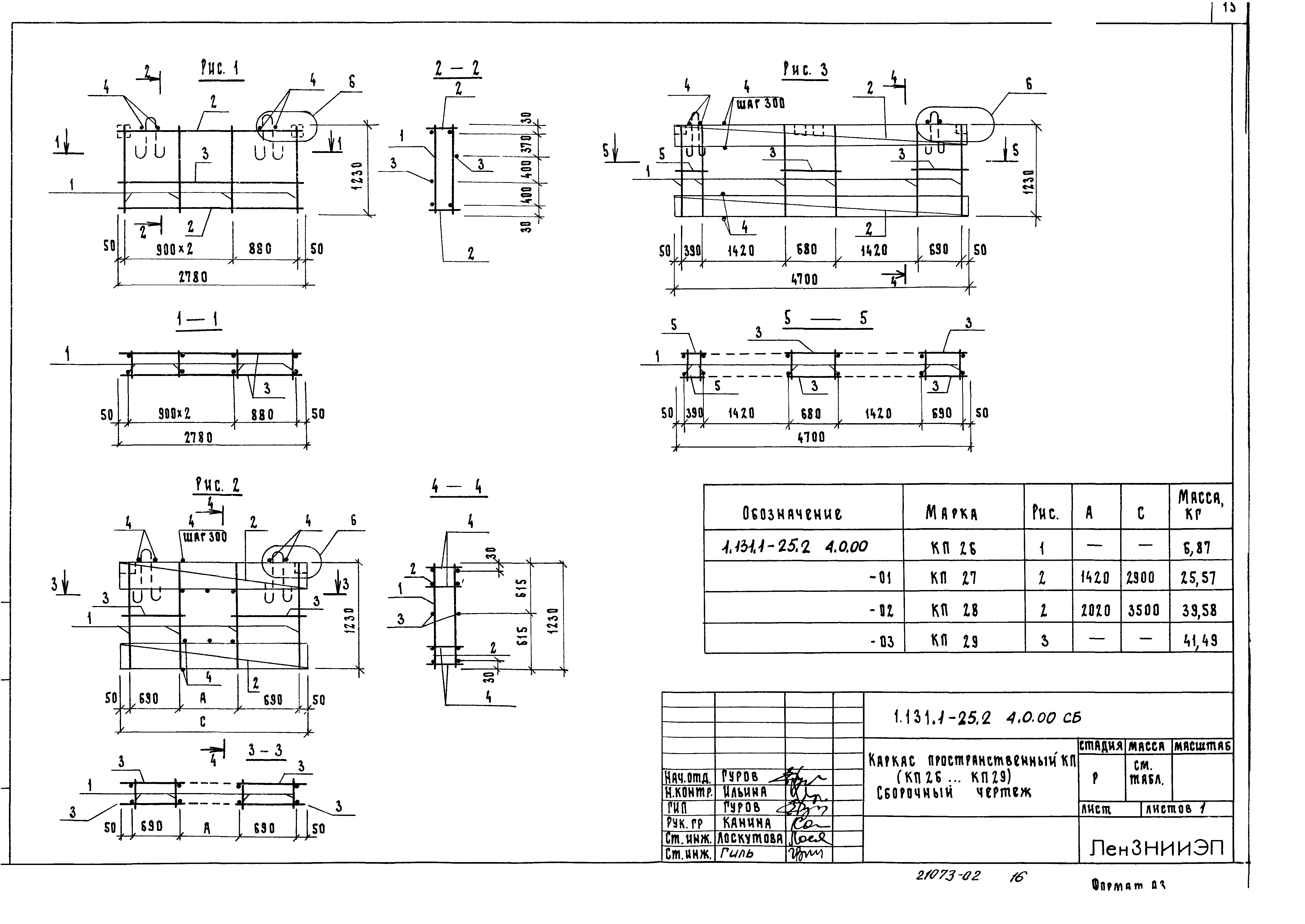
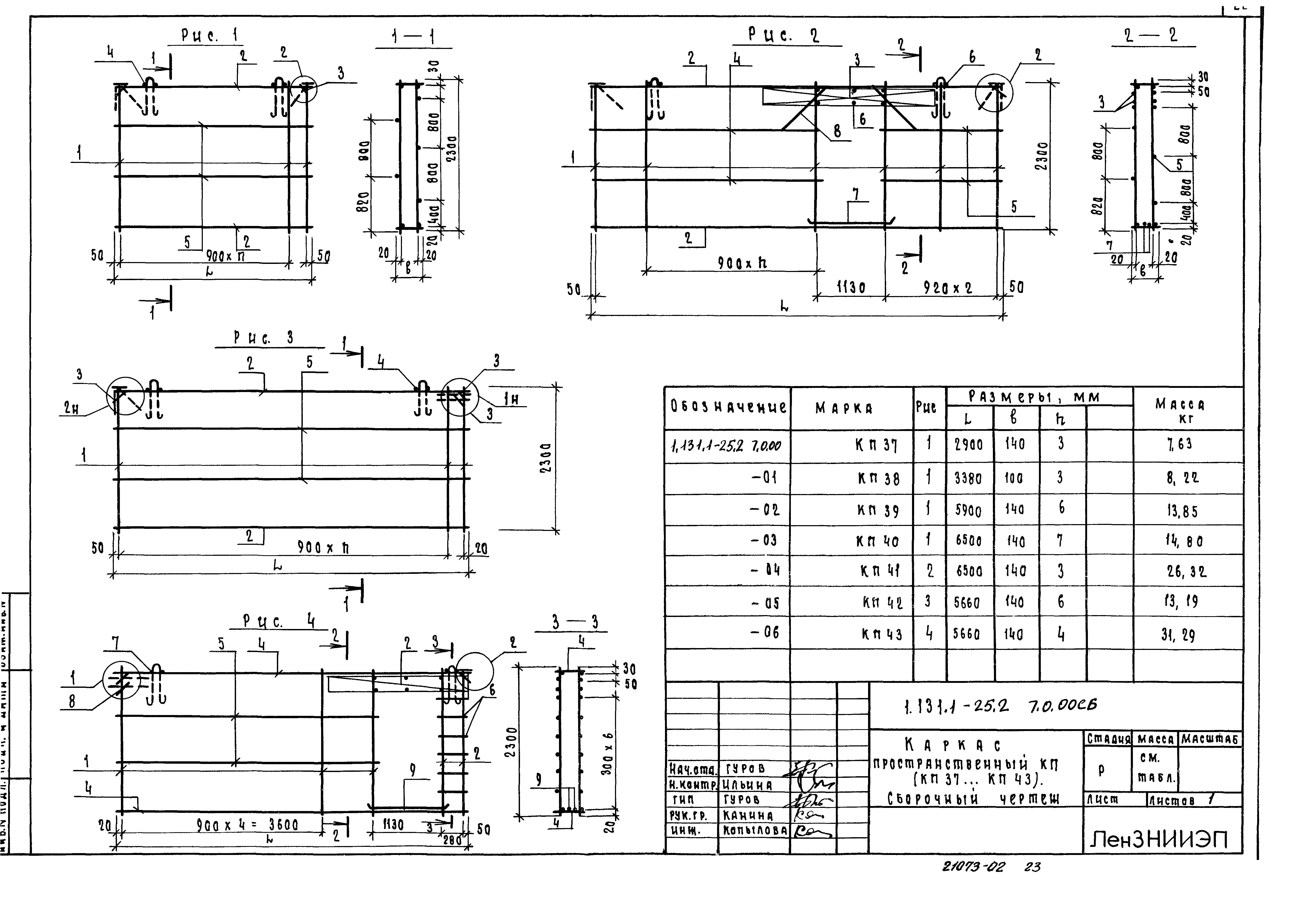
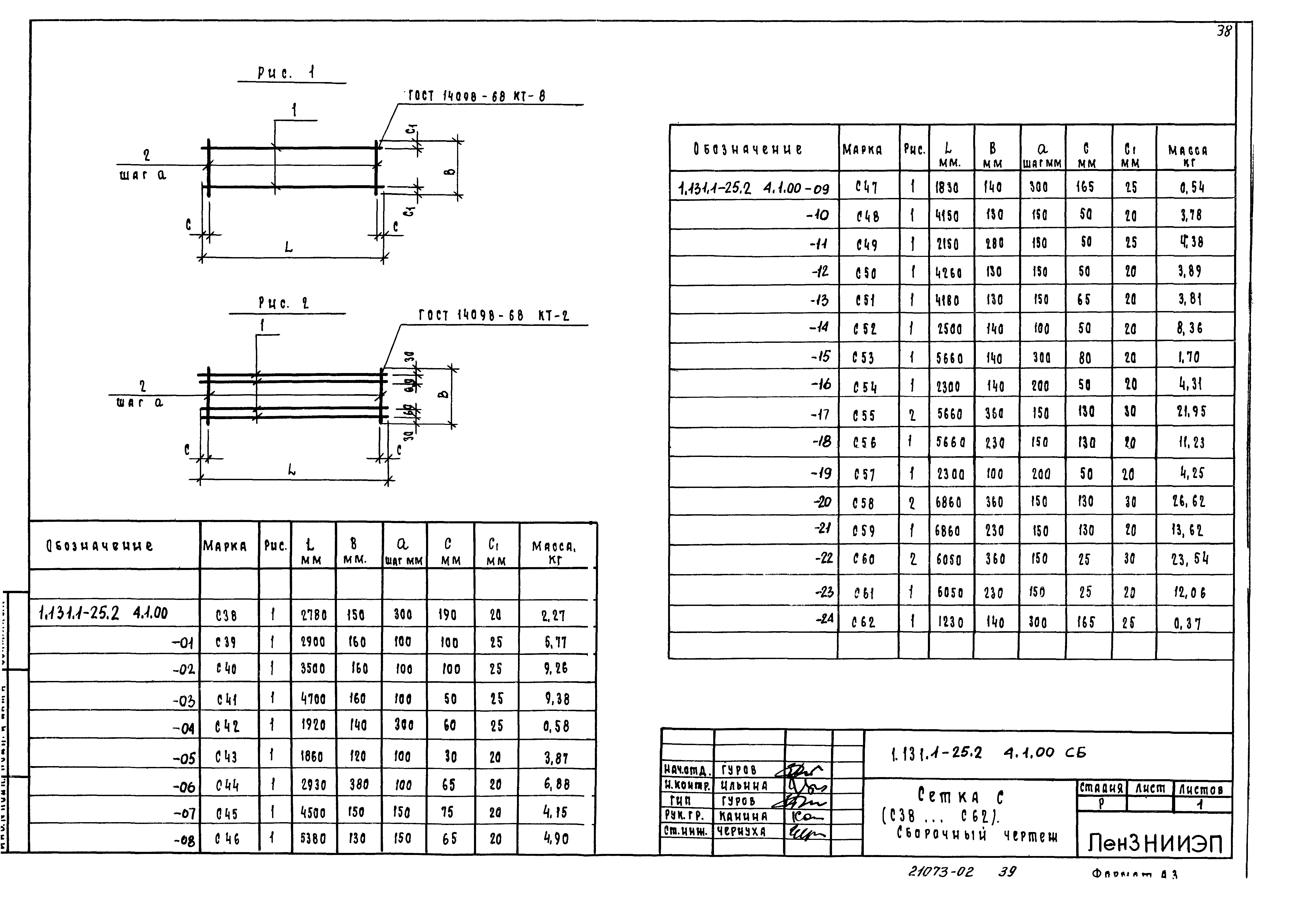
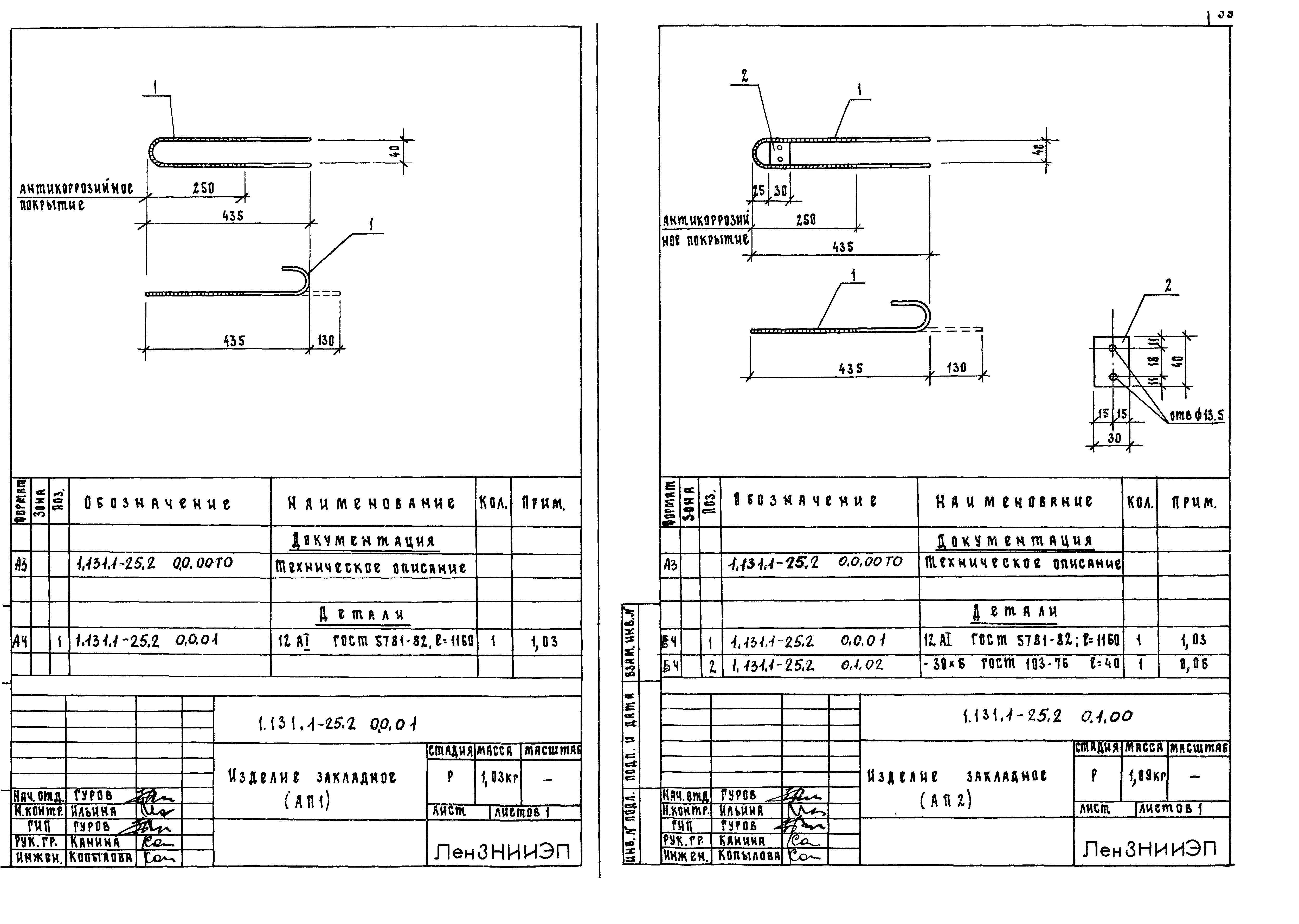
| Оглавление: | 1.131.1-25.2 0.0.00 ТО Техническое описание 1.131.1-25.2 1.0.00 Каркас пространственный КП (КП1… КП7) 1.131.1-25.2 1.0.00 СБ Каркас пространственный КП (КП1… КП7). Сборочный чертеж 1.131.1-25.2 2.0.00 Каркас пространственный КП (КП8… КП15) 1.131.1-25.2 2.0.00 СБ Каркас пространственный КП (КП8… КП15). Сборочный чертеж 1.131.1-25.2 3.0.00 Каркас пространственный КП (КП16… КП23) 1.131.1-25.2 3.0.00 СБ Каркас пространственный КП (КП16… КП23). Сборочный чертеж 1.131.1-25.2 4.0.00 Каркас пространственный КП (КП26… КП29) 1.131.1-25.2 4.0.00 СБ Каркас пространственный КП (КП26… КП29). Сборочный чертеж 1.131.1-25.2 5.0.00 Каркас пространственный КП (КП30… КП32) 1.131.1-25.2 5.0.00 СБ Каркас пространственный КП (КП30… КП32). Сборочный чертеж 1.131.1-25.2 6.0.00 Каркас пространственный КП (КП33… КП36) 1.131.1-25.2 6.0.00 СБ Каркас пространственный КП (КП33… КП36). Сборочный чертеж 1.131.1-25.2 7.0.00 Каркас пространственный КП (КП37… КП43) 1.131.1-25.2 7.0.00 СБ Каркас пространственный КП (КП37… КП43). Сборочный чертеж 1.131.1-25.2 8.0.00 Каркас пространственный КП (КП44… КП47) 1.131.1-25.2 8.0.00 СБ Каркас пространственный КП (КП44… КП47). Сборочный чертеж 1.131.1-25.2 0.0.00 Д1 Узлы 1… 12 1.131.1-25.2 1.1.00 Сетка С (С1… С37) 1.131.1-25.2 1.1.00 СБ Сетка С (С1… С37). Сборочный чертеж 1.131.1-25.2 4.1.00 Сетка С (С38… С62) 1.131.1-25.2 4.1.00 СБ Сетка С (С38… С62). Сборочный чертеж 1.131.1-25.2 0.0.01 Изделие закладное (ЛП1) 1.131.1-25.2 0.1.00 Изделие закладное (ЛП2) 1.131.1-25.2 0.2.00 Изделие закладное (ЛП3) 1.131.1-25.2 0.3.00 Изделие закладное (М1) 1.131.1-25.2 0.4.00 Изделие закладное (М3… М6) 1.131.1-25.2 0.4.00 СБ Изделие закладное (М3… М6). Сборочный чертеж 1.131.1-25.2 0.5.00 Изделие закладное (М2) 1.131.1-25.2 0.6.00 Изделие закладное (М7) 1.131.1-25.2 0.0.02 Петля (П1… П5); стержень отдельный (С01, С02); изделие закладное (АВ1… АВ3) |
| Разработан: | ЛенЗНИИЭП Госгражданстроя |
| Утверждён: | 20.01.1986 Госгражданстрой (Gosgrazhdanstroy 23) |
| Издан: | ЦИТП Госстроя СССР (CITP, Gosstroy (USSR) 1986 г. ) |
| Нормативные ссылки: |
|












































