Скачать Серия 1.134-2 Выпуск 6. Блоки внутренних стен из легких бетонов толщиной 16 и 20 см для жилых зданий высотой 1 - 4 этажа и общественных зданий высотой 1 - 3 этажа. Опалубочные чертежи, армированиеДата актуализации: 01.01.2021
|
| Обозначение: | Серия 1.134-2 |
| Обозначение англ: | Series 1.134-2 |
| Статус: | действует |
| Название рус.: | Выпуск 6. Блоки внутренних стен из легких бетонов толщиной 16 и 20 см для жилых зданий высотой 1 - 4 этажа и общественных зданий высотой 1 - 3 этажа. Опалубочные чертежи, армирование |
| Дата добавления в базу: | 01.09.2013 |
| Дата актуализации: | 01.01.2021 |
| Дата введения: | 01.04.1981 |
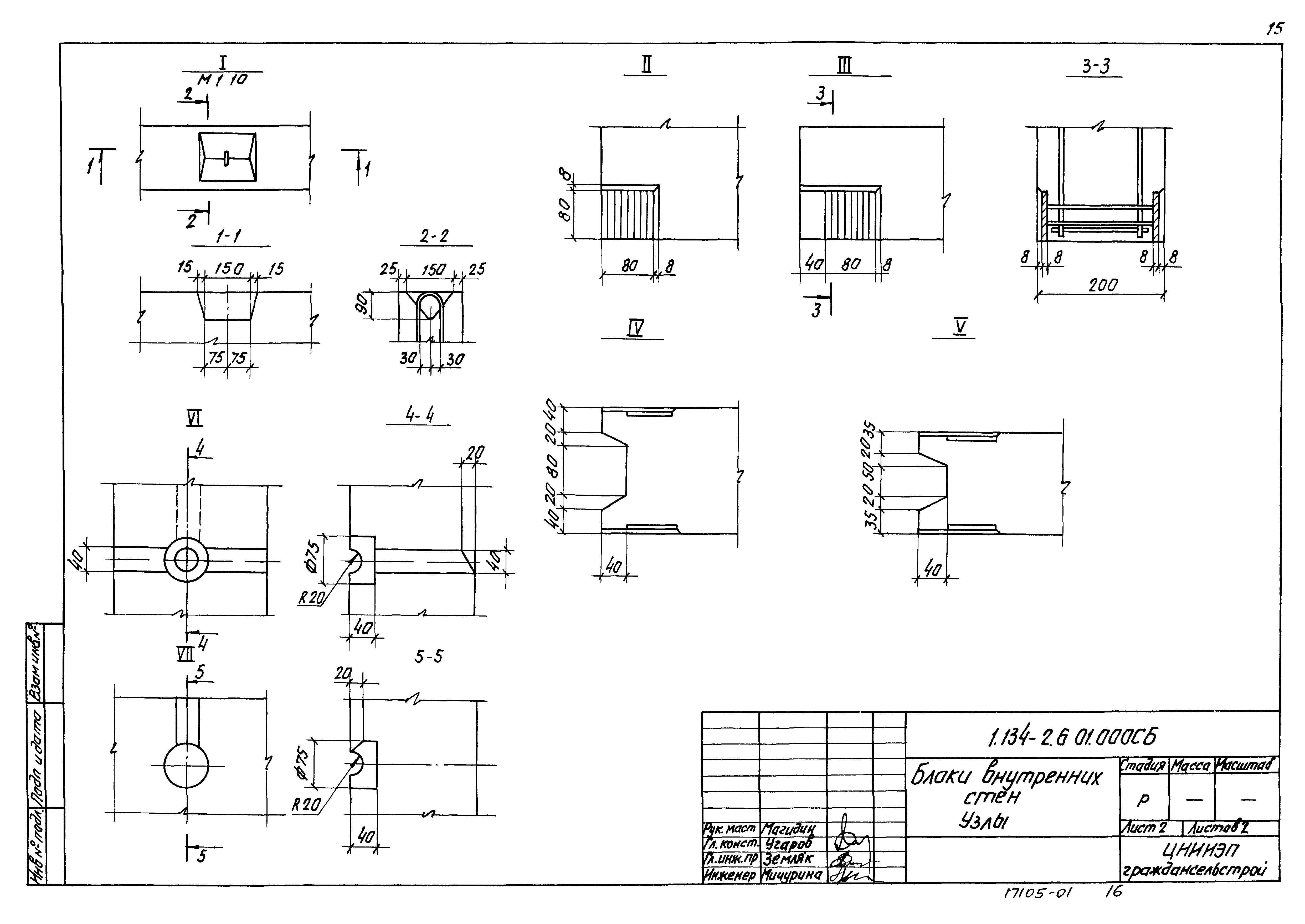
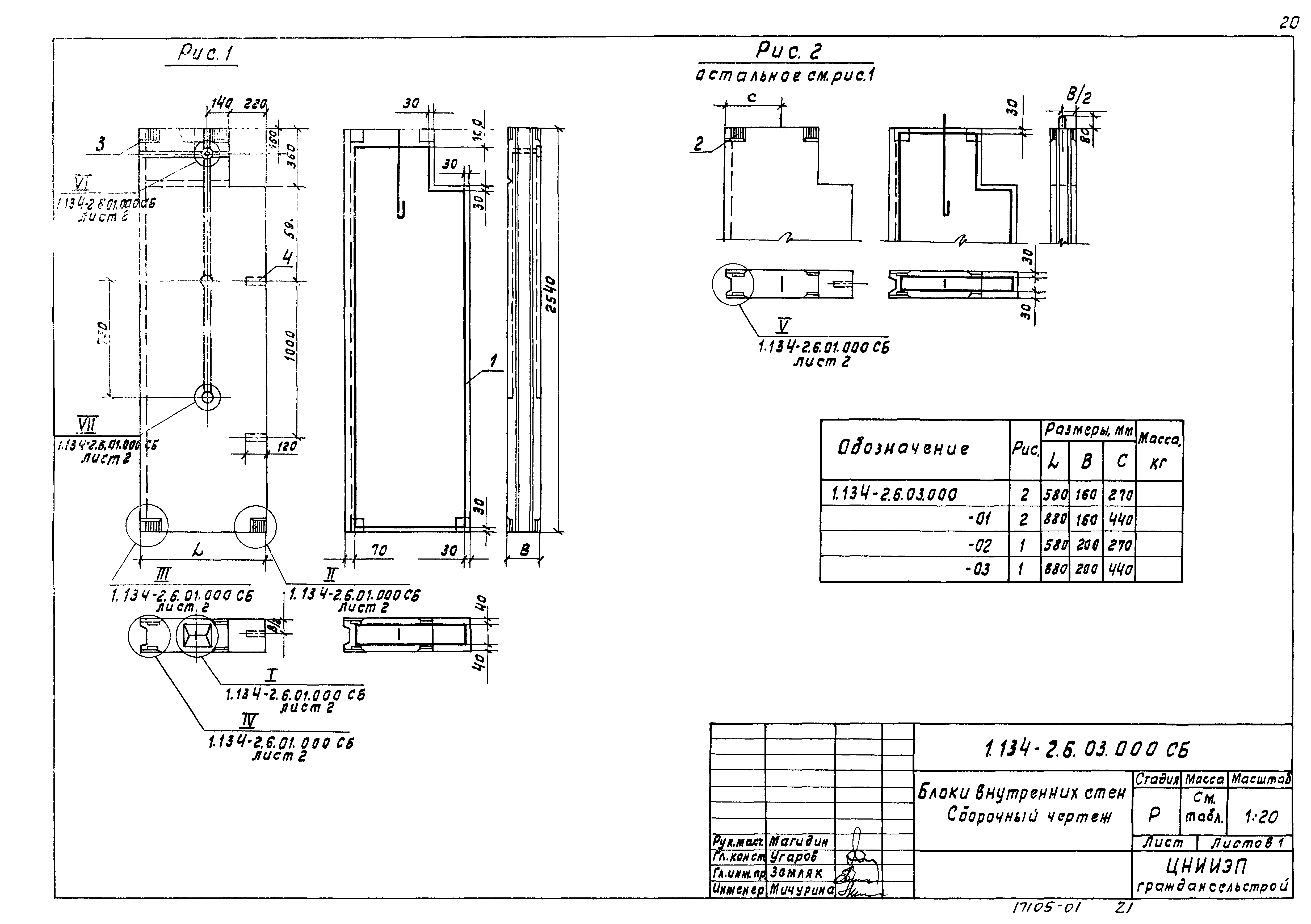
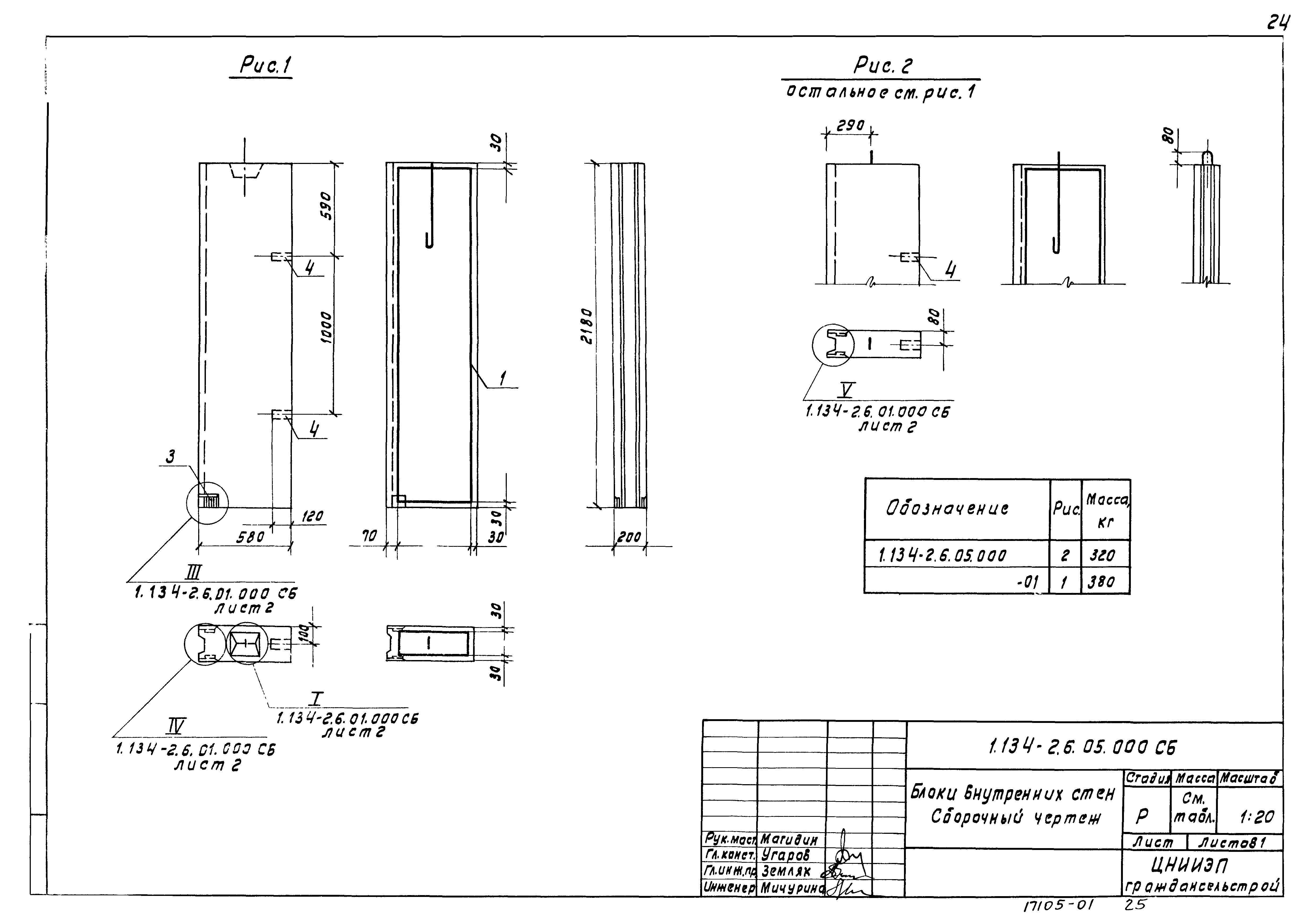
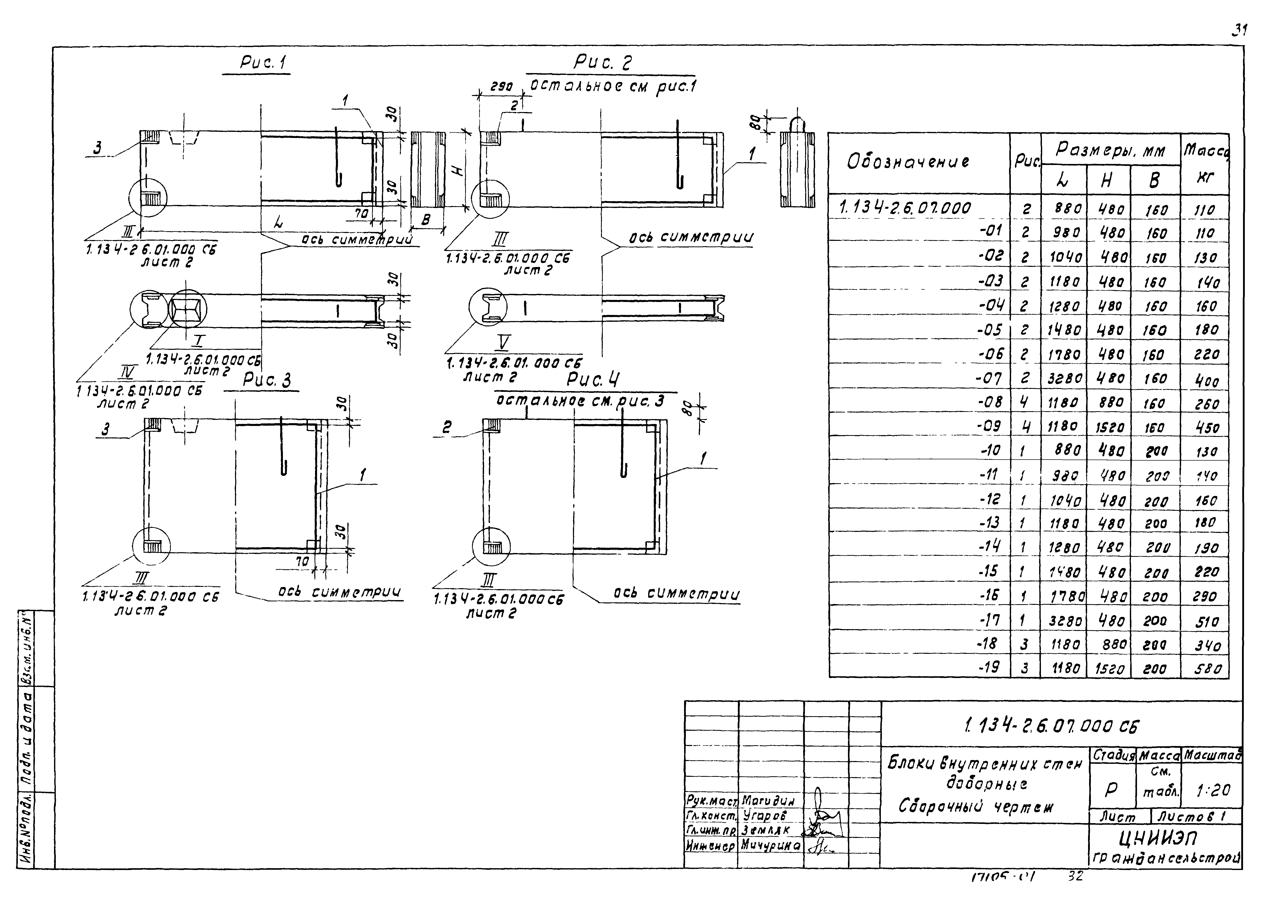
| Область применения: | В настоящем выпуске приведены опалубочные чертежи блоков внутренних стен из легкого бетона толщиной 16 и 20 см. Изготовление блоков внутренних стен 20 см предусматривается по поточно-агрегатной технологии, а блоки толщиной 16 см изготавливаются в кассетных установках |
| Оглавление: | 1.134-2.6.01.000 ТО Техническое описание 1.134-2.6.01.000 Блоки внутренних стен 1.134-2.6.01.000 СБ Блоки внутренних стен. Сборочный чертеж 1.134-2.6.01.000 СБ Блоки внутренних стен. Узлы 1.134-2.6.02.000 Блоки внутренних стен 1.134-2.6.02.000 СБ Блоки внутренних стен. Сборочный чертеж 1.134-2.6.03.000 Блоки внутренних стен 1.134-2.6.03.000 СБ Блоки внутренних стен. Сборочный чертеж 1.134-2.6.04.000 Блоки внутренних стен 1.134-2.6.04.000 СБ Блоки внутренних стен. Сборочный чертеж 1.134-2.6.05.000 Блоки внутренних стен 1.134-2.6.05.000 СБ Блоки внутренних стен. Сборочный чертеж 1.134-2.6.06.000 Перемычечные блоки внутренних стен 1.134-2.6.06.000 СБ Перемычечные блоки внутренних стен. Сборочный чертеж 1.134-2.6.07.000 Блоки внутренних стен доборные 1.134-2.6.07.000 СБ Блоки внутренних стен доборные. Сборочный чертеж 1.134-2.6.08.000 Блоки внутренних стен лестничных клеток 1.134-2.6.08.000 СБ Блоки внутренних стен лестничных клеток. Сборочный чертеж 1.134-2.6.09.000 Блоки внутренних стен лестничных клеток 1.134-2.6.09.000 СБ Блоки внутренних стен лестничных клеток. Сборочный чертеж 1.134-2.6.10.000 Блоки перемычные лестничных клеток 1.134-2.6.10.000 СБ Блоки перемычные лестничных клеток. Сборочный чертеж 1.134-2.6.11.000 Блоки перемычные лестничных клеток 1.134-2.6.11.000 СБ Блоки перемычные лестничных клеток. Сборочный чертеж 1.134-2.6.01.000 ВС Выборка стали |
| Разработан: | ЦНИИЭП граждансельстрой |
| Утверждён: | 04.03.1981 Госгражданстрой (Gosgrazhdanstroy 83) |
| Издан: | ЦИТП Госстроя СССР (CITP, Gosstroy (USSR) 1981 г. ) |
| Нормативные ссылки: |
|













































