Скачать Серия 1.134-2 Выпуск 7. Блоки внутренних стен из легких бетонов толщиной 16 и 20 см для жилых зданий высотой 1 - 4 этажа и общественных зданий высотой 1 - 3 этажа. Арматурные изделияДата актуализации: 01.01.2021
|
| Обозначение: | Серия
1.134-2 |
| Обозначение англ: | Series
1.134-2 |
| Статус: | действует |
| Название рус.: | Выпуск 7. Блоки внутренних стен из легких бетонов толщиной 16 и 20 см для жилых зданий высотой 1 - 4 этажа и общественных зданий высотой 1 - 3 этажа. Арматурные изделия |
| Дата добавления в базу: | 01.09.2013 |
| Дата актуализации: | 01.01.2021 |
| Дата введения: | 01.04.1981 |
| Область применения: | В настоящем выпуске представлены пространственные каркасы и изделия к ним для изготовления блоков внутренних стен из легких бетонов |
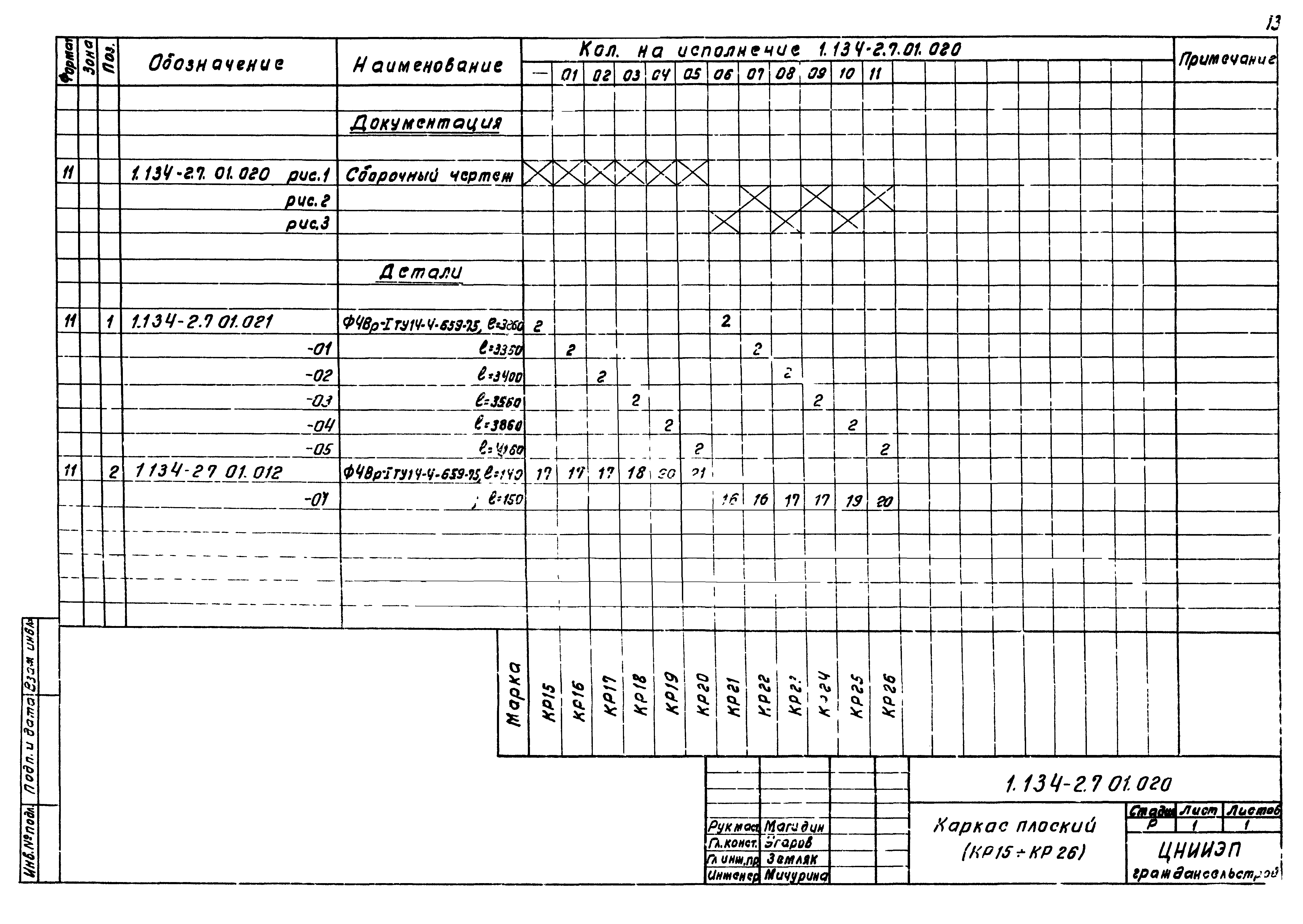
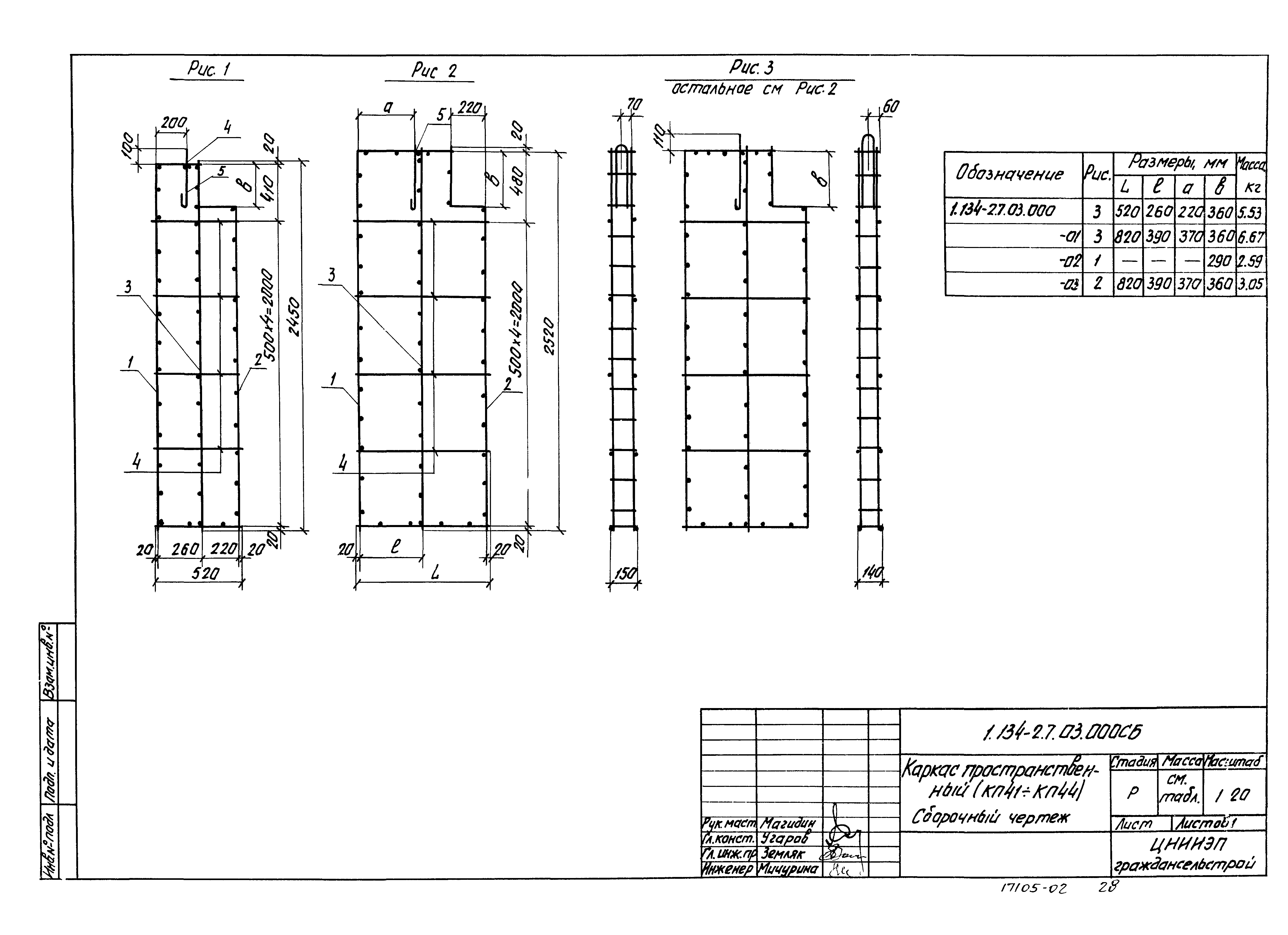
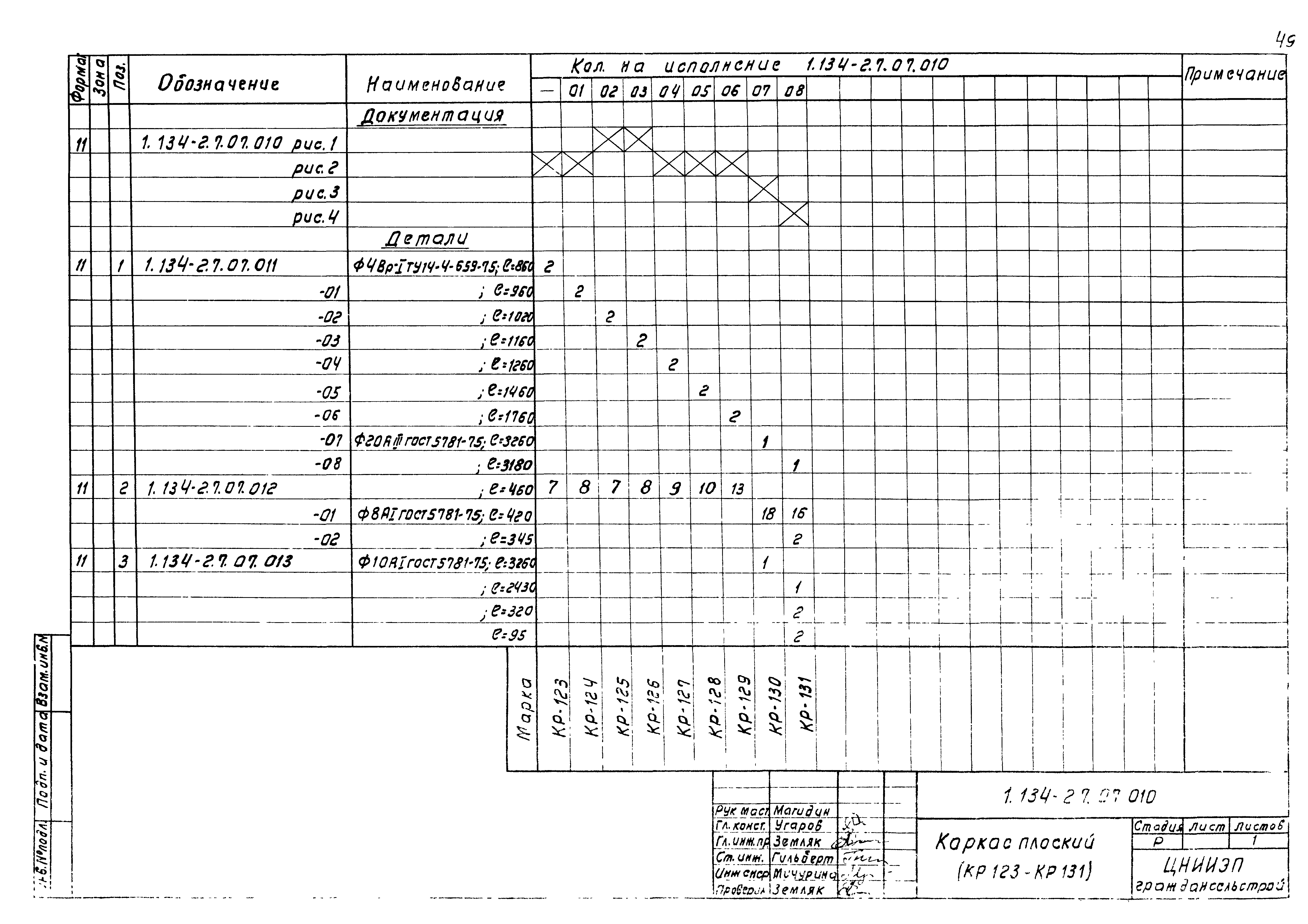
| Оглавление: | 1.134-2.7.01.000 ТО Техническое описание 1.134-2.7.01.000 Каркас пространственный (КП1/ КП26) 1.134-2.7.01.000 СБ Каркас пространственный (КП1/ КП26). Сборочный чертеж 1.134-2.7.01.010 Каркас плоский (КР1/ КР14) 1.134-2.7.01.020 Каркас плоский (КР15/ КР26) 1.134-2.7.01.010 Каркас плоский (КР1/ КР14) 1.134-2.7.01.020 Каркас плоский (КР15/ КР26) 1.134-2.7.01.030 Каркас плоский (КР27/ КР39) 1.134-2.7.01.040 Каркас плоский (КР40/ КР43) 1.134-2.7.01.030 Каркас плоский (КР27/ КР39) 1.134-2.7.01.040 Каркас плоский (КР40/ КР43) 1.134-2.7.02.000 Каркас пространственный (КП27/ КП40) 1.134-2.7.02.000 СБ Каркас пространственный (КП27/ КП40). Сборочный чертеж 1.134-2.7.02.010 Каркас плоский (КП44/ КП57) 1.134-2.7.02.020 Каркас плоский (КП58/ КП71) 1.134-2.7.02.010 Каркас плоский (КП44/ КП57) 1.134-2.7.02.020 Каркас плоский (КП58/ КП71) 1.134-2.7.03.000 Каркас пространственный (КП41/ КП44) 1.134-2.7.03.000 СБ Каркас пространственный (КП41/ КП44). Сборочный чертеж 1.134-2.7.03.010 Каркас плоский (КП72/ КП75) 1.134-2.7.03.020 Каркас плоский (КП76/ КП79) 1.134-2.7.03.010 Каркас плоский (КП72/ КП75) 1.134-2.7.03.020 Каркас плоский (КП76/ КП79) 1.134-2.7.04.010 Каркас плоский (КП81/ КП92) 1.134-2.7.03.030 Каркас плоский (КП80) 1.134-2.7.04.010 Каркас плоский (КП81/ КП92) 1.134-2.7.04.000 Каркас плоский (КП45/ КП50) 1.134-2.7.04.000 СБ Каркас плоский (КП45/ КП50). Сборочный чертеж 1.134-2.7.04.020 Каркас плоский (КП93) 1.134-2.7.04.030 Каркас плоский (КП94) 1.134-2.7.05.000 Каркас плоский (КП51/ КП52) 1.134-2.7.05.000 СБ Каркас плоский (КП51/ КП52). Сборочный чертеж 1.134-2.7.05.010 Каркас плоский (КП95/ КП96) 1.134-2.7.06.000 Каркас пространственный (КП53/ КП76) 1.134-2.7.05.020 Каркас плоский (КП97/ КП98) 1.134-2.7.06.000 СБ Каркас пространственный (КП53/ КП76). Сборочный чертеж 1.134-2.7.06.010 Каркас плоский (КП99/ КП122) 1.134-2.7.07.000 Каркас пространственный (КП77/ КП92) 1.134-2.7.07.010 Каркас плоский (КП123/ КП131) 1.134-2.7.08.000 СБ Каркас пространственный (КП93/ КП96). Сборочный чертеж 1.134-2.7.08.000 Каркас пространственный (КП93/ КП96) 1.134-2.7.08.010 Каркас плоский (КП132/ КП133) 1.134-2.7.08.020 Каркас плоский (КП134/ КП135) 1.134-2.7.08.030 Каркас плоский (КП136/ КП137) 1.134-2.7.09.010 Каркас плоский (КП138/ КП139) 1.134-2.7.09.000 Каркас пространственный (КП97/ КП104) 1.134-2.7.09.000 СБ Каркас пространственный (КП97/ КП104). Сборочный чертеж 1.134-2.7.09.020 Каркас плоский (КП140/ КП143) 1.134-2.7.09.030 Каркас плоский (КП144/ КП145) 1.134-2.7.09.040 Каркас плоский (КП146/ КП149) 1.134-2.7.09.050 Каркас плоский (КП150/ КП153) 1.134-2.7.10.000 Каркас пространственный (КП105/ КП108) 1.134-2.7.10.000 СБ Каркас пространственный (КП105/ КП108). Сборочный чертеж 1.134-2.7.10.010 Каркас плоский (КП154) 1.134-2.7.10.020 Каркас плоский (КП155/ КП156) 1.134-2.7.10.030 Каркас плоский (КП157/ КП158) 1.134-2.7.10.040 Каркас плоский (КП159/ КП160) 1.134-2.7.11.000 Каркас пространственный (КП109/ КП112) 1.134-2.7.11.000 СБ Каркас пространственный (КП109/ КП112). Сборочный чертеж 1.134-2.7.11.010 Каркас плоский (КП161/ КП162) 1.134-2.7.11.020 Каркас плоский (КП163/ КП164) 1.134-2.7.11.030 Каркас плоский (КП165/ КП166) 1.134-2.7.11.040 Каркас плоский (КП167/ КП168) 1.134-2.7.12.000 СБ Каркас пространственный (КП113/ КП116). Сборочный чертеж 1.134-2.7.12.000 Каркас пространственный (КП113/ КП116) 1.134-2.7.12.010 Каркас плоский (КП187/ КП188) 1.134-2.7.12.020 Каркас плоский (КП189/ КП190) 1.134-2.7.12.030 Каркас плоский КП191 1.134-2.7.12.040 Каркас плоский КП192 1.134-2.7.01.050 Петли монтажные П1/ П7 1.134-2.7.01.060 Изделие закладное МН1 - МН2 1.134-2.7.01.070 Изделие закладное МН3 |
| Разработан: | ЦНИИЭП граждансельстрой |
| Утверждён: | 04.03.1981 Госгражданстрой (Gosgrazhdanstroy 83) |
| Издан: | ЦИТП Госстроя СССР (CITP, Gosstroy (USSR) 1981 г. ) |
| Нормативные ссылки: |
|








































































