Скачать Типовой проект 801-2-85.12.87 Альбом II. Архитектурно-строительные решения. Конструкции железобетонные. Конструкции металлическиеДата актуализации: 01.01.2021
|
| Обозначение: | Типовой проект 801-2-85.12.87 |
| Обозначение англ: | 801-2-85.12.87 |
| Статус: | не определен законодательством |
| Название рус.: | Альбом II. Архитектурно-строительные решения. Конструкции железобетонные. Конструкции металлические |
| Дата добавления в базу: | 01.09.2013 |
| Дата актуализации: | 01.01.2021 |
| Дата введения: | 30.12.1985 |
| Дата окончания срока действия: | 30.06.2003 |
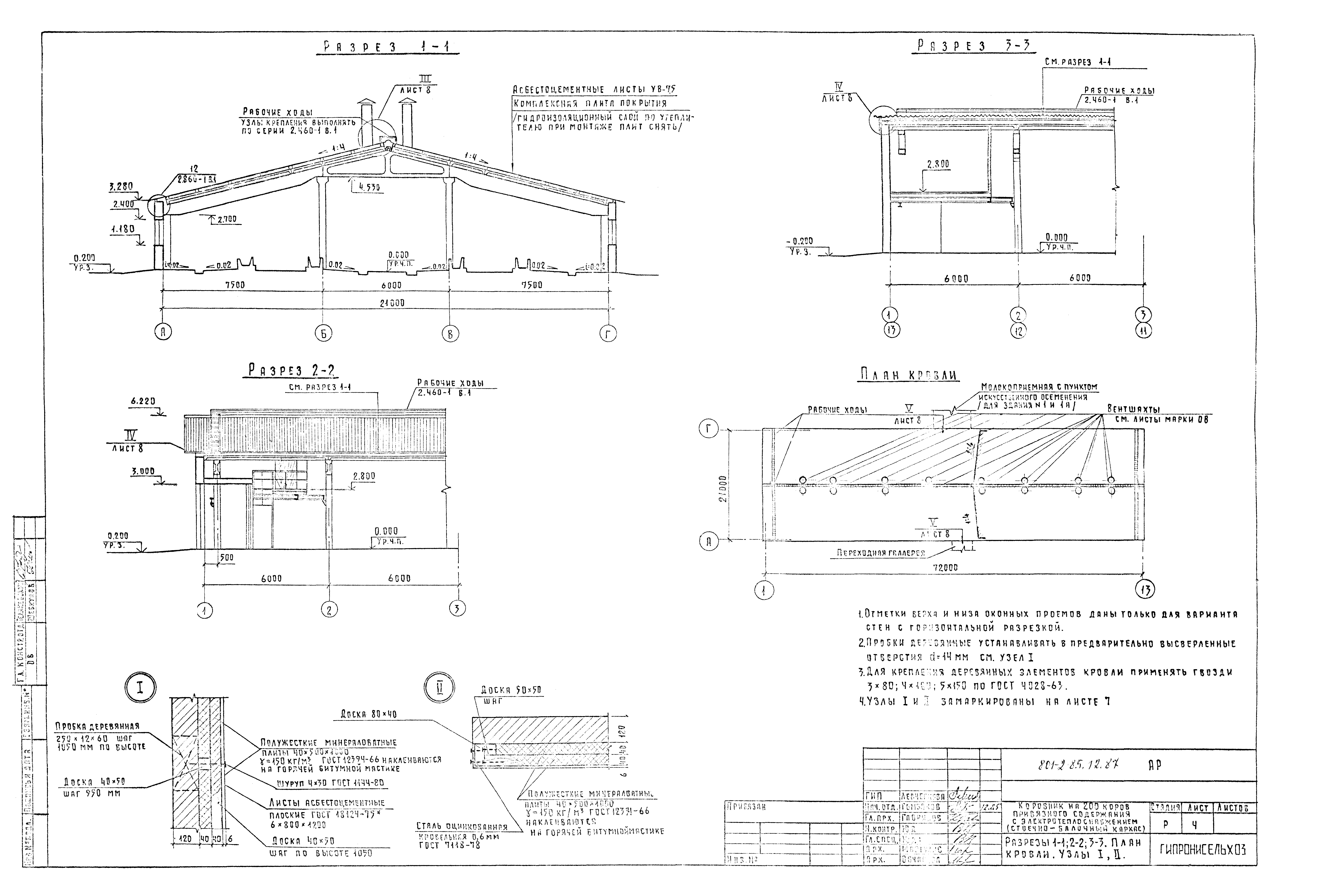
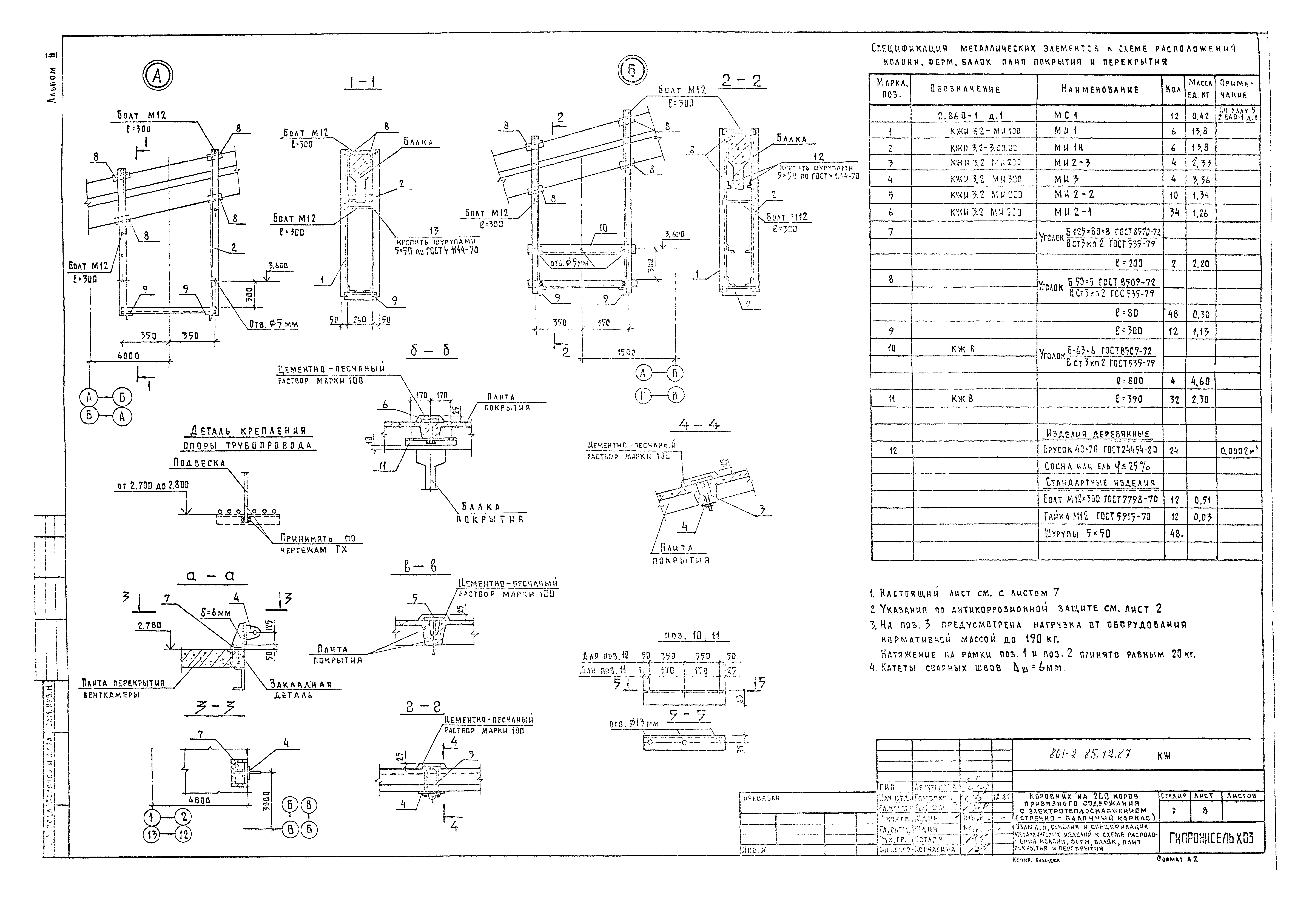
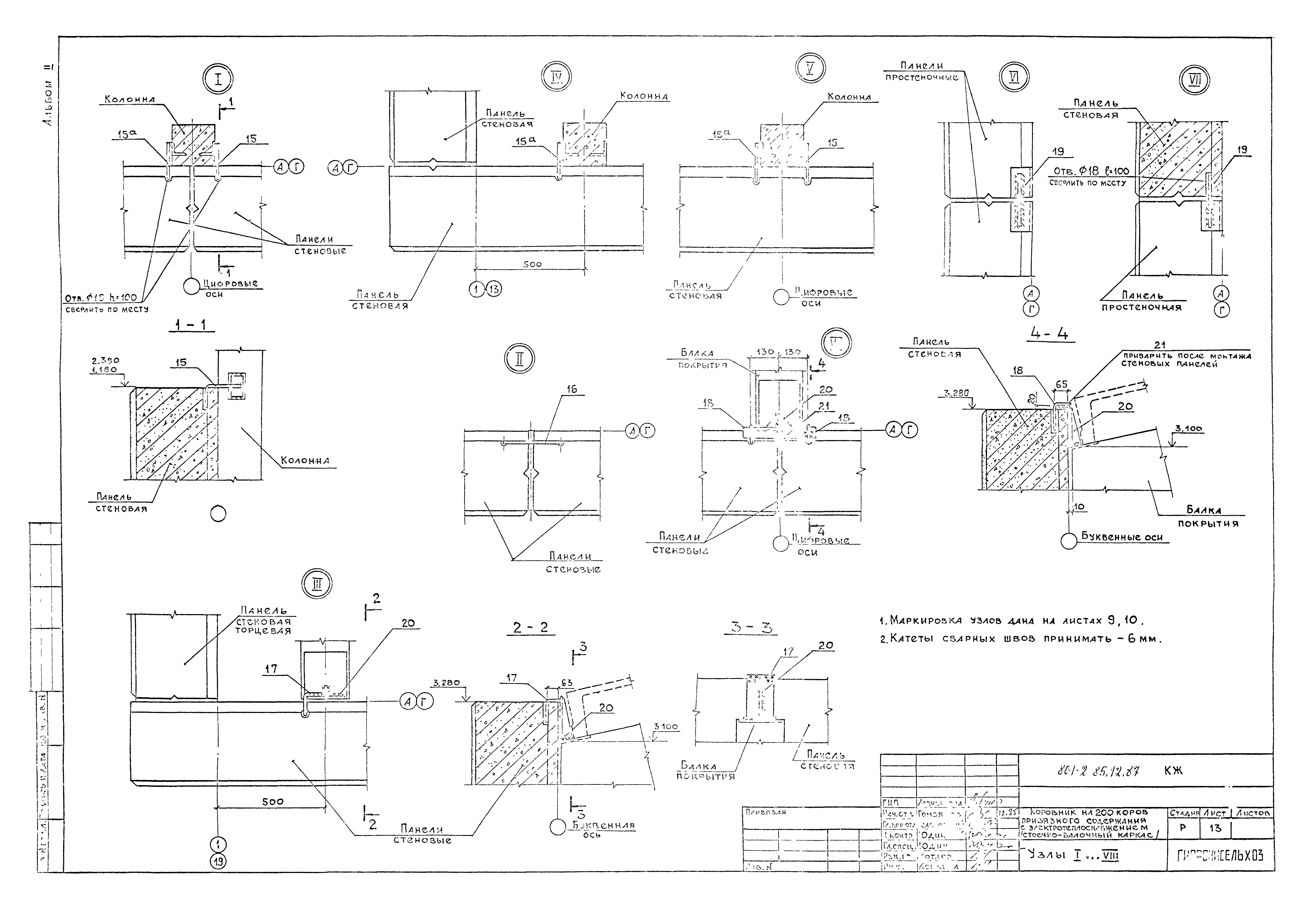
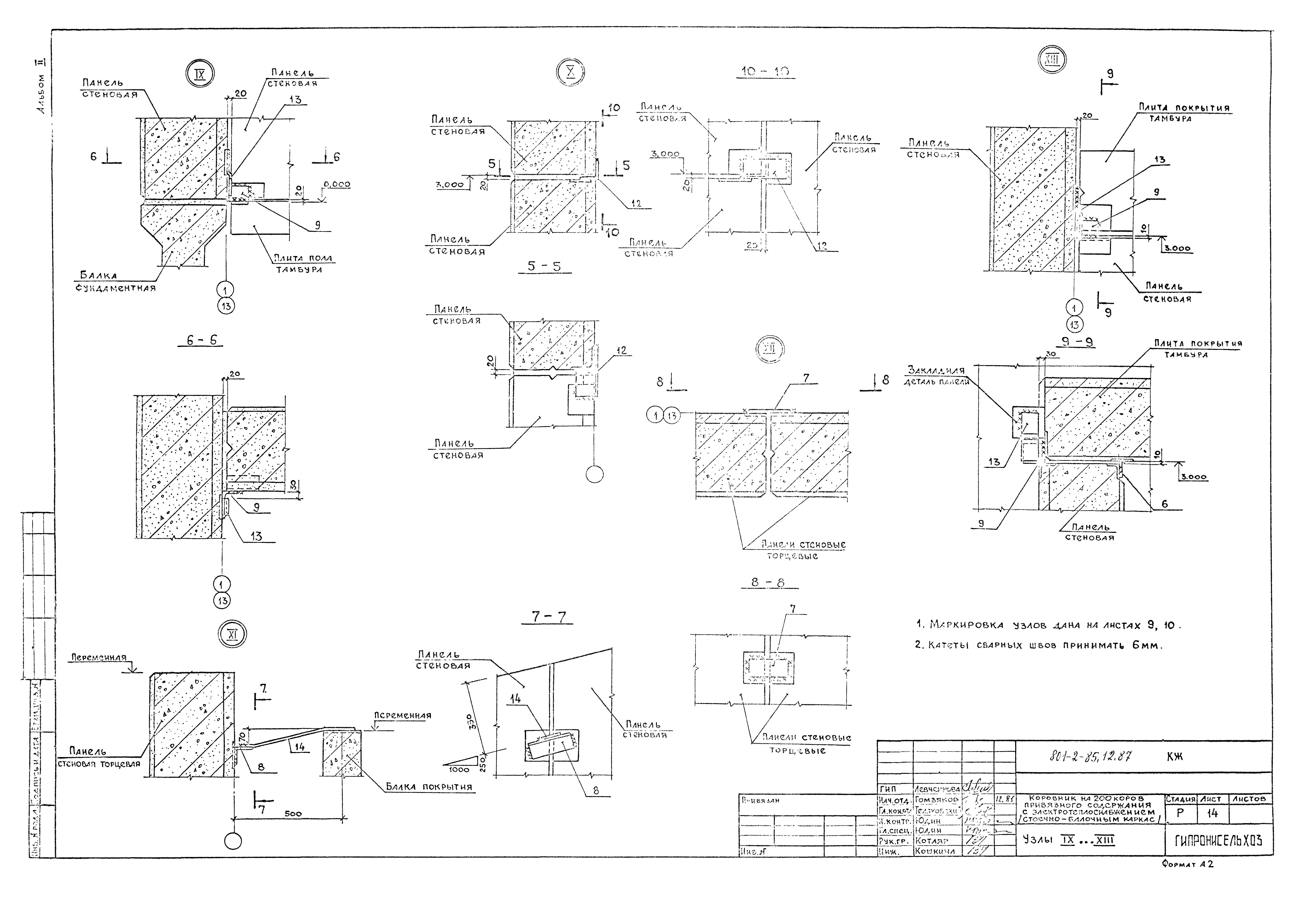
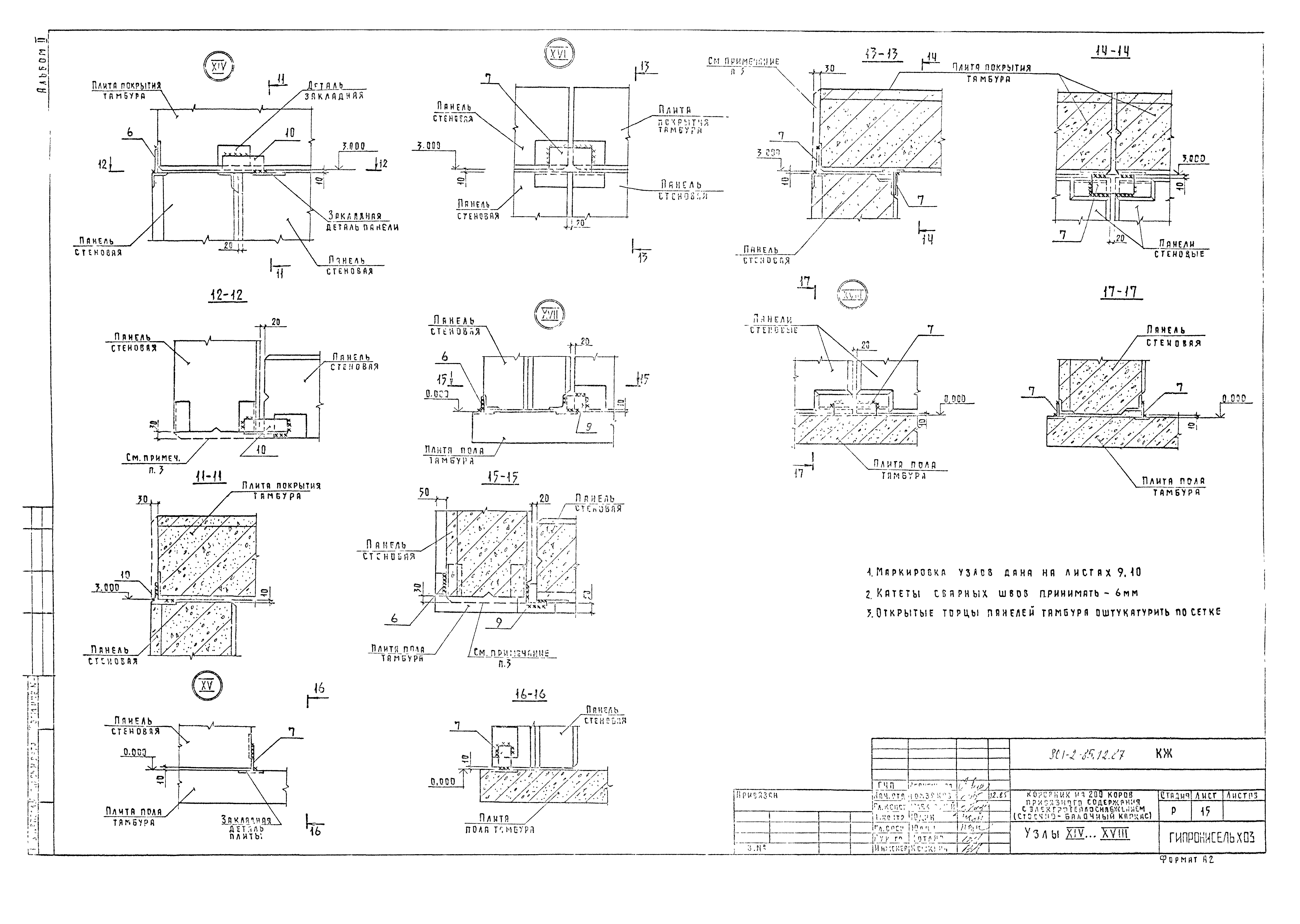
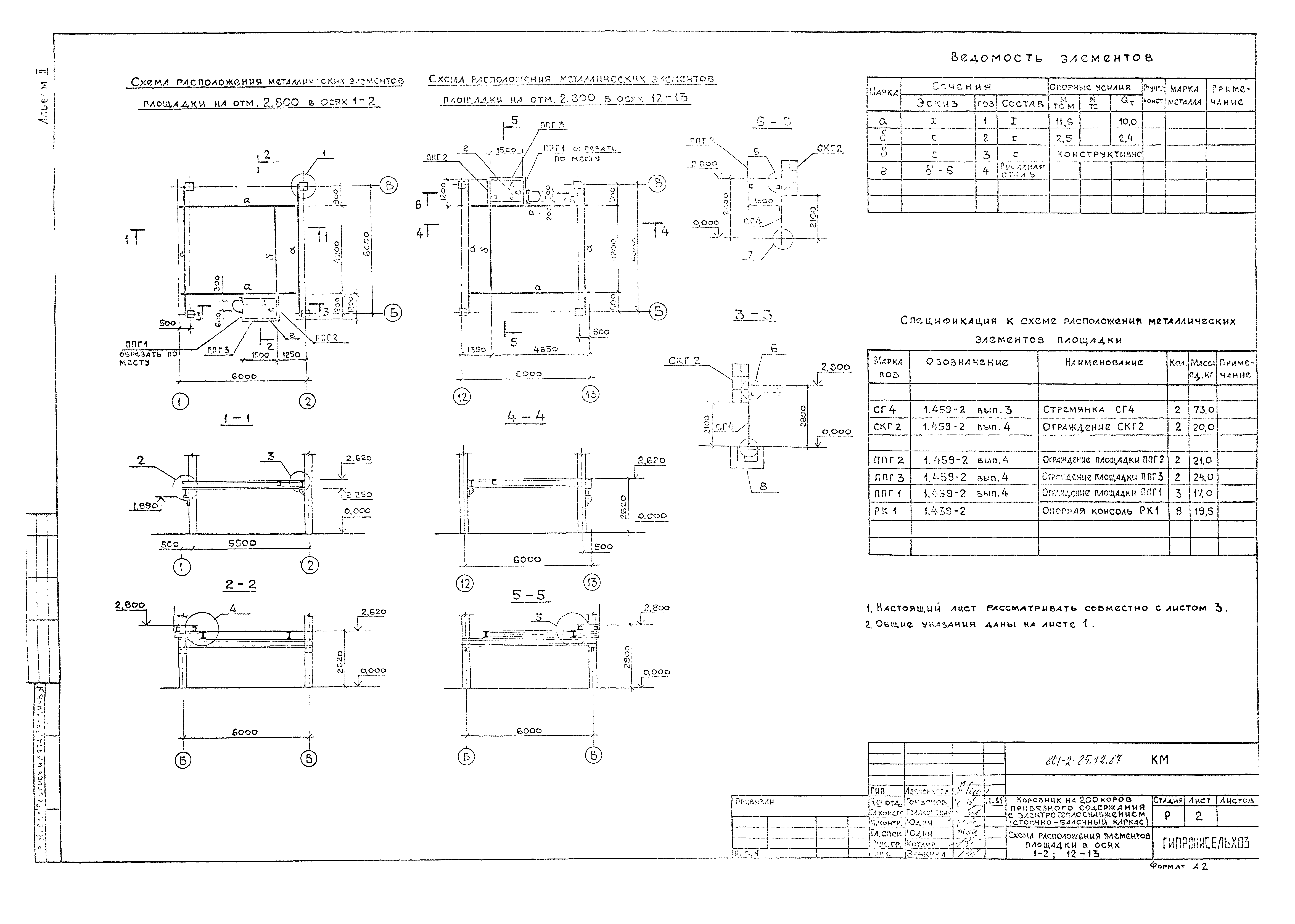
| Оглавление: | Основной комплект рабочих чертежей марки АР 1 Общие данные (начало) 2 Общие данные (окончание) 3 Планы на отм. 0.000 и 2.800 4 Разрезы 1-1; 2-2; 3-3. План кровли. Узлы I, II 5 Фасады 1-13; 13-1; А-Г; Г-А. Стены из панелей повышенной заводской готовности 6 Фасады 1-13; 13-1; А-Г; Г-А;. Стены из панелей с горизонтальной разрезкой. Схема заполнения оконных проемов 7 План полов, отверстия и схема расположения щитовых ограждений, фрагменты плана 1,2 8 Узлы III…V 9 Узлы VI, VII Основной комплект рабочих чертежей марки КЖ 1 Общие данные (начало) 2 Общие данные (окончание) 3 Схема расположения фундаментов и фундаментных балок 4 Схема расположения элементов каналов навозоудаления и кормушек 5 Фрагмент 2 к схеме расположения элементов каналов навозоудаления 6 Фрагмент 1. Схема расположения сборных элементов полов стойл. Монолитные фундаменты ФОМ1; ФОМ2. Приямок ПЯм1 7 Схема расположения колонн, ферм, балок и плит покрытия, перекрытия тамбуров и вентплощадок 8 Узлы А, Б. Сечения и спецификация металлических изделий к схеме расположения колонн, ферм, балок и плит покрытия и перекрытия 9 Схемы расположения стеновых панелей повышенной заводской готовности 10 Схемы расположения стеновых панелей с горизонтальной разрезкой 11 Спецификация к схемам расположения стеновых панелей повышенной заводской готовности 12 Спецификация к схемам расположения стеновых панелей с горизонтальной разрезкой 13 Узлы I...VIII 14 Узлы IX …XIII 15 Узлы XIV … XVIII Основной комплект рабочих чертежей марки КМ 1 Общие данные, техническая спецификация 2 Схемы расположения элементов площадки в осях 1-2; 12-13 3 Узлы 1…8 к схеме расположения элементов площадки в осях 1-2; 12-13 Основной комплект рабочих чертежей марки АР 1 Общие данные (начало) 2 Общие данные (окончание) 3 Планы на отм. 0.000 и 2.800 4 Разрезы 1-1; 2-2; 3-3. План кровли. Узлы I, II 5 Фасады 1-13; 13-1; А-Г; Г-А. Стены из панелей повышенной заводской готовности 6 Фасады 1-13; 13-1; А-Г; Г-А;. Стены из панелей с горизонтальной разрезкой. Схема заполнения оконных проемов 7 План полов, отверстия и схема расположения щитовых ограждений, фрагменты плана 1,2 8 Узлы III…V 9 Узлы VI, VII Основной комплект рабочих чертежей марки КЖ 1 Общие данные (начало) 2 Общие данные (окончание) 3 Схема расположения фундаментов и фундаментных балок 4 Схема расположения элементов каналов навозоудаления и кормушек 5 Фрагмент 2 к схеме расположения элементов каналов навозоудаления 6 Фрагмент 1. Схема расположения сборных элементов полов стойл. Монолитные фундаменты ФОМ1; ФОМ2. Приямок ПЯм1 7 Схема расположения колонн, ферм, балок и плит покрытия, перекрытия тамбуров и вентплощадок 8 Узлы А, Б. Сечения и спецификация металлических изделий к схеме расположения колонн, ферм, балок и плит покрытия и перекрытия 9 Схемы расположения стеновых панелей повышенной заводской готовности 10 Схемы расположения стеновых панелей с горизонтальной разрезкой 11 Спецификация к схемам расположения стеновых панелей повышенной заводской готовности 12 Спецификация к схемам расположения стеновых панелей с горизонтальной разрезкой 13 Узлы I...VIII 14 Узлы IX …XIII 15 Узлы XIV … XVIII Основной комплект рабочих чертежей марки КМ 1 Общие данные, техническая спецификация 2 Схемы расположения элементов площадки в осях 1-2; 12-13 3 Узлы 1…8 к схеме расположения элементов площадки в осях 1-2; 12-13 |
| Разработан: | Гипронисельхоз Минсельхоза СССР |
| Утверждён: | 14.11.1983 Минсельхоз СССР (USSR Minselkhoz 102) |





























