Скачать Серия 1.231-6 Трехслойные крупнопанельные перегородки на деревянном каркасе с наружными обшивками из сухой гипсовой штукатурки. Рабочие чертежиДата актуализации: 01.01.2021
|
| Обозначение: | Серия 1.231-6 |
| Обозначение англ: | Series 1.231-6 |
| Статус: | не определен законодательством |
| Название рус.: | Трехслойные крупнопанельные перегородки на деревянном каркасе с наружными обшивками из сухой гипсовой штукатурки. Рабочие чертежи |
| Дата добавления в базу: | 01.09.2013 |
| Дата актуализации: | 01.01.2021 |
| Дата введения: | 01.07.1980 |
| Дата окончания срока действия: | 30.06.2003 |
| Область применения: | Панели перегородок предназначены для применения в проектах общественных зданий: учреждениях, управлениях и общественных организациях, предприятиях торговли, общественного питания и бытового обслуживания, в административно-бытовых зданиях при промпредприятиях - для разделения помещений с одинаковым уровнем шума и для помещений с ненормированными требованиями к ограждающим конструкциям. При этом рекомендуется применять данные панели в помещениях с нормальным температурно-влажностным режимом |
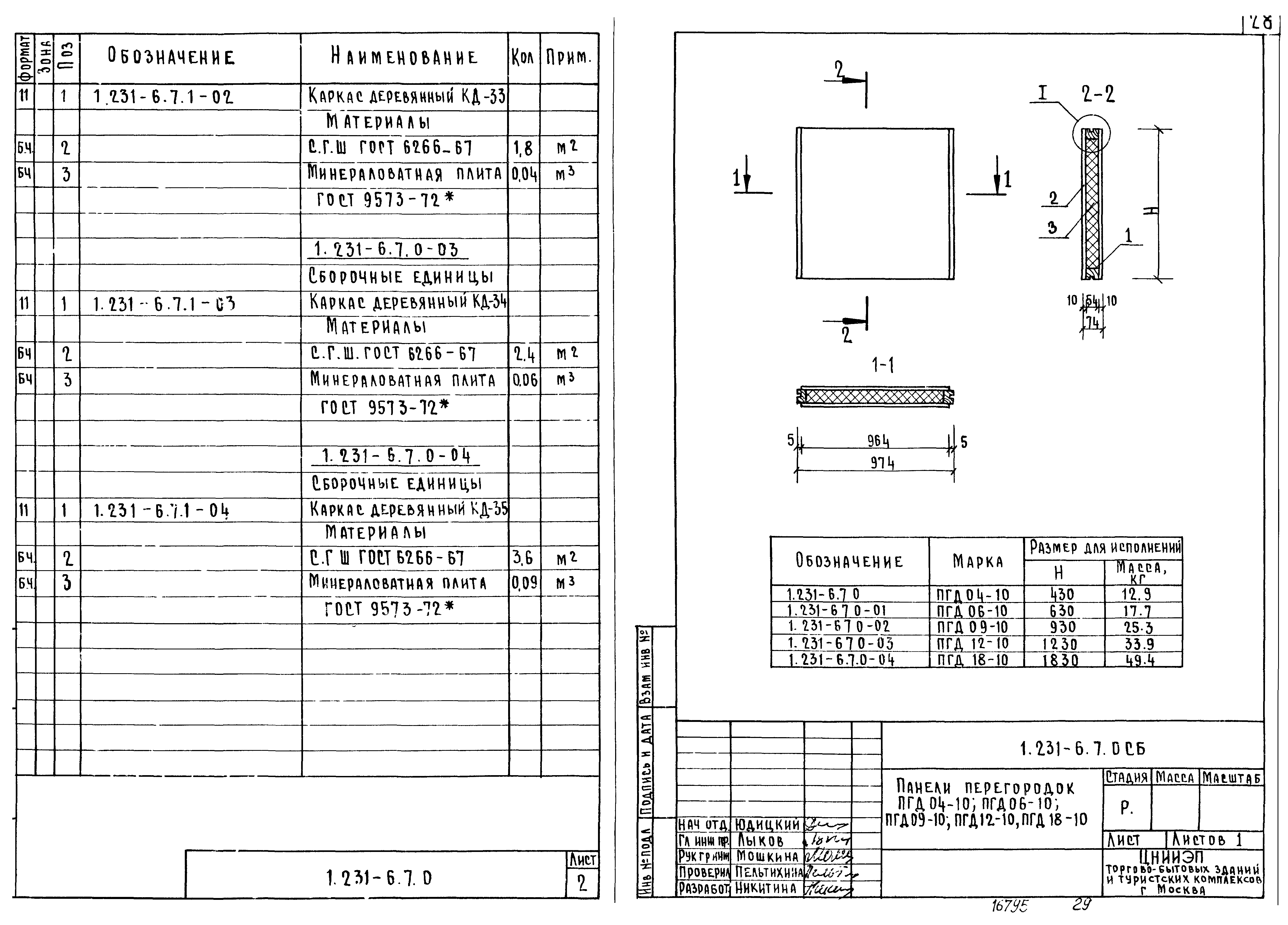
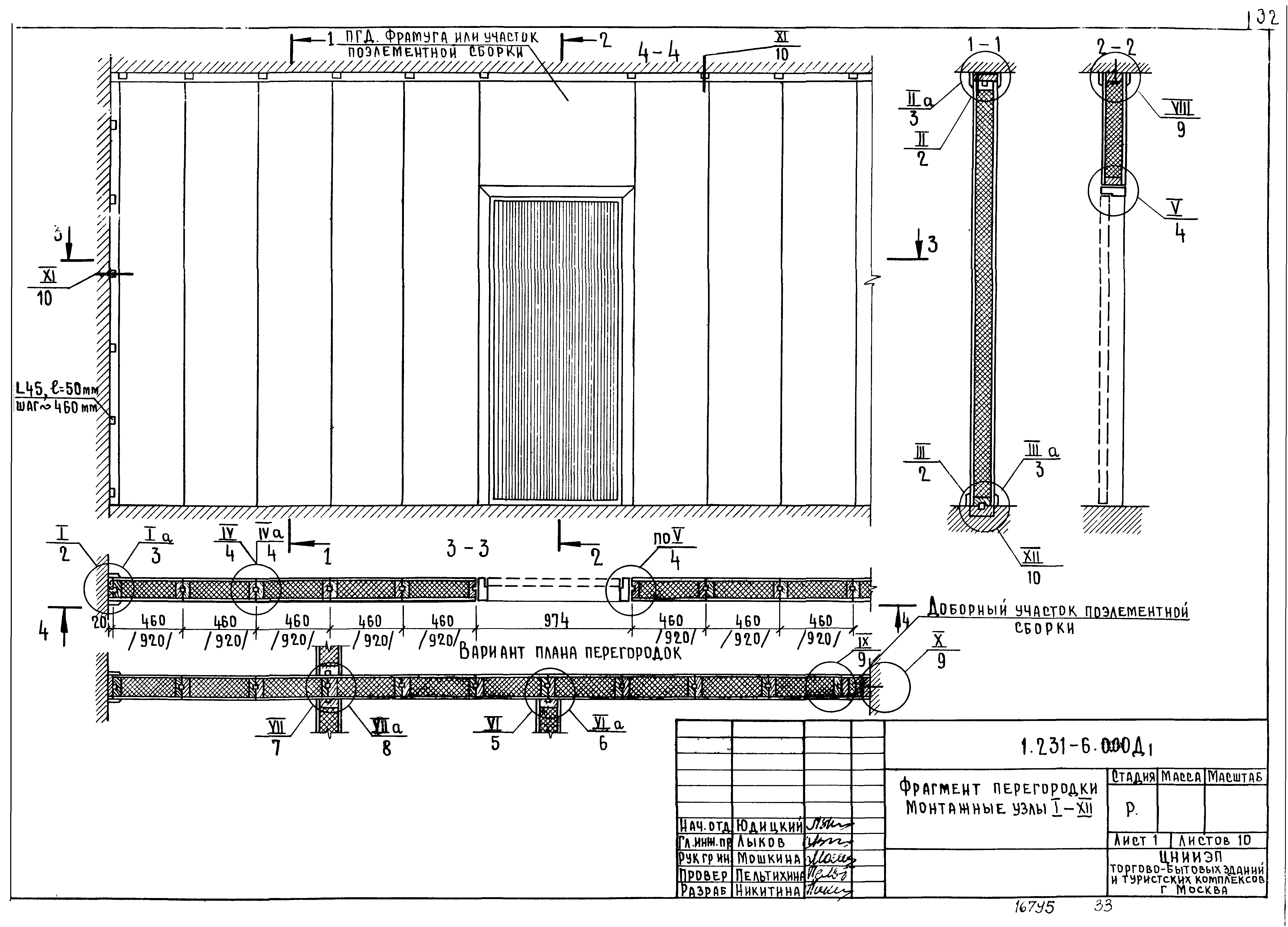
| Оглавление: | 1.231-6.0.00 ПЗ Пояснительная записка 1.231-6.0.00 Н Номенклатура панелей перегородок и расход основных материалов 1.231-6.1.0 Панели перегородок ПГ 25.09; ПГ 27.09; ПГ 30.09; ПГ 33.09; ПГ 39.09 1.231-6.1.0 СБ Панели перегородок ПГ 25.09; ПГ 27.09; ПГ 30.09; ПГ 33.09; ПГ 39.09 1.231-6.1.1 Каркасные деревянные КД-1; КД-2; КД-3; КД-4; КД-5 1.231-6.1.1 СБ Каркасные деревянные КД-1; КД-2; КД-3; КД-4; КД-5 1.231-6.2.0 Панели перегородок ПГ 25.05; ПГ 27.05; ПГ 30.05; ПГ 33.05; ПГ 39.05 1.231-6.2.0 СБ Панели перегородок ПГ 25.05; ПГ 27.05; ПГ 30.05; ПГ 33.05; ПГ 39.05 1.231-6.2.1 Каркасные деревянные КД-6; КД-7; КД-8; КД-9; КД-10 1.231-6.2.1 СБ Каркасные деревянные КД-6; КД-7; КД-8; КД-9; КД-10 1.231-6.3.0 Панели перегородок ПФ 25.09; ПФ 27.09; ПФ 30.09; ПФ 33.09; ПФ 39.09 1.231-6.3.0 СБ Панели перегородок ПФ 25.09; ПФ 27.09; ПФ 30.09; ПФ 33.09; ПФ 39.09 1.231-6.3.1 Каркасные деревянные КД-11; КД-12; КД-13; КД-14; КД-15 1.231-6.3.1 СБ Каркасные деревянные КД-11; КД-12; КД-13; КД-14; КД-15 1.231-6.4.0 Панели перегородок ПО 25.09; ПО 27.09; ПО 30.09; ПО 33.09; ПО 39.09 1.231-6.4.0 СБ Панели перегородок ПО 25.09; ПО 27.09; ПО 30.09; ПО 33.09; ПО 39.09 1.231-6.4.1 Каркасные деревянные КД-16; КД-17; КД-18; КД-19; КД-20 1.231-6.4.1 СБ Каркасные деревянные КД-16/ КД-20; КД-21/ КД-25 1.231-6.5.0 Панели перегородок ПОФ 25.09; ПОФ 27.09; ПОФ 30.09; ПОФ 33.09; ПОФ 39.09 1.231-6.5.0 СБ Панели перегородок ПОФ 25.09; ПОФ 27.09; ПОФ 30.09; ПОФ 33.09; ПОФ 39.09 1.231-6.5.1 Каркасные деревянные КД-21; КД-22; КД-23; КД-24; КД-25 1.231-6.6.0 Панели перегородок ПОФ 25.09; ПОФ 27.09; ПОФ 30.09; ПОФ 33.09; ПОФ 39.09 1.231-6.6.0 СБ Панели перегородок ПОФ1 25.09; ПОФ1 27.09; ПОФ1 30.09; ПОФ1 33.09; ПОФ1 39.09 1.231-6.6.1 Каркасные деревянные КД-26; КД-27; КД-28; КД-29; КД-30 1.231-6.6.1 СБ Каркасные деревянные КД-26; КД-27; КД-28; КД-29; КД-30 1.231-6.7.0 Панели перегородок ПГД 04.10; ПГД 06.10; ПГД 09.10; ПГД 12.10; ПГД 18.10 1.231-6.7.0 СБ Панели перегородок ПГД 04-10; ПГД 06-10; ПГД 09-10; ПГД 12-10; ПГД 18-10 1.231-6.7.1 Каркасные деревянные КД-31; КД-32; КД-33; КД-34; КД-35 1.231-6.7.1 СБ Каркасные деревянные КД-31/ КД-40 1.231-6.8.0 Панели перегородок Ф 04.10; Ф 06.10; Ф 09.10; Ф 12.10; Ф 18.10 1.231-6.8.0 СБ Панели перегородок Ф 04.10; Ф 06.10; Ф 09.10; Ф 12.10; Ф 18.10 1.231-6.8.8 Каркасные деревянные КД-36; КД-37; КД-38; КД-39; КД-40 1.231-6.0.00 Д1 Фрагменты перегородки. Монтажные узлы I - XII 1.231-6.0.00 ВМ Ведомость материалов на 1 погонный метр стыков панелей |
| Разработан: | ЦНИИЭП торгово-бытовых зданий и туристских комплексов |
| Утверждён: | 03.06.1980 Государственный комитет по гражданскому строительству и архитектуре при Госстрое СССР (142) |
| Издан: | ЦИТП Госстроя СССР (CITP, Gosstroy (USSR) 1981 г. ) |
| Нормативные ссылки: |
|











































