Скачать Типовой проект 801-2-69.86 Альбом I. Пояснительная записка. Технология производства. Механизация. Архитектурно-строительные решения. Отопление и вентиляция. Внутренние водопровод и канализация. Электротехническая частьДата актуализации: 01.01.2021
|
| Обозначение: | Типовой проект 801-2-69.86 |
| Обозначение англ: | 801-2-69.86 |
| Статус: | не определен законодательством |
| Название рус.: | Альбом I. Пояснительная записка. Технология производства. Механизация. Архитектурно-строительные решения. Отопление и вентиляция. Внутренние водопровод и канализация. Электротехническая часть |
| Дата добавления в базу: | 01.09.2013 |
| Дата актуализации: | 01.01.2021 |
| Дата введения: | 26.04.1985 |
| Дата окончания срока действия: | 30.06.2003 |
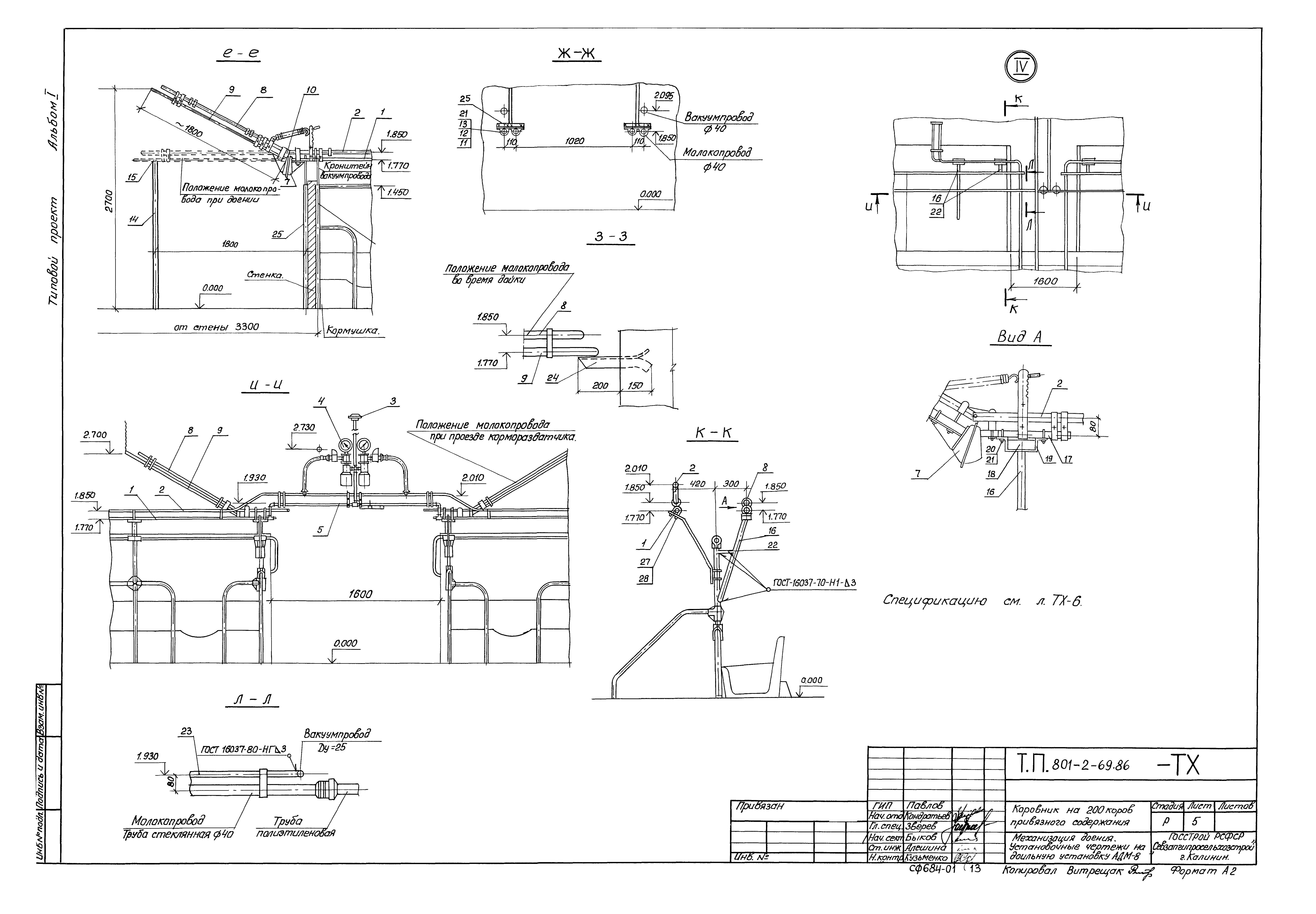
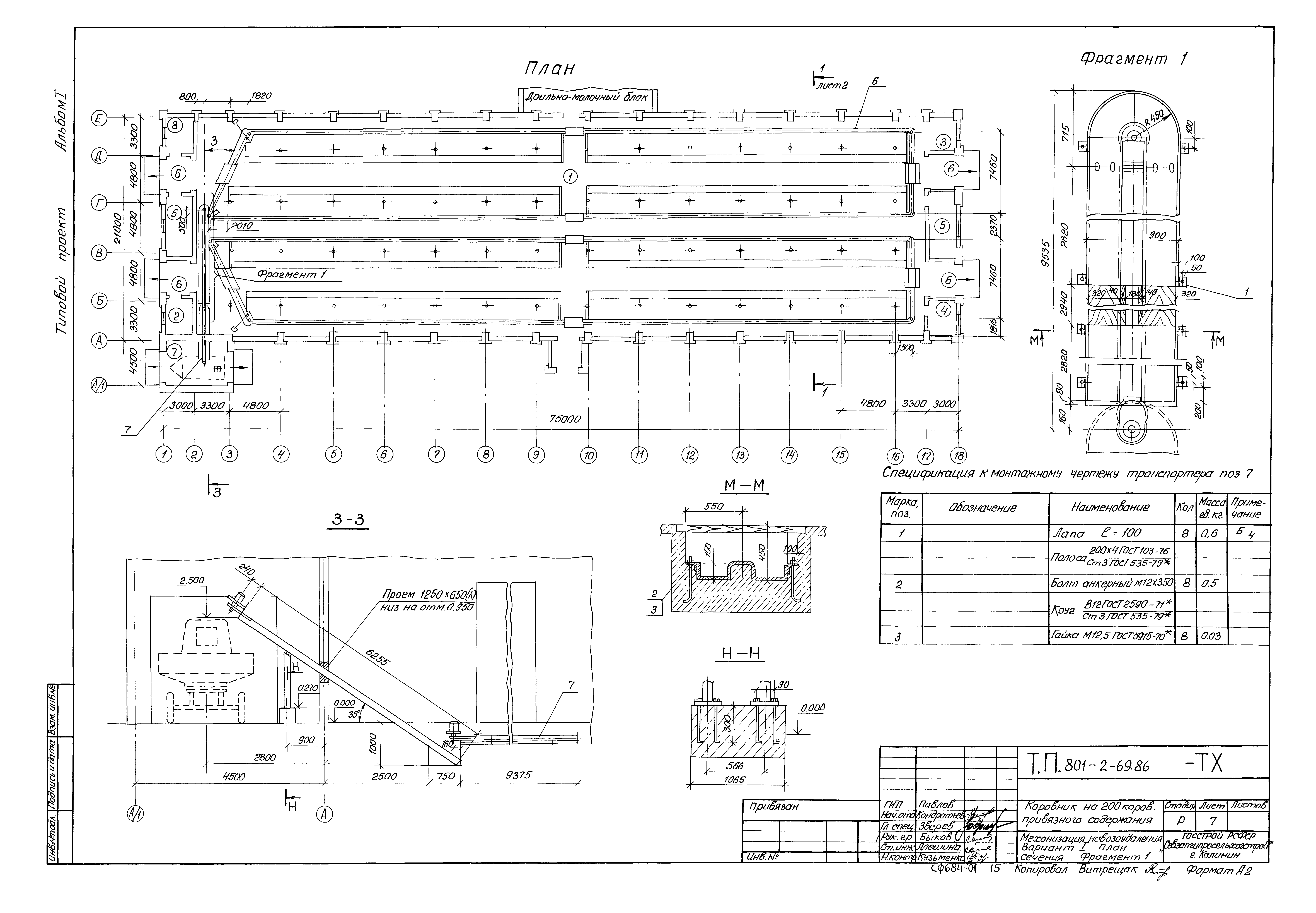
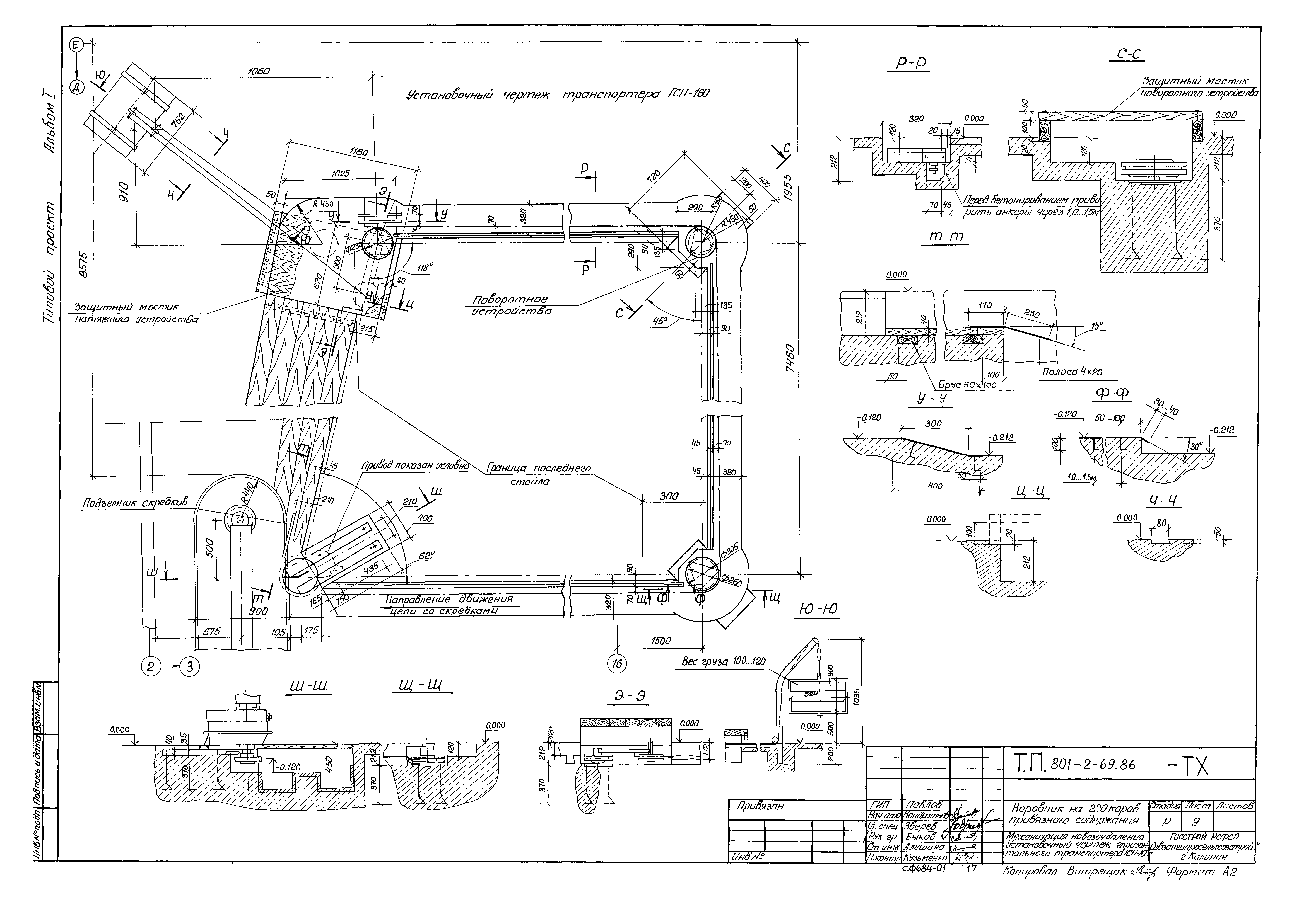
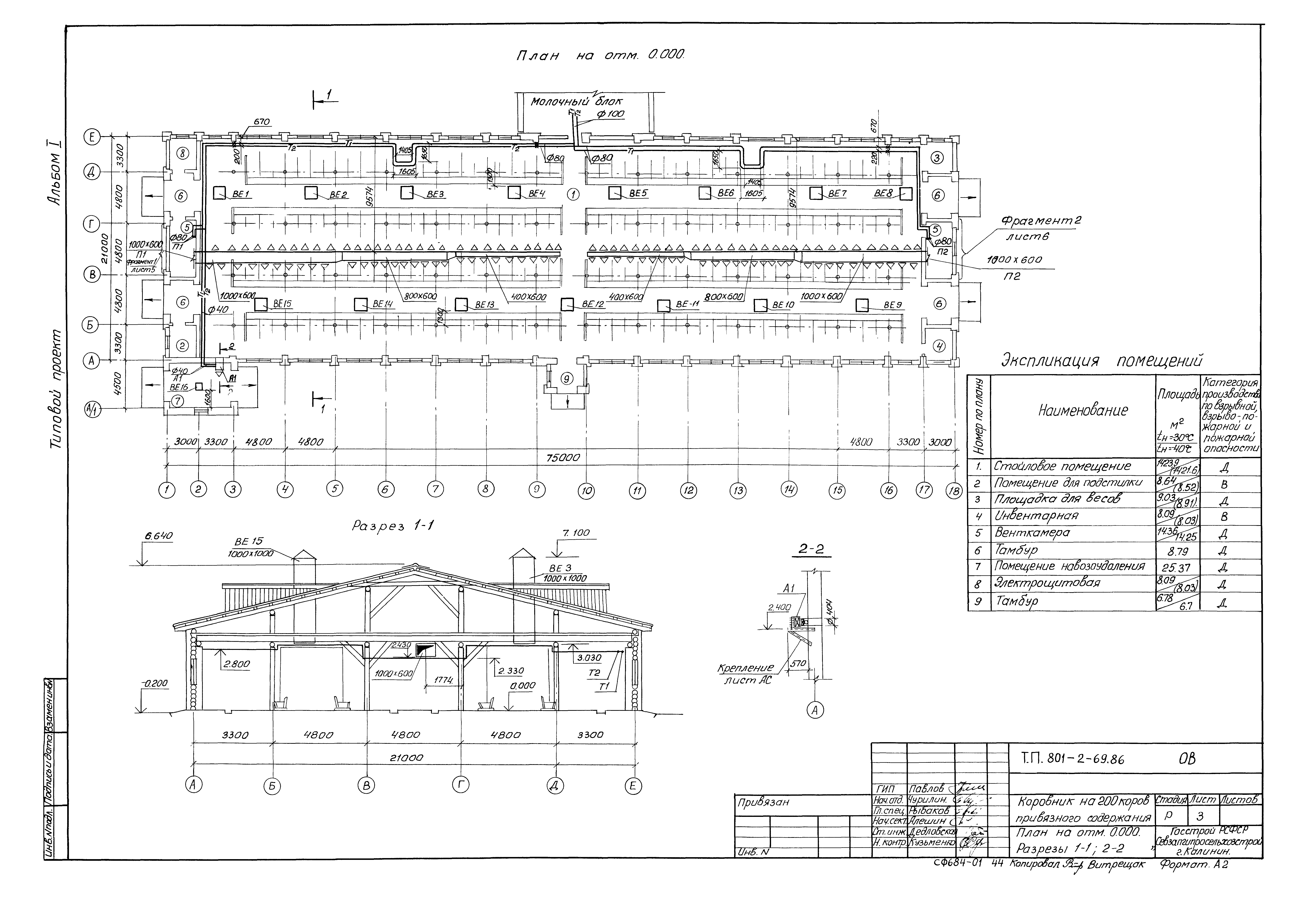
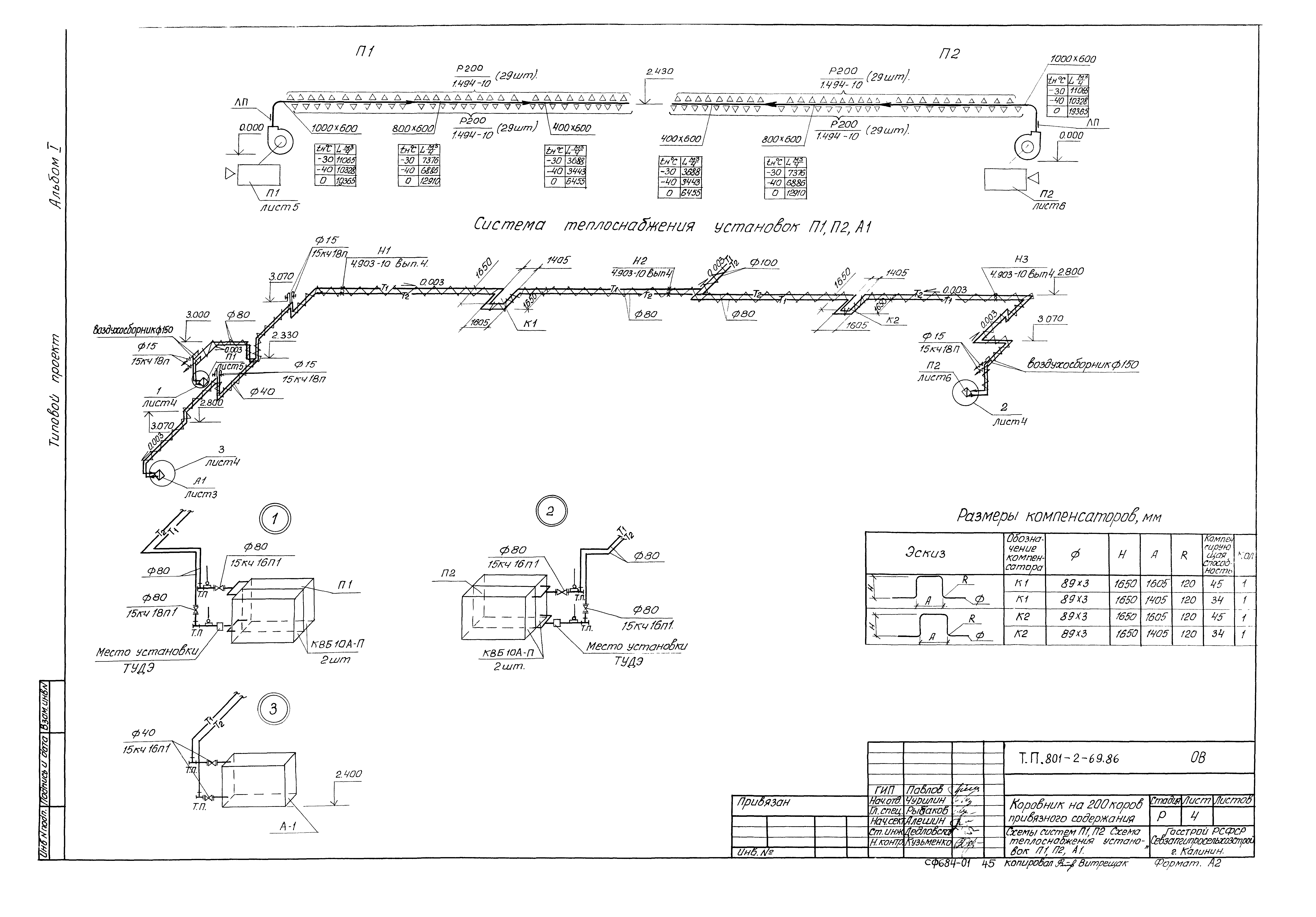
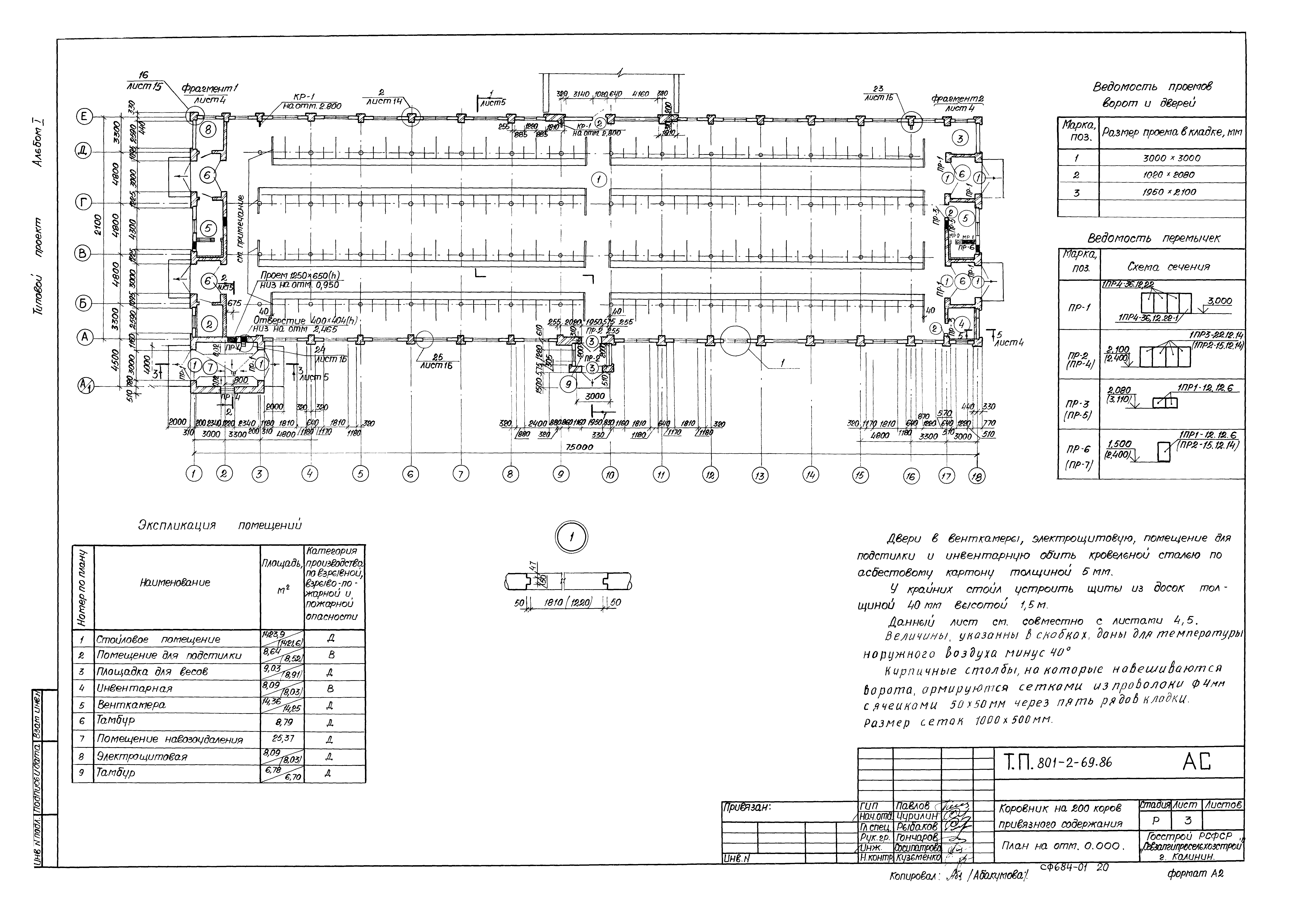
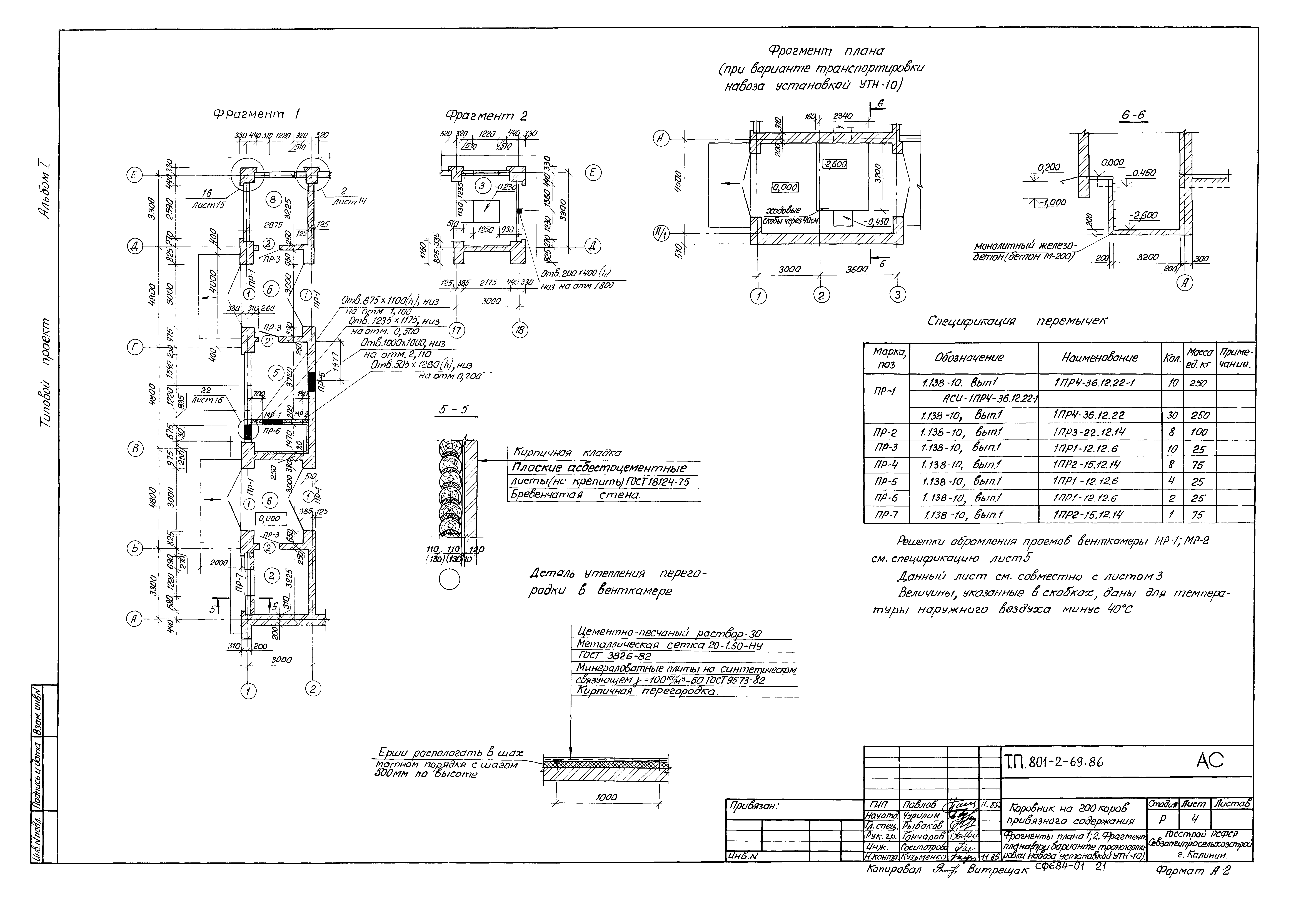
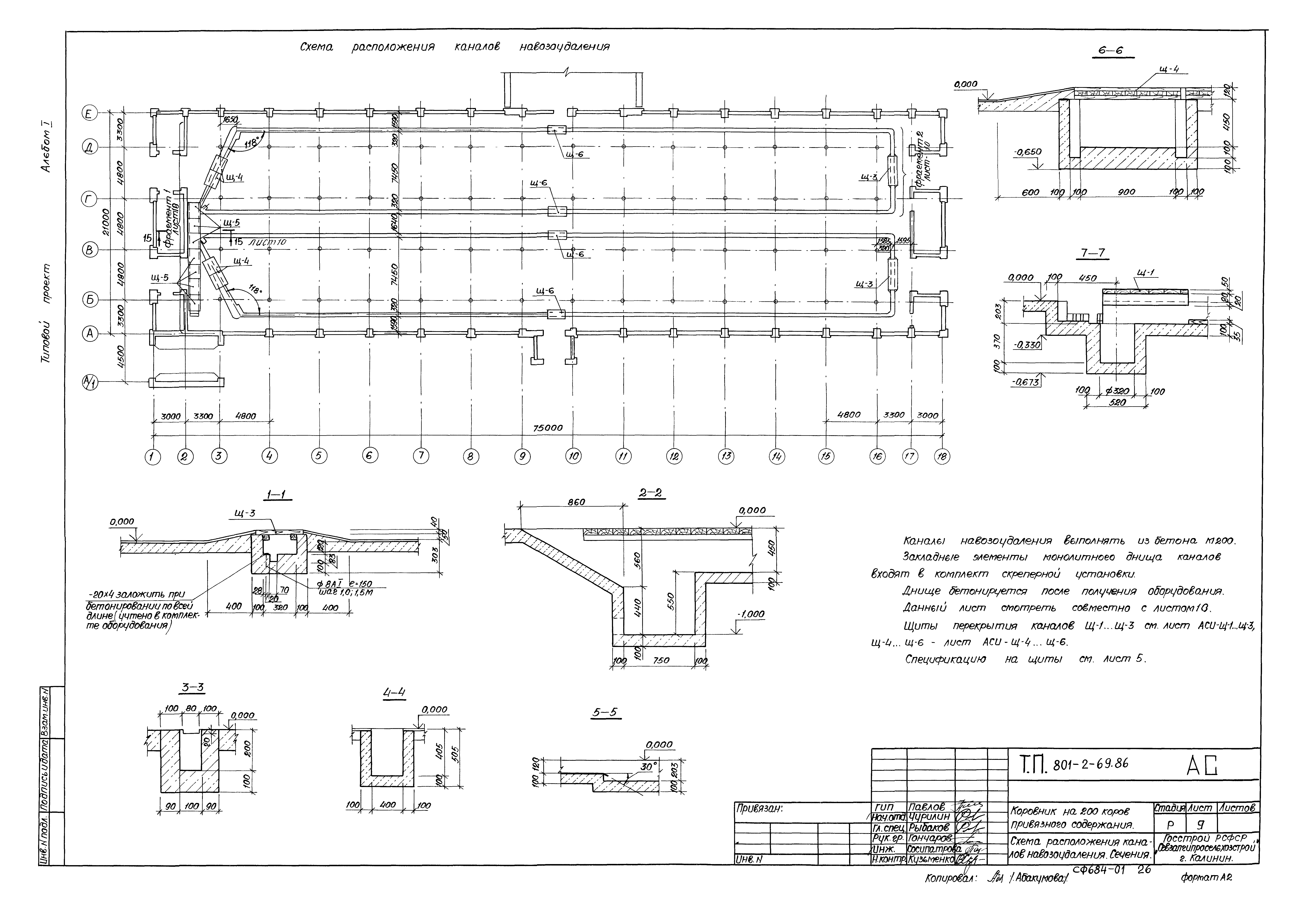
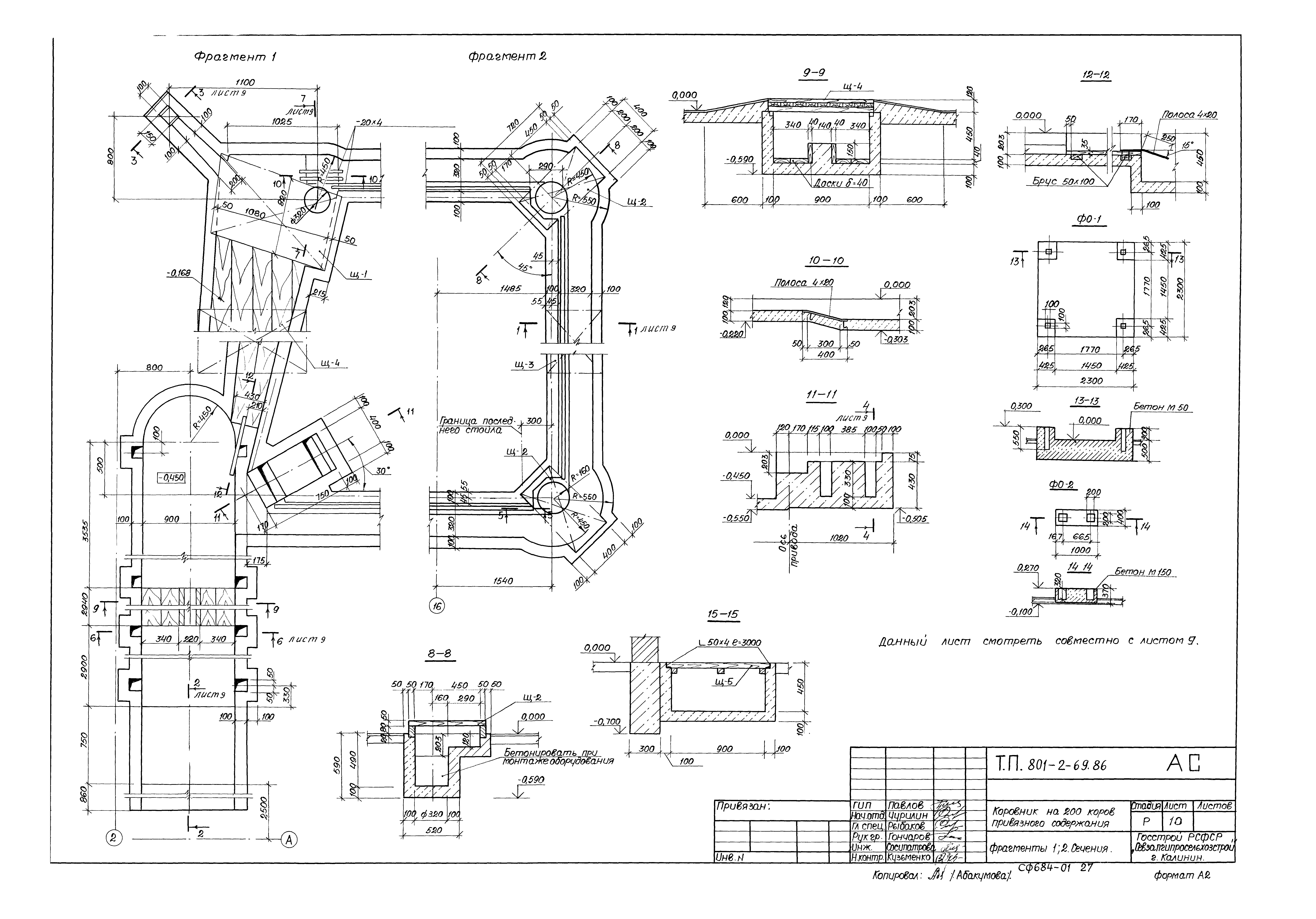
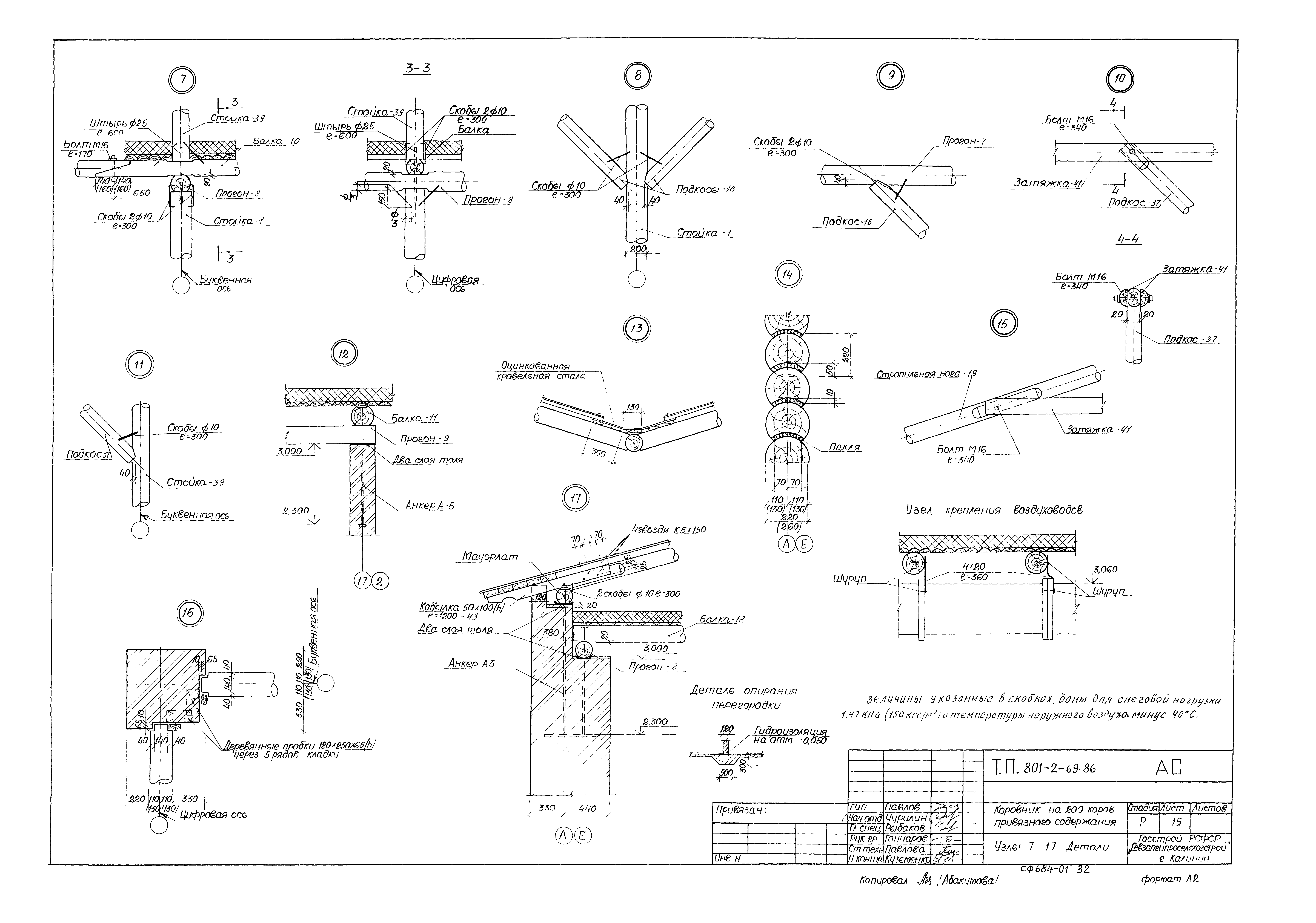
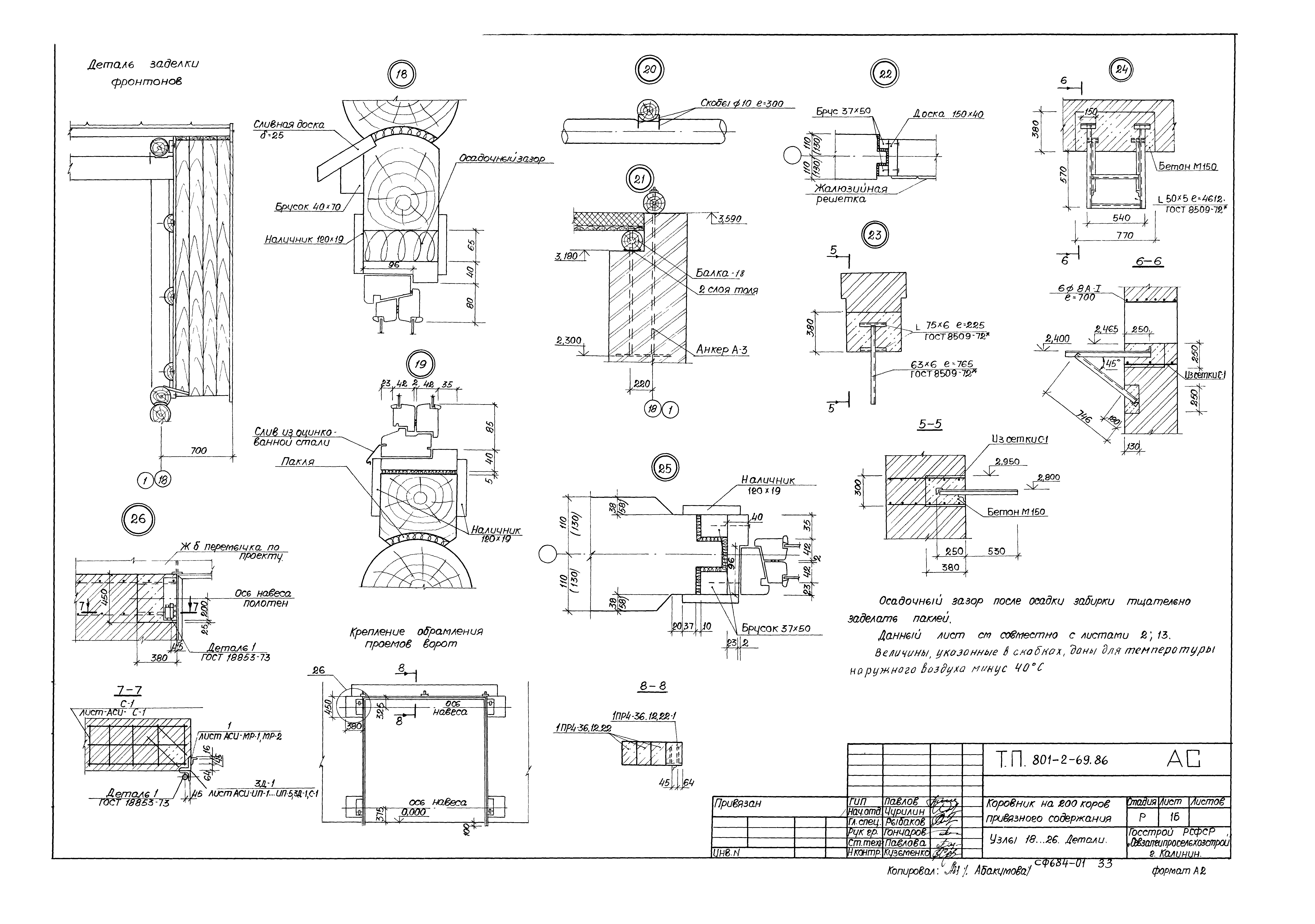
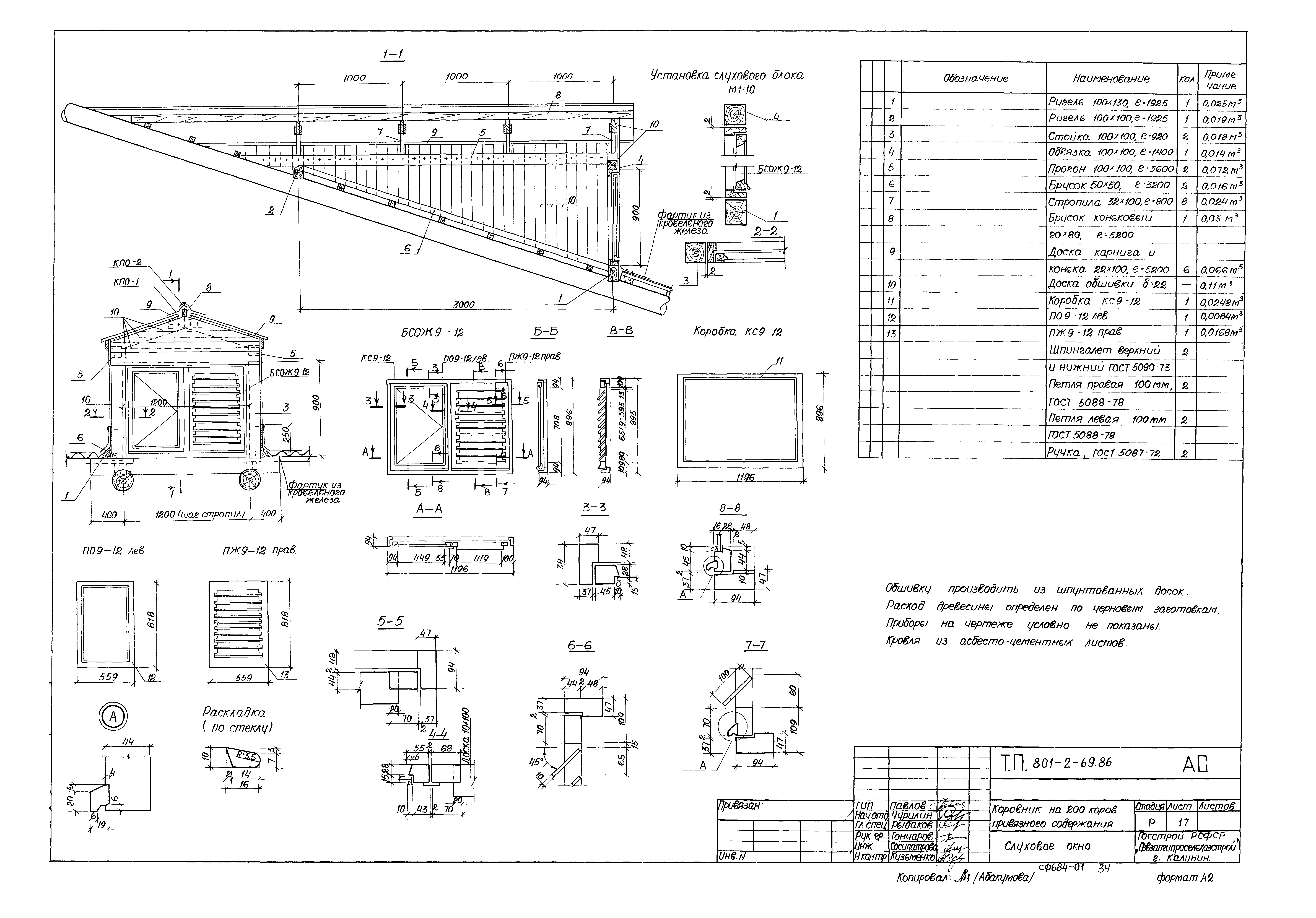
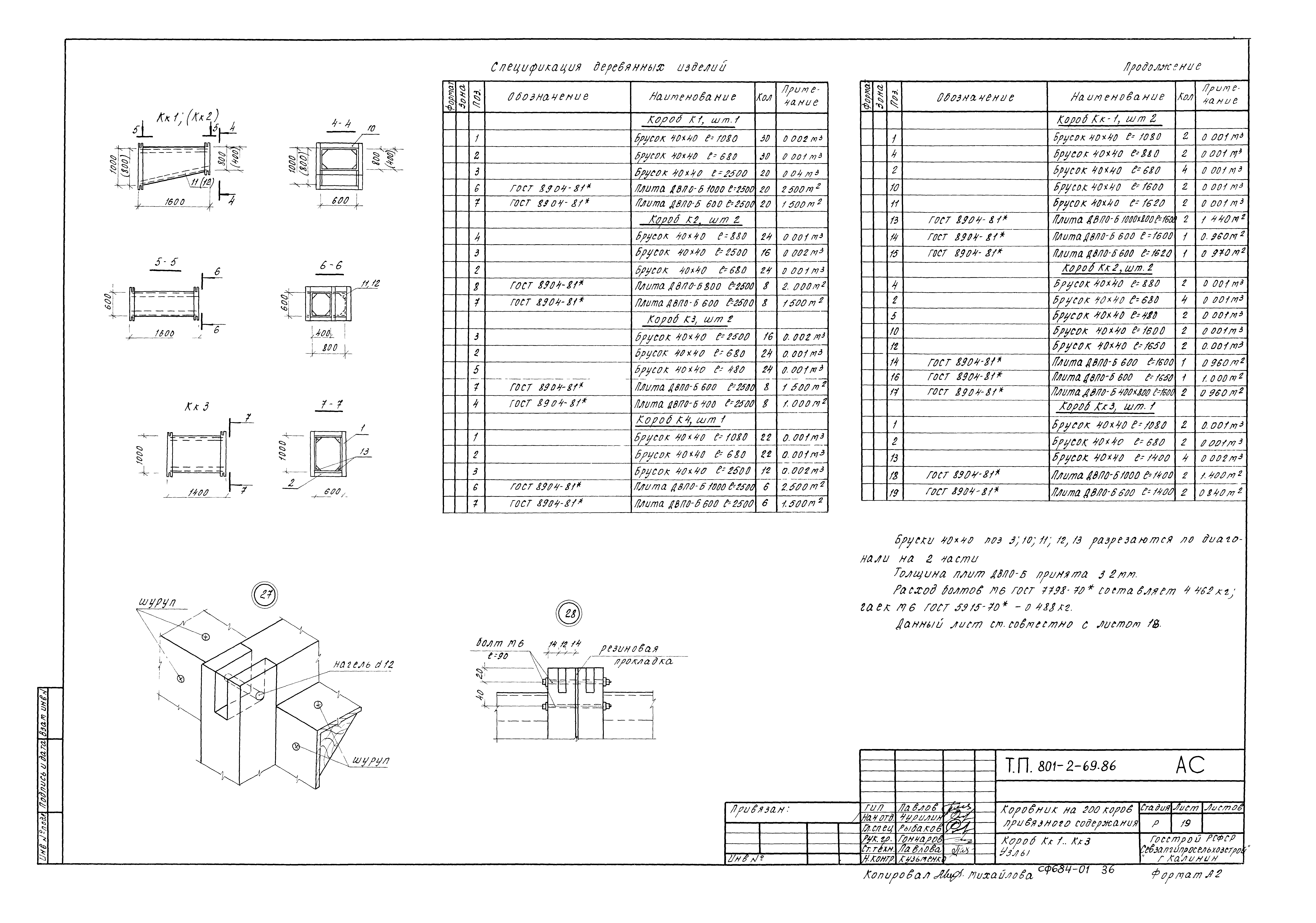
| Оглавление: | ПЗ-1 Пояснительная записка (начало) ПЗ-2 Пояснительная записка (продолжение) ПЗ-3 Пояснительная записка (продолжение) ПЗ-4 Пояснительная записка (продолжение) ПЗ-5 Пояснительная записка (окончание) ТХ-1 Общие данные ТХ-2 Расстановка технологического оборудования. План на отм. 0.000. Разрез 1-1 ТХ-3 Монтажный чертеж стойлового оборудования ОСК-25А ТХ-4 Механизация доения установки АДМ-8. План. Схема разводки ТХ-5 Механизация доения. Установочные чертежи на доильную установку АДМ-8 ТХ-6 Механизация доения. Спецификация ТХ-7 Механизация навозоудаления. Вариант I. План. Сечения. Фрагмент 1 ТХ-8 Механизация навозоудаления. Вариант II. План. Сечения. Фрагменты 1,2 ТХ-9 Механизация навозоудаления. Установочный чертеж горизонтального транспортера ТСН-160 АС-1 Общие данные (начало) АС-2 Общие данные (окончание) АС-3 План на отм. 0.000 АС-4 Фрагменты плана 1,2. Фрагмент плана (при варианте транспортировки навоза установкой УТН-10) АС-5 Разрезы 1-1…3-3 АС-6 Фасады 1-18, 18-1, А/1-Е, Е-А/1 АС-7 План полов и устройство выравнивания электрических потенциалов. План кровли АС-8 Схема расположения элементов фундаментов. Сечения АС-9 Схема расположения каналов навозоудаления. Сечения АС-10 Фрагменты 1,2. Сечения АС-11 Схемы расположения элементов перекрытия АС-12 Схемы расположения элементов покрытия АС-13 Спецификация к схемам расположения элементов перекрытия и покрытия АС-14 Узлы 2…6. Детали АС-15 Узлы 7…17. Детали АС-16 Узлы 18…26. Детали АС-17 Слуховое окно АС-18 Воздуховод вентиляционный. Короб К1…К4 АС-19 Кород Кк1…Кк3. Узлы АС-20 Вариант устройства стен с бревенчатой забиркой из круглого леса диаметром 160(180) мм Металлические изделия А-1…А-5 Металлические изделия МР-1, МР-2 Металлические изделия ИП-1…ИП3 Металлические изделия ИП-4, ИП-5 Закладная деталь ЗД-1 Сетка С-1 Щиты Щ-1…Щ-3 Щиты Щ-4…Щ-6 Опалубочный чертеж перемычки 1ПРЧ-36.12.22-1 ОВ-1 Общие данные (начало) ОВ-2 Общие данные (окончание) ОВ-3 План на отм. 0.000. Разрезы ОВ-4 Схемы систем П1, П2. Схема теплоснабжения установок П1, П2, а1 ОВ-5 Установка системы П1 ОВ-6 Установка системы П2 ВК-1 Общие данные ВК-2 План на отм.0.000 систем В1, К3, Т3, Т31 ВК-3 Схемы систем В1, КЗ, ТЗ, ТЗ1 ЭЛ-1 Общие данные ЭЛ-2 Силовое электрооборудование. Схема электрическая расположения ЭЛ-3 Электроосвещение. Схема электрическая расположения ЭЛ-4 Силовое электрооборудование и электроосвещение. Схема электрическая расчетная ЭЛ-5 Молниезащита ЭЛ-6 Защита калориферов от замораживания ПЗ-1 Пояснительная записка (начало) ПЗ-2 Пояснительная записка (продолжение) ПЗ-3 Пояснительная записка (продолжение) ПЗ-4 Пояснительная записка (продолжение) ПЗ-5 Пояснительная записка (окончание) ТХ-1 Общие данные ТХ-2 Расстановка технологического оборудования. План на отм. 0.000. Разрез 1-1 ТХ-3 Монтажный чертеж стойлового оборудования ОСК-25А ТХ-4 Механизация доения установки АДМ-8. План. Схема разводки ТХ-5 Механизация доения. Установочные чертежи на доильную установку АДМ-8 ТХ-6 Механизация доения. Спецификация ТХ-7 Механизация навозоудаления. Вариант I. План. Сечения. Фрагмент 1 ТХ-8 Механизация навозоудаления. Вариант II. План. Сечения. Фрагменты 1,2 ТХ-9 Механизация навозоудаления. Установочный чертеж горизонтального транспортера ТСН-160 АС-1 Общие данные (начало) АС-2 Общие данные (окончание) АС-3 План на отм. 0.000 АС-4 Фрагменты плана 1,2. Фрагмент плана (при варианте транспортировки навоза установкой УТН-10) АС-5 Разрезы 1-1…3-3 АС-6 Фасады 1-18, 18-1, А/1-Е, Е-А/1 АС-7 План полов и устройство выравнивания электрических потенциалов. План кровли АС-8 Схема расположения элементов фундаментов. Сечения АС-9 Схема расположения каналов навозоудаления. Сечения АС-10 Фрагменты 1,2. Сечения АС-11 Схемы расположения элементов перекрытия АС-12 Схемы расположения элементов покрытия АС-13 Спецификация к схемам расположения элементов перекрытия и покрытия АС-14 Узлы 2…6. Детали АС-15 Узлы 7…17. Детали АС-16 Узлы 18…26. Детали АС-17 Слуховое окно АС-18 Воздуховод вентиляционный. Короб К1…К4 АС-19 Кород Кк1…Кк3. Узлы АС-20 Вариант устройства стен с бревенчатой забиркой из круглого леса диаметром 160(180) мм Металлические изделия А-1…А-5 Металлические изделия МР-1, МР-2 Металлические изделия ИП-1…ИП3 Металлические изделия ИП-4, ИП-5 Закладная деталь ЗД-1 Сетка С-1 Щиты Щ-1…Щ-3 Щиты Щ-4…Щ-6 Опалубочный чертеж перемычки 1ПРЧ-36.12.22-1 ОВ-1 Общие данные (начало) ОВ-2 Общие данные (окончание) ОВ-3 План на отм. 0.000. Разрезы ОВ-4 Схемы систем П1, П2. Схема теплоснабжения установок П1, П2, а1 ОВ-5 Установка системы П1 ОВ-6 Установка системы П2 ВК-1 Общие данные ВК-2 План на отм.0.000 систем В1, К3, Т3, Т31 ВК-3 Схемы систем В1, КЗ, ТЗ, ТЗ1 ЭЛ-1 Общие данные ЭЛ-2 Силовое электрооборудование. Схема электрическая расположения ЭЛ-3 Электроосвещение. Схема электрическая расположения ЭЛ-4 Силовое электрооборудование и электроосвещение. Схема электрическая расчетная ЭЛ-5 Молниезащита ЭЛ-6 Защита калориферов от замораживания |
| Разработан: | Севзапгипросельхозстрой |
| Утверждён: | 29.12.1984 Минсельхоз РСФСР (Russian Federation Minselkhoz 35) |


























































