Скачать Серия 2.130-1 Выпуск 10. Балконы, лоджии, эркеры крупнопанельных зданийДата актуализации: 01.01.2021
|
| Обозначение: | Серия 2.130-1 |
| Обозначение англ: | Series 2.130-1 |
| Статус: | справочные материалы, мп, тпр |
| Название рус.: | Выпуск 10. Балконы, лоджии, эркеры крупнопанельных зданий |
| Дата добавления в базу: | 01.09.2013 |
| Дата актуализации: | 01.01.2021 |
| Дата введения: | 01.11.1971 |
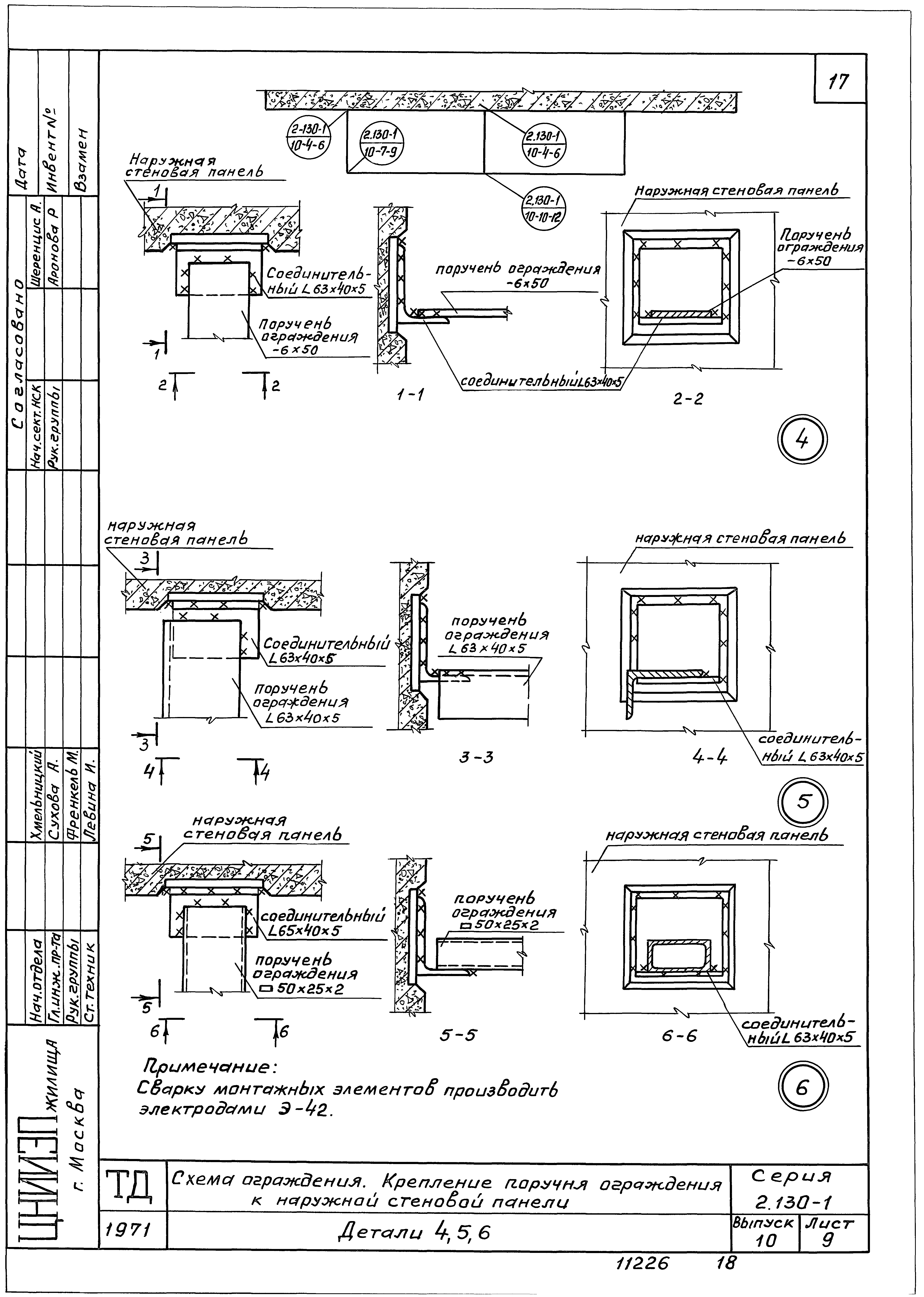
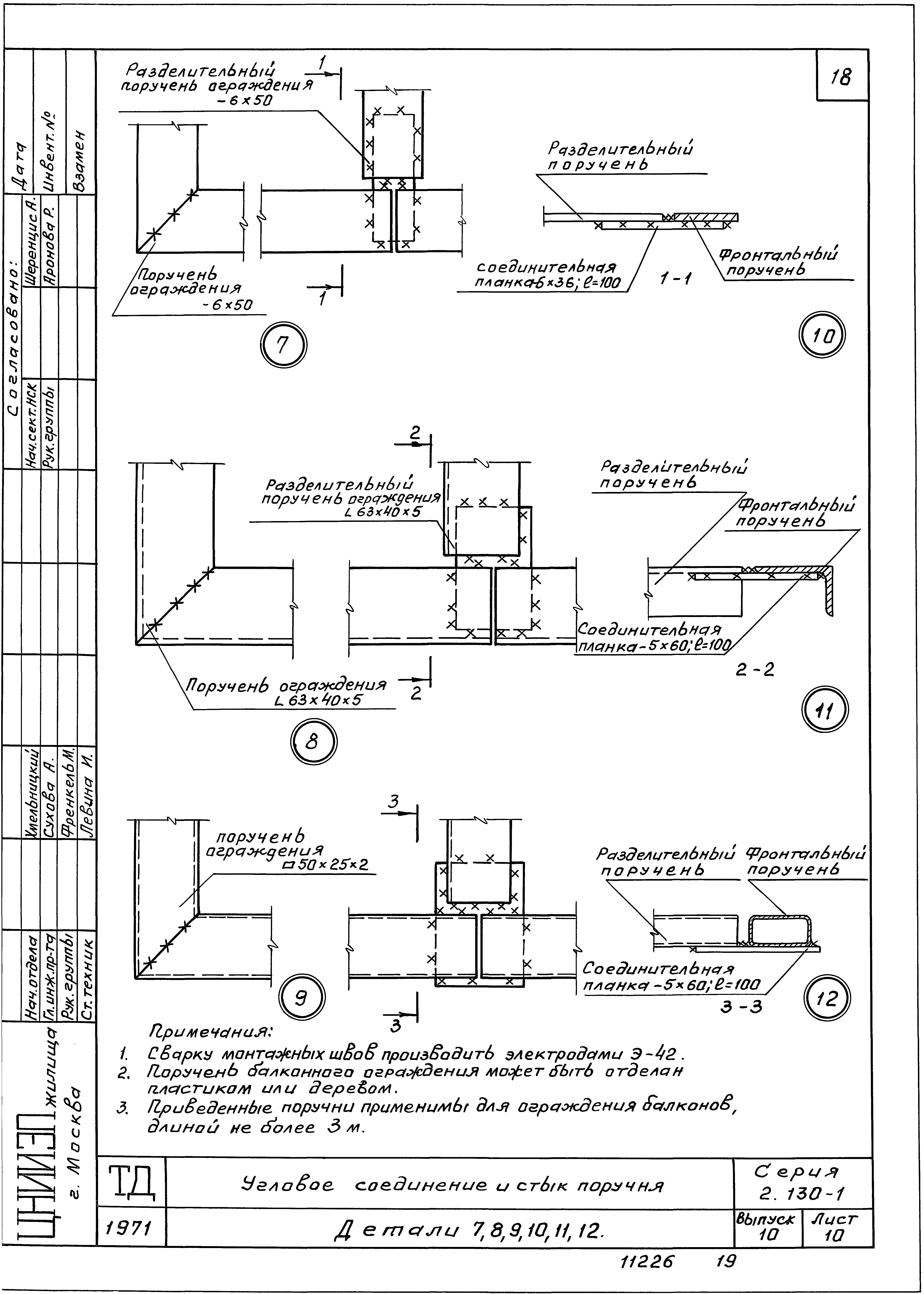
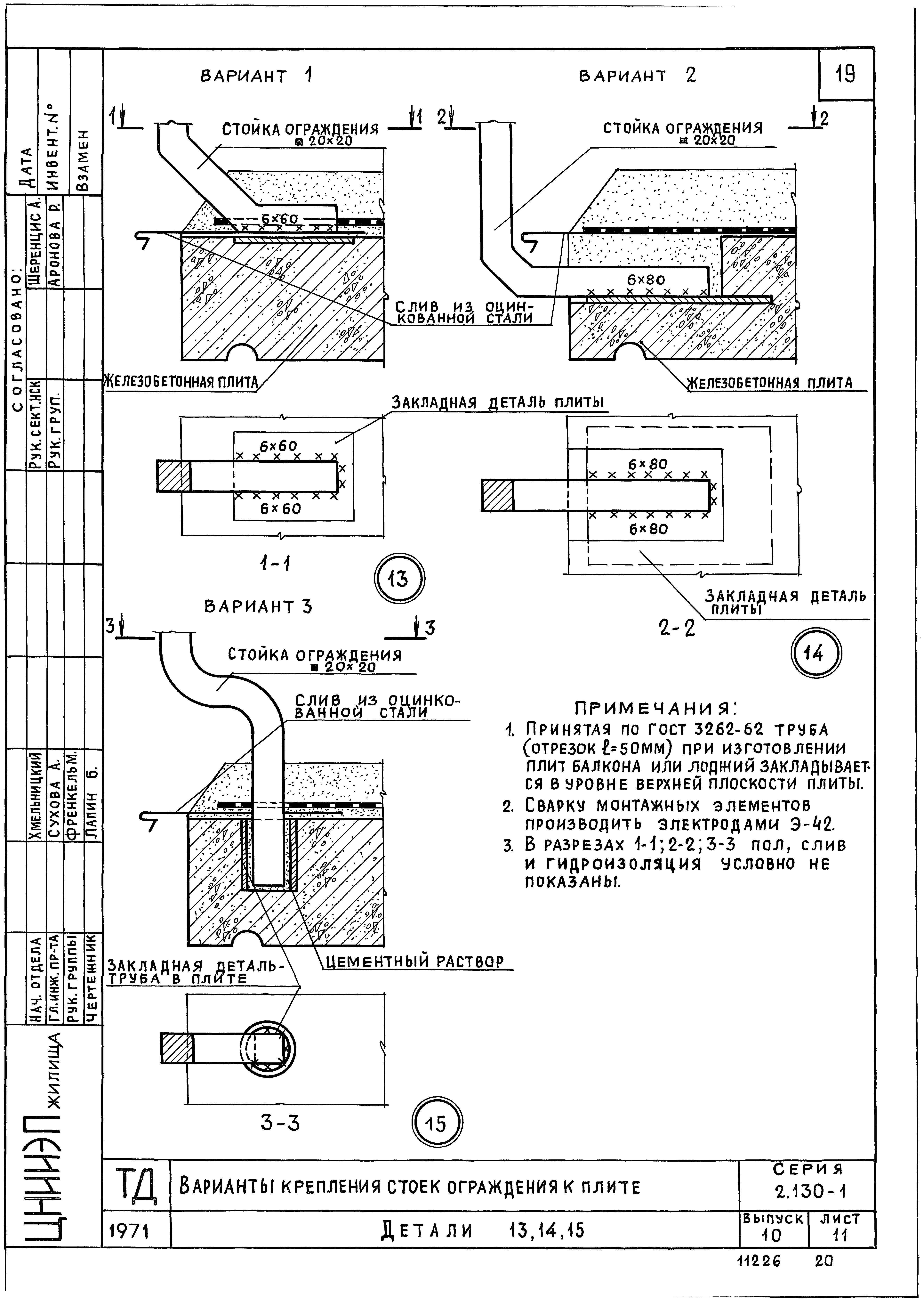
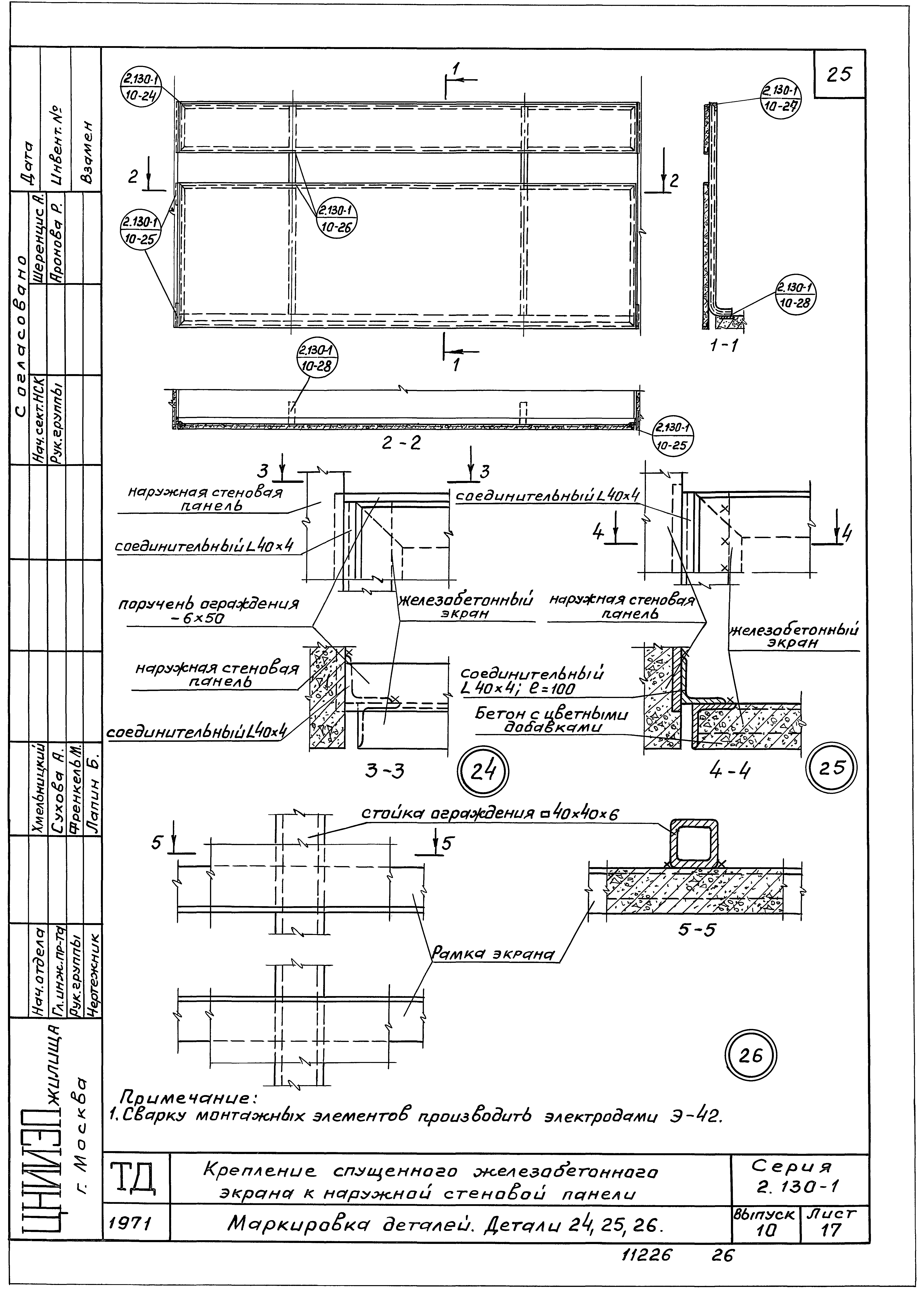
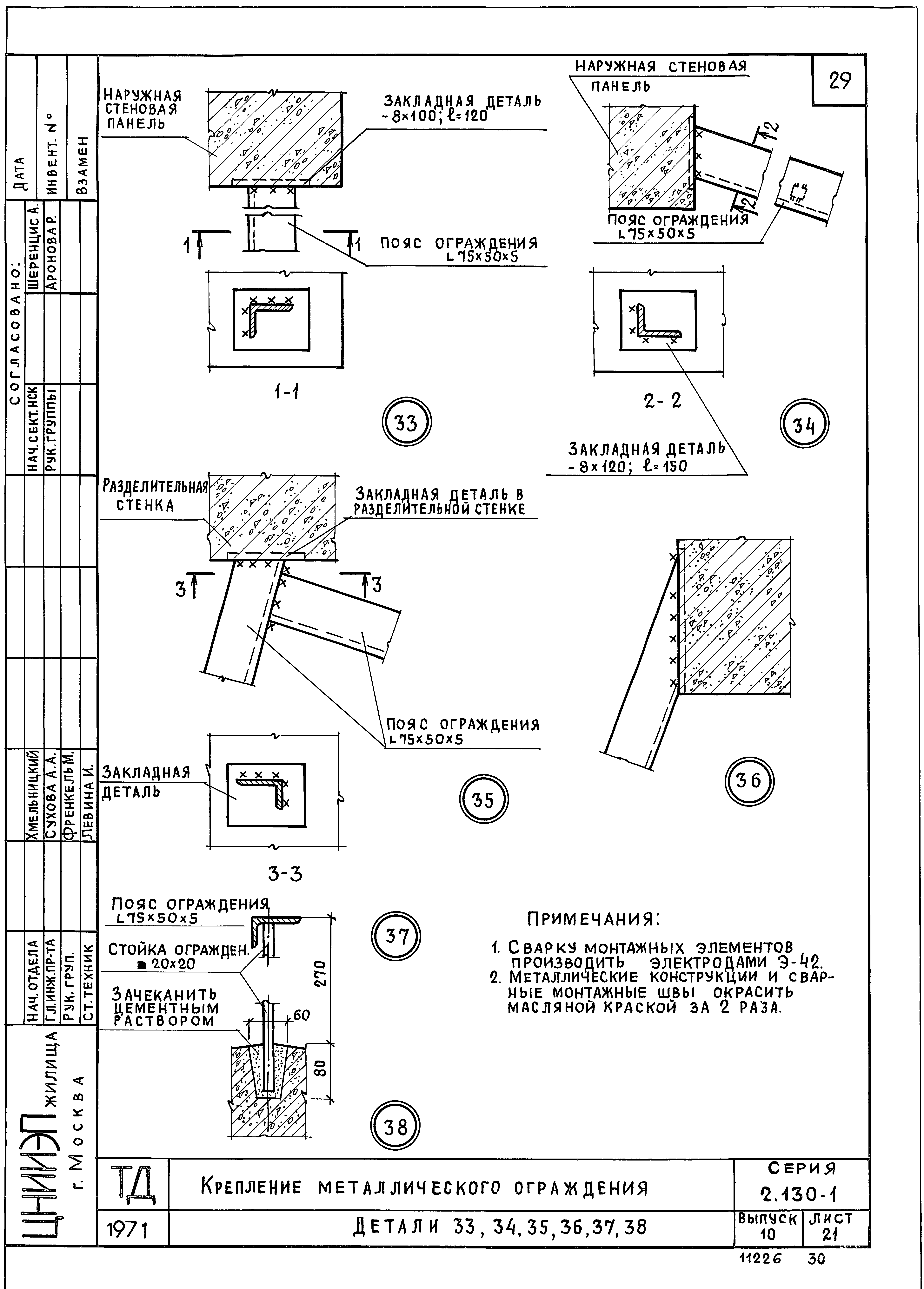
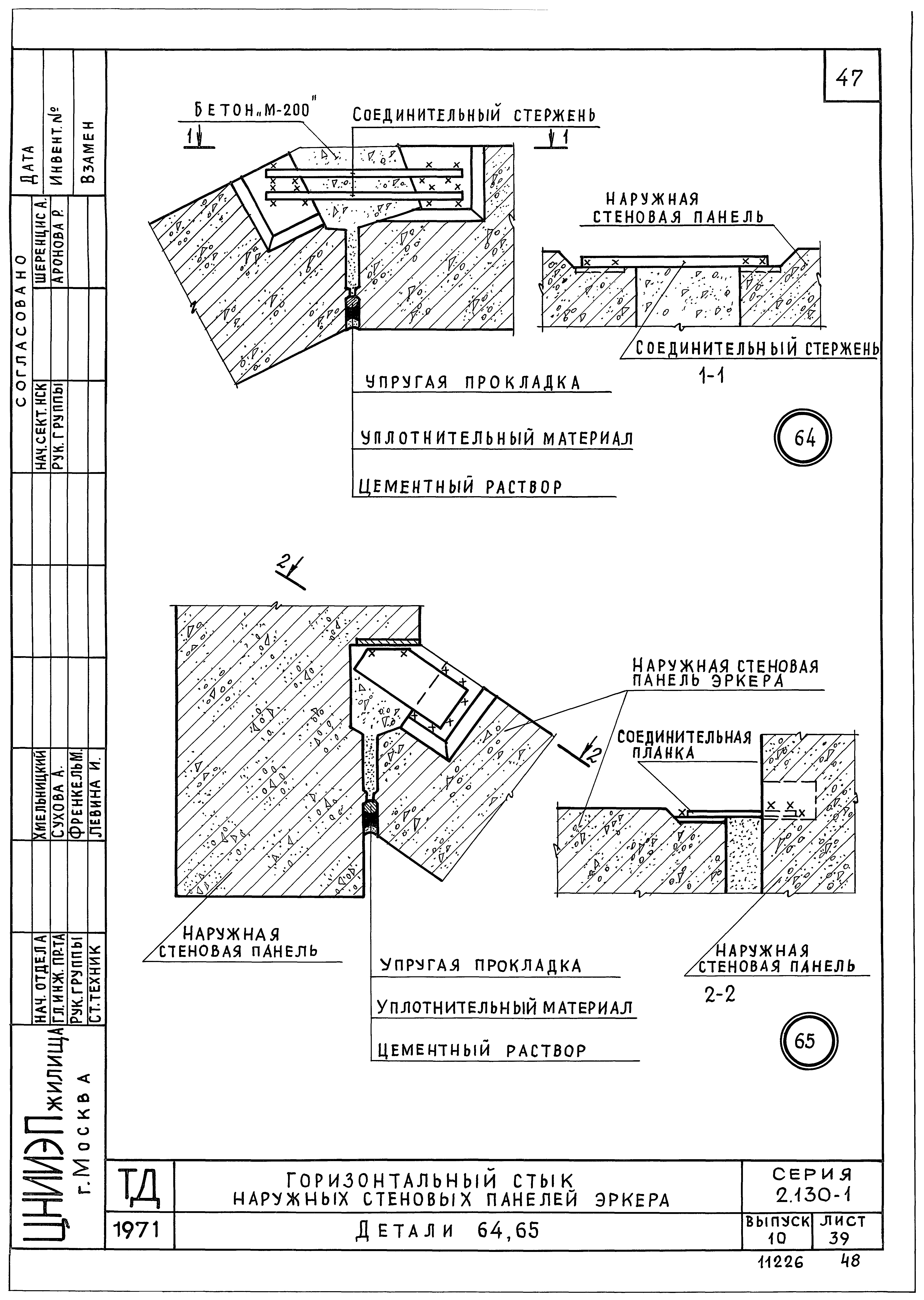
| Оглавление: | Содержание выпуска Пояснительная записка Варианты общих видов балконов. Маркировки деталей Монтажная схема балкона (одинарного). Маркировка деталей Монтажная схема балкона из двух или нескольких плит. Маркировка деталей Крепление балконной плиты к панелям перекрытия. Деталь 1 Монтажная схема лоджий. Маркировка деталей Стык плит лоджий. Крепление разделительной степени лоджий. Детали 2, 3 Схема ограждения. Крепления поручня ограждения к наружной стеновой панели. Детали 4, 5, 6 Угловое соединение и стык поручня. Детали 7, 8, 9, 10, 11, 12 Варианты крепления стоек ограждения к плите. Детали 13, 14, 15 Схема крепления экрана из армостекла в рамке их фасонного проката к металлическому ограждению. Маркировка деталей Крепление экрана из армостекла к металлическому ограждению. Детали 16, 17 Крепление экранов из листовых материалов к металлическому ограждению. Маркировка деталей. Деталь18 Крепление армоцементного экрана к металлическому ограждению. Маркировка деталей. Детали 19, 20 Крепление железобетонного экрана к металлическому ограждению. Маркировка деталей. Детали 21, 22, 23 Крепление спущенного железобетонного экрана к металлическому ограждению. Маркировка деталей. Детали 24, 25, 26 Крепление стойки железобетонного экрана к плите. Детали 27, 28 Варианты крепления железобетонного экрана к разделительной стенке и плите балкона или лоджии. Детали 29, 30, 31 Крепление железобетонного экрана к разделительной стенке. Детали 32 Крепление металлического ограждения. Детали 33, 34, 35, 36, 37, 38 Схема установки металлической цветочницы на ограждение. Маркировка деталей. Деталь 39 Схема установки металлической цветочницы на ограждение. Маркировка деталей. Деталь 40, 41 Устройство полов и заделка гидроизоляции на плитах балконов или лоджий. Деталь 42, 43, 44 Монтажная схема асимметричного эркера. Маркировка деталей Горизонтальные стыки парапетных рядовых и цокольных стеновых панелей эркера. Детали 45, 46, 47 Соединение парапетных панелей эркера. Деталь 48 Угловой стык панелей наружных стен эркера. Деталь 49 Разрезы 1-1; 2-2. Деталь 49 Вертикальный стык панелей наружных стен эркера. Деталь 50 Разрез 3-3. Деталь 50 Установка оконного блока (со спаренными переплетами) в эркере. Детали 51, 52 Установка оконного блока (со раздельными переплетами) в эркере. Детали 53, 54 Монтажная схема симметричного эркера. Маркировка деталей Горизонтальные стыки парапетных и рядовых стеновых панелей. Детали 55, 56, 57 Стык панелей эркера и наружных стен. Детали 58, 59, 60, 61 Установка оконного блока (со спаренными переплетами) в эркере. Детали 62, 63 Монтажная схема эркера. Маркировка деталей Горизонтальный стык наружных стеновых панелей эркера. Детали 64, 65 Горизонтальный стык рядовой стеновой панели и панели перекрытия эркера. Деталь 66 Стык панели перекрытия нижнего этажа эркера с наружной стеновой панелью. Деталь 67 |
| Разработан: | ЦНИИЭП жилища |
| Утверждён: | 22.07.1971 Государственный комитет по гражданскому строительству и архитектуре при Госстрое СССР (131) |

















































