Скачать Серия 2.130-6с Выпуск 1. Кирпичные стены сплошной кладки. Рабочие чертежиДата актуализации: 01.01.2021
|
| Обозначение: | Серия 2.130-6с |
| Обозначение англ: | Series 2.130-6с |
| Статус: | не определен законодательством |
| Название рус.: | Выпуск 1. Кирпичные стены сплошной кладки. Рабочие чертежи |
| Дата добавления в базу: | 01.09.2013 |
| Дата актуализации: | 01.01.2021 |
| Дата введения: | 01.01.1984 |
| Дата окончания срока действия: | 30.06.2003 |
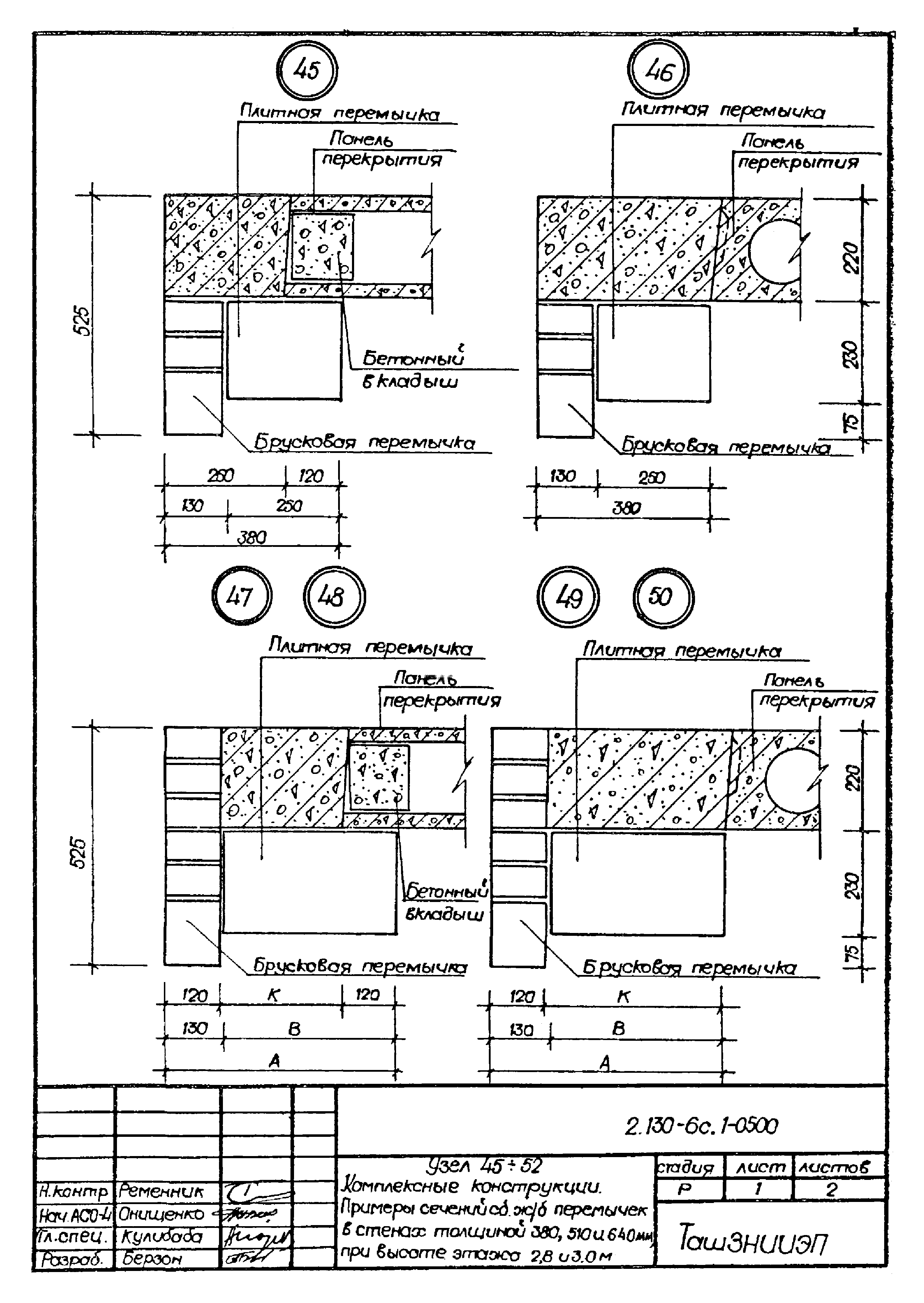
| Оглавление: | 2.130-6с.1-0000 Содержание 2.130-6с.1-0000 ТО Техническое описание 2.130-6с.1-0001 Комплексные конструкции. Фрагмент стены с частым расположением проемов 2.130-6с.1-0002 Комплексные конструкции. Фрагмент стены с одиночным проёмом 2.130-6с.1-0003 Комплексные конструкции. Фрагмент стены с одиночным железобетонным включением 2.130-6с.1-0004 Фрагмент стены толщиной 380 мм со схемой опирания сб. ж/б перемычек. Фрагмент стены толщиной 310, 640 мм со схемой опирания сб. ж/б перемычек 2.130-6с.1-0100 Узел 1/ 16. Горизонтальное армирование стен в зданиях с расчетной сейсмичностью 7, 8 и 9 баллов 2.130-6с.1-0200 Узел 17/ 29. Комплексные конструкции. Примеры сечений железобетонных включений в стенах толщиной 380, 510 и 640 мм 2.130-6с.1-0300 Узел 30/ 32. Комплексные конструкции. Примеры сечений железобетонных включений в стенах толщиной 380, 510 и 640 мм 2.130-6с.1-0400 Узел 33/ 44. Комплексные конструкции. Примеры сечений поясов перемычек в стенах толщиной 380, 510 и 640 мм при высоте этажа 2.8 и 3.0 м 2.130-6с.1-0500 Узел 45/ 52. Комплексные конструкции. Примеры сечений сб. ж/б перемычек в стенах толщиной 380, 510 и 640 мм при высоте этажа 2.8 и 3.0 м 2.130-6с.1-0600 Узел 53; 54. Армирование стен над верхним перекрытием при чердачных и бесчердачных невентилируемых покрытиях 2.130-6с.1-0700 Узел 55. Крепление кирпичных труб при чердачных покрытиях 2.130-6с.1-0800 Узел 56. Крепление кирпичных труб при бесчердачных невентилируемых покрытиях 2.130-6с.1-0010 Каркас КТ 2.130-6с.1-0020 Сетка СГ-1/ СГ-3 2.130-6с.1-0030 Анкер АС-1; АС-2 |
| Разработан: | ТашЗНИИЭП Госгражданстроя |
| Утверждён: | 08.12.1983 Госгражданстрой (Gosgrazhdanstroy 378) |

































