Скачать Серия 2.432-2 Выпуск 0. Материалы для проектированияДата актуализации: 01.01.2021
|
| Обозначение: | Серия 2.432-2 |
| Обозначение англ: | Series 2.432-2 |
| Статус: | действует |
| Название рус.: | Выпуск 0. Материалы для проектирования |
| Дата добавления в базу: | 01.09.2013 |
| Дата актуализации: | 01.01.2021 |
| Дата введения: | 01.01.1980 |
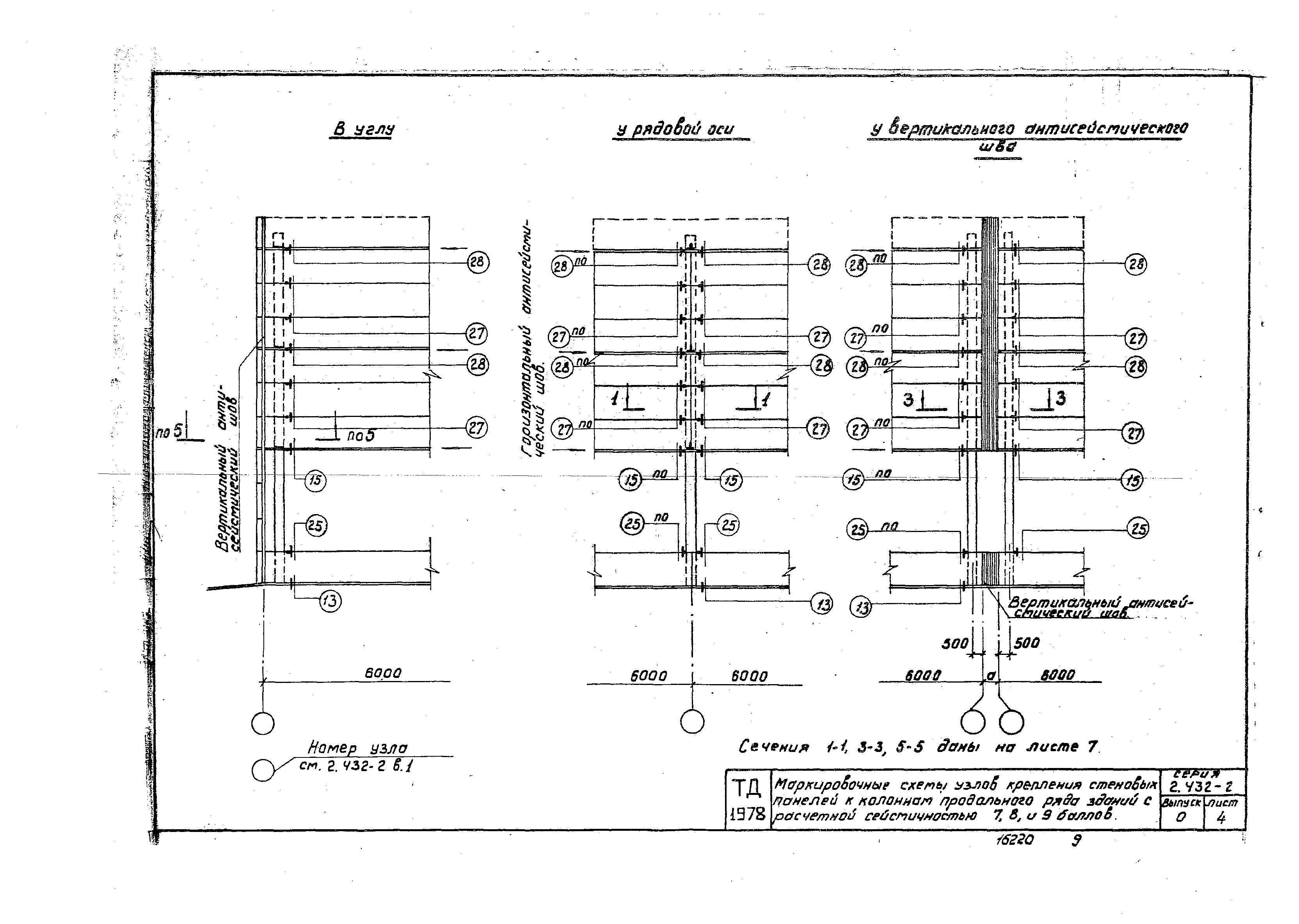
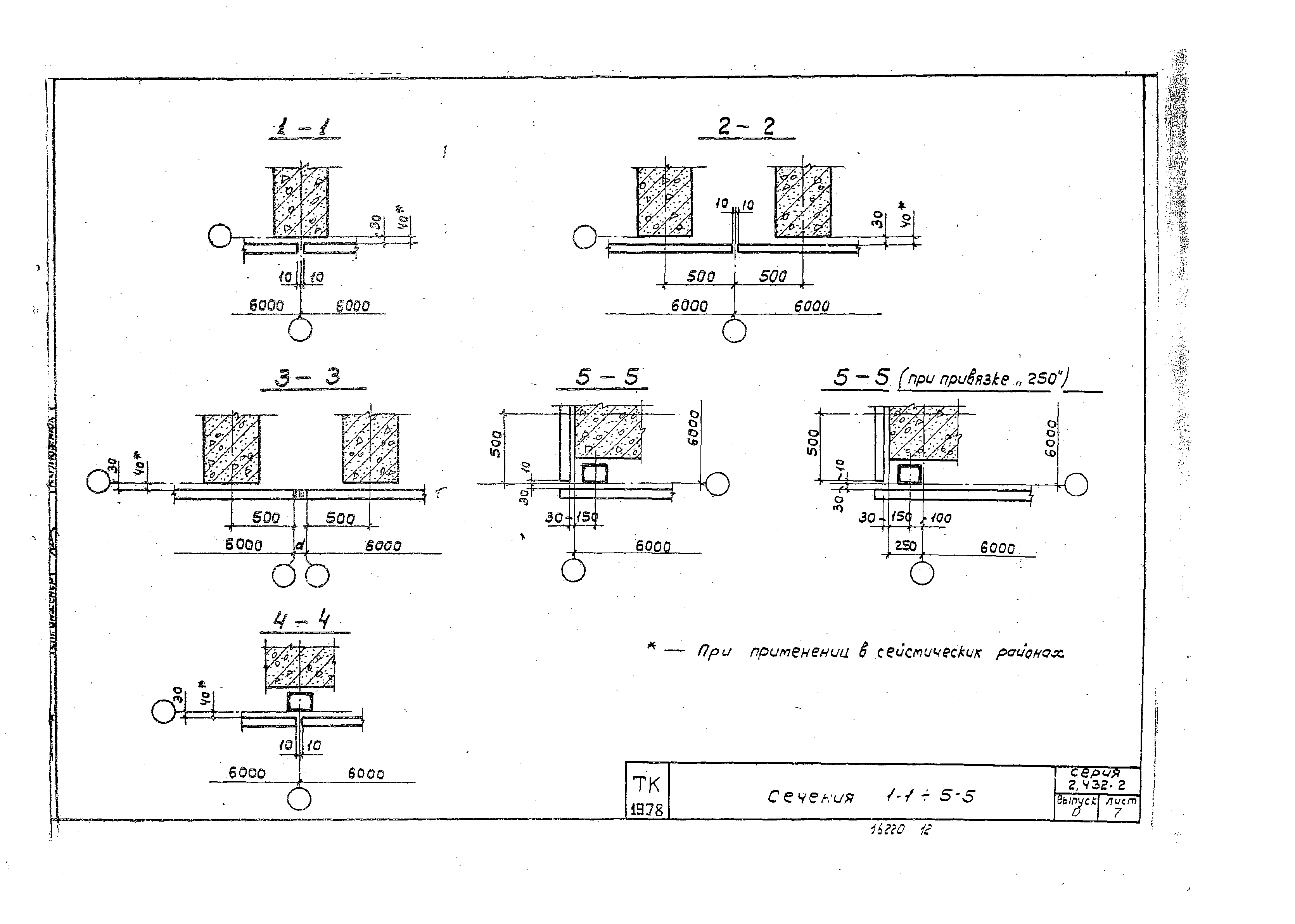
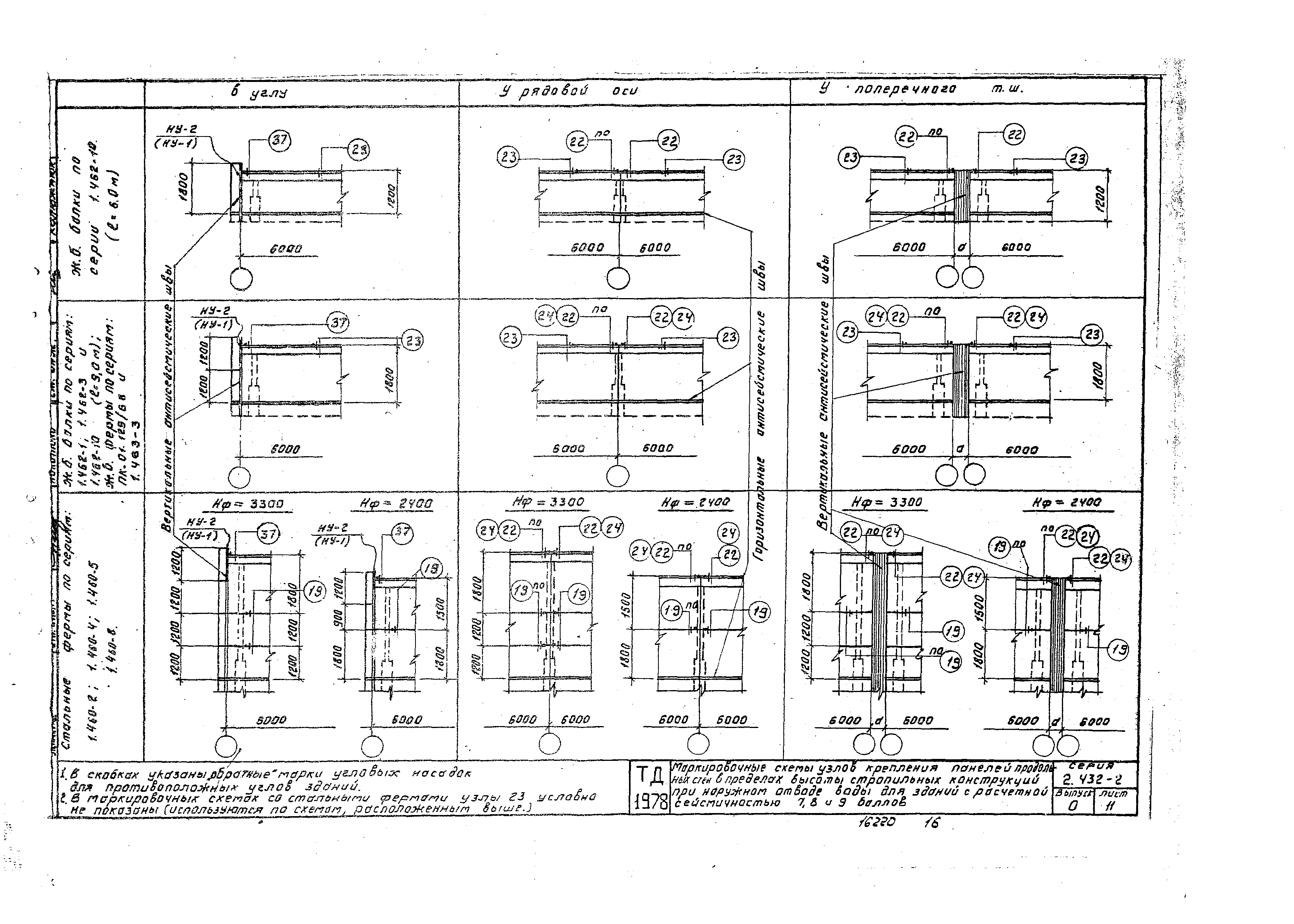
| Оглавление: | Содержание Пояснительная записка Маркировочные схемы расположения узлов крепления стоек и насадок торцового фахверка. Ключ для подбора стоек торцового фахверка Маркировочные схемы узлов крепления и ключ для подбора опорных консолей Маркировочные схемы узлов крепления стеновых панелей к колоннам продольного ряда Маркировочные схемы узлов крепления стеновых панелей к колоннам продольного ряда для здания с расчетной сейсмичностью 7, 8 и 9 баллов Маркировочные схемы узлов крепления стеновых панелей к колоннам торцового ряда Маркировочные схемы узлов крепления стеновых панелей к колоннам торцового ряда для здания с расчетной сейсмичностью 7, 8 и 9 баллов Сечения 1-1/ 5-5 Маркировочные схемы узлов крепления стеновых панелей продольных стен в пределах несущих конструкций покрытия при внутреннем отводе воды Маркировочные схемы узлов крепления стеновых панелей продольных стен в пределах несущих конструкций покрытия при внутреннем отводе воды для зданий с расчетной сейсмичностью 7, 8 и 9 баллов Маркировочные схемы узлов крепления панелей продольных стен в пределах высоты стропильных конструкций при наружном отводе воды Маркировочные схемы узлов крепления панелей продольных стен в пределах высоты стропильных конструкций при наружном отводе воды для зданий с расчетной сейсмичностью 7, 8 и 9 баллов Маркировочные схемы узлов крепления панелей торцовых стен в пределах высоты железобетонных стропильных балок (в том числе для зданий с расчетной сейсмичностью 7, 8 и 9 баллов) Маркировочные схемы узлов крепления панелей торцовых стен в пределах высоты ферм серий 1.463-3 вып 2/5 и ПК-01-129/68 вып 2,3 (в том числе для зданий с расчетной сейсмичностью 7, 8 и 9 баллов) Маркировочные схемы узлов крепления панелей торцовых стен в пределах высоты ферм серий 1.460-2 вып.1, 1.460-4 вып 1/3, 1.460-5 вып 1,2. 1.460-8 вып 1,2 (в том числе для зданий с расчетной сейсмичностью 7, 8 и 9 баллов) Спецификация соединительных элементов на один монтажный узел. Узлы 1/24 Спецификация соединительных элементов на один монтажный узел. Узлы 25/ 39 Разбивка дополнительных закладных деталей в стропильных конструкциях Закладные детали МД1/ МД6. Схема расположения закладных деталей в колоннах и панели Закладные детали МД7/ МД9 |
| Разработан: | Ленинградский Промстройпроект АО ЦНИИпромзданий |
| Утверждён: | 28.06.1979 Госстрой СССР (Государственный комитет Совета Министров СССР по делам строительства) (USSR Gosstroy 103) |
| Издан: | ЦИТП Госстроя СССР (CITP, Gosstroy (USSR) 1979 г. ) |
























