Скачать Серия 2.473-1 Выпуск 1. Указания по применению, узлы облицовок стен и колонн. Рабочие чертежиДата актуализации: 01.01.2021
|
| Обозначение: | Серия 2.473-1 |
| Обозначение англ: | Series 2.473-1 |
| Статус: | действует |
| Название рус.: | Выпуск 1. Указания по применению, узлы облицовок стен и колонн. Рабочие чертежи |
| Дата добавления в базу: | 01.09.2013 |
| Дата актуализации: | 01.01.2021 |
| Дата введения: | 01.09.1989 |
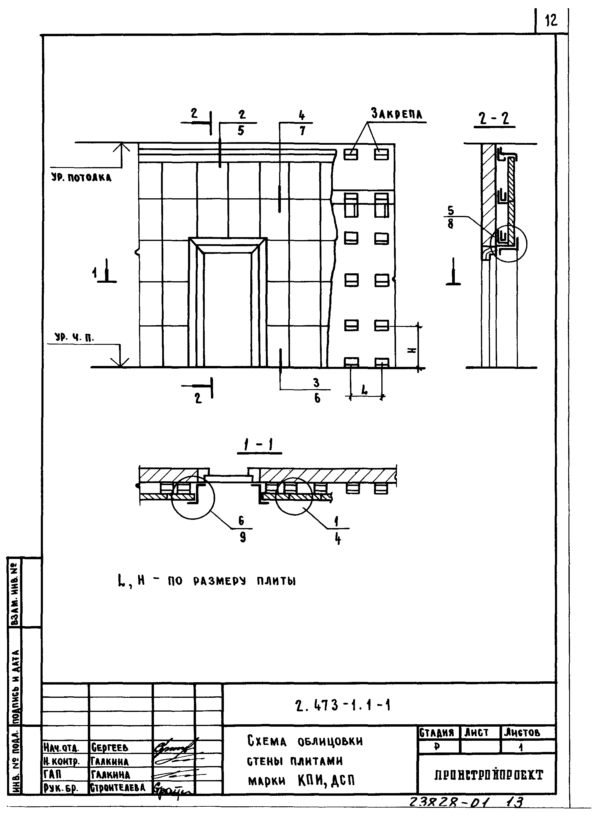
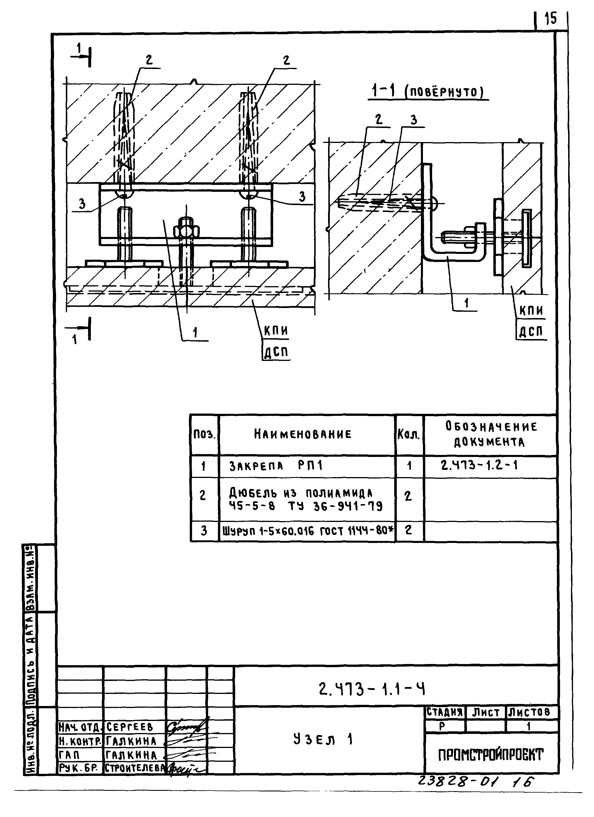
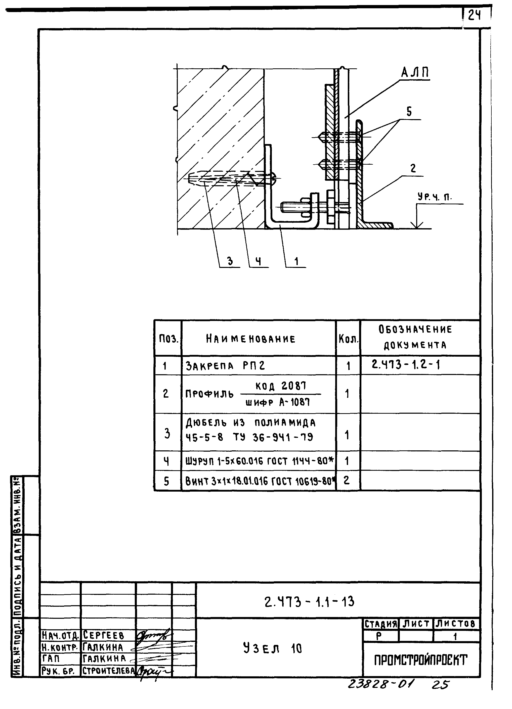
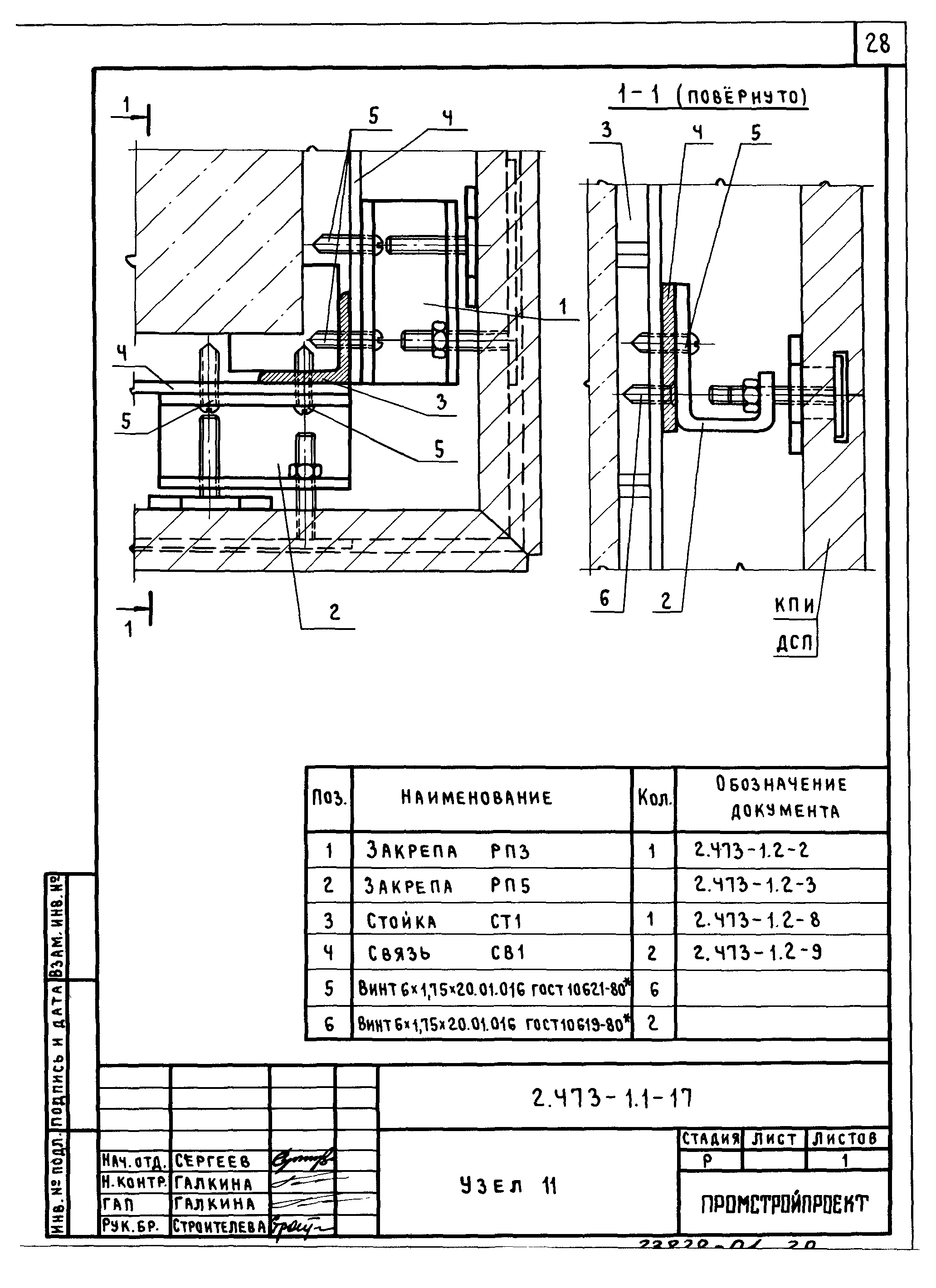
| Оглавление: | 2.473-1.1-ТО Техническое описание 2.473-1.1-1 Схема облицовки стены плитами марки КПИ, ДСП 2.473-1.1-2 Схема облицовки стены плитами марки АЦЛ 2.473-1.1-3 Схема облицовки стены плитами марки АЛП 2.473-1.1-4 Узел 1 2.473-1.1-5 Узел 2 2.473-1.1-6 Узел 3 2.473-1.1-7 Узел 4 2.473-1.1-8 Узел 5 2.473-1.1-9 Узел 6 2.473-1.1-10 Узел 7 2.473-1.1-11 Узел 8 2.473-1.1-12 Узел 9 2.473-1.1-13 Узел 10 2.473-1.1-14 Схема облицовки колонны плитами марки КПИ, ДСП 2.473-1.1-15 Схема облицовки колонны плитами марки АЦЛ 2.473-1.1-16 Схема облицовки колонны плитами марки АЛП 2.473-1.1-17 Узел 11 2.473-1.1-18 Узел 12 2.473-1.1-19 Узел 13 2.473-1.1-20 Узел 14 2.473-1.1-21 Узел 15 2.473-1.1-22 Узел 16 2.473-1.1-23 Узел 17 |
| Разработан: | ГПИ Промстройпроект |
| Утверждён: | 03.02.1989 Госстрой СССР (Государственный комитет Совета Министров СССР по делам строительства) (USSR Gosstroy 4/6-159) |
| Издан: | ЦИТП Госстроя СССР (CITP, Gosstroy (USSR) 1989 г. ) |



































