Скачать Серия 1.165.1-10 Выпуск 1. Панели сплошные толщиной 300, 350 мм под расчетную нагрузку 200 и 300 кгс/кв.м (без учета собственного веса). Опалубка и армирование. Рабочие чертежиДата актуализации: 01.01.2021
|
| Обозначение: | Серия 1.165.1-10 |
| Обозначение англ: | Series 1.165.1-10 |
| Статус: | действует |
| Название рус.: | Выпуск 1. Панели сплошные толщиной 300, 350 мм под расчетную нагрузку 200 и 300 кгс/кв.м (без учета собственного веса). Опалубка и армирование. Рабочие чертежи |
| Дата добавления в базу: | 01.09.2013 |
| Дата актуализации: | 01.01.2021 |
| Дата введения: | 01.01.1983 |
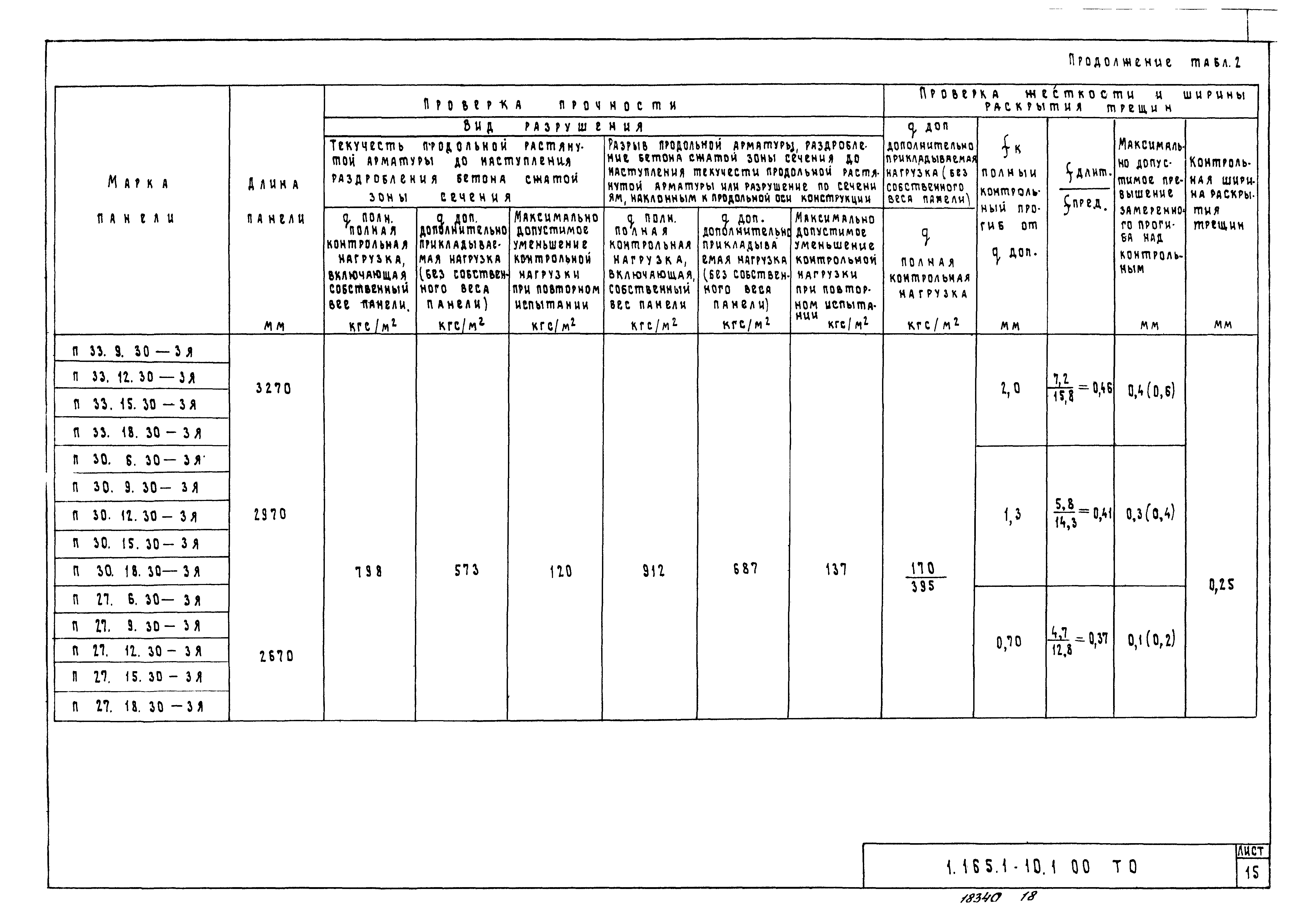
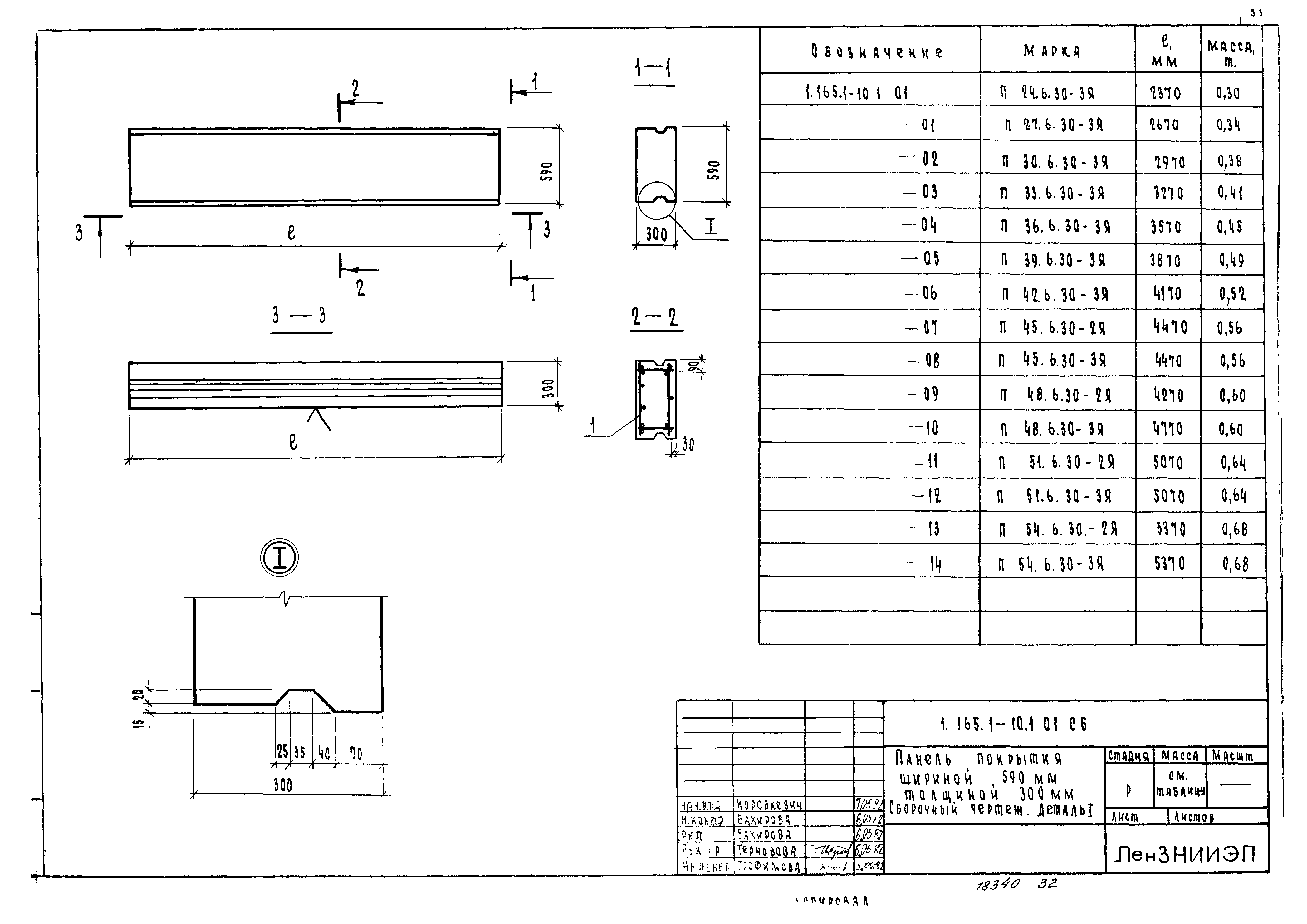
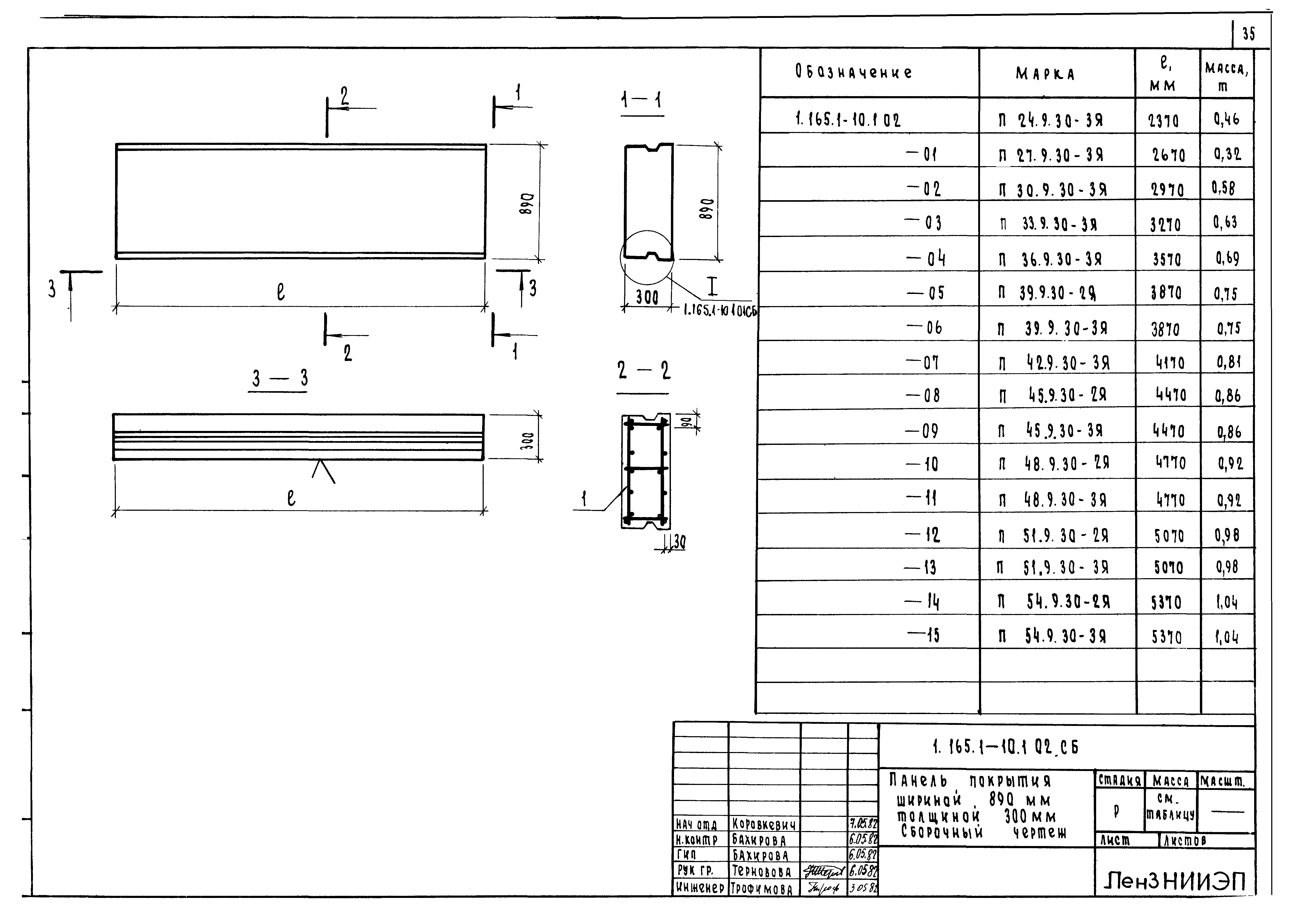
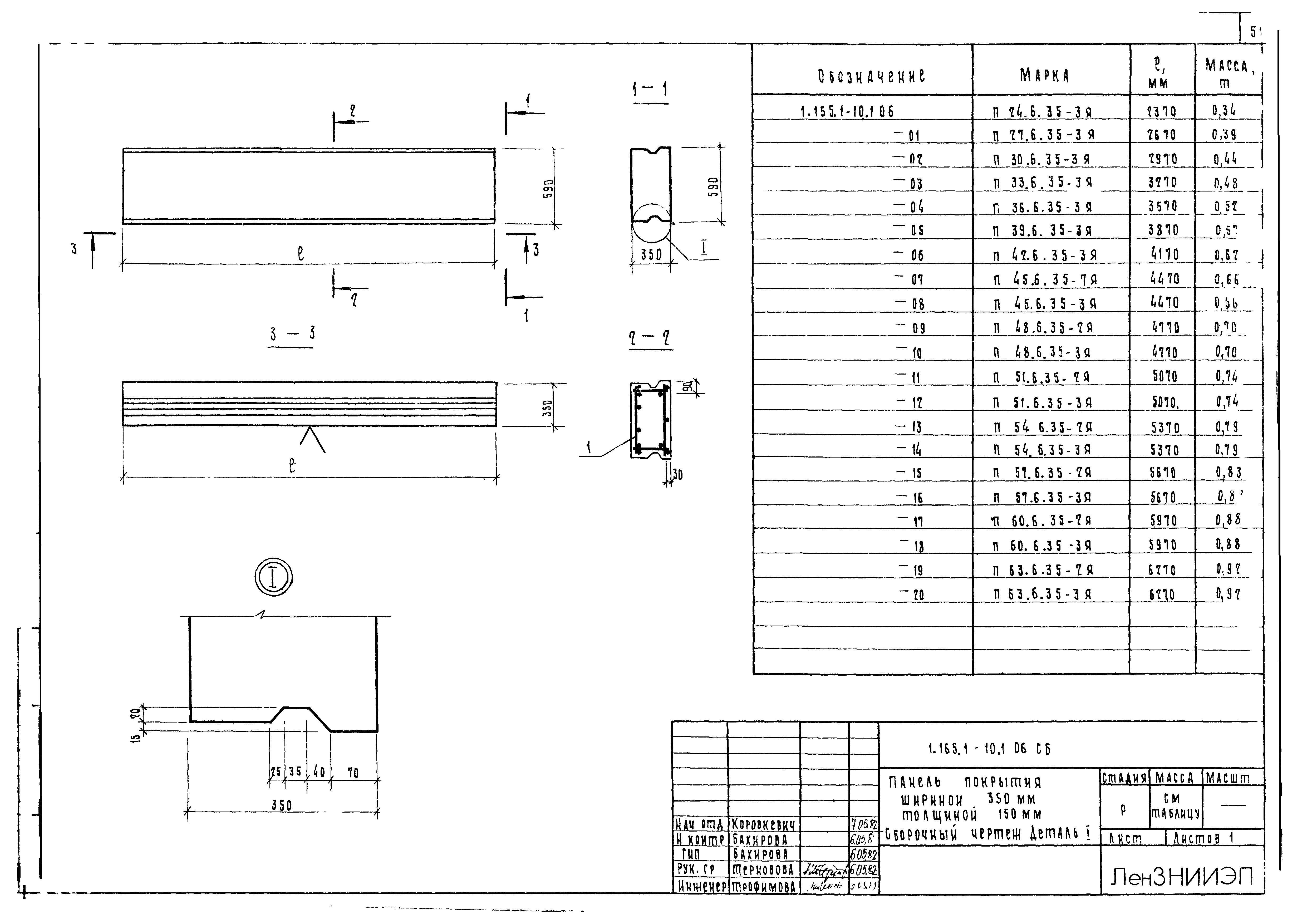
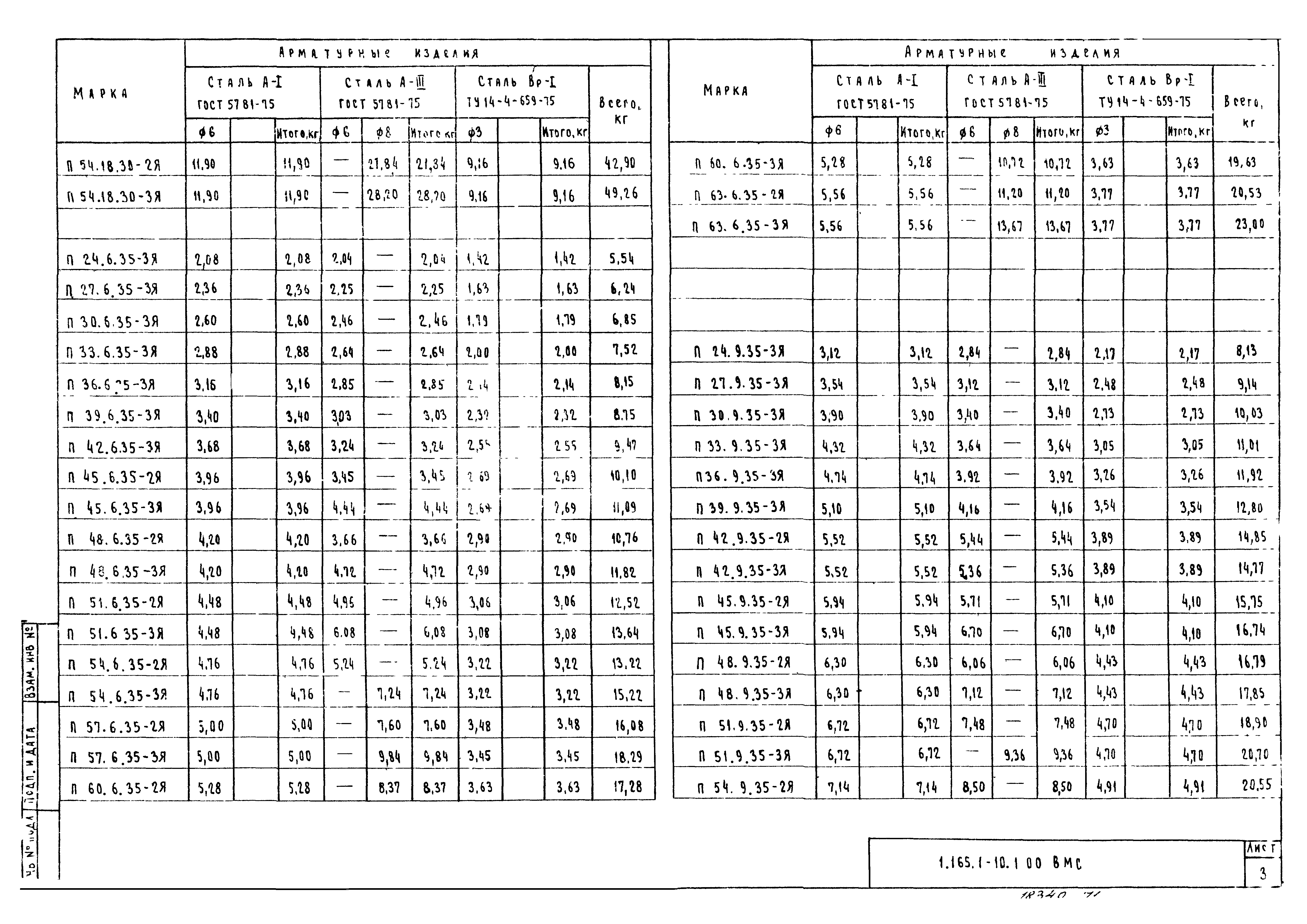
| Оглавление: | 1.165.1-10.1 00 ТО техническое описание 1.165.1-10.1 01 Панель покрытия шириной 590мм толщиной 300мм 1.165.1-10.1 01 СБ Панель покрытия шириной 590мм толщиной 300мм. Сборочный чертеж. Деталь 1 1.165.1-10.1 02 Панель покрытия шириной 890мм толщиной 300мм 1.165.1-10.1 02 СБ Панель покрытия шириной 890мм толщиной 300мм. Сборочный чертеж 1.165.1-10.1 03 Панель покрытия шириной 1190мм толщиной 300мм 1.165.1-10.1 03 СБ Панель покрытия шириной 1190мм толщиной 300мм. Сборочный чертеж 1.165.1-10.1 04 Панель покрытия шириной 1490мм толщиной 300мм 1.165.1-10.1 04 СБ Панель покрытия шириной 1490мм толщиной 300мм. Сборочный чертеж 1.165.1-10.1 05 Панель покрытия шириной 1790мм толщиной 300мм 1.165.1-10.1 05 СБ Панель покрытия шириной 1790мм толщиной 300мм. Сборочный чертеж 1.165.1-10.1 06 Панель покрытия шириной 590мм толщиной 350мм 1.165.1-10.1 06 СБ Панель покрытия шириной 590мм толщиной 350мм. Сборочный чертеж. Деталь 1 1.165.1-10.1 07 Панель покрытия шириной 890мм толщиной 350мм 1.165.1-10.1 07 СБ Панель покрытия шириной 890мм толщиной 350мм. Сборочный чертеж 1.165.1-10.1 08 Панель покрытия шириной 1190мм толщиной 350мм 1.165.1-10.1 08 СБ Панель покрытия шириной 1190мм толщиной 350мм. Сборочный чертеж 1.165.1-10.1 09 Панель покрытия шириной 1490мм толщиной 350мм 1.165.1-10.1 09 СБ Панель покрытия шириной 1490мм толщиной 350мм. Сборочный чертеж 1.165.1-10.1 10 Панель покрытия шириной 1790мм толщиной 350мм 1.165.1-10.1 10 СБ Панель покрытия шириной 1790мм толщиной 350мм. Сборочный чертеж 1.165.1-10.1 00 ВМС Выборка стали 1.165.1-10.1 00 ТО техническое описание 1.165.1-10.1 01 Панель покрытия шириной 590мм толщиной 300мм 1.165.1-10.1 01 СБ Панель покрытия шириной 590мм толщиной 300мм. Сборочный чертеж. Деталь 1 1.165.1-10.1 02 Панель покрытия шириной 890мм толщиной 300мм 1.165.1-10.1 02 СБ Панель покрытия шириной 890мм толщиной 300мм. Сборочный чертеж 1.165.1-10.1 03 Панель покрытия шириной 1190мм толщиной 300мм 1.165.1-10.1 03 СБ Панель покрытия шириной 1190мм толщиной 300мм. Сборочный чертеж 1.165.1-10.1 04 Панель покрытия шириной 1490мм толщиной 300мм 1.165.1-10.1 04 СБ Панель покрытия шириной 1490мм толщиной 300мм. Сборочный чертеж 1.165.1-10.1 05 Панель покрытия шириной 1790мм толщиной 300мм 1.165.1-10.1 05 СБ Панель покрытия шириной 1790мм толщиной 300мм. Сборочный чертеж 1.165.1-10.1 06 Панель покрытия шириной 590мм толщиной 350мм 1.165.1-10.1 06 СБ Панель покрытия шириной 590мм толщиной 350мм. Сборочный чертеж. Деталь 1 1.165.1-10.1 07 Панель покрытия шириной 890мм толщиной 350мм 1.165.1-10.1 07 СБ Панель покрытия шириной 890мм толщиной 350мм. Сборочный чертеж 1.165.1-10.1 08 Панель покрытия шириной 1190мм толщиной 350мм 1.165.1-10.1 08 СБ Панель покрытия шириной 1190мм толщиной 350мм. Сборочный чертеж 1.165.1-10.1 09 Панель покрытия шириной 1490мм толщиной 350мм 1.165.1-10.1 09 СБ Панель покрытия шириной 1490мм толщиной 350мм. Сборочный чертеж 1.165.1-10.1 10 Панель покрытия шириной 1790мм толщиной 350мм 1.165.1-10.1 10 СБ Панель покрытия шириной 1790мм толщиной 350мм. Сборочный чертеж 1.165.1-10.1 00 ВМС Выборка стали |
| Разработан: | ЛенЗНИИЭП Госгражданстроя |
| Утверждён: | 13.10.1982 Госгражданстрой (Gosgrazhdanstroy 272) |
| Издан: | ЦИТП Госстроя СССР (CITP, Gosstroy (USSR) 1982 г. ) |









































































