Скачать Серия 1.165.1-12 Плиты покрытий и лотковые легкобетонные для крупнопанельных жилых зданий с теплым чердаком и кровлей из рулонных материалов. Рабочие чертежиДата актуализации: 01.01.2021
|
| Обозначение: | Серия 1.165.1-12 |
| Обозначение англ: | Series 1.165.1-12 |
| Статус: | не определен законодательством |
| Название рус.: | Плиты покрытий и лотковые легкобетонные для крупнопанельных жилых зданий с теплым чердаком и кровлей из рулонных материалов. Рабочие чертежи |
| Дата добавления в базу: | 01.09.2013 |
| Дата актуализации: | 01.01.2021 |
| Дата введения: | 15.05.1986 |
| Дата окончания срока действия: | 30.06.2003 |
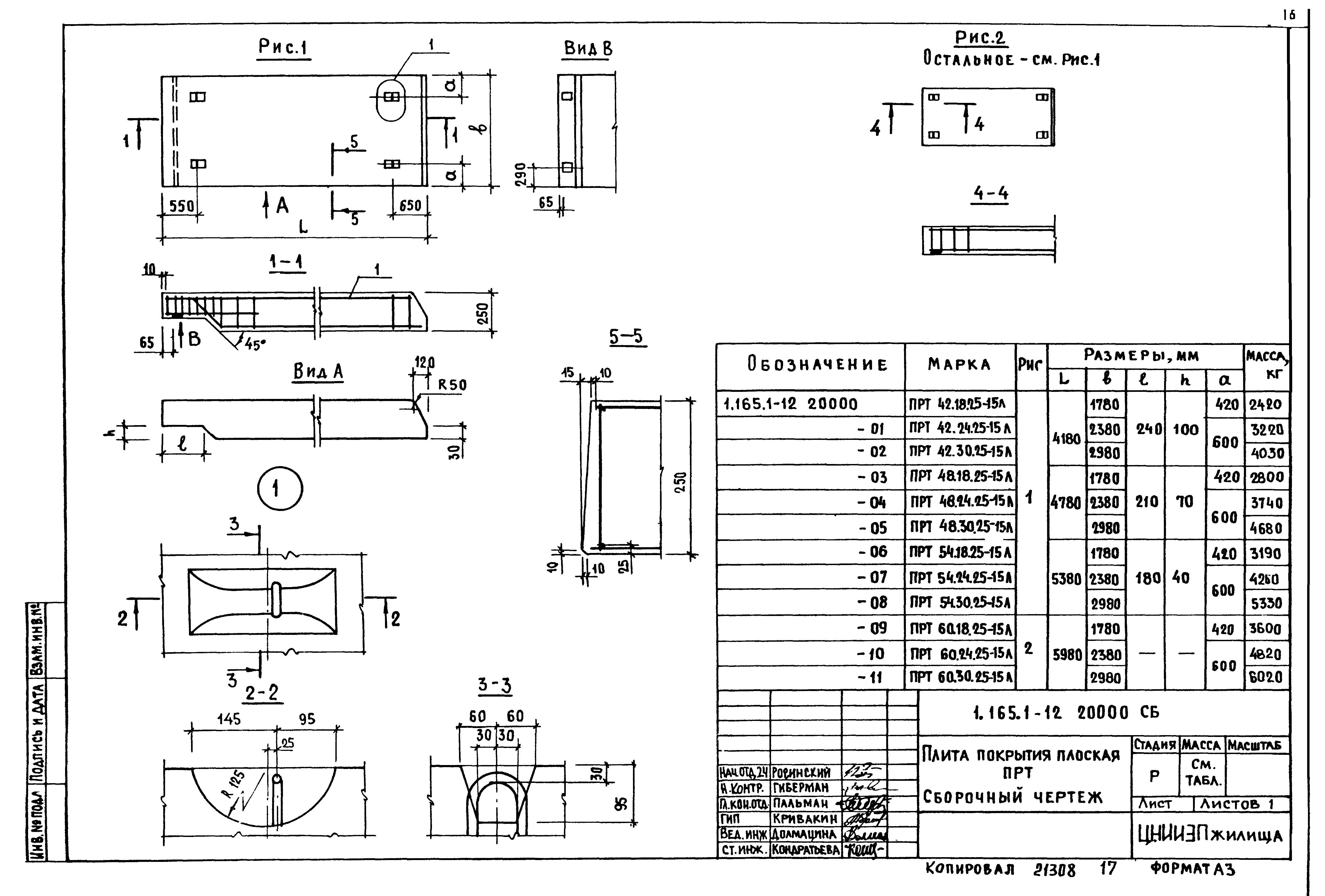
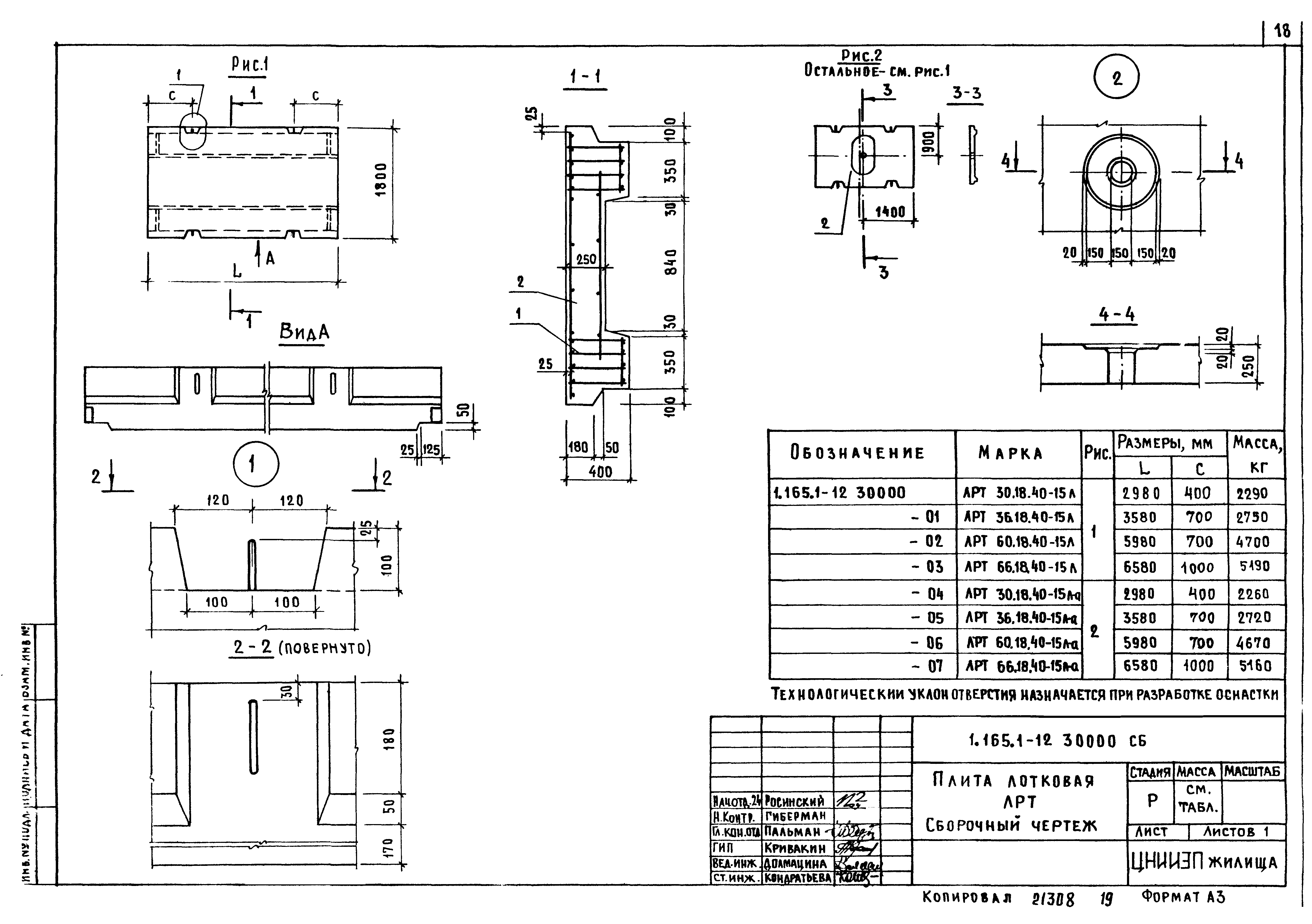
| Оглавление: | 1.165.1-12 00000 ТО Техническое описание 1.165.1-12 10000 Плита покрытия плоская ПРТ 1.165.1-12 10000 СБ Плита покрытия плоская ПРТ. Сборочный чертеж 1.165.1-12 20000 Плита покрытия плоская ПРТ 1.165.1-12 20000 СБ Плита покрытия плоская ПРТ. Сборный чертеж 1.165.1-12 30000 Плита лотковая ЛРТ 1.165.1-12 30000 СБ Плита лотковая ЛРТ. Сборный чертеж 1.165.1-12 01000 Каркас пространственный (КП1…КП8) 1.165.1-12 01000 СБ Каркас пространственный (КП1…КП8). Сборочный чертеж 1.165.1-12 02000 Каркас пространственный (КП1…КП8) 1.165.1-12 02000 СБ Каркас пространственный (КП1…КП8). Сборочный чертеж 1.165.1-12 03000 Каркас пространственный (КП17…КП24) 1.165.1-12 03000 СБ Каркас пространственный (КП17…КП24). Сборочный чертеж 1.165.1-12 04000 Каркас пространственный (КП25, КП26) 1.165.1-12 04000 СБ Каркас пространственный (КП25, КП26). Сборочный чертеж 1.165.1-12 05000 Каркас пространственный КП27 1.165.1-12 06000 Каркас пространственный КП28 1.165.1-12 05000 СБ Каркас пространственный КП27. Сборочный чертеж 1.165.1-12 06000 СБ Каркас пространственный КП28. Сборочный чертеж 1.165.1-12 00100 Каркас (КР1…КР4) 1.165.1-12 00200 Каркас (КР5…КР8) 1.165.1-12 00300 Каркас (КР9…КР12) 1.165.1-12 00400 Сетка (С1…С12) 1.165.1-12 00500 Сетка (С13…С21) 1.165.1-12 00600 Сетка (С22…С25) 1.165.1-12 00700 Изделие закладное (МС3-1…МС3-4) 1.165.1-12 00800 Изделие закладное МС4 1.165.1-12 00001 Петля строповочная (П1…П7) 1.165.1-12 00002 Стержень гнутый (АН1…АН6) 1.165.1-12 00003 Петля строповочная (П8…П10) 1.165.1-12 00004 Стержень гнутый (АН7…АН11) 1.165.1-12 00000 РС Ведомость расхода стали 1.165.1-12 00000 РМ Ведомость расхода материалов 1.165.1-12 00000 ТО Техническое описание 1.165.1-12 10000 Плита покрытия плоская ПРТ 1.165.1-12 10000 СБ Плита покрытия плоская ПРТ. Сборочный чертеж 1.165.1-12 20000 Плита покрытия плоская ПРТ 1.165.1-12 20000 СБ Плита покрытия плоская ПРТ. Сборный чертеж 1.165.1-12 30000 Плита лотковая ЛРТ 1.165.1-12 30000 СБ Плита лотковая ЛРТ. Сборный чертеж 1.165.1-12 01000 Каркас пространственный (КП1…КП8) 1.165.1-12 01000 СБ Каркас пространственный (КП1…КП8). Сборочный чертеж 1.165.1-12 02000 Каркас пространственный (КП1…КП8) 1.165.1-12 02000 СБ Каркас пространственный (КП1…КП8). Сборочный чертеж 1.165.1-12 03000 Каркас пространственный (КП17…КП24) 1.165.1-12 03000 СБ Каркас пространственный (КП17…КП24). Сборочный чертеж 1.165.1-12 04000 Каркас пространственный (КП25, КП26) 1.165.1-12 04000 СБ Каркас пространственный (КП25, КП26). Сборочный чертеж 1.165.1-12 05000 Каркас пространственный КП27 1.165.1-12 06000 Каркас пространственный КП28 1.165.1-12 05000 СБ Каркас пространственный КП27. Сборочный чертеж 1.165.1-12 06000 СБ Каркас пространственный КП28. Сборочный чертеж 1.165.1-12 00100 Каркас (КР1…КР4) 1.165.1-12 00200 Каркас (КР5…КР8) 1.165.1-12 00300 Каркас (КР9…КР12) 1.165.1-12 00400 Сетка (С1…С12) 1.165.1-12 00500 Сетка (С13…С21) 1.165.1-12 00600 Сетка (С22…С25) 1.165.1-12 00700 Изделие закладное (МС3-1…МС3-4) 1.165.1-12 00800 Изделие закладное МС4 1.165.1-12 00001 Петля строповочная (П1…П7) 1.165.1-12 00002 Стержень гнутый (АН1…АН6) 1.165.1-12 00003 Петля строповочная (П8…П10) 1.165.1-12 00004 Стержень гнутый (АН7…АН11) 1.165.1-12 00000 РС Ведомость расхода стали 1.165.1-12 00000 РМ Ведомость расхода материалов |
| Разработан: | Гипростроммаш Минстройдормаша ЦНИИЭП жилища |
| Утверждён: | 30.04.1986 Госгражданстрой (Gosgrazhdanstroy 153) |












































