Скачать Серия 1.865.1-15 Выпуск 1. Плиты размером 3х6 м и 1,5х6 м под рулонную кровлю. Указания по применению. Технические условия. Рабочие чертежиДата актуализации: 01.01.2021
|
| Обозначение: | Серия 1.865.1-15 |
| Обозначение англ: | Series 1.865.1-15 |
| Статус: | действует |
| Название рус.: | Выпуск 1. Плиты размером 3х6 м и 1,5х6 м под рулонную кровлю. Указания по применению. Технические условия. Рабочие чертежи |
| Дата добавления в базу: | 01.09.2013 |
| Дата актуализации: | 01.01.2021 |
| Дата введения: | 01.01.1993 |
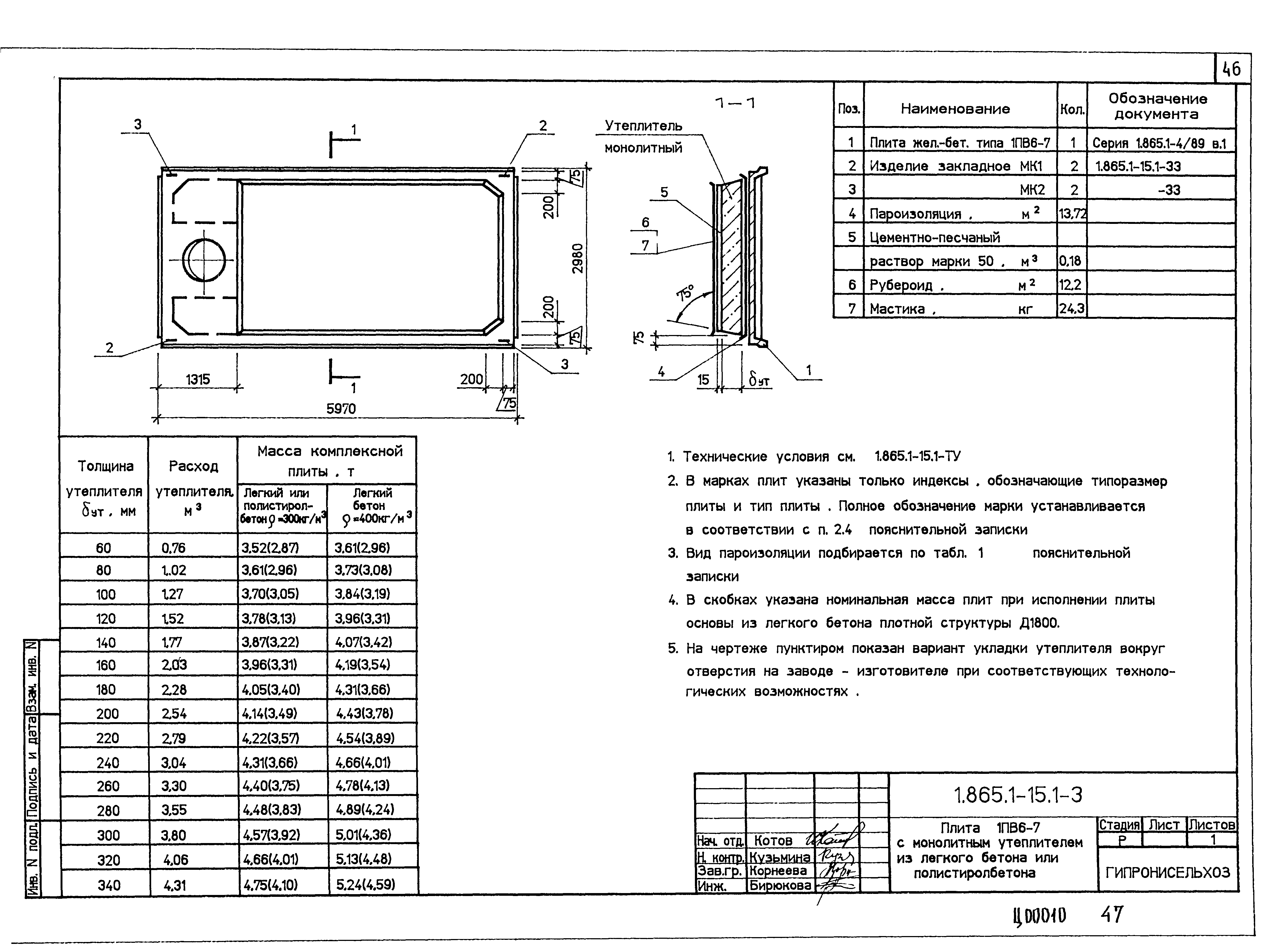
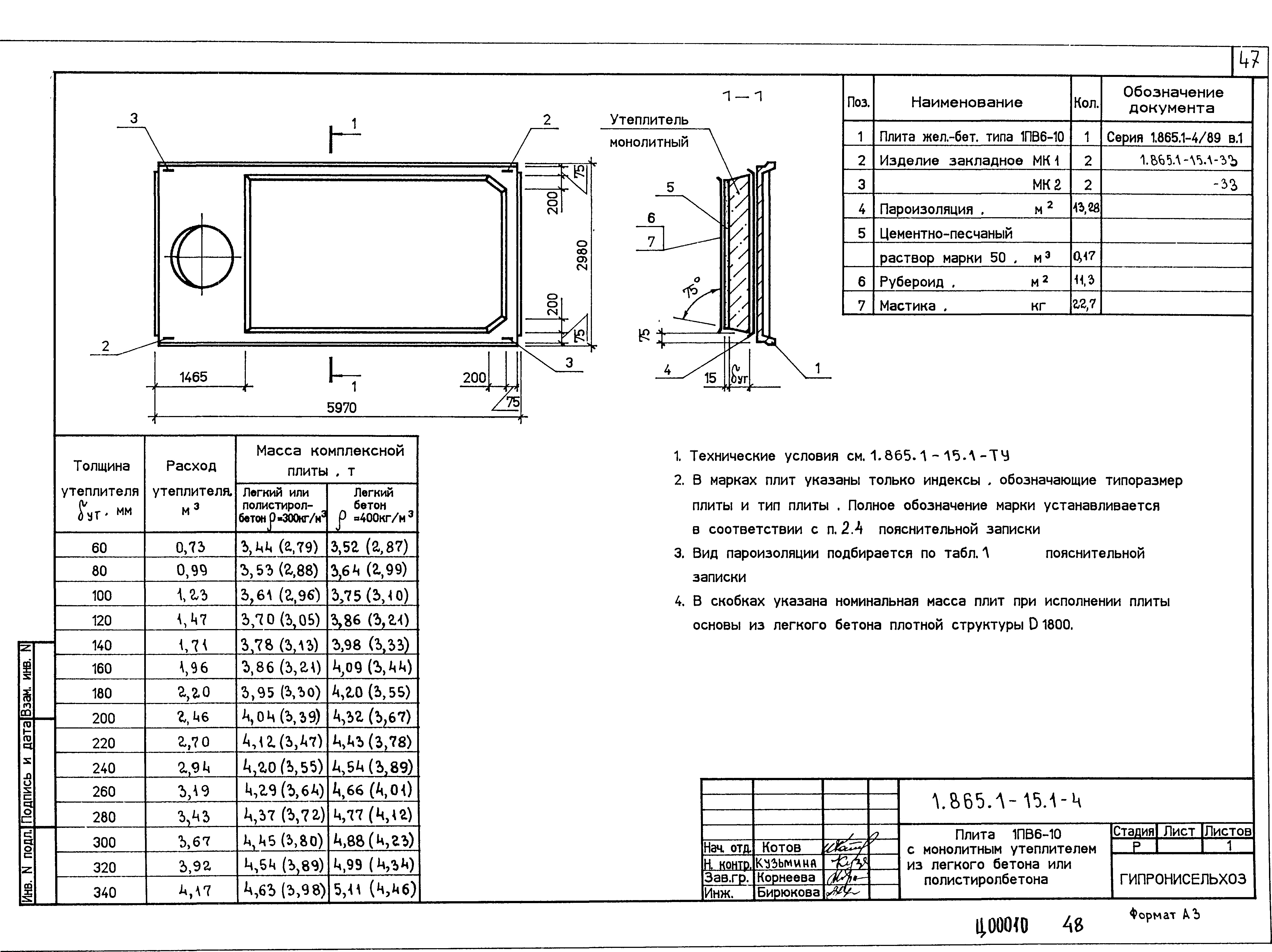
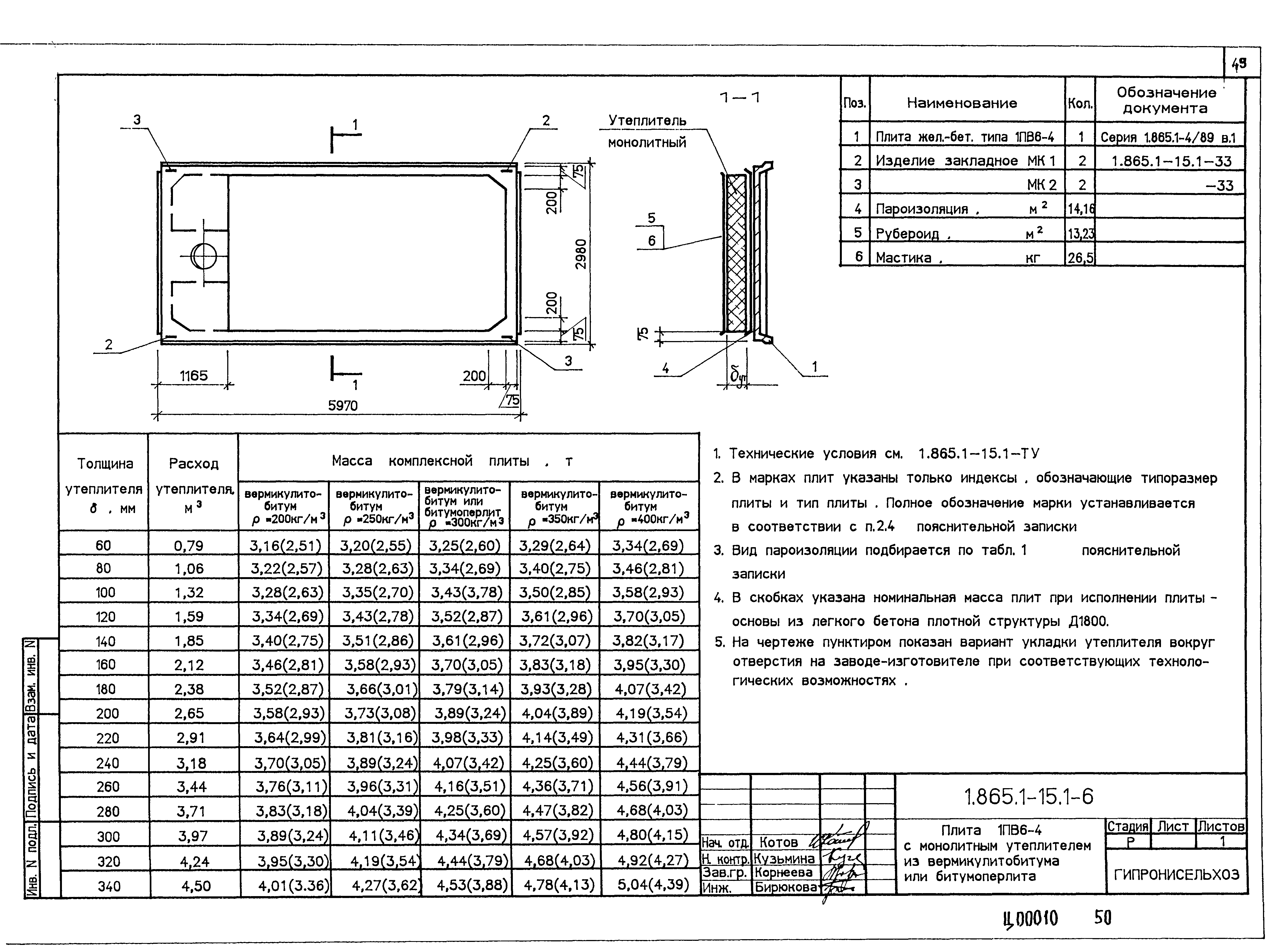
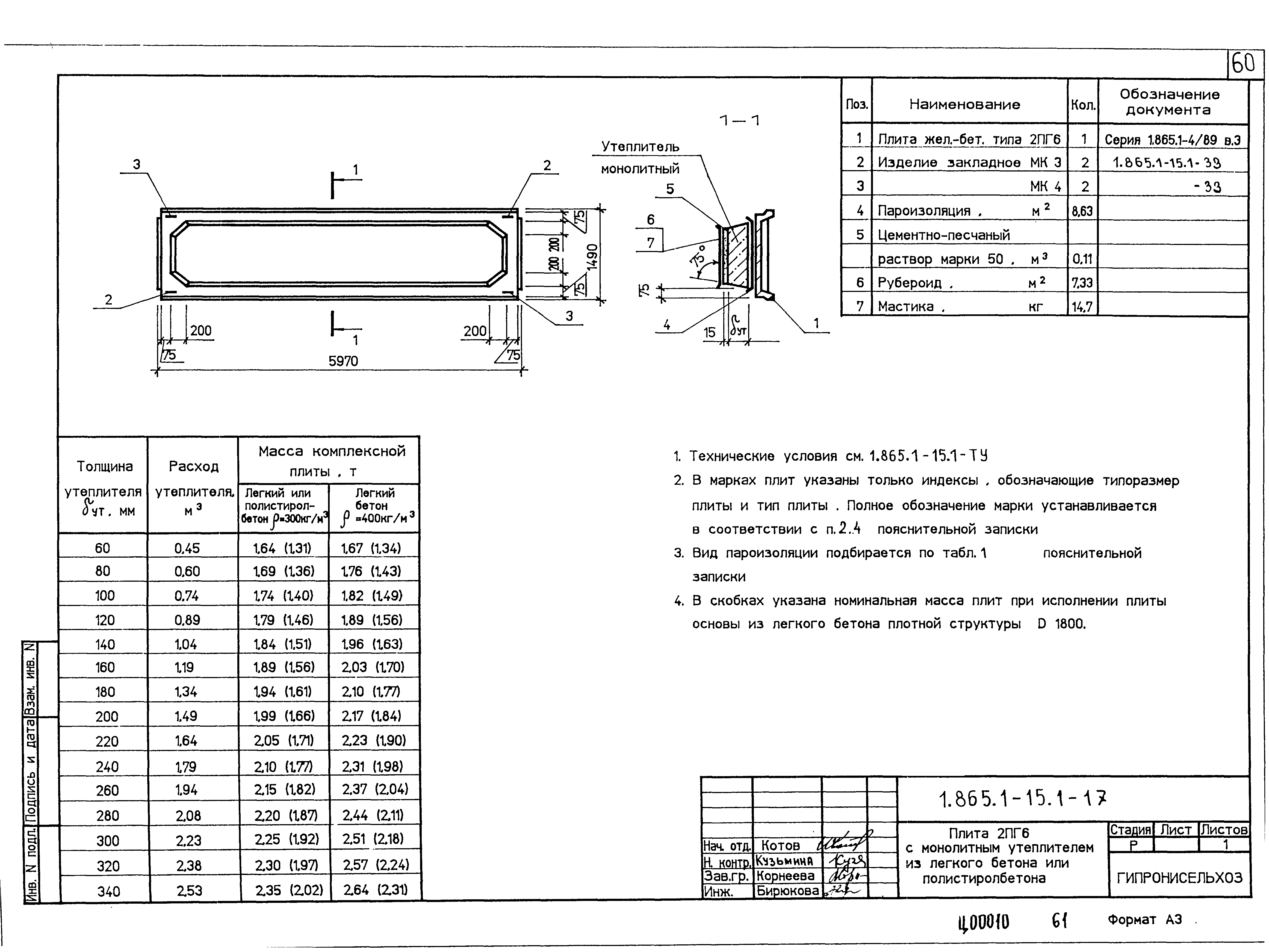
| Область применения: | Выпуск содержит рабочие чертежи комплексных железобетонных плит длиной 6 м с различными видами утеплителей |
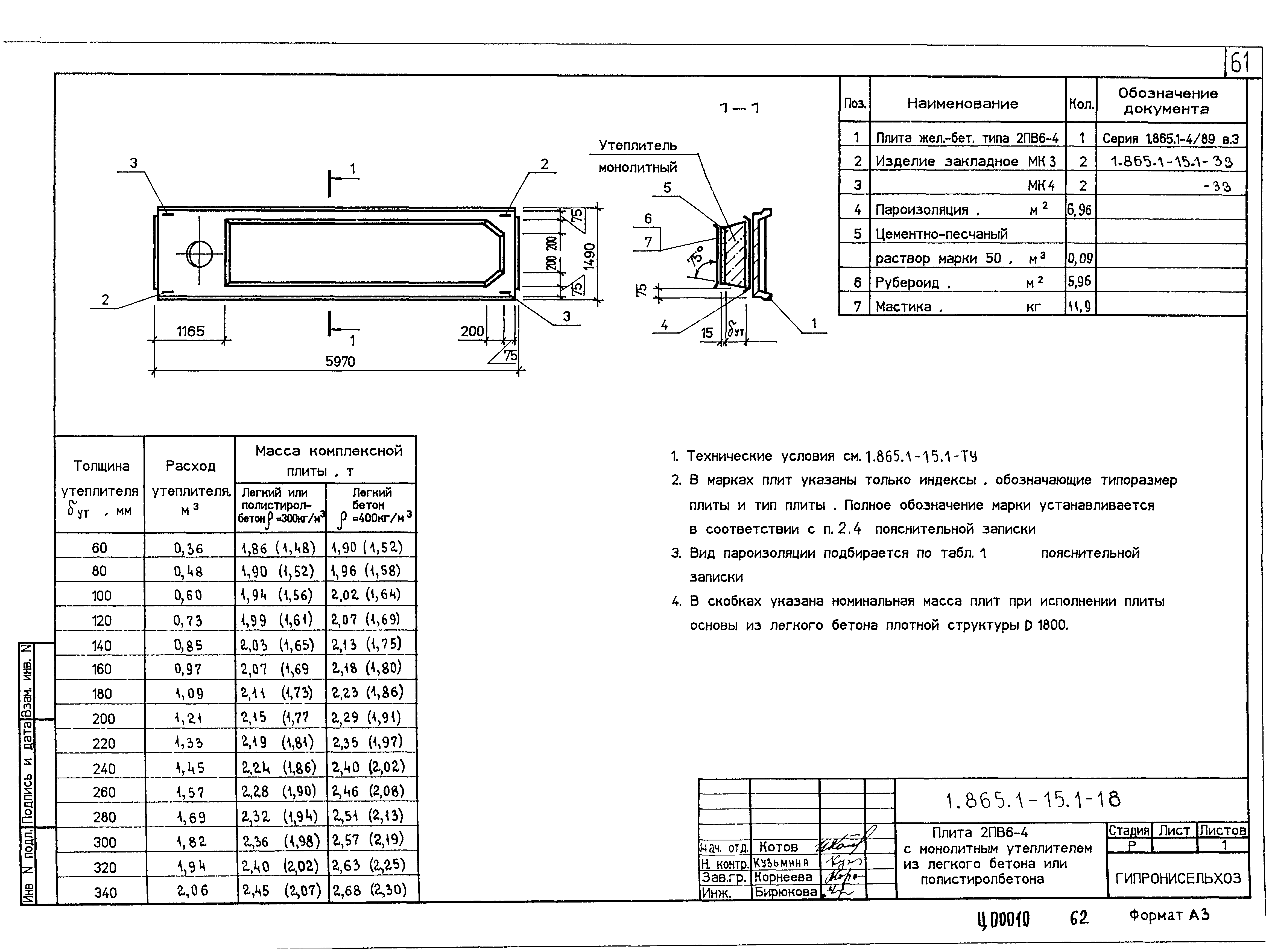
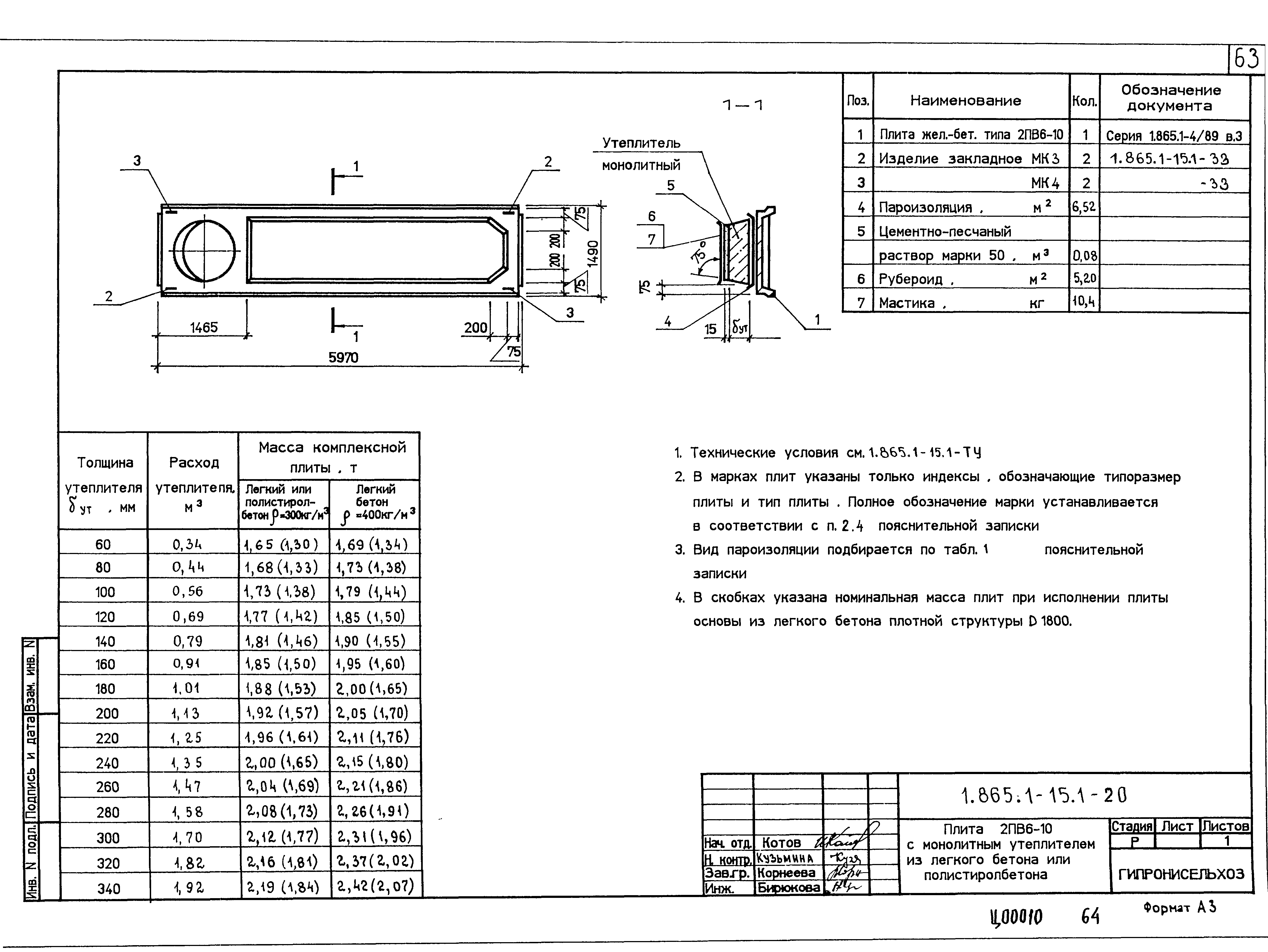
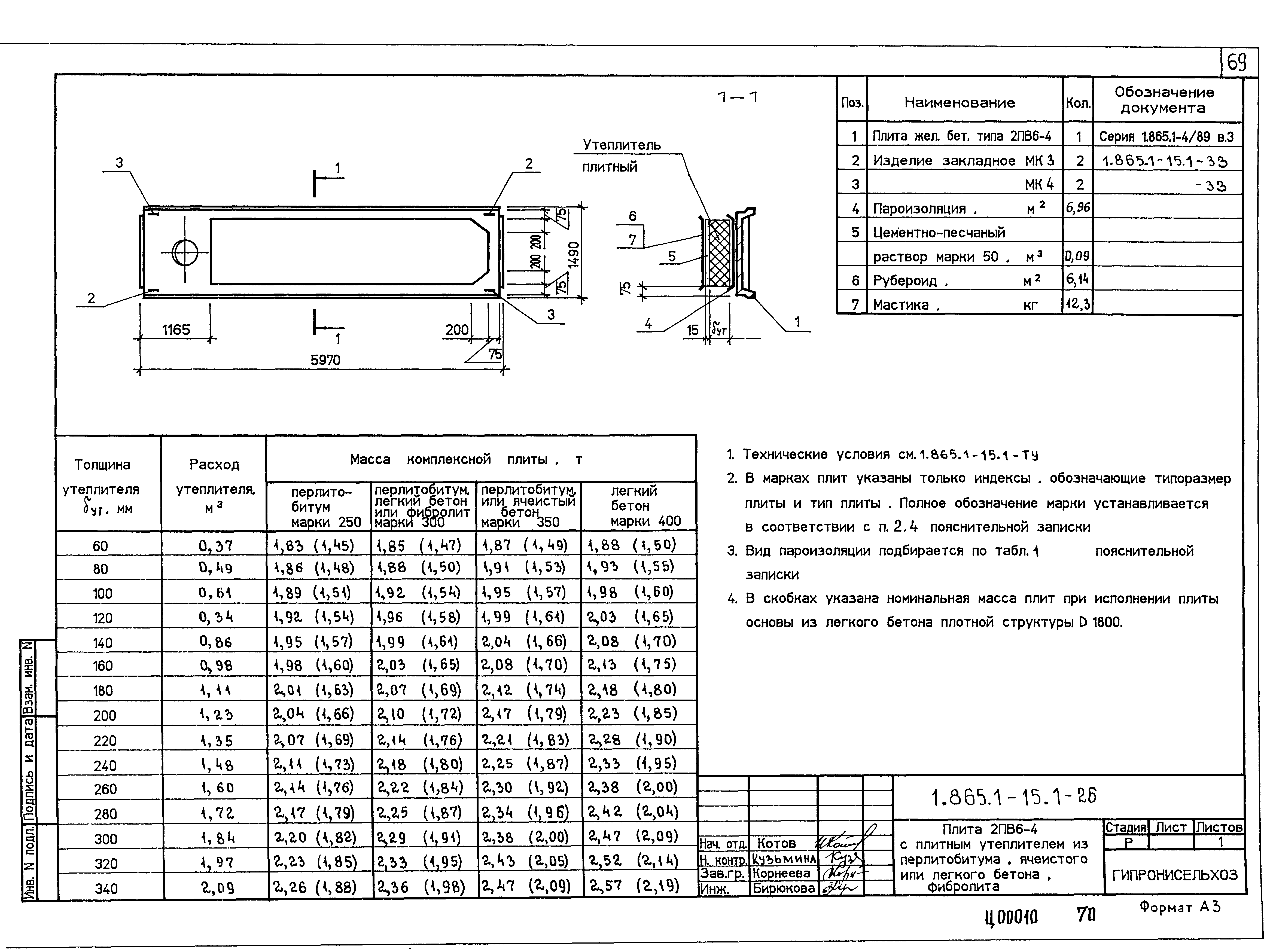
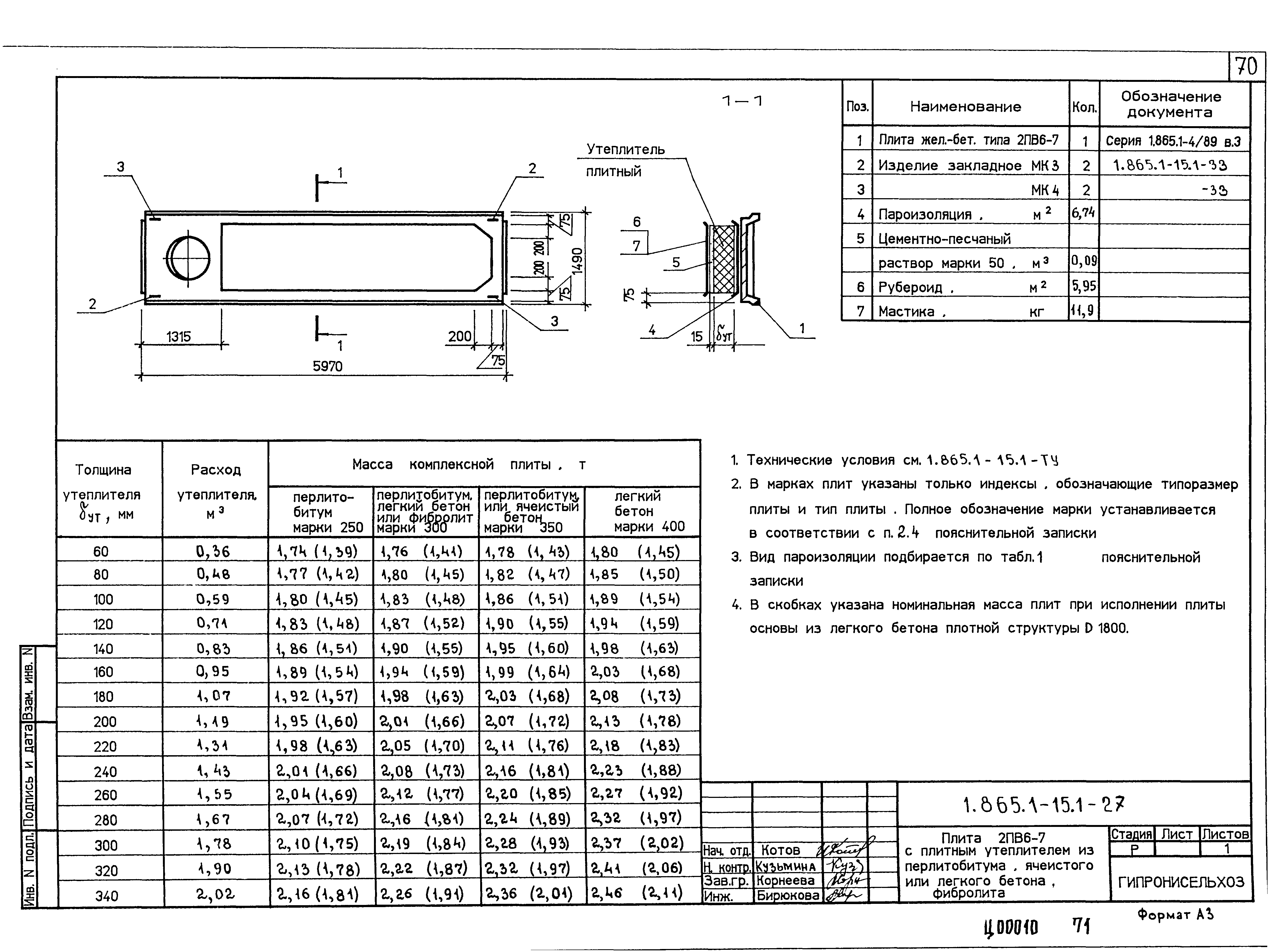
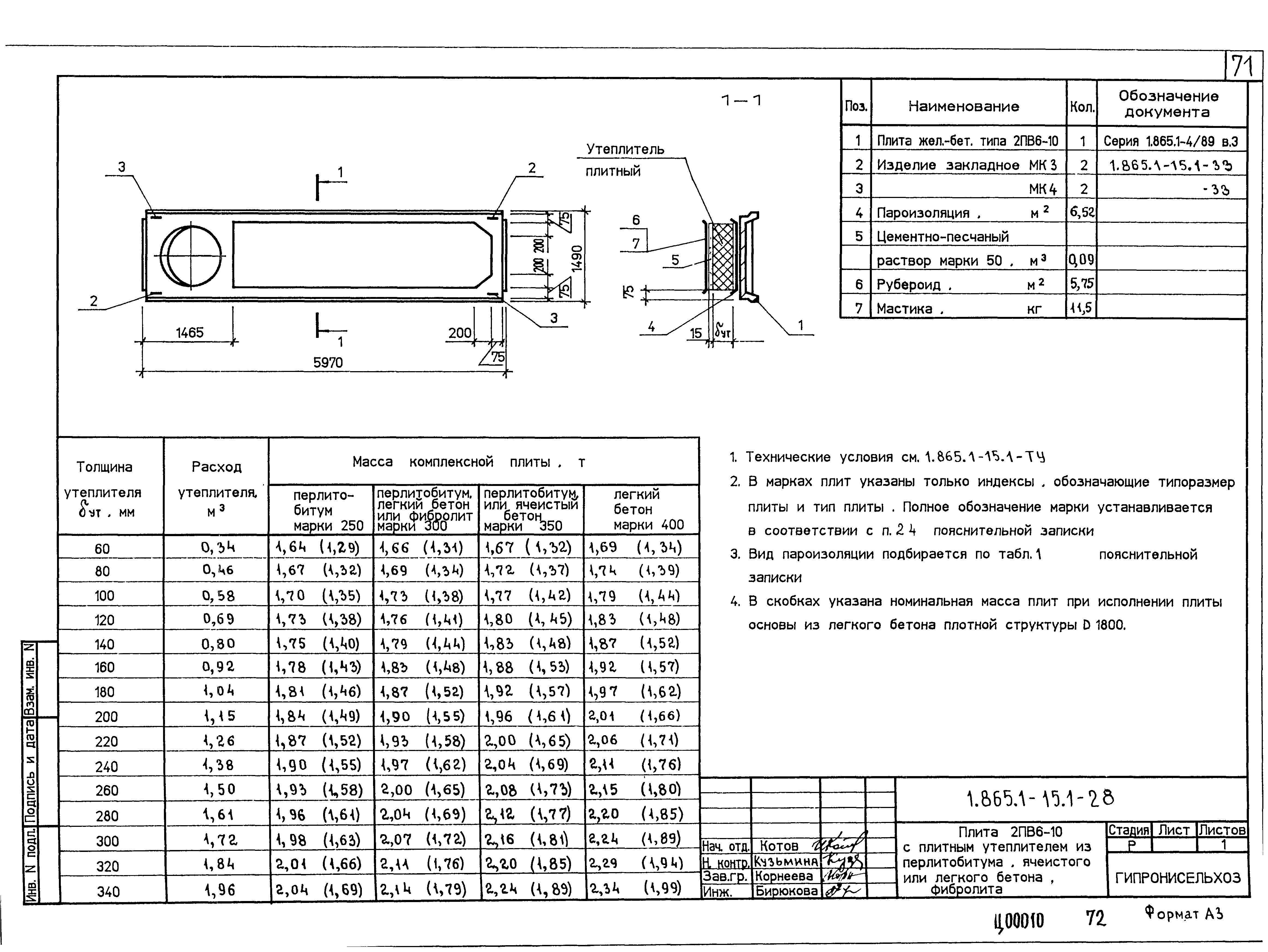
| Оглавление: | 1.865.1-15.1-ПЗ Пояснительная записка 1.865.1-15.1-ТУ Технические условия 1.865.1-15.1-СМ1 Технические характеристики комплексных плит типа 1ПГ6 и 2ПГ6 1.865.1-15.1-СМ2 Технические характеристики комплексных плит типа 1ПВ6-4 и 2ПВ6-4 1.865.1-15.1-СМ3 Технические характеристики комплексных плит типа 1ПВ6-7 и 2ПВ6-7 1.865.1-15.1-СМ4 Технические характеристики комплексных плит типа 1ПВ6-10 и 2ПВ6-10 1.865.1-15.1-СМ5 Таблица 2 для подбора толщин утеплителей при условиях эксплуатации А 1.865.1-15.1-СМ6 Таблица 3 для подбора толщин утеплителей при условиях эксплуатации Б 1.865.1-15.1-СМ7 Приложение к таблицам 2 и 3 1.865.1-15.1-СМ8 Таблицы 4 и 5 для подбора пароизоляции 1.865.1-15.1-СМ9 Теплотехнические характеристики покрытия. Таблица 6 1.865.1-15.1-1 Плита 1ПГ6 с монолитным утеплителем из легкого бетона или полистиролбетона 1.865.1-15.1-2 Плита 1ПВ6-4 с монолитным утеплителем из легкого бетона или полистиролбетона 1.865.1-15.1-3 Плита 1ПВ6-7 с монолитным утеплителем из легкого бетона или полистиролбетона 1.865.1-15.1-4 Плита 1ПВ6-10 с монолитным утеплителем из легкого бетона или полистиролбетона 1.865.1-15.1-5 Плита 1ПГ6 с монолитным утеплителем из вермикулитобитума или битумоперлита 1.865.1-15.1-6 Плита 1ПВ6-4 с монолитным утеплителем из вермикулитобитума или битумоперлита 1.865.1-15.1-7 Плита 1ПВ6-7 с монолитным утеплителем из вермикулитобитума или битумоперлита 1.865.1-15.1-8 Плита 1ПВ6-10 с монолитным утеплителем из вермикулитобитума или битумоперлита 1.865.1-15.1-9 Плита 1ПГ6 с плитным утеплителем из перлитобитума, ячеистого или легкого бетона, фибролита 1.865.1-15.1-10 Плита 1ПВ6-4 с плитным утеплителем из перлитобитума, ячеистого или легкого бетона, фибролита 1.865.1-15.1-11 Плита 1ПВ6-7 с плитным утеплителем из перлитобитума, ячеистого или легкого бетона, фибролита 1.865.1-15.1-12 Плита 1ПВ6-10 с плитным утеплителем из перлитобитума, ячеистого или легкого бетона, фибролита 1.865.1-15.1-13 Плита 1ПГ6 с плитным утеплителем из пенополистирола, перлитопластбетона или минераловатных плит 1.865.1-15.1-14 Плита 1ПВ6-4 с плитным утеплителем из пенополистирола, перлитопластбетона или минераловатных плит 1.865.1-15.1-15 Плита 1ПВ6-7 с плитным утеплителем из пенополистирола, перлитопластбетона или минераловатных плит 1.865.1-15.1-16 Плита 1ПВ6-10 с плитным утеплителем из пенополистирола, перлитопластбетона или минераловатных плит 1.865.1-15.1-17 Плита 2ПГ6 с монолитным утеплителем из легкого бетона или полистиролбетона 1.865.1-15.1-18 Плита 2ПВ6-4 с монолитным утеплителем из легкого бетона или полистиролбетона 1.865.1-15.1-19 Плита 2ПВ6-7 с монолитным утеплителем из легкого бетона или полистиролбетона 1.865.1-15.1-20 Плита 2ПВ6-10 с монолитным утеплителем из легкого бетона или полистиролбетона 1.865.1-15.1-21 Плита 2ПГ6 с монолитным утеплителем из вермикулитобитума или битумоперлита 1.865.1-15.1-22 Плита 2ПВ6-4 с монолитным утеплителем из вермикулитобитума или битумоперлита 1.865.1-15.1-23 Плита 2ПВ6-7 с монолитным утеплителем из вермикулитобитума или битумоперлита 1.865.1-15.1-24 Плита 2ПВ6-10 с монолитным утеплителем из вермикулитобитума или битумоперлита 1.865.1-15.1-25 Плита 2ПГ6 с плитным утеплителем из перлитобитума, ячеистого или легкого бетона, фибролита 1.865.1-15.1-26 Плита 2ПВ6-4 с плитным утеплителем из перлитобитума, ячеистого или легкого бетона, фибролита 1.865.1-15.1-27 Плита 2ПВ6-7 с плитным утеплителем из перлитобитума, ячеистого или легкого бетона, фибролита 1.865.1-15.1-28 Плита 2ПВ6-10 с плитным утеплителем из перлитобитума, ячеистого или легкого бетона, фибролита 1.865.1-15.1-29 Плита 2ПГ6 с плитным утеплителем из пенополистирола, перлитопластбетона или минераловатных плит 1.865.1-15.1-30 Плита 2ПГ6-4 с плитным утеплителем из пенополистирола, перлитопластбетона или минераловатных плит 1.865.1-15.1-31 Плита 2ПГ6-7 с плитным утеплителем из пенополистирола, перлитопластбетона или минераловатных плит 1.865.1-15.1-32 Плита 2ПГ6-10 с плитным утеплителем из пенополистирола, перлитопластбетона или минераловатных плит 1.865.1-15.1-33 Изделие закладное МК1…МК4 1.865.1-15.1-34 Стержень арматурный Ст1, Ст2 1.865.1-15.1-35 Стержень арматурный Ст3…Ст6 1.865.1-15.1-36 Стыки между комплексными плитами |
| Разработан: | ЦНИИЭПсельстрой ГипроНИсельхоз (Институт Гипронисельхоз ) |
| Утверждён: | 20.12.1991 Главпроект Госстроя СССР (5/4-64А) |















































































