Скачать Серия 1.865.1-4/89 Выпуск 8. Плиты доборные длиной 6 м. Указания по применению и рабочие чертежиДата актуализации: 01.01.2021
|
| Обозначение: | Серия 1.865.1-4/89 |
| Обозначение англ: | Series 1.865.1-4/89 |
| Статус: | не определен законодательством |
| Название рус.: | Выпуск 8. Плиты доборные длиной 6 м. Указания по применению и рабочие чертежи |
| Дата добавления в базу: | 01.09.2013 |
| Дата актуализации: | 01.01.2021 |
| Дата введения: | 30.09.1991 |
| Дата окончания срока действия: | 30.06.2003 |
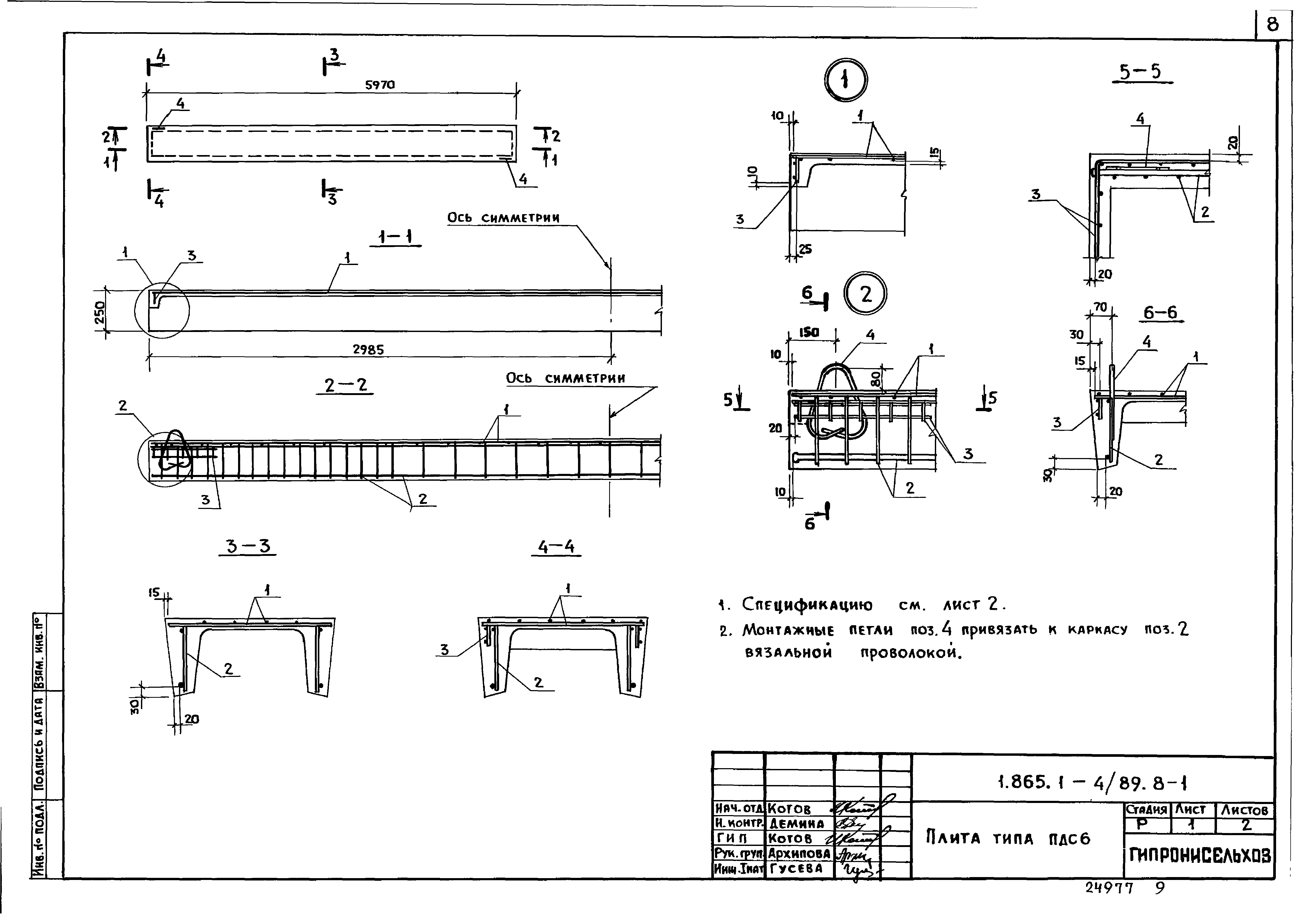
| Область применения: | Серия содержит рабочие чертежи доборных плит длиной 6.0 м, предназначенных для покрытия одноэтажных сельскохозяйственных зданий с шагом стропильных конструкций 6,0 м; с кровлей из асбестоцементных волнистых листов и рулонной при уклоне кровли до 25%. |
| Оглавление: | 1.865.1-4/89.8-ПЗ Пояснительная записка 1.865.1-4/89.8-НИ Номенклатура плит 1.865.1-4/89.8-1ФЧ Плита типа 1 ПДС6. Чертеж формы 1.865.1-4/89.8-2ФЧ Плита типа 2 ПДС6. Чертеж формы 1.865.1-4/89.8-3ФЧ Плита типа 3 ПДС6. Чертеж формы 1.865.1-4/89.8-1 Плита типа ПДС6 1.865.1-4/89.8-2 Сетка С1 … С3 1.865.1-4/89.8-3 Каркас КР1...КР4 1.865.1-4/89.8-4 Каркас КР5, КР6 1.865.1-4/89.8-5 Каркас КР7 1.865.1-4/89.8-РС Ведомость расхода стали |
| Разработан: | ГипроНИсельхоз (Институт Гипронисельхоз ) |
| Утверждён: | 30.10.1990 Главпроект Госстроя СССР |
| Заменяет собой: | |
| Нормативные ссылки: |
|












