Скачать Серия 1.865.5-12 Выпуск 1. Плиты с асбестоцементной и фанерной обшивкой для II снегового района. Рабочие чертежиДата актуализации: 01.01.2021
|
| Обозначение: | Серия 1.865.5-12 |
| Обозначение англ: | Series 1.865.5-12 |
| Статус: | не определен законодательством |
| Название рус.: | Выпуск 1. Плиты с асбестоцементной и фанерной обшивкой для II снегового района. Рабочие чертежи |
| Дата добавления в базу: | 01.09.2013 |
| Дата актуализации: | 01.01.2021 |
| Дата введения: | 01.07.1988 |
| Дата окончания срока действия: | 30.06.2003 |
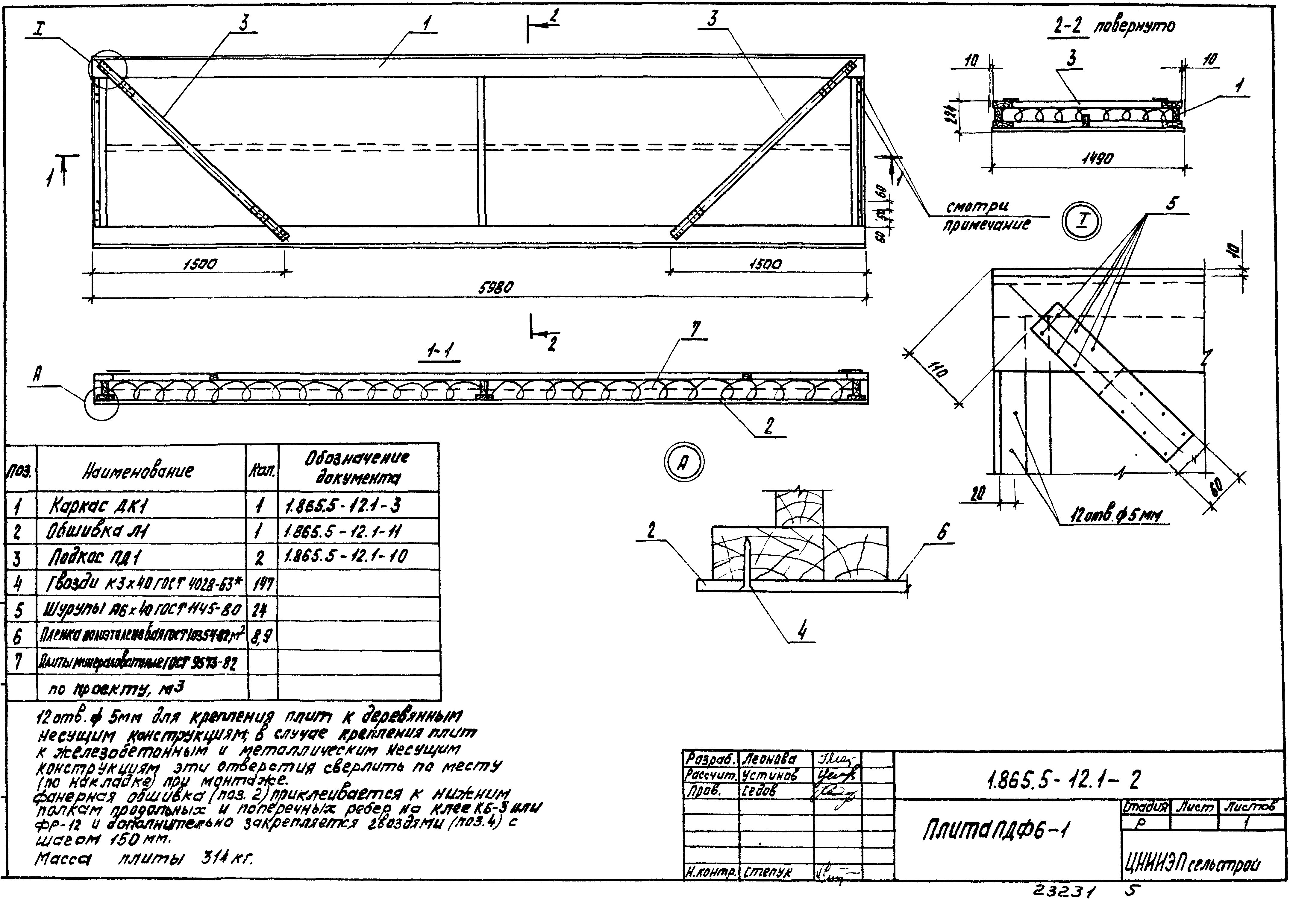
| Оглавление: | 1.865.5-12.1-ТТ Технические требования 1.865.5-12.1-1 Плита ПДА6-1 1.865.5-12.1-2 Плита ПДФ6-1 1.865.5-12.1-3 Каркас ДК1 1.865.5-12.1-4 Ребро продольное Р1 1.865.5-12.1-5 Полка П1 1.865.5-12.1-6 Стенка С1 1.865.5-12.1-7 Ребро продольное Р2…Р4 1.865.5-12.1-8 Ребро поперечное Р5 1.865.5-12.1-9 Шип Ш1 1.865.5-12.1-10 Подкос ПД1 1.865.5-12.1-11 Обшивка Л1…Л3 1.865.5-12.1-12 Обшивка Л4…Л10 1.865.5-12.1-13 Плита ПДА6-1-03 1.865.5-12.1-14 Плита ПДФ6-1-03 1.865.5-12.1-15 Каркас ДК2 1.865.5-12.1-16 Ребро Р6, Р7 1.865.5-12.1-17 Ребро поперечное Р8 1.865.5-12.1-18 Ребро поперечное Р9 1.865.5-12.1-19 Ребро Р10 1.865.5-12.1-20 Плита ПДА6-1-07 1.865.5-12.1-21 Плита ПДФ6-1-07 1.865.5-12.1-22 Каркас ДК3 1.865.5-12.1-23 Соединительный элемент М1 1.865.5-12.1-РМ Ведомость расхода материалов 1.865.5-12.1-ТТ Технические требования 1.865.5-12.1-1 Плита ПДА6-1 1.865.5-12.1-2 Плита ПДФ6-1 1.865.5-12.1-3 Каркас ДК1 1.865.5-12.1-4 Ребро продольное Р1 1.865.5-12.1-5 Полка П1 1.865.5-12.1-6 Стенка С1 1.865.5-12.1-7 Ребро продольное Р2…Р4 1.865.5-12.1-8 Ребро поперечное Р5 1.865.5-12.1-9 Шип Ш1 1.865.5-12.1-10 Подкос ПД1 1.865.5-12.1-11 Обшивка Л1…Л3 1.865.5-12.1-12 Обшивка Л4…Л10 1.865.5-12.1-13 Плита ПДА6-1-03 1.865.5-12.1-14 Плита ПДФ6-1-03 1.865.5-12.1-15 Каркас ДК2 1.865.5-12.1-16 Ребро Р6, Р7 1.865.5-12.1-17 Ребро поперечное Р8 1.865.5-12.1-18 Ребро поперечное Р9 1.865.5-12.1-19 Ребро Р10 1.865.5-12.1-20 Плита ПДА6-1-07 1.865.5-12.1-21 Плита ПДФ6-1-07 1.865.5-12.1-22 Каркас ДК3 1.865.5-12.1-23 Соединительный элемент М1 1.865.5-12.1-РМ Ведомость расхода материалов |
| Разработан: | ЦНИИСК им. В.А. Кучеренко ЦНИИЭПсельстрой |
| Утверждён: | 26.11.1987 Госстрой СССР (Государственный комитет Совета Министров СССР по делам строительства) (USSR Gosstroy 6/6-4245) |
| Издан: | ЦИТП Госстроя СССР (CITP, Gosstroy (USSR) 1988 г. ) |





















