Скачать Серия 1.169.1-2с Выпуск 0/88. Материалы для проектированияДата актуализации: 01.01.2021
|
| Обозначение: | Серия 1.169.1-2с |
| Обозначение англ: | Series 1.169.1-2с |
| Статус: | не определен законодательством |
| Название рус.: | Выпуск 0/88. Материалы для проектирования |
| Дата добавления в базу: | 01.09.2013 |
| Дата актуализации: | 01.01.2021 |
| Дата введения: | 30.09.1988 |
| Дата окончания срока действия: | 30.06.2003 |
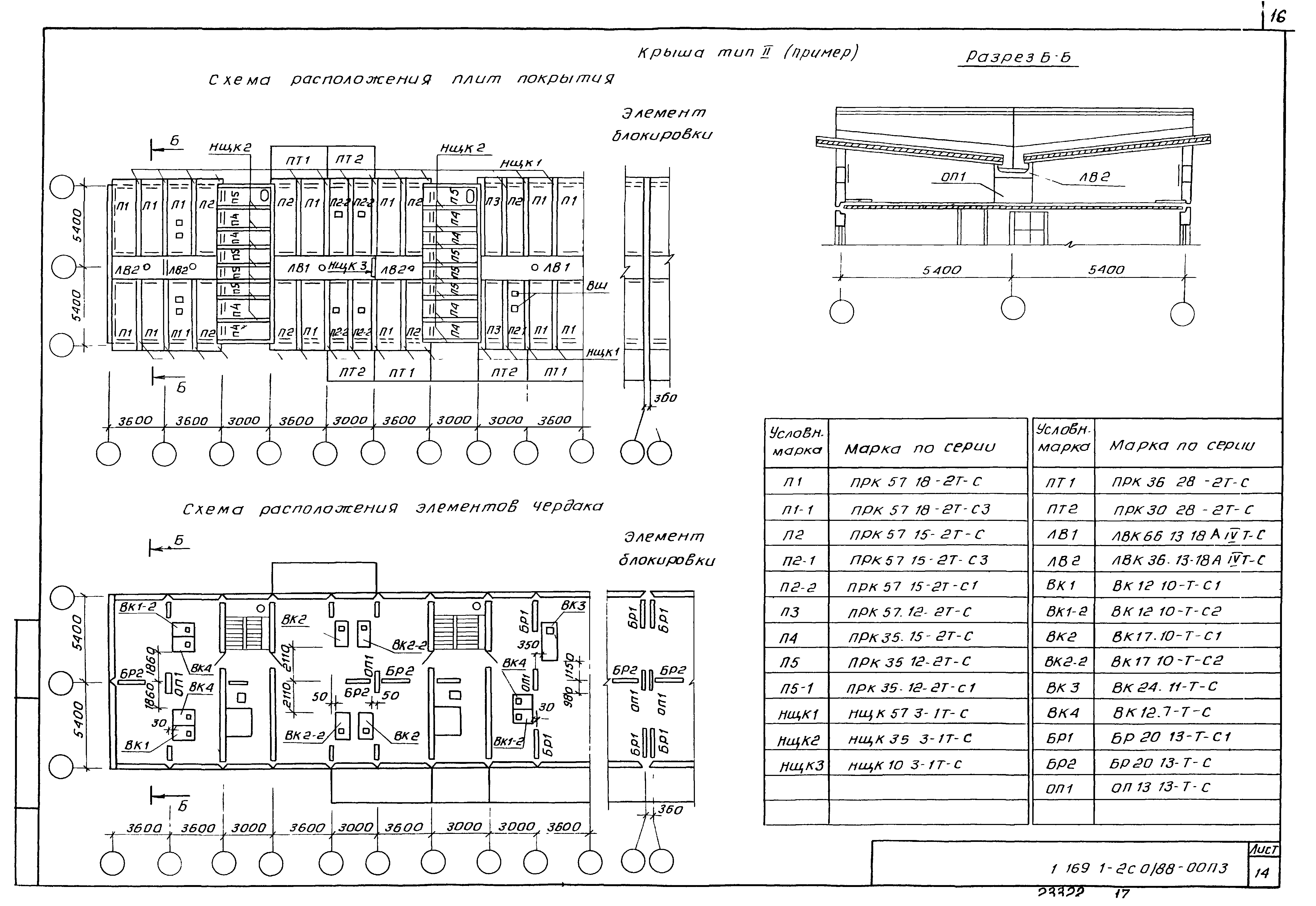
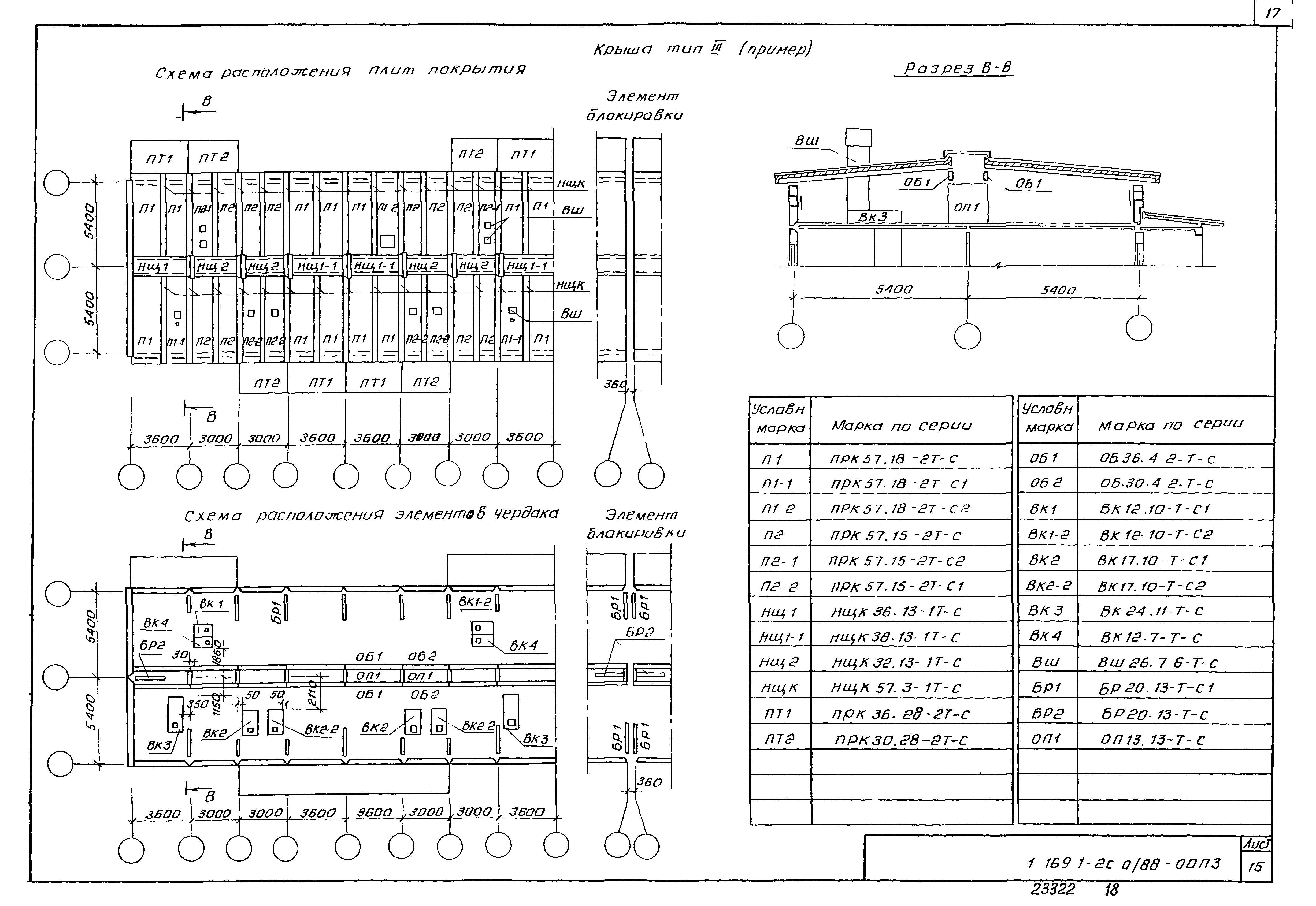
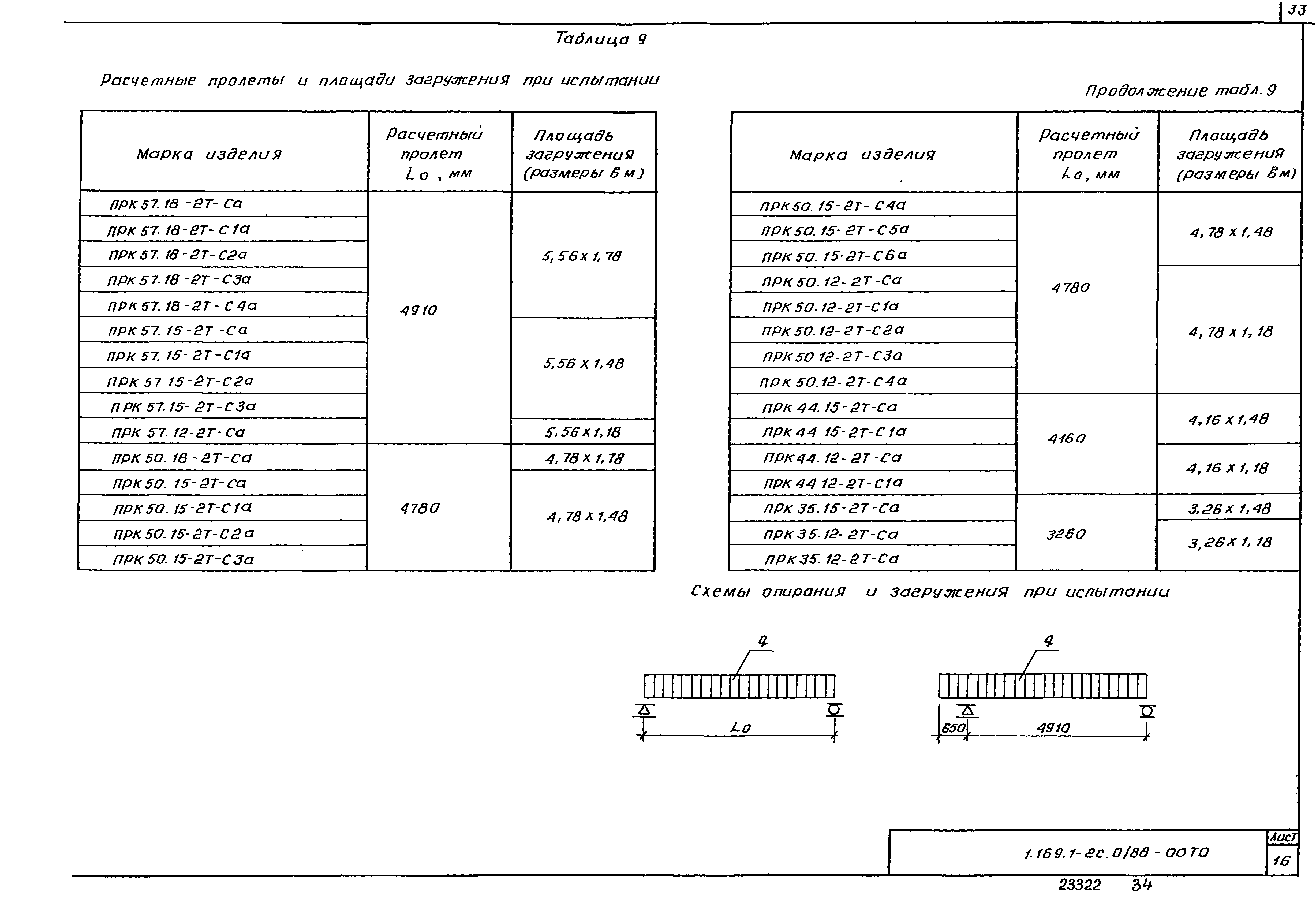
| Оглавление: | 1.169.1-2с.0-ООПЗ Пояснительная записка 1.169.1-2с.0-ООТО Техническое описание 1.169.1-2с.0-ООРМ Ведомость расхода материалов |
| Разработан: | ТашЗНИИЭП Госгражданстроя |
| Утверждён: | 05.09.1988 Госкомархитектура (257) |





















































