Скачать Серия 1.169.1-2с Выпуск 4. Плиты ребристые кровельные, армированные стержнями из стали Ат-IVC. Рабочие чертежиДата актуализации: 01.01.2021
|
| Обозначение: | Серия 1.169.1-2с |
| Обозначение англ: | Series 1.169.1-2с |
| Статус: | не определен законодательством |
| Название рус.: | Выпуск 4. Плиты ребристые кровельные, армированные стержнями из стали Ат-IVC. Рабочие чертежи |
| Дата добавления в базу: | 01.09.2013 |
| Дата актуализации: | 01.01.2021 |
| Дата введения: | 30.09.1988 |
| Дата окончания срока действия: | 30.06.2003 |
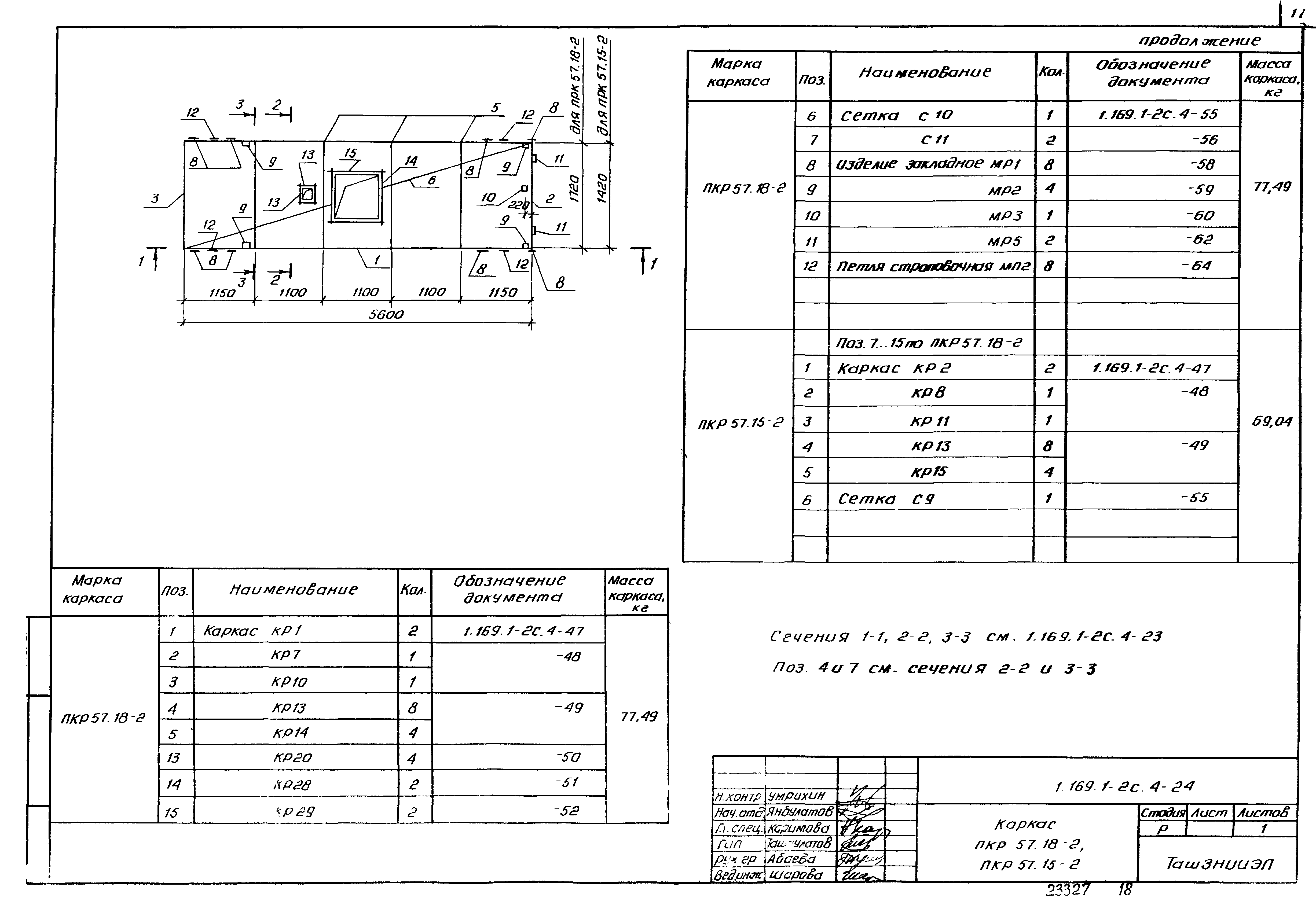
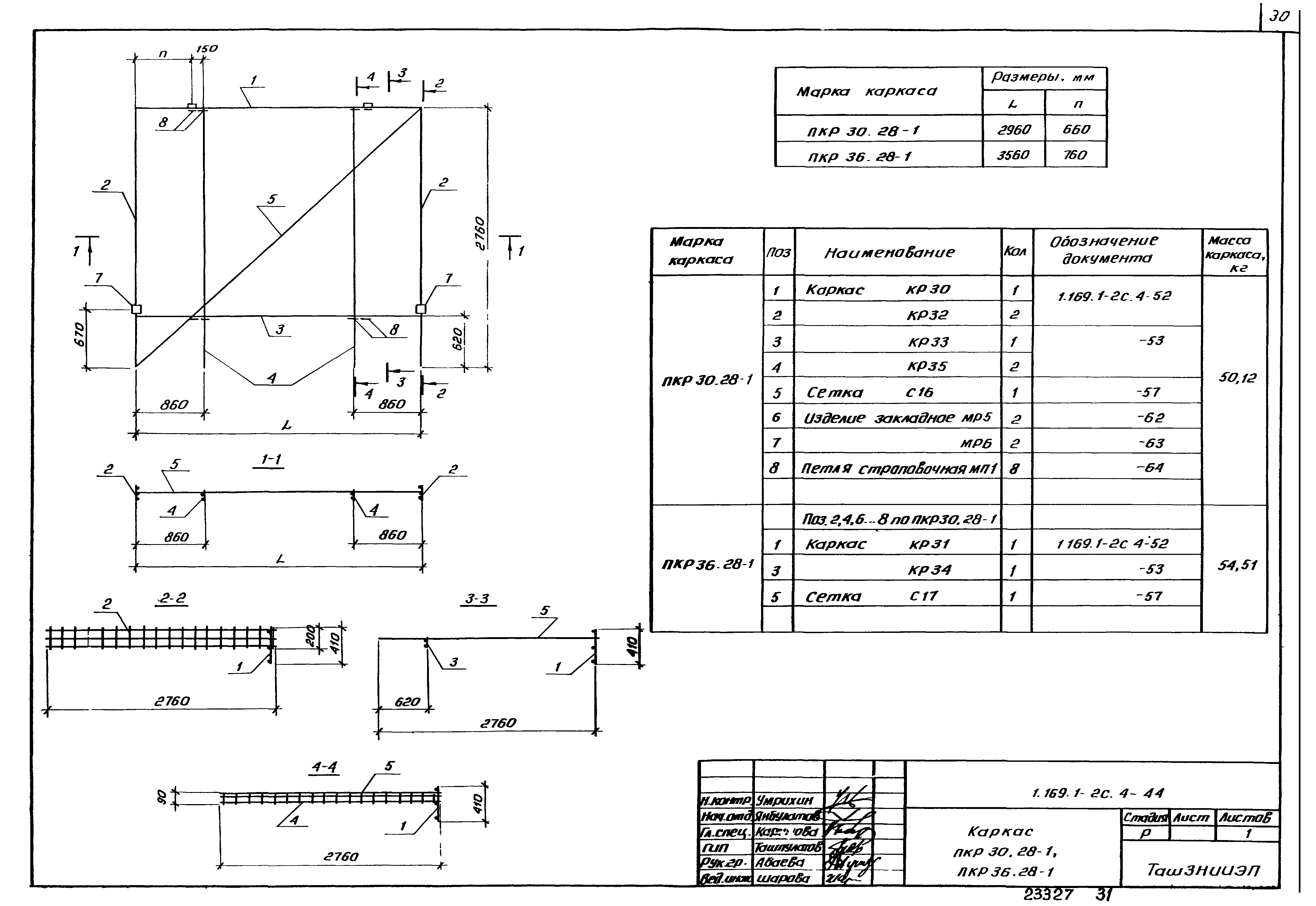
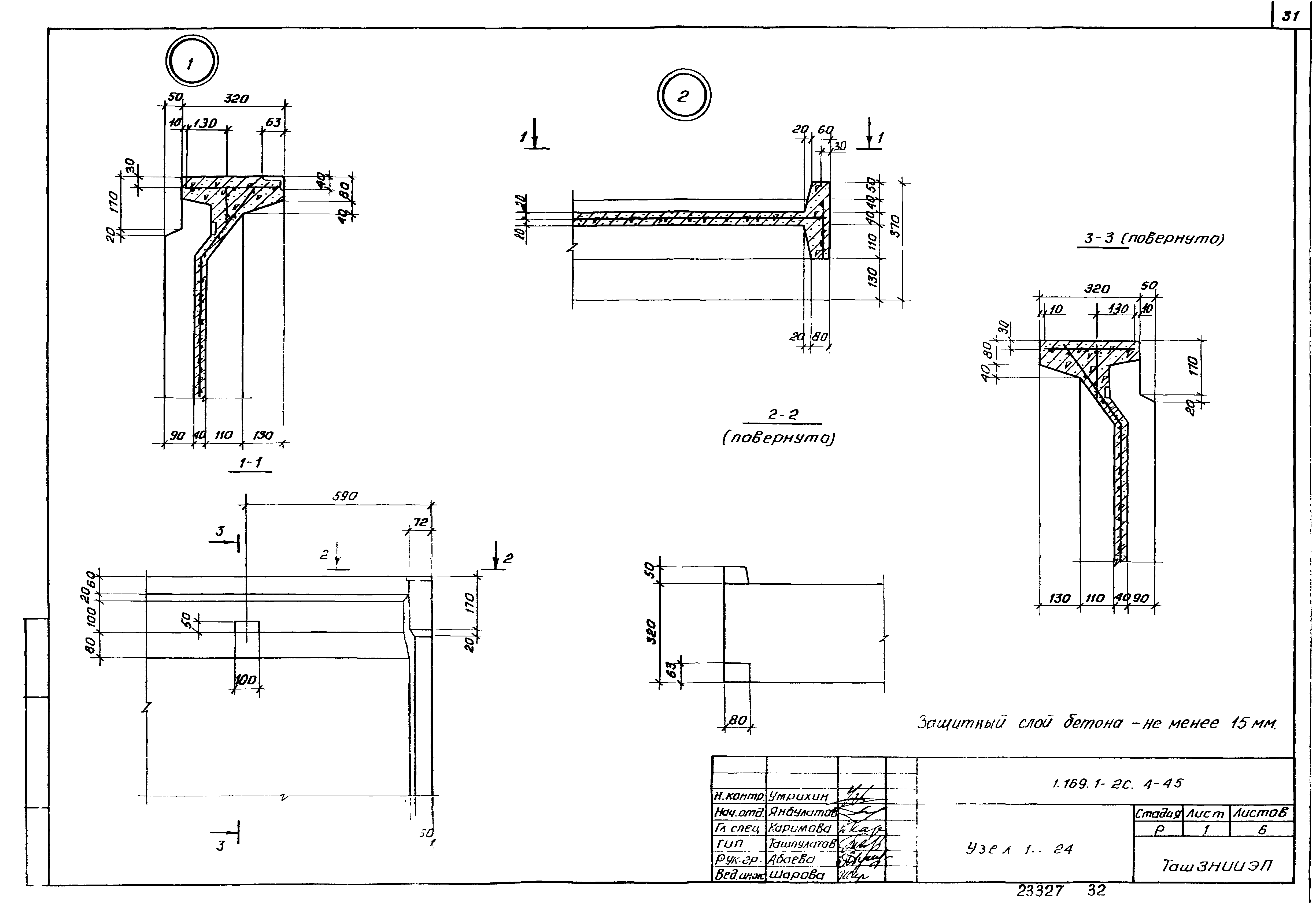
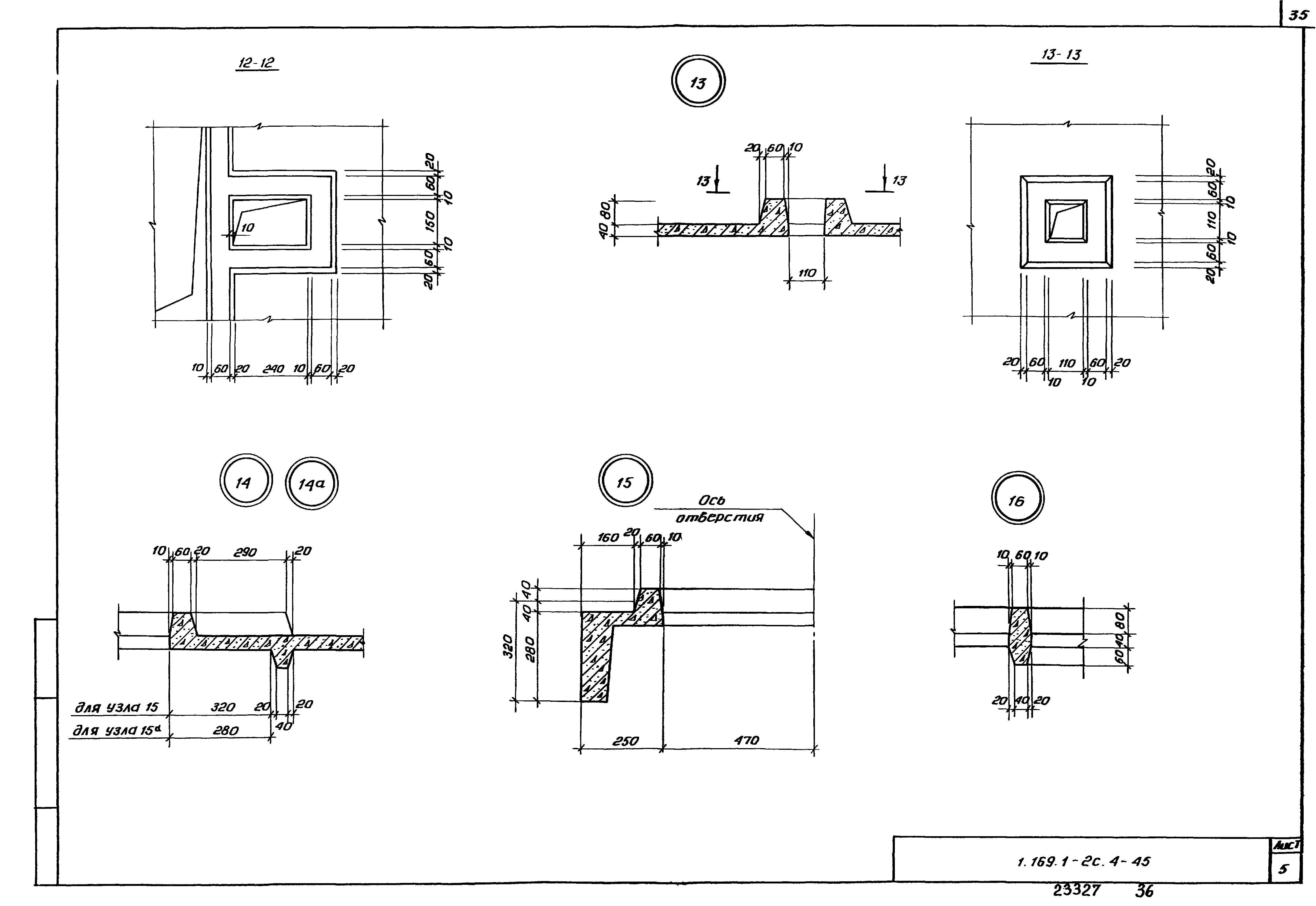
| Оглавление: | 1.169.1-2с.4-1 Плита ребристая кровельная ПРК 57.18-2Т-Са, ПРК 57.15-2Т-Са, ПРК 57.12-2Т-Са 1.169.1-2с.4-2 Плита ребристая кровельная ПРК 57.18-2Т-С1а, ПРК 57.15-2Т-С1а 1.169.1-2с.4-3 Плита ребристая кровельная ПРК 57.18-2Т-С2а 1.169.1-2с.4-4 Плита ребристая кровельная ПРК 57.18-2Т-С3а 1.169.1-2с.4-5 Плита ребристая кровельная ПРК 57.18-2Т-С4а 1.169.1-2с.4-6 Плита ребристая кровельная ПРК 57.15-2Т-С2а 1.169.1-2с.4-7 Плита ребристая кровельная ПРК 57.15-2Т-С3а 1.169.1-2с.4-8 Плита ребристая кровельная ПРК 50.18-2Т-Са, ПРК 50.15-2Т-Са, ПРК 50.12-2Т-Са 1.169.1-2с.4-9 Плита ребристая кровельная ПРК 50.15-2Т-С1а 1.169.1-2с.4-10 Плита ребристая кровельная ПРК 50.15-2Т-С2а, ПРК 50.12-2Т-С3а 1.169.1-2с.4-11 Плита ребристая кровельная ПРК 50.15-2Т-С3а 1.169.1-2с.4-12 Плита ребристая кровельная ПРК 50.15-2Т-С4а 1.169.1-2с.4-13 Плита ребристая кровельная ПРК 50.15-2Т-С5а, ПРК 50.12-2Т-С4а 1.169.1-2с.4-14 Плита ребристая кровельная ПРК 50.15-2Т-С6а 1.169.1-2с.4-15 Плита ребристая кровельная ПРК 50.12-2Т-С1а 1.169.1-2с.4-16 Плита ребристая кровельная ПРК 50.12-2Т-С2а 1.169.1-2с.4-17 Плита ребристая кровельная ПРК 44.15-2Т-Са, ПРК 44.12-2Т-Са 1.169.1-2с.4-18 Плита ребристая кровельная ПРК 44.15-2Т-С1а 1.169.1-2с.4-19 Плита ребристая кровельная ПРК 44.12-2Т-С1а 1.169.1-2с.4-20 Плита ребристая кровельная ПРК 35.15-2Т-Са, ПРК 35.12-2Т-Са 1.169.1-2с.4-21 Плита ребристая кровельная ПРК 35.12-2Т-С1а 1.169.1-2с.4-22 Плита ребристая кровельная ПРК 30.28-2Т-Са, ПРК 36.28-2Т-Са 1.169.1-2с.4-23 Каркас ПКР 57.18-1, ПКР 57.15-1, ПКР 57.12-1 1.169.1-2с.4-24 Каркас ПКР 57.18-2, ПКР 57.15-2 1.169.1-2с.4-25 Каркас ПКР 57.18-3 1.169.1-2с.4-26 Каркас ПКР 57.18-4 1.169.1-2с.4-27 Каркас ПКР 57.18-5 1.169.1-2с.4-28 Каркас ПКР 57.15-3 1.169.1-2с.4-29 Каркас ПКР 57.15-4 1.169.1-2с.4-30 Каркас ПКР 50.15-2 1.169.1-2с.4-31 Каркас ПКР 50.18-1, ПКР 57.15-1, ПКР 57.12-1 1.169.1-2с.4-32 Каркас ПКР 50.15-4 1.169.1-2с.4-33 Каркас ПКР 50.15-5 1.169.1-2с.4-34 Каркас ПКР 50.15-3, ПКР 50.12-4 1.169.1-2с.4-35 Каркас ПКР 50.15-7 1.169.1-2с.4-36 Каркас ПКР 50.12-2 1.169.1-2с.4-37 Каркас ПКР 50.15-6, ПКР 50.12-5 1.169.1-2с.4-38 Каркас ПКР 50.12-3 1.169.1-2с.4-39 Каркас ПКР 44.15-2 1.169.1-2с.4-40 Каркас ПКР 44.15-1, ПКР 44.12-1 1.169.1-2с.4-41 Каркас ПКР 44.12-2 1.169.1-2с.4-42 Каркас ПКР 35.12-2 1.169.1-2с.4-43 Каркас ПКР 35.15-1, ПКР 35.12-1 1.169.1-2с.4-44 Каркас ПКР 30.28-1, ПКР 36.28-1 1.169.1-2с.4-45 Узел 1…24 1.169.1-2с.4-46 Сечение 10-10…22-22 1.169.1-2с.4-47 Каркас КР1…КР6 1.169.1-2с.4-48 Каркас КР7…КР12 1.169.1-2с.4-49 Каркас КР13…КР16 1.169.1-2с.4-50 Каркас КР17…КР22 1.169.1-2с.4-51 Каркас КР23…КР28 1.169.1-2с.4-52 Каркас КР29…КР32 1.169.1-2с.4-53 Каркас КР33…КР35 1.169.1-2с.4-54 Сетка С1…С5 1.169.1-2с.4-55 Сетка С6…С10 1.169.1-2с.4-56 Сетка С11…С14 1.169.1-2с.4-57 Сетка С15…С17 1.169.1-2с.4-58 Изделие закладное МР1 1.169.1-2с.4-59 Изделие закладное МР2 1.169.1-2с.4-60 Изделие закладное МР3 1.169.1-2с.4-61 Изделие закладное МР4 1.169.1-2с.4-62 Изделие закладное МР5 1.169.1-2с.4-63 Изделие закладное МР6 1.169.1-2с.4-64 Петля строповочная МП1, МП2 1.169.1-2с.4-65 Петля строповочная МП3 1.169.1-2с.4-РС Ведомость расхода стали |
| Разработан: | ТашЗНИИЭП Госгражданстроя |
| Утверждён: | 05.09.1988 Госкомархитектура (257) |

















































