Скачать Серия 2.460-17 Выпуск 2. Изделия. Рабочие чертежиДата актуализации: 01.01.2021
|
| Обозначение: | Серия 2.460-17 |
| Обозначение англ: | Series 2.460-17 |
| Статус: | не определен законодательством |
| Название рус.: | Выпуск 2. Изделия. Рабочие чертежи |
| Дата добавления в базу: | 01.09.2013 |
| Дата актуализации: | 01.01.2021 |
| Дата введения: | 01.09.1982 |
| Дата окончания срока действия: | 30.06.2003 |
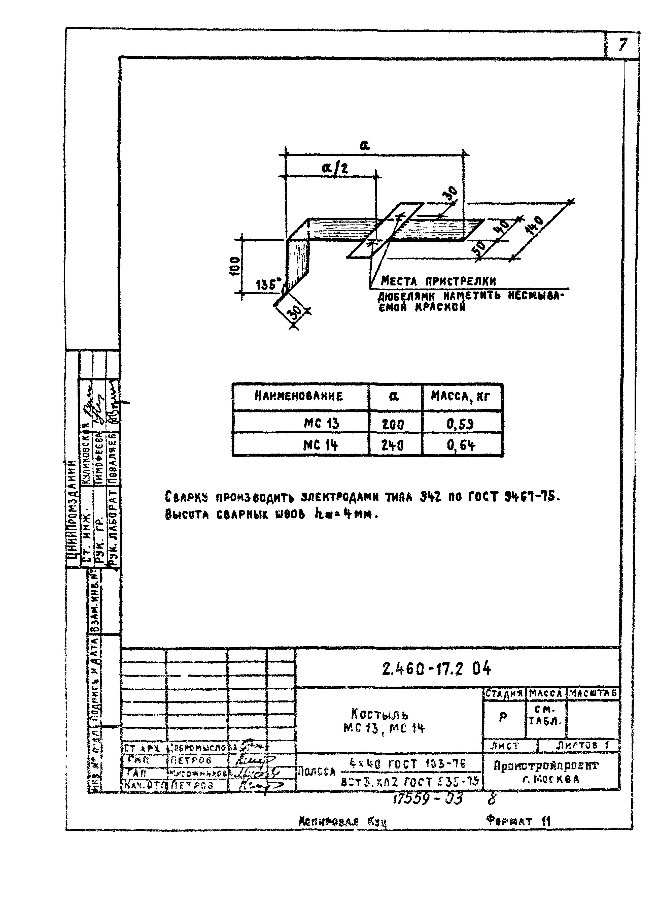
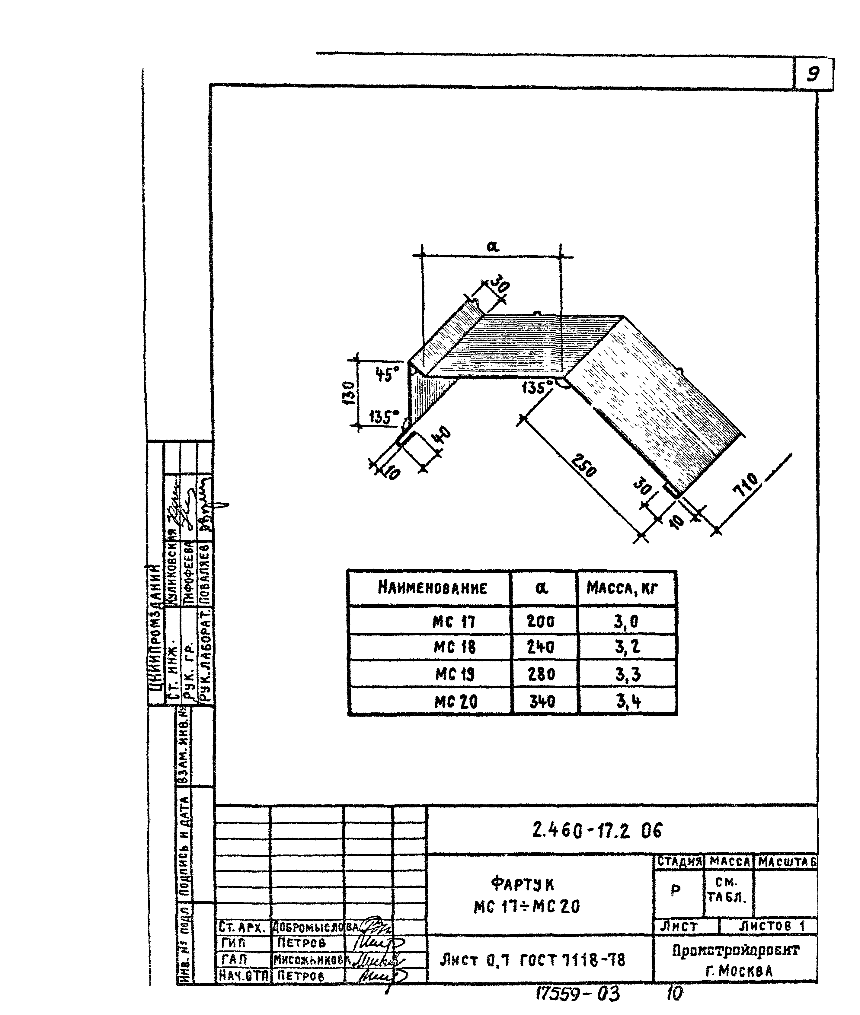
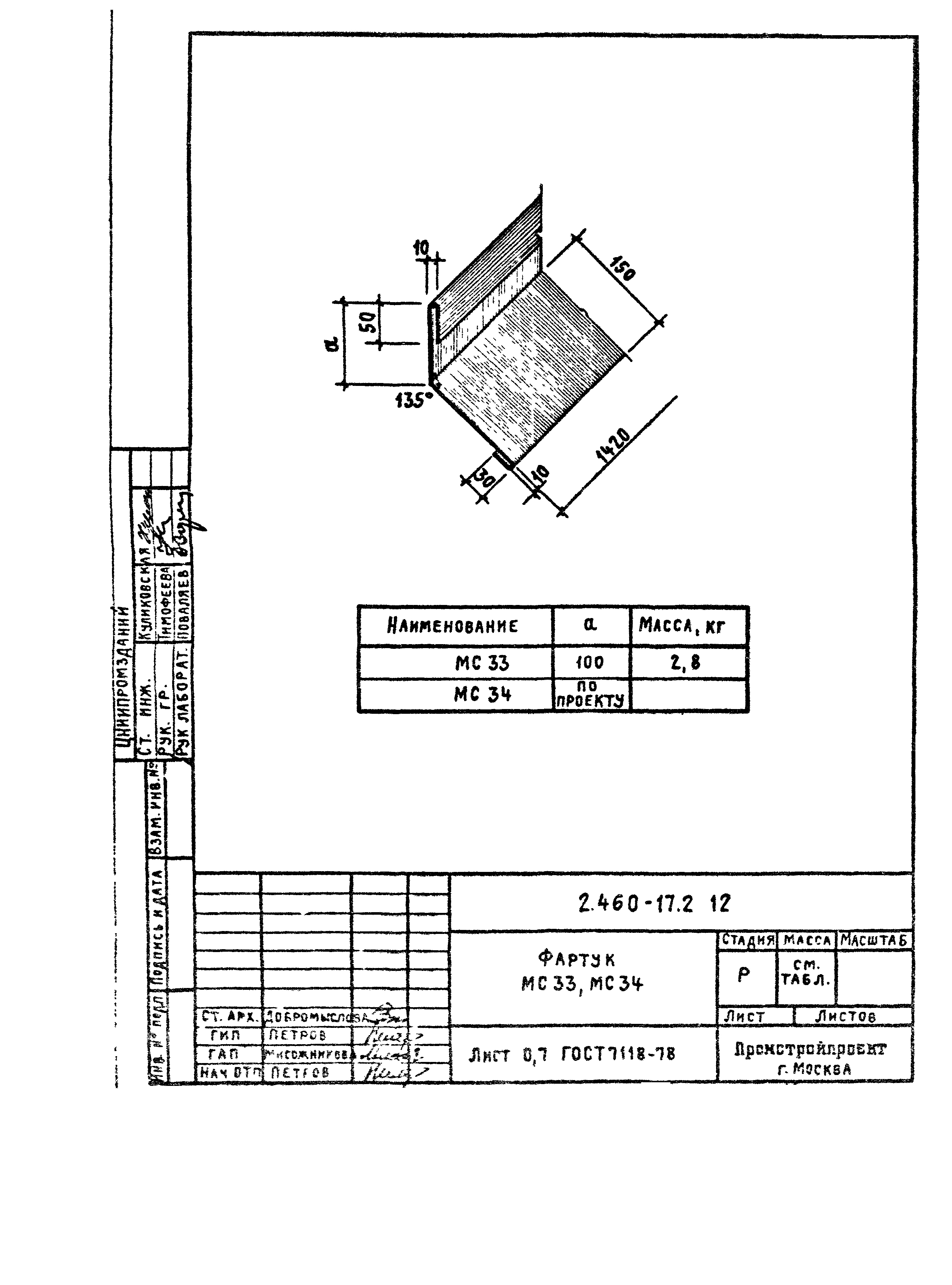
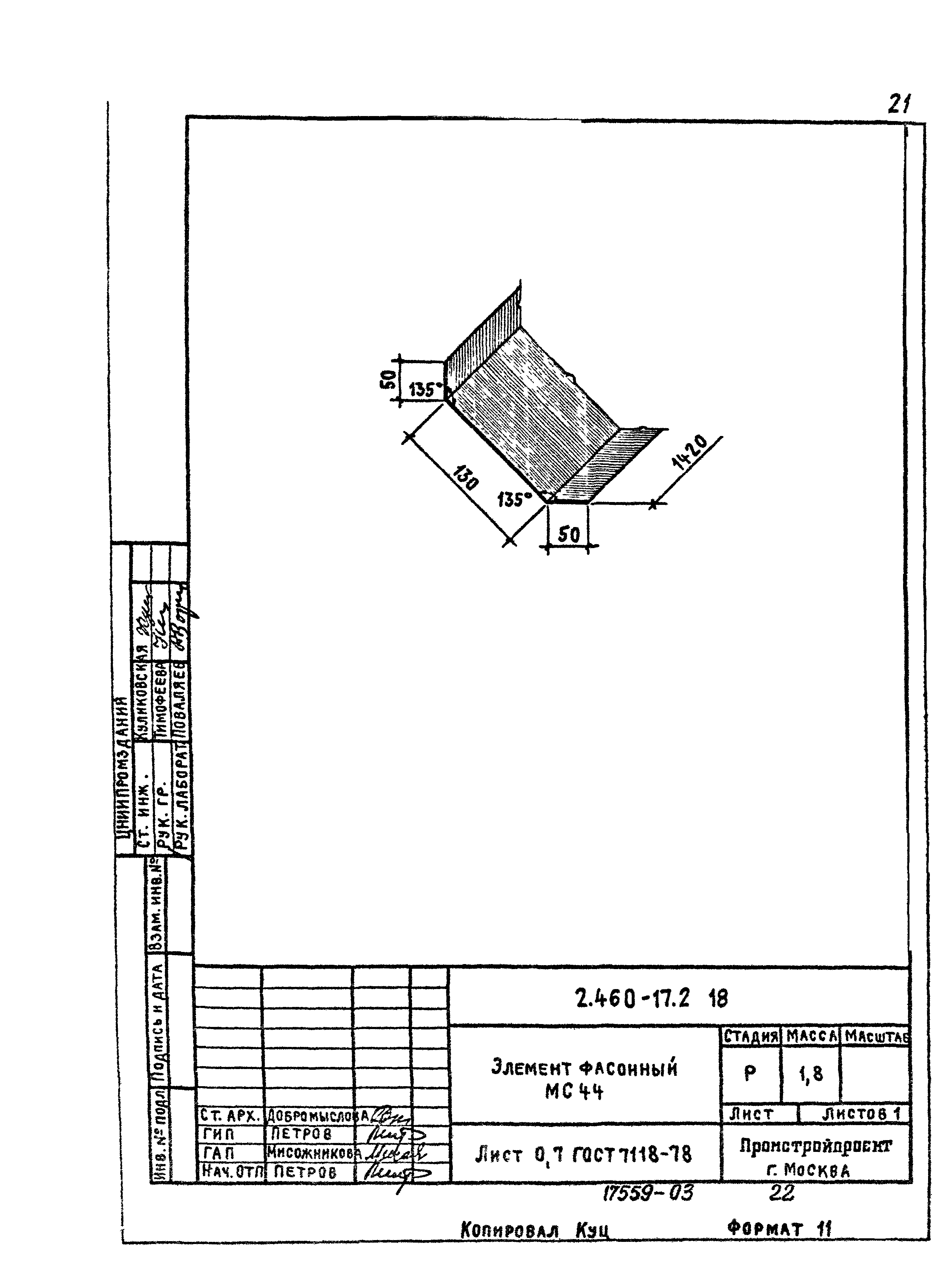
| Оглавление: | 2.460-17.2 00 Фартук МС1:МС4 2.460-17.2 01 Костыль МС5, МС6 2.460-17.2 02 Костыль МС7, МС8 2.460-17.2 03 Фартук МС9:МС12 2.460-17.2 04 Костыль МС13, МС14 2.460-17.2 05 Костыль МС15, МС16 2.460-17.2 06 Фартук МС17:МС26 2.460-17.2 07 Костыль МС21, МС22 2.460-17.2 08 Костыль МС23, МС24 2.460-17.2 09 Фартук МС25:МС28 2.460-17.2 10 Костыль МС29, МС30 2.460-17.2 11 Костыль МС31, МС32 2.460-17.2 12 Фартук МС33, МС34 2.460-17.2 13 Фартук МС35 2.460-17.2 14 Компенсатор МС36, МС54 2.460-17.2 15 Выкружка МС37:МС39, МС55:МС57 2.460-17.2 16 Компенсатор МС40 2.460-17.2 17 Выкружка МС41:МС43 2.460-17.2 18 Элемент фасонный МС44 2.460-17.2 19 Элемент фасонный МС45, МС53 2.460-17.2 20 Фартук МС46 2.460-17.2 21 Компенсатор МС47 2.460-17.2 22 Рамка МС48 2.460-17.2 23 Костыль МС49 2.460-17.2 24 Фартук МС50 2.460-17.2 25 Поддон МС51 2.460-17.2 26 Фасонный элемент МС52 |
| Разработан: | ЦНИИпромзданий ГПИ Промстройпроект |
| Утверждён: | 27.04.1982 Госстрой СССР (Государственный комитет Совета Министров СССР по делам строительства) (USSR Gosstroy 108) |
| Заменяет собой: |




























