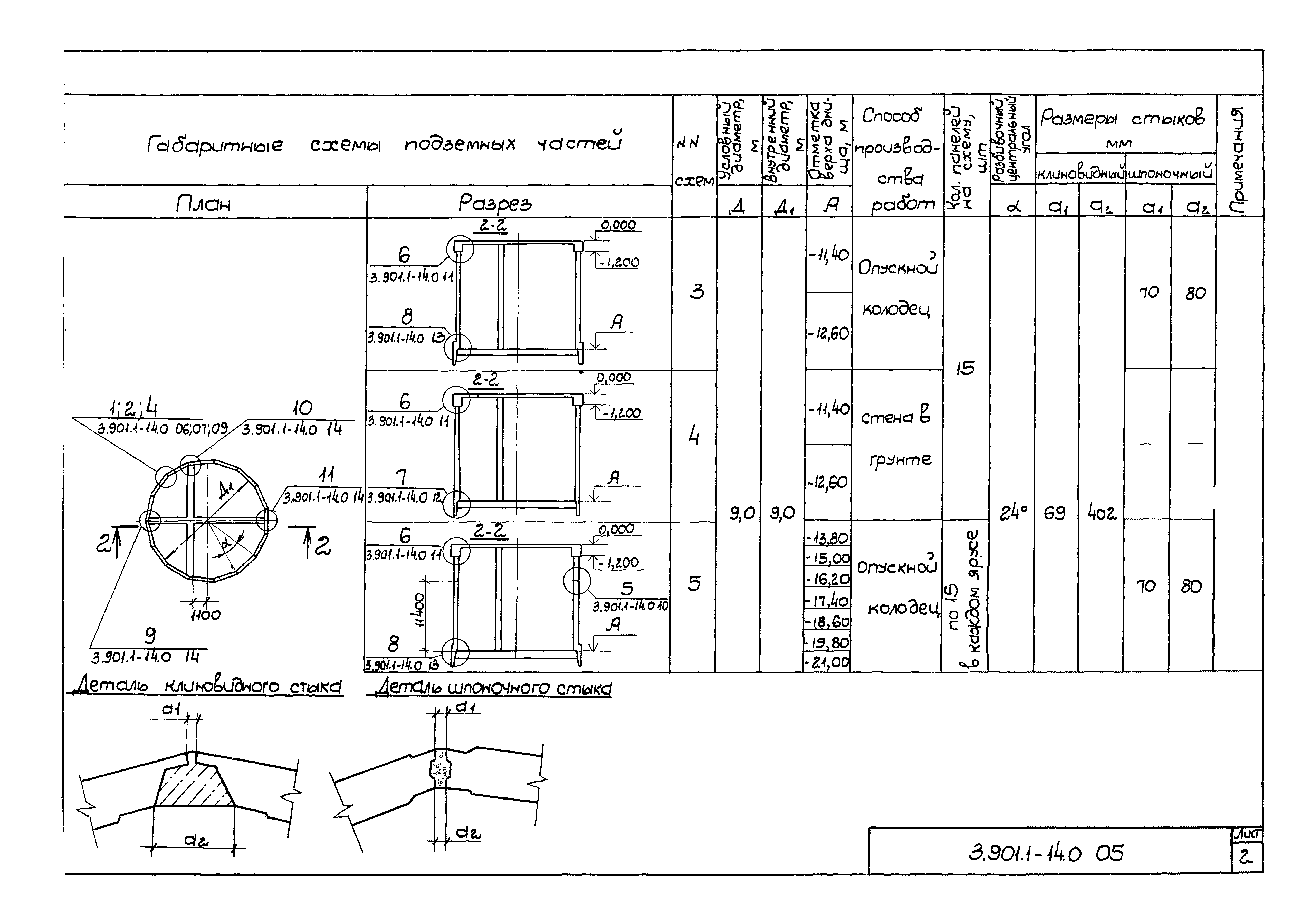
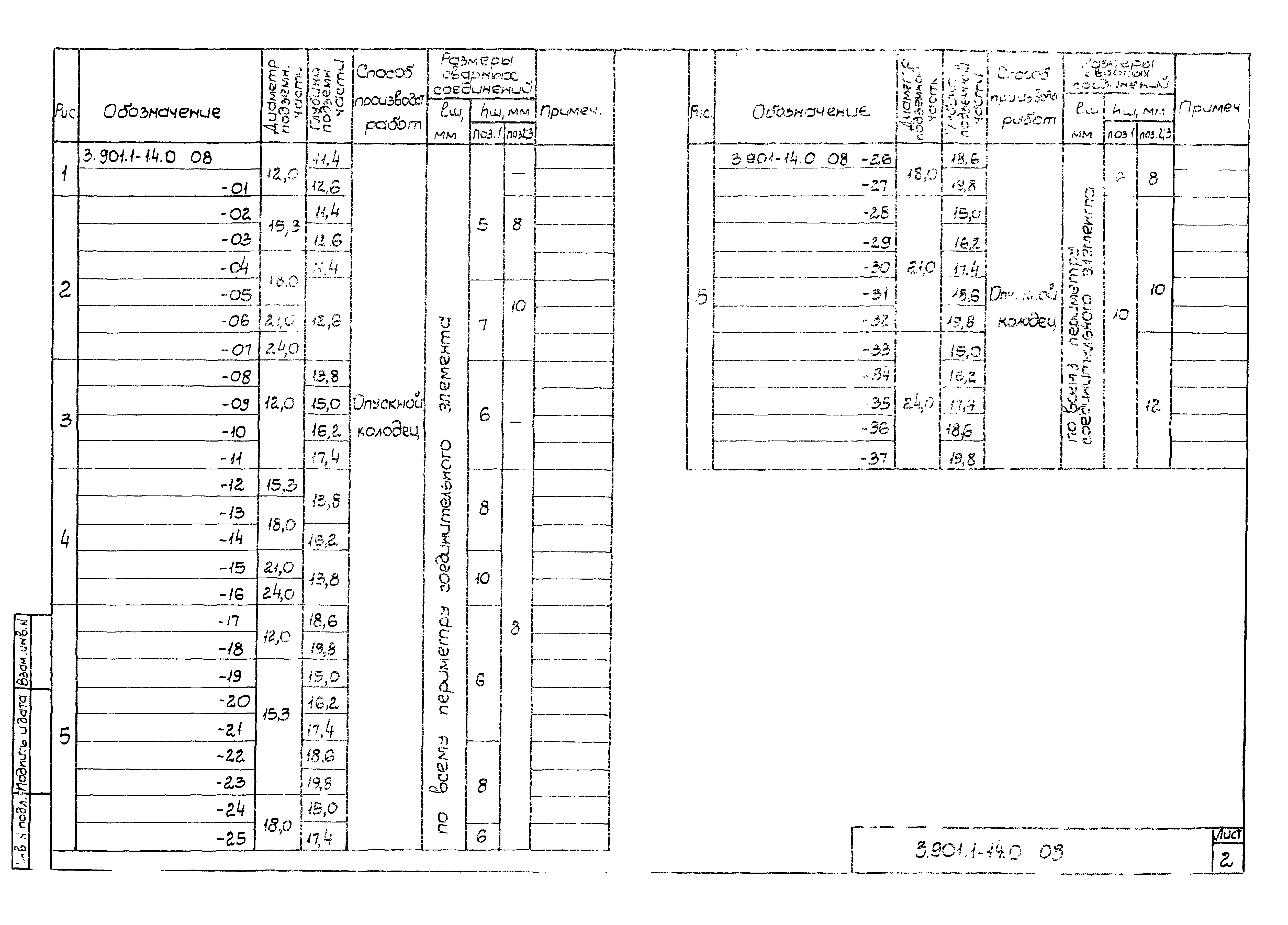
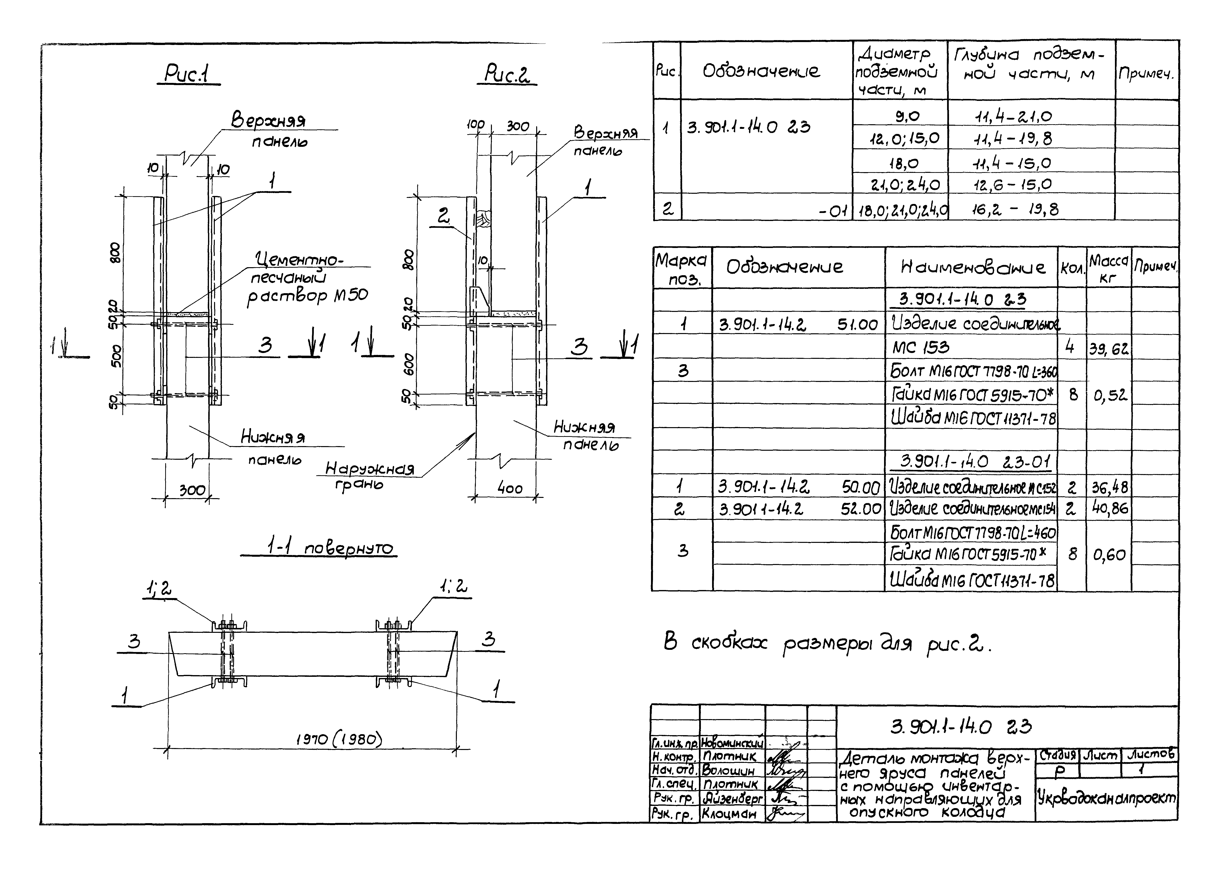
Скачать Серия 3.901.1-14 Выпуск 0. Материалы для проектированияДата актуализации: 01.01.2021
|
| Обозначение: | Серия 3.901.1-14 |
| Обозначение англ: | Series 3.901.1-14 |
| Статус: | действует |
| Название рус.: | Выпуск 0. Материалы для проектирования |
| Дата добавления в базу: | 01.09.2013 |
| Дата актуализации: | 01.01.2021 |
| Дата введения: | 01.07.1985 |
| Разработан: | ЦНИИпромзданий НИИЖБ ГПИ Укрводоканалпроект |
| Утверждён: | 05.05.1985 Госстрой СССР (Государственный комитет Совета Министров СССР по делам строительства) (USSR Gosstroy АЧ-13) |

















































































